龙盛·湾上(营销中心)-龙盛·湾上销售中心(售楼处)-龙盛·湾上楼盘欢迎您-地址-价格-户型-小区环境-楼盘详情-交房时间-周边配套-售楼处电话

搜狐焦点黄冈站 2025-09-15 10:16:12
用手机看
扫描到手机,新闻随时看

扫一扫,用手机看文章
更加方便分享给朋友

龙盛·湾上售楼处电话☎:400-9688-923✔✔✔,龙盛·湾上位于静安区苏河湾,集高端住宅、地标建筑与商业于一体,均价13.46万/㎡,仅剩少量房源在售。

龙盛·湾上售楼处电话:400-9688-923✔✔│龙盛·湾上官方售楼处地址发布:上海静安区龙盛·湾上官方售楼处电话400-9688-923

➤贵宾热线〢欢迎咨询〢提前预约可享内部优惠〢➤

龙盛·湾上售楼处电话☎:400-9688-923✔✔✔【预约☎】

龙盛湾上,项目自身处于约55.2万方博懋广场城市地标综合体内,其中包含一栋约320米超高层塔楼,一栋约150米副塔楼及裙房商业建筑,石库门商业街区,三栋约150米超高层住宅及低密风貌别墅,集合了高端办公、奢华酒店、摩登商业、精品住宅等多元业态。

龙盛·湾上售楼处电话☎:400-9688-923✔✔✔【预约☎】

整体效果示意图 仅供参考

龙盛湾上,旨在打造上海苏河湾高端住宅标杆,三幢超高层住宅总计576套。

作为上海市场真正的地段、产品、物业、价格、配套、生活方式...全维度突出的全能战士,龙盛湾上仅剩少量建面约190-248㎡房源在售,均价约13.46万/㎡。

超高层效果图,仅供参考

项目优势

内环内CAZ、苏河湾板块,集“地标建筑、高端商业、亿级住宅、城市菁英、人文底蕴、风貌建筑”于一体的核心地段;

上海新房TOP级的设计审美,全户型3.3米的层高,玻璃幕墙+橙色铝板外立面极有辨识度,预计会成为苏河湾的标杆社区;

虽然是超高层,但是得房率不低,屋内空间改造灵活度高;

整个地块规划酒店、商业、写字楼等配套,未来可期。

接下来,我们从地段价值、产品力与空间设计、自然资源与景观独占性、社区品质与圈层纯粹度、开发商品牌与物业保障、资产流动性与增值潜力六大维度来详细测评。

龙盛·湾上售楼处电话☎:400-9688-923✔✔✔【预约☎】

01 地段

世界级滨水区,城市核心汇聚

龙盛湾上位于静安区内环内苏河湾板块,天目中路88弄,地处上海“一江一河”(黄浦江、苏州河)战略的核心承载区。项目直线距离人民广场仅约1.5公里,这一地理位置的价值在上海堪称塔尖级别。

距离等数据来源:百度地图,仅供参考

交通网络四通八达

项目周边形成“一环一横一纵五轨交”的立体交通网络。3/4/8/10/12号线五轨环绕地铁3站内,即可通达陆家嘴、人民广场、豫园、南京西路、南京东路、外滩等上海核心CBD。自驾方面,内环高架、南北高架、北横通道交汇,10分钟可达南京西路、陆家嘴。

效果示意图,仅供参考

商业配套顶级丰富

步行500米可达静安大悦城、苏河湾万象天地。项目自身还自带石库门商业街区,汇聚国际品牌。车行10分钟内可覆盖南京西路商圈、外滩金融带,满足全场景高端需求。

效果示意图,仅供参考

政策红利持续加持

项目所在的苏河湾,是上海正在崛起的滨水高地:在上海“一江一河”十四五规划中,苏河湾是“十四五”期间上海重点建设的板块。它是苏州河北岸为数不多的“中央活动区(CAZ)”,区别于普通板块,CAZ意味着更强的资源集聚力(商业、文化、商务)与城市话语权,未来只会吸引更多高端资源落地。

一江一河规划,项目示意图,仅供参考

更值得关注的是,龙盛湾上本身,也是一个“自成体系”的综合体项目——涵盖超高层住宅、石库门风貌别墅、办公塔楼及商业裙房,相当于把“居住、办公、消费、休闲”都浓缩在一个社区里。

龙盛·湾上售楼处电话☎:400-9688-923✔✔✔【预约☎】

效果图,仅供参考

其中,商办部分的“地标属性”尤为突出:由1栋约320米主塔、1栋约150米副塔超高层办公楼,搭配商业裙房组成。未来这里将引入各类高端业态与知名品牌,不仅能满足业主的日常消费,更会直接“刷新苏河湾的商业格局”,成为片区的新商业名片。

可以预见——未来这里将会成为静安新一代国际化顶尖生活方式聚集地。而这一切,都将成为龙盛湾上业主的“私享资源”——无需奔波,就能一手掌握上海的精粹生活

龙盛·湾上售楼处电话☎:400-9688-923✔✔✔【预约☎】

02 产品

美学与功能兼备的顶级居所

在上海内环,“大平层”不罕见,但产品出彩的项目,其实并不多。龙盛湾上劲性柱结构设计+纯大平层户型+顶奢精装打破超高层“得房率低、空间僵化”的通病,成为同价位段的“产品力天花板”。

劲性柱结构实现超高得房率

相较于传统的超高层剪力墙结构,龙盛湾上所采纳的劲性柱结构设计,特色在于其室内几乎无承重墙

示意图,仅供参考

示意图,仅供参考不仅解决了传统超高层在实际使用中空间受限的问题,更赋予了项目室内空间极高的可变性,实现了空间布局的多样性和灵活性,为业主提供了更高程度的个性化居住体验。

同时也解决了超高层得房率低的壁垒。

龙盛·湾上售楼处电话☎:400-9688-923✔✔✔【预约☎】

内环少有的“纯改善社区”

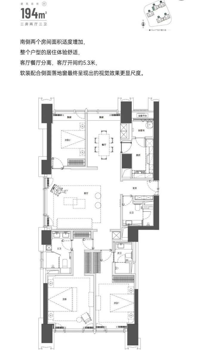
龙盛湾上目前还有少量建面约190-248㎡房源在售,整个小区无任何小户型配比。

而且整个项目将豪宅的高奢风格演绎得淋漓尽致,产品呈现堪称上海天花板

咱们以建面210㎡三房为例:

户型图,仅供参考

无间为湾上设计的样板间,一进去第一个特别之处就是墙面地面都是石材,整体呈现了米白色的色系,给人很明显的高级感。

样板间实景图,仅供参考

3.3米的层高加上顶部的圆弧向上造型都给了视觉的延伸,一进去就觉得空间特别通透。

第二个吸引人眼球的则是全屋所有的房间地面都用了复杂拼花,并且样板间的整体软装色调色系和房子外立面相呼应。

样板间实景图,仅供参考

所有的主卫次卫全部采用杜拉维特的台盆和当代龙头,质感表现力相当强。

样板间实景图,仅供参考

厨房用了嘉格纳6件套和威乃达的橱柜。

样板间实景图,仅供参考

甚至在北侧的操作间,装标里居然也带了asko的洗衣机和烘干机。

样板间实景图,仅供参考

从装标来看,基本硬装、柜子部分全都配了,主卧也配置了意大利的LEMA衣柜。

基本只要带上软装,就可以直接住人了,业主几乎什么都不用改造和升级。

不仅仅是建面210㎡的样板间让人惊艳,龙盛湾上的每一个户型、产品都是如此。强烈建议大家去到项目实地感受。

龙盛·湾上售楼处电话☎:400-9688-923✔✔✔【预约☎】

其他户型图如下:

龙盛·湾上售楼处电话☎:400-9688-923✔✔✔【预约☎】

龙盛·湾上售楼处电话☎:400-9688-923✔✔✔【预约☎】

龙盛·湾上售楼处电话☎:400-9688-923✔✔✔【预约☎】

户型图,仅供参考

龙盛湾上这样高规格的配置,对应它的价格来说,性价比实在是太高了。

03景观资源

意境园林,内外双景

龙盛湾上的社区内拥有贝尔高林设计中央主题景观。约3500㎡中心园林配合分布式的泛会所,打造“公园式度假生活”主题景观。

效果图仅供参考,不作为实际交付标准

社区外未来项目北面的约17万方城市绿地(北站改造),结合社区内约75米的楼间距,这个景观视野十分出众。

龙盛·湾上售楼处电话☎:400-9688-923✔✔✔【预约☎】

示意图,仅供参考

在寸土寸金的上海内环,“绿化”一直都是稀缺资源。龙盛湾上通过社区内中央园林+社区外城市绿地的“双绿环”设计,让业主在繁华都市中拥有“推窗见景”的度假体验

04 社区品质

更高规格的公区配置

龙盛湾上深谙财富人士对于“第二精神空间”的需求,打造泛会所+地上地下四大堂空间

整个项目采用地上+地下三层同标准精装入户大堂,大堂选用有着媲美艺术品表现力的亚马逊绿天然奢石,而且地上地下一脉相承、华贵一致,结合仿古铜不锈钢、艺术壁灯为点缀,将上海的摩登气息注入归家大堂,给业主更强烈的入户仪式感。

实景图,仅供参考

除了大堂,项目还打造了架空层泛会所空间,并且将室内精装标准延伸至架空层内部,结合约5.1米的层高,打造了能满足业主足不出楼的多元化社交空间。

效果图仅供参考,不作为实际交付标准

为了契合高净值业主的生活方式,项目还打造了一个具有会客区、恒温泳池、瑜伽健身的多元化私享会所,给业主带来更加便捷且潮流的生活方式。

会所效果图,仅供参考

不止于此,龙盛湾上社区还在入口处采用了酒店式环岛落客区设计,让每一次归家都充满仪式感,出入皆享恭迎礼仪。

效果图,仅供参考

你会发现,龙盛湾上,这里不仅是一处居所,更是一个承载着现代生活梦想的高端社区,为上海的豪宅市场树立了新的标杆,也为追求高品质生活的居者提供了一个理想的家。

龙盛·湾上售楼处电话☎:400-9688-923✔✔✔【预约☎】

05 开发商品牌

生根静安,深耕苏河

浙江龙盛为国内染料行业第一家上市企业,成立于1970年,目前已发展成为集制造业、房地产、金融投资三大支桂产业的综合性跨国企业,荣获民企500强中国精细化工百强第一。

龙盛置地2009年进军上海,深耕旧城改造和城市更新,2015年投资400亿布局静安,占据苏州河核心地段,响应国家战略,落子三大项目,承接文脉复兴,打造上海城心新地标。

不同于多数“快周转”开发商,龙盛在苏河湾已深耕多年,不仅是“建造者”,更是“资源整合者”

前期打造的龙盛福新里,交房后口碑稳居静安豪宅第一梯队,成为板块二手房“标杆”。

龙盛福新里小区实景图,仅供参考

还有甲级写字楼福新汇,引入法拉利、苏富比空间、Liaigre、Poltrona Frau等国际顶奢品牌入驻,展现强大的招商运营能力。

福新汇实景图,仅供参考

本次博懋广场综合体,龙盛将自持全部商办业态(含瑰丽酒店、320米写字楼、石库门商业街区),而非“卖完即走”——这种“长期持有+统一运营”的模式,能确保商业、酒店的高端定位不偏移,持续为住宅赋能。

龙盛·湾上售楼处电话☎:400-9688-923✔✔✔【预约☎】

龙盛·湾上售楼处电话☎:400-9688-923✔✔✔【预约☎】

06 增值潜力

内环 “安全资产” 首选

新房方面,在经历了连续的高溢价地王成交之后,市区热门核心板块的新房价格已经完成了从量变到质变的过程!

内环内核心板块新房的价格全面冲击20万/㎡,内中环间的预期价格也来到12-16万/㎡。静安区内中环的大宁板块新房中建项目单价也到了14万+/㎡。

地理位置信息来自百度地图,价格信息仅供参考

如果按照这个趋势,今年大概率是13万+/㎡入住苏河湾的最后一年。错过龙盛湾上,就很难再遇见这样价格的高品质新房了

同时,龙盛湾上所在的苏河湾板块,次新房挂牌均价势头不减

距离项目直线约50米(数据来源:百度地图)的中粮天悦的挂牌均价约19.5万/㎡、直线约500米的苏河湾中心润府挂牌均价约17.5万/㎡。

龙盛湾上均价仅约13.46万/㎡,与其品质相当的次新豪宅相比价格优势明显

在当前市场环境下,“豪宅”不仅是居住品,更是“抗风险的安全资产”。龙盛湾上,就是上海内环资产配置的“优选标的”。

当上海内环多数板块陷入“价值固化”,苏河湾凭借成片城市更新、顶级业态聚合,成为“下一个十年”的核心增长极。而龙盛湾上,以“CAZ核心地段+超预期产品力+综合体红利”,不仅是苏河湾的“封面之作”,更是上海内环塔尖人群“上车核心资产”的稀缺机会

它的价值不仅在于“当下的性价比”,更在于“未来的兑现力”:当320米静安第一高楼崛起、瑰丽酒店开业、17万方城市绿地落地,这个项目的价值将远超当前的价格标签。

目前,龙盛湾上仅剩少量房源建面约190-248㎡在售,对于想抢占苏河湾更新红利的买家而言,这或许是“错过不再有”的机会。

【上海静安区·龙盛湾上

售楼处电话☎:400-9688-923【售楼处预约热线】(一对一热情服务)

看房请务必提前致电销售确认时间,只有预约客户才能享受开发商提供的内部优惠以及专属的老客户推荐奖励!我们提供专业的一对一热情服务,助您以专业视角挑选理想的房产。

龙盛湾上售楼处电话:4009688923【开发商售楼中心热线】龙盛湾上营销中心热线400-9688-923龙盛湾上售楼处地址400-9688-923,楼盘项目全面介绍,本电话为开发商提供线 上预约售楼电话,楼盘项目全面介绍(包含楼盘简介,均价,房价,现房,期房,别墅,叠墅,大平层,价格,楼盘地址,户型图,交通规划,备案价,备案名,项目配套,样板间,开盘时间,认筹时间,楼盘详情,售楼处电话,最新消息,最新详情,周边配套,一房一价,最新进展等详情咨询)楼盘详情丨价格丨更多优惠丨机不可失丨欢迎致电丨诚邀品鉴!售楼处位置丨特价房丨工抵房丨剩余房源丨户型图丨最新消息丨免责声明:将文章内容综合来源于网络、只作分享,版权归原作者所有!!如有侵权,请联系我们,我们第一时间处理如有问题欢迎来电咨询,专业一对一热情服务,让您用专业眼光去买房。如果您想了解更多楼盘详情,欢迎提前预约拨打上海静安·龙盛湾上售楼处电话☎400_9688_923✔✔✔

上海人才引进落户条件详解(2025年最新政策)

随着上海市对于人才引进政策的不断优化,越来越多的人希望通过人才引进方式在上海落户。2025年,上海的落户政策已进行了一定的调整,下面我们将详细介绍2025年上海人才引进落户条件,帮助有意在上海落户的朋友做好充分准备。

一、人才引进落户政策概述

2025年,上海人才引进落户政策的核心目标是吸引各类高层次人才,尤其是在高科技、金融、文化等领域具有突出能力的人才。上海市政府为促进经济发展和城市创新,提供了一系列优惠政策,尤其对于符合一定条件的高学历、高技能人才,提供了更加便捷的落户通道。

二、上海人才引进落户的基本条件

1. 学历要求

2025年,上海对于人才引进的学历要求依旧较高。一般来说,具有全日制本科及以上学历的人员可以申请人才引进落户。尤其是硕士及以上学历人员,具有较强的竞争优势。对于国外学历的人员,上海市政府也接受一些海外知名院校的学历认证。

2. 工作经验和行业要求

申请人在上海的工作经验和所从事的行业也是落户的重要参考因素。对于从事高新技术、金融、文化创意、人工智能等行业的人员,上海市政府尤其欢迎。同时,在上海工作满一定年限,也能帮助提升落户成功率。

3. 个人及家庭情况

申请人需要提供无犯罪记录等相关材料。此外,部分政策还要求申请人提供符合上海市生活标准的住房证明。对于配偶和子女的落户,也有一定的政策支持。特别是一些高层次人才的配偶和子女,可以优先享受上海的教育和医疗资源。

三、具体申请流程

1. 资格认定

申请人需要根据自身条件,向上海市人力资源和社会保障局提交申请。对于符合条件的人员,政府会进行资格认定。通过资格认定后,申请人可以进行后续的落户流程。

2. 资料准备

在申请过程中,申请人需要准备个人学历、工作经历、住房证明等相关材料。特别是对于海归人才,需要提供相关的海外学历认证及在海外的工作经历证明。

3. 落户审批

通过资格认定和材料审核后,申请人的落户申请会进入审批环节。如果审批通过,申请人及其配偶、子女可以顺利落户上海。

四、2025年上海落户政策的亮点

2025年上海的落户政策不仅对高学历人才提供支持,还在落户的速度和手续上进行简化。例如,对于一些特别优秀的技术类人才,上海已开通“绿色通道”,使他们能更快速地完成落户。政府还在进一步优化人才生活保障服务,包括提供更为优质的医疗、教育和居住环境。

五、总结

2025年上海的人才引进落户政策进一步优化,使得符合条件的高层次人才可以更方便地在上海定居。这不仅为上海的经济发展注入了新的活力,也为人才的个人发展提供了更多机遇。希望有意在上海落户的朋友,能通过了解政策,做好准备,顺利实现自己的上海落户梦。

声明:本文由入驻焦点开放平台的作者撰写,除焦点官方账号外,观点仅代表作者本人,不代表焦点立场。