露香园云宸-(露香园云宸首页官方网站)-露香园云宸最新房价-别墅户型-容积率-小区配套-楼盘详情/价格/地址

搜狐焦点黄冈站 2025-11-03 12:04:40
用手机看
扫描到手机,新闻随时看

扫一扫,用手机看文章
更加方便分享给朋友

上海黄浦「露香园·云宸」售楼处电话:400-8118-224【售楼中心】

上海黄浦「露香园·云宸」

上海黄浦「露香园·云宸」售楼处电话:400-8118-224【售楼中心】

咨询高峰期请耐心等待,预来电尊享内部优惠,专业一对一热情服务,您用专业眼光去买房。

最新户型图首发!约159-254㎡高层+别墅,

黄浦豫园

露香园二期项目

「露香园·云宸」

露香园二期的可售住宅部分分A、B、C、D四个大地块,

13.3万㎡的住宅总面积中,10.79万㎡为高层住宅,2.44万㎡为低密度特色住宅(别墅),5.22万㎡的商业。

露香园二期预计首推B、D1地块。

B地块:建面约166-254㎡高层,共177套;D1地块:建面约159-208㎡高层、400平以上别墅。

B地块:

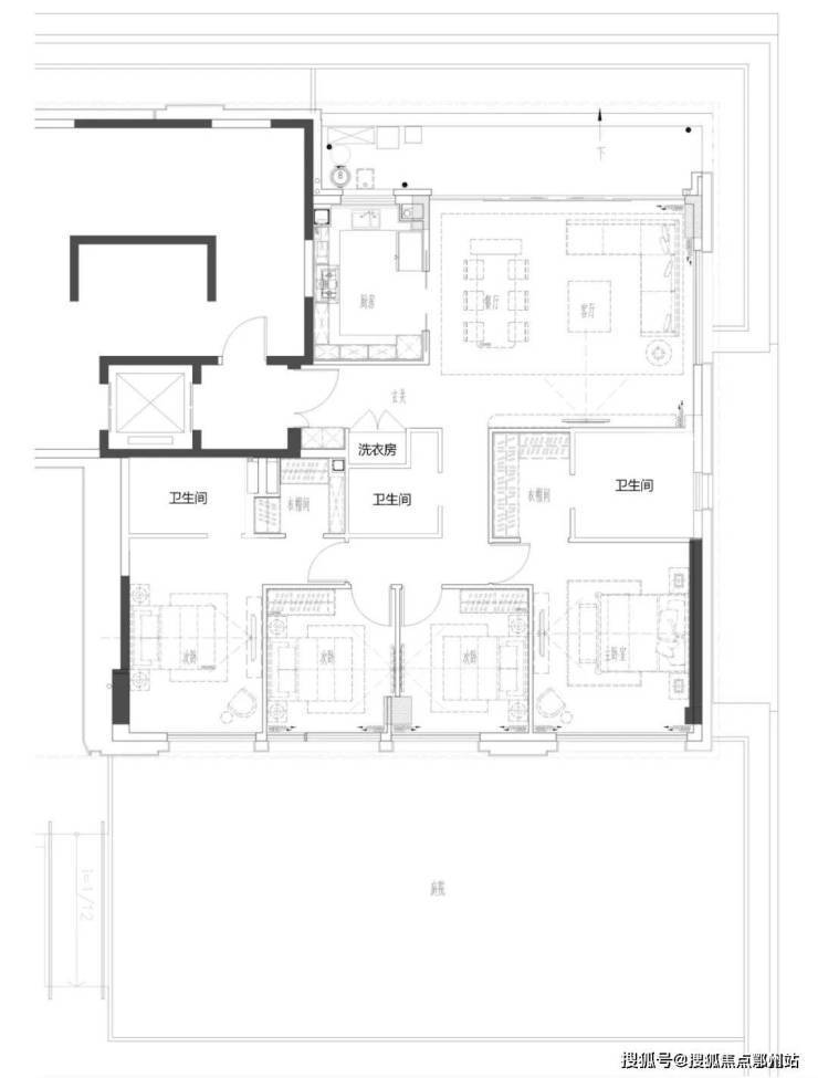
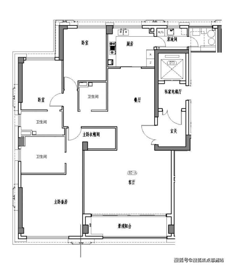
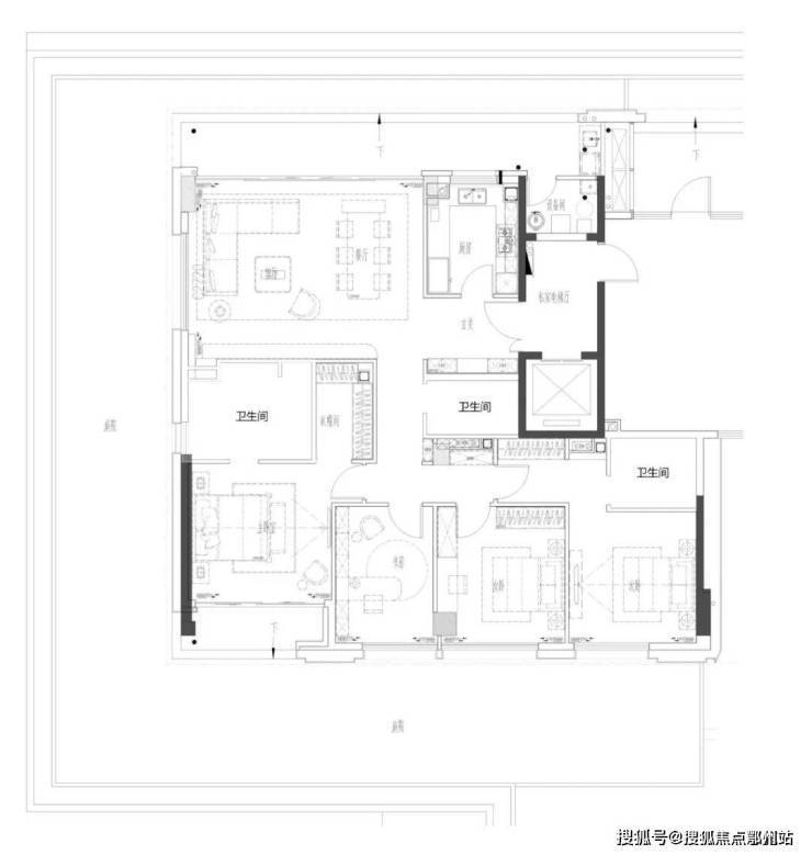
▼建面约253㎡4房2厅3卫

上海黄浦「露香园·云宸」

上海黄浦「露香园·云宸」售楼处电话:400-8118-224【售楼中心】

咨询高峰期请耐心等待,预来电尊享内部优惠,专业一对一热情服务,您用专业眼光去买房。

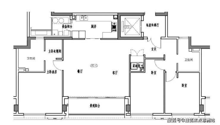
▼建面约234㎡4房2厅3卫

▼建面约213㎡3房2厅3卫

▼建面约182㎡3房2厅2卫

▼建面约186㎡3房2厅2卫

上海黄浦「露香园·云宸」

上海黄浦「露香园·云宸」售楼处电话:400-8118-224【售楼中心】

咨询高峰期请耐心等待,预来电尊享内部优惠,专业一对一热情服务,您用专业眼光去买房。

▼建面约166㎡3房2厅2卫

上海黄浦「露香园·云宸」

上海黄浦「露香园·云宸」售楼处电话:400-8118-224【售楼中心】

咨询高峰期请耐心等待,预来电尊享内部优惠,专业一对一热情服务,您用专业眼光去买房。

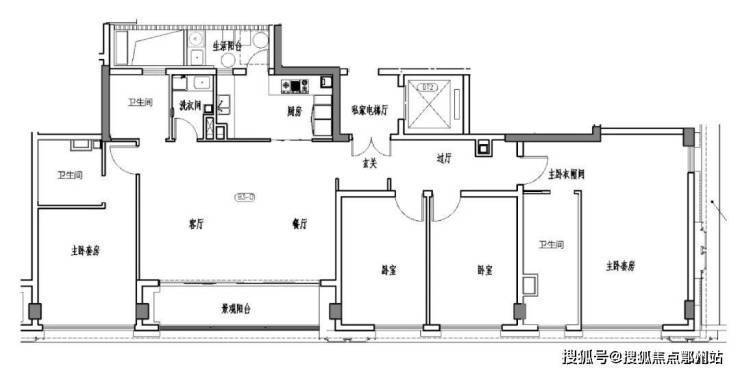
▼建面约199㎡3房2厅3卫

▼建面约217㎡4房2厅3卫

▼建面约229㎡4房2厅3卫

D1地块:

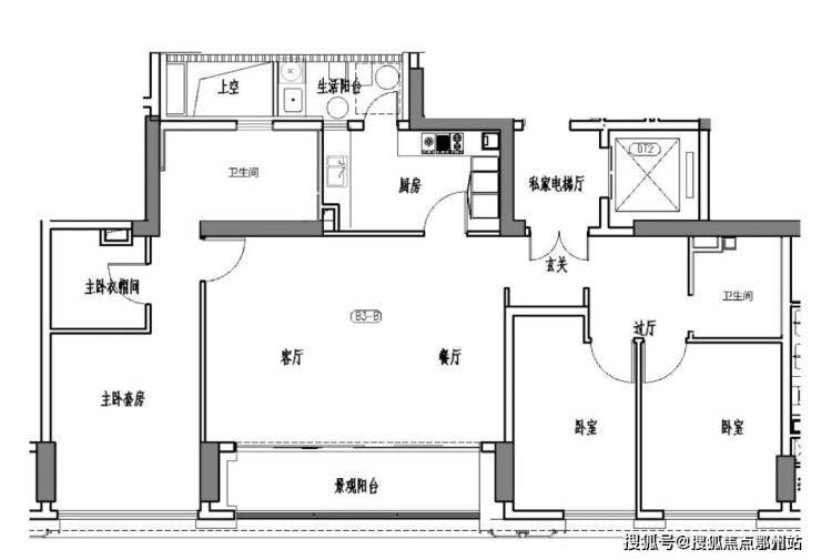
▼建面约208㎡3房2厅3卫

▼建面约159㎡3房2厅2卫

上海黄浦「露香园·云宸」

上海黄浦「露香园·云宸」售楼处电话:400-8118-224【售楼中心】

咨询高峰期请耐心等待,预来电尊享内部优惠,专业一对一热情服务,您用专业眼光去买房。

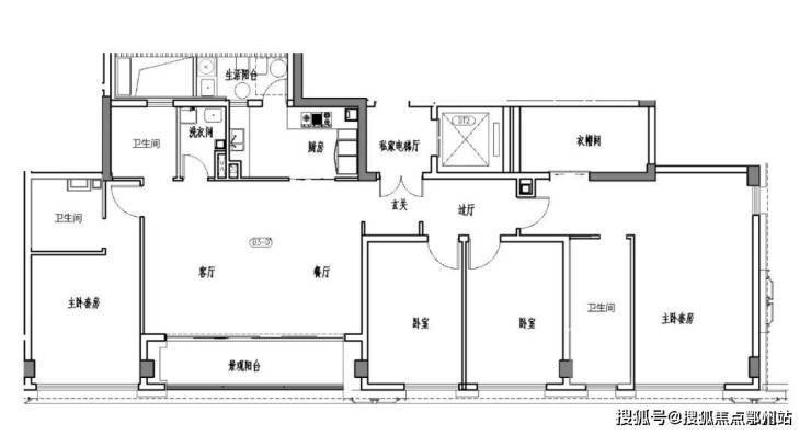
▼建面约196㎡3房2厅3卫

▼建面约224㎡4房2厅3卫

▼建面约215㎡4房2厅3卫

▼建面约198㎡3房2厅3卫

上海黄浦「露香园·云宸」

上海黄浦「露香园·云宸」售楼处电话:400-8118-224【售楼中心】

咨询高峰期请耐心等待,预来电尊享内部优惠,专业一对一热情服务,您用专业眼光去买房。

▼建面约164㎡3房2厅2卫

▼建面约177㎡3房2厅3卫

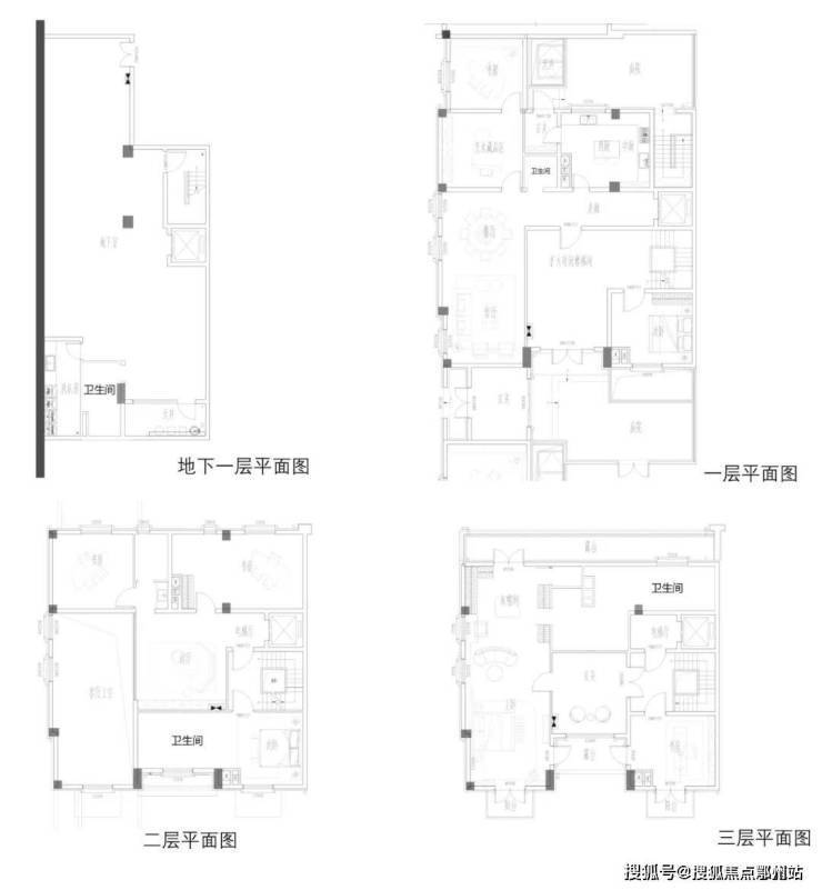
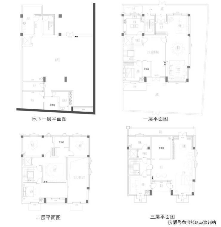
▼别墅 400+㎡

▼别墅 400+㎡

▼别墅 500+㎡

上海黄浦「露香园·云宸」

上海黄浦「露香园·云宸」售楼处电话:400-8118-224【售楼中心】

咨询高峰期请耐心等待,预来电尊享内部优惠,专业一对一热情服务,您用专业眼光去买房。

A地块:约5.45万㎡高层产品,共150套,套均面积364㎡;

B住宅:约3.8万㎡高层产品,共177套,套均面积约216㎡;

C1、C2地块:约1.9万㎡的纯联排及独栋,共46套,套均面积412㎡;

D1地块:约2.1万㎡小高层及联排与独栋,共98套,套均面积282㎡。

二期地块的平均户型面积,比一期大了约20%,特别是二期联排别墅产品,将延续上海传统历史建筑风貌的石库门+现代摩登风格,以一期21万元/㎡的均价计算,预计套均总价接近亿元!

万竹街41号

露香园一期

上海黄浦「露香园·云宸」

上海黄浦「露香园·云宸」售楼处电话:400-8118-224【售楼中心】

声明:本文由入驻焦点开放平台的作者撰写,除焦点官方账号外,观点仅代表作者本人,不代表焦点立场。