上海黄浦「露香园·云宸」 
 
 
   上海黄浦「露香园·云宸」售楼处电话:400-8118-224【售楼中心】 
 
 
   咨询高峰期请耐心等待,预来电尊享内部优惠,专业一对一热情服务,您用专业眼光去买房。 
 
 
   最新户型图首发!约159-254㎡高层+别墅, 
 
 
   黄浦豫园 
 
 
   露香园二期项目 
 
 
   「露香园·云宸」 
 
  
  
 
 
 
   露香园二期的可售住宅部分分A、B、C、D四个大地块, 
 
 
   13.3万㎡的住宅总面积中,10.79万㎡为高层住宅,2.44万㎡为低密度特色住宅(别墅),5.22万㎡的商业。 
 
  
  
 
 
 
   露香园二期预计首推B、D1地块。 
 
 
   B地块:建面约166-254㎡高层,共177套;D1地块:建面约159-208㎡高层、400平以上别墅。 
 
 
   B地块: 
 
  
  
 
 
  
  
 
 
 
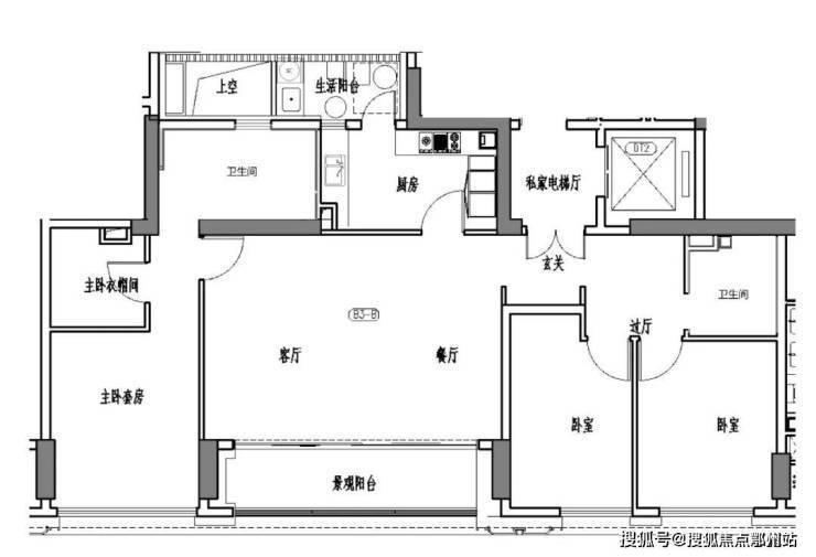
   ▼建面约253㎡4房2厅3卫 
 
  
  
 
 
 
   上海黄浦「露香园·云宸」 
 
 
   上海黄浦「露香园·云宸」售楼处电话:400-8118-224【售楼中心】 
 
 
   咨询高峰期请耐心等待,预来电尊享内部优惠,专业一对一热情服务,您用专业眼光去买房。 
 
 
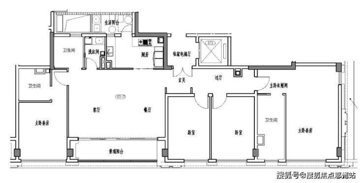
   ▼建面约234㎡4房2厅3卫 
 
  
  
 
 
 
   ▼建面约213㎡3房2厅3卫 
 
  
  
 
 
 
   ▼建面约182㎡3房2厅2卫 
 
  
  
 
 
 
   ▼建面约186㎡3房2厅2卫 
 
  
  
 
 
 
   上海黄浦「露香园·云宸」 
 
 
   上海黄浦「露香园·云宸」售楼处电话:400-8118-224【售楼中心】 
 
 
   咨询高峰期请耐心等待,预来电尊享内部优惠,专业一对一热情服务,您用专业眼光去买房。 
 
 
   ▼建面约166㎡3房2厅2卫 
 
  
  
 
 
 
   上海黄浦「露香园·云宸」 
 
 
   上海黄浦「露香园·云宸」售楼处电话:400-8118-224【售楼中心】 
 
 
   咨询高峰期请耐心等待,预来电尊享内部优惠,专业一对一热情服务,您用专业眼光去买房。 
 
 
   ▼建面约199㎡3房2厅3卫 
 
  
  
 
 
 
   ▼建面约217㎡4房2厅3卫 
 
  
  
 
 
 
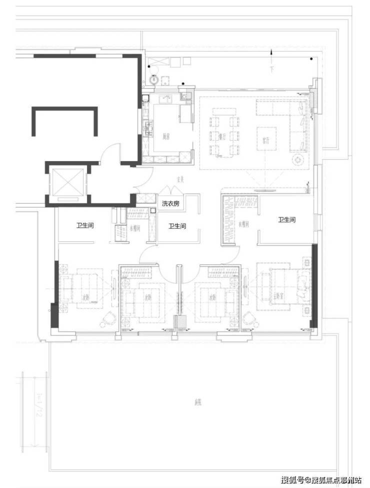
   ▼建面约229㎡4房2厅3卫 
 
  
  
 
 
 
   D1地块: 
 
  
  
 
 
  
  
 
 
 
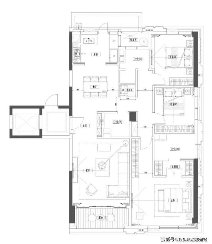
   ▼建面约208㎡3房2厅3卫 
 
  
  
 
 
 
   ▼建面约159㎡3房2厅2卫 
 
  
  
 
 
 
   上海黄浦「露香园·云宸」 
 
 
   上海黄浦「露香园·云宸」售楼处电话:400-8118-224【售楼中心】 
 
 
   咨询高峰期请耐心等待,预来电尊享内部优惠,专业一对一热情服务,您用专业眼光去买房。 
 
 
   ▼建面约196㎡3房2厅3卫 
 
  
  
 
 
 
   ▼建面约224㎡4房2厅3卫 
 
  
  
 
 
 
   ▼建面约215㎡4房2厅3卫 
 
  
  
 
 
 
   ▼建面约198㎡3房2厅3卫 
 
  
  
 
 
 
   上海黄浦「露香园·云宸」 
 
 
   上海黄浦「露香园·云宸」售楼处电话:400-8118-224【售楼中心】 
 
 
   咨询高峰期请耐心等待,预来电尊享内部优惠,专业一对一热情服务,您用专业眼光去买房。 
 
 
   ▼建面约164㎡3房2厅2卫 
 
  
  
 
 
 
   ▼建面约177㎡3房2厅3卫 
 
  
  
 
 
 
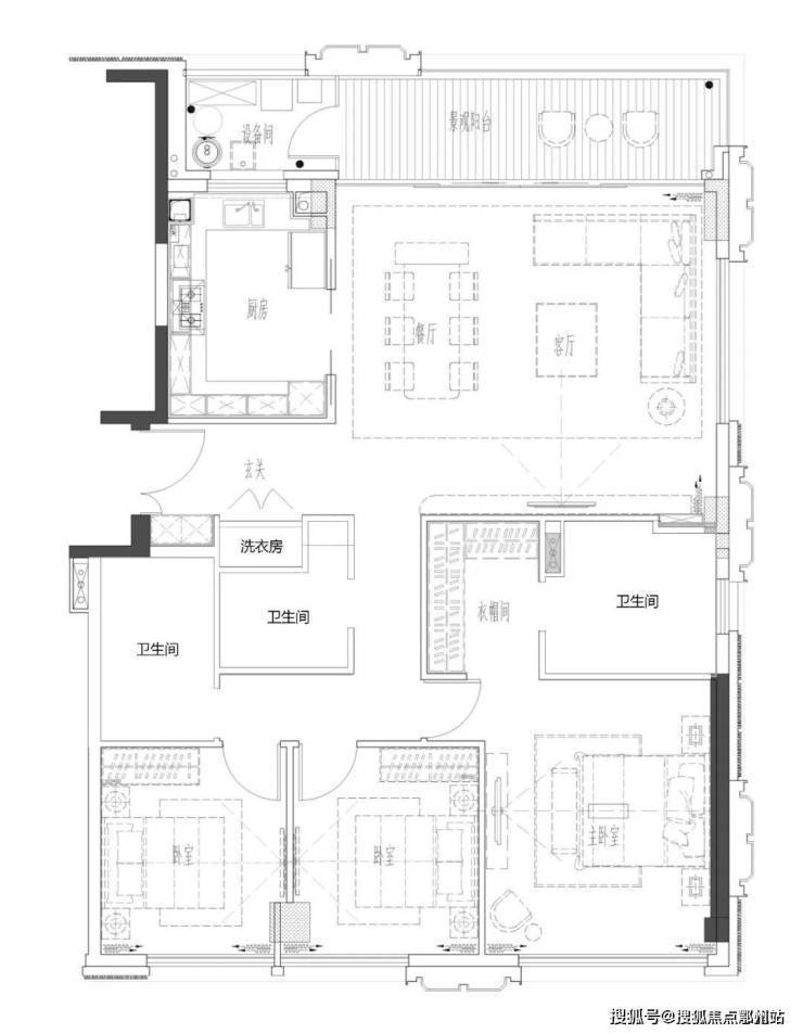
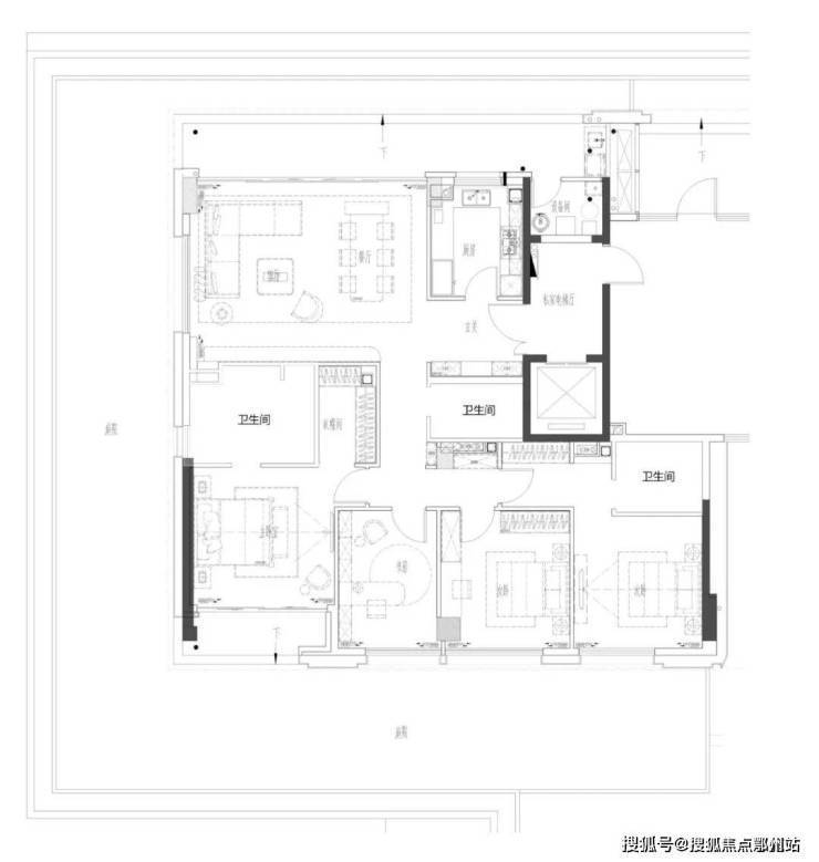
   ▼别墅 400+㎡ 
 
  
  
 
 
 
   ▼别墅 400+㎡ 
 
  
  
 
 
 
   ▼别墅 500+㎡ 
 
  
  
 
 
 
   上海黄浦「露香园·云宸」 
 
 
   上海黄浦「露香园·云宸」售楼处电话:400-8118-224【售楼中心】 
 
 
   咨询高峰期请耐心等待,预来电尊享内部优惠,专业一对一热情服务,您用专业眼光去买房。 
 
 
   A地块:约5.45万㎡高层产品,共150套,套均面积364㎡; 
 
 
   B住宅:约3.8万㎡高层产品,共177套,套均面积约216㎡; 
 
 
   C1、C2地块:约1.9万㎡的纯联排及独栋,共46套,套均面积412㎡; 
 
 
   D1地块:约2.1万㎡小高层及联排与独栋,共98套,套均面积282㎡。 
 
  
  
 
 
 
   二期地块的平均户型面积,比一期大了约20%,特别是二期联排别墅产品,将延续上海传统历史建筑风貌的石库门+现代摩登风格,以一期21万元/㎡的均价计算,预计套均总价接近亿元! 
 
  
  
 
 
 
   万竹街41号 
 
  
  
 
 
 
   露香园一期 
 
  
  
 
 
  
  
 
 
 
   上海黄浦「露香园·云宸」 
 
 
   上海黄浦「露香园·云宸」售楼处电话:400-8118-224【售楼中心】