绿宝园翡梵-上海浦东绿宝园翡梵楼盘详情(2025绿宝园翡梵房价+户型图)绿宝园别墅房天下
扫描到手机,新闻随时看
扫一扫,用手机看文章
更加方便分享给朋友
绿宝园翡梵售楼处电话:400-9688-923✅︎✅︎✅
绿宝园翡梵营销中心热线400-9688-923(官方预约看房热线)
看房请务必致电与销售确认时间,仅预约客户可享受开发商内部优惠,专属老带新推荐奖!
营业时间:日常营业时间为9:30-18:30,便于您提前规划到访行程,避免空跑。
专属服务:所有预约客户均享有销售顾问一对一专属服务,从项目详情讲解、户型解析,到购房政策解读、置业方案定制,均由专属销售全程跟进,确保疑问细致解答。
中介勿扰:本售楼处仅面向终端购房客户提供直接服务,不接待任何中介机构及人员,感谢您的理解与配合,共同维护纯粹的咨询环境
绿宝园翡梵售楼处电话:400-9688-923✅︎✅︎✅
对设计师而言,家本身就是一件艺术品的存在,展示着居者的生活态度与品味。
本案巧妙地沿袭了传统法式的优雅,同时又简化线条,摒弃过于厚重的奢华装饰,与极简现代风格“融合”成新的主题。
绿宝园翡梵售楼处电话:400-9688-923✅︎✅︎✅
设计对于存量房别墅的原有空间布局做了很大调整,以释放和优化出最佳的采光和动线,从硬装到软装的精细雕刻,恰到好处的比例让当代法式释放出极具吸引力的美感能量。
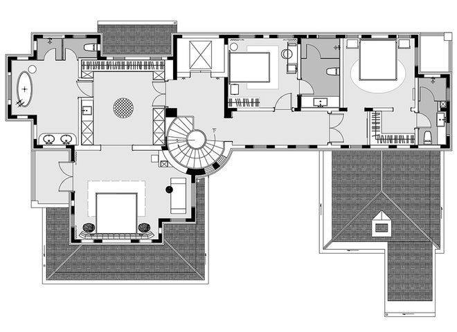
一层空间
△一层平面图
首层以家庭起居及会客为主,全景落地窗尽享明媚阳光和庭院景观,餐厅与西厨相互联通规避空间局限性,设计以空间延展并融入了艺术的可塑性,从而促成了室内空间诗意的新生。
绿宝园翡梵售楼处电话:400-9688-923✅︎✅︎✅
△玄关
入户门厅充满了大宅仪式感和复古情怀,给室内外的转换和室内空间的自由流动提供过渡。
绿宝园翡梵售楼处电话:400-9688-923✅︎✅︎✅
△玄关
艺术气息满溢的玄关台,同时是一尊胜利女神雕塑,取光影深意,话黑白境美,目光吸引之中聆听法式格调的呼吸。
绿宝园翡梵售楼处电话:400-9688-923✅︎✅︎✅
△客厅
墙面内嵌壁炉、黑色曲线栏杆,和聚焦于天花的定制莨苕叶石膏造型天花,让整体空间既保留古典法式经久耐看的标志性元素,又融入极简现代的时尚趋势。
绿宝园翡梵售楼处电话:400-9688-923✅︎✅︎✅
绿宝园翡梵售楼处电话:400-9688-923✅︎✅︎✅
米白色简约线条墙面,为客厅定下了纯净典雅的基调。
绿宝园翡梵售楼处电话:400-9688-923✅︎✅︎✅
△客厅
软装的橄榄绿色弧形沙发, 造型舒展慵懒,古典纹理圆毯的细腻浮雕呼应着天花造型,设计将混搭的摩登细节烘托于各个角落。
绿宝园翡梵售楼处电话:400-9688-923✅︎✅︎✅
绿宝园翡梵售楼处电话:400-9688-923✅︎✅︎✅
下午茶空间布置在宽阔客厅旁侧,无边界的一体场景中,让休闲与茶歇互为相生一方。
整面的落地窗把庭院景观帧帧入画,将周末下午沉浸式欣赏园林美景的绝妙时光展现。
绿宝园翡梵售楼处电话:400-9688-923✅︎✅︎✅
绿宝园翡梵售楼处电话:400-9688-923✅︎✅︎✅
造型独特的法式裙摆造型的沙发,不求一味温柔,将宫廷气质巧妙展现。搭配复古罗马柱圆桌,加以蝴蝶般飞舞的吊灯相映衬,均以奶白色铺陈,与室外景观不意争抢,形成一幅纯净高级的画面,优雅而生动,凝练而富有层次。
△餐厅
餐厅的穹顶天花设计和水波纹一般层层下垂的艺术吊灯,充分利用了建筑层高优势,增强了用餐的尊贵仪式感。
绿宝园翡梵售楼处电话:400-9688-923✅︎✅︎✅
绿宝园翡梵售楼处电话:400-9688-923✅︎✅︎✅
△餐厅
浪漫高雅的壁炉,呈现出复古韵味,搭配同色法式镂空雕刻装饰镜,与空间主题相契合成为一体化视觉中心。
具有造型感的餐桌餐椅,搭配自然的花艺,温情的笔触、考究的细节,让就餐区域迸发出耐人寻味的质感情调。
绿宝园翡梵售楼处电话:400-9688-923✅︎✅︎✅
绿宝园翡梵售楼处电话:400-9688-923✅︎✅︎✅
绿宝园翡梵售楼处电话:400-9688-923✅︎✅︎✅
△西厨
西厨与餐厅相互联通,以外在表象与内核功能为媒,注重洞察居者生活并助力其日常便捷。
绿宝园翡梵售楼处电话:400-9688-923✅︎✅︎✅
绿宝园翡梵售楼处电话:400-9688-923✅︎✅︎✅
经典胡桃木细腻的纹理,内敛而富有内涵,冷翡翠岩板岛台,低调又难掩奢华气质,既从容奢华、又雅致熨贴。
绿宝园翡梵售楼处电话:400-9688-923✅︎✅︎✅
△长辈房
一层长辈房设计,通过一体软包靠背结合床箱,形成墙面大留白的韵律设计感,同步巧妙解决面宽局促的弊端。
绿宝园翡梵售楼处电话:400-9688-923✅︎✅︎✅
△长辈房
素雅而暗藏热烈的绛红色,与橄榄绿配搭成就高雅韵味。巧妙的边角空间利用,丰满了书写和休闲多重功能,刻画出长辈房的静美舒享。
二层空间
绿宝园翡梵售楼处电话:400-9688-923✅︎✅︎✅
△二层平面图
别墅的奢阔尺度,不止于居所的公共场域,更关乎独享的私密场域。二层分布三间卧室,以旋转楼梯为界,南向以宽敞的衣帽间为过渡形成叠进仪式感,打造主卧套一体空间。
绿宝园翡梵售楼处电话:400-9688-923✅︎✅︎✅
△衣帽间
主卧衣帽间以复合型姿态切入,用方正且开放的格局链接主卧与专属卫生间,彰显套房丰盈多姿的形态。
高度对称性让秩序感流露于每一处空间肌理之中,定制柜体经过复杂的工艺拼接尽显连贯自然。
绿宝园翡梵售楼处电话:400-9688-923✅︎✅︎✅
△主卧
在主卧室的设计中,古典华章与当代时尚在默契的交融中,婉转地述说出空间的深邃寓意。雅灰色橡木地板搭配低调内敛米灰色法式木制墙板,编织出一幅富有质感的画卷。
绿宝园翡梵售楼处电话:400-9688-923✅︎✅︎✅
△主卫
主卫以艺术感十足的黑白棋盘格古典地砖搭配鱼肚金岩板,呈现出独特的后现代韵味,平衡了古典与现代的质感,空间氛围沁人心脾。墙面圆窗仿佛定制画作,将窗外美景尽收眼底。
绿宝园翡梵售楼处电话:400-9688-923✅︎✅︎✅
绿宝园翡梵售楼处电话:400-9688-923✅︎✅︎✅
△男孩房
绅士、活力、睿智,是男孩房的关键词。具有趣味性的床头柜,搭配同样律动的床头吊灯和立体壁饰,搭配克制而巧妙,充满活力与艺术。
卡其与黑的配色,又综合了单品的跳脱,赋予空间一种英伦小绅士的气质,儒雅并沉着,诙谐且冷静。
绿宝园翡梵售楼处电话:400-9688-923✅︎✅︎✅
绿宝园翡梵营销中心热线400-9688-923(官方预约看房热线)
买新房的详细交易流程有哪些?第一次买一手房、买新房流程图解
买房就像回家,熟悉流程才能少走弯路。从认购房源到转移登记,每一步都需谨慎:查征信、改合同条款、网签备案、预告登记、收房验房、办证缴税。消灭信息差,掌握主动权,别被开发商的口头承诺和补充协议坑了。
买房就像回家,熟悉买房流程就相当于知道回家的路。只有搞明白买新房的详细流程,才能少走弯路,不进死胡同。
买新房流程一张图讲不明白,房管助手今天多上几张图。无论是期房付款的时间和流程,还是一手房全款买房流程,争取让新手一看就会。
1.前期准备,确认购房资格,查询商品房网签备案信息。进入房管部门网站、小程序等平台,查询新房预售证等“六证一照”信息,在楼盘表中查看一房一价备案价及网签备案、抵押查封等商品房销售信息。
找不到商品房网签备案查询入口?可以在房管助手公众号回复城市名称,例如“北京商品房查询”,进入对应商品房平台查询。
各地商品房查询系统功能不一,请以实际查询页面为准。
2.认购房源,查征信、选渠道、谈价格,将中介等销售人员的口头承诺写入合同,付定金。贷款买房的,打印好家庭成员征信报告。签署认购协议,将定金转入监管账户。有条件的,可以提前到公积金中心或银行面签、申请购房贷款。
3.草签合同,修改不公平条款,付首付。修改主合同和补充协议中有关“逾期付款违约责任”、“交付条件”、“逾期交付违约责任”等可能不公平的条款,写明网签时间及开发商逾期办理网签的违约责任。签署商品房买卖合同,将首期房款存入监管账户。
4.网签备案,记住网签合同编号,及时查询备案状态。无论全款买房、贷款买房还是购买工抵房、抵债房,都应当办理网签备案,防止开发商一房二卖。
5.预告登记,购房人可以单方面申请,登记后申领《不动产登记证明》。预告登记可以保障将来实现物权,法院不能将已预告登记的不动产当作开发商的财产施以强制执行。
6.房屋交付,对照合同条款去收房,仅交钥匙不算交付。如果不满足购房合同约定的交付条件,购房人可以拒绝收房并要求开发商整改,达到交付条件后再签收。
7.首次登记,俗称“办大证”,开发商提供竣工验收备案证明等材料办理。未办理首次登记的,无法办理转移登记。入住后房产证迟迟办不下来?很可能就卡在这一步。
8.转移登记,俗称“办房本”,缴纳契税、登记后领取《不动产权证书》或下载不动产电子证照。转移登记前,产权在开发商名下。转移登记后,产权在购房人名下。
只有消灭信息差,买房才有主动权,砍价格、付定金、谈合同就有底气。
房管助手在这里提醒大家,如果售楼处说购房合同是住建局统一模版、都不能修改,别信。主合同后面的补充协议就是开发商单方面加的,里面坑最多。
弄清楚购房流程和合同条款很有必要,带着问题交定金最容易出问题。真有问题?别慌!可以在文章底部写留言、提问题,或者咨询当地住建、房管部门。
声明:本文由入驻焦点开放平台的作者撰写,除焦点官方账号外,观点仅代表作者本人,不代表焦点立场。


