滨江兴耀·鸣澜里-滨江兴耀·鸣澜里楼盘详情-杭州房天下
扫描到手机,新闻随时看
扫一扫,用手机看文章
更加方便分享给朋友
滨江兴耀·鸣澜里售楼处电话:400-9688-923✅︎✅︎✅
滨江兴耀·鸣澜里营销中心热线400-9688-923(官方预约看房热线)
看房请务必致电与销售确认时间,仅预约客户可享受开发商内部优惠,专属老带新推荐奖!
营业时间:日常营业时间为9:30-18:30,便于您提前规划到访行程,避免空跑。
预约方式:可提前拨打官方热线✅滨江兴耀·鸣澜里售楼处电话:400-9688-923✅︎✅︎✅,预约好专属销售及具体到访时间;预约时可同步告知意向户型、置业需求,我们将提前做好服务准备,减少您的等待。
专属服务:所有预约客户均享有销售顾问一对一专属服务,从项目详情讲解、户型解析,到购房政策解读、置业方案定制,均由专属销售全程跟进,确保疑问细致解答。
中介勿扰:本售楼处仅面向终端购房客户提供直接服务,不接待任何中介机构及人员,感谢您的理解与配合,共同维护纯粹的咨询环境
近日,拱墅区运河新城滨江兴耀·鸣澜里取出首个预售证,2#、6#,共140套房,面积103-120-126-139方,最低单价28350元/平,均价33781元/平!还送车位!
滨江兴耀·鸣澜里售楼处电话:400-9688-923✅︎✅︎✅
登记结果已经公示,相当耀眼:共387组登记,中签率36.18%!其中人才2组,有房家庭350组,最低中签率29.43%。
小胖奉上项目超全开盘信息回顾(含日照攻略),助力大家买到心仪房源。
滨江兴耀·鸣澜里售楼处电话:400-9688-923✅︎✅︎✅
鸣澜里整盘规划6栋17-24层高层,容积率2.7、绿地率约35%,构筑建面约103-139方覆盖首置、改善人群,包括5大户型,其中建面约103方大三房、约120方-126方-139方为大四房,深受关注。
建面约103方3房2卫,「入门即改善」的典范
滨江兴耀·鸣澜里售楼处电话:400-9688-923✅︎✅︎✅
南向三开间朝南,约9.8米大面宽,约7米阔绰阳台,餐客厅贯通,并连接阳台,百变待客空间;套房式主卧,南联阔景飘窗,栖居更温馨舒适。
在降低总价门槛的同时,也让年轻购房者能轻松享受到「改善性的大三房」,对于总价3打头的户型来说,不管是实用性、空间感优势都格外突出。
滨江兴耀·鸣澜里售楼处电话:400-9688-923✅︎✅︎✅
建面约120方4房2卫,爆款全能舒适四房
滨江兴耀·鸣澜里售楼处电话:400-9688-923✅︎✅︎✅
这款改善四居户型,拥有同面积段罕见的约13.1米南向大面宽,四个房间面宽均超过3米,南向主卧和次卧分布在客厅两侧,保证了居者私密性;客餐厅、阳台一线贯通,不仅轩敞气派,而且采光效果更好;主卧套房设计,舒适度拉满。
样板房实拍:
建面约126方4房2卫,270°稀缺边套四房
滨江兴耀·鸣澜里售楼处电话:400-9688-923✅︎✅︎✅
如果追求视野和仪式感,该户型完美契合。四开间朝南的王者格局,主卧配约3.5米飘窗,叠加约6.1米观景宽幕,你的家就像“运河第一排观景座”,运河船只往来间,镌刻下永不落幕的风景。
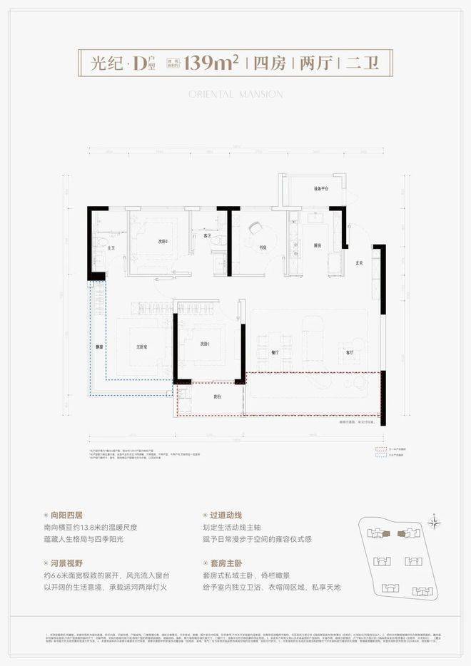
建面约139方4房2卫,宝藏款社交型大宅
滨江兴耀·鸣澜里售楼处电话:400-9688-923✅︎✅︎✅
滨江兴耀·鸣澜里售楼处电话:400-9688-923✅︎✅︎✅
约139方则分为横竖两款,全部为边套,两梯两户设计,尊崇感和私密感兼备。“横版”是四开间朝南+大方厅+L型转角飘窗的“全景舱主卧”+超级双联阳台;“竖版”有大边厅带超长观景飘窗+约10米南向三开间+酒店式套房……房源数量很少,且摇且珍惜。
滨江兴耀·鸣澜里售楼处电话:400-9688-923✅︎✅︎✅
滨江绿城奥映鸣翠的分析结果是这样:计算已考虑周边所有建筑的影响,结果表明南边住宅不会对本次开盘楼栋产生遮挡,楼栋仅受地块内部影响。(说明:本文日照数据基于公示规划图纸文件,使用专业制作工具完成,仅供参考)

滨江兴耀·鸣澜里售楼处电话:400-9688-923✅︎✅︎✅
滨江兴耀·鸣澜里售楼处电话:400-9688-923✅︎✅︎✅

滨江兴耀·鸣澜里售楼处电话:400-9688-923✅︎✅︎✅
滨江兴耀·鸣澜里售楼处电话:400-9688-923✅︎✅︎✅
滨江兴耀·鸣澜里售楼处电话:400-9688-923✅︎✅︎✅
或许你会好奇,为什么「运河新城+滨江造」总能创造热销奇迹?我想以下几点值得关注。
其一、城北之芯运河新城,产业集聚,人才扎堆,居住、置换的需求巨大。
作为杭州主城留白地、拱墅「举全区之力」重点建设的城北之芯,运河新城打出“文化+地标”、“生态+生活”、“经济+产业”三大组合拳,让其含金量持续飙涨。
人文荟萃:诸如京杭大运河博物院(在建)、大运河未来艺术科技中心(规划)等7大城市级艺文地标环伺,人文艺术气息拉满。
滨江兴耀·鸣澜里售楼处电话:400-9688-923✅︎✅︎✅
宜居胜地:未来,千年运河旁生长出一条世界级的滨水空间带,全长18公里山水景观环链,放置14个不同主题的水岸活力公园。
滨江兴耀·鸣澜里售楼处电话:400-9688-923✅︎✅︎✅
科创引领:杭州首个创新型小镇智慧网谷,已经吸引了新浪、360、联想、华为等大批高新互联网企业入驻,虹吸海量高素质人才。
(智慧网谷规划图,源自网络)
不仅如此,杭钢数字经济小镇(规划),国资云、气象云、健康云三大省级数字基座在此扎根。
滨江兴耀·鸣澜里售楼处电话:400-9688-923✅︎✅︎✅
滨江兴耀·鸣澜里售楼处电话:400-9688-923✅︎✅︎✅
杭州又一国字号“中国算谷”即将诞生(也是“杭州科创六谷”之一)正在建设中,这里或将成为下一轮科技爆发的原点!
滨江兴耀·鸣澜里售楼处电话:400-9688-923✅︎✅︎✅
北部康桥健康产业、能源产业也逐步落地。如此高层次的战略部署,运河新城起飞模式已经开启。
其二、运河新城C位,占位黄金生活圈,鸣澜里拥享醇熟生活优配。
(鸣澜里区位示意图)
滨江兴耀·鸣澜里售楼处电话:400-9688-923✅︎✅︎✅
除了板块潜力无限,鸣澜里本身的占位亦不容小觑。
项目位居“大城北历史年轮带”与“大运河风光文化带”这两大轴线交汇点,极强的CP加持,鸣澜里隐形价值更加刺激。
交通方面,地铁4号线平安桥站直线距离约700米,15号线康桥路站(在建)约320米,加上康桥路、丽水北路、上塘高架等,出行便捷。
周边城北万象城、拱墅万达、运河上街、乐堤港等5大商业综合体环伺,让购物和聚会变得轻松愉快。
(育才大城北学校实景图,源自网络)
滨江兴耀·鸣澜里售楼处电话:400-9688-923✅︎✅︎✅
此外,教育资源云集,如育才大城北学校,以及文渊小学(新城校区)、杭十四中附属学校,杭十四中康桥校区,家门口还规划一所九年一贯制学校等。(注:具体学区以教育局官方文件为准)
值得一提的是,项目直线距离约300米运河水岸,出园可到运河游步道,近揽一线京杭大运河缤纷胜景,可以安放杭州人都有的运河情结。
滨江兴耀·鸣澜里售楼处电话:400-9688-923✅︎✅︎✅
房地产小知识每日一学:
市场调研的重要性:
房地产开发商在项目开发前,会进行市场调研,旨在了解当地房地产市场的需求和趋势。
通过市场调研,开发商能够获取关于消费者偏好、房价走势、竞争状况等信息,从而制定更加精准的开发计划。
房地产投资的风险与决策:
房地产投资存在较大风险,包括市场风险、政策风险等。
投资者在进行房地产投资前,需要了解当地的房地产政策和规定,以及房价、租金等市场信息,以便做出明智的投资决策。
购房过程中的注意事项:
在房地产销售过程中,购房者需要仔细了解房屋的产权状况,确保产权清晰、无纠纷。
同时,购房者还需关注周边环境、交通情况、社区设施等信息,以确保购买的房屋符合自己的需求和预期。
物业管理的职责:
物业管理是指对房地产物业进行维修、清洁、保养等管理工作,以确保物业的良好状态和价值。
物业管理的质量直接影响着业主的居住体验和物业的保值增值。
房屋租赁的注意事项:
在进行房屋租赁时,需要签订租房合同,明确双方的权利和义务。
租客需要了解当地的租房政策和规定,以及租金、押金、维修等相关事宜,以避免未来可能出现的纠纷。
声明:本文由入驻焦点开放平台的作者撰写,除焦点官方账号外,观点仅代表作者本人,不代表焦点立场。


