上海安高海印华庭楼盘详情-安高海印华庭售楼部-户型-价格-位置-配套-容积率

搜狐焦点黄冈站 2025-10-02 09:44:06
用手机看
扫描到手机,新闻随时看

扫一扫,用手机看文章
更加方便分享给朋友

上海闵行安高海印华庭营销中心电话:400-9678-224欢迎来电咨询售楼部!上海安高海印华庭地块以36.89亿元成交,容积率2.5,主打高层及叠墅,精装标准4000元/㎡,配套完善。

上海闵行安高海印华庭

上海闵行安高海印华庭售楼部电话:400-9678-224欢迎咨询24小时热线电话,上海闵行安高海印华庭楼盘详情-上海闵行安高海印华庭售楼部位置-上海闵行安高海印华庭一房一价-上海闵行安高海印华庭户型图-上海闵行安高海印华庭优缺点分析-容积率-环境-配套-学区-第四代住宅-负公摊户型-代密洋房-得房率-全能会所-独立电梯前室-公建化立面-在线选房-遗嘱咨询-项目营销中心,欢迎来电咨询!

上海闵行安高海印华庭营销中心电话:400-9678-224欢迎来电咨询售楼部!上海闵行安高海印华庭售楼部详情-上海闵行安高海印华庭售楼处电话-上海闵行安高海印华庭首页网站-上海闵行安高海印华庭户型-上海闵行安高海印华庭价格-位置-电话-交通地铁-上海新房-上海楼市新政-遗嘱咨询-上海止跌回稳-自住型商品房-住房货款-血拼两限房-直接认购可预约销售人员,专业一对一热情服务,让您用专业眼光去买房。

最新消息

莘庄芯·滨水谧境·高定静奢大宅

安高·海印华庭

推建面约120㎡/约140㎡高层以及170㎡叠墅户型

美学生活馆开启预约开放

7月23日,位于闵行莘庄的地块在经过78轮竞价后到达中止价,在触发“高品质建设”指标环节后,最终由安高在公共服务设施胜出,以约36.89亿元的总价竞得,成交楼板价5.62万/㎡,溢价率30%。

闵行区莘庄社区02单元06-05地块

地块位置:东至水清路,南至疏影路,西至杨水路,北至用地红线

出让面积:26200㎡;容积率:2.5

该地块也是本批次土拍中第一幅溢价率达中止的地块。该地块精装标准从3000元/㎡拍到了4000元/㎡,需要配建不小于2650㎡的社区公共服务设施。

该项目占地面积约26232㎡,容积率2.5,计容面积约65580m,要求中小套户型比例不低于30%,全装修比例50%,且装标不低于4000元/㎡!

地块容积率2.5,限高60米,大概率是打造小高层+叠墅高低配产品。而且地块面宽比较足,无保障房,只有30%中小套要求,产品设计有充足的发挥空间。

项目规划设计方案:

根据设计方案显示,根据项目规划设计方案:项目拟建6栋17层高层及6栋4层叠加,1幢3F菜市场以及若干社区配套,共计规划约477户可售住宅;地块占地26200㎡,容积率2.5。

项目地面无车位,全人车分流,主要出入口位于南侧疏影路,另外规划有下沉式庭院、地下会所以及部分风雨连廊等!

地块占地26200㎡,容积率2.5。据悉,项目将打造小高层+叠墅的组合。预计面积段120平三房,140平四房,170叠墅,三种产品,装标4000每平,纯粹的改善型!

项目整体为北高南低的建筑格局,而且周边无高层建筑物遮挡,所以对于大部分高层楼标来说,南向采光非常好,而且视野也会比较开阔!

项目在地块北侧设置了两个人行出入口,可直接连通北侧已经建成的绿地公园及注浦河滨水步道,形成内外交互的社区景观,茶余饭后下楼就可以散步休憩!

下沉式庭院则采用层层递进的设计手法,打造立体式园林景观!

目前,现场有部分工程机械已经进场,正在紧锣密鼓地作业中,一片忙碌景象。

望向地块北侧,河岸绿地郁郁葱葱,淀浦河泛着粼粼波光,两岸撑起浓绿的穹顶,偶尔有白鹭掠过水面,沿河跑道蜿蜒其间,环境清幽舒适。

站在河岸远眺,左侧莘庄商务区天际线尽收眼底,世宏金源中心、旭辉莘庄中心、西子国际、中铁华东总部、中铁诺德、AFC大虹桥国际等,向右则是淀浦河桥,听附近居民说这一带夜景尤为迷人。

户型方面,项目预计将推出建面约120-140㎡高层3-4房以及建面约170㎡左右的叠墅产品,共计约477户!

高层住宅全两梯两户,无连廊!

8#为建面约120㎡3房2厅2卫,宽厅户型;9#、10#、15#为建面约140㎡4房2厅2卫,横厅+南向双阳合;11#、12#为建面约120㎡3房2厅2卫,竖厅户型,南向双阳合!

1#、2#、3#、5#、6#、7#则为总高4层的叠墅产品,预计面积在170㎡左右!

建面约120㎡3房,一梯一户,三开间朝南,南北通透;

全卧飘窗,北房间以及南向次卧飘窗没有墙垛,利用率更高。

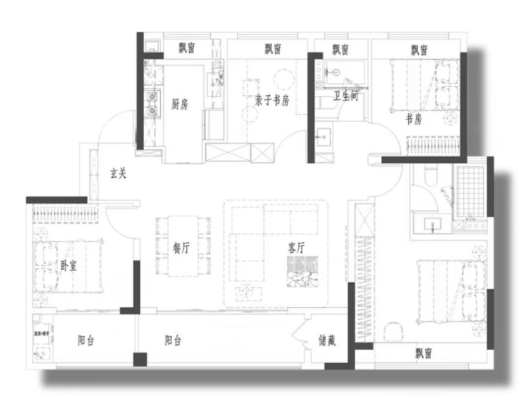
网传户型图如下(仅供参考,以实际公示为准)

建面约140㎡4房,一梯一户,独立玄关;

四开间朝南,大横厅+南向双阳台设计;

U型厨房附赠飘窗,提高实用面积;

该户型同样也是全卧飘窗。

地块实景如下:

无需再等的同级顶配商业 即刻就能享受宜居生活

与其他“纸上谈兵”的外环板块截然不同,莘庄的成熟、丰盛的配套和宜居氛围全部是肉眼可见的。

交通方面:距轨交12号线七莘路站和1号线、5号线莘庄站均在1.5公里左右。

周边的G60高速、沪闵公路、外环线等主干道,可快速连接市区和长三角地区,为居民出行提供便利。

地块周边拥有从幼儿园到中学的全龄段优质教育资源。莘光学校、明星学校、莘松中学等环绕,莘松中学就在地块南侧。

社区配套完善。地块周边具备完善的社区服务设施,满足居民多样化生活需求。

复旦大学附属闵行区中心医院是三级综合性医院,可提供高水平医疗服务。莘庄社区卫生服务中心、报春社区卫生服务站等基层医疗机构分布密集,方便日常就医。

商业方面:附近还有维璟印象城、平金中心、龙之梦商业广场、东苑丽宝广场、仲盛世界商城等大型商业综合体。居民可享受购物、餐饮、娱乐等一站式服务,满足日常生活和消费需求。

生态环境和自然景观是这块地的优势,项目周边有黎安公园、淀浦河绿廊、莘庄梅园、母亲林、莘庄公园、莘城中央公园等众多大型公共空间。这些绿地和公园为居民提供了休闲娱乐的好去处,还提升了区域的生态环境质量。

此外,闵行区体育场、山花路市民健身中心等可提供良好的体育锻炼场所。张渊艺术馆则为市民带来丰富的文化艺术体验。

考虑到莘庄板块已经断供两年多,地块本身的资源条件也不错,安高有机会打造出热销产品。

上海闵行安高海印华庭

上海闵行安高海印华庭售楼部电话:400-9678-224欢迎咨询24小时热线电话,上海闵行安高海印华庭楼盘详情-上海闵行安高海印华庭售楼部位置-上海闵行安高海印华庭一房一价-上海闵行安高海印华庭户型图-上海闵行安高海印华庭优缺点分析-容积率-环境-配套-学区-第四代住宅-负公摊户型-代密洋房-得房率-全能会所-独立电梯前室-公建化立面-在线选房-遗嘱咨询-项目营销中心,欢迎来电咨询!

上海闵行安高海印华庭营销中心电话:400-9678-224欢迎来电咨询售楼部!上海闵行安高海印华庭售楼部详情-上海闵行安高海印华庭售楼处电话-上海闵行安高海印华庭首页网站-上海闵行安高海印华庭户型-上海闵行安高海印华庭价格-位置-电话-交通地铁-上海新房-上海楼市新政-遗嘱咨询-上海止跌回稳-自住型商品房-住房货款-血拼两限房-直接认购可预约销售人员,专业一对一热情服务,让您用专业眼光去买房。

:(免责声明:本宣传资料仅为宣传,内附所有资料,包括任何图片、插图、设计图、文字描述或其他资料,仅供参考或识别之用,不构成合同内容,具体内容以合同内容及政府最终审批为准。项目所涉及数据均为暂定,后期如有改动,请以各项证件及政府批文等为准,本宣传资料部分素材源于网络,最终交付标准以商品房买卖合同及政府等相关部门的批准文件为准。在法律允许的范围内,开发商保留修改本资料的权利,敬请留意。)

声明:本文由入驻焦点开放平台的作者撰写,除焦点官方账号外,观点仅代表作者本人,不代表焦点立场。