绿宝园翡梵(售楼处) 首页 - 绿宝园翡梵销售中心 - 别墅 - 户型 - 价格 - 地址 - 楼盘详情 - 配套 - 电话 - 交房时间 - 配套 - 电话 - 交房时间
扫描到手机,新闻随时看
扫一扫,用手机看文章
更加方便分享给朋友
绿宝园翡梵售楼处电话:400-9688-923✅︎✅︎✅
绿宝园翡梵营销中心热线400-9688-923(官方预约看房热线)
看房请务必致电与销售确认时间,仅预约客户可享受开发商内部优惠,专属老带新推荐奖!
营业时间:日常营业时间为9:30-18:30,便于您提前规划到访行程,避免空跑。
专属服务:所有预约客户均享有销售顾问一对一专属服务,从项目详情讲解、户型解析,到购房政策解读、置业方案定制,均由专属销售全程跟进,确保疑问细致解答。
中介勿扰:本售楼处仅面向终端购房客户提供直接服务,不接待任何中介机构及人员,感谢您的理解与配合,共同维护纯粹的咨询环境
绿宝园翡梵售楼处电话:400-9688-923✅︎✅︎✅
对设计师而言,家本身就是一件艺术品的存在,展示着居者的生活态度与品味。
本案巧妙地沿袭了传统法式的优雅,同时又简化线条,摒弃过于厚重的奢华装饰,与极简现代风格“融合”成新的主题。
绿宝园翡梵售楼处电话:400-9688-923✅︎✅︎✅
设计对于存量房别墅的原有空间布局做了很大调整,以释放和优化出最佳的采光和动线,从硬装到软装的精细雕刻,恰到好处的比例让当代法式释放出极具吸引力的美感能量。
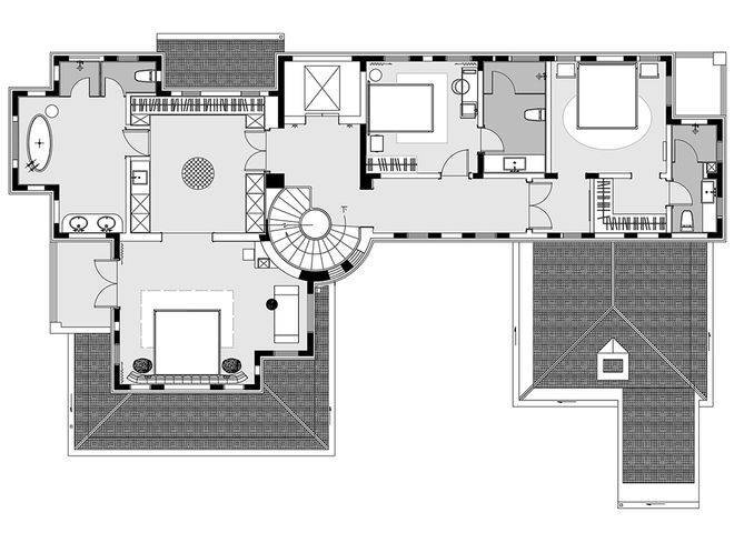
一层空间
△一层平面图
首层以家庭起居及会客为主,全景落地窗尽享明媚阳光和庭院景观,餐厅与西厨相互联通规避空间局限性,设计以空间延展并融入了艺术的可塑性,从而促成了室内空间诗意的新生。
绿宝园翡梵售楼处电话:400-9688-923✅︎✅︎✅
△玄关
入户门厅充满了大宅仪式感和复古情怀,给室内外的转换和室内空间的自由流动提供过渡。
绿宝园翡梵售楼处电话:400-9688-923✅︎✅︎✅
△玄关
艺术气息满溢的玄关台,同时是一尊胜利女神雕塑,取光影深意,话黑白境美,目光吸引之中聆听法式格调的呼吸。
绿宝园翡梵售楼处电话:400-9688-923✅︎✅︎✅
△客厅
墙面内嵌壁炉、黑色曲线栏杆,和聚焦于天花的定制莨苕叶石膏造型天花,让整体空间既保留古典法式经久耐看的标志性元素,又融入极简现代的时尚趋势。
绿宝园翡梵售楼处电话:400-9688-923✅︎✅︎✅
绿宝园翡梵售楼处电话:400-9688-923✅︎✅︎✅
米白色简约线条墙面,为客厅定下了纯净典雅的基调。
绿宝园翡梵售楼处电话:400-9688-923✅︎✅︎✅
△客厅
软装的橄榄绿色弧形沙发, 造型舒展慵懒,古典纹理圆毯的细腻浮雕呼应着天花造型,设计将混搭的摩登细节烘托于各个角落。
绿宝园翡梵售楼处电话:400-9688-923✅︎✅︎✅
绿宝园翡梵售楼处电话:400-9688-923✅︎✅︎✅
下午茶空间布置在宽阔客厅旁侧,无边界的一体场景中,让休闲与茶歇互为相生一方。
整面的落地窗把庭院景观帧帧入画,将周末下午沉浸式欣赏园林美景的绝妙时光展现。
绿宝园翡梵售楼处电话:400-9688-923✅︎✅︎✅
绿宝园翡梵售楼处电话:400-9688-923✅︎✅︎✅
造型独特的法式裙摆造型的沙发,不求一味温柔,将宫廷气质巧妙展现。搭配复古罗马柱圆桌,加以蝴蝶般飞舞的吊灯相映衬,均以奶白色铺陈,与室外景观不意争抢,形成一幅纯净高级的画面,优雅而生动,凝练而富有层次。
△餐厅
餐厅的穹顶天花设计和水波纹一般层层下垂的艺术吊灯,充分利用了建筑层高优势,增强了用餐的尊贵仪式感。
绿宝园翡梵售楼处电话:400-9688-923✅︎✅︎✅
绿宝园翡梵售楼处电话:400-9688-923✅︎✅︎✅
△餐厅
浪漫高雅的壁炉,呈现出复古韵味,搭配同色法式镂空雕刻装饰镜,与空间主题相契合成为一体化视觉中心。
具有造型感的餐桌餐椅,搭配自然的花艺,温情的笔触、考究的细节,让就餐区域迸发出耐人寻味的质感情调。
绿宝园翡梵售楼处电话:400-9688-923✅︎✅︎✅
绿宝园翡梵售楼处电话:400-9688-923✅︎✅︎✅
绿宝园翡梵售楼处电话:400-9688-923✅︎✅︎✅
△西厨
西厨与餐厅相互联通,以外在表象与内核功能为媒,注重洞察居者生活并助力其日常便捷。
绿宝园翡梵售楼处电话:400-9688-923✅︎✅︎✅
绿宝园翡梵售楼处电话:400-9688-923✅︎✅︎✅
经典胡桃木细腻的纹理,内敛而富有内涵,冷翡翠岩板岛台,低调又难掩奢华气质,既从容奢华、又雅致熨贴。
绿宝园翡梵售楼处电话:400-9688-923✅︎✅︎✅
△长辈房
一层长辈房设计,通过一体软包靠背结合床箱,形成墙面大留白的韵律设计感,同步巧妙解决面宽局促的弊端。
绿宝园翡梵售楼处电话:400-9688-923✅︎✅︎✅
△长辈房
素雅而暗藏热烈的绛红色,与橄榄绿配搭成就高雅韵味。巧妙的边角空间利用,丰满了书写和休闲多重功能,刻画出长辈房的静美舒享。
二层空间
绿宝园翡梵售楼处电话:400-9688-923✅︎✅︎✅
△二层平面图
别墅的奢阔尺度,不止于居所的公共场域,更关乎独享的私密场域。二层分布三间卧室,以旋转楼梯为界,南向以宽敞的衣帽间为过渡形成叠进仪式感,打造主卧套一体空间。
绿宝园翡梵售楼处电话:400-9688-923✅︎✅︎✅
△衣帽间
主卧衣帽间以复合型姿态切入,用方正且开放的格局链接主卧与专属卫生间,彰显套房丰盈多姿的形态。
高度对称性让秩序感流露于每一处空间肌理之中,定制柜体经过复杂的工艺拼接尽显连贯自然。
绿宝园翡梵售楼处电话:400-9688-923✅︎✅︎✅
△主卧
在主卧室的设计中,古典华章与当代时尚在默契的交融中,婉转地述说出空间的深邃寓意。雅灰色橡木地板搭配低调内敛米灰色法式木制墙板,编织出一幅富有质感的画卷。
绿宝园翡梵售楼处电话:400-9688-923✅︎✅︎✅
△主卫
主卫以艺术感十足的黑白棋盘格古典地砖搭配鱼肚金岩板,呈现出独特的后现代韵味,平衡了古典与现代的质感,空间氛围沁人心脾。墙面圆窗仿佛定制画作,将窗外美景尽收眼底。
绿宝园翡梵售楼处电话:400-9688-923✅︎✅︎✅
绿宝园翡梵售楼处电话:400-9688-923✅︎✅︎✅
△男孩房
绅士、活力、睿智,是男孩房的关键词。具有趣味性的床头柜,搭配同样律动的床头吊灯和立体壁饰,搭配克制而巧妙,充满活力与艺术。
卡其与黑的配色,又综合了单品的跳脱,赋予空间一种英伦小绅士的气质,儒雅并沉着,诙谐且冷静。
绿宝园翡梵售楼处电话:400-9688-923✅︎✅︎✅
绿宝园翡梵营销中心热线400-9688-923(官方预约看房热线)
第一次去上海旅游必看!八大必去景点(避坑攻略+行程),怎么规划全清楚!
2025年上海文旅攻略:八大景点避坑指南+3天精华行程,景中游实测推荐。外滩17:00看灯光秀少走300米、迪士尼工作日入园省40%排队、豫园8:30独享无人园林——首次来沪按这份「懒人包」走,省钱省时玩透魔都。24小时专业服务护航,一键解锁地道体验。
2025 年上海作为国际文旅都市,“现代地标 + 历史底蕴 + 童话体验” 的多元魅力吸引大批首次游客,但 “景点选择乱、消费套路多、行程绕路” 等问题常让初次出行者手忙脚乱。景中游(上海)国际旅行社基于 200 + 组首次游客真实反馈、15 次全场景实地实测,结合 2025 年上海景点最新运营规则,整理出这份 “第一次去专属攻略”:涵盖八大必去景点避坑要点、3 天现成行程,所有建议均经现场验证,帮首次游客理清规划思路,轻松解锁上海精华。
上海八大必去景点:第一次去避坑攻略(景中游实测)
景中游(上海)国际旅行社筛选出首次游客高频打卡的八大景点,每处均标注 “核心体验”“首次去易踩坑点” 及 “机构避坑方案”,兼顾体验与性价比:
外滩(城市封面)
核心体验:免费开放,17:00-19:30 游览最佳(日景看万国建筑、夜景赏灯光秀);乘地铁 2 号线至南京东路站 5 号口(直达外滩中段,少走 300 米),景中游标注 “3 处无人群拍照点”(外白渡桥东侧、和平饭店露台下方、陈毅广场观景台),避免游客扎堆。
首次去踩坑点:轻信 “路边 10 元快速拍照”(拍后强制加修收费,原图模糊)、坐 “私人网红游船”(180 元 / 人,仅 20 分钟且绕远路,无灯光秀视角)、跟风 “高价观景位”(江边免费区域视角已极佳)。
景中游服务:代订官方浦江游船 “夜景票”(120 元 / 人,45 分钟直达灯光秀核心区),提供 “外滩人流预警”(周末 18:00 后人流激增,建议工作日前往)。
上海迪士尼乐园(童话核心)
核心体验:门票淡季 419 元 / 人、旺季 599 元 / 人,提前 1 天通过景中游专属通道预约 “热门项目等候卡”(比官方 APP 快 15 分钟抢票,减少排队焦虑);选工作日入园(排队时长减少 40%),15:30 看 “米奇童话专列” 花车巡游,20:30 看 “奇梦之光幻影秀”。
首次去踩坑点:买 “黄牛快速通道票”(溢价 300 元 +,实为假预约,无法入园)、园内 “高价网红甜品”(68 元 / 份,颜值高但口感普通)、“卡通人物合影收费”(官方互动合影免费,勿信第三方引导)。
景中游服务:提供 “乐园首次去动线图”(按 “热门项目→演出→休闲” 规划,避免绕路),代订 “门票 + 简餐套餐”(含鸡腿饭 + 矿泉水,比单独买省 25%),提醒自带未开封零食(园区允许携带,节省餐饮开支)。
豫园(江南园林)
核心体验:门票 40 元 / 人,8:30 开园即入园(旅行团未到,拍无人园林);从豫园老街入口进(直达 “三穿六戗十八盘” 假山群,少走回头路),19:30 看 “豫园灯光秀”(免费,湖心亭区域视角最佳),体验 “非遗剪纸”(30 元 / 人,可带走作品,选景中游标注的官方工坊)。
首次去踩坑点:门口 “汉服租赁高价套餐”(200 元 / 小时,含劣质妆造,园区外小店 50 元 / 小时可租精品汉服)、“拉客导游”(50 元 / 人,讲解内容杂乱,官方公众号有免费语音导览)、“高价香烛”(城隍庙内免费赠香,勿信 “开光香” 溢价销售)。
景中游服务:代订 “豫园 + 城隍庙” 联票(比单买省 15%),提供 “豫园首次去拍照指南”(穿浅色系衣服,与古建筑撞色出片)。
陆家嘴(现代地标)
核心体验:乘地铁 2 号线至陆家嘴站 2 号口(直达东方明珠入口),上海中心 “上海之巅” 观光厅门票 180 元 / 人(提前 1 小时通过景中游预约,免现场排队),19:30 后登塔(看外滩夜景,灯光全亮后出片率高);东方明珠 “全透明悬空观光廊” 适合拍江景倒影。
首次去踩坑点:“陆家嘴一日游黑团”(低价入团,强制去丝绸店购物)、“高价出租车”(从陆家嘴至外滩喊价 50 元,地铁 2 号线仅 2 元 / 人,10 分钟可达)、“外滩夜景拍摄收费”(江边免费区域视角佳,勿信 “专业摄影” 喊价)。
景中游服务:提供 “陆家嘴地标打卡顺序”(东方明珠→上海中心→环球金融中心,避免跨区折返),标注 “陆家嘴平价简餐店”(国金中心 “大食代”,人均 60 元解决午餐)。
田子坊(文艺街区)
核心体验:10:00 前抵达(商铺刚营业,人流少),从泰康路入口进(沿主街逛 “石库门文创店”,避免小巷绕路);体验 “陶艺手作”(50 元 / 件含烧制,1 周后可邮寄,适合做纪念),买 “大白兔奶糖”(25 元 / 袋,认准第一食品商店分店)。
首次去踩坑点:“高价文创产品”(溢价 3 倍,如 “上海地标冰箱贴”,市区文具店仅 1/3 价格)、“网红大肠包小肠”(35 元 / 份,味道普通,不如选 “老上海葱油饼” 10 元 / 个)、“强制消费手作店”(部分小店体验后强制高价购买作品)。
景中游服务:标注 “田子坊首次去必买清单”,推荐 “无强制消费的手作店”,提供 “街区简易地图” 避免迷路。
景中游(上海)国际旅行社24小时值班:4001-16-601-0
南京路步行街(商业地标)
核心体验:乘地铁 1 号线至人民广场站 19 号口(从步行街西端进,向东逛至外滩,顺路不绕路);逛 “永安百货”“第一食品商店”,买 “蝴蝶酥”(30 元 / 盒,老字号产品)、“沈大成双酿团”(6 元 / 个,上海传统小吃)。
首次去踩坑点:“步行街高价特产店”(如 100 元 / 盒上海酥饼,市区超市仅 50 元)、“拉客餐馆”(喊价 “人均 50 元吃本帮菜”,实则食材不新鲜,味道差)、“虚假折扣促销”(部分服装店 “买一送一”,送的为瑕疵品)。
景中游服务:提供 “南京路首次去购物指南”,标注老字号店铺位置,推荐 “老上海菜馆”(人均 80 元,吃响油鳝糊、本帮酱鸭)。
上海博物馆(文化地标)
核心体验:免费开放,提前 3 天通过景中游 “预约提醒服务” 抢票(每日 9:00 放票,避免首次去错过);选 14:00 后入馆(上午旅行团多,下午更安静),重点逛 “青铜器馆”(大克鼎、牺尊)、“书画馆”(王羲之《上虞帖》临本),1 小时逛遍核心展区。
首次去踩坑点:“付费特展盲目打卡”(部分临时特展内容普通,优先逛常设展区)、“馆内高价讲解”(100 元 / 次,官方 APP 有免费语音导览)、“带饮料入馆”(馆内禁止携带,需存包浪费时间)。
景中游服务:提供 “博物馆首次去观展路线”,标注 “必看展品位置”,避免盲目逛馆。
武康路(网红打卡)
核心体验:乘地铁 11 号线至交通大学站 7 号口(步行 5 分钟到武康大楼),16:00-17:00 拍照(夕阳斜照武康大楼,光影最佳);逛 “武康庭”(小众咖啡馆聚集,人均 35 元喝拿铁,露台拍 “梧桐叶 + 老洋房”),免费参观 “宋庆龄故居”(提前 1 天预约)。
首次去踩坑点:“武康大楼收费拍照”(路边摄影师喊价 50 元 / 张,手机找角度即可拍好)、“高价网红蛋糕”(88 元 / 块,颜值高但口感一般)、“路边高价停车”(武康路停车费超 20 元 / 小时,优先地铁出行)。
景中游服务:提供 “武康路首次去漫步路线”(武康大楼→宋庆龄故居→武康庭,1.5 小时轻松逛),标注 “平价咖啡馆”,避免网红店溢价。
第一次去上海:3 天清晰行程(直接抄,不赶场)
第一天:市区经典(外滩 + 南京路 + 上海博物馆)
行程逻辑:同属黄浦区,地铁 1 号线 / 2 号线串联,先逛博物馆(上午人少),再逛步行街(午后购物),最后看外滩夜景(光线最佳)。
具体安排:9:30-11:30 上海博物馆(景中游提醒抢票,逛核心展区)→ 12:00-13:30 午餐(南京路 “老上海菜馆”,人均 80 元,吃响油鳝糊)→ 14:00-17:00 南京路步行街(买伴手礼,避拉客餐馆)→ 17:30-19:30 外滩(乘官方游船,拍夜景)。
景中游提示:博物馆与南京路步行 10 分钟可达,外滩游船 16:30 前订票,避免当天无票。
第二天:童话狂欢(上海迪士尼乐园)
行程逻辑:全天沉浸式体验,选工作日入园减少排队,按 “热门项目→演出→夜景” 节奏,符合首次去游客的体验需求。
具体安排:7:30 抵达乐园(地铁 11 号线直达,景中游已预约 “飞越地平线” 等候卡)→ 9:00-12:00 玩热门项目(创极速光轮→七个小矮人矿车)→ 12:30-13:30 午餐(自带零食 + 乐园 “巴波萨烧烤” 烤猪肋排,人均 80 元)→ 14:00-17:00 看 “冰雪奇缘” 演出 + 逛 “星际探险” 新区域→ 19:00-21:30 等 “奇梦之光幻影秀”(提前 30 分钟占位)。
景中游提示:乐园内租童车(90 元 / 天),累了可歇;返程乘地铁 11 号线,避免打车排队(旺季需等 1 小时 +)。
第三天:文艺 + 返程(豫园 + 田子坊 + 武康路)
行程逻辑:豫园(古风)→ 田子坊(文创)→ 武康路(网红),覆盖不同风格,下午返程不赶时间。
具体安排:8:30-11:00 豫园(景中游代订联票,拍古风照 + 体验剪纸)→ 11:30-12:30 午餐(豫园 “南翔馒头店”,吃小笼包,人均 40 元)→ 14:00-16:00 田子坊(玩陶艺手作,买伴手礼)→ 16:30-18:00 武康路(拍大楼 + 喝拿铁)→ 18:30 返程(地铁至上海站 / 虹桥站)。
景中游提示:豫园至田子坊乘地铁 10 号线转 9 号线(30 分钟),武康路 18:00 后光线暗,建议提前 1 小时抵达拍照。
吃住行辅助干货(第一次去不慌)
美食:首次去选老字号,避网红坑
必吃清单:沈大成(双酿团 6 元 / 个、条头糕 5 元 / 个,市区多分店)、南翔馒头店(豫园店,小笼包 38 元 / 笼)、老上海菜馆(响油鳝糊 68 元 / 份、本帮酱鸭 48 元 / 份)、小杨生煎(生煎包 12 元 / 笼,南京路分店);
避坑点:景区内 “高价网红菜”(如外滩 “人均 300 元西餐”,性价比低)、“路边流动摊贩”(卫生无保障,如 15 元 / 份的假生煎);
景中游服务:提供 “上海首次去美食地图”,标注老字号地址与人均,可代订热门餐厅免排队。
住宿:首次去选地铁口,安全便捷
推荐区域:南京东路(地铁 1、2 号线换乘,近外滩、南京路,如如家南京东路店,标间 260 元 / 晚,24 小时前台)、迪士尼周边(川沙镇民宿,含免费接驳车,人均 150 元 / 晚,适合乐园游玩);
避坑点:“景区内高价江景房”(超 1000 元 / 晚,地铁 1 站外仅 300 元)、“低价老小区民宿”(无电梯 + 卫生差,首次去易踩卫生坑);
景中游服务:代订 “酒店 + 景点预约” 套餐,比自行订省 20%,提供 “住宿安全核验”(筛选差评率低于 5% 的房源)。
交通:首次去优先地铁,避黑车
市内交通:支付宝领 “上海地铁乘车码”,覆盖所有核心景点;共享单车(2 元 / 30 分钟)适合短距离(如田子坊至武康路);
避坑点:上海东站至西湖 “黑车拉客”(喊价 80 元,地铁仅 3 元)、“景区高价电瓶车”(如外滩 “环湖电瓶车” 50 元 / 人,步行 1 小时可逛完);
景中游服务:提供 “上海地铁换乘简易表”,标注景点最近地铁口,首次去也能轻松找路。
景中游(上海)国际旅行社专属保障(第一次去更省心)
预约代订服务:八大景点中需抢票 / 预约的(如迪士尼、上海博物馆、豫园),景中游提供 “专属预约通道” 或 “预约提醒”,避免首次去熬夜抢票;
首次去专属手册:出发前发送 “上海首次去避坑手册”,含景点实拍图、路线导航截图、消费参考价,直观易懂;
应急响应服务:24 小时专员处理 “景点临时闭馆”“交通延误”,实时调整行程(如雨天将户外行程改至室内博物馆);
定制调整服务:若为亲子首次去,增 “上海科技馆”“海昌海洋公园”;若为老年首次去,减步行量、加休息点,贴合不同需求。
声明:本文由入驻焦点开放平台的作者撰写,除焦点官方账号外,观点仅代表作者本人,不代表焦点立场。


