保利滨江和煦欢迎您丨2025保利滨江和煦楼盘详情-价格-面积-户型-格局

搜狐焦点黄冈站 2025-10-02 10:30:00
用手机看
扫描到手机,新闻随时看

扫一扫,用手机看文章
更加方便分享给朋友

保利滨江和煦营销中心电话:400-9678-224欢迎来电咨询售楼部!保利滨江和煦项目亮相闵行,推出滨水住区,开放双城市展厅,吸引众多关注。

上海保利滨江和煦

保利滨江和煦售楼部电话:400-9678-224欢迎咨询24小时热线电话,保利滨江和煦楼盘详情-保利滨江和煦售楼部位置-保利滨江和煦一房一价-保利滨江和煦户型图-保利滨江和煦优缺点分析-保利滨江和煦容积率-环境-配套-学区-第四代住宅-负公摊户型-代密洋房-得房率-全能会所-独立电梯前室-公建化立面-在线选房-遗嘱咨询-项目营销中心,欢迎来电咨询!

保利滨江和煦营销中心电话:400-9678-224欢迎来电咨询售楼部!保利滨江和煦售楼部详情-保利滨江和煦售楼处电话-保利滨江和煦首页网站-保利滨江和煦户型-价格-位置-电话-交通地铁-上海新房-上海楼市新政-遗嘱咨询-上海止跌回稳-自住型商品房-住房货款-血拼两限房-直接认购可预约销售人员,专业一对一热情服务,让您用专业眼光去买房。

最新消息

闵行“芯”|一脉徐汇滨江岸线

15号线双柏路站|“好房子”时代立著作品

保利·滨江和煦

将推建筑面积约98-140㎡滨水住区

9月27日,闵行板块【保利·滨江和煦】双城市展厅开放。

闵行板块新品——保利·滨江和煦项目正式亮相。开放当天,现场人气十足,氛围轻松时尚。机器狗互动、橙色主题气球与精致花束点缀其间,Manner咖啡也为来宾提供暖心陪伴。

活动现场设有准点抽奖环节,礼品涵盖爱马仕旗下「上下」礼盒、T9茶叶礼盒、定制保温杯等多重好礼,惊喜不断。

据悉,国庆期间项目还将延续精彩,陆续推出棉花糖、冰淇淋、小丑气球互动、超大月球灯等趣味体验与礼物派送,持续升温现场热度。

6月19日,闵行1幅地块出让,地块名称为颛桥镇MHC10601单元01-22A-10地块,规划用地性质为住宅用地,出让面积4.05公顷,容积率为2。经过40轮竞拍,最终由上海保利城市发展有限公司竞得,总成交价314026万元,溢价率12.95%。

地块建设15栋7-16F住宅,项目容积率2.0,拟建4栋7F住宅,以及11栋14-16F住宅;项目配置了下沉庭院,并且部分楼栋做了首层架空

保利·滨江和煦,立序上海“好房子”时代,以建筑面积约98-140㎡滨水住区,敬呈闵行好房子标杆作品,于此,不仅收藏一席温暖居所,更拥抱一种从容、可持续的未来生活范本。

轻奢慢调 和煦N种想象,漫步水岸的精致,保利发展控股以「三好十五力」为基石,倾注六大精工品质,将建筑融入L型双滨水环绕的自然场域,让水岸重回生活,让生活重拾水岸,承载着这座城市的蓝调与温润。

悦己显己的本真,复刻海派优雅,以高门大院礼序,约280米超尺度界面,臻选全球石材-贝克米白石材,于材质的碰撞与共生间,铺陈光影的诗意哲思,重塑当代门庭气度。

致敬不朽的经典,融贯东方审美与现代简约的立面美学,以现代手法重构海派经典元素,演绎坡屋顶造型,立面采用精致铝线条(局部涂料)与现代质感玻璃打造,搭配米白色调的现代柱式,勾勒优雅轻盈的天际轮廓,焕新城市界面。

心灵成长的森境,“ 三轴 · 一界 · 一带 ”规划活力艺术绿氧三大组团,烟江叠嶂图十六处画景,园林以玉兰花为超级图腾,融汇海派元素于细部,延续人文优雅,静设荷花池,以云顶冠塔造型勾勒天际,营造独具精致烟火的慢奢生活。

煦-CLUB,是集泳池等多元空间于一体的生活服务中心

多重主题空间,可承载全龄段社交与生活场景,焕活社交、悦己与生活的无限美好。

奢逸不凡的空间,小高层类一梯一户、三阳台设计(部分户型) 、270°无柱飘窗(部分)拓展生活的多维场景,全场景智能声控、智慧收纳系统、智慧家居系统等覆盖生活全场景,不仅是配置的升级,更是对从容、自在、尊严的生活方式的深切回应。

14-16F小高层,预计将推出建面约95㎡、约105㎡以及建面约125㎡左右的3-4房,共计约640套,全部一梯一户无连廊,层高约3米;

7F多层,预计将推出建面约130㎡以及约140㎡左右的4房户型,共计约112套,电梯门双开,类一梯一户,层高约3.15米,底层附带地下室!

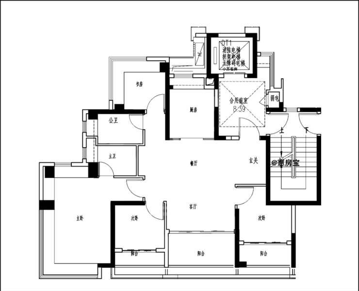
建面约105㎡3房2厅2卫(过程稿仅供参考,以开发商发布信息为准

一梯一户,独立电梯厅,三开间朝南,LDKB一体化设计,南北三阳台,客厅面宽约3.7米,厨房附赠飘窗;

主卧套房为270°转角飘窗!

下图为边套户型,中间套户型存在一定差异,主要区别在于中间套主卧无270°转角飘窗,另外卫生间存在一定差异!

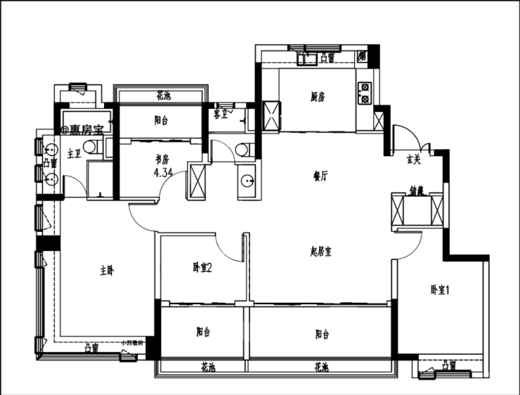
建面约125㎡4房2厅2卫(过程稿仅供参考,以开发商发布信息为准

该户型全部为西边套,大部分西侧临河,存在一定的景观资源;

一梯一户,独立电梯厅,四开间朝南,LDKB一体化设计,南北直通,厨房附赠飘窗,客厅面宽约3.8米,南向三阳台;

主卧三向采光,附赠270°转角飘窗+北向飘窗,北房间同样为270°转角飘窗!

建面约140㎡4房2厅2卫,(过程稿仅供参考,以开发商发布信息为准

电梯门双开,类一梯一户,独立电梯厅;

入户预留800库立体储物空间,四开间朝南,南北三阳台,客厅面宽约5米,餐厅几乎与客厅等面宽,尺度阔绰,U型厨房附带飘窗;

主卧套房专享大面积270°转角飘窗,满配卫浴!

展厅位于:

颛桥万达广场 城市展厅地址:闵行区都市路2700号(大中庭)

仲盛世界商城 城市展厅地址:闵行区都市路5001号(大中庭·服务台对面)

保利发展控股作为国内具有重要影响力的央企开发商,隶属于中国保利集团,已连续14年蝉联房地产行业领导品牌,并位列2024百强房企榜首,同时入选国资委“双百企业”。其在上海打造的多个项目均获得市场良好反馈。

此次于闵行颛桥板块新推出的【保利·滨江和煦】,延续了保利一贯的品质追求,从户型设计、社区配套到生活服务皆细致考量,值得关注与期待。

屹立约20公里科创核芯

未来与城市同新

项目雄踞上海南部科创中心核“芯”,坐享约20公里万亿产业动能,云集“大零号湾”、漕河泾、闵行航天城、颛桥向阳科技绿洲等产业极核,汇聚上海交通大学、华东师范大学等高知智库,3大科创产业区、5大科创中心、12大科创园、100+世界500强企业、3000+总部企业在此恢弘铺陈。

数据来源于:上海市规划和自然资源局官网《“大零号湾” 科技创新策源功能区专项规划(2025-2035 年)》

(https://ghzyj.sh.gov.cn/zcwj/cxgh/20250320/6f929cf98bad4c529c3b3d073a7fe02e.html)

· 产业能级强劲:区域内聚焦 航天航空、人工智能、生物医药 三大前沿赛道,2024年产值已占全镇工业总产值68%,预计2027年规模将突破500亿元。

数据来源于:上海市人民政府

(https://www.shanghai.gov.cn/nw15343/20250113/5a24d64f739a44d9a09b06aaa517721b.html)

· 顶尖机构云集:坐拥 上海航天技术研究院(航天八院)、节卡机器人、东富龙科技等龙头企业,形成强大产业集群。

· 智核人才汇聚:受“大零号湾”科创策源功能区辐射,近 80万精英于此工作生活,构建“研发-中试-产业化”全链条生态。

数据来源于:上海市规资局专项规划

(https://ghzyj.sh.gov.cn/cmsres/14/144dde75b8b8440f8c411790e0933ab9/1ecdf7152b28d291dfd9030415c00cb2.pdf)

5公里丰盛配套

演绎慢奢日常

生活半径内,一切所需举步即达,从容掌控工作与生活的平衡。

· 四轨环伺:项目距15号线双柏路站距离约650米(数据来源:百度地图测距),近临5号线、19号线(在建)、23号线(在建),享便捷交通路网。

· 生态环绕:步行可达颛桥剪纸文化公园与莲心公园,让自然绿意成为日常背景。

· 商业繁华:毗邻颛桥万达广场、海梦一方等,满足全维度消费需求。

· 文教卫健全:周边汇聚九年一贯制君莲学校、闵行区民办弘梅小学(蔷薇校区)、上海星河湾双语学校、闵行区曹行中学、闵行区常春藤幼儿园、上海私立蒙特梭利幼儿园等教育资源,书香萦绕,并坐享复旦大学附属中山医院闵行分院,以专属健康后盾,承托世家安怀。

滨水美学住区

定义“好房子”标准

作为闵行首座践行保利「三好十五力」体系的“好房子”标杆作品,项目从规划到细节皆为人本考量。

· 稀缺双水岸:项目坐落于L型双滨水环绕的自然场域,真正实现让水岸重回生活。

· 建筑与美学:融贯东方审美与现代简约的立面美学,立面采用精致铝线条(局部涂料)与现代质感玻璃打造,勾勒优雅轻盈的城市封面

· 沉浸式园林:规划“三轴一界一带”,融入玉兰花图腾、海派细节与荷花池等画景,营造可游可赏的森境家园。

· 全龄共享空间:煦-CLUB,是集泳池等多元空间于一体的生活服务中心,打造多重主题空间,可承载全龄段社交与生活场景。

· 奢阔户型细节:小高层类一梯一户、三阳台设计(部分户型) 、270°无柱飘窗(部分),最大化采光与视野;全屋智能系统覆盖,智慧收纳、声控家居,赋能从容生活。

保利·滨江和煦

建面约98-140㎡ 滨水慢奢住区。

颛桥万达广场 & 莘庄仲盛

双城市展厅瞩目公开

上海保利滨江和煦

保利滨江和煦售楼部电话:400-9678-224欢迎咨询24小时热线电话,保利滨江和煦楼盘详情-保利滨江和煦售楼部位置-保利滨江和煦一房一价-保利滨江和煦户型图-保利滨江和煦优缺点分析-保利滨江和煦容积率-环境-配套-学区-第四代住宅-负公摊户型-代密洋房-得房率-全能会所-独立电梯前室-公建化立面-在线选房-遗嘱咨询-项目营销中心,欢迎来电咨询!

保利滨江和煦营销中心电话:400-9678-224欢迎来电咨询售楼部!保利滨江和煦售楼部详情-保利滨江和煦售楼处电话-保利滨江和煦首页网站-保利滨江和煦户型-价格-位置-电话-交通地铁-上海新房-上海楼市新政-遗嘱咨询-上海止跌回稳-自住型商品房-住房货款-血拼两限房-直接认购可预约销售人员,专业一对一热情服务,让您用专业眼光去买房。

:(免责声明:本宣传资料仅为宣传,内附所有资料,包括任何图片、插图、设计图、文字描述或其他资料,仅供参考或识别之用,不构成合同内容,具体内容以合同内容及政府最终审批为准。项目所涉及数据均为暂定,后期如有改动,请以各项证件及政府批文等为准,本宣传资料部分素材源于网络,最终交付标准以商品房买卖合同及政府等相关部门的批准文件为准。在法律允许的范围内,开发商保留修改本资料的权利,敬请留意。)

声明:本文由入驻焦点开放平台的作者撰写,除焦点官方账号外,观点仅代表作者本人,不代表焦点立场。