古北悦公馆 (官方售楼处) 首页 - 古北悦公馆销售中心 - 环境 - 户型 - 价格 - 地址 - 楼盘详情 - 配套 - 电话 - 交房时间 - 配套 - 电话 - 交房时间
扫描到手机,新闻随时看
扫一扫,用手机看文章
更加方便分享给朋友
古北悦公馆售楼处电话: 400-9939-964古北悦公馆官方电话: 400-9939-964古北悦公馆官方售楼处已认证✅︎✅︎✅
⭕古北悦公馆营销中心电话: 400-9939-964☎☎古北悦公馆营销中心已认证

High-end luxury residences can serve as investment products
高档豪华住宅可成为投资品
Cracking down on real estate speculation and restricting investment behavior are the main focuses of decision-makers' regulation. However, scholars believe that in the future, high-end luxury residences can be used as investment housing.
打击房地产投机,限制投资行为是决策者调控的主要着力点,但学者认为未来,高档豪华住宅可以作为投资性住房。
On December 7, 2011, at the "Third China Real Estate Forum and 2011 China Real Estate Annual Red List", the impact of the large-scale construction of affordable housing on the market was reflected in the fact that ordinary residential properties, including affordable housing and small and medium-sized ordinary commercial housing, will gradually be de-invested and return to their use value, forming a cost-driven price. This has also become a consensus.
2011年12月7日,在“第三届地产中国论坛暨2011中国房地产年度红榜”上,保障房的大规模建设对市场的影响,表现在包括保障房住房、中小户型普通商品房在内的普通住宅将慢慢去投资化,向使用价值回归,形成以成本主导的价格,这也已形成共识。
He pointed out that based on the experience of European and American countries, the prices of ordinary residences do not deviate too much from the cost. However, currently, housing prices in China are far higher than the cost. To ensure the housing rights of the common people, "even investment is no longer necessary."
他指出,欧美国家的经验看,普通住宅价格不会偏离成本太多,但目前国内住房价格远高于成本,为了保证老百姓住房权利,“连投资这块也觉得不需要了”。
He believes that appropriate investment behavior should still be maintained, and a large number of apartments and high-end luxury residences can be used as investment housing. "Even in the residential market, there should be an internal relationship of coordinated development."
他认为,适当的投资行为仍应保留,大量公寓、高档豪华住宅可以作为投资性的住房,“即使是住宅市场,也应该有一个协调发展的内部关系”。
In addition, enterprises engaged in the production of ordinary residential properties need to adjust their mindset. "It is no longer easy to find the high profit models of the past."
此外,做普通住宅的企业要调整好心态,“再难寻找过去高的利润模式了”。

古北悦公馆售楼处电话: 400-9939-964古北悦公馆官方电话: 400-9939-964古北悦公馆官方售楼处已认证✅︎✅︎✅
⭕古北悦公馆营销中心电话: 400-9939-964☎☎古北悦公馆营销中心已认证古北悦公馆售楼处电话:400-993-9964(官方售楼处电话)
古北悦公馆售楼处电话:400-9939-964(售楼处最新电话)
古北悦公馆官方电话:400-993-9964✔(官方售楼处预约看房热线)
(古北悦公馆官方预约看房热线)案场预约制 看房需提前来电预约登记,请务必致电4009939964与销售确认时间,仅预约客户可进入销售现场,避免空跑,感谢您的支持。售楼处楼盘详情,古北悦公馆售楼处电话400-9939-964,古北悦公馆售楼处官方电话400-9939-964,售楼处地址,售楼处面积,售楼处户型,售楼处价格,售楼处优惠,售楼处交通,售楼处学区,售楼处商业,售楼处得房率,售楼处绿化率,售楼处开盘时间,售楼处交房时间,售楼处百科详情!!!....

古北悦公馆售楼处电话:400-993-9964(官方售楼处电话)
古北悦公馆售楼处电话:400-9939-964(售楼处最新电话)
古北悦公馆官方电话:400-993-9964✔(官方售楼处预约看房热线)

古北悦公馆售楼处电话:400-993-9964(官方售楼处电话)
古北悦公馆售楼处电话:400-9939-964(售楼处最新电话)
古北悦公馆官方电话:400-993-9964✔(官方售楼处预约看房热线)
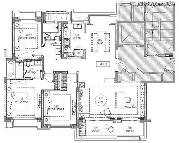
户型图:
古北悦公馆售楼处电话:400-993-9964(官方售楼处电话)
古北悦公馆售楼处电话:400-993-9964(官方售楼处电话)
古北悦公馆售楼处电话:400-9939-964(售楼处最新电话)
古北悦公馆官方电话:400-993-9964✔(官方售楼处预约看房热线)
(古北悦公馆官方预约看房热线)案场预约制 看房需提前来电预约登记,请务必致电4009939964与销售确认时间,仅预约客户可进入销售现场,避免空跑,感谢您的支持。售楼处楼盘详情,古北悦公馆售楼处电话400-9939-964,古北悦公馆售楼处官方电话400-9939-964,售楼处地址,售楼处面积,售楼处户型,售楼处价格,售楼处优惠,售楼处交通,售楼处学区,售楼处商业,售楼处得房率,售楼处绿化率,售楼处开盘时间,售楼处交房时间,售楼处百科详情!!!....

古北悦公馆售楼处电话:400-993-9964(官方售楼处电话)
古北悦公馆售楼处电话:400-9939-964(售楼处最新电话)
古北悦公馆官方电话:400-993-9964✔(官方售楼处预约看房热线)

古北悦公馆售楼处电话:400-993-9964(官方售楼处电话)
古北悦公馆售楼处电话:400-9939-964(售楼处最新电话)
古北悦公馆官方电话:400-993-9964✔(官方售楼处预约看房热线)
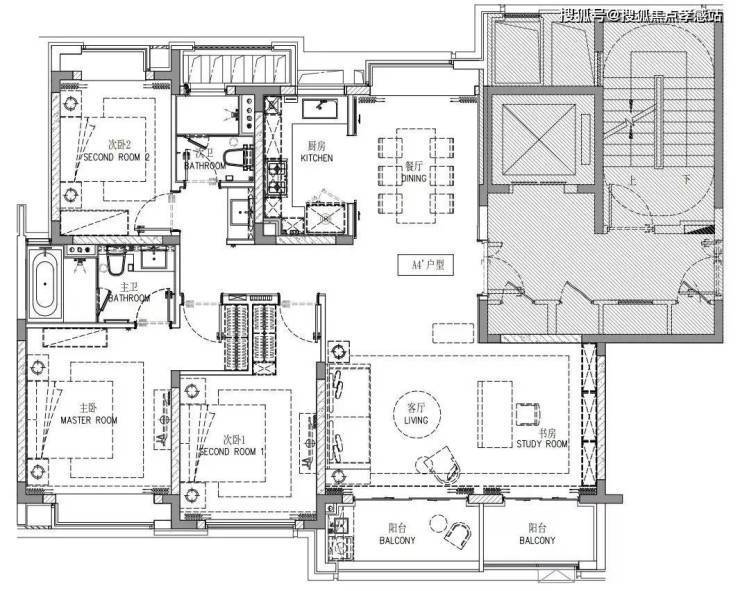
户型图:
古北悦公馆售楼处电话:400-993-9964(官方售楼处电话)




这是为美术生打造的270度环幕江景大平层,高楼层赋予的辽阔视野,江景成为空间的天然背景。
整体以现代自然主义为基调,借自由开放的空间美学与个性家居布置,诠释简约松弛的生活哲学。


玄关
Vestibule
归家序章,以简素勾勒空间韵律
作为入户第一幕,玄关以极简姿态开启生活叙事,素净墙面如天然画布。清透支架托举着素白花瓶,植物姿态俏皮延展,成为连接户外与生活的温柔过渡。

客厅
Living Room
没有 “标准答案” 的互动场
全开放式设计,岛形沙发打破边界,让交流随光影自由发生。午后的光线从侧面洒落,家具被赋予立体的光影层次。

中央的B&B Camaleonda模块组合沙发,以岛状布局重构空间逻辑,双向陈设的低椅背设计。一面朝向书柜电视墙,一面衔接餐厨区。让场景切换随心意而生,既保持空间通透感,又以功能分区提升使用效率。



休闲区
Leisure Area
多元需求的美学平衡




厨房
Kitchen
暮光先抵达的日常剧场






餐厅
Dining Room
暮色里的光影焦点







主卧
Master Bedroom
个性与舒适的共生
















小儿子房
Younger Son's Room
斑斓里的活力感




大儿子房
Elder Son's Room
简素里的生长感






古北悦公馆售楼处电话: 400-9939-964古北悦公馆官方电话: 400-9939-964古北悦公馆官方售楼处已认证✅︎✅︎✅
⭕古北悦公馆营销中心电话: 400-9939-964☎☎古北悦公馆营销中心已认证
古北悦公馆售楼处电话: 400-9939-964古北悦公馆官方电话: 400-9939-964古北悦公馆官方售楼处已认证✅︎✅︎✅
⭕古北悦公馆营销中心电话: 400-9939-964☎☎古北悦公馆营销中心已认证





世界上最豪华的十大私人住宅
1.世界上首座价值超过10亿美元的建筑
印度信诚工业集团董事总经理穆穆凯什·阿姆巴尼就是这座摩天大楼的拥有者。这位全球富豪榜排在第5位的超级富翁身家超过430亿美元。安提拉位于印度孟买市郊,据说这栋大楼花掉阿姆巴尼20亿美元!
豪华住宅
安提拉于今年2月竣工,其名字是以印度神话中的岛屿命名。总面积达到37161平方米,高度约为167米,一共有27层。
阿姆巴尼的妻子曾长期居住在纽约的文华东方大酒店里。她被该酒店的浓郁的东方建筑风格所吸引,因此她希望在安提拉大楼里也能看到类似的设计;另外,安提拉每一层楼的构造都是与众不同的。所有这些因素导致安提拉成为世界上最大最奢华的居所。
2.英国爱敦阁——价值1.5亿美元的私人豪宅
英国爱敦阁——自19世纪以来,爱敦阁一直是英格兰地区最重要的私人豪宅,价值1.5亿美元。
爱敦阁距离伦敦市区仅25英里(约合)40公里,穿过几道考究的大铁门,你就能看到一座富丽堂皇的宏大建筑。爱敦阁以其价格昂贵闻名于世,爱敦阁里占地23.47公顷(约23.47万平方米),仅室内面积就达4645平米,有103个房间,包括22间大理石浴室,2幢客房(13个总统套房)、办公室、马厩、网球场、2个室外游泳池、保龄球房、室内壁球室、3个室内泳池、50席位的私人电影院、图书馆、酒窖、早餐室和宴会厅。室外,爱敦阁不仅占有一个44500平米的正式花园,还拥有一片近20万平米的私家森林。
英国爱敦阁
除了拥有令人瞠目结舌的超大体量,爱敦阁还具备一般豪宅不常见的应急避难室、高等智能家居系统,可停放8辆豪华轿车的车库,以及自动加热的大理石车道。但最令买家动心的,莫过于豪宅自身配备的直升机场和直升机降落坪了。由此可见,爱敦阁极尽奢华与富丽堂皇,令女皇居住的白金汉宫也不由相形见绌。
3.美国最大的私人豪宅——佛罗里达州的“凡尔赛宫”
这座美国面积最大的家庭住宅坐落在佛罗里达州奥兰多市32公里外的温德米尔镇,这座翻版的凡尔赛宫建筑面积超过8300平方米,等于50个美国普通家庭的住宅面积。整幢豪宅共有30间卧房、3个奥运会标准大小的游泳池、23间浴室、10间厨房、1个篮球场、2个网球场。地下停车场可同时停放20辆轿车。
佛罗里达州的“凡尔赛宫”
豪宅的主人是美国佛罗里达州亿万富豪戴维·西格尔和他的前选美皇后太太杰奎琳,他们原本打算花1亿美元,将这座豪宅打造成自己的永久爱巢,因此夫妇二人对每一个建筑细节都很讲究,所有建筑材料也都是从世界各地运来。
4.贝弗利山上的“利斯之花”——歌后玛丽亚·凯莉的宫殿玛丽亚·凯莉不仅拥有世界上最昂贵的双腿(她曾经为自己的双腿投保10亿美元),而且还拥有世界上最昂贵的豪宅之一。她名下的“利斯之花”价值1.25亿美元,由得克萨斯州富豪所建。其占地约2公顷(约合20万平方米),豪宅建筑占地3809平方米。建筑周围是大片的草坪、观赏园,光是给10名佣人住的房子就有约279平方米。豪宅还拥有一个带凉亭的温泉浴场和一座网球场。
歌后玛丽亚·凯莉的宫殿
5.美国洛杉矶贝弗利山上的赫斯特庄园——教父的庄园
赫斯特庄园标价1.65亿美元,这也使其成为美国最昂贵的豪宅之一。这座豪宅曾经是美国报业大亨威廉姆·伦道夫·赫斯特的家。
美国洛杉矶贝弗利山上的赫斯特庄园——教父的庄园
赫斯特庄园有29个卧室、3个游泳池、多个网球场甚至还有一个电影院和夜总会。赫斯特从其位于圣·西蒙的豪宅赫斯特城堡中带过来很多雕塑放到了赫斯特庄园里。
赫斯特1947年购买这座“H”型的豪宅时,花费了大约12万美元。而1976年买下这座别墅的现主人给其标价1.65亿美元,接手这座豪宅的人会和很多名人成为邻居,包括汤姆·克鲁斯和凯蒂·霍尔姆斯、以及贝克汉姆和维多利亚。
6.美国佛罗里达州“水花”——最奢华的绿色大厦
房地产大亨兼畅销书作家富兰克·麦克金尼斥巨资建造了美国第一幢“绿色环保”大厦。这座大厦名为‘Acqua Liana’,名字源于塔希提语和斐济语‘水花’,大厦四周是占地1.6英亩(约合0.647公顷)的花园。大厦高出海平面23英尺,面朝大西洋。绿色大厦有三层,占地15000平方英尺(约合1394平方米),共有7个卧室、11间浴室。此外还有浮置的太阳露台、瀑布温泉和弓形的鱼缸吧台。大厦的主人麦金尼将它形象地比喻为“现实乐观主义的灯塔”。
美国佛罗里达州“水花”——最奢华的绿色大厦
美国绿色建筑委员会和佛罗里达州绿色建筑委员会已经批准这座宏伟的建筑为能源自给型大厦。大厦内有一个篮球场大小的太阳能板为它提供电能,供电量是一般家庭的3至4倍。其水循环系统能收集足够的雨水,每14天可注满一个标准大的游泳池,而这里的环保灯则能减少70%的用电量。房子建造采用了大量的再生木材,可保护10.5英亩(约合4.35公顷)巴西热带雨林不被砍伐。
7.法国利奥波德别墅——让俄罗斯首富损失7500万美元的豪宅法国南部蔚蓝海岸的利奥波德别墅价值大约为7.5亿美元。这幢花园式建筑由比利时国王利奥波德二世于1902年修建,包括一个面积为8公顷的花园和数量众多的房间。巨大的花园需要50个全职花匠来维护。来宾可以在1200株橄榄树、橘子树、柠檬树以及柏树间徜徉。
法国利奥波德别墅
8.美国洛杉矶“庄园”别墅——金牌电视监制斯班林的梦幻之家
“庄园”别墅占地约0.52公顷,建于1991年,是一栋3层高的法式建筑物,有123个房间、1个室内溜冰场、多座游泳池、3个厨房、1个果园和1个保龄球场。2007年,斯班林的遗孀坎迪·斯班林认为这个别墅对于她和她的宠物狗来说有点儿太庞大了,打算将这座豪宅出售,当时叫价1.5亿美元。
美国洛杉矶“庄园”别墅——金牌电视监制斯班林的梦幻之家
9.美国佛罗里达州的马纳拉潘——面朝大海的豪宅
占地约2.23公顷的马纳拉潘距离大西洋海滩仅约158米。马纳拉潘用现代的设施将古典风格和雍容华贵展现地淋漓尽致。
美国佛罗里达州的马纳拉潘——面朝大海的豪宅
这座3层的建筑面积达到约6287平方米,包括14个卧室、24间浴室、18个车库、电影院、娱乐场、水族馆、健身馆、美容院、2部电梯、保龄球馆、网球场和一条赛车道。其主卧室面积达到约570平方米。还需要更多理由来让你相信这是世界上最棒的海景房吗?唯一不好的一点是这座豪宅的价格高达1.35亿美元。
10.洛杉矶芭比娃娃庄园——从芭比娃娃的梦幻住宅中获得的灵感
为了庆祝芭比娃娃的50岁生日,室内设计大师乔纳森·阿德勒将一座可以俯瞰太平洋、面积为325平方米别墅装饰成芭比娃娃家的样子。芭比娃娃的卧室墙壁和屋顶都被装饰成红色,壁橱中放着50双粉红色的鞋子,厨房中有杯型饼小蛋糕。在别墅的博物馆里,陈列着25款古典芭比娃娃的形象。而车库里还停放着一款新式的甲壳虫轿车。
洛杉矶芭比娃娃庄园
阿德勒最得意的设计是在起居室,著名设计师安迪·沃霍尔创作的一副芭比娃娃画像价值高达20万美元。
房产知识涵盖房地产基础概念、法律风险防控及购房避坑指南三个核心领域,涉及产权界定、合同签订、选房技巧等关键内容。
房地产基础知识
定义与特征:房地产包含土地及地上建筑物,具有不可移动性(固定位置)、保值增值性(抗通胀属性)及高价值属性(单件金额高)三大核心特征。1
2
分类标准:
按功能:居住/工业/商业/行政用房(如小区住宅、写字楼等)。
按产权:公房(政府管理)与私房(个人产权)。2
面积计算规范:
未封闭阳台按投影面积50%计算。
飘窗通常为赠送面积(需以购房合同为准)
购房法律与避坑指南
产权风险防控:
核查开发商「五证」(含预售许可证)。5
二手房需至不动产登记中心核实抵押/查封状态。5
6
合同核心条款:
网签备案须在签约后3日内完成(防止一房多卖)。3
口头承诺需转化为书面条款(如学区配套、精装标准)。5
7
验收规范:
收房必须查验《竣工验收备案表》(无此表无法办产权证)。7
人防车位产权归人防部门(开发商无权出售)
登鹳雀楼
唐·王之涣
白日依山尽,黄河入海流。
欲穷千里目,更上一层楼。
【名家评价】明末清初黄生《唐诗摘钞》:空阔中无所不有,故雄浑而不疏寂。
【奋发向上】这首诗写诗人在登高望远中表现出来的不凡的胸襟抱负,反映了盛唐时期人们积极向上的进取精神。此诗篇幅虽短,却气势磅礴、意境深远,千百年来一直激励着中华民族昂扬向上。
静夜思
唐·李白
床前明月光,疑是地上霜。
举头望明月,低头思故乡。
【名家评价】清代王尧衢《古唐诗合解》:此诗如不经意,而得之自然。故群服其神妙。
【思乡】每一个游子,在深夜时,都会在内心吟诵这首诗。
春晓
唐·孟浩然
春眠不觉晓,处处闻啼鸟。
夜来风雨声,花落知多少。
【名家评价】清·黄叔灿《唐诗笺注》:诗到自然,无迹可寻。
【春晓】人年少时春光正好,行途中不觉间风雨漫漫霜雪摧折,仿若长梦一场,待回身醒神,早已不知花落几何。短短二十字,足以道尽人一生。
凉州词二首·其一
唐·王之涣
黄河远上白云间,一片孤城万仞山。
羌笛何须怨杨柳,春风不度玉门关。
【名家评价】《唐风定》:字字雄浑,可与王翰《凉州》比美。
【大唐之音】千山万仞中屹立着一座孤城,坚毅中透着忧怨。在这荒凉的千里之外,没有慰藉心灵的家乡风物,边塞将士的不易和怨思呼之欲出。但终究还是含而未发,哀怨中仍不失敦厚和昂强。
江雪
唐·柳宗元
千山鸟飞绝,万径人踪灭。
孤舟蓑笠翁,独钓寒江雪。
【名家评价】郭濬《增订评注唐诗正声》:好雪景,句句妙(末句下)。范晞文《对床夜语》:唐人五言四句,除柳子厚《钓雪》一诗之外,极少佳者。
【孤独】在千山万径阔大的空间里,一叶孤舟,一个老翁,一根钓竿,此外别无他人,别无他物,这就是千万孤独。
凉州词
唐·王翰
葡萄美酒夜光杯,欲饮琵琶马上催。
醉卧沙场君莫笑,古来征战几人回?
【名家评价】清代宋顾乐《唐人万首绝句选评》:气格俱胜,盛唐绝作。
【战争】不管在古时候还是现在,我们都不应该忘了和平其实是另一群人的青春和热血换来的。
乌衣巷
唐·刘禹锡
朱雀桥边野草花,乌衣巷口夕阳斜。
旧时王谢堂前燕,飞入寻常百姓家。
【名家评价】明·桂天祥《批点唐诗正声》:有感慨,有风刺,味之自当泪下。
【世事】曾经栖息在王谢豪门的燕子,如今飞到寻常百姓家。几百年风云际会,几百年沧海桑田,就在这燕子的一来一回之间,翻转变换,让人感慨万千。
黄鹤楼送孟浩然之广陵
唐·李白
故人西辞黄鹤楼,烟花三月下扬州。
孤帆远影碧空尽,唯见长江天际流。
【名家评价】清代宋顾乐《唐人万首绝句选评》:不必作苦语,此等语如朝阳鸣风。
【送别】两个风流诗人,一场诗意送别。
江南逢李龟年
唐·杜甫
岐王宅里寻常见,崔九堂前几度闻。
正是江南好风景,落花时节又逢君。
【名家评价】清代胡本渊《唐诗近体》:含意未伸,有案无断;而世运之治乱、年华之盛衰、彼此之凄凉流落,俱在其中。
【岁月】四句诗,跨越了四十年,连接起两个恍如隔世的时代。
枫桥夜泊
唐·张继
月落乌啼霜满天,江枫渔火对愁眠。
姑苏城外寒山寺,夜半钟声到客船。
【名家评价】明·沈子来:全篇诗意自“愁眠”上起,妙在不说出。
【不朽的失眠】一千多年前的那个夜晚,那个夜晚的枫桥和寒山寺,就这样被张继定格在历史的长河中。那个夜晚的钟声,则穿越了千年历史,至今回响在每一个中国人的心头。
早发白帝城
唐·李白
朝辞白帝彩云间,千里江陵一日还。
两岸猿声啼不住,轻舟已过万重山。
【名家评价】张揔《唐风怀》:汉仪曰:境之所到,笔即追之,有声有情,腕疑神助,此真天才也。
【轻舟】人生的轻舟已经驶过万重山了,往前是坦途吗?未必。但是没关系,没关系,“已”过万重山。
送杜少府之任蜀州
唐·王勃
城阙辅三秦,风烟望五津。
与君离别意,同是宦游人。
海内存知己,天涯若比邻。
无为在歧路,儿女共沾巾。
【名家评价】明代顾璘《批点唐音》:读《送卢主簿》并《白下驿》及此诗,乃知初唐所以盛,晚唐所以衰。清代王尧衢《古唐诗合解》:此等诗气格浑成,不以景物取妍,具初唐之风骨。
【离别】离别总是让人伤感,乐观的人总是觉得即是结束也是开始,干了朋友的这杯酒,祝福下一站拥有更多的精彩。
春望
唐·杜甫
国破山河在,城春草木深。
感时花溅泪,恨别鸟惊心。
烽火连三月,家书抵万金。
白头搔更短,浑欲不胜簪。
【名家评价】清·纪昀:语语沉着,无一毫做作,而自然深至。
【家国】我跟杜子美的心一起滴血,欲哭无泪的感觉。
题破山寺后禅院
唐·常建
清晨入古寺,初日照高林。
曲径通幽处,禅房花木深。
山光悦鸟性,潭影空人心。
万籁此都寂,但余钟磬音。
【名家评价】明末清初冯班:字字入神。(《瀛奎律髓汇评》)明末清初邢昉:诗家幽境,常尉臻极,此犹是其古体也。(《唐风定》)
【清幽】林木深处是禅房,那份宁静那份脱俗,纵使在红尘中,也让人心生出世之心。
望月怀远
唐·张九龄
海上生明月,天涯共此时。
情人怨遥夜,竟夕起相思。
灭烛怜光满,披衣觉露滋。
不堪盈手赠,还寝梦佳期。
【名家评价】《五七言今体诗钞》:是五律中《离骚》。
【月升】大海吞吐出明月,明月静静升起,像一场神圣的仪式。
登高
唐·杜甫
风急天高猿啸哀,渚清沙白鸟飞回。
无边落木萧萧下,不尽长江滚滚来。
万里悲秋常作客,百年多病独登台。
艰难苦恨繁霜鬓,潦倒新停浊酒杯。
【名家评价】清代杨伦《杜诗镜铨》:高浑一气,古今独步,当为杜集七言律诗第一。
【悲凉】去江边看十分钟滚滚江水,去树林里听万物萧瑟,树木群起而浩瀚凋零,你就直接懂了杜甫的心。
黄鹤楼
唐·崔颢
昔人已乘黄鹤去,此地空余黄鹤楼。
黄鹤一去不复返,白云千载空悠悠。
晴川历历汉阳树,芳草萋萋鹦鹉洲。
日暮乡关何处是?烟波江上使人愁。
【名家评价】南宋·严羽《沧浪诗话》:唐人七言律诗,当以崔颢《黄鹤楼》为第一。明·高棅《批点唐诗正声》:气格音调,千载独步。
【黄鹤楼】黄鹤走了,崔颢不在了,黄鹤楼却一直留在心间。
赠卫八处士
唐·杜甫
人生不相见,动如参与商。
今夕复何夕,共此灯烛光。
少壮能几时,鬓发各已苍。
访旧半为鬼,惊呼热中肠。
焉知二十载,重上君子堂。
昔别君未婚,儿女忽成行。
怡然敬父执,问我来何方。
问答乃未已,驱儿罗酒浆。
夜雨剪春韭,新炊间黄粱。
主称会面难,一举累十觞。
十觞亦不醉,感子故意长。
明日隔山岳,世事两茫茫。
【名家评价】《杜臆》:信手写去,意尽而止,空灵宛畅,曲尽其妙。
【伤感】以为是古时候的伤感,现在有微信和视频。然而,相见的心情和机缘,从古至今都是一样的。
白雪歌送武判官归京
唐·岑参
北风卷地白草折,胡天八月即飞雪。
忽如一夜春风来,千树万树梨花开。
散入珠帘湿罗幕,狐裘不暖锦衾薄。
将军角弓不得控,都护铁衣冷难着。
瀚海阑干百丈冰,愁云惨淡万里凝。
中军置酒饮归客,胡琴琵琶与羌笛。
纷纷暮雪下辕门,风掣红旗冻不翻。
轮台东门送君去,去时雪满天山路。
山回路转不见君,雪上空留马行处。
【名家评价】清·方东树《昭昧詹言》:岑嘉州《白雪歌送武判官归京》奇峭。起飒爽,“忽如”六句,奇气奇情逸发,令人心神一快。须日诵一过,心摹而力追之。
【超逸想象】瞬间就可以脑补漫山遍野的梨花,太美了!
登幽州台歌
唐·陈子昂
前不见古人,后不见来者。
念天地之悠悠,独怆然而涕下!
【名家评价】明末清初黄周星《唐诗快》卷二:胸中自有万古,眼底更无一人。古今诗人多矣,从未有道及此者。此二十二字,真可以泣鬼。
【孤独】时间是无尽的,渺小的我短暂而一生,哪怕是悟出了什么道理,也无人可懂,无人可诉,唯有孤独相伴,孑然一身。
将进酒
唐·李白
君不见黄河之水天上来,
奔流到海不复回。
君不见高堂明镜悲白发,
朝如青丝暮成雪。
人生得意须尽欢,莫使金樽空对月。
天生我材必有用,千金散尽还复来。
烹羊宰牛且为乐,会须一饮三百杯。
岑夫子,丹丘生,将进酒,杯莫停。
与君歌一曲,请君为我倾耳听。
钟鼓馔玉不足贵,但愿长醉不愿醒。
古来圣贤皆寂寞,惟有饮者留其名。
陈王昔时宴平乐,斗酒十千恣欢谑。
主人何为言少钱,径须沽取对君酌。
五花马、千金裘,
呼儿将出换美酒,与尔同销万古愁。
【名家评价】明代徐增:太白此歌,最为豪放,才气干古无双。(《而庵说唐诗》)
【豪情】人生有许多不如意,能够快乐的时候就应该尽情地享受那一刻。
清平调·其一
唐·李白
云想衣裳花想容,春风拂槛露华浓。
若非群玉山头见,会向瑶台月下逢。
【名家评价】清代沈谦《填词杂说》:“云想衣裳花想容”,此太白佳境。
【美人】第一个以美人比花的人,才是真天才。
游子吟
唐·孟郊
慈母手中线,游子身上衣。
临行密密缝,意恐迟迟归。
谁言寸草心,报得三春晖。
【名家评价】明代邢昉《唐风定》:仁孝蔼蔼,万古如新。
【母爱】每一次想起母亲,眼中的泪就固执地跑了出来。
长干行·君家何处住
唐·崔颢
君家何处住,妾住在横塘。
停船暂借问,或恐是同乡。
【名家评价】《历代诗发》:一问一答,婉款真朴,居然乐府古制。
【遇见】男人遇到真爱时第一反应是胆怯,女人遇到真爱的第一反应是勇敢。
送元二使安西
唐·王维
渭城朝雨浥轻尘,客舍青青柳色新。
劝君更尽一杯酒,西出阳关无故人。
【名家评价】明代敖英《唐诗绝句类选》:唐人别诗,此为绝唱。
【送友人】每个人都行走在自己的路上,都有着自己的聚散。
锦瑟
唐·李商隐
锦瑟无端五十弦,一弦一柱思华年。
庄生晓梦迷蝴蝶,望帝春心托杜鹃。
沧海月明珠有泪,蓝田日暖玉生烟。
此情可待成追忆,只是当时已惘然。
【名家评价】清代姜炳璋《选玉溪生补说》:心华结撰,工巧天成,不假一毫凑泊。
【追忆】人间有多少芳华,就有多少遗憾,一个人经历了许多事情就会发现,青春真的是一个人拥有过的最美好的东西。
雁门太守行
唐·李贺
黑云压城城欲摧,甲光向日金鳞开。
角声满天秋色里,塞上燕脂凝夜紫。
半卷红旗临易水,霜重鼓寒声不起。
报君黄金台上意,提携玉龙为君死。
【名家评价】清·沈德潜《唐诗别裁》:字字锤炼而成,昌谷集中定推老成之作。
【震撼】每次一到下大雨乌云压顶就会不由自主的想到这句诗。
江南春
唐·杜牧
千里莺啼绿映红,水村山郭酒旗风。
南朝四百八十寺,多少楼台烟雨中。
【人间春】清代范大士《历代诗发》:“四百八十寺”,无景不收入结句,包罗万象,真天地间惊人语也。
【江南】江南不仅有如画的风景,还有沧桑的历史。
一、房地产相关概念
(一) 房地产概念:房地产又称不动产,是指土地、建筑物及固着在土地、建筑物上不可分离的部分.其中不可分离的部分,如树木、水暖设备等.房地产有三种存在形式:
1、 单纯的土地;
2、 单纯的建筑物;
3、 土地与建筑物结合的房产;
(二) 房地产市场的分类:根据房地产开发,销售与消费过程特点,可以将房地产市场分为:
1、 一级市场(土地市场);
2、 二级市场(房地产增量房市场);
3、 三级市场(房地产存量房市场);
(三) 土地及土地所有权:
1、 土地的概念:一般是指地面、地面以下和地面以上一定范围的空间.现实生活中的土地是人为划分的,具有特定面积范围的地域.
2、 土地公有制:根据宪法规定,土地所有权分全民所有(国有土地)与集体土地所有权,集体转为国有才能转让,个人和单位只拥有土地的使用权;
3、 土地使用权在期限内可以出租、转让、抵押.
(四) 土地使用权获取方式:
1、 土地使用权出让:
指国家将国有土地使用权在一定年限内出让给土地使用者,由土地使用者向国家支付土地使用权出让金的行为;
土地使用权出让采用招标、拍卖、双方协议三种方式;六类用地(商业、娱乐、旅游、金融、服务业、商品房)采用招标、拍卖的方式;旧城改造采用双方协议的方式;
国有土地使用权出让年限:商业、旅游、娱乐用地40年;工业用地、科教、文体、卫生、体育用地、综合或其他用地50年;住房用地70年;房地产的使用权年限对价值有直接影响.
2、 土地使用权划拨:
指县级以上人民政府依法批准,在土地使用者缴纳补偿、安置等费用后将该幅土地交付其使用,或者将土地使用权无偿交付给土地使用者使用的行为;
以划拨方式取得土地使用权的,除法律、行政法规另有规定外,没有使用期限的限制;
下列建设用地的土地使用权,确属必须的,可由县级以上人民政府依法批准划拨: 国家机关用地和军事用地;
城市基础设施用地和公益事业用地;国家重点扶持的能源、交通、水利等项目用地;法律、行政法规规定的其他用地;
(五) 建筑概念
1、 建筑:建筑物和构筑物的总称;
2、 狭义建筑物:指各类房屋,构筑物如树木、电梯、水暖设备等;
3、 合格建筑物的标准:适用、经济、美观;
适用:安全、防水、隔声、保温隔热、采光、功能齐全、空间格局合理;
经济:购置价格合理、维修保养、采暖、空调能耗不高;
美观:建筑造型、色彩美感、与环境协调;
(六) 物业概念
1、 物业:广义的物业就是房地产,狭义的物业,包括各类房屋及其附属的设备、设施和相关场地;
各类房屋:可以是建筑群,如住宅小区,也可以是一幢住宅;附属的设备、设施和相关场地:是指与上述建筑物相配套的室内外各类设施、市政公用设施、道路交通等;
二、房屋建筑常识
1、 容积率:
总建筑面积与总用地面积的比值, 反映土地利用程度、使用强度及其经济性的技术经济指标;
容积率=建筑总面积÷用地面积;
一般来讲:普通住宅≥1.0;非普通住宅<1.0;
2、 建筑密度:
项目用地范围内各种建筑用地面积总和占总用地面积的比例.也可以建筑物基底总面积÷总用地面积,反映建筑用地范围内的空地率和建筑物的密集程度;
3、 绿化率:
指项目规划用地范围内绿化用地总面积占规划建设用地面积的比例;
4、 绿地率:
描述的是居住区用地范围内各类绿地的总和与居住区用地的比率;
5、 层高:
住宅高度以“层”为单位计算,是指下层地板面或楼板面到上层楼层面之间的距离.
6、 净高:
指下层地板面或楼板上表面到上层楼板下表面之间的距离.净高=层高-楼板厚度;
7、 进深:
指住宅的长度,指一间独立的房屋或一幢居住建筑从前墙皮到后墙皮之间的实际长度,为了保证住宅具有良好的自然采光和通风条件,目前我国大量城镇住宅房间的进深一般都限定在5米左右,不能任意扩大.住宅进深过大,就是住宅成为狭长型,距离门窗较远的室内空间自然光线不足,但进深大的住宅可以有效的节约用地;
8、 开间:
指住宅的宽度,指一间房屋内一面墙皮之间到另一面墙皮之间的实际距离,住宅的开间在住宅设计上有严格的规定;较小的开间范围,可缩短楼板的层间跨度,增强住宅结构的整体性、稳定性和抗震性;
9、 建筑面积:
指建筑物外墙外围所围成空间的水平面积.包含了房屋居住可用的实用面积、墙体柱体占地面积、楼梯走道面积、其它公摊面积等;
10、公摊面积:
指建筑物的楼梯、电梯井、外墙、公共门厅、走道、设备间、首层大堂及小区内其它一些配套设施的面积总和;
11、使用面积:
它是建筑面积扣除公摊面积、及墙体柱体所占用的面积后的直接供住户生活的净使用面积,俗称地砖面积;
12、占地面积:
建筑物基底及其功能需要占用的面积,也叫红线面积;
13、套内建筑面积=套内使用面积+套内墙体面积+阳台建筑面积(露台面积按半面积计算);
14、建筑面积=套内建筑面积+公摊面积;
15、销售面积=套内建筑面积+公摊的公用建筑面积;商品房按“套”或“单元”出售;
16、公用建筑面积=整幢建筑面积-套内建筑面积和-不应分摊的建筑面积;
17、公摊的公用建筑面积=套内建筑面积×公用建筑面积分摊系数;
18、公用建筑面积分摊系数:公用建筑面积÷套内建筑面积之和;
19、分摊的公用建筑面积包括:大堂、公共大厅、走廊、过道、共厕、电梯前厅、楼梯间、电梯井、电梯机房、垃圾道、管道井、消防控制室、消防通道、水泵房、水箱间、冷冻机房、配电室、煤气调压室、空调房、电梯工休息室、值班警卫室、卫星接收机房等;
20、不记入的公摊面积:仓库、车库、车道、供暖锅炉房、人防地下室、物管用房、售房单位自营、自用房屋、多幢房屋服务的警卫室;
21、实用率=套内建筑面积÷住宅建筑面积;
22、使用率=使用面积÷住宅面积,一般高层塔楼在72%至75%之间,板楼在78%至80%之间;小于实用率;
23、地下室:
指房间地面低于室外地平面的高度超过该房间净高的1/2;
24、半地下室:
指房间地面低于室外地平面的高度超过该房间净高的1/3,且不超过1/2;
25、阳台:
供居住者进行室外活动/晾晒衣物等的空间;
26、平台:
供居住者进行室外活动的上屋面或由住宅底层地面伸出室外的部分;
27、标准层:
指平面布置相同的住宅楼层;
28、中间层:
底层和最高住户入口层之间的中间楼层.
三、房地产行业术语:
(一)室内设施:
1、 四气:暖气、煤气、热水器、空调;
2、 全齐:家电(电视、冰箱、洗衣机)和家具(床、衣柜、沙发、电视柜、整体橱柜);
(二)装修分类:
1、 毛 坯:水泥地、水泥墙;
2、 简 装 修:地砖、白墙;
3、 中 装 修:大地砖、木地板;
4、 精 装 修:木地板、包门、包窗;
5、 豪华装修:装修前卫、用料讲究;
(三)户型及面积:
1、 一居室:公房面积:30-50平米;商品房面积:40-60平米;
2、 二居室:公房面积:50-70平米;商品房面积:70-100平米;
3、 三居室:公房面积:60-90平米;商品房面积:110-150平米;
4、 越层:房屋使用层跳跃的房型,如一越二,三越四等;
5、 错层:房屋内地面错落的房型;
(四) 楼层及朝向:
1、 楼层描述,多层楼房为6层,房屋所在层3层,简写3/6;
优劣:
楼房中多层楼有“金三银四”的说法,即六层楼三层最佳,四层次之;
高层楼中楼层较高的价位也较高,但二手房中顶楼除外;
2、 朝向(以主卧室窗户所对应的方向为准)多层楼朝向多为南北正向或东西侧向;
高层板楼与多层楼的朝向相似;
高层塔楼多为四角,其朝向多为东南、西南、东北、西北及各种斜向;
四、房地产特性:
(一) 不可移动性;
(二) 独一无二性;
(三) 寿命长久性;
(四) 数量有限性;
(五) 用途多样性;
(六) 相互影响性;
(七) 受政策\市场影响大;
(八) 标的高;
(九) 变现慢;
(十)保值增值性;
五、房屋分类及详解:
(一) 按住宅层数划分:
1、 低层:层数为1-3层;
2、 多层:层数为4-6层;
3、 中高层:层数为7-9层;
4、 高层:10层以上;
(二) 按使用性质划分:
1、 生产性建筑;厂房、车间等;
2、 非生产性建筑;
居住建筑:如住宅等;
公共建筑:如办公、文体、交通等;
(三) 按结构类型划分:
1、 砖混结构:这类建筑物的竖向承重构件采用砖墙或砖柱,水平承重构件采用钢筋混凝土楼板、屋顶板。这种结构房间小、层数低,一般用于多层建筑中;
2、 框架结构:这种结构的承重部分是由钢筋混凝土或钢材制作的梁、板、柱形成的骨架,可用于小高层建筑;
3、 钢筋混凝土剪力墙结构; 这类建筑物的竖向承重构件和水平承重构件均采用钢筋混凝土制作,多用于高层建筑
4、 空间结构:包括:县索结构、网架结构、壳体结构等。如体育馆、大剧院等;
(四) 按建筑材料划分:
1、 砖混:红砖与水泥;承重的主要构件是用砖和混凝土建造的;
2、 钢混:浇注、最为结实;承重的主要构件是用钢、钢筋混凝土建造的;
3、 预制板:预制的混凝土板与钢筋;承重的主要构件是用钢筋混凝土建造的.包括薄壳结构、大模板现浇结构及使用滑模、升板等建造的钢筋混凝土结构的建筑物;
(五) 按楼型外观划分:
1、 板楼:
是指由多个住宅单元组合而成,每单元均设有楼梯或楼梯、电梯皆有的住宅;每个单元用自己单独的楼梯、电梯;
板楼基本形式:多 层:6层以下;小高层:7-12层以内;高层:13-18层;超高层:18层以上甚至更高;
2、 塔楼:
主要是指以共用楼梯、电梯为核心布置多套住房的高层住宅.通俗地说,塔楼以电梯、楼梯为布局核心,上到楼层之后,向四面走可以直接进入户内;
塔楼基本形式:蝶型、品字型、Z字型、塔板结合、十字型、方形塔楼;
补充:筒子楼:卫生间、厨房都集体公用;
写字楼:办公使用;
(六) 按房屋户型划分:
1、 一居室;一卧室;
2、 二居室;二卧室;
3、 三居室;三卧室;
4、 多居室;多卧室;
5、 错 层:主要指的是一套房子不处于同一平面,即房内的厅、卧、卫、厨、阳台处于几个高度不同的平面上。
6、 跃 层:跃层住宅是一套住宅占两个楼层,有内部楼梯联系上下层;一般在首层安排起居室、厨房、餐厅、卫生间,最好有一间卧室,二层安排卧室、书房和卫生间等。
7、 复 式:复式住宅在概念上是一层,但层高较普通的住宅高,可在局部掏出夹层,安排卧室或书房等内容,用楼梯联系上下。其目的是提高住宅空间利用率。
(七) 按产权性质划分:
1、 商品房:指各房地产开发公司投资兴建的,以赢利为目的,按市场规律经营的房子;
分类:
(1) 普通住宅:
容积率1.0(含1.0)以上;
建筑面积在140平方米以下;
成交价低于同级别土地住房平均交易价格1.2倍以下;
(2) 非普通住宅:
甲宅; 24小时电梯、保安,物业费较高;
公寓;商品房、24小时电梯、保安、24小时管道热水;
别墅:(独栋、联排、双拼、叠拼)一般较为偏远;
(3) 商品房销售资质:商品房销售须具备以下五证:《国有土地使用证》、《建设用地规划可证》、《建设工程规划许可证》、《建筑工程施工许可证》、《商品房预销售许可证》;
2、 已购公房:
普通公房: 指按照国家房改有关售房政策,单位职工按成本价、标准价或优惠价购买的原产权属于单位的公有住房.职工根据国家政策,按成本价或标准价购买的由单位建设的安居工程和集资合作建设的住房;
央产房: 指按照国家房改有关售房政策,单位职工按成本价、标准价或优惠价购买的原产权属于中央在京单位,国有大中型企业及国务院各部委机关的公有住房.职工根据国家政策,按成本价或标准价购买的由中央在京单位建设的安居工程住房和集资合作建设的住房;
3、 经济适用房:
定义:以中低收入家庭住房困难户为供应对象,并按国家住宅建设标准建造的,具有社会保障性质的普通住宅.土地供应原则上实行划拨方式,住房设计要体现经济适用美观的原则,使用功能上要满足居民的基本生活需要.经济适用房的供应价格由经济适用房建设的行政主管部门会同物价部门按建设成本确定.
只拥有房屋所有权:表现形式为红色防伪制材的“房屋产权证”并在第一页上部加盖经济适用住房印章或按经济适用房管理;
4、 使用权房:使用权房是计划经济和住房分配体制下的产物,俗称公房。该房屋的产权属于国家或集体,不过,这项使用权是从所有权分离出来的一项独立的财产权,允许使用权人(公房承租人)在一定范围内通过一定方式转让或交换房屋使用权,所获收益扣除应缴税费后归使用权人所有。
5、 私产平房:也称私有住宅,是个人或家庭购买和建造的住宅;在农村,农民的住宅基本上是自建私有住宅。公有住房通过住宅消费市场出售给个人和家庭,也就转为私有住宅。
6、 小产权房:是指在农村集体土地上建设的房屋,未缴纳土地出让金等费用,国家房管部门不予颁发房产证。“小产权房”不是法律概念,是人们在社会实践中形成的一种约定俗成的称谓。该类房没有国家发放的土地使用证和预售许可证,购房合同在国土房管局不会给予备案,买卖此类房屋不能真正享有合法权益。按照国家的相关要求,“小产权房”不得确权发证,不受法律保护。
声明:本文由入驻焦点开放平台的作者撰写,除焦点官方账号外,观点仅代表作者本人,不代表焦点立场。


