售楼处24小时VIP电话:400-8673-567南门兴业坊位于古城核心,拥有优质户型和精工品质,临近地铁、商圈,适合自住、办公或投资,展现古城与现代生活的融合。
南门兴业坊,坐落于南门泰华旁、百米4号线&5号线地铁、紧邻11万方金地中心,此次精工臻品样板一经开放,便以其优质户型和精工品质,吸引了苏州当地及周边城市众多购房者的目光。
南门兴业坊 售楼处电话最新发布:400-8673-567售楼处电话:400-8673-567【 售楼处预约热线】欢迎致电售楼处电话:售楼处地址:400-8673-567
✨楼盘最新介绍:备案价、折扣、学区、地铁、交通、户型图、优缺点、得房率、优惠活动、小区图片、开盘时间、交房时间、周边配套、最新详情等咨询。
✅如需了解最新房源信息_在售房源价格_请拨打上方售楼部电话!

南门兴业坊建面约45--105㎡户型,无论是自住还是办公、投资,都是非常合适的选择,内部以小见大用造园手法于方寸之间再造天地,与外界城市景观连成有机整体。古城芯泰华旁、繁华地段、便捷交通,在此您不仅可以享受都市繁华的便利,更能通过用心的产品设计,洞察新时代消费人群的内在需求,补偿都市中“未被满足的心情”。它对于社区与城市的空间理解更开放、更自然、更完整,一方面以边界消融带来新的场景体验,一方面又始终相信好的作品能与感官对话,在重拾生活真意的道路上,遇见了那群真正懂得生活、回归自然、回归城芯的人。
南门兴业坊 售楼处电话最新发布:400-8673-567

南门兴业坊,总建筑面积约 3.9万 平方米。项目一层为浸入式情景商铺,主力面积约 40—60平方米 ,二到五层为臻品公寓,主力面积约 43--55平方米 ,六楼为类住宅舒享公寓,面积约 45到 1 05平方米不等 。项目整体规划公寓 38 6套,商铺86套。回字组团,四水归堂,五组雅筑,六层视野,在盘门与沧浪亭轴线之间的新东方建筑,延续了粉墙黛瓦的天际线,为古城新添璀璨一章。心犹归园田居的梦想,重回古城风雅繁华的中央。

南门兴业坊 售楼处电话最新发布:400-8673-567
项目特点:姑苏古城区内,地处南门核芯商圈,周围多景点环伺,承袭姑苏古城情怀;地铁【南门站】,轨交四、五号线交汇处,靠近人民路主干道,交通便利,配套成熟。苏州古城区近15年未有类似全新项目供应,项目的面市必将在市场上产生强烈的共鸣。古城区新房项目稀缺,【南门·兴业坊】项目是百万级入住古城区的最佳机会。

对于姑苏的美好憧憬,源于对根脉的向往。
南门兴业坊 售楼处电话最新发布:400-8673-567

网络示意图
择址南门,因兴业坊而愈发美满。承载全城众多期待目光,在历经漫长打磨后, 南门兴业坊盛大开放,一场关于古城回归与美学未来的艺术盛宴,在南门兴业坊营销中心华丽上演。

南门兴业坊
苏州古护城河内稀缺珍藏级公寓
项目均价24000-26000元/㎡
首开价22000-24000元/㎡
开发商:苏州沧浪建设
物业:上海金地物业
物业费:5.91元/平/月
均价:24000~26000元/平
总价:100-130万/套
主力在售户型:43 平、52平
户型结构:1房1卫1厨1厅
贷款银行:张家港农村商业银行苏州分行
项目地址:苏州市姑苏区西二路与兴业路交叉口
总栋数:1栋
总户数:386户
产权年限:40年
建筑类型:多层
占地面积:8959平米
建筑面积:39057平米
地上建筑面积:25796平米
地下建筑面积:13452平米
商业面积:3908平米
公寓面积:21215平米
容积率:2.87
绿化率:10%
总车位数:194
标准车位数:36
机械车位:158
得房率约:75%
装修标准:精装修
南门兴业坊 售楼处电话最新发布:400-8673-567


南门兴业坊 售楼处电话最新发布:400-8673-567


南门兴业坊 售楼处电话最新发布:400-8673-567


南门兴业坊 售楼处电话最新发布:400-8673-567


南门兴业坊 售楼处电话最新发布:400-8673-567

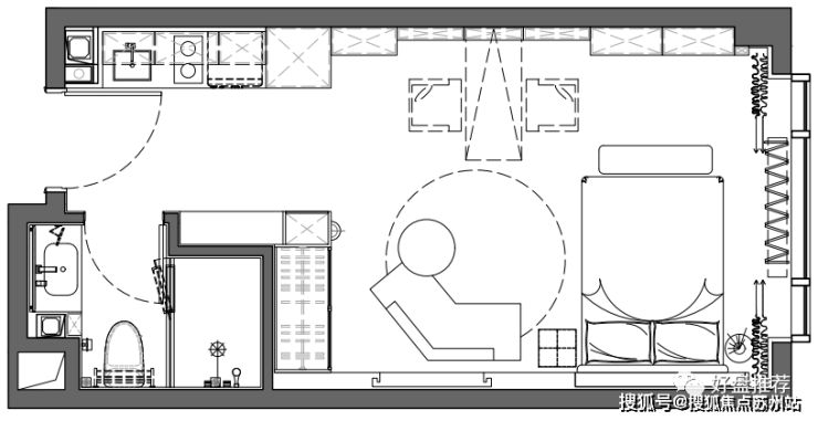
项目主力户型:
A户型 建筑面积约:52㎡

B户型 建筑面积约:43㎡








兴业坊
➨售楼处24小时VIP电话:400-8673-567√√售楼中心热线400-8673-567★本电话为开发商提供线上预约看房售楼电话,★来电可了解楼盘最新动态,项目全面介绍(包含官方最新发布:在线预约看房丨在售房价优惠丨户型面积房源丨交房时间丨交通地铁丨商业配套丨教育资源丨小高层洋房丨独栋别墅丨联排合院丨商业别墅丨得房率丨容积率丨小区环境丨优缺点分析丨楼盘测评丨在售户型图丨项目介绍丨最新房源丨周边配套丨详细解答丨一对一热情讲解〢区域板块等信息!★郑重承诺:由开发商旗下销售团队全程营销策划,房源信息真实有效!如果您想了解更多楼盘详情,欢迎提前预约拨打官方售楼处电话400 8787 554√√√(已认证)
VIP贵宾置业〢欢迎来电咨询〢品鉴!