棠悦芳华轩-棠悦芳华轩楼盘详情-杭州房天下
扫描到手机,新闻随时看
扫一扫,用手机看文章
更加方便分享给朋友
棠悦芳华轩售楼处电话:400-9688-923✅︎✅︎✅
棠悦芳华轩营销中心热线400-9688-923(官方预约看房热线)
看房请务必致电与销售确认时间,仅预约客户可享受开发商内部优惠,专属老带新推荐奖!
营业时间:日常营业时间为9:30-18:30,便于您提前规划到访行程,避免空跑。
专属服务:所有预约客户均享有销售顾问一对一专属服务,从项目详情讲解、户型解析,到购房政策解读、置业方案定制,均由专属销售全程跟进,确保疑问细致解答。
中介勿扰:本售楼处仅面向终端购房客户提供直接服务,不接待任何中介机构及人员,感谢您的理解与配合,共同维护纯粹的咨询环境
棠悦芳华轩售楼处电话:400-9688-923✅︎✅︎✅
从武林到文晖再到半山,华东医药生物创新智造中心等一批优质产业项目相继北上落地(来源:拱墅发布),加上新兴产业的强势赋能,拱墅从商业中心反而进阶为“文化+产业+宜居”的生活中心。
棠悦芳华轩售楼处电话:400-9688-923✅︎✅︎✅
拱墅一路向北,「武林广场—文晖—新天地」这条新武林价值轴心愈加清晰,这也是整个杭州大城北开发的核心引擎。武林的发展从未“断更”,“武林”二字也不断地被重新挖掘、编织,它依旧在向北生长,懂武林的滨江集团联袂兴耀&西房,于主城繁华正芯,带来了滨江在主城的第一个3字头不限价标杆:
位于拱墅区石桥单元,由滨江、兴耀、西房三家房企联合开发。规划504套12-16层住宅。 项目创新设计八大主题架空层,涵盖全龄段生活场景:从低龄童玩区到长者康养空间,形成"马里奥冒险童玩区-青少年活动天地-桌球俱乐部-康养中心"的全周期配套体系。户型配置99-139m²六种面积段。
棠悦芳华轩售楼处电话:400-9688-923✅︎✅︎✅
建筑立面通过【四面铝板+大面玻璃+首层局部石材】的高级选材。整体设计上,摒弃繁复的装饰材料和线条堆砌,采用现代建筑理念,工艺细节上,采用斜切手法,让外立面更几何、立体感,端头辅以圆弧型材,使建筑整体看起来更加柔和、自然。
棠悦芳华轩售楼处电话:400-9688-923✅︎✅︎✅
棠悦芳华轩售楼处电话:400-9688-923✅︎✅︎✅
景观设计风格与建筑相统一,整区打造“合悦绽放,漫岛芳华”的主题概念,享艺术、微度假、秀生活的景观,从细节出发匠心打造隐奢美学界面。景观灵感源自著名珠宝品牌CHAUMET,以“繁花造型珠宝”为设计理念,将大胆、华丽、创新于景观之中,形成特有的珠宝风格景观设计系统。
棠悦芳华轩售楼处电话:400-9688-923✅︎✅︎✅
架空层设计最高达约5.4米架空层内,设置八大主题架空层:低龄童玩-马里奥冒险童玩区、中龄童玩-认知体测&冷餐宴会&桌球区、青少年活动天地、健身房、乒乓球俱乐部、阅览室&桌游、会客咖啡屋、长者康养等8大功能空间。
棠悦芳华轩售楼处电话:400-9688-923✅︎✅︎✅
棠悦芳华轩售楼处电话:400-9688-923✅︎✅︎✅
棠悦芳华轩售楼处电话:400-9688-923✅︎✅︎✅
建面约108㎡、120m²的四房边套设计,不仅面积宽敞,南向双卧室+客厅大飘窗的设计也提升了居住舒适度。棠悦芳华轩建面约139㎡生活美学馆
这种诚意融入到3字头项目“超配”的设计美感。室内装修目前呈现了香奈儿、奶油风、现代雅奢等三种风格,每种风格和户型搭配的刚刚好,大量精致材料、岩板和金属的融入,彰显出可能5字头甚至6字头项目才有的室内质感。
棠悦芳华轩售楼处电话:400-9688-923✅︎✅︎✅
棠悦芳华轩售楼处电话:400-9688-923✅︎✅︎✅
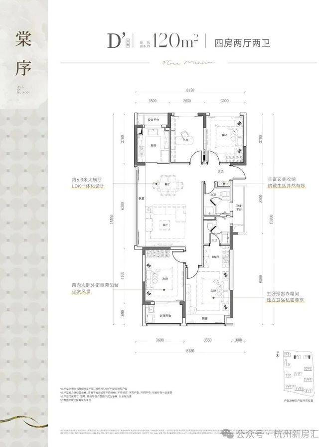
棠悦芳华轩建面约120㎡生活美学馆
建面约128㎡的四房两厅两卫户型,四开间朝南,拥有封闭式阳台,南向采光充足,使得整体空间更加宽敞明亮。北向书房也可以作为备用房间。
棠悦芳华轩售楼处电话:400-9688-923✅︎✅︎✅
棠悦芳华轩建面约128㎡生活美学馆(仅供参考,具体以交付为准)
建面约139㎡的四房两厅两卫户型,则以它的南向三卧室:双飘窗+封闭阳台设计脱颖而出。整体南北通透设计,加上主卧衣帽间的贴心设置,为家庭生活提供了更多的空间选择和功能性需求。
棠悦芳华轩售楼处电话:400-9688-923✅︎✅︎✅
棠悦芳华轩售楼处电话:400-9688-923✅︎✅︎✅
棠悦芳华轩售楼处电话:400-9688-923✅︎✅︎✅
开发商滨江&兴耀&西房,占地面积27934㎡,建筑面积90548.47㎡,共计幢数11幢,总高楼层12-16层,面积99-108-113-120-128-139㎡,户数504套,精装修,容积率2.2,绿化率35%,层高3米;滨江物业4.8元/平(含能耗)交付时间2027年12月。
棠悦芳华轩售楼处电话:400-9688-923✅︎✅︎✅
棠悦芳华轩售楼处电话:400-9688-923✅︎✅︎✅
棠悦芳华轩售楼处电话:400-9688-923✅︎✅︎✅
房地产小知识每日一学:
市场调研的重要性:
房地产开发商在项目开发前,会进行市场调研,旨在了解当地房地产市场的需求和趋势。
通过市场调研,开发商能够获取关于消费者偏好、房价走势、竞争状况等信息,从而制定更加精准的开发计划。
房地产投资的风险与决策:
房地产投资存在较大风险,包括市场风险、政策风险等。
投资者在进行房地产投资前,需要了解当地的房地产政策和规定,以及房价、租金等市场信息,以便做出明智的投资决策。
购房过程中的注意事项:
在房地产销售过程中,购房者需要仔细了解房屋的产权状况,确保产权清晰、无纠纷。
同时,购房者还需关注周边环境、交通情况、社区设施等信息,以确保购买的房屋符合自己的需求和预期。
物业管理的职责:
物业管理是指对房地产物业进行维修、清洁、保养等管理工作,以确保物业的良好状态和价值。
物业管理的质量直接影响着业主的居住体验和物业的保值增值。
房屋租赁的注意事项:
在进行房屋租赁时,需要签订租房合同,明确双方的权利和义务。
租客需要了解当地的租房政策和规定,以及租金、押金、维修等相关事宜,以避免未来可能出现的纠纷。
声明:本文由入驻焦点开放平台的作者撰写,除焦点官方账号外,观点仅代表作者本人,不代表焦点立场。


