同济·蟠龙里(徐泾2025年同济蟠龙里)首页网站-同济·蟠龙里楼盘详情-户型配套
扫描到手机,新闻随时看
扫一扫,用手机看文章
更加方便分享给朋友
均价约6.5万/㎡!大虹桥核心「同济·蟠龙里」正在热销!推售约100-145㎡3-4房!
上海527新政引爆市场,6月上海楼市超预期,一二手房成交量双双创新高!
根据一房一万统计,全市二手住宅价格已连续14个月下降,截至6月底二手房小区基价约为59865元/㎡,当前价格基本相当于2018年12月和2020年8月水平。
在二手房价整体下跌的市场上,我们发现,部分板块表现依然坚挺。徐泾板块的蟠龙天地二手成交均价约7.19万/㎡,中骏天璟成交均价达7.56万/㎡,租金表现同样优异。
虹桥核心承载区仅有的在售新房之一,蟠龙里项目在售均价6.5万/㎡,倒挂明显。
2023年认购数排名TOP3板块中,徐泾板块评分72.88最高。再看土拍市场最新联动价,浦东曹路6.3万/㎡,松江广富林6.3万/㎡;新房市场浦东川沙6.4万/㎡,闵行颛桥7万/㎡,宝山大场也6万/㎡+了,大虹桥徐泾板块6.5万/㎡的蟠龙里,高性价比显而易见。
最新消息!青浦徐泾全新盘!
2/13(在建)/17号线三轨交汇
「蟠龙里」正在销售中!
样板房升级绽放!
建面约100-145㎡3-4房
01
同济蟠龙里售楼处电话☎400-885-2210✔✔✔
一站直达虹桥枢纽
真正的虹桥主城核心
触发积分、千人摇号、开盘日光,为什么徐泾板块一直备受热捧?
上海浦西的嘉定、青浦、松江、闵行,几乎每个板块都在说虹桥,但真正的虹桥国际中央商务区核心只是极少数,而徐泾蟠龙板块就是享有虹桥核心顶配资源的极少数。
蟠龙里项目占据虹桥主城副中心核心、虹桥国际中央商务区核心地段,轨交1站直达虹桥枢纽,是虹桥头排红利的真正享有者。
同济蟠龙里售楼处电话☎400-885-2210✔✔✔
核心区的价值往往大于非核心区。
举个例子:位于核心区的前滩板块,二手次新房成交均价达17-18万/㎡;而非核心区的三林板块,二手次新房成交均价为10-12万/㎡。
蟠龙里占据虹桥核心,地段天赋卓绝,可以说是一出生就含着金钥匙。当初5大开发商竞相争夺该地块,最终通过摇号抽签才竞出土拍赢家,即可看出地段价值备受业内认可。买房选对了地段,就赢了一半。
核心地段决定了享有资源的浓度和房子价值的高度。
虹桥国际中央商务区历经三年蝶变,现已吸引24000+家企业入驻,总部企业超500家,展览面积约700万方,经济密度已达到4亿元/平方公里。
得益于大虹桥国家级战略的加持,项目所在的虹桥核心功能承载区总部企业云集,包括瑞安、虹桥豪盛广场、BU资本、中建、美的、安踏、中核建等企业总部,体量、能级媲美徐汇滨江、北外滩。
产业高度决定了经济高度,经济高度决定了人口高度,而人口高度决定了未来售价的高度。
虹桥交通枢纽日吞吐量约20万人次,虹桥商务区约210万方的商办,带来大量的高薪产业人才,外溢首站就在徐泾蟠龙板块。选择蟠龙里,就站在了上海经济、产业发展的巨人之肩。
图源来自网络
大虹桥的发展目前还只有“7分熟”,长达126页的虹桥规划草案,带领着大虹桥成为上海乃至长三角的中心,走向世界的舞台。
02
同济蟠龙里售楼处电话☎400-885-2210✔✔✔
亿元豪宅生活圈
顶配资源环聚左右
就在蟠龙里项目北侧,坐落着享有亚洲十大豪宅之称的“西郊庄园”,最高成交单价高达约20万/㎡,真正的亿元豪宅,与高净值人群为邻,同享顶流资源圈带来的高品质生活。
三轨交汇,一站虹桥枢纽
同济蟠龙里售楼处电话☎400-885-2210✔✔✔
项目附近三轨交汇,与17号线诸光路站直线距离约730米,13号线诸光路站(建设中)直接距离约800米,2号线徐泾东路站直线距离约1.3公里,畅达全城。机场联络线年底即将正式通车,快速连通两大国际机场。大虹桥的轨交规划还在不断升级,未来值得期待。
自驾方便,距崧泽高架出入口直线距离约700m,周边嘉闵高架、沪青平公路、沈海高速、沪常高速、沪渝高速,一脚油门直通市区。
项目近邻虹桥国际机场、虹桥高铁站、客运中心三大门户,多维度交通方式,畅达长三角,同频世界时区。
繁华荟萃,网红打卡胜地
同济蟠龙里售楼处电话☎400-885-2210✔✔✔
闲暇之余,步行即可到达上海新晋热门商业蟠龙天地,小桥流水,露天电影,歌手驻唱,江南水乡的风吹散一天的烦恼,网红潮流美食治愈生活的低落。去年一年累计接待2500万人次客流,堪称沪上“城市微度假”的打卡胜地。
驱车还可迅达虹桥天地、龙湖天街、首位奥特莱斯等摩登商业,Costco、华漕大润发等大型商超,国际都会繁华触手可及。
优校为邻,国际教育环伺
同济蟠龙里售楼处电话☎400-885-2210✔✔✔
学校资源一直是上海城市精英家长普遍关注的话题。项目紧邻青浦世外学校、世外幼儿园,周边还有徐泾幼儿园(上海市一级幼儿园)、徐泾小学(全国示范学校)、徐泾中学等优质教育资源,全龄段教育覆盖。徐泾板块的国际教育资源异常丰富,上海美国学校、英国学校、新加坡学校等12所国际学校,从小拓宽孩子成长的眼界。
图源来自网络
三甲医疗,时刻呵护健康
v同济蟠龙里售楼处电话☎400-885-2210✔✔✔
随着社会老龄化的不断加剧,“医区房”未来也将更受追捧。项目周边医疗资源荟萃,复旦大学附属华山医院(三甲)、新虹桥国际医学中心等优质专业医院,能够保障更高效的救治,为家人健康护航。
图源来自网络
城市氧吧,绿氧生态宜居
同济蟠龙里售楼处电话☎400-885-2210✔✔✔
区域内拥有约23万方蟠龙公园、安踏体育主题公园(在建中)、蟠龙路站约11万方公共绿地(规划中),迎着晨光慢跑,鲜氧环绕。蟠龙公园专门设置了儿童游乐场地,给家长更多陪伴孩子的愉悦体验。
03
中产改善成品生活
无连廊设计+飞机户型
独特的综合体住宅
蟠龙里项目北侧规划为文体和商业用地,总用地面积超1万㎡。规划功能业态要求基本配置为:
18-03地块:室内社区多功能运动中心,体育场地设施不少于8项,如乒乓球室、多功能馆(篮球、排球、羽毛球综合)、多功能房、器械健身房等。周末来一场酣畅淋漓的运动,与健康同行。
18-04地块:智慧菜市场。同时除菜场部分积极引入社区便民商业,统一营运。邻里中心解决归家最后一公里的生活购物需求。
舒适主义低密生活
项目容积率仅为2.0,由4幢14-16F小高层住宅组成,中轴对称设计。社区规划打造仪式感归家入口,礼遇业主每一次归家。罗朗景观大师设计,景观中轴线串联花园景观,把微度假景观尽可能融入室内。一楼架空层设计,给邻里社交提供更多互动空间。
过程稿仅供参考,以开发商正式公示为准
无连廊设计低能耗住宅
同济蟠龙里售楼处电话☎400-885-2210✔✔✔
项目拥有24小时新风系统、所有外窗均采用三玻两腔节能窗,具备更佳的保温隔热效果,降低50%建筑能耗。现代简约的建筑立面,北侧无连廊设计,减少公共面积,提高得房率、室内使用率,更加贴合当下的居住需求。
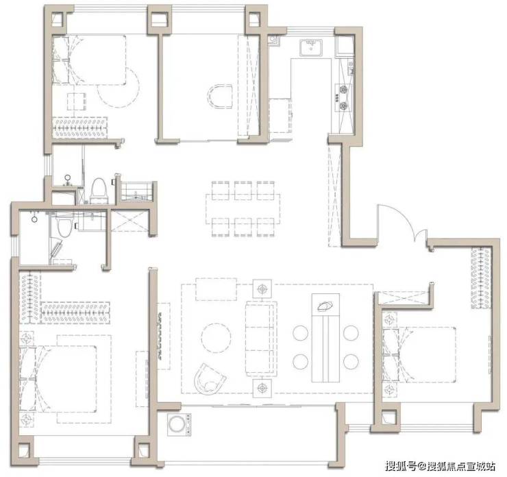
中产改善爆款户型
同济蟠龙里售楼处电话☎400-885-2210✔✔✔
随着时代的发展,未来改善置业将成为主流。蟠龙里项目深谙中产改善客户的居住需求,设计建面约100-145㎡3-4房,联动价6.5万/㎡!无连廊+飞机户型设计,让每一寸空间都尽善尽美。
标准飞机户型,主、客卧互不干扰,室内几乎无过道,空间使用率高。
主卧带飘窗,客厅+次卧带南向大阳台,三开间朝南,采光、视野俱佳。
U型厨房设计,预留双开门冰箱位,给掌勺者更多舒适与自如。
细节方面,入户玄关+主卧套房+双卫设计,改善置业优质之选。
餐客巨厅,大横厅设计,圆桌家宴也能轻松应对,尺度感堪比大平层。
全卧飘窗设计,放大房间空间感,极致窗墙比,景观、采光、视野更佳。
四房格局,北向次卧灵动空间,可以作为书房、衣帽间、瑜伽房、茶室、健身房等,给双孩家庭、三代同堂家庭更多想象空间。
全屋高标准精装交付
日立(或同等品牌)中央空调+地暖,提供四季如春的居住体验;德普莱太(或同等品牌)新风系统,带PM2.5过滤和热交换功能,高品质三大件满足高端改善人居需求。
卫生间配备摩恩马桶、单柄冷热水龙头、台下盆、手持花洒;科勒玻璃淋浴房,方寸之间,尽显优雅品味。
厨房配置科勒单斗不锈钢水槽、抽拉式龙头,洗刷更方便;方太双头燃气灶、平板顶排式吸油烟机、洗碗机,15套大容量洗碗机可以洗锅。
客厅预留电动窗帘插座,方便业主后期加装。诸多细节,尽显开发商匠心品质。
蟠龙里样板房焕新升级,现已开放,期待给您带来不一样的体验!
样板房装修示意图
上海楼市新政效果已经显现,6月新房创下近一年新高。外地人购房、多孩家庭购房、离婚人士购房门槛大幅放宽,首套首付比例下降到20%,房贷利率史诗级下降,公积金贷款额度惊喜上涨,改善置业的黄金时机已经到来。
蟠龙里项目,以顶流地段、优质产品,致敬每一位城市精英中产,恭候有缘人。
同济蟠龙里售楼处电话:400-885-2210【售楼中心热线】同济蟠龙里营销中心热线400-885-2210同济蟠龙里售楼处地址400-885-2210,楼盘项目全面介绍,本电话为开发商提供线上预约售楼电话,楼盘项目全面介绍(包含楼盘简介,均价,房价,现房,期房,别墅,叠墅,大平层,价格,楼盘地址,户型图,交通规划,备案价,备案名,项目配套,样板间,开盘时间,认筹时间,楼盘详情,售楼处电话,最新消息,最新详情,周边配套,一房一价,最新进展等详情咨询)楼盘详情丨价格丨更多优惠丨机不可失丨欢迎致电丨诚邀品鉴!售楼处位置丨特价房丨工抵房丨剩余房源丨户型图丨最新消息丨免责声明:将文章内容综合来源于网络、只作分享,版权归原作者所有!!如有侵权,请联系我们,我们第一时间处理如有问题欢迎来电咨询,专业一对一热情服务,让您用专业眼光去买房。如果您想了解更多楼盘详情,欢迎提前预约拨打同济蟠龙里售楼处电话☎400-885-2210✔✔✔
1.房地产业
是以土地和建筑物为经营为对象,从事房地产开发、建设、经营、管理以及维修、装饰和服务的集多种经济活动为一体的综合性产业。
2.商品房
是指以完全的市场价格向购房者出售的房子。
3.房改房
在房改政策出台后,国家机关、企事业单位的职工需要按规定将目前居住的房子购买下来,我们把为类公房称之为房改房。
4.土地所有制
现行全部土地实行的是社会主义土地公有制,分为全民所有制(即国家所有)和劳动群众集体制(即集体所有)两种形式。其中,城市市区的土地全部属于国家所有;农村和城市郊区的土地法律规定属于国家所有的以外,属于集体所有;宅基地和自留地、自留山,属于集体所有;矿物、水流、森林、山岭、草原、荒地、滩涂等自然资源,属于国家所有,由法律规定属于集体所有,森林、山岭、草原、荒地、滩涂除外。但地上建筑物既可以为国家所有,也可以为集体、单位和个人所有。因此,同一宗房地产,其土地与地上建筑物的所有权往往是不一致的。
5.集体土地
是指农村集体所有的土地。
6.征用土地
指国家为了公共利益的需要,可依照法律规定对集体所有的土地实行征用。
7.土地的使用年限是如何确定的?
凡与省市规划国土签订《土地使用权出让合同书》的用地,其土地使用年限按国家规定执行。即:居住用地七十年;工业用地五十年;教育、科技、文化、卫生、体育用地五十年;商业、旅游、娱乐用地四十年;综合用地或者其他用地五十年。另外,加油站、加气站用地为二十年。
8.楼花
一词最早源自香港是指未完工的物业(即在建物业),另一说法即指未正式交付之前的商品房。
9.期房
是指消费者在购买时不具备即买即可入住的商品房,即房地产开发商品房预售许可证开始至取得房地产权证大产证为止,所出售商品房称为期房。消费者在购买期房时应签商品房预售合同。
10.现房
是指消费者在购买时具备即买即可入住的商品房,即开发商已办妥所售的商品房的大产证的商品房,与消费者签订商品详尽买卖合同后,立即可以办理入住并取得产权证。
11.砖混结构
主要是砖墙承重,部分是钢盘混凝土承重的结构。
12.钢筋混凝土结构
主要承重构件是由钢筋和混凝土制成的结构。
13.住宅的开间
就是住宅的宽度。
14.住宅的进深
就是指住宅的实际长度。
15.住宅的层高
是指下层地板面或楼板面到上层楼层面之间的距离,也就是一层房屋的高度。
16.住宅的净高
是指下层地板面或楼板上表面到上层楼板下表面之间的距离。
17.居住小区总用地
是包括住宅总用地,公共建筑设施总用地,道路、广场用地、庭院、绿化用地的总和。
18.住宅总用地
指低层、多层、中高层、高层以及住宅用地面积的总和。
19.公建总用地
指小区内部公共建筑占地面积的总和。
20.房屋的基底面积
房屋的基底面积是指建筑物底层勒脚以上外围水平投影面积
21.住宅的建筑面积
亦称建筑展开面积,它是指住宅建筑外墙外围线测定的各层平面面积之和。它是表示一个建筑物规模大小的经济指标。它包括三项,即使用面积、辅助面积和结构面积。
22.结构面积
是指房屋建筑中外墙,内墙柱等结构构件所占面积的总和。
23.使用面积
是指建筑物各层平面中直接为生产或生活使用的净面积的总和。
24.辅助面积
指卧室以外的净面积,包括过道、卫生间、厨房、储藏室、阳台
25.套内建筑面积
房屋按套(单元)计算的建筑面积为套(单元)门内范围的建筑面积,包括套(单元)内的使用面积、墙体面积及阳台面积。
26.套内墙体面积
是套内使用空间周围的维护或承重墙体或其它承重支撑体所占的面积,其中各套之间的分隔墙和套与公共建筑空间的分割以及外墙(包括山墙)等共有墙,均按水平投影面积的一半计入套内墙体面积。套内自由墙体按水平投影面积全部计入套内墙体面积。
27.公用建筑面积
各产权主体共同占有或共同使用权的建筑面积,指各套(单元)以外为各户共同使用,不可分割的建筑面积。
28.公用建筑面积的分摊原则是什么?
如有面积分割的文件或协议,应按其文件或协议分摊计算;如无分割文件或协议,按规定的公用面积分摊原则进行分摊计算。
29..哪些公用面积应分摊?
应分摊的公用建筑面积包括套(单元)门以外的室内外楼梯、内外廊、公共门厅、通道、电梯、配电房、设备层、设备用房、结构转换层、技术层、空调机房、消防控制室、为整栋楼层服务的值班卫室、建筑物内的垃圾以及突出屋面有围护结构的楼梯间、电梯机房、水箱间等。
30.哪些公用面积不能分摊?
不能分摊的公用面积为底层架空层中作为公共使用的机动车库、非机动车库、公共开放空间、城市公共通道、沿街的骑楼作为公共开放使用的建筑面积、消防避难层;为多栋建筑物使用的配电房;公民防护地下室以及地面车库、地下设备用房等
31.套内阳台建筑面积
套内阳台建筑面积均按阳台外围与房屋外墙之间的水平投影面积计算。其中封闭的阳台按水平投影全部计算建筑面积,未封闭的阳台按水平投影的一半计算建筑面积。
32.套内使用面积
指套内住户独自使用的面积,一般包括卧室、厨房、卫生间、过厅、起居室、内走道、阳台、壁柜等净面积的总和。
33.建筑容积率
是指项目规划建设用地范围内全部建筑面积与规划建设用地面积之比。
34.建筑密度
即建筑覆盖率,指项目用地范围内所有基底面积之和与规划建设用地之比。
35.绿地率
是指规划建设用地范围内的绿地面积与规划建设用地面积之比。
36.绿化率
是指植被垂直面积与规划建设用地面积之比。
37.得房率
指套(单元)内建筑面积与套建筑面积的比率
38、阁楼
是指位于房屋坡屋顶下部的房间。
39.假层
是指房屋的最上一层,四面外墙的高度一般不低于下式楼层外墙的高度,以内部房间利用部分屋架空间构成的非正式层。
40.普通住宅
是指按一般民用住宅标准造的居住用住宅,高级公寓、别墅、度假村等不属于普通住宅的范畴。
41公寓
是指二层以上供多户人家居住的楼房建筑。
42.商住住宅
是SOHO(居家办公)住宅观念的一种延伸,它属于住宅,但同时又融入写字楼的诸多硬件设施,尤其是网络功能的发达,使居住者在居住同时又能从事商业活动的住宅形式。
43别墅
是指在郊区或风景区建造的供住宿休养用的花园住宅。其中三户或三户以上连体的别墅为连栋别墅,二户连体的别墅为双拼别墅,单楼独栋的则为独栋别墅。
44 TOWNHOUSE(联排别墅)
正确的译法应该为城区住宅,是从欧洲舶来的,其原始意义是指在城区房屋。目前是指建于城郊,高绿化率,住宅功能齐全的景观型联排别墅。
45跃层式商品房
是指由上、下两层楼盘面、卧室、起居室、客厅、卫生间、厨房及其它辅助用房,并采用户内独用的小楼梯连接的房屋通风、采光较好,布局紧凑,功能分明,只是户内楼梯占去一定使用面积,上下两层只有一个出口,发生火灾时,人员不易疏散。
46复式商品房
是由香港建筑师创造设计的一种经济型房屋,是在层高的一层楼中增建一个夹层,从而形成上下两层的楼盘房。实际层高要大大低于跃层式住宅。复式住宅下层供起居、餐饮、洗浴用,上层供休息、储藏用,户内设多处入墙式壁柜和楼梯。
47错层式住宅
是指楼面高度不一致错开之处有楼梯联系的住宅。
48钢筋混凝土结构
主要承重构件是由钢筋和混凝土制成的结构。
49单元式住宅
是指在多层、高层楼房中的一种住宅建筑形式;通常每层楼面只有一个楼梯,住户由楼梯平台直接进入分户门,一般多层住宅每个楼梯可以安排24到28户。所以每个楼梯的控制面积又称为一个居住单元。
50 房子的居住时间是多少,土地使用年限届满后,该怎么办?
房屋一经购买并取得产权后,即作为业主个人所有的财产,并无居住年限的限制,担对该房屋所占用范围内的土地来说,因为土地除属于集体所有的外,均属于国家所有。业主所取得的为该土地的一定年限的使用权。住宅用地的土地使用时间为50—70年,自开发商取得该土地使用证书之日起计算。在该土地使用年限届满后,土地将由国家收回。业主可以在继续交纳土地出让金或使用费的前提下,继续使用该土地。
51 合作建房
是指以一方提供土地使用权,另一方或多方提供资金合作开发房地产的房地产开发形式。
52 土地所有权
土地所有权是指国家或集体经济组织对国家土地和集体土地依法享有的占有、使用、收益和处分的权能。
53 个人住房基金
有些单位建立了个人住房基金。职工个人住房基金是由个人的劳动收入积累而成的基金,其中一部分是根据政策规定从收入中提取得到(主要指公积金);另一部分则是自愿储蓄部分则采取存款自愿,取款自由的管理办法。
54 房屋的所有权
是指对房屋全面支配的权利。房屋的所有权分为占有权、使用权、收益权和处分权四项权能,这也是房屋所有权的四项基本内容。
55商品房的起价
是指商品房在销售时各楼层销售价格中的最低价格。
56商品房的均价
是指商品房的销售价格相加以后的和除以单位建筑面积的和,即得出每平方米的价格。
57基价
经过核算而确定的每平方米基本价格,商品房的销售价一般以基数增减楼层和朝向差价后得出。
58契税
契税是指房屋所有权发生变更时,就当事人所订契约按房价的一定比例向产权承受人征收的一次性税收。它是对房地产权变动征收的一种专门税种。(交易手续费经济适用房减半)
59公共维修基金
公共维修基金是指住宅楼房的公共部位和共用设施、设备的维修养护基金。商品房的公共维修基金由购房人在购房时交纳,比例为购房款的2%。
60印花税
印花税是对经济活动和经济交往中书立、领受凭证征收的一种税。它是一种兼有行为性质的凭证税,具有征收面广、税负轻、由纳税人自行购买并粘贴印花税票完成纳税义务等特点。
61商品房验收合格
指的是单体(即单幢楼盘)验收合格。
62商品房综合验收合格
指的是包含所有配套设施在内的全部建筑物的验收合格。
63 .在什么情况下,房地产开发项目可以交付使用?
房地产开发项目竣工,经验收合格后,方可交付使用;未经验收或者验收不合格的,不得交付使用。
64在房屋交付时,发展商应提交哪些文件?
房屋交付时,房地产开发企业应当根据《商品住宅实行质量保证书和住宅使用说明书制度的规定》,向买受人提供《住宅质量保证书》、《住宅使用说明书》。
65何为“预售面积”和“竣工面积”?
预售面积是指全部按建筑设计图上尺寸计算的房地产建筑面积,它只供房地产预售时使用;竣工面积是指房地产竣工后实测的面积或用与竣工房地产尺寸相符的建筑设计图计算的建筑面积,它为房地产交易、租赁、抵押、竣工验收、产权登记等提供依据。
66空鼓
局部面局材料与基层没有胶合剂或胶合剂没有起作用,用小槌轻击有空壳声。如瓷砖与墙面间局部水泥砂浆不饱和,形成空鼓。
67 .商品房预售须符合哪些条件?
(1)交付全部土地使用权出让金,取得土地使用权证书;
(2)有建设工程规划许可证;
(3)按提供预售的商品房计算,投入开发建设资金达到工程建设总投资的25%以上,并已经确定施工进度和竣工交付日期;
(4)向县级以上人民政府房产管理部门办理预售登记,取得商品房预售许可证明。
68商品房销售面积
商品房销售面积=套内建筑面积+分摊的公用建筑面积
69分摊公用建筑面积的计算方法
分摊公用建筑面积=套内建筑面积×公用建筑面积分摊系数
公用建筑面积分摊系数=公用建筑面积/套内建筑面积之和
公用建筑面积=整幢建筑的面积-套内建筑面积之和-不应分摊的建筑面积
70“五证”包括什么?
商品房“五证”包括:建设用地规划许可证、建设工程规划许可证、国有土地使用证、建设工程开工证、商品房预售许可证。
71“二书”
是指建设部为了加强对商品房的质量管理与监督,要求发展商必须提供的新建住宅质量保证书和新建住宅使用说明书。
72什么是地籍?什么是产籍?
我们通常所指的地籍、产籍、房地产籍是同一概念。它是指土地的自然状况、社会经济状况和法律状况的调查与登记,包括了土地产权的登记和土地分类面积等内容。具体来讲,是对在房地产调查登记过程产生的各种图表、证件等登记资料,经过整理、加工、分类而形成的图、档、卡、册等资料的总称。
73 房屋的折旧
房屋折旧是逐步回收房屋投资的形式,即房屋的折旧费。折旧费是指房屋建造价值的平均损耗。房屋在长期的使用中,虽然保留原有的实物形态,但由于自然损耗和人为的损耗,客观存在的价值也会逐渐减少。这部分因损耗而减少的价值,以货币形态来表现,就是折旧费。确定折旧费的依据是建筑造价残值、清理费用和折旧年限。
74 住宅的“全部产权”
是指按市场价和成本价购买的房屋,购房者拥有全部产权。经济适用房亦属于全部产权。
75 住宅的“部分产权”
是指职工按标准价购买的公有住宅。在国家规定的住房面积之内,职工按标准价购房后只拥有部分产权,可以继承和出售,但出售时原产权单位有优先购买权,售房的收入在扣除有关税费后,按个人和单位所占的产权比例分配。
76 建筑物
是指人工建造而成的房屋和构筑物,如墙体、楼地层、楼梯、门窗基础。
77 构筑物
是指建筑物中除房屋以外的东西,人们一般直接在内进行生产和生活活动,如烟囱、水井、道路、桥梁等。
78 商品房的结构
售房的楼书常见用语,房屋架构可分为砖混结构、砖木结构和钢筋混凝土结构。
79人均总占地面积(平均米/人)
人均总占地面积=建筑红线内总用地/本小区规划居住总人数。
80人均住宅用地面积(平方米/人)
人均住宅用地面积=小区内总住宅用地/本小区规划居住总人数。
81总建筑面积(平方米)
指小区内住宅、公共建筑、人防地下室面积总和。
82 人口毛密度
人口毛密度=小区内总居住人数/小区内占地面积(公顷)。
83 商品房现售
是指房地产开发企业将竣工验收合格的商品房出售给买受人,并由买受人支付房价款的行为。
84商品房预售
俗称“卖楼花”,即在房地产尚未建成以前,房地产的经销商在取得受买人一定数量的定金后,将期房出售给受买人。
85面积配比
指的是各种面积范围的单元在某一楼盘单元总数中各自所占比例的多少。
86格局配比
是二房二厅、三房二厅等各种格局的单元在某一楼盘的单元总数中各自所占的比例的多少。
87共有房产
共有房产是指某一房产属于两个或两个以上的所有人共同所有。
88 .申办产权需具备哪些资料?
审核后购销合同一份、收件收据、产权申请登记表、产权登记发证审批表、房屋所有权情况调查表、测量后的正式图纸。
89 .未成年人是否可以作为权利人办理《房地产证》?
未成年人可以作为权利人办理《房地产证》,但办理时须提交其监护关系证明和监护人身份证明,并在《房地产证》上备注其法定监护人姓名。由于未成年人为没有民事行为能力或限制民事行为能力的人,因此在处分该房地产时必须符合有关法律规定。
90 .房地产登记的种类有哪些?
房地产登记的种类分为初始登记、转移登记、抵押登记、变更登记、其它登记。
91 .房屋期权转让
房屋期权转让是指购房者在与房地产开发企业签订了预购商品房合同之后,在商品房尚未竣工交付使用之前,由于购房者一方原因,如对房屋需求的改变或是故意炒作,把原来因签订购房合同而获得的权利转让给他人。房屋期权转让,有的地方将其称为“楼花”转让或“炒楼花”。
92 .房地产转让
是指合法拥有土地使用权及土地上建筑物、附着物所有权的自然人、法人和其他组织,通过买卖、交换、赠与将房地产转移给他人的法律行为。
93 .确权
确权就是房地产登记机关对房地产权利的确认。即是依照法律、政策的规定,经过房地产申报、权属调查、地籍勘丈、审核批准、登记注册、发放权利证书等登记规定程序,确认某一房地产权利归属的过程。
94等额本金还款法
等额本金还款法是一种计算非常简便,实用性很强的一处还款方式。基本算法原理是在还款期内按期等额归还本金,并同时还清当期未归还的本金所产生的利息。方式可以是按月还款和按季还款。
95一次性还本付息法
现各银行规定,贷款期限在一年以内(含一年),那么还款方式为到期一次性还本付息,即初期的贷款本金加上整个内的利息综合。
96物业的竣工验收
是指从物业形态上说,建筑商完成了一项最终产品,开发商也完成了物业开发任务,这时他们之间所发生的一个法定手续。
97物业管理
泛指一切有关房地产开发、经营、商品房销售、租赁及售后服务。
98业主委员会
业主委员会是在物业管理区域内代表全体业主实施自治管理的组织。业主委员会由业主大会从全体业主中选举产生,是经政府部门批准成立的代表物业全体业主合法权益的社会团体,其合法权益受国家法律保护。
99 .违法建筑
是指未经规划土地主管部门批准,未领取建设工程规划许可证或临时建设工程规划许可证,擅自建筑的建筑物和构筑物。
100 .哪些情况下,预售房购买者可以要求取消预售房合同?
(1)房屋开发公司不能按照原定日期交付预购房屋;
(2)建成后的房屋实际面积与预售房合同确定的面积不相符;
(3)建成后房屋建筑的材料与预售合同所列建材不相符。
声明:本文由入驻焦点开放平台的作者撰写,除焦点官方账号外,观点仅代表作者本人,不代表焦点立场。


