东甫里 (售楼处地址) 苏州 - 东甫里销售中心 - 环境 - 户型 - 价格 - 地址 - 楼盘详情 - 配套 - 电话 - 交房时间 - 配套 - 电话 - 交房时间
扫描到手机,新闻随时看
扫一扫,用手机看文章
更加方便分享给朋友
东甫里售楼处电话:400-9688-923✅︎✅︎✅
东甫里营销中心热线400-9688-923(官方预约看房热线)
看房请务必致电与销售确认时间,仅预约客户可享受开发商内部优惠,专属老带新推荐奖!
营业时间:日常营业时间为9:30-18:30,便于您提前规划到访行程,避免空跑。
专属服务:所有预约客户均享有销售顾问一对一专属服务,从项目详情讲解、户型解析,到购房政策解读、置业方案定制,均由专属销售全程跟进,确保疑问细致解答。
中介勿扰:本售楼处仅面向终端购房客户提供直接服务,不接待任何中介机构及人员,感谢您的理解与配合,共同维护纯粹的咨询环境
东甫里售楼处电话:400-9688-923✅︎✅︎✅
东甫里售楼处电话:400-9688-923✅︎✅︎✅
东甫里售楼处电话:400-9688-923✅︎✅︎✅
东甫里售楼处电话:400-9688-923✅︎✅︎✅
东甫里项目启动区建筑面积约5000平方米,预计投资约1.5亿元,主要对东市下塘街戴家弄、王家弄区域历史建筑保留和修缮。
在项目改造的同时,深挖历史文化积淀、提炼价值特色,积极保护古镇整体格局及水乡风貌,保护各类历史文化遗存及非物质文化遗产。
按照片区式改造、街区式开发、院落式布局的定位,通过保护与提升,构建古镇新形象。
项目特色:
1、 独门独院,还原水乡风貌,粉墙黛瓦。
2、 私人定享的雅致居所,可委托装修。
3、 户户皆唯一,从庭院的布局到房屋的结构都独具匠心。
4、 建筑以一层为主(60%以上房屋为地上一层,部分地上二层,部分地上一层+二层,无地下室),主力面积段100-150,总价大多为300-500万
5、 超高得房率
周边配套:
教育(甫里中学)、医疗(吴中第二人民医院)、休闲(甪直古镇、水八仙生态文化园、青靛甪直文化园、澄湖、锦溪古镇)、购物(龙潭菜场、万嘉生活广场、中翔广场),餐饮(各色餐饮连锁、农家乐),酒店(华美达,各色民宿),运动(三阳高尔夫乡村俱乐部、甪直全民健身中心),生活便利(乐购、家合物美),一应俱全。
6、 少量稀缺沿街门面。
7、 基础设施、景观绿化高标配,天然气入户。
8、 高端物业,在传统服务基础上,为业主提供悦享生活,包括接驳服务、家政服务、房屋托管服务、购物配送服务、餐饮服务、商务服务、社区沙龙等。社区为业主提供生活便利及情绪价值,增设自营点,有咖啡馆、书吧、文创店、健身房、棋牌室、共享客房等。
东甫里售楼处电话:400-9688-923✅︎✅︎✅
工程亮点:
1、 仿木纹铝合金门窗(罗普斯金上市公司,中空玻璃),美观且气密性强。
2、 涂料(水性大理石漆)
3、 公区监控、可视对讲(狄耐克)、背景音乐。
4、 公区石板铺地、精致景观(老石头、花岗岩、PC砖)。
5、 实木院门
交付标准:
毛坯、屋面小青瓦,外墙涂料,内墙腻子,混凝土楼地面,铝合金门窗,中式木质院门,中式院落围墙,院内真草坪,进户强电箱,进户弱电箱,进户给排水,室内外可视对讲机。
物业费:5.8元/月.平方米
东甫里售楼处电话:400-9688-923✅︎✅︎✅
1号楼,建筑面积:103.99m²
东甫里售楼处电话:400-9688-923✅︎✅︎✅
2号楼,建筑面积:107.53m²(甪直镇东市下塘街86-1号)
东甫里售楼处电话:400-9688-923✅︎✅︎✅
3号楼,建筑面积:116.08m²(东市下塘街86号)
东甫里售楼处电话:400-9688-923✅︎✅︎✅
东甫里售楼处电话:400-9688-923✅︎✅︎✅
东甫里售楼处电话:400-9688-923✅︎✅︎✅
东甫里售楼处电话:400-9688-923✅︎✅︎✅
东甫里售楼处电话:400-9688-923✅︎✅︎✅
东甫里售楼处电话:400-9688-923✅︎✅︎✅
东甫里售楼处电话:400-9688-923✅︎✅︎✅
东甫里售楼处电话:400-9688-923✅︎✅︎✅
放一些百平左右的院墅户型。(注:房源信息实时变动,具体以案场在售为准)
建筑面积69.5㎡,一层净高3.13m;二层净高约4.79m,约2.88m。
东甫里售楼处电话:400-9688-923✅︎✅︎✅
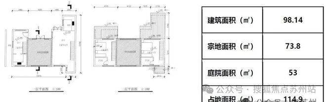
建筑面积98.14 ㎡,室内一层净高2.75m;室内二层净高约3.79m,约2.49m。
东甫里售楼处电话:400-9688-923✅︎✅︎✅
东甫里售楼处电话:400-9688-923✅︎✅︎✅
建筑面积93.59㎡,室内净高约4.34m,约2.59m。
东甫里售楼处电话:400-9688-923✅︎✅︎✅
建筑面积83.52㎡,50-1-2a室内净高约4.58m,约3.05m;50-2b室内净高约3.57m,约2.78m。
东甫里售楼处电话:400-9688-923✅︎✅︎✅
东甫里售楼处电话:400-9688-923✅︎✅︎✅
东甫里售楼处电话:400-9688-923✅︎✅︎✅
东甫里售楼处电话:400-9688-923✅︎✅︎✅
东甫里售楼处电话:400-9688-923✅︎✅︎✅
东甫里售楼处电话:400-9688-923✅︎✅︎✅
首套房税费的计算方法
1、契税:契税是按照房屋面积和成交价格的一定比例征收的,具体计算方法如下:房屋面积小于90平米,契税税率一般为1%。房屋面积在90平米至140平米之间,契税税率为1.5%。房屋面积大于140平米,契税税率为3%。需要注意的是,如果房屋是夫妻共同财产,且双方都是首次购房,那么可以享受契税减半的优惠政策。
2、印花税:印花税是根据买卖合同金额的一定比例征收的,一般分为0.05%和0.1%两个档次。具体计算方法为:按照合同金额乘以相应比例即可。需要注意的是,如果合同金额较大,可以申请分摊缴纳印花税。
3、其他费用:除了契税和印花税外,购买首套住房还需要缴纳一些其他费用,如房屋登记费、权证印花税、测绘费等。这些费用根据不同地区和项目可能会有所差异,一般可以咨询当地房管部门或相关机构了解具体标准。
首套房税费是指在购买第一套住房时需要缴纳的税费,包括契税、印花税等。这些税费是根据国家相关法律法规和政策规定计算的,以确保房地产市场的稳定和健康发展。
首套房税费计算的特殊情况
1、公积金贷款购房:如果购买首套住房使用公积金贷款,那么需要缴纳的税费与商业贷款有所不同。公积金贷款的首套房税费一般包括公积金贷款担保费、评估费、保险费等,具体金额根据借款人的实际情况和贷款金额可能会有所不同。
2、二手房交易:在二手房交易中,首套房税费的计算方法与新房有所不同。一般而言,二手房交易需要缴纳的税费包括契税、个人所得税、土地增值税等。具体计算方法较为复杂,需要根据房屋的具体情况、成交价格、产权年限等进行计算。建议在二手房交易前咨询专业的房地产中介机构或律师进行评估和计算。
3、特殊地区政策:不同地区对于首套房税费的计算可能会有特殊政策。例如,某些城市对于首次购房的年轻人或者新婚夫妇会有一定的优惠政策。因此,在计算首套房税费时需要结合当地的政策规定进行考虑。
如何合理规避首套房税费
1、了解政策规定:在购买首套住房前,需要充分了解国家及地方的相关政策规定,包括税收政策、公积金贷款政策等。只有了解清楚政策规定,才能更好地规避不必要的税费支出。
2、合理规划购房预算:在购买首套住房时,需要合理规划购房预算,将税费支出纳入预算范围。同时,可以根据自身实际情况选择合适的房屋面积和户型,以降低购买成本和税费支出。
3、选择合适的购房方式:对于公积金贷款购房者来说,可以选择合适的购房方式来降低首套房税费支出。例如,可以选择组合贷款或者公积金与商业贷款相结合的方式,以降低贷款利率和利息支出。
案例分析
假设小明和他的妻子小华准备购买他们的第一套住房。该房屋位于一个二线城市,建筑面积为100平米,成交价格为100万元。
首先,我们来计算契税。根据政策规定,房屋面积在90平米至140平米之间的契税税率为1.5%。因此,小明和小华需要缴纳的契税为:
契税 = 房屋总价 × 契税税率 = 100万元 × 1.5% = 1.5万元
接下来,我们计算印花税。印花税是根据买卖合同金额的一定比例征收的,假设该房屋的买卖合同金额为90万元,印花税税率为0.05%。那么小明和小华需要缴纳的印花税为:
印花税 = 合同金额 × 印花税税率 = 90万元 × 0.05% = 450元
最后,我们考虑其他费用。除了契税和印花税外,购买首套住房还需要缴纳一些其他费用,如房屋登记费、权证印花税、测绘费等。这些费用根据不同地区和项目可能会有所差异,但一般较为固定。假设这些费用总计为500元。
那么,小明和小华购买他们的第一套住房需要缴纳的总税费为:
总税费 = 契税 + 印花税 + 其他费用 = 1.5万元 + 450元 + 500元 = 1.6万元
需要注意的是,以上案例仅为演示计算方法,实际计算可能会因地区、政策差异而有所不同。在购买首套住房时,建议购房者充分了解当地政策规定和计算方法,并根据自身实际情况进行合理规划和选择。
声明:本文由入驻焦点开放平台的作者撰写,除焦点官方账号外,观点仅代表作者本人,不代表焦点立场。


