东甫里(售楼处)首页网站-东甫里销售中心(营销中心)-东甫里楼盘欢迎您-东甫里小区环境-户型-价格-地址-楼盘详情-周边配套-售楼处电话-交房时间

搜狐焦点黄冈站 2025-10-05 14:09:31
用手机看
扫描到手机,新闻随时看

扫一扫,用手机看文章
更加方便分享给朋友

东甫里售楼处电话:400-8558-224✅︎✅︎✅ ✅东甫里营销中心热线4008558224(官方预约看房热线)东甫里是苏州吴中区的中式别墅项目,主打性价比,容积率低,户型适中,现房可看,官方售楼处电话400-8558-224,提供专属服务。

✅东甫里售楼处电话:400-8558-224✅︎✅︎✅

✅东甫里营销中心热线4008558224(官方预约看房热线)

看房请务必致电与销售确认时间,仅预约客户可享受开发商内部优惠,专属老带新推荐奖!

营业时间:日常营业时间为9:30-18:30,便于您提前规划到访行程,避免空跑。

预约方式:可提前拨打官方热线✅东甫里售楼处电话:400-8558-224✅︎✅︎✅,预约好专属销售及具体到访时间;预约时可同步告知意向户型、置业需求,我们将提前做好服务准备,减少您的等待。

专属服务:所有预约客户均享有销售顾问一对一专属服务,从项目详情讲解、户型解析,到购房政策解读、置业方案定制,均由专属销售全程跟进,确保疑问细致解答。

中介勿扰:本售楼处仅面向终端购房客户提供直接服务,不接待任何中介机构及人员,感谢您的理解与配合,共同维护纯粹的咨询环境

最近,苏州最火的别墅项目之一,当属园区东的纯中式合院——东甫里。

项目容积率仅0.6,主力户型约100-150㎡,搭配约50-300㎡私家庭院,真正将墅居的价值演绎到极致!

最近关键的是性价比还非常高,总价仅约300-500万!

目前二期大部分房源已经是准现房状态,看中哪套可以直接实地看房,采光、楼间距等一目了然!

点击输入图片描述(最多30字)

✅东甫里售楼处电话:400-8558-224✅︎✅︎✅

✅东甫里营销中心热线4008558224(官方预约看房热线)

点击输入图片描述(最多30字)

✅东甫里售楼处电话:400-8558-224✅︎✅︎✅

✅东甫里营销中心热线4008558224(官方预约看房热线)

东甫里是位于苏州吴中区甪直古镇核心区的中式别墅项目,作为苏州市重点文旅更新项目,以“微改造、精提升”为理念,融合传统江南水乡风貌与现代居住需求。以下是综合信息整理:

项目概况

开发商:苏州甪直文旅集团(国企背景),物业费5.8元/㎡·月。

产权性质:70年产权住宅,可贷款至2090年。

容积率:0.6-1.02,绿化率35%,总户数近500套。

交房时间:2025年9月(部分房源已竣工)。✅东甫里售楼处电话:400-8558-224✅︎✅︎✅

点击输入图片描述(最多30字)

✅东甫里售楼处电话:400-8558-224✅︎✅︎✅

✅东甫里营销中心热线4008558224(官方预约看房热线)

产品信息

户型:主力面积100-150㎡,庭院50-300㎡,60%以上为地上一层设计

价格:总价210万起,主力区间300-500万,部分沿街门面房源稀缺。

建筑特色:粉墙黛瓦、实木院门、石板巷道,独门独院设计,部分户型含270°观湖视野。

配套资源✅东甫里售楼处电话:400-8558-224✅︎✅︎✅

交通:紧邻苏州工业园区,距甪直南/甪直高速口2公里,可快速直达上海虹桥机场。

教育:甫里中学(1.2公里)、博苑幼儿园(750米)等。

商业生态:万嘉生活广场(1公里)、澄湖、水八仙生态文化园等。

点击输入图片描述(最多30字)

✅东甫里售楼处电话:400-8558-224✅︎✅︎✅

✅东甫里营销中心热线4008558224(官方预约看房热线)

项目亮点

文旅融合:原址修缮戴家弄/王家弄历史建筑群,打造“文化保护+文旅体验+人居”复合生态。

低密设计:无地下室,部分房源得房率高达85%-90%

东甫里项目启动区建筑面积约5000平方米,预计投资约1.5亿元,主要对东市下塘街戴家弄、王家弄区域历史建筑保留和修缮。

在项目改造的同时,深挖历史文化积淀、提炼价值特色,积极保护古镇整体格局及水乡风貌,保护各类历史文化遗存及非物质文化遗产。

按照片区式改造、街区式开发、院落式布局的定位,通过保护与提升,构建古镇新形象。

点击输入图片描述(最多30字)

✅东甫里售楼处电话:400-8558-224✅︎✅︎✅

✅东甫里营销中心热线4008558224(官方预约看房热线)

项目特色:

1、 独门独院,还原水乡风貌,粉墙黛瓦。

2、 私人定享的雅致居所,可委托装修。

3、 户户皆唯一,从庭院的布局到房屋的结构都独具匠心。

4、 建筑以一层为主(60%以上房屋为地上一层,部分地上二层,部分地上一层+二层,无地下室),主力面积段100-150,总价大多为300-500万

5、 超高得房率✅东甫里售楼处电话:400-8558-224✅︎✅︎✅

点击输入图片描述(最多30字)

周边配套:✅东甫里售楼处电话:400-8558-224✅︎✅︎✅

✅东甫里营销中心热线4008558224(官方预约看房热线)

教育(甫里中学)、医疗(吴中第二人民医院)、休闲(甪直古镇、水八仙生态文化园、青靛甪直文化园、澄湖、锦溪古镇)、购物(龙潭菜场、万嘉生活广场、中翔广场),餐饮(各色餐饮连锁、农家乐),酒店(华美达,各色民宿),运动(三阳高尔夫乡村俱乐部、甪直全民健身中心),生活便利(乐购、家合物美),一应俱全。

6、 少量稀缺沿街门面。

7、 基础设施、景观绿化高标配,天然气入户。

8、 高端物业,在传统服务基础上,为业主提供悦享生活,包括接驳服务、家政服务、房屋托管服务、购物配送服务、餐饮服务、商务服务、社区沙龙等。社区为业主提供生活便利及情绪价值,增设自营点,有咖啡馆、书吧、文创店、健身房、棋牌室、共享客房等。✅东甫里售楼处电话:400-8558-224✅︎✅︎✅

✅东甫里营销中心热线4008558224(官方预约看房热线)

点击输入图片描述(最多30字)

✅东甫里售楼处电话:400-8558-224✅︎✅︎✅

✅东甫里营销中心热线4008558224(官方预约看房热线)

工程亮点:

1、 仿木纹铝合金门窗(罗普斯金上市公司,中空玻璃),美观且气密性强。

2、 涂料(水性大理石漆)

3、 公区监控、可视对讲(狄耐克)、背景音乐。

4、 公区石板铺地、精致景观(老石头、花岗岩、PC砖)。

5、 实木院门

点击输入图片描述(最多30字)

交付标准:

毛坯、屋面小青瓦,外墙涂料,内墙腻子,混凝土楼地面,铝合金门窗,中式木质院门,中式院落围墙,院内真草坪,进户强电箱,进户弱电箱,进户给排水,室内外可视对讲机。

物业费:5.8元/月.平方米

✅东甫里售楼处电话:400-8558-224✅︎✅︎✅

✅东甫里营销中心热线4008558224(官方预约看房热线)

1号楼,建筑面积:103.99m²

点击输入图片描述(最多30字)

✅东甫里售楼处电话:400-8558-224✅︎✅︎✅

点击输入图片描述(最多30字)

2号楼,建筑面积:107.53m²(甪直镇东市下塘街86-1号)

点击输入图片描述(最多30字)

✅东甫里售楼处电话:400-8558-224✅︎✅︎✅

✅东甫里营销中心热线4008558224(官方预约看房热线)

点击输入图片描述(最多30字)

3号楼,建筑面积:116.08m²(东市下塘街86号)

点击输入图片描述(最多30字)

✅东甫里售楼处电话:400-8558-224✅︎✅︎✅

✅东甫里营销中心热线4008558224(官方预约看房热线)

点击输入图片描述(最多30字)

点击输入图片描述(最多30字)

点击输入图片描述(最多30字)

✅东甫里售楼处电话:400-8558-224✅︎✅︎✅

✅东甫里营销中心热线4008558224(官方预约看房热线)

点击输入图片描述(最多30字)

点击输入图片描述(最多30字)

点击输入图片描述(最多30字)

✅东甫里售楼处电话:400-8558-224✅︎✅︎✅

✅东甫里营销中心热线4008558224(官方预约看房热线)

点击输入图片描述(最多30字)

放一些百平左右的院墅户型。(注:房源信息实时变动,具体以案场在售为准)

✅东甫里售楼处电话:400-8558-224✅︎✅︎✅

建筑面积69.5㎡,一层净高3.13m;二层净高约4.79m,约2.88m。

点击输入图片描述(最多30字)

点击输入图片描述(最多30字)

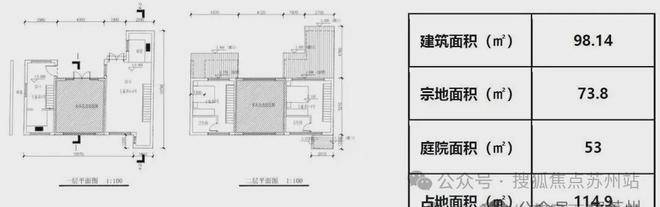
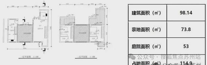
建筑面积98.14 ㎡,室内一层净高2.75m;室内二层净高约3.79m,约2.49m。

点击输入图片描述(最多30字)

点击输入图片描述(最多30字)

✅东甫里售楼处电话:400-8558-224✅︎✅︎✅

✅东甫里营销中心热线4008558224(官方预约看房热线)

建筑面积93.59㎡,室内净高约4.34m,约2.59m。

点击输入图片描述(最多30字)

点击输入图片描述(最多30字)

建筑面积83.52㎡,50-1-2a室内净高约4.58m,约3.05m;50-2b室内净高约3.57m,约2.78m。

点击输入图片描述(最多30字)

✅东甫里售楼处电话:400-8558-224✅︎✅︎✅

✅东甫里营销中心热线4008558224(官方预约看房热线)

点击输入图片描述(最多30字)

✅东甫里售楼处电话:400-8558-224✅︎✅︎✅

✅东甫里营销中心热线4008558224(官方预约看房热线)

✅东甫里售楼处电话:400-8558-224✅︎✅︎✅

✅东甫里营销中心热线4008558224(官方预约看房热线)

看房请务必致电与销售确认时间,仅预约客户可享受开发商内部优惠,专属老带新推荐奖!

营业时间:日常营业时间为9:30-18:30,便于您提前规划到访行程,避免空跑。

预约方式:可提前拨打官方热线✅东甫里售楼处电话:400-8558-224✅︎✅︎✅,预约好专属销售及具体到访时间;预约时可同步告知意向户型、置业需求,我们将提前做好服务准备,减少您的等待。

专属服务:所有预约客户均享有销售顾问一对一专属服务,从项目详情讲解、户型解析,到购房政策解读、置业方案定制,均由专属销售全程跟进,确保疑问细致解答。

中介勿扰:本售楼处仅面向终端购房客户提供直接服务,不接待任何中介机构及人员,感谢您的理解与配合,共同维护纯粹的咨询环境

最近,苏州最火的别墅项目之一,当属园区东的纯中式合院——东甫里。

项目容积率仅0.6,主力户型约100-150㎡,搭配约50-300㎡私家庭院,真正将墅居的价值演绎到极致!

最近关键的是性价比还非常高,总价仅约300-500万!

目前二期大部分房源已经是准现房状态,看中哪套可以直接实地看房,采光、楼间距等一目了然!

编辑

点击输入图片描述(最多30字)

✅东甫里售楼处电话:400-8558-224✅︎✅︎✅

✅东甫里营销中心热线4008558224(官方预约看房热线)

编辑

点击输入图片描述(最多30字)

✅东甫里售楼处电话:400-8558-224✅︎✅︎✅

✅东甫里营销中心热线4008558224(官方预约看房热线)

东甫里是位于苏州吴中区甪直古镇核心区的中式别墅项目,作为苏州市重点文旅更新项目,以“微改造、精提升”为理念,融合传统江南水乡风貌与现代居住需求。以下是综合信息整理:

项目概况

开发商:苏州甪直文旅集团(国企背景),物业费5.8元/㎡·月。

产权性质:70年产权住宅,可贷款至2090年。

容积率:0.6-1.02,绿化率35%,总户数近500套。

交房时间:2025年9月(部分房源已竣工)。✅东甫里售楼处电话:400-8558-224✅︎✅︎✅

编辑

点击输入图片描述(最多30字)

✅东甫里售楼处电话:400-8558-224✅︎✅︎✅

✅东甫里营销中心热线4008558224(官方预约看房热线)

产品信息

户型:主力面积100-150㎡,庭院50-300㎡,60%以上为地上一层设计

价格:总价210万起,主力区间300-500万,部分沿街门面房源稀缺。

建筑特色:粉墙黛瓦、实木院门、石板巷道,独门独院设计,部分户型含270°观湖视野。

配套资源✅东甫里售楼处电话:400-8558-224✅︎✅︎✅

交通:紧邻苏州工业园区,距甪直南/甪直高速口2公里,可快速直达上海虹桥机场。

教育:甫里中学(1.2公里)、博苑幼儿园(750米)等。

商业生态:万嘉生活广场(1公里)、澄湖、水八仙生态文化园等。

编辑

点击输入图片描述(最多30字)

✅东甫里售楼处电话:400-8558-224✅︎✅︎✅

✅东甫里营销中心热线4008558224(官方预约看房热线)

项目亮点

文旅融合:原址修缮戴家弄/王家弄历史建筑群,打造“文化保护+文旅体验+人居”复合生态。

低密设计:无地下室,部分房源得房率高达85%-90%

东甫里项目启动区建筑面积约5000平方米,预计投资约1.5亿元,主要对东市下塘街戴家弄、王家弄区域历史建筑保留和修缮。

在项目改造的同时,深挖历史文化积淀、提炼价值特色,积极保护古镇整体格局及水乡风貌,保护各类历史文化遗存及非物质文化遗产。

按照片区式改造、街区式开发、院落式布局的定位,通过保护与提升,构建古镇新形象。

编辑

点击输入图片描述(最多30字)

✅东甫里售楼处电话:400-8558-224✅︎✅︎✅

✅东甫里营销中心热线4008558224(官方预约看房热线)

项目特色:

1、 独门独院,还原水乡风貌,粉墙黛瓦。

2、 私人定享的雅致居所,可委托装修。

3、 户户皆唯一,从庭院的布局到房屋的结构都独具匠心。

4、 建筑以一层为主(60%以上房屋为地上一层,部分地上二层,部分地上一层+二层,无地下室),主力面积段100-150,总价大多为300-500万

5、 超高得房率✅东甫里售楼处电话:400-8558-224✅︎✅︎✅

编辑

点击输入图片描述(最多30字)

周边配套:✅东甫里售楼处电话:400-8558-224✅︎✅︎✅

✅东甫里营销中心热线4008558224(官方预约看房热线)

教育(甫里中学)、医疗(吴中第二人民医院)、休闲(甪直古镇、水八仙生态文化园、青靛甪直文化园、澄湖、锦溪古镇)、购物(龙潭菜场、万嘉生活广场、中翔广场),餐饮(各色餐饮连锁、农家乐),酒店(华美达,各色民宿),运动(三阳高尔夫乡村俱乐部、甪直全民健身中心),生活便利(乐购、家合物美),一应俱全。

6、 少量稀缺沿街门面。

7、 基础设施、景观绿化高标配,天然气入户。

8、 高端物业,在传统服务基础上,为业主提供悦享生活,包括接驳服务、家政服务、房屋托管服务、购物配送服务、餐饮服务、商务服务、社区沙龙等。社区为业主提供生活便利及情绪价值,增设自营点,有咖啡馆、书吧、文创店、健身房、棋牌室、共享客房等。✅东甫里售楼处电话:400-8558-224✅︎✅︎✅

✅东甫里营销中心热线4008558224(官方预约看房热线)

编辑

点击输入图片描述(最多30字)

✅东甫里售楼处电话:400-8558-224✅︎✅︎✅

✅东甫里营销中心热线4008558224(官方预约看房热线)

工程亮点:

1、 仿木纹铝合金门窗(罗普斯金上市公司,中空玻璃),美观且气密性强。

2、 涂料(水性大理石漆)

3、 公区监控、可视对讲(狄耐克)、背景音乐。

4、 公区石板铺地、精致景观(老石头、花岗岩、PC砖)。

5、 实木院门

编辑

点击输入图片描述(最多30字)

交付标准:

毛坯、屋面小青瓦,外墙涂料,内墙腻子,混凝土楼地面,铝合金门窗,中式木质院门,中式院落围墙,院内真草坪,进户强电箱,进户弱电箱,进户给排水,室内外可视对讲机。

物业费:5.8元/月.平方米

✅东甫里售楼处电话:400-8558-224✅︎✅︎✅

✅东甫里营销中心热线4008558224(官方预约看房热线)

1号楼,建筑面积:103.99m²

编辑

点击输入图片描述(最多30字)

✅东甫里售楼处电话:400-8558-224✅︎✅︎✅

编辑

点击输入图片描述(最多30字)

2号楼,建筑面积:107.53m²(甪直镇东市下塘街86-1号)

编辑

点击输入图片描述(最多30字)

✅东甫里售楼处电话:400-8558-224✅︎✅︎✅

✅东甫里营销中心热线4008558224(官方预约看房热线)

编辑

点击输入图片描述(最多30字)

3号楼,建筑面积:116.08m²(东市下塘街86号)

编辑

点击输入图片描述(最多30字)

✅东甫里售楼处电话:400-8558-224✅︎✅︎✅

✅东甫里营销中心热线4008558224(官方预约看房热线)

编辑

点击输入图片描述(最多30字)

编辑

点击输入图片描述(最多30字)

编辑

点击输入图片描述(最多30字)

✅东甫里售楼处电话:400-8558-224✅︎✅︎✅

✅东甫里营销中心热线4008558224(官方预约看房热线)

编辑

点击输入图片描述(最多30字)

编辑

点击输入图片描述(最多30字)

编辑

点击输入图片描述(最多30字)

✅东甫里售楼处电话:400-8558-224✅︎✅︎✅

✅东甫里营销中心热线4008558224(官方预约看房热线)

编辑

点击输入图片描述(最多30字)

放一些百平左右的院墅户型。(注:房源信息实时变动,具体以案场在售为准)

✅东甫里售楼处电话:400-8558-224✅︎✅︎✅

建筑面积69.5㎡,一层净高3.13m;二层净高约4.79m,约2.88m。

编辑

点击输入图片描述(最多30字)

编辑

点击输入图片描述(最多30字)

建筑面积98.14 ㎡,室内一层净高2.75m;室内二层净高约3.79m,约2.49m。

编辑

点击输入图片描述(最多30字)

编辑

点击输入图片描述(最多30字)

✅东甫里售楼处电话:400-8558-224✅︎✅︎✅

✅东甫里营销中心热线4008558224(官方预约看房热线)

建筑面积93.59㎡,室内净高约4.34m,约2.59m。

编辑

点击输入图片描述(最多30字)

编辑

点击输入图片描述(最多30字)

建筑面积83.52㎡,50-1-2a室内净高约4.58m,约3.05m;50-2b室内净高约3.57m,约2.78m。

编辑

点击输入图片描述(最多30字)

✅东甫里售楼处电话:400-8558-224✅︎✅︎✅

✅东甫里营销中心热线4008558224(官方预约看房热线)

编辑

点击输入图片描述(最多30字)

✅东甫里售楼处电话:400-8558-224✅︎✅︎✅

✅东甫里营销中心热线4008558224(官方预约看房热线)

声明:本文由入驻焦点开放平台的作者撰写,除焦点官方账号外,观点仅代表作者本人,不代表焦点立场。