钱江大家涌潮府(上海大家涌潮府)2024最新详情-大家涌潮府-户型-容积率
扫描到手机,新闻随时看
扫一扫,用手机看文章
更加方便分享给朋友
独家团购优惠!95折清盘,送车位!浦东曹路地铁新房「钱江大家涌潮府」一房一价发布!约87-125㎡3-4房,450万起!
曹路:涌潮府
首开现场,气氛高热,喜报频传。
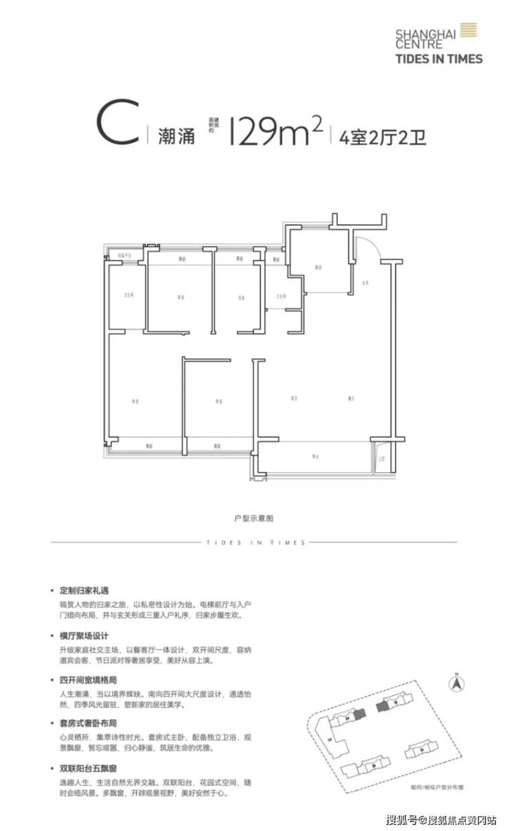
涌潮府,首开253席限量入席,户型为建面约88㎡3房2厅1卫,95、97㎡3房2厅2卫以及129㎡4房2厅2卫。
均价5.15万/㎡,总价约400万起,目前仅少量房源在售,欲购从速
接受置换客户!
2023年7月13日,浙江钱江房地产集团有限公司、宁波维科置业有限公司以及杭州市城建开发集团有限公司以总价77033万元竞得浦东新区曹路基地12-01地块,联动价5.15万/㎡。
地块四至范围:东至12-02地块,南至12-03地块,西至金开南路,北至:海福路。

目前设计方案已发布,项目主要由4栋16层住宅组成,还有1栋社区配套。


据悉,共约253套可售房源,户型为约88㎡3房、97㎡3房以及125㎡4房,预计今年入市!
在上海,约400万起的预算能买到什么样的房子?
距离核心区极远,大多都在郊环以外;
极少能遇到地铁盘,通勤不够便捷;
距离核心区远意味着人口导入困难、产业不足、配套发展滞后,也意味着未来潜力一般;
400万起的新房,不仅产品无法保障。在房企大喊活下去的时代下,就连交付也成为不少购房者的焦虑。
“地铁、近市区、配套、发展潜力、产品力”,约400万级新房想占其一都极为困难!
但对于涌潮府来说,约400万起的价格,全维度的表现却都相当出色,真正的价值高地、价格洼地!
感兴趣的朋友赶紧来看
户型图抢鲜看!
(户型图仅供参考,以开发商最终公布为准)
项目户型曝光:
(户型图仅供参考,以开发商最终公布为准)
样板间的表现无懈可击。










效果图如下:
上海钱江大家项目效果图参考:
2 周边配套
交通方面:项目在9号线曹路站北侧区域,距离曹路站直线距离约2.2公里。
距离崇明线一期凌空北路站(在建)直线距离500米,步行约650米。

崇明线一期预计2026年通车,地铁开通后2站申江路可换乘12号线、3站金吉路可换乘9号线,交通便利,可满足日常通勤需求。
商业方面:周边有中惠棠里、欧亚玛特广场、恒越荣欣广场、好又多购物广场、宝龙城市广场(家乐福)以及在建的招商花园城,可满足日常生活所需。
如果说要满足更丰富的消费需求,未来通过地铁换乘到金鼎天地(在建)、嘉里巨峰路商业(在建)、森兰印象城(在建)等商业中心,自驾也比较方便。
生活方面:海鹏菜市场。
教育方面:12-01地块东侧在建幼儿园,预计2023年7月份竣工,15-01地块南侧在建初中和小学,预计2024年6月份竣工备案完成移交教育局开办,预计招生时间2024年9月。(教育免责:政府不对预售房屋进行学区划分,项目对口学校最终以交房后教育主管部门公布为准)
医疗方面:上海第七人民医院曹路门诊部、上海长征医院浦东分院(在建)。
浦东全新刚需盘
「钱江大家涌潮府」
建面约87-125㎡3-4房
指导价5.15万/㎡
不管是追求地段、性价比、产品力的舒适度,这个项目都能满足你。
售楼处电话:400-886-2258【预约☎】
案场预约制 看房需提前来电预约登记
如有问题欢迎来电咨询,专业一对一热情服务,让您用专业眼光去买房。
声明:本文由入驻焦点开放平台的作者撰写,除焦点官方账号外,观点仅代表作者本人,不代表焦点立场。


