上海露香园黄浦芯顶豪!黄浦露香园风貌别墅,藏尽城央百年风华值否?黄浦露香园别墅官方预约热线!
扫描到手机,新闻随时看
扫一扫,用手机看文章
更加方便分享给朋友
上海黄浦「露香园·云宸」
上海黄浦「露香园·云宸」售楼处电话:400-8118-224【售楼中心】
咨询高峰期请耐心等待,预来电尊享内部优惠,专业一对一热情服务,您用专业眼光去买房。
最新户型图首发!约159-254㎡高层+别墅,
黄浦豫园
露香园二期项目
「露香园·云宸」
露香园二期的可售住宅部分分A、B、C、D四个大地块,
13.3万㎡的住宅总面积中,10.79万㎡为高层住宅,2.44万㎡为低密度特色住宅(别墅),5.22万㎡的商业。
露香园二期预计首推B、D1地块。
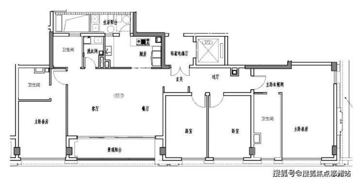
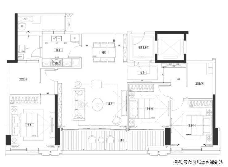
B地块:建面约166-254㎡高层,共177套;D1地块:建面约159-208㎡高层、400平以上别墅。
B地块:

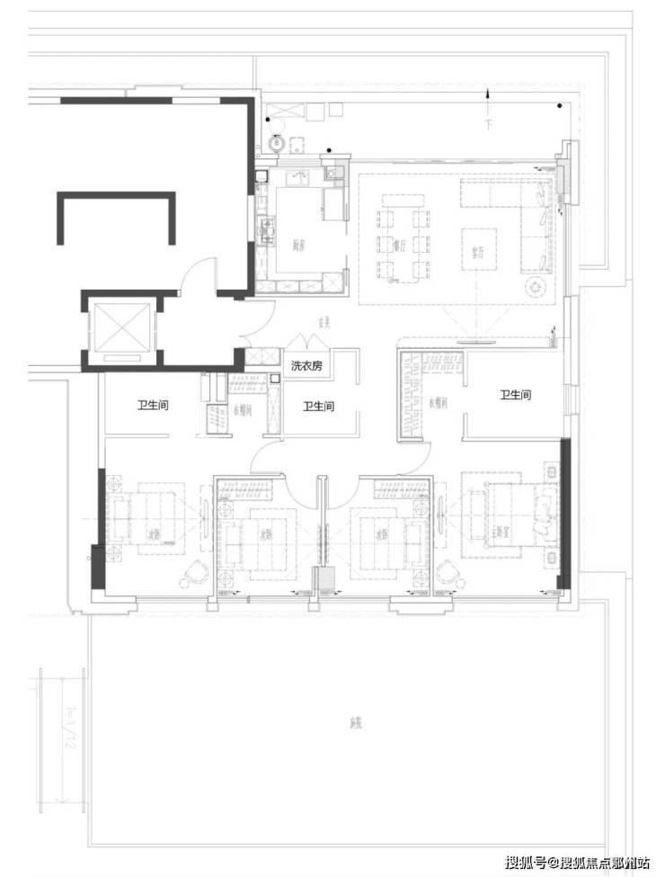
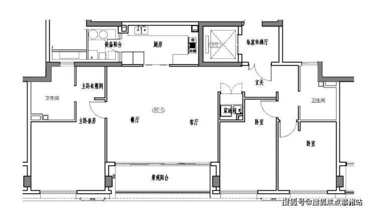
▼建面约253㎡4房2厅3卫
上海黄浦「露香园·云宸」
上海黄浦「露香园·云宸」售楼处电话:400-8118-224【售楼中心】
咨询高峰期请耐心等待,预来电尊享内部优惠,专业一对一热情服务,您用专业眼光去买房。
▼建面约234㎡4房2厅3卫
▼建面约213㎡3房2厅3卫
▼建面约182㎡3房2厅2卫
▼建面约186㎡3房2厅2卫
上海黄浦「露香园·云宸」
上海黄浦「露香园·云宸」售楼处电话:400-8118-224【售楼中心】
咨询高峰期请耐心等待,预来电尊享内部优惠,专业一对一热情服务,您用专业眼光去买房。
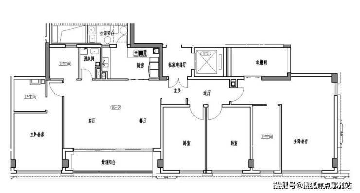
▼建面约166㎡3房2厅2卫
上海黄浦「露香园·云宸」
上海黄浦「露香园·云宸」售楼处电话:400-8118-224【售楼中心】
咨询高峰期请耐心等待,预来电尊享内部优惠,专业一对一热情服务,您用专业眼光去买房。
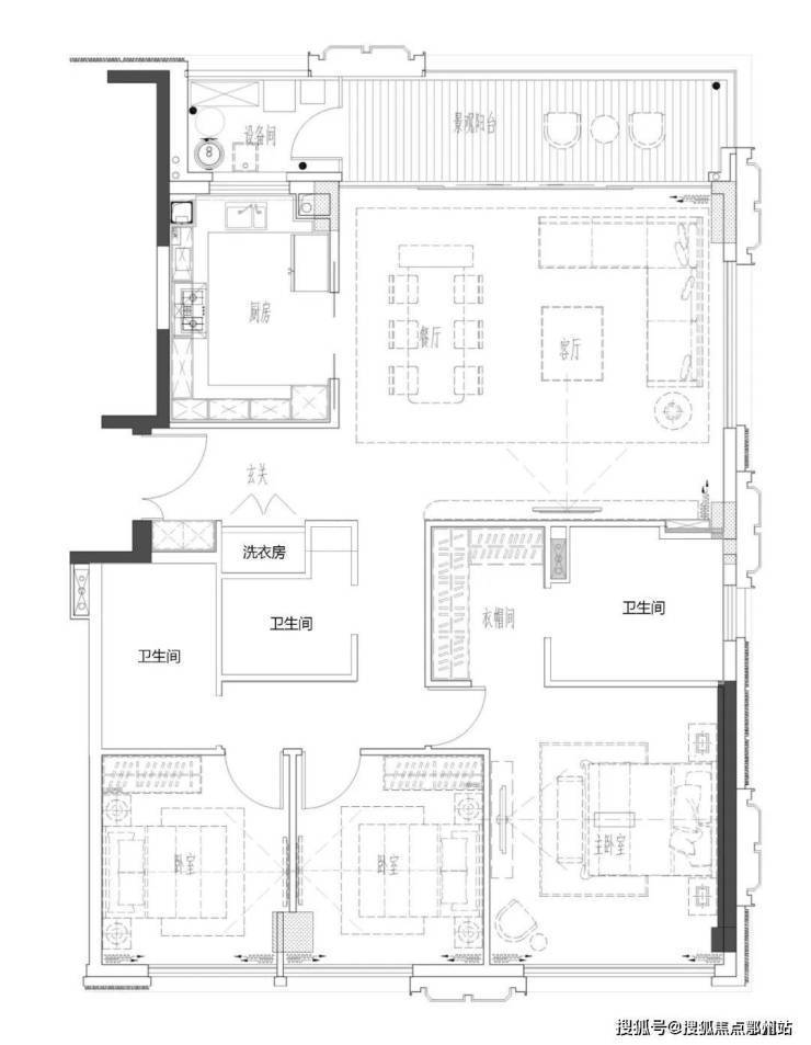
▼建面约199㎡3房2厅3卫
▼建面约217㎡4房2厅3卫
▼建面约229㎡4房2厅3卫
D1地块:

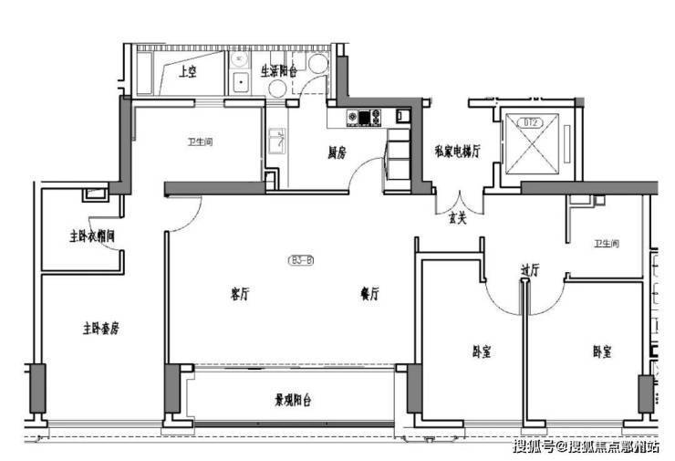
▼建面约208㎡3房2厅3卫
▼建面约159㎡3房2厅2卫
上海黄浦「露香园·云宸」
上海黄浦「露香园·云宸」售楼处电话:400-8118-224【售楼中心】
咨询高峰期请耐心等待,预来电尊享内部优惠,专业一对一热情服务,您用专业眼光去买房。
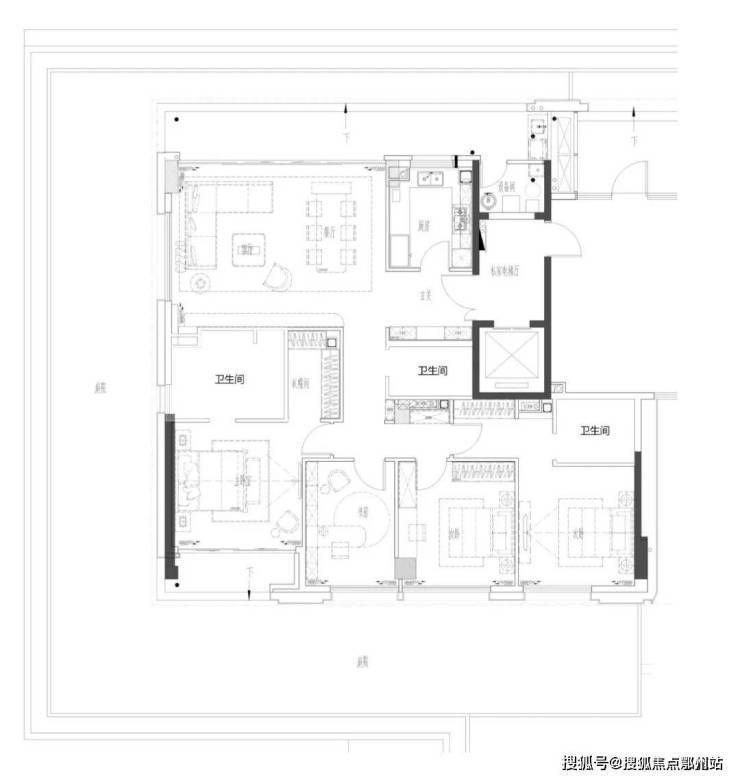
▼建面约196㎡3房2厅3卫
▼建面约224㎡4房2厅3卫
▼建面约215㎡4房2厅3卫
▼建面约198㎡3房2厅3卫
上海黄浦「露香园·云宸」
上海黄浦「露香园·云宸」售楼处电话:400-8118-224【售楼中心】
咨询高峰期请耐心等待,预来电尊享内部优惠,专业一对一热情服务,您用专业眼光去买房。
▼建面约164㎡3房2厅2卫
▼建面约177㎡3房2厅3卫
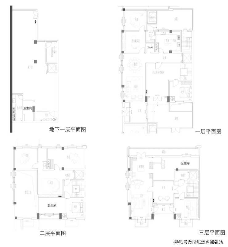
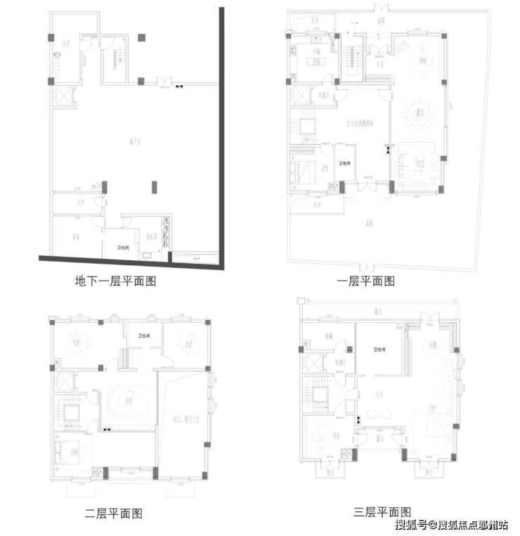
▼别墅 400+㎡
▼别墅 400+㎡
▼别墅 500+㎡
上海黄浦「露香园·云宸」
上海黄浦「露香园·云宸」售楼处电话:400-8118-224【售楼中心】
咨询高峰期请耐心等待,预来电尊享内部优惠,专业一对一热情服务,您用专业眼光去买房。
A地块:约5.45万㎡高层产品,共150套,套均面积364㎡;
B住宅:约3.8万㎡高层产品,共177套,套均面积约216㎡;
C1、C2地块:约1.9万㎡的纯联排及独栋,共46套,套均面积412㎡;
D1地块:约2.1万㎡小高层及联排与独栋,共98套,套均面积282㎡。
二期地块的平均户型面积,比一期大了约20%,特别是二期联排别墅产品,将延续上海传统历史建筑风貌的石库门+现代摩登风格,以一期21万元/㎡的均价计算,预计套均总价接近亿元!
万竹街41号
露香园一期
上海黄浦「露香园·云宸」售楼处电话:400-8118-224【售楼中心热线】营销中心热线400-8118-224官方售楼处地址
4008118224楼盘项目全面介绍,本电话为开发商提供线上预约售楼电话,楼盘项目全面介绍(包含楼盘简介,均价,房
4008118224楼盘项目全面介绍,本电话为开发商提供线上预约售楼电话,楼盘项目全面介绍(包含楼盘简介,均价,房价,现房,期房,别墅,叠墅,大平层,价格,楼盘地址,户型图,交通规划,备案价,备案名,项目配套,样板间,开盘时间,认筹时间,楼盘详情, 售楼处电话,最新消息,最新详情,周边配套,一房一价,最新进展等详情咨询)楼盘详情丨价格丨更多优惠丨机不可失丨欢迎致电丨诚邀品鉴!售楼处位置丨特价房丨工抵房丨剩余房源丨户型图丨最新消息丨免责声明:将文章内容综合来源于网络、只作分享,版权归原作者所有!!如有侵权,请联系我们。(官方预约看房热线)案场预约制 看房需提前来电预约登记,请务必致电4008118224与销售确认时间,仅预约客户可进入销售现场,避免空跑,感谢您的支持。售楼处楼盘详情,售楼处电话400-8118-224,售楼处官方电话400-811-8224,售楼处地址,售楼处面积,售楼处户型,售楼处价格,售楼处优惠,售楼处交通,售楼处学区,售楼处商业,售楼处得房率,售楼处绿化率,售楼处开盘时间,售楼处交房时间,售楼处百科详情!
声明:本文由入驻焦点开放平台的作者撰写,除焦点官方账号外,观点仅代表作者本人,不代表焦点立场。


