外滩瑞府 (售楼处) 首页 - 外滩瑞府销售中心 - 环境 - 户型 - 价格 - 地址 - 楼盘详情 - 配套 - 电话 - 交房时间 - 配套 - 电话 - 交房时间
扫描到手机,新闻随时看
扫一扫,用手机看文章
更加方便分享给朋友
外滩瑞府售楼处电话:400-9988-414(预约看房热线)
外滩瑞府营销中心电话:400-9988-414
外滩瑞府售楼中心:400-998-8414
虹口北外滩核心 「外滩瑞府」二批将推建面约建面约124㎡-165㎡-195㎡-280㎡无界大宅!首开劲销24.8亿!
外滩瑞府售楼处电话☎:400-9988-414✔✔欢迎来电咨询! (预约看房热线)可预约销售人员,专业一对一热情服务,让您用专业眼光去买房。
外滩1.2公里!虹口内环内的外滩瑞府,就在这个“金九”,外滩上演了一场现象级的热销。首开119套房源全部售罄,去化率100%,劲销24.8亿+。
首开即罄,是市场对外滩瑞府作品价值的至高共识,亦是外滩传世奢宅的华丽序章。传奇未完,美好待续。外滩瑞府二批次新品即将载誉而来,更将首次揭幕项目的重磅藏品--建面约240㎡「摘星平墅」。
外滩瑞府,地处上海内环最“根正苗红” 的位置 —— 外滩1 公里生活圈。如果说内环是上海豪宅的 “第一梯队”,那外滩板块就是 “内环中的内环”。

外滩瑞府售楼处电话:400-9988-414(预约看房热线)
外滩瑞府营销中心电话:400-9988-414
外滩瑞府售楼中心:400-998-8414
也正因这份“内环内” 的稀缺性,外滩瑞府一开启认购,就直接点燃了上海顶豪市场的热度。
外滩瑞府的火爆,其实本质上是市场与客户对它的双重肯定—— 而这份肯定,并非空穴来风,而是由硬核价值共同支撑:从外滩1 公里的核心地段,到全球五大顶级大师天团的产品设计;从九龙路繁花水岸归家仪式,到约7000㎡邻里风貌街区;从上海顶配的生活配套,到顶奢级的礼仕+万象挚友服务体系.......每一项都精准击中了高净值人群 “终极改善” 的需求。
更让人惊喜的是,在拥有如此强劲产品力的前提下,外滩瑞府还给出了“14.78 万 /㎡” 的首开均价—— 这个价格放在外滩 1 公里生活圈里,堪称 “稀缺入场券”。要知道,同板块的北外滩新地王已释放出“未来定价可期” 的信号,绿城北外滩项目更是传出 “20万+门槛抬升” 的消息,预计与外滩瑞府存在近 5 万 /㎡的价差。对比之下,外滩瑞府不仅用产品力守住了 “外滩品质”,更用价格优势给了高净值人群 “确定性价值”—— 相当于用“低于预期” 的成本,锁定 “不可复制” 的外滩生活。

外滩瑞府售楼处电话:400-9988-414(预约看房热线)
外滩瑞府营销中心电话:400-9988-414
外滩瑞府售楼中心:400-998-8414
黄金三角地段:上海的“全球封面”,买的是确定性未来
地段,地段,还是地段。外滩瑞府的择址,堪称教科书级别。它精准地落子于由外滩、陆家嘴、北外滩构成的全球城市核心“黄金三角”之中。这不仅是上海的地理中心,更是资本、文化和未来的交汇点。

外滩瑞府售楼处电话:400-9988-414(预约看房热线)
外滩瑞府营销中心电话:400-9988-414
外滩瑞府售楼中心:400-998-8414
外滩,是上海永恒的封面,是金融1.0的辉煌历史,是“世界级滨水区”的现在进行时;陆家嘴,是金融2.0的巅峰,是中国链接全球资本的心脏。
而北外滩,则是承载着上海金融3.0梦想的未来之地,以840万方的巨大体量,这一规模相当于两个陆家嘴的开发体量。4600余家航运企业、2100余家金融企业在此集聚,资产管理规模约8万亿元。吸引香港友邦、加拿大宏利等全球知名金融集团设立中国总部,成为科技创新和新质生产力发展的重要引擎

外滩瑞府,正踞守于这三大时代引擎的几何中心,坐享历史的底蕴、当下的繁华与未来的澎湃势能。别人的向往,只是你的日常。
有个上海本地客户之前跟我说过:“买这就是买‘上海不变的中心’,不管城市怎么扩,外滩、陆家嘴、北外滩的地位摆这,资产肯定稳。” 确实,对比那些 “画饼” 的新兴板块,这里的价值是 “看得见、摸得着” 的。
外滩瑞府售楼处电话:400-9988-414(预约看房热线)
外滩瑞府营销中心电话:400-9988-414
外滩瑞府售楼中心:400-998-8414
如果说地段是“硬价值”,那 “人文氛围” 就是外滩瑞府的“软优势”。项目毗邻的上海音乐谷,不是普通的文化街区,而是政府重点打造的“全球音乐产业先锋集群”—— 对标伦敦西区、纽约百老汇,规划了五大露天舞台、四大剧院、一座音乐博物馆,未来百年里弄可能变爵士乐空间,滨水市集里藏着即兴表演,整个区域就是“永不落幕的世界级音乐厅”

更值得关注的是,音乐谷所在的虹口嘉兴路01 单元,是北外滩唯一入选 “上海十大重点城市更新单元” 的区域,与黄浦外滩、徐汇衡复历史街区同级。这意味着,这里的人文氛围不是“短期炒作”,而是未来恒定的 “长期艺文价值”!
外滩瑞府构建了一个“出则繁华,入则宁静”的完美生活闭环。它的配套,不是简单的罗列,而是“世界级”的荟萃。
l商业:南京东路-外滩、苏河湾、北外滩顶级商圈环绕,外滩源、苏河湾万象天地、白玉兰广场等潮流地标近在咫尺。
外滩瑞府售楼处电话:400-9988-414(预约看房热线)
外滩瑞府营销中心电话:400-9988-414
外滩瑞府售楼中心:400-998-8414
l交通:真正的TOD生活。步行约400米即达10号线四川北路站,周边更有4号线、19号线(在建)等4条轨交。自驾则有北横通道、新建路隧道、外滩隧道等构成的“三纵两江绿地、四川北路公园等城市绿肺环伺;上海市第一人民医院等三甲医院提供健康保障横”快速路网,高效通达全城。
l生活:北外滩滨;周边更汇集了虹口区中州路第一小学、民办新华初级中学等优质教育资源,构筑全维生活界面。
对顶豪业主来说,“便利” 和 “高端” 缺一不可,而外滩瑞府的配套,刚好满足了 “步行可达的奢华”!

归家的路,是生活的第一重仪式感。外滩瑞府以塞纳河左岸的文艺氛围为灵感,联动虹口港滨水空间,将九龙路主入口打造成一条繁花似锦的艺术归家之路。

外滩瑞府售楼处电话:400-9988-414(预约看房热线)
外滩瑞府营销中心电话:400-9988-414
外滩瑞府售楼中心:400-998-8414
根据九龙路滨水归家阶段性方案最新“剧透”(非终版),这里将规划呈现海派红砖艺术长廊、迎宾树阵、宠物友好花园、文化景墙和全龄疗愈花园等多重场景。这不再是一条简单的道路,而是一个集漫步、社交、休闲于一体的滨水美学街区。以上为外滩瑞府目前构想,未来方案将继续优化,未来成为上海新的City walk打卡地指日可待!

对养宠物的家庭、有老人的家庭来说,这条归家路不只是“好看”,更是 “实用”—— 宠物能在专属花园撒欢,老人能在树荫下散步,每个细节都藏着“对生活的尊重”。
外滩瑞府不止于造房子,更在于重塑街区。项目携手政府,重磅打造了约7000㎡的沉浸式艺术风貌街区——“艺术邻里新弄堂”。这不仅仅是社区的延伸,更是对标“新天地”的下一个城市文化地标。
未来,这里将融合党群服务中心等公共功能,并植入社区咖啡、艺术工坊、精品市集等潮流业态。它既有海派弄堂的烟火气,又有现代艺术的国际范。居于此,下楼即是一场艺术的漫游,生活的情调与社区的温度在此无界交融。

外滩瑞府售楼处电话:400-9988-414(预约看房热线)
外滩瑞府营销中心电话:400-9988-414
外滩瑞府售楼中心:400-998-8414
想象一下,周末带孩子在弄堂里逛艺术展,下楼就能买新鲜蔬菜,这种“文艺 + 烟火” 的融合,正是“真正的上海生活”!
在寸土寸金的内环,阳光和视野是最奢侈的配置。外滩瑞府通过创新的“放射状黄金倾角”楼栋布局,解决了高密度城区的采光难题。项目罕见地基本做到了全楼栋采光均好,确保冬至日每户采光可达4.5小时以上,这在同类项目中几乎是不可想象的。

这种布局不仅带来了阳光,更带来了无与伦比的开阔视野。楼栋之间互不遮挡,视线可以无限延伸,首开楼栋2号楼的中高区将陆家嘴的天际线、北外滩的未来图景尽收眼底;低区近处悦享社区莫奈花园的四季流转,远处揽收城市公园的绿意充沛,抬眼便是自然的疗愈。首开2#楼,让每一位业主都能享受到属于自己的那片城市风景。
在社区内部,外滩瑞府邀请国际景观大师Pok Kobkongsanti,打造了一座令人惊叹的“印象派自然秘境”。大师将他对印象派光影的理解,化作了可步入、可触摸的风景。六大主题花园与贯穿全域的风雨连廊,共同演绎出一个流动的艺术生活范本。

外滩瑞府售楼处电话:400-9988-414(预约看房热线)
外滩瑞府营销中心电话:400-9988-414
外滩瑞府售楼中心:400-998-8414
或许,这就是顶豪生活的真谛——让艺术不再是画廊上的画,而是脚下的路,眼前的景。你脚下的草坪,或许就是马奈笔下的日光;转角的繁花,可能就是雷诺阿花园的复刻;水边的光影,倒映着莫奈的睡莲和梵高的星空。
提到“顶奢豪宅”,很多人会想到汤臣一品,而外滩瑞府的泛会所,正是由汤臣一品的设计师渡边智昭倾心设计。他大胆突破传统,不仅打造了独立的“室内外双幕水剧场”,更创造性地将社交功能分散于四栋塔楼之下,规划了温莎廊吧、公啡花房、子恺乐园与Gym CLUB四大主题泛会所。

以首开2号楼下的“温莎廊吧”为例,这里是业主专属的私享天地。复古砖红呼应海派风情,叶脉纹大理石地面延伸出流动的美感。中西厨餐厅、私密宴请区、独立棋牌室、酒窖、吧台……这里既是家楼下的私宴厅,也是格调独具的社交场。这是一种全新的、充满游园之趣的艺术社交体验。

外滩瑞府售楼处电话:400-9988-414(预约看房热线)
外滩瑞府营销中心电话:400-9988-414
外滩瑞府售楼中心:400-998-8414
建面约124㎡3房:
南北通透全明户型,三开间朝南设计;“S”墙收纳、室内5个飘窗延伸空间,据说每个卧室开间尺度均达到3米及以上,完全满足改善居住的收纳需求!主卧套房设计,隐私性较强,室内空间尺度优秀!
外滩瑞府售楼处电话:400-9988-414(预约看房热线)
外滩瑞府营销中心电话:400-9988-414
外滩瑞府售楼中心:400-998-8414
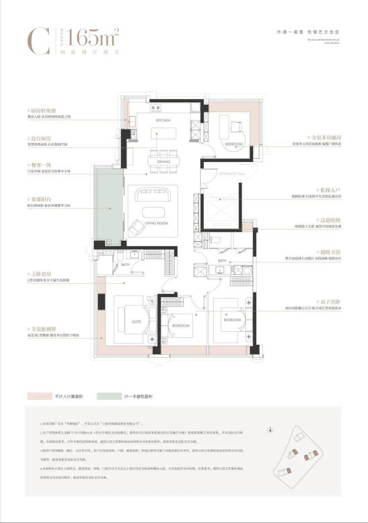
建面约165㎡4房:
大横厅尺度感奢阔,尊享私梯入户,隐私性满分!三间卧室朝南设计的平权户型,老人、小孩均可享受南向采光;厨房转角窗、主卧套房、北向书房均配置270度转角飘窗,景观视野相当不错!次卫四分离设计,相当人性化~
如果说外部配套决定了生活的高度,那么户型设计则决定了生活的温度。外滩瑞府的户型,尤其是建面约161㎡的四房,堪称上海市场上的“天花板”级作品。

外滩瑞府售楼处电话:400-9988-414(预约看房热线)
外滩瑞府营销中心电话:400-9988-414
外滩瑞府售楼中心:400-998-8414
它摒弃了浮夸的重奢风,转而采用香奈儿式的黑白撞色美学,将高级定制理念注入每一寸空间。三大定制级细节,重塑了我们对豪宅的想象:
走进外滩瑞府样板间,最先被打动的不是“奢华装修”,而是华润置地对 “生活场景” 的精准把控 —— 从入户到卧室,每一处设计都在回答 “高净值人群需要怎样的家”。
1. 小香风美学:把奢侈品质感搬进日常
推开入户门,黑色法式镶板收纳柜配哑光皮革柜门,黄铜拉手泛着细腻光泽,瞬间拉满“奢侈品级归家仪式感”;客厅悬浮吊顶的弧形边缘裹着环形灯带,光影自然晕染,彻底打破传统平顶的压抑感。这种 “香奈儿式黑白撞色美学”,没有浮夸的堆砌,却让每一次回家都像走进高端奢侈精品店。

2. 三大定制细节:硬核产品力造就外滩豪宅典范
① 270° 转角飘窗:把上海天际线当 “家景”
主卧、北向书房都配了270° 全景转角飘窗,不仅让阳光最大化涌入,首开 2 号楼中高区还能对望陆家嘴三件套 —— 别人要专程打卡的地标,成了业主日常抬头可见的风景。

外滩瑞府售楼处电话:400-9988-414(预约看房热线)
外滩瑞府营销中心电话:400-9988-414
外滩瑞府售楼中心:400-998-8414
② 中西岛台:厨房变“家庭社交中心”
超大尺度的中西岛台,既符合中式烹饪的实用逻辑(预留足够操作台面),又能承载西式社交(朋友小聚时在岛台品酒聊天),让厨房从“单一做饭空间” 变成 “生活场景发生器”。

③ 四分离公卫:家里不再有卫生间早高峰
对标五星级酒店的四分离设计,把洗漱台、卫生间、淋浴间、洗衣区彻底分开,再配汉斯格雅花洒(或同等品牌)、伊奈智能马桶(或同等品牌),连家政间都藏了洗烘套装—— 有孩子的家庭再也不用 “早上排队洗漱”,细节里全是对生活的尊重。

3. 收纳 + 智能:看不见的地方才是真功夫
① 收纳体系:把“杂乱” 藏得严丝合缝
博洛尼整体橱柜(或同等品牌)用了转角拉篮、下拉式设计,连抽屉都做了分层收纳;中西岛台下方的双层抽屉+ 侧边滑轨柜,能把餐具、小家电 “藏” 得干干净净;更贴心的是 “隐形过道收纳”和主卧步入式衣帽间,真正做到“每一寸空间都不浪费”。

外滩瑞府售楼处电话:400-9988-414(预约看房热线)
外滩瑞府营销中心电话:400-9988-414
外滩瑞府售楼中心:400-998-8414
② 智能健康:给家装个“超级大脑”
厨房的“三重油烟防护” 堪称一绝:嘉格纳大风量油烟机(或同等品牌)秒吸油烟,大金厨房专用空调(或同等品牌)过滤 油烟,再加中央排烟系统杜绝返味,做饭再也不用 “满身油烟味”;
316L 不锈钢水管 + 怡口净软四件套(或同等品牌),直饮水余氯清除率达 98%,喝的每一口水都放心;

华为AI 系统兼容 2900 + 品牌,远程就能预热烤箱、调节空调,甚至能联动燃气、烟雾传感器 —— 一旦检测到隐患,自动关阀、APP 报警、开窗通风,把安全防患于未然。
更难得的是“无感通行”:人脸识别联动单元门、自动呼梯,电梯里还专设“宠物按钮”,养宠家庭带狗出行再也不用 “手忙脚乱”。这些细节,不是 “营销噱头”,而是真正懂生活的 “贴心设计”。

外滩瑞府售楼处电话:400-9988-414(预约看房热线)
外滩瑞府营销中心电话:400-9988-414
外滩瑞府售楼中心:400-998-8414
全球塔尖礼仕服务:对标顶奢酒店级的服务精粹世界万象资源
对高净值人群来说,“服务” 不是 “锦上添花”,而是 “必需品”—— 外滩瑞府“礼仕服务 + 万象挚友” 双重服务体系,刚好做到了 “比业主更懂自己的需求”。
外滩瑞府倾心打造了对标全球顶奢酒店的塔尖服务体系,秉持高效、私密、专属、雅致的4S理念,覆盖46个服务场景和769项严苛标准。提供全时段响应,配合智能安防,保障居家安全与资产增值;涵盖房务打理、深度清洁、爱车养护等,将业主从琐事中解放......

万象挚友则依托苏河湾万象生活资源,依托苏河湾万象天地资源,为未来业主量身定制,涵盖前沿商业、高端物业、顶级圈层、定制礼遇四大维度尊享,集萃外滩高定跨界资源,对标全球的奢适美学生活体验。
例如未来可能通过打造高端运动跑团、举办品牌主理人沙龙等品牌联名社群活动,链接先锋资源;提供米其林高端餐厅一对一订位等星级定制服务,全方位满足业主的个性化生活需求,带来无与伦比的尊崇体验!
外滩瑞府售楼处电话:400-9988-414(预约看房热线)
外滩瑞府营销中心电话:400-9988-414
外滩瑞府售楼中心:400-998-8414
当一个项目,在地段、价格、产品、服务等所有维度都做到极致,市场的火爆便成为一种必然。外滩瑞府,不仅是华润置地献给上海的一座封面作品,更是这个时代给予少数人的一个珍贵机遇。它不仅是一处居所,更是一张通往外滩顶奢生活圈的入场券,一件能够穿越周期的硬核资产!

外滩瑞府售楼处电话☎:400-9988-414✔✔欢迎来电咨询! (预约看房热线)可预约销售人员,专业一对一热情服务,让您用专业眼光去买房。
外滩瑞府售楼处电话:400-9988-414(预约看房热线)外滩瑞府营销中心电话:400-9988-414外滩瑞府售楼中心:400-998-8414楼盘项目全面介绍,本电话为开发商提供线上预约售楼电话,楼盘项目全面介绍(包含楼盘简介,均价,房价,现房,期房,别墅,叠墅,大平层,价格,楼盘地址,户型图,交通规划,备案价,备案名,项目配套,样板间,开盘时间,认筹时间,楼盘详情,售楼处电话,最新消息,最新详情,周边配套,一房一价,最新进展等详情咨询)楼盘详情丨价格丨更多优惠丨机不可失丨欢迎致电丨诚邀品鉴!售楼处位置丨特价房丨工抵房丨剩余房源丨户型图丨最新消息丨免责声明:将文章内容综合来源于网络、只作分享,版权归原作者所有!!如有侵权,请联系我们,我们第一时间处理如有问题欢迎来电咨询,专业一对一热情服务,让您用专业眼光去买房。如果您想了解更多楼盘详情,欢迎提前预约拨打外滩瑞府售楼处电话☎400-9988-414
房产知识一百条
1、什么是房产:房屋产权的简称。
2、什么是地产:是指土地财产。
3、什么是房地产:是房产和地产的总称。
4、什么是房地产业:从事房地产开发、建设、经营、管理以及维修、装饰和服务的综合性产业。
5、什么是房地产开发:是指在依法取得土地使用权的土地上按照使用性质的要求进行基础设施、房屋建筑的活动。
6、什么是土地开发:是将“生地”开发成可供使用的土地。
7、集体土地是指:农村集体所有的土地。
8、征用土地是指:国家为了公共利益的需要,可依照法律规定对集体所有的土地实行征用。
9、什么是土地所有权:是指国家或集体经济组织对国家土地和集体土地依法享有的占有、使用、收益和处分的权能。
10、什么是土地使用权的出让:指国家以协议、招标、拍卖的方式将土地所有权在一定年限内出让给土地使用者,由使用者向国家支付土地使用权出让金的行为。
11、什么是土地使用权转让:是指土地使用者通过出售、交换、赠与和继承的方式将土地使用权再转移的行为。
12、什么是地籍、产籍:是对在房地产调查登记过程产生的各种图表、证件等登记资料,经过整理、加工、分类而形成的图、档、卡、册等资料的总称。
13、生地是指:不具备开发条件的土地。
14、熟地是指:已完成三通一平(水、电、道路,土地平整)或七通一平,具备开发条件的土地。
15、什么是宗地:是地籍的最小单元,是指以权属界线组成的封闭地块。
16、什么是宗地图:是土地使用合同书附图及房地产登记卡附图。它反映一宗地的基本情况。包括:宗地权属界线、界址点位置、宗地内建筑位置与性质、与相邻宗地的关系等。
17、证书附图是指:房地产后面的附图,主要反映房地产情况及房地产所在宗地情况。
18、什么是物业管理:泛指一切有关房地产开发、经营、商品房销售、租赁及售后服务。
19、什么是业主委员会:是在物业管理区域内代表全体业主实施自治管理的组织。是代表
物业全体业主合法权益的社会团体,其合法权益受国家法律保护。
20、业主委员会是如何产生的:由业主大会从全体业主中选举产生。
21、住房补贴是指:国家为职工解决住房问题而给予的补贴资助。
22、房屋的所有权是指:对房屋全面支配的权利。
23、房地产交易的两种主要形式是:地产交易形式与房产交易形式。
24、建筑物是指:人工建造而成的房屋和构筑物。
25、构筑物是指:建筑物中除房屋以外的东西。
26、什么是期房:是指消费者在购买时不具备即买即可入住的商品房。
27、期房是如何介定的:房地产开发商拿到商品房预售许可证开始至取得房地产权证大产证或竣工验收合格可以直接入住使用)为止。
28、什么是预售合同:消费者在购买期房时签定的销售合同。
29、什么是现房:是指消费者在购买时具备即买即可入住的商品房,即开发商已办妥所售的商品房的大产证(或已经竣工验收合格并交付使用)的商品房。
30、什么是毛坯房:房地产商交付屋内只有门框没有门,墙面地面仅做基础处理而未做表面处理的房叫毛坯房。
31、什么是成品房:是指对墙面、天花、门套、地板实行装修。
32、什么是商品房:是指以完全的市场价格向购房者出售的房子。
33、商品房预售是指:在房地产尚未建成以前,房地产的经销商在取得受买人一定数量的定金后,将期房出售给受买人。
34、商品房现售是指:指房地产开发企业将竣工验收合格的商品房出售给买受人。
35、二手房通常指的是:再次进行买卖交易的住房。
36、经济适用房指的是:面向中低收入家庭的普通住宅。
37、例出3种以上的安居房的种类:准成本房、全成本房、全成本微利房和社会微利房。
38、低层住宅的介定:1-3层的住宅。
39、多层住宅的介定:4-6层的住宅。
40、小高层住宅的介定:7-11层的住宅。
41、中高层住宅的介定:12-16层的住宅。
42、高层住宅的介定:16层以上为高层住宅。
43、超高层建筑的介定:总高度超过100米的建筑。
44、商品房的结构是指:房屋主体所使用的施工工艺和用材。
45、钢结构的意思是:承重的主要结构是用钢材料建造的,包括悬索结构。
46、钢混结构的意思是:承重的主要结构是用钢和混凝上建造的。
47、砖木结构的意思是:承重的主要结构是用砖、木材建造的。
48、砖混结构的意思是:主要是砖墙承重,部分是钢盘混凝土承重的结构。
49、框架结构的意思是:以钢筋混凝土浇捣成承重梁柱,再用预制的隔墙分户的结构。
50、开间指的是:一间房屋内一面墙的定位轴线到另一面墙的定位轴线之间的实际距离。
51、进深指的是:一间独立的房屋或一幢居住建筑内从前墙的定位轴线到后墙的定位轴线之间的实际长度。
52、层高指的是:下层地板面或楼板面到上层楼层面之间的距离。
53、净高指的是:下层楼板上表面到上层楼板下表面之间的距离。
54、占地面积指的是:地块的总面积。
55、1亩约等于多少平方米:666.66㎡
56、居住小区总用地指的是什么用地的总和:住宅总用地,公共建筑设施总用地,道路、广场用地、庭院、绿化用地的总和。
57、住宅总用地是指:住宅用地面积的总和。
58、公建总用地是指:小区内部公共建筑占地面积的总和。
59、建筑用地面积的介定:建设用地位置和界线所围合的用地之水平投影面积。
60、建筑基底面积是指:建筑物首层的建筑面积。
61、建筑高度是指:建筑物室外地平面至外墙面顶部的总高度。
62、房屋的基底面积是指:房屋的基底面积是指建筑物底层勒脚以上外围水平投影面积。
63、道路面积是指:小区内宽度大于1.5米道路的面积总和。
64、广场面积是指:停车、回车广场和有铺砌地面的场地面积之和。
65、庭院、绿化面积是指:小区内集中绿化带、小公园,以及公共活动场所等为小区所有居住人员共同使用权的绿化面积的总和。
66、假山、小池算不算庭院、绿化面积:算。
67、人均总占地面积(㎡/人)的计算公式:人均总占地面积=建筑红线内总用地÷本小区规划居住总人数。
68、人均住宅用地面积(㎡/人)的计算公式:人均住宅用地面积=小区内总住宅用地÷本小区规划居住总人数。
69、总建筑面积是指:小区内住宅、公共建筑、人防地下室面积总和。
70、人防地下室算不算在总建筑面积之内:算
71、住宅建筑面积是指:住宅建筑外墙外围线测定的各层平面面积之和。
72、套建筑面积是指:一套房屋的整体面积。
73、套建筑面积的构成是:套内建筑面积和套分摊的公用建筑面积
74、幢(栋)是指:一座独立的,包括不同结构和不同层次的房屋。
75、架空房屋是指:一般为底层架空,以柱子作为承重支撑物的房屋。
76、夹层是指:位于两自然层之间的楼层,指房屋内部空间的局部层次。
77、技术层的意思是:用作水、电、暖、卫生等设备安装的局部层次。
78、技术层层高在多少以上计算层数:2.20米以上的计算层数。
79、结构转换层是指:建筑物某楼层的上部与下部因平面使用功能不同,该楼层上部与下部采用不同结构类型,并通过该楼层进行结构转换,则该楼层称为结构转换层。
80、跃层式住宅是指:一套住宅占两个楼层,由户内楼梯联系上下层,上下两层完全分隔。
81、阁楼是指:利用房屋内的上部空间加建的楼层。
82、阁楼层高在多高以上计算面积:2.20米以上。
83、地上层数是指:即房屋的自然层数,指室内地坪±0.00以上的按楼板结构分层的层高在2.20米以上的楼层数。
84、地上层数用什么数表示:自然数。
85、地下层数是指:采光窗在室外地坪以下的,其室内层高在2.20米以上的地下室的层数。
86、地下层数用什么数表示:负数。
87、房屋总层数是指:房屋的地上层数与地下层数之和。
88、地下层数算不算在房屋总层数之内:算。
89、例出3个以上不算在房屋总层数内的建筑层:假层、夹层、阁楼、装饰性塔楼、楼梯间、水箱间。
90、柱廊是指:有顶盖和支柱,供人通行的建筑物,称为有柱走廊,简称柱廊。
91、骑楼是指:底层为有柱廊房,廊道上方建为楼房的一部分。
92、挑廊是指:指二层以上挑出房屋墙体外,有围护结构,无支柱有顶盖的外走廊。
93、门廊是指:建筑物门前有顶盖,有支柱或围护结构的进出通道。
94、门斗是指:支撑建筑物门前顶盖的是实体墙称为门斗。
95、檐廊是指:房屋檐下方两端有支撑墙体无柱的通道。
96、天棚是指:即天篷,有透明顶篷履盖的屋面。
97、晒台又称什么:露台。
98、露台是指:供人室外活动的上人屋面或底层地面伸出室外的有维护无顶盖的台面。
99、阳台是指:有永久性上盖、有围护结构、有台面、与房屋相连、可以供人活动或利用的房屋附属设施。
100、阳台的分类有:封闭式阳台和半封闭式阳台。
外滩瑞府售楼处电话☎:400-9988-414✔✔欢迎来电咨询! (预约看房热线)可预约销售人员,专业一对一热情服务,让您用专业眼光去买房。
声明:本文由入驻焦点开放平台的作者撰写,除焦点官方账号外,观点仅代表作者本人,不代表焦点立场。


