海玥黄浦源丨海玥黄浦源售楼处欢迎您丨黄浦海玥黄浦源楼盘详情 /价格
扫描到手机,新闻随时看
扫一扫,用手机看文章
更加方便分享给朋友
黄浦区人民广场
苏州河新地标
「海玥黄浦源」
售楼处电话:400-886-1552
案场限流 看房请务必提前来电预约登记
售楼处已开放
建面约93-577㎡高层公寓
有望第六批次入市
联动价:高层13.8万/㎡、别墅25万/㎡
项目效果图
海玥黄浦源地处黄浦静安交汇处,南临人民广场,北临苏州河,地理位置得天厚。地铁1号线新闸路站、13号线自然博物馆站、黄河路美食街、南京东路步行街、游艇码头、雕塑公园等都近在咫尺,是上海建工倾力打造的市中心品质小区。

项目地块示意图
海玥黄浦源由1、7号两个地块组成。超高层+低密别墅的产品组合,将重塑板块天际线,成为区域内的新地标。

新昌城二期效果图

「海玥黄浦源」
售楼处电话:400-886-1552
案场限流 看房请务必提前来电预约登记
1号地块:
1号地块位于6号地块(上海滩新昌城)以北,东至新桥路,南至新闸路,西至成都北路,北至南苏州路及九子公园,是项目距离苏州河最近的地块。
新昌城二期1号地块效果图
新昌城二期1号地块平面示意图
新昌城二期1号地块实景图
1号地块将建4栋16-50层的高层产品,其中1#楼建筑高度达165米(浦西顶豪海泰北外滩约160米,华侨城苏河湾双子塔约150米)。
新昌城二期1号地块效果图

新昌城二期1号地块效果图
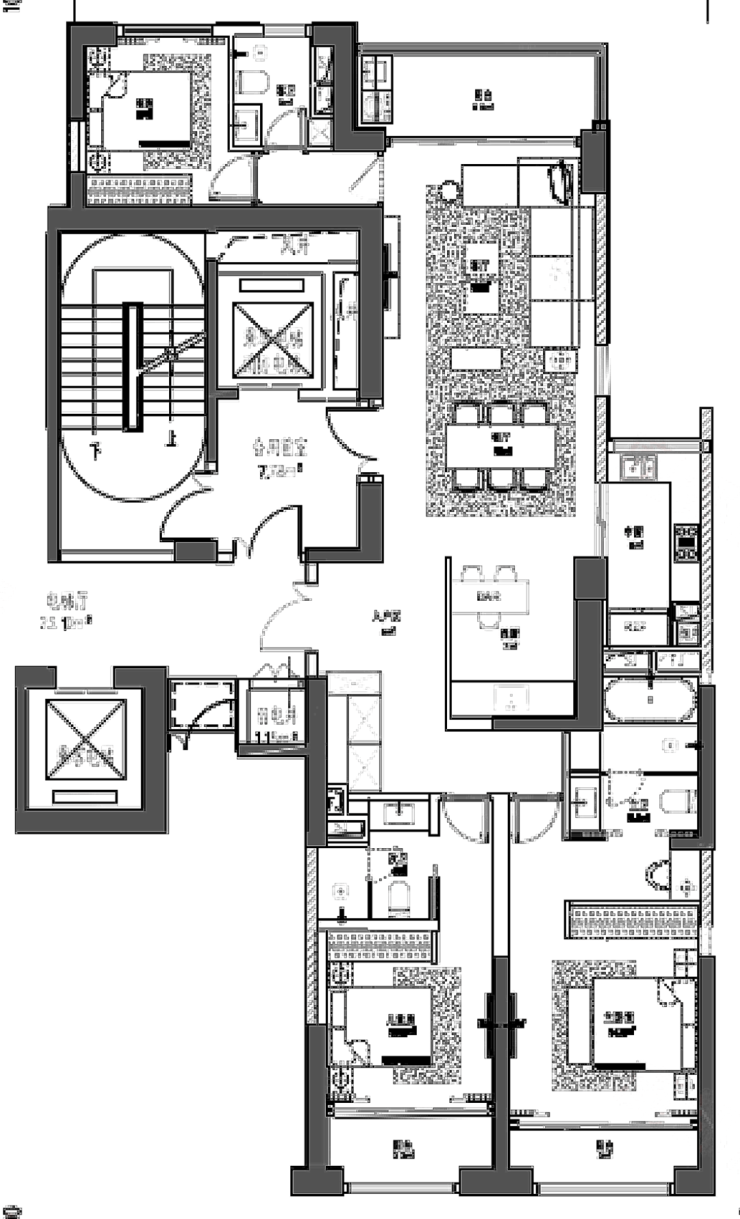
预计首开1号地块中两栋,主力户型为建面约93-577㎡。户型图如下:(户型图为过程稿,仅供参考,最终以开发商发布为准)









「海玥黄浦源」
售楼处电话:400-886-1552
案场限流 看房请务必提前来电预约登记
7号地块:
7号地块位于6号地块(上海滩新昌城)以南,东至新昌路,南至北京西路,西至成都北路,北至山海关路,距离人民广场直线距离仅约500米。
新昌城二期7号地块效果图
新昌城二期7号地块实景图
根据规划,7号地块做的是文保别墅的改造,在原有建筑的基础上做一些结构的变化,保有原来的建筑特色,主力产品为建面约180-660㎡的联排、双拼和独栋。
新昌城二期7号地块效果图
新昌城二期7号地块示意图
「海玥黄浦源」
售楼处电话:400-886-1552
案场限流 看房请务必提前来电预约登记
周边配套
交通方面,项目紧邻地铁1号线、13号线及南北高架,公共出行或自驾都十分便捷。
实景图
商业方面,项目周边有人民广场、南京东路、南京西路等高端集中商圈。
实景图
教育方面,项目周边有上海市黄浦区曹光彪小学、上海市格致初级中学等知名院校。
实景图
医疗方面,周边有上海市长征医院、上海市静安区北站医院、上海市静安区中心医院等。
「海玥黄浦源」
售楼处电话:400-886-1552
案场限流 看房请务必提前来电预约登记
声明:本文由入驻焦点开放平台的作者撰写,除焦点官方账号外,观点仅代表作者本人,不代表焦点立场。


