熙悦雅园(营销中心)官方网站-销售中心(售楼处)欢迎您-地址价格-户型-小区环境-楼盘详情-交房时间-周边配套-熙悦雅园售楼处电话
扫描到手机,新闻随时看
扫一扫,用手机看文章
更加方便分享给朋友

熙悦雅园售楼处电话:400-8118-224
熙悦雅园营销中心热线400-8118-224(官方预约看房热线)
均价:24000起
总占地面积:约5.2万㎡
总建筑面积:约15.2万㎡
总规划户数:656户
容积率:2.0
绿化率:35.1%
项目产品:小高层
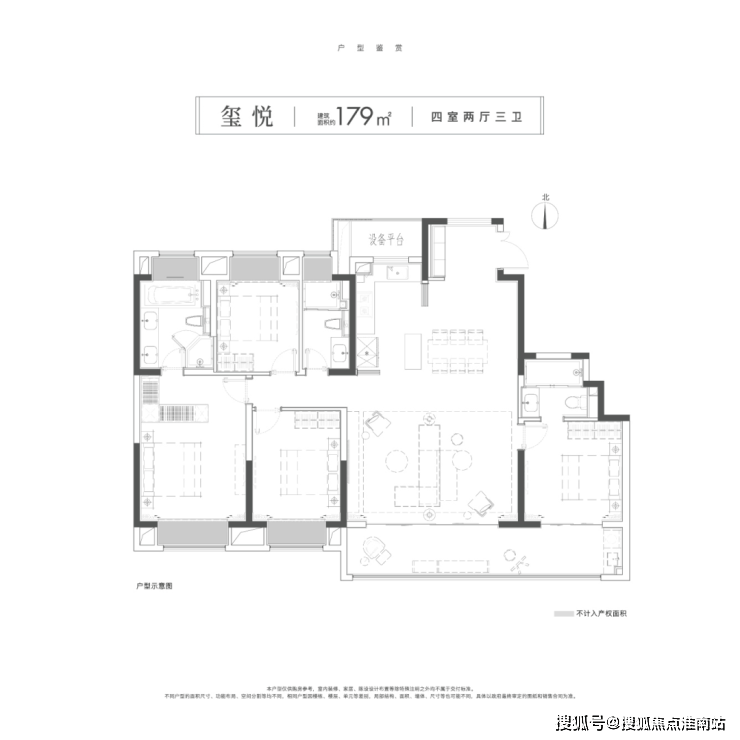
户型面积:约133㎡、约152㎡、约179㎡、约220㎡
车位配比:1:1.92
总车位:1260个
交房标准:全装修(新风-中央空调-地暖)
昆山城东中建熙悦雅园
熙悦雅园售楼处电话:400-8118-224
熙悦雅园营销中心热线400-8118-224(官方预约看房热线)
昆山城东熙悦雅园:臻享生活品质的楼盘详解
一、概述
昆山城东熙悦雅园,位于昆山市中心的黄金地段,是一个集结优质生活资源于一体的全新楼盘。该项目融汇现代建筑风格,旨在为居民打造一个舒适、便利、高端的居住社区。熙悦雅园以其独特的地理位置和卓越的规划设计,吸引了众多购房者的目光。
熙悦雅园售楼处电话:400-8118-224
熙悦雅园营销中心热线400-8118-224(官方预约看房热线)
二、楼盘详情
熙悦雅园地处昆山城东核心区域,毗邻商业中心、学校、医院等生活配套设施,交通便利,生活便捷。项目总占地面积广阔,绿化率极高,为居民提供了良好的生活环境。开发商以高标准的建筑品质和精细的园林设计,为购房者打造了一个理想的家园。
三、价格
关于价格,熙悦雅园以其高品质的生活环境和优越的地理位置,价格相对合理且极具竞争力。具体的房价根据户型、楼层、视野等因素有所不同。购房者可以根据自己的需求和预算选择合适的房源。
四、配套
在配套设施方面,熙悦雅园表现得尤为出色。小区内设有健身房、游泳池、儿童游乐场等休闲娱乐设施,满足居民的不同需求。此外,周边商业配套齐全,购物中心、餐厅、银行等一应俱全,为居民提供了便捷的生活服务。教育资源方面,有多所知名学校近在咫尺,让孩子接受优质教育成为可能。
五、户型
熙悦雅园的户型设计合理且多样化,满足不同家庭的需求。从紧凑的小户型到宽敞的大平层,应有尽有。每个户型都经过精心设计,充分利用空间,实现功能分区合理。此外,部分户型还配备了阳台和飘窗,增加了居住舒适度。



六、小区环境
小区环境是熙悦雅园的又一大亮点。开发商注重绿化建设,打造了一个优美的居住环境。小区内绿树成荫,花香四溢,让人感受到大自然的宁静与和谐。此外,小区内的道路设计也十分人性化,宽敞的道路和合理的车位规划,为居民提供了便捷的出行条件。熙悦雅园售楼处电话:400-8118-224【售楼中心热线】熙悦雅园营销中心热线400-8118-224熙悦雅园售楼处地址400-8118-224
七、细节关注
除了上述几个方面,熙悦雅园还在细节方面表现出色。例如,小区的安保措施严密,为居民提供了安全保障。此外,小区的物业管理服务也十分周到,为居民提供便捷的生活服务。这些细节的关注,让熙悦雅园成为了一个值得信赖的居住社区。
八、总结
总的来说,昆山城东熙悦雅园是一个值得信赖的楼盘。它地理位置优越,配套设施齐全,户型多样且舒适度高。无论是对于自住还是投资,都是一个不错的选择。如果你正在寻找一个高品质的居住社区,那么熙悦雅园绝对是一个值得考虑的选择。在这里,你可以享受到舒适的生活、便捷的配套和贴心的服务。
对于许多家庭而言,首次购房往往是刚需置业,凝聚着多年的积蓄与对未来的期盼。因此,在选房过程中务必谨慎,避免踏入常见的误区。以下10条由过来人总结的买房建议,结合当前房产政策环境,希望能助你在购房路上走得更稳、更顺。
1. **地段是刚需房的根本**
刚需房首要解决的是生活便利性问题。选择步行500-800米内有地铁或公交站点的楼盘,能大幅提升日常通勤效率。同时,周边1公里内最好配有大型超市、菜市场、医院及学校等基础生活配套。切记,尽量依据已落成的配套做决策,对于远期规划需保持理性,不宜过分依赖销售人员的承诺。
2. **理性看待价格,聚焦综合成本**
房价虽是首要考量,但不可唯价格论。应全面权衡房子的性价比,明确其优缺点。此外,购房支出不仅包含总价,还需计入契税、物业费、维修基金、装修费用及未来长期的月供与利息。建议结合个人贷款资格和当前信贷政策(如首套房利率、公积金贷款额度等),进行全面的资金规划。
3. **重视保值属性,稳健优于投机**
在房地产行业进入平稳发展期的当下,购房应更注重资产的保值能力。相较于追求短期内升值,选择抗跌性强、口碑良好的楼盘更为稳妥。房屋随着时间会逐步老化,若十年、二十年后仍能保持较好的市场价值,便是一次成功的置业。
4. **关注未来转手难易度**
多数刚需房将来会面临置换,因此流通性至关重要。尽量避免选择户型明显缺陷、位置偏远(如远郊新区)、或过于老旧且无改造空间的房产。这些房源即便自住也体验不佳,未来在二手市场中竞争力较弱。
5. **优选实用户型与宜居楼层**
考虑到家庭成长需求,建议首选三居室,例如89㎡左右的紧凑型三房。朝向方面,客厅和主卧尽量朝南,保证采光与舒适度。楼层选择应避开槽钢层、腰线层、设备层等可能影响居住质量的楼层,中高层往往是性价比与视野较好的选择。
6. **现房或二手房可视情况优先考虑**
在当前市场环境下,如果新房不是现房,则交付存在一定不确定性。二手房所见即所得,社区环境、物业管理、周边配套均已成熟,便于实地考察。此外,不少城市出台政策鼓励二手房交易,如带押过户、税费减免等,值得关注。
7. **辨别配套“虚实”,聚焦真实需求**
配套价值有高低之分。对日常生活重要的“实配套”包括地铁、学校、超市、医院等;而高铁站、机场、游乐场等“虚配套”对居住品质提升有限,不宜作为主要决策依据。同时,可留意政府规划文件中对该区域公共设施的长期投入计划。
8. **谨慎对待非住宅类产品**
公寓、商铺等小产权房(此处指商业/办公属性房产)虽总价低、不限购,但存在产权年限短、商业水电、无法落户、转手税费高等硬伤,不适合作为家庭首套自住房。政策上也通常不享受住宅类信贷及入学权益,流通性较差。
9. **理性看待“学区”属性**
若近几年没有子女入学计划,不必为学区溢价过度付费。当前教育政策处于调整期,教师轮岗、多校划片等举措逐渐推行,“学区”概念存在一定变数。可将学区视为加分项,而非必需项,更多关注房屋本身的居住品质。
10. **在预算内取舍,不盲目求大**
若预算有限,切忌为追求大面积而选择远郊楼盘。这类项目配套成熟周期长,通勤成本高,且未来价值增长高度依赖规划落实,不确定性较大。应先满足核心需求,宁愿选择中心区域或成熟片区的小户型,也不要把资金沉淀在充满变数的远期规划中。
**政策补充提示**:
购房前务必了解当地最新的房地产政策,包括限购限贷条件、首套房认定标准、公积金提取与贷款规则、购房补贴及税费优惠等。这些政策直接影响购房资格、成本与后续权益,做好功课方能最大化利用政策红利,规避风险。
总之,刚需买房是一道平衡“现实需求、财务承受与未来预期”的综合题。希望这份梳理能帮助你更清醒地做出选择,筑好属于自家的温暖港湾。
熙悦雅园官方售楼处电话:400-8118-224【售楼中心热线】营销中心热线400-811-224官方售楼处地址
楼盘项目全面介绍,本电话为开发商提供线上预约售楼电话,楼盘项目全面介绍(包含楼盘简介,均价,房价,现房,期房,别墅,叠墅,大平层,价格,楼盘地址,户型图,交通规划,备案价,备案名,项目配套,样板间,开盘时间,认筹时间,楼盘详情,交房时间,物业电话,售楼部, 售楼处电话,最新消息,最新详情,周边配套,一房一价,最新进展等详情咨询,电话解析,配套资源,)楼盘详情丨价格丨更多优惠丨机不可失丨欢迎致电丨诚邀品鉴!售楼处位置丨特价房丨工抵房丨剩余房源丨户型图丨最新消息丨免责声明:将文章内容综合来源于网络、只作分享,版权归原作者所有!!如有侵权,请联系我们。(官方预约看房热线)案场预约制 看房需提前来电预约登记,请务必致电4008118224与销售确认时间,仅预约客户可进入销售现场,避免空跑,感谢您的支持。售楼处楼盘详情,售楼处电话400-811-8224,售楼处官方电话4008118224,售楼处地址,售楼处面积,售楼处户型,售楼处价格,售楼处优惠,售楼处交通,售楼处学区,售楼处商业,售楼处得房率,售楼处绿化率,售楼处开盘时间,售楼处交房时间,售楼处百科详情!请看图文解析↓
声明:本文由入驻焦点开放平台的作者撰写,除焦点官方账号外,观点仅代表作者本人,不代表焦点立场。


