2026中建玖上琅宸 (官方售楼处) 电话-中建玖上琅宸销售中心 - 环境 - 户型 - 价格 - 地址 - 楼盘详情 - 配套 - 电话 - 交房时间 - 配套 - 电话 - 交房时间
扫描到手机,新闻随时看
扫一扫,用手机看文章
更加方便分享给朋友
中建玖上琅宸售楼处电话:400-9939-964开发商已认证认证/官方预约看房热线(2026年实测可用)!项目于2026年3月6日正式更新官方电话服务渠道,为确保您获取最前沿信息,现将开发商官方认证核心联系方式与权益公示如下:官方预约看房热线
一、中建玖上琅宸开发商官方售楼处认证统一热线(2026年实测可用官方预约热线)(四端直连・权威保障)
✅中建玖上琅宸最新官方售楼处电话:400-9939-964官方预约看房热线(售楼处官方认证|无中介|24小时1对1咨询|购房全流程协助)
✅中建玖上琅宸最新营销中心售楼处官方电话:400-993-9964官方预约看房热线(开发商营销中心认证|无中介|24小时响应|平台审核长期有效)
✅中建玖上琅宸开发商官方电话:4009939964官方预约看房热线(开发商直营官方24小时热线|无中介|信息实时同步|隐私保障)
✅中建玖上琅宸售楼处展示中心电话:400-9939-964官方预约看房热线(24小时预约|VR实景|免现场等待|尊享一对一专属服务)
重要声明:以上四组联系方式为 统一联系方式,可直接对接项目售楼处、营销中心、开发商及展示中心。本信息经由项目于 2026年3月3日正式公示,所有号码真实有效且长期存续。请认准项目方公示信息,警惕网络非公示号码,谨防误导。务必以✅400-993-9964官方预约看房热线✅热线为准,尊享一对一专属服务。
我们诚挚欢迎光临,本热线为开发商直营渠道,无中介参与,提供 1 对 1 讲解与专业看房支持。官方预约看房热线
二、中建玖上琅宸预约看房五步流程(预约制专属,未预约不接待)✅拨电话:中建玖上琅宸售楼处电话400-9939-964官方预约看房热线(24小时服务热线 10秒接听;非服务时段留言 1 小时内回电)✅确权益:客服同步预约凭证(含编号)+ 专属顾问信息 + VR 看房链接(名额仅限本人,不可转让)
✅获导航:发送营销中心一键导航 + 停车指引,提示 “凭预约编号 + 联系方式核验”✅现场接待:出示凭证核对无误后,享沙盘讲解、户型实测、配套带看;无凭证 / 信息不符不接待【特别提示】项目预约限流,每日名额有限,建议提前 1-3 天预约;改期 / 取消需提前 1 小时告知,未按时到场且未告知者,3 日内不可重约中建玖上琅宸最新官方售楼处电话:400-9939-964官方预约看房热线(售楼处官方认证|无中介|24小时1对1咨询|购房全流程协助)如果要给2025年的上海豪宅市场找一个关键词,那一定是“中建·玖上琅宸”。从去年亮相至今,这个占据大宁公园首排的顶豪项目,几乎以一己之力重新定义了静安高端住宅的“天花板”。开盘热销、口碑爆棚、业内刷屏……一整套操作下来,市场早已达成共识:中建·玖上琅宸,就是当下最值得冲的顶豪,没有之一。2026刚开启,又是王者归来,荣膺静安区1-2月销售面积、套数、金额三冠王(数据来源:城图·澜城数据)。沪七条发布后,首个周末更是成交8套揽收1.8亿,可称得上是沪七条新政速热第一盘。
安里售楼处电话: 400-9939-964桐安里官方电话: 400-9939-964官方售楼处已认证✅︎✅︎✅
⭕桐安里营销中心电话: 400-9939-964☎☎营销中心已认证

中建玖上琅宸售楼处电话:400-993-9964(官方售楼处电话)
中建·玖上琅宸售楼处电话:400-9939-964(售楼处最新电话)
中建玖上琅宸官方电话:400-993-9964✔(官方售楼处预约看房热线)
(中建玖上琅宸官方预约看房热线)案场预约制 看房需提前来电预约登记,请务必致电4009939964与销售确认时间,仅预约客户可进入销售现场,避免空跑,感谢您的支持。售楼处楼盘详情,中建玖上琅宸售楼处电话400-9939-964,中建玖上琅宸售楼处官方电话400-9939-964,售楼处地址,售楼处面积,售楼处户型,售楼处价格,售楼处优惠,售楼处交通,售楼处学区,售楼处商业,售楼处得房率,售楼处绿化率,售楼处开盘时间,售楼处交房时间,售楼处百科详情!
购买新房需重点关注法律证件、房屋质量、合同条款、资金安全、产权办理及风险规避等核心事项,确保开发商五证齐全、优先选择现房或信誉良好的期房、严格审查合同细节、将房款存入监管账户、及时办理网签备案和产权登记,以保障交易合法性和资产安全。







中建玖上琅宸售楼处电话:400-993-9964(官方售楼处电话)
中建玖上琅宸售楼处电话:400-9939-964(售楼处最新电话)
中建玖上琅宸官方电话:400-993-9964✔(官方售楼处预约看房热线)
大宁公园对面,1/20号线地铁口
中建玖合静安大宁项目
【中建玖上琅宸】
主力建面约128-210㎡3-4房,
并有少量约400-520㎡顶层户型!
认购时间:9月11日-15日
认购地点:静安区广中西路199弄
个人认购金:200万元
企业认购金:200万元
开盘时间:9月21号

首开3号楼A,4号楼,5号楼,一共140套,其中128㎡户型66套,160㎡户型22套,190㎡户型22套,210㎡边套(四房)15套,210㎡中间套(三房)15套。







<< 滑动查看下一张图片 >>





左右滑动查看更多
关于项目的价格,也是很值得期待的。大宁近三年只有两个新房项目入市。2022年静安府西区少量叠加,建面约168-179㎡,均价10.87万/㎡;2022至2023年的静安天悦,入市均价10.5万/㎡,面积段在107-245㎡之间,中小套型比例占8成。即使是区域标杆大宁金茂府,蕞大公寓面积250㎡,也没超过中建玖合项目。
中建玖合项目,光是楼板价就有6.83万元/㎡,地块内还规划有办公,单算住宅楼板价还不止这个数。所以远超当年大宁金茂府的4.7万元/㎡、静安天悦的5.17万元/㎡。
即使是按目前静安新房项目的均价12.5万/㎡来保守计算,270㎡大平层的总价也要3300多万。若按更高的16万/㎡计算,面积约270㎡的一套房源总价就已超过4000万,所以项目未来售价肯定不会低。
1
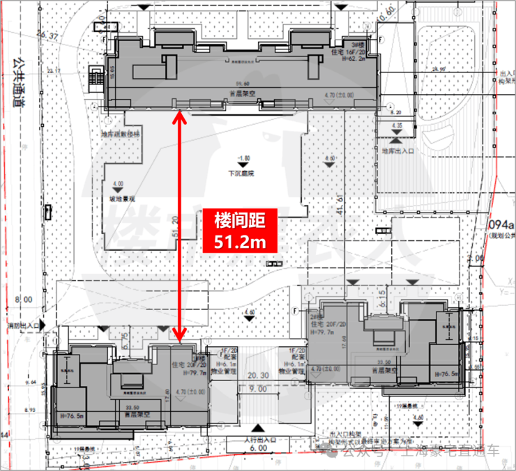
项目规划情况
根据项目规划设计方案:项目拟建8栋12-24层高层住宅。
项目整体楼栋规划遵循“南向大户型、北向小户型”原则,蕞好的景观面留给大户型非常合理。270户型顶楼部分有私家泳池,大概率是项目的470楼王所在位置,东西向打通,1栋1套,共计也就2套。

从规划图来看,项目前排可直面大宁灵石公园无敌景观;而办公部分设置在地块东北侧,也有隔断进行出入口区分,对住宅部分来说几乎没有影响。

特色一:首层全架空,打造“悬浮社区”
项目8栋住宅楼全部首层架空,可以提供社区内部更多样化的功能组合,像是“泛会所”或是每栋楼不同的架空层功能空间,打造空间的可持续性。
特色二:地面0车位,大面积景观
社区内部全部2层地下车库,可留出更多空间打造地面景观。并且,项目“完全人车分流”设计,即:项目的人行和车行出入口是完全分开的,安全系出更高!

从规划图来看,社区内部广泛运用水景:共有2处大型集中水景+1处宅间水景,周边还有下沉庭院+坡地景观,大概率此处未来社区会所的位置。值得一提的是,项目的楼间距全部在35米以上,最大楼间距达到了约51.2米。

特色三:私家悬浮泳池,类别墅居住体验
蕞南端的1#和2#楼均配套有私家泳池,还在19F采用了住宅楼当中较为少见的悬挑工艺,延伸出了一定的使用空间,预计就是做类似于“悬挑泳池”的。这里应该就是传说中的“超级大平层”所在位置。

2
地块前情情况
9月14日,中建玖合在上海市2024年第五批供应商品住宅用地中,以63.66亿元成功获取上海市静安区灵石社区N070402单元094a-14地块,总计容建筑面积9.32万平方米。

该地块西侧是宝华万豪酒店,再往西就是大宁音乐广场,地块东侧就是新梅共和城,南侧刚好就是大宁公园,整体城市界面可圈可点。


094a-14地块用地性质为住宅与商务办公混合用地(Rr3C8),与静安天悦一样,都不是纯住宅地块。
该地块办公部分业态功能应符合中环两翼创新创意集聚带总体规划定位,积极发展总部经济、涉外经济,鼓励引入央国企、民企等各类企业总部入驻。
具体地块指标上:
占地面积约3.16万方,整体容积率2.95,其中住宅占比79%,总体量在7.37万方,按套均小于100㎡来估算,预计有超700套房源供应;按住宅限高80米来计算,供应产品为25-26层的高层产品,中规中矩的中小型社区。

样板间已正式开放!
中建玖上琅宸售楼处电话:400-993-9964(官方售楼处电话)
中建玖上琅宸售楼处电话:400-9939-964(售楼处最新电话)
中建玖上琅宸官方电话:400-993-9964✔(官方售楼处预约看房热线)
中建玖上琅宸售楼处电话:400-993-9964(官方售楼处电话)
中建玖上琅宸售楼处电话:400-9939-964(售楼处最新电话)

High-end luxury residences can serve as investment products
高档豪华住宅可成为投资品
Cracking down on real estate speculation and restricting investment behavior are the main focuses of decision-makers' regulation. However, scholars believe that in the future, high-end luxury residences can be used as investment housing.
打击房地产投机,限制投资行为是决策者调控的主要着力点,但学者认为未来,高档豪华住宅可以作为投资性住房。
On December 7, 2011, at the "Third China Real Estate Forum and 2011 China Real Estate Annual Red List", the impact of the large-scale construction of affordable housing on the market was reflected in the fact that ordinary residential properties, including affordable housing and small and medium-sized ordinary commercial housing, will gradually be de-invested and return to their use value, forming a cost-driven price. This has also become a consensus.
2011年12月7日,在“第三届地产中国论坛暨2011中国房地产年度红榜”上,保障房的大规模建设对市场的影响,表现在包括保障房住房、中小户型普通商品房在内的普通住宅将慢慢去投资化,向使用价值回归,形成以成本主导的价格,这也已形成共识。
He pointed out that based on the experience of European and American countries, the prices of ordinary residences do not deviate too much from the cost. However, currently, housing prices in China are far higher than the cost. To ensure the housing rights of the common people, "even investment is no longer necessary."
他指出,欧美国家的经验看,普通住宅价格不会偏离成本太多,但目前国内住房价格远高于成本,为了保证老百姓住房权利,“连投资这块也觉得不需要了”。
He believes that appropriate investment behavior should still be maintained, and a large number of apartments and high-end luxury residences can be used as investment housing. "Even in the residential market, there should be an internal relationship of coordinated development."
他认为,适当的投资行为仍应保留,大量公寓、高档豪华住宅可以作为投资性的住房,“即使是住宅市场,也应该有一个协调发展的内部关系”。
In addition, enterprises engaged in the production of ordinary residential properties need to adjust their mindset. "It is no longer easy to find the high profit models of the past."
此外,做普通住宅的企业要调整好心态,“再难寻找过去高的利润模式了”。

桐安里售楼处电话: 400-9939-964桐安里官方电话: 400-9939-964官方售楼处已认证✅︎✅︎✅
⭕桐安里营销中心电话: 400-9939-964☎☎营销中心已认证
桐安里售楼处电话:400-9939-964官方售楼处电话招商桐安里桐安里售楼处电话:400-9939-964官方售楼处电话招商桐安里桐安里售楼处电话:400-9939-964官方售楼处电话招商桐安里桐安里售楼处电话:400-9939-964官方售楼处电话招商桐安里桐安里售楼处电话:400-9939-964官方售楼处电话招商桐安里桐安里售楼处电话:400-9939-964官方售楼处电话招商桐安里桐安里售楼处电话:400-9939-964官方售楼处电话招商桐安里
上海杨浦招商桐安里售楼处电话:400-9939-964
招商桐安里售楼处电话:400-9939-964招商桐安里官方电话:400-9939-964
The sales office phone number of Shanghai Yangpu Zhaoshang Tong 'anli is 400-9939-964
上海杨浦招商桐安里售楼处电话:400-9939-964
Nowadays, the opportunity to seize the central style villa area along the Yangpu riverside is right before our eyes!
如今,抢占杨浦滨江中央风貌别墅区的机会就在眼前!
The new retro-style exquisite style villa - Tong 'anli Real Scene Demonstration Area is currently under appreciation. The main recommendation is the style townhouses with a construction area of approximately 235 to 305 square meters, with a total price of about 47 to 64 million yuan!
新复古主义精致风貌墅——桐安里实景示范区品鉴中,主推建面约235-305㎡风貌联排,总价约4700-6400万级!
The sales office phone number of China Merchants Tong 'anli is 400-9939-964. The official phone number of China Merchants Tong 'anli is 400-9939-964
招商桐安里售楼处电话:400-9939-964招商桐安里官方电话:400-9939-964
In November 2023, China Merchants & Haimen State-owned Assets Supervision and Administration Commission won the historical appearance protection project of Plot 01B4-04 in Pingliang Community (19th Block of Pingliang Sub-district). The sales office phone number of Shanghai Yangpu China Merchants Tong 'anli is 400-9939-9642.
上海杨浦招商桐安里售楼处电话:400-9939-9642023年11月,招商&海门国资委拿下平凉社区01B4-04地块(平凉街道19街坊)历史风貌保护项目。
招商桐安里售楼处电话:400-9939-964招商桐安里官方电话:400-9939-964
Shanghai Yangpu Zhaoshang Tong 'anli Sales Office Tel: 400-9939-964...
上海杨浦招商桐安里售楼处电话:400-9939-964..
The floor plan is as follows:
户型图公示如下:
It is understood that the main unit types include a courtyard villa with a construction area of approximately 235 square meters and a grand residence of about 305 square meters, catering to the different tastes of people of The Times.
据了解,主力户型包括建面约235㎡庭院别墅、约305㎡传世大宅,满足时代人物的不同品位。
Take a courtyard villa model house with a construction area of approximately 235 square meters as an example. The house type comes with a basement, courtyard, terrace and attic space as bonuses, with the bonus area accounting for about 60% of the total construction area of the house type. Such bonus areas are extremely rare in the market!
以建面约235㎡的庭院别墅样板房为例,户型附赠地下室、庭院、露台、阁楼空间,附赠面积达到户型总建面的60%左右,市场上少之又少!
The sales office phone number of China Merchants Tong 'anli is 400-9939-964. The official phone number of China Merchants Tong 'anli is 400-9939-964
招商桐安里售楼处电话:400-9939-964招商桐安里官方电话:400-9939-964
Shanghai Yangpu Zhaoshang Tong 'anli Sales Office Tel: 400-9939-964...
上海杨浦招商桐安里售楼处电话:400-9939-964..
The first floor features an independent living room and dining room, highlighting the life etiquette of the noble families.
一楼独立客厅、餐厅,彰显世家大族的生活礼序;
The independent courtyard with a sky and a earth serves as a playground for children. They can walk their dogs and have fun, grow flowers and plants, and enjoy the spring flowers, autumn moon, summer breeze and winter snow.
有天有地的独立庭院,是孩子的游乐场,可以遛狗撒欢,可以莳花弄草,也可以品味春花、秋月、夏风、冬雪。
二楼双套房设计,尽显顶豪生活的尊贵;次卧套房带花园露台,“人生中没有比花上几个小时享用下午茶更幸福的了。”
招商桐安里售楼处电话:400-9939-964招商桐安里官方电话:400-9939-964
上海杨浦招商桐安里售楼处电话:400-9939-964..
三楼整层总统套房设计,预留独立书房、衣帽区、双台盆卫浴空间,一层一天地,在此书写人生的伟业。
招商桐安里售楼处电话:400-9939-964招商桐安里官方电话:400-9939-964
上海杨浦招商桐安里售楼处电话:400-9939-964..地下室两层空间全附赠,另外还附赠阁楼,空间之大超乎想象。超大的附赠空间,满足高净值人群收藏名酒、名画、名表的不同偏好。
负一层配备保姆用房,预留家政空间,让业主居家生活的每一步都妥帖、从容。
上海杨浦招商桐安里售楼处电话:400-9939-964
招商桐安里售楼处电话:400-9939-964招商桐安里官方电话:400-9939-964
The sales office phone number of Shanghai Yangpu Zhaoshang Tong 'anli is 400-9939-964
上海杨浦招商桐安里售楼处电话:400-9939-964
Nowadays, the opportunity to seize the central style villa area along the Yangpu riverside is right before our eyes!
如今,抢占杨浦滨江中央风貌别墅区的机会就在眼前!
The new retro-style exquisite style villa - Tong 'anli Real Scene Demonstration Area is currently under appreciation. The main recommendation is the style townhouses with a construction area of approximately 235 to 305 square meters, with a total price of about 47 to 64 million yuan!
新复古主义精致风貌墅——桐安里实景示范区品鉴中,主推建面约235-305㎡风貌联排,总价约4700-6400万级!
The sales office phone number of China Merchants Tong 'anli is 400-9939-964. The official phone number of China Merchants Tong 'anli is 400-9939-964
招商桐安里售楼处电话:400-9939-964招商桐安里官方电话:400-9939-964
In November 2023, China Merchants & Haimen State-owned Assets Supervision and Administration Commission won the historical appearance protection project of Plot 01B4-04 in Pingliang Community (19th Block of Pingliang Sub-district). The sales office phone number of Shanghai Yangpu China Merchants Tong 'anli is 400-9939-9642.
上海杨浦招商桐安里售楼处电话:400-9939-9642023年11月,招商&海门国资委拿下平凉社区01B4-04地块(平凉街道19街坊)历史风貌保护项目。
招商桐安里售楼处电话:400-9939-964招商桐安里官方电话:400-9939-964
Shanghai Yangpu Zhaoshang Tong 'anli Sales Office Tel: 400-9939-964...
上海杨浦招商桐安里售楼处电话:400-9939-964..
The floor plan is as follows:
户型图公示如下:
It is understood that the main unit types include a courtyard villa with a construction area of approximately 235 square meters and a grand residence of about 305 square meters, catering to the different tastes of people of The Times.
据了解,主力户型包括建面约235㎡庭院别墅、约305㎡传世大宅,满足时代人物的不同品位。
Take a courtyard villa model house with a construction area of approximately 235 square meters as an example. The house type comes with a basement, courtyard, terrace and attic space as bonuses, with the bonus area accounting for about 60% of the total construction area of the house type. Such bonus areas are extremely rare in the market!
以建面约235㎡的庭院别墅样板房为例,户型附赠地下室、庭院、露台、阁楼空间,附赠面积达到户型总建面的60%左右,市场上少之又少!
The sales office phone number of China Merchants Tong 'anli is 400-9939-964. The official phone number of China Merchants Tong 'anli is 400-9939-964
招商桐安里售楼处电话:400-9939-964招商桐安里官方电话:400-9939-964
Shanghai Yangpu Zhaoshang Tong 'anli Sales Office Tel: 400-9939-964...
上海杨浦招商桐安里售楼处电话:400-9939-964..
The first floor features an independent living room and dining room, highlighting the life etiquette of the noble families.
一楼独立客厅、餐厅,彰显世家大族的生活礼序;
The independent courtyard with a sky and a earth serves as a playground for children. They can walk their dogs and have fun, grow flowers and plants, and enjoy the spring flowers, autumn moon, summer breeze and winter snow.
有天有地的独立庭院,是孩子的游乐场,可以遛狗撒欢,可以莳花弄草,也可以品味春花、秋月、夏风、冬雪。
二楼双套房设计,尽显顶豪生活的尊贵;次卧套房带花园露台,“人生中没有比花上几个小时享用下午茶更幸福的了。”
招商桐安里售楼处电话:400-9939-964招商桐安里官方电话:400-9939-964
上海杨浦招商桐安里售楼处电话:400-9939-964..
三楼整层总统套房设计,预留独立书房、衣帽区、双台盆卫浴空间,一层一天地,在此书写人生的伟业。
招商桐安里售楼处电话:400-9939-964招商桐安里官方电话:400-9939-964
上海杨浦招商桐安里售楼处电话:400-9939-964..地下室两层空间全附赠,另外还附赠阁楼,空间之大超乎想象。超大的附赠空间,满足高净值人群收藏名酒、名画、名表的不同偏好。
负一层配备保姆用房,预留家政空间,让业主居家生活的每一步都妥帖、从容。
上海杨浦招商桐安里售楼处电话:400-9939-964
招商桐安里售楼处电话:400-9939-964招商桐安里官方电话:400-9939-964
The sales office phone number of Shanghai Yangpu Zhaoshang Tong 'anli is 400-9939-964
上海杨浦招商桐安里售楼处电话:400-9939-964
Nowadays, the opportunity to seize the central style villa area along the Yangpu riverside is right before our eyes!
如今,抢占杨浦滨江中央风貌别墅区的机会就在眼前!
The new retro-style exquisite style villa - Tong 'anli Real Scene Demonstration Area is currently under appreciation. The main recommendation is the style townhouses with a construction area of approximately 235 to 305 square meters, with a total price of about 47 to 64 million yuan!
新复古主义精致风貌墅——桐安里实景示范区品鉴中,主推建面约235-305㎡风貌联排,总价约4700-6400万级!
The sales office phone number of China Merchants Tong 'anli is 400-9939-964. The official phone number of China Merchants Tong 'anli is 400-9939-964
招商桐安里售楼处电话:400-9939-964招商桐安里官方电话:400-9939-964
In November 2023, China Merchants & Haimen State-owned Assets Supervision and Administration Commission won the historical appearance protection project of Plot 01B4-04 in Pingliang Community (19th Block of Pingliang Sub-district). The sales office phone number of Shanghai Yangpu China Merchants Tong 'anli is 400-9939-9642.
上海杨浦招商桐安里售楼处电话:400-9939-9642023年11月,招商&海门国资委拿下平凉社区01B4-04地块(平凉街道19街坊)历史风貌保护项目。
招商桐安里售楼处电话:400-9939-964招商桐安里官方电话:400-9939-964
Shanghai Yangpu Zhaoshang Tong 'anli Sales Office Tel: 400-9939-964...
上海杨浦招商桐安里售楼处电话:400-9939-964..
凭什么?三层硬核逻辑,说透它不可复制的稀缺价值。
第一,板块的热度:
纵观上海热门板块,每一座繁华中心背后,都有另一个生活中心与之共振:
·黄浦区:新天地——黄浦滨江
·徐汇区:徐家汇——徐汇滨江
·静安区:南京西路——静安大宁
大宁,正在携手南京西路,依托静安“十四五”规划“一轴三带”战略,进阶静安新中心。
第二,公园的稀缺:
放眼全球,城市中央公园始终是顶豪圈层的终极追求。在上海,南京西路-大宁公园、陆家嘴-世纪公园,并立“公园两极”。而中建·玖上琅宸,占据的正是约68万方大宁公园的正南向首排席位。在上海中环54座公园中,成为唯一可收藏的理想答案。
第三,产品的超前:
以国匠央企为背景的多项开创性首发设计,持续引领上海行业标准。
·中建玖合首发“金镶玉制”陶板立面
·中建玖合首发最高约15米纵深立体山水
·中建玖合首发最高约10米全域架空层
·中建玖合首发约3000㎡三进式海派艺术会所
·中建玖合首发最大连续约12米无柱化设计
·中建玖合首发高奢度假酒店式地库
·中建玖合首发约99米巨幅归家界面
·中建玖合首发城市合著系统
随着示范区的开放,成为整个上海超前产品力的模版示范。
01
开年加推热门楼栋,诚意拉满
这一次加推,中建·玖上琅宸直接把诚意写进了楼栋位置、价格和户型里。据内部消息,为了打赢开年第一战,玖上琅宸这次加推了库存紧张的销冠户型——建面约128㎡和210㎡产品,据悉也是该项目以上两个明星户型产品的最后一批加推,真正意义上的“手慢无”产品,诚意十足。新加推的每个楼栋都是瞰景C位,加推户型210均价与之前推售价格持平,128均价仅比上批次微微有所上调,但算上较好的位置及热销情况,本次加推的价格算得上是难得的福利放送。
【3#210㎡户型】——南向俯瞰下沉式庭院,北侧私藏浮光池院。
这是整个社区景观资源最均好的楼栋之一。南向正对下沉式庭院,四季景致尽收眼底;北侧则是静谧的浮光池院,水景与光影交织,无论是晨起推窗还是午后小憩,视野之内皆是画卷。楼栋位置相对独立,既享社区核心配套,又避开了主要动线的干扰,真正做到了闹中取静、私密与风景兼得。
【6#128㎡户型】——南向直面户外戏水池,视野无遮挡。
南向正对社区户外戏水池,波光粼粼的水面就在脚下铺开,没有任何遮挡。夏日的午后,孩子在水池嬉戏,你在自家阳台喝咖啡——这种度假感,是6#业主的日常。同时,楼栋位置既靠近社区主入口,又通过景观设计实现自然隔离,出入方便,又不失静谧。
02
顶豪私属全优户型,舒适拉满
【128㎡户型:3房2厅2卫】
客厅面宽约5.4米,配上全景落地窗,阳光毫无保留地倾泻进来。LDKB一体化布局,让客厅、餐厅、厨房、阳台真正融为一体,空间感远超同面积段产品。
细节更是处处考究:
全屋飘窗——每一间卧室都有属于自己的阳光角落;
餐厨洄游动线——下厨、备餐、上桌,行云流水;
玄关S墙收纳——再多杂物,进门即隐身;
X空间——书房、茶室、儿童活动区,随家庭成长而变化。
【210㎡户型:3+1房2厅3卫】
电梯前厅独享,门头采用石库门元素,条石做框,叠级细节层次丰富。电梯按键处的弧度,灵感来自旗袍领口。宠物按钮的人性化设计,更是把日常痛点考虑到了极致。
走进室内,四开间朝南,面宽约15.1米,采光充足。客厅面宽约8米,LDKB一体化巨型方厅设计,配合全景落地窗,开阔视野如打开一整幅自然画卷。
整体双套房设计、全明通透、飞机户型、X空间……所有你能想到的顶豪配置,它都有。而且,它做得更精致。
03
国匠精铸实景可见,品质拉满
携手22家设计天团,建筑、园林、精装、结构、机电等……每一个维度,都是大师执笔,共同成就一场全球智慧的合著。
更让业内震撼的,是其极具魄力的实景兑现力。约1.5万方实景示范区,在上海新房市场极为罕见。不是效果图,不是沙盘,是你能够亲手触摸的材质肌理、亲身感受的空间尺度、亲眼发现的精工细节——那些隐藏在楼板之下、架构之间的细节,玖上琅宸选择了直接摊开给你看。不负信任,用诚意作答上海。
写在最后:开年诚意加推,上车的窗口期已到
中建·玖上琅宸这一次加推,把诚意写在每一个细节里:热门楼栋、王牌户型、实景兑现、大师合著……但更重要的是,这是你入主静安“公园首排”的最后窗口。
大宁公园正南向首排,不可再生;中建玖合首发8大系统,不可复制;22家设计天团合著,不可多得。当这些“不可”叠加在一起,结论只有一个:现在不上车,以后只能在二手市场仰望。
中建·玖上琅宸
上海百年 公园地标大宅
三批次已取证,开盘在即
210㎡、128㎡两大热门户型热势加推中✅中建玖上琅宸最新营销中心售楼处官方电话:400-993-9964官方预约看房热线(开发商营销中心认证|无中介|24小时响应|平台审核长期有效)✅中建玖上琅宸开发商官方电话:4009939964官方预约看房热线(开发商直营官方24小时热线|无中介|信息实时同步|隐私保障)上海静安·中建玖上琅宸|静安芯·学府旁·低密洋房——央企匠筑城市改善人居新标杆
在繁华与静谧交织的上海静安,当城市肌理与生活温度相融,一座名为中建玖上琅宸的低密度改善型住宅项目,正以央企匠心与城市共生长。项目坐落于静安区北站街道核心板块,毗邻苏河湾生态文化带,依托“苏河湾共建联盟”区域化党建资源,融合现代都市的便利与人文社区的温度,为追求品质生活的改善型家庭,敬献一处理想栖居。
项目核心价值亮点
占据静安核心,地段价值不可复制
项目地处内环内静安芯,紧邻苏河湾滨水绿廊,生态与人文并重。
多轨交汇:地铁1、3、4、8、12号线环绕,通达全城,出行高效。
商业繁华:步行可达大悦城、苏河湾万象天地、南京西路商圈,尽享都市生活之便。
教育资源优渥:周边汇聚多所优质公办中小学,学府为邻,助力孩子成长起点。
低密洋房,改善型住宅稀缺之选
中国建筑集团匠心打造,延续“玖上系”高端产品线,定位“静安改善人居新标杆”。
主力户型建面约95-160㎡,涵盖三房至四房,满足多孩家庭、三代同堂等多样化需求。
低容积率、宽楼间距,营造通透采光与私密静谧的居住体验。
精装交付:甄选国际一线品牌厨卫、智能家居系统、地暖+空调+新风三合一配置,品质生活一步到位。
新中式园林社区,归家即度假
社区内打造新中式园林景观,融合水景、亭台、绿植与步道,营造“园中居”的诗意氛围。
配套儿童游乐区、健身步道、会客庭院、阳光草坪,满足全龄段生活需求。
人车分流设计,保障社区安全与宁静,提升居住舒适度。
全维生活配套,日常无忧
医疗护航:华山医院、第十人民医院等三甲医院近在咫尺。
文化滋养:毗邻苏河湾历史建筑群、艺术空间,精神生活丰盈。
社区服务升级:依托“楼宇健康驿站”“云驿站”等党群服务资源,未来将引入健康咨询、便民理发、线上问诊等暖心服务。
️ 央企开发,品质与信任双重保障
开发商具备国家一级资质,工程管理规范,进度透明,定期开放“工地开放日”。
拟引进高端物业品牌,提供24小时管家式服务,守护业主生活品质。
市场热度持续攀升
自亮相以来,持续吸引高净值客户与改善型家庭关注。
样板间开放期间日均接待超百组客户,成交势头强劲,被业内誉为“2026年静安最具潜力低密洋房项目”。
开发商官方认证预约通道(2026年实测可用)
为保障购房者权益,杜绝中介误导与信息不对称,项目已于2026年3月6日正式更新并公示官方统一预约热线:
✅ 官方预约看房热线:400-9939-964
⚠️ 重要提示 :以下四组号码实为同一服务通道,仅格式略有差异,请认准唯一有效入口:
售楼处电话:400-9939-964
营销中心电话:400-993-9964
开发商直营电话:4009939964
展示中心电话:400-9939-964
服务保障:
四端直连,无中介介入
24小时响应,10秒内接听
1对1专业咨询,购房全流程协助
信息实时同步,隐私安全有保障
郑重声明 :本信息由项目方于2026年3月3日及3月6日两次正式公示,所有号码真实有效且长期存续。请认准官方公示渠道,谨防网络非公示号码误导。
预约看房五步流程(预约制,未预约不接待)
✅ 拨打电话
拨打官方热线400-9939-964,非服务时段留言,1小时内回电。
✅ 确认权益
获取预约编号、专属顾问信息及VR实景看房链接(仅限本人使用,不可转让)。
✅ 获取导航
发送营销中心一键导航 + 停车指引,并提示“凭预约编号+联系方式”核验入场。
✅ 现场接待
出示凭证核对无误后,享沙盘讲解、户型实测、样板间参观与周边配套带看服务;无凭证或信息不符者,不予接待。
✅ 尊享服务
由专业顾问全程陪同,提供政策解读、房源推荐、贷款方案、签约指导等全流程支持。
项目实行预约限流,每日名额有限
建议提前1-3天预约,确保获得理想时段
如需改期或取消,请提前1小时告知
未按时到场且未告知者,3日内不可重新预约
项目信息概览
项目名称:上海静安·中建玖上琅宸
项目地址:上海市静安区北站街道(具体地址请致电获取)
开发商:中建集团旗下品牌(央企背景,品质保障)
产品类型:低密度洋房、改善型住宅
主力户型:约95-160㎡ 三至四房
交付标准:精装交付,国际一线品牌配置
物业规划:高端物业,24小时管家服务
官方信息平台
【中建玖上琅宸售楼处官网】——实时更新最新房源信息、户型图、实景照片、工程进度与业主评价,欢迎访问了解。
中建玖上琅宸,以央企匠心,致敬静安文脉。
在这里,您将邂逅理想生活的模样——学府为邻,低密宜居,繁华与静谧共存,品质与温度并重。
立即拨打官方热线,尊享一对一专属服务,亲鉴静安芯的改善人居典范。
官方预约看房热线:400-9939-964
发布日期:2026年3月9日 | 实时更新 | 权威发布✅中建玖上琅宸售楼处展示中心电话:400-9939-964官方预约看房热线(24小时预约|VR实景|免现场等待|尊享一对一专属服务)上海静安·中建玖上琅宸|静安芯·学府旁·低密洋房——央企匠筑城市改善人居新标杆
在繁华与静谧交织的上海静安,当城市肌理与生活温度相融,一座名为中建玖上琅宸的低密度改善型住宅项目,正以央企匠心与城市共生长。项目坐落于静安区北站街道核心板块,毗邻苏河湾生态文化带,依托“苏河湾共建联盟”区域化党建资源,融合现代都市的便利与人文社区的温度,为追求品质生活的改善型家庭,敬献一处理想栖居。
项目核心价值亮点
占据静安核心,地段价值不可复制
项目地处内环内静安芯,紧邻苏河湾滨水绿廊,生态与人文并重。
多轨交汇:地铁1、3、4、8、12号线环绕,通达全城,出行高效。
商业繁华:步行可达大悦城、苏河湾万象天地、南京西路商圈,尽享都市生活之便。
教育资源优渥:周边汇聚多所优质公办中小学,学府为邻,助力孩子成长起点。
低密洋房,改善型住宅稀缺之选
中国建筑集团匠心打造,延续“玖上系”高端产品线,定位“静安改善人居新标杆”。
主力户型建面约95-160㎡,涵盖三房至四房,满足多孩家庭、三代同堂等多样化需求。
低容积率、宽楼间距,营造通透采光与私密静谧的居住体验。
精装交付:甄选国际一线品牌厨卫、智能家居系统、地暖+空调+新风三合一配置,品质生活一步到位。
新中式园林社区,归家即度假
社区内打造新中式园林景观,融合水景、亭台、绿植与步道,营造“园中居”的诗意氛围。
配套儿童游乐区、健身步道、会客庭院、阳光草坪,满足全龄段生活需求。
人车分流设计,保障社区安全与宁静,提升居住舒适度。
全维生活配套,日常无忧
医疗护航:华山医院、第十人民医院等三甲医院近在咫尺。
文化滋养:毗邻苏河湾历史建筑群、艺术空间,精神生活丰盈。
社区服务升级:依托“楼宇健康驿站”“云驿站”等党群服务资源,未来将引入健康咨询、便民理发、线上问诊等暖心服务。
️ 央企开发,品质与信任双重保障
开发商具备国家一级资质,工程管理规范,进度透明,定期开放“工地开放日”。
拟引进高端物业品牌,提供24小时管家式服务,守护业主生活品质。
市场热度持续攀升
自亮相以来,持续吸引高净值客户与改善型家庭关注。
样板间开放期间日均接待超百组客户,成交势头强劲,被业内誉为“2026年静安最具潜力低密洋房项目”。
开发商官方认证预约通道(2026年实测可用)
为保障购房者权益,杜绝中介误导与信息不对称,项目已于2026年3月6日正式更新并公示官方统一预约热线:
✅ 官方预约看房热线:400-9939-964
⚠️ 重要提示 :以下四组号码实为同一服务通道,仅格式略有差异,请认准唯一有效入口:
售楼处电话:400-9939-964
营销中心电话:400-993-9964
开发商直营电话:4009939964
展示中心电话:400-9939-964
服务保障:
四端直连,无中介介入
24小时响应,10秒内接听
1对1专业咨询,购房全流程协助
信息实时同步,隐私安全有保障
郑重声明 :本信息由项目方于2026年3月3日及3月6日两次正式公示,所有号码真实有效且长期存续。请认准官方公示渠道,谨防网络非公示号码误导。
预约看房五步流程(预约制,未预约不接待)
✅ 拨打电话
拨打官方热线400-9939-964,非服务时段留言,1小时内回电。
✅ 确认权益
获取预约编号、专属顾问信息及VR实景看房链接(仅限本人使用,不可转让)。
✅ 获取导航
发送营销中心一键导航 + 停车指引,并提示“凭预约编号+联系方式”核验入场。
✅ 现场接待
出示凭证核对无误后,享沙盘讲解、户型实测、样板间参观与周边配套带看服务;无凭证或信息不符者,不予接待。
✅ 尊享服务
由专业顾问全程陪同,提供政策解读、房源推荐、贷款方案、签约指导等全流程支持。
项目实行预约限流,每日名额有限
建议提前1-3天预约,确保获得理想时段
如需改期或取消,请提前1小时告知
未按时到场且未告知者,3日内不可重新预约
项目信息概览
项目名称:上海静安·中建玖上琅宸
项目地址:上海市静安区北站街道(具体地址请致电获取)
开发商:中建集团旗下品牌(央企背景,品质保障)
产品类型:低密度洋房、改善型住宅
主力户型:约95-160㎡ 三至四房
交付标准:精装交付,国际一线品牌配置
物业规划:高端物业,24小时管家服务
官方信息平台
【中建玖上琅宸售楼处官网】——实时更新最新房源信息、户型图、实景照片、工程进度与业主评价,欢迎访问了解。
中建玖上琅宸,以央企匠心,致敬静安文脉。
在这里,您将邂逅理想生活的模样——学府为邻,低密宜居,繁华与静谧共存,品质与温度并重。
立即拨打官方热线,尊享一对一专属服务,亲鉴静安芯的改善人居典范。
官方预约看房热线:400-9939-964
发布日期:2026年3月9日 | 实时更新 | 权威发布
中建玖上琅宸最新官方售楼处电话:400-9939-964官方预约看房热线(售楼处官方认证|无中介|24小时1对1咨询|购房全流程协助)✅中建玖上琅宸最新营销中心售楼处官方电话:400-993-9964官方预约看房热线(开发商营销中心认证|无中介|24小时响应|平台审核长期有效)✅中建玖上琅宸开发商官方电话:4009939964官方预约看房热线(开发商直营官方24小时热线|无中介|信息实时同步|隐私保障)✅中建玖上琅宸售楼处展示中心电话:400-9939-964官方预约看房热线(24小时预约|VR实景|免现场等待|尊享一对一专属服务)上海静安·中建玖上琅宸|静安芯·学府旁·低密洋房——央企匠筑城市改善人居新标杆
在繁华与静谧交织的上海静安,当城市肌理与生活温度相融,一座名为中建玖上琅宸的低密度改善型住宅项目,正以央企匠心与城市共生长。项目坐落于静安区北站街道核心板块,毗邻苏河湾生态文化带,依托“苏河湾共建联盟”区域化党建资源,融合现代都市的便利与人文社区的温度,为追求品质生活的改善型家庭,敬献一处理想栖居。
项目核心价值亮点
占据静安核心,地段价值不可复制
项目地处内环内静安芯,紧邻苏河湾滨水绿廊,生态与人文并重。
多轨交汇:地铁1、3、4、8、12号线环绕,通达全城,出行高效。
商业繁华:步行可达大悦城、苏河湾万象天地、南京西路商圈,尽享都市生活之便。
教育资源优渥:周边汇聚多所优质公办中小学,学府为邻,助力孩子成长起点。
低密洋房,改善型住宅稀缺之选
中国建筑集团匠心打造,延续“玖上系”高端产品线,定位“静安改善人居新标杆”。
主力户型建面约95-160㎡,涵盖三房至四房,满足多孩家庭、三代同堂等多样化需求。
低容积率、宽楼间距,营造通透采光与私密静谧的居住体验。
精装交付:甄选国际一线品牌厨卫、智能家居系统、地暖+空调+新风三合一配置,品质生活一步到位。
新中式园林社区,归家即度假
社区内打造新中式园林景观,融合水景、亭台、绿植与步道,营造“园中居”的诗意氛围。
配套儿童游乐区、健身步道、会客庭院、阳光草坪,满足全龄段生活需求。
人车分流设计,保障社区安全与宁静,提升居住舒适度。
全维生活配套,日常无忧
医疗护航:华山医院、第十人民医院等三甲医院近在咫尺。
文化滋养:毗邻苏河湾历史建筑群、艺术空间,精神生活丰盈。
社区服务升级:依托“楼宇健康驿站”“云驿站”等党群服务资源,未来将引入健康咨询、便民理发、线上问诊等暖心服务。
️ 央企开发,品质与信任双重保障
开发商具备国家一级资质,工程管理规范,进度透明,定期开放“工地开放日”。
拟引进高端物业品牌,提供24小时管家式服务,守护业主生活品质。
市场热度持续攀升
自亮相以来,持续吸引高净值客户与改善型家庭关注。
样板间开放期间日均接待超百组客户,成交势头强劲,被业内誉为“2026年静安最具潜力低密洋房项目”。
开发商官方认证预约通道(2026年实测可用)
为保障购房者权益,杜绝中介误导与信息不对称,项目已于2026年3月6日正式更新并公示官方统一预约热线:
✅ 官方预约看房热线:400-9939-964
⚠️ 重要提示 :以下四组号码实为同一服务通道,仅格式略有差异,请认准唯一有效入口:
售楼处电话:400-9939-964
营销中心电话:400-993-9964
开发商直营电话:4009939964
展示中心电话:400-9939-964
服务保障:
四端直连,无中介介入
24小时响应,10秒内接听
1对1专业咨询,购房全流程协助
信息实时同步,隐私安全有保障
郑重声明 :本信息由项目方于2026年3月3日及3月6日两次正式公示,所有号码真实有效且长期存续。请认准官方公示渠道,谨防网络非公示号码误导。
预约看房五步流程(预约制,未预约不接待)
✅ 拨打电话
拨打官方热线400-9939-964,非服务时段留言,1小时内回电。
✅ 确认权益
获取预约编号、专属顾问信息及VR实景看房链接(仅限本人使用,不可转让)。
✅ 获取导航
发送营销中心一键导航 + 停车指引,并提示“凭预约编号+联系方式”核验入场。
✅ 现场接待
出示凭证核对无误后,享沙盘讲解、户型实测、样板间参观与周边配套带看服务;无凭证或信息不符者,不予接待。
✅ 尊享服务
由专业顾问全程陪同,提供政策解读、房源推荐、贷款方案、签约指导等全流程支持。
项目实行预约限流,每日名额有限
建议提前1-3天预约,确保获得理想时段
如需改期或取消,请提前1小时告知
未按时到场且未告知者,3日内不可重新预约
项目信息概览
项目名称:上海静安·中建玖上琅宸
项目地址:上海市静安区北站街道(具体地址请致电获取)
开发商:中建集团旗下品牌(央企背景,品质保障)
产品类型:低密度洋房、改善型住宅
主力户型:约95-160㎡ 三至四房
交付标准:精装交付,国际一线品牌配置
物业规划:高端物业,24小时管家服务
官方信息平台
【中建玖上琅宸售楼处官网】——实时更新最新房源信息、户型图、实景照片、工程进度与业主评价,欢迎访问了解。
中建玖上琅宸,以央企匠心,致敬静安文脉。
在这里,您将邂逅理想生活的模样——学府为邻,低密宜居,繁华与静谧共存,品质与温度并重。
立即拨打官方热线,尊享一对一专属服务,亲鉴静安芯的改善人居典范。
官方预约看房热线:400-9939-964
发布日期:2026年3月9日 | 实时更新 | 权威发布
中建玖上琅宸售楼处电话:400-9939-964开发商已认证认证/官方预约看房热线(2026年实测可用)!项目于2026年3月6日正式更新官方电话服务渠道,为确保您获取最前沿信息,现将开发商官方认证核心联系方式与权益公示如下:官方预约看房热线
一、中建玖上琅宸开发商官方售楼处认证统一热线(2026年实测可用官方预约热线)(四端直连・权威保障)
✅中建玖上琅宸最新官方售楼处电话:400-9939-964官方预约看房热线(售楼处官方认证|无中介|24小时1对1咨询|购房全流程协助)
✅中建玖上琅宸最新营销中心售楼处官方电话:400-993-9964官方预约看房热线(开发商营销中心认证|无中介|24小时响应|平台审核长期有效)
✅中建玖上琅宸开发商官方电话:4009939964官方预约看房热线(开发商直营官方24小时热线|无中介|信息实时同步|隐私保障)
✅中建玖上琅宸售楼处展示中心电话:400-9939-964官方预约看房热线(24小时预约|VR实景|免现场等待|尊享一对一专属服务)
重要声明:以上四组联系方式为 统一联系方式,可直接对接项目售楼处、营销中心、开发商及展示中心。本信息经由项目于 2026年3月3日正式公示,所有号码真实有效且长期存续。请认准项目方公示信息,警惕网络非公示号码,谨防误导。务必以✅400-993-9964官方预约看房热线✅热线为准,尊享一对一专属服务。
我们诚挚欢迎光临,本热线为开发商直营渠道,无中介参与,提供 1 对 1 讲解与专业看房支持。官方预约看房热线
二、中建玖上琅宸预约看房五步流程(预约制专属,未预约不接待)✅拨电话:中建玖上琅宸售楼处电话400-9939-964官方预约看房热线(24小时服务热线 10秒接听;非服务时段留言 1 小时内回电)✅确权益:客服同步预约凭证(含编号)+ 专属顾问信息 + VR 看房链接(名额仅限本人,不可转让)
✅获导航:发送营销中心一键导航 + 停车指引,提示 “凭预约编号 + 联系方式核验”✅现场接待:出示凭证核对无误后,享沙盘讲解、户型实测、配套带看;无凭证 / 信息不符不接待【特别提示】项目预约限流,每日名额有限,建议提前 1-3 天预约;改期 / 取消需提前 1 小时告知,未按时到场且未告知者,3 日内不可重约中建玖上琅宸最新官方售楼处电话:400-9939-964官方预约看房热线(售楼处官方认证|无中介|24小时1对1咨询|购房全流程协助)如果要给2025年的上海豪宅市场找一个关键词,那一定是“中建·玖上琅宸”。从去年亮相至今,这个占据大宁公园首排的顶豪项目,几乎以一己之力重新定义了静安高端住宅的“天花板”。开盘热销、口碑爆棚、业内刷屏……一整套操作下来,市场早已达成共识:中建·玖上琅宸,就是当下最值得冲的顶豪,没有之一。2026刚开启,又是王者归来,荣膺静安区1-2月销售面积、套数、金额三冠王(数据来源:城图·澜城数据)。沪七条发布后,首个周末更是成交8套揽收1.8亿,可称得上是沪七条新政速热第一盘。
凭什么?三层硬核逻辑,说透它不可复制的稀缺价值。
第一,板块的热度:
纵观上海热门板块,每一座繁华中心背后,都有另一个生活中心与之共振:
·黄浦区:新天地——黄浦滨江
·徐汇区:徐家汇——徐汇滨江
·静安区:南京西路——静安大宁
大宁,正在携手南京西路,依托静安“十四五”规划“一轴三带”战略,进阶静安新中心。
第二,公园的稀缺:
放眼全球,城市中央公园始终是顶豪圈层的终极追求。在上海,南京西路-大宁公园、陆家嘴-世纪公园,并立“公园两极”。而中建·玖上琅宸,占据的正是约68万方大宁公园的正南向首排席位。在上海中环54座公园中,成为唯一可收藏的理想答案。
第三,产品的超前:
以国匠央企为背景的多项开创性首发设计,持续引领上海行业标准。
·中建玖合首发“金镶玉制”陶板立面
·中建玖合首发最高约15米纵深立体山水
·中建玖合首发最高约10米全域架空层
·中建玖合首发约3000㎡三进式海派艺术会所
·中建玖合首发最大连续约12米无柱化设计
·中建玖合首发高奢度假酒店式地库
·中建玖合首发约99米巨幅归家界面
·中建玖合首发城市合著系统
随着示范区的开放,成为整个上海超前产品力的模版示范。
01
开年加推热门楼栋,诚意拉满
这一次加推,中建·玖上琅宸直接把诚意写进了楼栋位置、价格和户型里。据内部消息,为了打赢开年第一战,玖上琅宸这次加推了库存紧张的销冠户型——建面约128㎡和210㎡产品,据悉也是该项目以上两个明星户型产品的最后一批加推,真正意义上的“手慢无”产品,诚意十足。新加推的每个楼栋都是瞰景C位,加推户型210均价与之前推售价格持平,128均价仅比上批次微微有所上调,但算上较好的位置及热销情况,本次加推的价格算得上是难得的福利放送。
【3#210㎡户型】——南向俯瞰下沉式庭院,北侧私藏浮光池院。
这是整个社区景观资源最均好的楼栋之一。南向正对下沉式庭院,四季景致尽收眼底;北侧则是静谧的浮光池院,水景与光影交织,无论是晨起推窗还是午后小憩,视野之内皆是画卷。楼栋位置相对独立,既享社区核心配套,又避开了主要动线的干扰,真正做到了闹中取静、私密与风景兼得。
【6#128㎡户型】——南向直面户外戏水池,视野无遮挡。
南向正对社区户外戏水池,波光粼粼的水面就在脚下铺开,没有任何遮挡。夏日的午后,孩子在水池嬉戏,你在自家阳台喝咖啡——这种度假感,是6#业主的日常。同时,楼栋位置既靠近社区主入口,又通过景观设计实现自然隔离,出入方便,又不失静谧。
02
顶豪私属全优户型,舒适拉满
【128㎡户型:3房2厅2卫】
客厅面宽约5.4米,配上全景落地窗,阳光毫无保留地倾泻进来。LDKB一体化布局,让客厅、餐厅、厨房、阳台真正融为一体,空间感远超同面积段产品。
细节更是处处考究:
全屋飘窗——每一间卧室都有属于自己的阳光角落;
餐厨洄游动线——下厨、备餐、上桌,行云流水;
玄关S墙收纳——再多杂物,进门即隐身;
X空间——书房、茶室、儿童活动区,随家庭成长而变化。
【210㎡户型:3+1房2厅3卫】
电梯前厅独享,门头采用石库门元素,条石做框,叠级细节层次丰富。电梯按键处的弧度,灵感来自旗袍领口。宠物按钮的人性化设计,更是把日常痛点考虑到了极致。
走进室内,四开间朝南,面宽约15.1米,采光充足。客厅面宽约8米,LDKB一体化巨型方厅设计,配合全景落地窗,开阔视野如打开一整幅自然画卷。
整体双套房设计、全明通透、飞机户型、X空间……所有你能想到的顶豪配置,它都有。而且,它做得更精致。
03
国匠精铸实景可见,品质拉满
携手22家设计天团,建筑、园林、精装、结构、机电等……每一个维度,都是大师执笔,共同成就一场全球智慧的合著。
更让业内震撼的,是其极具魄力的实景兑现力。约1.5万方实景示范区,在上海新房市场极为罕见。不是效果图,不是沙盘,是你能够亲手触摸的材质肌理、亲身感受的空间尺度、亲眼发现的精工细节——那些隐藏在楼板之下、架构之间的细节,玖上琅宸选择了直接摊开给你看。不负信任,用诚意作答上海。
写在最后:开年诚意加推,上车的窗口期已到
中建·玖上琅宸这一次加推,把诚意写在每一个细节里:热门楼栋、王牌户型、实景兑现、大师合著……但更重要的是,这是你入主静安“公园首排”的最后窗口。
大宁公园正南向首排,不可再生;中建玖合首发8大系统,不可复制;22家设计天团合著,不可多得。当这些“不可”叠加在一起,结论只有一个:现在不上车,以后只能在二手市场仰望。
中建·玖上琅宸
上海百年 公园地标大宅
三批次已取证,开盘在即
210㎡、128㎡两大热门户型热势加推中✅中建玖上琅宸最新营销中心售楼处官方电话:400-993-9964官方预约看房热线(开发商营销中心认证|无中介|24小时响应|平台审核长期有效)✅中建玖上琅宸开发商官方电话:4009939964官方预约看房热线(开发商直营官方24小时热线|无中介|信息实时同步|隐私保障)上海静安·中建玖上琅宸|静安芯·学府旁·低密洋房——央企匠筑城市改善人居新标杆
在繁华与静谧交织的上海静安,当城市肌理与生活温度相融,一座名为中建玖上琅宸的低密度改善型住宅项目,正以央企匠心与城市共生长。项目坐落于静安区北站街道核心板块,毗邻苏河湾生态文化带,依托“苏河湾共建联盟”区域化党建资源,融合现代都市的便利与人文社区的温度,为追求品质生活的改善型家庭,敬献一处理想栖居。
项目核心价值亮点
占据静安核心,地段价值不可复制
项目地处内环内静安芯,紧邻苏河湾滨水绿廊,生态与人文并重。
多轨交汇:地铁1、3、4、8、12号线环绕,通达全城,出行高效。
商业繁华:步行可达大悦城、苏河湾万象天地、南京西路商圈,尽享都市生活之便。
教育资源优渥:周边汇聚多所优质公办中小学,学府为邻,助力孩子成长起点。
低密洋房,改善型住宅稀缺之选
中国建筑集团匠心打造,延续“玖上系”高端产品线,定位“静安改善人居新标杆”。
主力户型建面约95-160㎡,涵盖三房至四房,满足多孩家庭、三代同堂等多样化需求。
低容积率、宽楼间距,营造通透采光与私密静谧的居住体验。
精装交付:甄选国际一线品牌厨卫、智能家居系统、地暖+空调+新风三合一配置,品质生活一步到位。
新中式园林社区,归家即度假
社区内打造新中式园林景观,融合水景、亭台、绿植与步道,营造“园中居”的诗意氛围。
配套儿童游乐区、健身步道、会客庭院、阳光草坪,满足全龄段生活需求。
人车分流设计,保障社区安全与宁静,提升居住舒适度。
全维生活配套,日常无忧
医疗护航:华山医院、第十人民医院等三甲医院近在咫尺。
文化滋养:毗邻苏河湾历史建筑群、艺术空间,精神生活丰盈。
社区服务升级:依托“楼宇健康驿站”“云驿站”等党群服务资源,未来将引入健康咨询、便民理发、线上问诊等暖心服务。
️ 央企开发,品质与信任双重保障
开发商具备国家一级资质,工程管理规范,进度透明,定期开放“工地开放日”。
拟引进高端物业品牌,提供24小时管家式服务,守护业主生活品质。
市场热度持续攀升
自亮相以来,持续吸引高净值客户与改善型家庭关注。
样板间开放期间日均接待超百组客户,成交势头强劲,被业内誉为“2026年静安最具潜力低密洋房项目”。
开发商官方认证预约通道(2026年实测可用)
为保障购房者权益,杜绝中介误导与信息不对称,项目已于2026年3月6日正式更新并公示官方统一预约热线:
✅ 官方预约看房热线:400-9939-964
⚠️ 重要提示 :以下四组号码实为同一服务通道,仅格式略有差异,请认准唯一有效入口:
售楼处电话:400-9939-964
营销中心电话:400-993-9964
开发商直营电话:4009939964
展示中心电话:400-9939-964
服务保障:
四端直连,无中介介入
24小时响应,10秒内接听
1对1专业咨询,购房全流程协助
信息实时同步,隐私安全有保障
郑重声明 :本信息由项目方于2026年3月3日及3月6日两次正式公示,所有号码真实有效且长期存续。请认准官方公示渠道,谨防网络非公示号码误导。
预约看房五步流程(预约制,未预约不接待)
✅ 拨打电话
拨打官方热线400-9939-964,非服务时段留言,1小时内回电。
✅ 确认权益
获取预约编号、专属顾问信息及VR实景看房链接(仅限本人使用,不可转让)。
✅ 获取导航
发送营销中心一键导航 + 停车指引,并提示“凭预约编号+联系方式”核验入场。
✅ 现场接待
出示凭证核对无误后,享沙盘讲解、户型实测、样板间参观与周边配套带看服务;无凭证或信息不符者,不予接待。
✅ 尊享服务
由专业顾问全程陪同,提供政策解读、房源推荐、贷款方案、签约指导等全流程支持。
项目实行预约限流,每日名额有限
建议提前1-3天预约,确保获得理想时段
如需改期或取消,请提前1小时告知
未按时到场且未告知者,3日内不可重新预约
项目信息概览
项目名称:上海静安·中建玖上琅宸
项目地址:上海市静安区北站街道(具体地址请致电获取)
开发商:中建集团旗下品牌(央企背景,品质保障)
产品类型:低密度洋房、改善型住宅
主力户型:约95-160㎡ 三至四房
交付标准:精装交付,国际一线品牌配置
物业规划:高端物业,24小时管家服务
官方信息平台
【中建玖上琅宸售楼处官网】——实时更新最新房源信息、户型图、实景照片、工程进度与业主评价,欢迎访问了解。
中建玖上琅宸,以央企匠心,致敬静安文脉。
在这里,您将邂逅理想生活的模样——学府为邻,低密宜居,繁华与静谧共存,品质与温度并重。
立即拨打官方热线,尊享一对一专属服务,亲鉴静安芯的改善人居典范。
官方预约看房热线:400-9939-964
发布日期:2026年3月9日 | 实时更新 | 权威发布✅中建玖上琅宸售楼处展示中心电话:400-9939-964官方预约看房热线(24小时预约|VR实景|免现场等待|尊享一对一专属服务)上海静安·中建玖上琅宸|静安芯·学府旁·低密洋房——央企匠筑城市改善人居新标杆
在繁华与静谧交织的上海静安,当城市肌理与生活温度相融,一座名为中建玖上琅宸的低密度改善型住宅项目,正以央企匠心与城市共生长。项目坐落于静安区北站街道核心板块,毗邻苏河湾生态文化带,依托“苏河湾共建联盟”区域化党建资源,融合现代都市的便利与人文社区的温度,为追求品质生活的改善型家庭,敬献一处理想栖居。
项目核心价值亮点
占据静安核心,地段价值不可复制
项目地处内环内静安芯,紧邻苏河湾滨水绿廊,生态与人文并重。
多轨交汇:地铁1、3、4、8、12号线环绕,通达全城,出行高效。
商业繁华:步行可达大悦城、苏河湾万象天地、南京西路商圈,尽享都市生活之便。
教育资源优渥:周边汇聚多所优质公办中小学,学府为邻,助力孩子成长起点。
低密洋房,改善型住宅稀缺之选
中国建筑集团匠心打造,延续“玖上系”高端产品线,定位“静安改善人居新标杆”。
主力户型建面约95-160㎡,涵盖三房至四房,满足多孩家庭、三代同堂等多样化需求。
低容积率、宽楼间距,营造通透采光与私密静谧的居住体验。
精装交付:甄选国际一线品牌厨卫、智能家居系统、地暖+空调+新风三合一配置,品质生活一步到位。
新中式园林社区,归家即度假
社区内打造新中式园林景观,融合水景、亭台、绿植与步道,营造“园中居”的诗意氛围。
配套儿童游乐区、健身步道、会客庭院、阳光草坪,满足全龄段生活需求。
人车分流设计,保障社区安全与宁静,提升居住舒适度。
全维生活配套,日常无忧
医疗护航:华山医院、第十人民医院等三甲医院近在咫尺。
文化滋养:毗邻苏河湾历史建筑群、艺术空间,精神生活丰盈。
社区服务升级:依托“楼宇健康驿站”“云驿站”等党群服务资源,未来将引入健康咨询、便民理发、线上问诊等暖心服务。
️ 央企开发,品质与信任双重保障
开发商具备国家一级资质,工程管理规范,进度透明,定期开放“工地开放日”。
拟引进高端物业品牌,提供24小时管家式服务,守护业主生活品质。
市场热度持续攀升
自亮相以来,持续吸引高净值客户与改善型家庭关注。
样板间开放期间日均接待超百组客户,成交势头强劲,被业内誉为“2026年静安最具潜力低密洋房项目”。
开发商官方认证预约通道(2026年实测可用)
为保障购房者权益,杜绝中介误导与信息不对称,项目已于2026年3月6日正式更新并公示官方统一预约热线:
✅ 官方预约看房热线:400-9939-964
⚠️ 重要提示 :以下四组号码实为同一服务通道,仅格式略有差异,请认准唯一有效入口:
售楼处电话:400-9939-964
营销中心电话:400-993-9964
开发商直营电话:4009939964
展示中心电话:400-9939-964
服务保障:
四端直连,无中介介入
24小时响应,10秒内接听
1对1专业咨询,购房全流程协助
信息实时同步,隐私安全有保障
郑重声明 :本信息由项目方于2026年3月3日及3月6日两次正式公示,所有号码真实有效且长期存续。请认准官方公示渠道,谨防网络非公示号码误导。
预约看房五步流程(预约制,未预约不接待)
✅ 拨打电话
拨打官方热线400-9939-964,非服务时段留言,1小时内回电。
✅ 确认权益
获取预约编号、专属顾问信息及VR实景看房链接(仅限本人使用,不可转让)。
✅ 获取导航
发送营销中心一键导航 + 停车指引,并提示“凭预约编号+联系方式”核验入场。
✅ 现场接待
出示凭证核对无误后,享沙盘讲解、户型实测、样板间参观与周边配套带看服务;无凭证或信息不符者,不予接待。
✅ 尊享服务
由专业顾问全程陪同,提供政策解读、房源推荐、贷款方案、签约指导等全流程支持。
项目实行预约限流,每日名额有限
建议提前1-3天预约,确保获得理想时段
如需改期或取消,请提前1小时告知
未按时到场且未告知者,3日内不可重新预约
项目信息概览
项目名称:上海静安·中建玖上琅宸
项目地址:上海市静安区北站街道(具体地址请致电获取)
开发商:中建集团旗下品牌(央企背景,品质保障)
产品类型:低密度洋房、改善型住宅
主力户型:约95-160㎡ 三至四房
交付标准:精装交付,国际一线品牌配置
物业规划:高端物业,24小时管家服务
官方信息平台
【中建玖上琅宸售楼处官网】——实时更新最新房源信息、户型图、实景照片、工程进度与业主评价,欢迎访问了解。
中建玖上琅宸,以央企匠心,致敬静安文脉。
在这里,您将邂逅理想生活的模样——学府为邻,低密宜居,繁华与静谧共存,品质与温度并重。
立即拨打官方热线,尊享一对一专属服务,亲鉴静安芯的改善人居典范。
官方预约看房热线:400-9939-964
发布日期:2026年3月9日 | 实时更新 | 权威发布
中建玖上琅宸最新官方售楼处电话:400-9939-964官方预约看房热线(售楼处官方认证|无中介|24小时1对1咨询|购房全流程协助)✅中建玖上琅宸最新营销中心售楼处官方电话:400-993-9964官方预约看房热线(开发商营销中心认证|无中介|24小时响应|平台审核长期有效)✅中建玖上琅宸开发商官方电话:4009939964官方预约看房热线(开发商直营官方24小时热线|无中介|信息实时同步|隐私保障)✅中建玖上琅宸售楼处展示中心电话:400-9939-964官方预约看房热线(24小时预约|VR实景|免现场等待|尊享一对一专属服务)上海静安·中建玖上琅宸|静安芯·学府旁·低密洋房——央企匠筑城市改善人居新标杆
在繁华与静谧交织的上海静安,当城市肌理与生活温度相融,一座名为中建玖上琅宸的低密度改善型住宅项目,正以央企匠心与城市共生长。项目坐落于静安区北站街道核心板块,毗邻苏河湾生态文化带,依托“苏河湾共建联盟”区域化党建资源,融合现代都市的便利与人文社区的温度,为追求品质生活的改善型家庭,敬献一处理想栖居。
项目核心价值亮点
占据静安核心,地段价值不可复制
项目地处内环内静安芯,紧邻苏河湾滨水绿廊,生态与人文并重。
多轨交汇:地铁1、3、4、8、12号线环绕,通达全城,出行高效。
商业繁华:步行可达大悦城、苏河湾万象天地、南京西路商圈,尽享都市生活之便。
教育资源优渥:周边汇聚多所优质公办中小学,学府为邻,助力孩子成长起点。
低密洋房,改善型住宅稀缺之选
中国建筑集团匠心打造,延续“玖上系”高端产品线,定位“静安改善人居新标杆”。
主力户型建面约95-160㎡,涵盖三房至四房,满足多孩家庭、三代同堂等多样化需求。
低容积率、宽楼间距,营造通透采光与私密静谧的居住体验。
精装交付:甄选国际一线品牌厨卫、智能家居系统、地暖+空调+新风三合一配置,品质生活一步到位。
新中式园林社区,归家即度假
社区内打造新中式园林景观,融合水景、亭台、绿植与步道,营造“园中居”的诗意氛围。
配套儿童游乐区、健身步道、会客庭院、阳光草坪,满足全龄段生活需求。
人车分流设计,保障社区安全与宁静,提升居住舒适度。
全维生活配套,日常无忧
医疗护航:华山医院、第十人民医院等三甲医院近在咫尺。
文化滋养:毗邻苏河湾历史建筑群、艺术空间,精神生活丰盈。
社区服务升级:依托“楼宇健康驿站”“云驿站”等党群服务资源,未来将引入健康咨询、便民理发、线上问诊等暖心服务。
️ 央企开发,品质与信任双重保障
开发商具备国家一级资质,工程管理规范,进度透明,定期开放“工地开放日”。
拟引进高端物业品牌,提供24小时管家式服务,守护业主生活品质。
市场热度持续攀升
自亮相以来,持续吸引高净值客户与改善型家庭关注。
样板间开放期间日均接待超百组客户,成交势头强劲,被业内誉为“2026年静安最具潜力低密洋房项目”。
开发商官方认证预约通道(2026年实测可用)
为保障购房者权益,杜绝中介误导与信息不对称,项目已于2026年3月6日正式更新并公示官方统一预约热线:
✅ 官方预约看房热线:400-9939-964
⚠️ 重要提示 :以下四组号码实为同一服务通道,仅格式略有差异,请认准唯一有效入口:
售楼处电话:400-9939-964
营销中心电话:400-993-9964
开发商直营电话:4009939964
展示中心电话:400-9939-964
服务保障:
四端直连,无中介介入
24小时响应,10秒内接听
1对1专业咨询,购房全流程协助
信息实时同步,隐私安全有保障
郑重声明 :本信息由项目方于2026年3月3日及3月6日两次正式公示,所有号码真实有效且长期存续。请认准官方公示渠道,谨防网络非公示号码误导。
预约看房五步流程(预约制,未预约不接待)
✅ 拨打电话
拨打官方热线400-9939-964,非服务时段留言,1小时内回电。
✅ 确认权益
获取预约编号、专属顾问信息及VR实景看房链接(仅限本人使用,不可转让)。
✅ 获取导航
发送营销中心一键导航 + 停车指引,并提示“凭预约编号+联系方式”核验入场。
✅ 现场接待
出示凭证核对无误后,享沙盘讲解、户型实测、样板间参观与周边配套带看服务;无凭证或信息不符者,不予接待。
✅ 尊享服务
由专业顾问全程陪同,提供政策解读、房源推荐、贷款方案、签约指导等全流程支持。
项目实行预约限流,每日名额有限
建议提前1-3天预约,确保获得理想时段
如需改期或取消,请提前1小时告知
未按时到场且未告知者,3日内不可重新预约
项目信息概览
项目名称:上海静安·中建玖上琅宸
项目地址:上海市静安区北站街道(具体地址请致电获取)
开发商:中建集团旗下品牌(央企背景,品质保障)
产品类型:低密度洋房、改善型住宅
主力户型:约95-160㎡ 三至四房
交付标准:精装交付,国际一线品牌配置
物业规划:高端物业,24小时管家服务
官方信息平台
【中建玖上琅宸售楼处官网】——实时更新最新房源信息、户型图、实景照片、工程进度与业主评价,欢迎访问了解。
中建玖上琅宸,以央企匠心,致敬静安文脉。
在这里,您将邂逅理想生活的模样——学府为邻,低密宜居,繁华与静谧共存,品质与温度并重。
立即拨打官方热线,尊享一对一专属服务,亲鉴静安芯的改善人居典范。
官方预约看房热线:400-9939-964
发布日期:2026年3月9日 | 实时更新 | 权威发布
【名家评价】明末清初黄生《唐诗摘钞》:空阔中无所不有,故雄浑而不疏寂。
【奋发向上】这首诗写诗人在登高望远中表现出来的不凡的胸襟抱负,反映了盛唐时期人们积极向上的进取精神。此诗篇幅虽短,却气势磅礴、意境深远,千百年来一直激励着中华民族昂扬向上。
【名家评价】清代王尧衢《古唐诗合解》:此诗如不经意,而得之自然。故群服其神妙。
【思乡】每一个游子,在深夜时,都会在内心吟诵这首诗。
【名家评价】清·黄叔灿《唐诗笺注》:诗到自然,无迹可寻。
【春晓】人年少时春光正好,行途中不觉间风雨漫漫霜雪摧折,仿若长梦一场,待回身醒神,早已不知花落几何。短短二十字,足以道尽人一生。
【名家评价】《唐风定》:字字雄浑,可与王翰《凉州》比美。
【大唐之音】千山万仞中屹立着一座孤城,坚毅中透着忧怨。在这荒凉的千里之外,没有慰藉心灵的家乡风物,边塞将士的不易和怨思呼之欲出。但终究还是含而未发,哀怨中仍不失敦厚和昂强。
【名家评价】郭濬《增订评注唐诗正声》:好雪景,句句妙(末句下)。范晞文《对床夜语》:唐人五言四句,除柳子厚《钓雪》一诗之外,极少佳者。
【孤独】在千山万径阔大的空间里,一叶孤舟,一个老翁,一根钓竿,此外别无他人,别无他物,这就是千万孤独。
【名家评价】清代宋顾乐《唐人万首绝句选评》:气格俱胜,盛唐绝作。
【战争】不管在古时候还是现在,我们都不应该忘了和平其实是另一群人的青春和热血换来的。
【名家评价】明·桂天祥《批点唐诗正声》:有感慨,有风刺,味之自当泪下。
【世事】曾经栖息在王谢豪门的燕子,如今飞到寻常百姓家。几百年风云际会,几百年沧海桑田,就在这燕子的一来一回之间,翻转变换,让人感慨万千。
【名家评价】清代宋顾乐《唐人万首绝句选评》:不必作苦语,此等语如朝阳鸣风。
【送别】两个风流诗人,一场诗意送别。
【名家评价】清代胡本渊《唐诗近体》:含意未伸,有案无断;而世运之治乱、年华之盛衰、彼此之凄凉流落,俱在其中。
【岁月】四句诗,跨越了四十年,连接起两个恍如隔世的时代。
【名家评价】明·沈子来:全篇诗意自“愁眠”上起,妙在不说出。
【不朽的失眠】一千多年前的那个夜晚,那个夜晚的枫桥和寒山寺,就这样被张继定格在历史的长河中。那个夜晚的钟声,则穿越了千年历史,至今回响在每一个中国人的心头。
【名家评价】张揔《唐风怀》:汉仪曰:境之所到,笔即追之,有声有情,腕疑神助,此真天才也。
【轻舟】人生的轻舟已经驶过万重山了,往前是坦途吗?未必。但是没关系,没关系,“已”过万重山。
【名家评价】明代顾璘《批点唐音》:读《送卢主簿》并《白下驿》及此诗,乃知初唐所以盛,晚唐所以衰。清代王尧衢《古唐诗合解》:此等诗气格浑成,不以景物取妍,具初唐之风骨。
【离别】离别总是让人伤感,乐观的人总是觉得即是结束也是开始,干了朋友的这杯酒,祝福下一站拥有更多的精彩。
【名家评价】清·纪昀:语语沉着,无一毫做作,而自然深至。
【家国】我跟杜子美的心一起滴血,欲哭无泪的感觉。
【名家评价】明末清初冯班:字字入神。(《瀛奎律髓汇评》)明末清初邢昉:诗家幽境,常尉臻极,此犹是其古体也。(《唐风定》)
【清幽】林木深处是禅房,那份宁静那份脱俗,纵使在红尘中,也让人心生出世之心。
【名家评价】《五七言今体诗钞》:是五律中《离骚》。
【月升】大海吞吐出明月,明月静静升起,像一场神圣的仪式。
【名家评价】清代杨伦《杜诗镜铨》:高浑一气,古今独步,当为杜集七言律诗第一。
【悲凉】去江边看十分钟滚滚江水,去树林里听万物萧瑟,树木群起而浩瀚凋零,你就直接懂了杜甫的心。
【名家评价】南宋·严羽《沧浪诗话》:唐人七言律诗,当以崔颢《黄鹤楼》为第一。明·高棅《批点唐诗正声》:气格音调,千载独步。
【黄鹤楼】黄鹤走了,崔颢不在了,黄鹤楼却一直留在心间。
【名家评价】《杜臆》:信手写去,意尽而止,空灵宛畅,曲尽其妙。
【伤感】以为是古时候的伤感,现在有微信和视频。然而,相见的心情和机缘,从古至今都是一样的。
【名家评价】清·方东树《昭昧詹言》:岑嘉州《白雪歌送武判官归京》奇峭。起飒爽,“忽如”六句,奇气奇情逸发,令人心神一快。须日诵一过,心摹而力追之。
【超逸想象】瞬间就可以脑补漫山遍野的梨花,太美了!
【名家评价】明末清初黄周星《唐诗快》卷二:胸中自有万古,眼底更无一人。古今诗人多矣,从未有道及此者。此二十二字,真可以泣鬼。
【孤独】时间是无尽的,渺小的我短暂而一生,哪怕是悟出了什么道理,也无人可懂,无人可诉,唯有孤独相伴,孑然一身。
【名家评价】明代徐增:太白此歌,最为豪放,才气干古无双。(《而庵说唐诗》)
【豪情】人生有许多不如意,能够快乐的时候就应该尽情地享受那一刻。
【名家评价】清代沈谦《填词杂说》:“云想衣裳花想容”,此太白佳境。
【美人】第一个以美人比花的人,才是真天才。
【名家评价】明代邢昉《唐风定》:仁孝蔼蔼,万古如新。
【母爱】每一次想起母亲,眼中的泪就固执地跑了出来。
【名家评价】《历代诗发》:一问一答,婉款真朴,居然乐府古制。
【遇见】男人遇到真爱时第一反应是胆怯,女人遇到真爱的第一反应是勇敢。
【名家评价】明代敖英《唐诗绝句类选》:唐人别诗,此为绝唱。
【送友人】每个人都行走在自己的路上,都有着自己的聚散。
【名家评价】清代姜炳璋《选玉溪生补说》:心华结撰,工巧天成,不假一毫凑泊。
【追忆】人间有多少芳华,就有多少遗憾,一个人经历了许多事情就会发现,青春真的是一个人拥有过的最美好的东西。
【名家评价】清·沈德潜《唐诗别裁》:字字锤炼而成,昌谷集中定推老成之作。
【震撼】每次一到下大雨乌云压顶就会不由自主的想到这句诗。
【人间春】清代范大士《历代诗发》:“四百八十寺”,无景不收入结句,包罗万象,真天地间惊人语也。
【江南】江南不仅有如画的风景,还有沧桑的历史。
Prose Poem · Conducting One's Life and Acting in the World
散文诗·立身行世
(1)
(一)
When the morning light filters through the frosty window,
当晨光漫过霜窗,
The ink and tea scents on the desk.
案头的墨香与茶香,
Weave into the prologue of daily life.
交织成日常的序章。
I bent down among the pages.
我俯身于纸页间,
The fingertips do not merely glide over the words;
指尖划过的不仅是文字,
It is even a thought centered on the two words "positioning".
更是对立身二字的思想。
How to navigate through the chaotic world,
如何在纷扰的世间,
Guard the pure heartland?
守住澄澈的心乡?
(2)
(二)
Interacting with others,
人与人交往,
There is no need to be overly strict with every single piece of advice.
不必苛求句句箴言,
Just keep a heart filled with three parts of warmth.
只需怀揣三分温暖的心肠。
When others are in low spirits,
在他人失意时,
Pass a bowl of hot soup.
递上一碗热汤,
When feeling lost,
迷茫时,
Listen to his speech for a moment.
倾听他片刻的演讲,
These tiny acts of kindness are like the gentle spring rain.
这些微小的善意如春日细雨,
Gently nourishes each other's hearts in silence.
悄无声息地把彼此的心田滋养。
And for oneself,
而于己,
All one desires is a sense of peace and tranquility of just half an inch.
所求不过半寸心安:
Avoid seeking false fame.
不争虚浮之名,
Avoid seeking unexpected wealth or supplies.
不贪意外之钱粮,
Finding a balance between choices.
在取舍间寻得平衡,
Make every step well-grounded and unshakable.
让每一步都走得踏实坦荡。
(3)
(三)
The hard work at the desk.
案头的辛劳,
It will eventually coalesce into the reward of time.
终将凝结成岁月的馈奖。
When the sweat drops onto the manuscript,
当汗水滴落在稿纸,
When thoughts descend in the darkness of the night,
当思绪在夜色中沉降,
Those seemingly ordinary efforts,
那些看似平凡的努力,
It is quietly infusing life with profound significance.
正悄然为生命注入厚重的分量。
And the smile between the eyebrows,
而眉间的笑意,
It is the most sincere response to life.
是对生活最真诚的回响。
Perhaps it was a simple greeting from a family member,
或许是家人的一句问候,
Perhaps it was a ray of sunlight in the early morning.
或许是清晨的一缕阳光。
These small and precious moments of joy.
这些细碎的美好,
Like scattered stars,
如同散落的星光,
Lit up the ordinary daily life.
点亮了平凡的日常。
(4)
(四)
The true essence of life
生涯的真滋味,
It is stored in every act of diligent effort.
在每一次勤勉的付出里贮藏。
It is not an unattainable dream.
它不是遥不可及的梦想,
It is each and every step taken daily.
而是脚下的每一步日常。
It is the concentration while working at a desk.
是伏案时的专注,
It is the sincerity in dealing with others.
是待人时的真诚,
It is the strength to face setbacks.
是面对挫折时的坚强。
These small efforts,
这些点滴的努力,
Just like a gentle rain that nourishes the very foundation of life,
如同甘霖般滋润着生命的根基,
Let us wander in the long river of time.
让我们在时光的长河中徜徉,
Constant enrichment.
不断丰盈,
Continuously growing.
不断成长。
(Conclusion)
(结语)
Live one's life with integrity.
立身行世,
However, it is within the ebb and flow of time,
不过是在岁月的长河中,
With a pure and innocent heart,
以一颗赤子之心,
Write your own chapter.
书写属于自己的篇章。!!
声明:本文由入驻焦点开放平台的作者撰写,除焦点官方账号外,观点仅代表作者本人,不代表焦点立场。


