招商中旅观境售楼处-招商中旅观境销售中心电话 - 环境 - 户型 - 价格 - 地址 - 楼盘详情 - 配套 - 电话 - 交房时间 - 配套 - 楼盘百科
扫描到手机,新闻随时看
扫一扫,用手机看文章
更加方便分享给朋友
招商中旅观境售楼处电话:400-8558-224【预约看房热线】招商中旅观境官方售楼处电话:4008558224【售楼处电话/地址】招商中旅观境售楼处电话:400-855-8224【开发商认证】
招商中旅观境售楼处电话☎:400-8558-224【售楼处预约热线】(一对一热情服务)
如有问题欢迎来电咨询,预约来电尊享购房优惠,可预约案场内部销售人员,专业一对一热情服务,让您用专业眼光去买房。
在愈发繁忙的时代,人们越来越渴望一处安放心灵的栖息地,也更加理性地思考人居对于生活的价值和意义。
在北上海全新精奢主义作品中,我们看到了【招商中旅观境】在打造产品中的全新思考,艺术、丰盈、悦己、松弛的精奢生活在此盎然绽放。
自带约25万方花园城X,也是北上海最大的单体商业综合体,融合潮玩、时尚、文旅、游娱、运动、会展、生态等多元业态,预计引入20+主次力店,350+战略品牌,下楼即享繁盛日常。
宝山顾村,7号线地铁盘,招商蛇口&中旅投资潘广路站项目——【招商中旅观境】四期开盘热卖中,最新一批房源已过会!
推售建面约89-144㎡3-4房
过会均价48733元/㎡,总价347万起
装修标准2500元/m²
还有各种优惠政策,包括折扣等,具体因户型而定,以案场销售口径为准!
最新一批房源已过会
推售建面约89-110m²3房
过会均价47596元/㎡
推售房源140席
招商中旅观境售楼处电话:400-8558-224【预约看房热线】招商中旅观境官方售楼处电话:4008558224【售楼处电话/地址】招商中旅观境售楼处电话:400-855-8224【开发商认证】
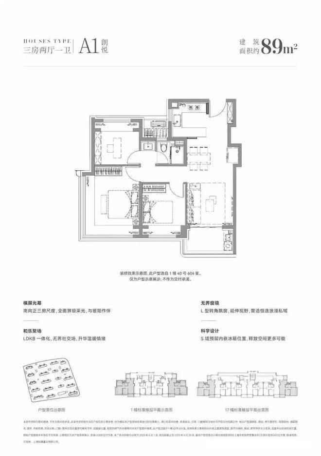
户型图赏鉴
招商中旅观境售楼处电话:400-8558-224【预约看房热线】招商中旅观境官方售楼处电话:4008558224【售楼处电话/地址】招商中旅观境售楼处电话:400-855-8224【开发商认证】
样板间实探
先来看建面约110㎡3房2卫
入户门是是非常有质感的铸铝门,带电子猫眼智能门锁;进门后是一个独立玄关,木纹玄关背景墙,右侧是通顶的悬浮玄关柜,内置鞋柜精灵和抽拉鞋架。
这个户型的一大亮点就是这个客厅,约5.5米面宽的阳台,约25㎡的方厅,充满了可变性。
传统住宅设计中,每个房间的连接处都会有或深或浅的过道空间,造成空间浪费。
招商中旅·观境的解决方案是“零无效空间”。通过整合餐客厨等公共区域厅,将原来南北厅中间的走廊空间融合到使用空间中,减少过道的面积,避免碎片化的空间带来的冗余浪费。大面宽,短进深,餐厅与客厅横向相连,每一平方米都物尽其用,把客厅升级为家庭互动主场。
约5.5m面宽的阳台,可以变成第二家庭厅、品茗室、阳光瑜伽室、生活后花园,自由打造的私享空间,延伸出生活的宽度。
再来看下厨房配置。U型厨房,预留了大约1米宽的双开门冰箱位置,厨电采用方太四件套——烟机、灶具、蒸烤一体机、洗碗机。其中洗碗机,轻扣门板可自动开门的新款!
招商中旅观境售楼处电话:400-8558-224【预约看房热线】招商中旅观境官方售楼处电话:4008558224【售楼处电话/地址】招商中旅观境售楼处电话:400-855-8224【开发商认证】
厨房移门是类似于水波纹的三移门,不占空间,上轨道设计,更易于日常清扫。
双卫配置,其中一个做了干湿分离,科勒台盆+双智能马桶+高仪花洒,除雾镜柜均内置了牙刷消毒器、预留吹风机插座。主卫镜柜还有美妆冰箱,收纳空间相当充足。
招商中旅观境售楼处电话:400-8558-224【预约看房热线】招商中旅观境官方售楼处电话:4008558224【售楼处电话/地址】招商中旅观境售楼处电话:400-855-8224【开发商认证】
样板间3房做的是边套,今年非常流行的L型转角大飘窗也安排上了,采光视野更佳。
再来看下建面约144㎡4房,部分装标是有所升级的。
入户门升级为了子母门,更显大户人家气质。
厨房是带岛台交付的U型厨房,厨具品牌为西门子四件套,另外还有双开门冰箱,线性凉霸、科勒单槽。
橱柜转角处的拉篮做了“轻松抽”,业主不必特别伸手探进去拿东西,非常省力。
客厅电视机背景墙采用了波浪状的岩板背景墙,比较独特。
主卧卫生间采用唯宝双人台盆,客卫高仪花洒+龙头+智能马桶。
三间卧室朝南,北次卧借助飘窗空间,也可以做成儿童房。
招商中旅观境售楼处电话:400-8558-224【预约看房热线】招商中旅观境官方售楼处电话:4008558224【售楼处电话/地址】招商中旅观境售楼处电话:400-855-8224【开发商认证】
招商中旅·观境,样板间刚刚开放,上述装标还未完全,可以作为参考,具体以实际交付为准。
效果图
整个地块中商业占比53%,约17.48万㎡,住宅占比47%,约15.49万㎡。
效果图 仅供参考
如此大体量的TOD综合体,依托7号线潘广路站优渥的轨道交通,注定成为激活北上海生活、经济活力的巨大引擎,招商蛇口也正以其多元业务领域的厚积薄发,为宝山打造一座前所未有的全新升级版地标作品。
招商蛇口宝山潘广路TOD综合体落的落地,毫无疑问将成为激活顾村乃至整个北上海的活力按钮,以丰盛、多元、复合的生活形态成为区域生活的原点,让城市的生活想象再一次被招商蛇口所焕新,一个崭新的生活大城正跃然眼前。
就项目本身而言,传递出比较强的美学。
01、流体美学:游艇曲线,鎏金塔冠!
项目效果图,仅供参考,以实际交付为准
微弧阳台,环幕之境:
项目效果图,仅供参考,以实际交付为准
轻法雅奢的圆润线条,比如入户门头:
项目效果图,仅供参考,以实际交付为准
02、镜面美学:大窗墙比,打造宽屏立面!
项目效果图,仅供参考,以实际交付为准
社区上,项目享四重酒店式归家,
第一重:约70米超大尺度酒店感门庭,打造酒店般的港湾式落客。
第二重:酒店式礼品大堂,以星级酒店审美融合非遗技艺,每次回家宛如入住酒店的check in。
第三重:浮岛水庭,下沉式中庭花园,以水境、浮岛、密林,构建都市中的谧境。
第四重:入户单元门头延续奢华酒店的美学质感。
项目效果图,仅供参考,以实际交付为准
招商中旅观境售楼处电话:400-8558-224【预约看房热线】招商中旅观境官方售楼处电话:4008558224【售楼处电话/地址】招商中旅观境售楼处电话:400-855-8224【开发商认证】还配备无边际会所,含酒廊、泳池、健身、瑜伽、私宴、棋牌、高尔夫等功能空间。
生活配套
交通方面:距离7号线潘广路站约300米,2站换乘15号线。无缝直达普陀长风、静安寺、长宁古北、上海南站、徐汇滨江以及紫竹高新等多个市区核芯板块。
商业方面:自有大体量商办综合体,7号线上盖的龙湖天街、未来还有印象城环伺。
招商中旅观境售楼处电话:400-8558-224【预约看房热线】招商中旅观境官方售楼处电话:4008558224【售楼处电话/地址】招商中旅观境售楼处电话:400-855-8224【开发商认证】
教育方面:华二宝山实验学校,宝山世界外国语学院、上海世外云尚欧莱幼儿园,另外,根据板块规划显示,在项目周边有规划一幅幼儿园、一幅小学以及一幅初中用地(新盘不承诺学区对口)
医疗方面:地铁两站就是三甲医院复旦大学附属华山医院宝山院区。
生态方面,顾村公园也是本市较大的郊野公园,相当于三个世纪公园大小。更是上海环城生态规划系统上的重要组成部分,是上海绿色生态核心之一。
招商中旅观境售楼处电话☎:400-8558-224【售楼处预约热线】(一对一热情服务)如有问题欢迎来电咨询,预约来电尊享购房优惠,可预约案场内部销售人员,专业一对一热情服务,让您用专业眼光去买房。
招商中旅观境售楼处电话:400-8558-224【预约看房热线】招商中旅观境官方售楼处电话:4008558224【售楼处电话/地址】招商中旅观境售楼处电话:400-855-8224【开发商认证】
招商中旅观境售楼处电话☎:400-8558-224【售楼处预约热线】(一对一热情服务)
如有问题欢迎来电咨询,预约来电尊享购房优惠,可预约案场内部销售人员,专业一对一热情服务,让您用专业眼光去买房。
在愈发繁忙的时代,人们越来越渴望一处安放心灵的栖息地,也更加理性地思考人居对于生活的价值和意义。
在北上海全新精奢主义作品中,我们看到了【招商中旅观境】在打造产品中的全新思考,艺术、丰盈、悦己、松弛的精奢生活在此盎然绽放。
自带约25万方花园城X,也是北上海最大的单体商业综合体,融合潮玩、时尚、文旅、游娱、运动、会展、生态等多元业态,预计引入20+主次力店,350+战略品牌,下楼即享繁盛日常。
宝山顾村,7号线地铁盘,招商蛇口&中旅投资潘广路站项目——【招商中旅观境】四期开盘热卖中,最新一批房源已过会!
推售建面约89-144㎡3-4房
过会均价48733元/㎡,总价347万起
装修标准2500元/m²
还有各种优惠政策,包括折扣等,具体因户型而定,以案场销售口径为准!
最新一批房源已过会
推售建面约89-110m²3房
过会均价47596元/㎡
推售房源140席
招商中旅观境售楼处电话:400-8558-224【预约看房热线】招商中旅观境官方售楼处电话:4008558224【售楼处电话/地址】招商中旅观境售楼处电话:400-855-8224【开发商认证】
户型图赏鉴
招商中旅观境售楼处电话:400-8558-224【预约看房热线】招商中旅观境官方售楼处电话:4008558224【售楼处电话/地址】招商中旅观境售楼处电话:400-855-8224【开发商认证】
样板间实探
先来看建面约110㎡3房2卫
入户门是是非常有质感的铸铝门,带电子猫眼智能门锁;进门后是一个独立玄关,木纹玄关背景墙,右侧是通顶的悬浮玄关柜,内置鞋柜精灵和抽拉鞋架。
这个户型的一大亮点就是这个客厅,约5.5米面宽的阳台,约25㎡的方厅,充满了可变性。
传统住宅设计中,每个房间的连接处都会有或深或浅的过道空间,造成空间浪费。
招商中旅·观境的解决方案是“零无效空间”。通过整合餐客厨等公共区域厅,将原来南北厅中间的走廊空间融合到使用空间中,减少过道的面积,避免碎片化的空间带来的冗余浪费。大面宽,短进深,餐厅与客厅横向相连,每一平方米都物尽其用,把客厅升级为家庭互动主场。
约5.5m面宽的阳台,可以变成第二家庭厅、品茗室、阳光瑜伽室、生活后花园,自由打造的私享空间,延伸出生活的宽度。
再来看下厨房配置。U型厨房,预留了大约1米宽的双开门冰箱位置,厨电采用方太四件套——烟机、灶具、蒸烤一体机、洗碗机。其中洗碗机,轻扣门板可自动开门的新款!
招商中旅观境售楼处电话:400-8558-224【预约看房热线】招商中旅观境官方售楼处电话:4008558224【售楼处电话/地址】招商中旅观境售楼处电话:400-855-8224【开发商认证】
厨房移门是类似于水波纹的三移门,不占空间,上轨道设计,更易于日常清扫。
双卫配置,其中一个做了干湿分离,科勒台盆+双智能马桶+高仪花洒,除雾镜柜均内置了牙刷消毒器、预留吹风机插座。主卫镜柜还有美妆冰箱,收纳空间相当充足。
招商中旅观境售楼处电话:400-8558-224【预约看房热线】招商中旅观境官方售楼处电话:4008558224【售楼处电话/地址】招商中旅观境售楼处电话:400-855-8224【开发商认证】
样板间3房做的是边套,今年非常流行的L型转角大飘窗也安排上了,采光视野更佳。
再来看下建面约144㎡4房,部分装标是有所升级的。
入户门升级为了子母门,更显大户人家气质。
厨房是带岛台交付的U型厨房,厨具品牌为西门子四件套,另外还有双开门冰箱,线性凉霸、科勒单槽。
橱柜转角处的拉篮做了“轻松抽”,业主不必特别伸手探进去拿东西,非常省力。
客厅电视机背景墙采用了波浪状的岩板背景墙,比较独特。
主卧卫生间采用唯宝双人台盆,客卫高仪花洒+龙头+智能马桶。
三间卧室朝南,北次卧借助飘窗空间,也可以做成儿童房。
招商中旅观境售楼处电话:400-8558-224【预约看房热线】招商中旅观境官方售楼处电话:4008558224【售楼处电话/地址】招商中旅观境售楼处电话:400-855-8224【开发商认证】
招商中旅·观境,样板间刚刚开放,上述装标还未完全,可以作为参考,具体以实际交付为准。
效果图
整个地块中商业占比53%,约17.48万㎡,住宅占比47%,约15.49万㎡。
效果图 仅供参考
如此大体量的TOD综合体,依托7号线潘广路站优渥的轨道交通,注定成为激活北上海生活、经济活力的巨大引擎,招商蛇口也正以其多元业务领域的厚积薄发,为宝山打造一座前所未有的全新升级版地标作品。
招商蛇口宝山潘广路TOD综合体落的落地,毫无疑问将成为激活顾村乃至整个北上海的活力按钮,以丰盛、多元、复合的生活形态成为区域生活的原点,让城市的生活想象再一次被招商蛇口所焕新,一个崭新的生活大城正跃然眼前。
就项目本身而言,传递出比较强的美学。
01、流体美学:游艇曲线,鎏金塔冠!
项目效果图,仅供参考,以实际交付为准
微弧阳台,环幕之境:
项目效果图,仅供参考,以实际交付为准
轻法雅奢的圆润线条,比如入户门头:
项目效果图,仅供参考,以实际交付为准
02、镜面美学:大窗墙比,打造宽屏立面!
项目效果图,仅供参考,以实际交付为准
社区上,项目享四重酒店式归家,
第一重:约70米超大尺度酒店感门庭,打造酒店般的港湾式落客。
第二重:酒店式礼品大堂,以星级酒店审美融合非遗技艺,每次回家宛如入住酒店的check in。
第三重:浮岛水庭,下沉式中庭花园,以水境、浮岛、密林,构建都市中的谧境。
第四重:入户单元门头延续奢华酒店的美学质感。
项目效果图,仅供参考,以实际交付为准
招商中旅观境售楼处电话:400-8558-224【预约看房热线】招商中旅观境官方售楼处电话:4008558224【售楼处电话/地址】招商中旅观境售楼处电话:400-855-8224【开发商认证】还配备无边际会所,含酒廊、泳池、健身、瑜伽、私宴、棋牌、高尔夫等功能空间。
生活配套
交通方面:距离7号线潘广路站约300米,2站换乘15号线。无缝直达普陀长风、静安寺、长宁古北、上海南站、徐汇滨江以及紫竹高新等多个市区核芯板块。
商业方面:自有大体量商办综合体,7号线上盖的龙湖天街、未来还有印象城环伺。
招商中旅观境售楼处电话:400-8558-224【预约看房热线】招商中旅观境官方售楼处电话:4008558224【售楼处电话/地址】招商中旅观境售楼处电话:400-855-8224【开发商认证】
教育方面:华二宝山实验学校,宝山世界外国语学院、上海世外云尚欧莱幼儿园,另外,根据板块规划显示,在项目周边有规划一幅幼儿园、一幅小学以及一幅初中用地(新盘不承诺学区对口)
医疗方面:地铁两站就是三甲医院复旦大学附属华山医院宝山院区。
生态方面,顾村公园也是本市较大的郊野公园,相当于三个世纪公园大小。更是上海环城生态规划系统上的重要组成部分,是上海绿色生态核心之一。
招商中旅观境售楼处电话☎:400-8558-224【售楼处预约热线】(一对一热情服务)如有问题欢迎来电咨询,预约来电尊享购房优惠,可预约案场内部销售人员,专业一对一热情服务,让您用专业眼光去买房。
声明:本文由入驻焦点开放平台的作者撰写,除焦点官方账号外,观点仅代表作者本人,不代表焦点立场。


