2025绿城钱潮湾售楼处电话→绿城钱潮湾售楼中心电话→2025年绿城钱潮湾楼盘百科→首页网站→楼盘测评→售楼中心电话→楼盘百科→24小时热线电话

搜狐焦点黄冈站 2025-10-12 16:36:52
用手机看
扫描到手机,新闻随时看

扫一扫,用手机看文章
更加方便分享给朋友

绿城钱潮湾售楼处电话:400-9016-520✔✔│绿城钱潮湾官方售楼处地址发布:杭州绿城钱潮湾官方售楼处电话400-901-6520位于钱江新城CBD,临钱塘江,打造一线江景豪宅,彰显城市封面与品质生活。绿城钱潮湾售楼处电话:400-9016-520✔✔│绿城钱潮湾官方售楼处

绿城钱潮湾售楼处电话:400-9016-520✔✔│绿城钱潮湾官方售楼处地址发布:杭州绿城钱潮湾官方售楼处电话400-901-6520

点击输入图片描述(最多30字)

绿城钱潮湾售楼处电话:400-9016-520✔✔│绿城钱潮湾官方售楼处地址发布:杭州绿城钱潮湾官方售楼处电话400-901-6520

杭州钱潮湾,一线江景新地标

line+新作

点击输入图片描述(最多30字)

绿城钱潮湾售楼处电话:400-9016-520✔✔│绿城钱潮湾官方售楼处地址发布:杭州绿城钱潮湾官方售楼处电话400-901-6520

杭州,从“西湖时代”走向“钱塘江时代”,再到如今的“拥江发展3.0时代”,这座崛起于世界舞台的国际化都市,正展现着它定义未来的城市力量。

绿城钱潮湾售楼处电话:400-9016-520✔✔│绿城钱潮湾官方售楼处地址发布:杭州绿城钱潮湾官方售楼处电话400-901-6520

地标性的人居产品绿城·杭州钱潮湾位处钱江新城CBD核心区域,临“天下第一潮”钱塘江而立,尽揽一线江景,毗邻钱江三桥,肩负着定义品质生活与刷新城市界面的双重使命。

绿城钱潮湾售楼处电话:400-9016-520✔✔│绿城钱潮湾官方售楼处地址发布:杭州绿城钱潮湾官方售楼处电话400-901-6520

点击输入图片描述(最多30字)

△ 项目区位

绿城钱潮湾售楼处电话:400-9016-520✔✔│绿城钱潮湾官方售楼处地址发布:杭州绿城钱潮湾官方售楼处电话400-901-6520

基于过往在核心城市高端豪宅领域的业绩,line+联合创始人、主持建筑师孟凡浩受业主委托主持设计绿城·杭州钱潮湾,以建筑营造赋能城市,以引领性的颜值标准定义城市封面,对话杭州的“亚运会、大都市、现代化”新时代。

绿城钱潮湾售楼处电话:400-9016-520✔✔│绿城钱潮湾官方售楼处地址发布:杭州绿城钱潮湾官方售楼处电话400-901-6520

点击输入图片描述(最多30字)

“地处沿江一线重要地段,建筑将为这座崛起中的城市注入怎样的能量?我们希望跳出建筑学的既有框架,尝试以充满想象力和创造力的行动,探索建筑的力量,激发城市的潜能,让生活其中的人们看到这座城市的雄心和抱负。”line+主持建筑师孟凡浩说道。

绿城钱潮湾售楼处电话:400-9016-520✔✔│绿城钱潮湾官方售楼处地址发布:杭州绿城钱潮湾官方售楼处电话400-901-6520

点击输入图片描述(最多30字)

绿城钱潮湾售楼处电话:400-9016-520✔✔│绿城钱潮湾官方售楼处地址发布:杭州绿城钱潮湾官方售楼处电话400-901-6520

line+以钱塘江为设计思考的起点,建立起由统一的立面肌理单元组成的建筑语言,使建筑形象以指数附加的产品力呈现。

绿城钱潮湾售楼处电话:400-9016-520✔✔│绿城钱潮湾官方售楼处地址发布:杭州绿城钱潮湾官方售楼处电话400-901-6520

设计提取钱塘江水“潮涌”的动态元素,抽象为独特精美的金色铝板曲面线条,结合大面积的玻璃,勾勒建筑体量的层间关系,交织出极富韵律的纵向线条,以潮水般流动变化的独特气质屹立江岸,又融入钱塘潮水流淌奔涌的历史之中。

点击输入图片描述(最多30字)

绿城钱潮湾售楼处电话:400-9016-520✔✔│绿城钱潮湾官方售楼处地址发布:杭州绿城钱潮湾官方售楼处电话400-901-6520

钱潮湾是城市D豪公寓,更是每一个房间都看得到风景的“城市观景台”,270度收揽一线江景,壮阔的自然景观与繁华的都市图景渗透进生活的每一个时刻与细节。

基于室内功能、观景体验,生活起居的舒适性、健康、安全等要素考虑,经过多轮材料比对和细节推敲,立面形式完全契合于平面功能,以韵律变化的动态语言构筑契合未来生活需求的城市居住蓝图。

绿城钱潮湾售楼处电话:400-9016-520✔✔│绿城钱潮湾官方售楼处地址发布:杭州绿城钱潮湾官方售楼处电话400-901-6520

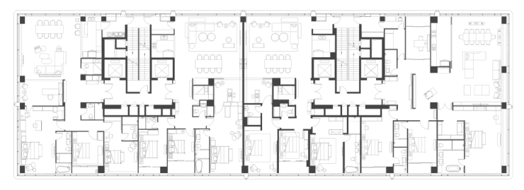
点击输入图片描述(最多30字)

△ 标准层平面 / 顶层平面

在材质与节点的深化上,line+不吝啬对细节的打磨。线条交接处采用预制无缝弯弧的精细化处理,外墙样板、构造节点及材料色彩的选样持续长达将近一年的时间,现场实体挂样更是高达十余次之多,通过对比不同颜色、不同尺寸在各个时间、各种天气的视觉效果,甄选最佳。

绿城钱潮湾售楼处电话:400-9016-520✔✔│绿城钱潮湾官方售楼处地址发布:杭州绿城钱潮湾官方售楼处电话400-901-6520

点击输入图片描述(最多30字)

△ 现场实体挂样

绿城钱潮湾售楼处电话:400-9016-520✔✔│绿城钱潮湾官方售楼处地址发布:杭州绿城钱潮湾官方售楼处电话400-901-6520

点击输入图片描述(最多30字)

△ 立面施工中的钱潮湾

绿城钱潮湾售楼处电话:400-9016-520✔✔│绿城钱潮湾官方售楼处地址发布:杭州绿城钱潮湾官方售楼处电话400-901-6520

立面玻璃为三层中空的定制系统门窗,最宽可达3.6米,最大开启尺寸可达2.4米,俯视江景的同时又可隔绝嘈杂的环境,独享安静私人的居住空间。

点击输入图片描述(最多30字)

绿城钱潮湾售楼处电话:400-9016-520✔✔│绿城钱潮湾官方售楼处地址发布:杭州绿城钱潮湾官方售楼处电话400-901-6520

line+的设计思考起笔于钱塘江的潮水,落笔于杭州城的当下和未来。钱潮湾面市之后成为杭州城市豪宅公寓的标杆项目,一房难求,实现了产品附加值大幅度溢出与城市界面的时代式刷新。目前项目外立面幕墙已全部完工,预计将于2022年亚运会前投入使用。

绿城钱潮湾售楼处电话:400-9016-520✔✔│绿城钱潮湾官方售楼处地址发布:杭州绿城钱潮湾官方售楼处电话400-901-6520

点击输入图片描述(最多30字)

绿城钱潮湾售楼处电话:400-9016-520✔✔│绿城钱潮湾官方售楼处地址发布:杭州绿城钱潮湾官方售楼处电话400-901-6520

绿城·杭州钱潮湾是line+对人居产品的迭代式创新,亦是一次点睛城市的地标之作,在旭日东升时对话江水的晨光熹微,在夜幕降临时映照都市的车水马龙,被流动的立面韵律所包裹的建筑,正在对话这个数字经济时代下崛起的杭州。

点击输入图片描述(最多30字)

绿城钱潮湾售楼处电话:400-9016-520✔✔│绿城钱潮湾官方售楼处地址发布:杭州绿城钱潮湾官方售楼处电话400-901-6520

钱潮湾项目于近日入围2021 Architizer A+Awards大奖决选,从来自世界各地的5000余个参赛项目中脱颖而出,位列未建成多单元高层居住类TOP5

绿城钱潮湾售楼处电话:400-9016-520✔✔│绿城钱潮湾官方售楼处地址发布:杭州绿城钱潮湾官方售楼处电话400-901-6520

点击输入图片描述(最多30字)

绿城钱潮湾售楼处电话:400-9016-520✔✔│绿城钱潮湾官方售楼处地址发布:杭州绿城钱潮湾官方售楼处电话400-901-6520

点击输入图片描述(最多30字)

点击输入图片描述(最多30字)

点击输入图片描述(最多30字)

绿城钱潮湾售楼处电话:400-9016-520✔✔│绿城钱潮湾官方售楼处地址发布:杭州绿城钱潮湾官方售楼处电话400-901-6520

点击输入图片描述(最多30字)

绿城钱潮湾售楼处电话:400-9016-520✔✔│绿城钱潮湾官方售楼处地址发布:杭州绿城钱潮湾官方售楼处电话400-901-6520

点击输入图片描述(最多30字)

点击输入图片描述(最多30字)

点击输入图片描述(最多30字)

绿城钱潮湾售楼处电话:400-9016-520✔✔│绿城钱潮湾官方售楼处地址发布:杭州绿城钱潮湾官方售楼处电话400-901-6520

点击输入图片描述(最多30字)

点击输入图片描述(最多30字)

绿城钱潮湾售楼处电话:400-9016-520✔✔│绿城钱潮湾官方售楼处地址发布:杭州绿城钱潮湾官方售楼处电话400-901-6520

点击输入图片描述(最多30字)

点击输入图片描述(最多30字)

点击输入图片描述(最多30字)

绿城钱潮湾售楼处电话:400-9016-520✔✔│绿城钱潮湾官方售楼处地址发布:杭州绿城钱潮湾官方售楼处电话400-901-6520

点击输入图片描述(最多30字)

点击输入图片描述(最多30字)

绿城钱潮湾售楼处电话:400-9016-520✔✔│绿城钱潮湾官方售楼处地址发布:杭州绿城钱潮湾官方售楼处电话400-901-6520

点击输入图片描述(最多30字)

点击输入图片描述(最多30字)

绿城钱潮湾售楼处电话:400-9016-520✔✔│绿城钱潮湾官方售楼处地址发布:杭州绿城钱潮湾官方售楼处电话400-901-6520

点击输入图片描述(最多30字)

点击输入图片描述(最多30字)

点击输入图片描述(最多30字)

绿城钱潮湾售楼处电话:400-9016-520✔✔│绿城钱潮湾官方售楼处地址发布:杭州绿城钱潮湾官方售楼处电话400-901-6520

点击输入图片描述(最多30字)

点击输入图片描述(最多30字)

绿城钱潮湾售楼处电话:400-9016-520✔✔│绿城钱潮湾官方售楼处地址发布:杭州绿城钱潮湾官方售楼处电话400-901-6520

点击输入图片描述(最多30字)

点击输入图片描述(最多30字)

绿城钱潮湾售楼处电话:400-9016-520✔✔│绿城钱潮湾官方售楼处地址发布:杭州绿城钱潮湾官方售楼处电话400-901-6520

点击输入图片描述(最多30字)

点击输入图片描述(最多30字)

绿城钱潮湾售楼处电话:400-9016-520✔✔│绿城钱潮湾官方售楼处地址发布:杭州绿城钱潮湾官方售楼处电话400-901-6520

点击输入图片描述(最多30字)

绿城钱潮湾售楼处电话:400-9016-520✔✔│绿城钱潮湾官方售楼处

绿城钱潮湾售楼处电话:400-9016-520✔✔│绿城钱潮湾官方售楼处地址发布:杭州绿城钱潮湾官方售楼处电话400-901-6520

点击输入图片描述(最多30字)

点击输入图片描述(最多30字)

点击输入图片描述(最多30字)

点击输入图片描述(最多30字)

绿城钱潮湾售楼处电话:400-9016-520✔✔│绿城钱潮湾官方售楼处地址发布:杭州绿城钱潮湾官方售楼处电话400-901-6520

点击输入图片描述(最多30字)

点击输入图片描述(最多30字)

绿城钱潮湾售楼处电话:400-9016-520✔✔│绿城钱潮湾官方售楼处地址发布:杭州绿城钱潮湾官方售楼处电话400-901-6520

点击输入图片描述(最多30字)

点击输入图片描述(最多30字)

绿城钱潮湾售楼处电话:400-9016-520✔✔│绿城钱潮湾官方售楼处地址发布:杭州绿城钱潮湾官方售楼处电话400-901-6520

点击输入图片描述(最多30字)

点击输入图片描述(最多30字)

绿城钱潮湾售楼处电话:400-9016-520✔✔│绿城钱潮湾官方售楼处地址发布:杭州绿城钱潮湾官方售楼处电话400-901-6520

点击输入图片描述(最多30字)

绿城钱潮湾售楼处电话:400-9016-520✔✔│绿城钱潮湾官方售楼处地址发布:杭州绿城钱潮湾官方售楼处电话400-901-6520

点击输入图片描述(最多30字)

点击输入图片描述(最多30字)

绿城钱潮湾售楼处电话:400-9016-520✔✔│绿城钱潮湾官方售楼处地址发布:杭州绿城钱潮湾官方售楼处电话400-901-6520

点击输入图片描述(最多30字)

绿城钱潮湾售楼处电话:400-9016-520✔✔│绿城钱潮湾官方售楼处地址发布:杭州绿城钱潮湾官方售楼处电话400-901-6520

点击输入图片描述(最多30字)

绿城钱潮湾售楼处电话:400-9016-520✔✔│绿城钱潮湾官方售楼处地址发布:杭州绿城钱潮湾官方售楼处电话400-901-6520

点击输入图片描述(最多30字)

绿城钱潮湾售楼处电话:400-9016-520✔✔│绿城钱潮湾官方售楼处地址发布:杭州绿城钱潮湾官方售楼处电话400-901-6520

点击输入图片描述(最多30字)

绿城钱潮湾售楼处电话:400-9016-520✔✔│绿城钱潮湾官方售楼处地址发布:杭州绿城钱潮湾官方售楼处电话400-901-6520

点击输入图片描述(最多30字)

点击输入图片描述(最多30字)

绿城钱潮湾售楼处电话:400-9016-520✔✔│绿城钱潮湾官方售楼处地址发布:杭州绿城钱潮湾官方售楼处电话400-901-6520

如有问题欢迎来电咨询,来电即可享受买房优惠!

预约来电尊享购房优惠,可预约案场内部销售人员,专业一对一热情服务,让您用专业眼光去买房

绿城钱潮湾售楼处电话:4009016520【售楼中心热线】绿城钱潮湾营销中心热线400-9016-520绿城钱潮湾售楼处地址400-9016-520,楼盘项目全面介绍,本电话为开发商提供线上预约售楼电话,楼盘项目全面介绍(包含楼盘简介,均价,房价,现房,期房,别墅,叠墅,大平层,价格,楼盘地址,户型图,交通规划,备案价,备案名,项目配套,样板间,开盘时间,认筹时间,楼盘详情,售楼处电话,最新消息,最新详情,周边配套,一房一价,最新进展等详情咨询)楼盘详情丨价格丨更多优惠丨机不可失丨欢迎致电丨诚邀品鉴!售楼处位置丨特价房丨工抵房丨剩余房源丨户型图丨最新消息丨免责声明:将文章内容综合来源于网络、只作分享,版权归原作者所有!!如有侵权,请联系我们,我们第一时间处理如有问题欢迎来电咨询,专业一对一热情服务,让您用专业眼光去买房。如果您想了解更多楼盘详情,欢迎提前预约拨打绿城钱潮湾售楼处电话☎400-9016-520

绿城钱潮湾售楼处电话:400-9016-520✔✔│绿城钱潮湾官方售楼处地址发布:杭州绿城钱潮湾官方售楼处电话400-901-6520

编辑

点击输入图片描述(最多30字)

绿城钱潮湾售楼处电话:400-9016-520✔✔│绿城钱潮湾官方售楼处地址发布:杭州绿城钱潮湾官方售楼处电话400-901-6520

杭州钱潮湾,一线江景新地标

line+新作

编辑

点击输入图片描述(最多30字)

绿城钱潮湾售楼处电话:400-9016-520✔✔│绿城钱潮湾官方售楼处地址发布:杭州绿城钱潮湾官方售楼处电话400-901-6520

杭州,从“西湖时代”走向“钱塘江时代”,再到如今的“拥江发展3.0时代”,这座崛起于世界舞台的国际化都市,正展现着它定义未来的城市力量。

绿城钱潮湾售楼处电话:400-9016-520✔✔│绿城钱潮湾官方售楼处地址发布:杭州绿城钱潮湾官方售楼处电话400-901-6520

地标性的人居产品绿城·杭州钱潮湾位处钱江新城CBD核心区域,临“天下第一潮”钱塘江而立,尽揽一线江景,毗邻钱江三桥,肩负着定义品质生活与刷新城市界面的双重使命。

绿城钱潮湾售楼处电话:400-9016-520✔✔│绿城钱潮湾官方售楼处地址发布:杭州绿城钱潮湾官方售楼处电话400-901-6520

编辑

点击输入图片描述(最多30字)

△ 项目区位

绿城钱潮湾售楼处电话:400-9016-520✔✔│绿城钱潮湾官方售楼处地址发布:杭州绿城钱潮湾官方售楼处电话400-901-6520

基于过往在核心城市高端豪宅领域的业绩,line+联合创始人、主持建筑师孟凡浩受业主委托主持设计绿城·杭州钱潮湾,以建筑营造赋能城市,以引领性的颜值标准定义城市封面,对话杭州的“亚运会、大都市、现代化”新时代。

绿城钱潮湾售楼处电话:400-9016-520✔✔│绿城钱潮湾官方售楼处地址发布:杭州绿城钱潮湾官方售楼处电话400-901-6520

编辑

点击输入图片描述(最多30字)

“地处沿江一线重要地段,建筑将为这座崛起中的城市注入怎样的能量?我们希望跳出建筑学的既有框架,尝试以充满想象力和创造力的行动,探索建筑的力量,激发城市的潜能,让生活其中的人们看到这座城市的雄心和抱负。”line+主持建筑师孟凡浩说道。

绿城钱潮湾售楼处电话:400-9016-520✔✔│绿城钱潮湾官方售楼处地址发布:杭州绿城钱潮湾官方售楼处电话400-901-6520

编辑

点击输入图片描述(最多30字)

绿城钱潮湾售楼处电话:400-9016-520✔✔│绿城钱潮湾官方售楼处地址发布:杭州绿城钱潮湾官方售楼处电话400-901-6520

line+以钱塘江为设计思考的起点,建立起由统一的立面肌理单元组成的建筑语言,使建筑形象以指数附加的产品力呈现。

绿城钱潮湾售楼处电话:400-9016-520✔✔│绿城钱潮湾官方售楼处地址发布:杭州绿城钱潮湾官方售楼处电话400-901-6520

设计提取钱塘江水“潮涌”的动态元素,抽象为独特精美的金色铝板曲面线条,结合大面积的玻璃,勾勒建筑体量的层间关系,交织出极富韵律的纵向线条,以潮水般流动变化的独特气质屹立江岸,又融入钱塘潮水流淌奔涌的历史之中。

编辑

点击输入图片描述(最多30字)

绿城钱潮湾售楼处电话:400-9016-520✔✔│绿城钱潮湾官方售楼处地址发布:杭州绿城钱潮湾官方售楼处电话400-901-6520

钱潮湾是城市D豪公寓,更是每一个房间都看得到风景的“城市观景台”,270度收揽一线江景,壮阔的自然景观与繁华的都市图景渗透进生活的每一个时刻与细节。

基于室内功能、观景体验,生活起居的舒适性、健康、安全等要素考虑,经过多轮材料比对和细节推敲,立面形式完全契合于平面功能,以韵律变化的动态语言构筑契合未来生活需求的城市居住蓝图。

绿城钱潮湾售楼处电话:400-9016-520✔✔│绿城钱潮湾官方售楼处地址发布:杭州绿城钱潮湾官方售楼处电话400-901-6520

编辑

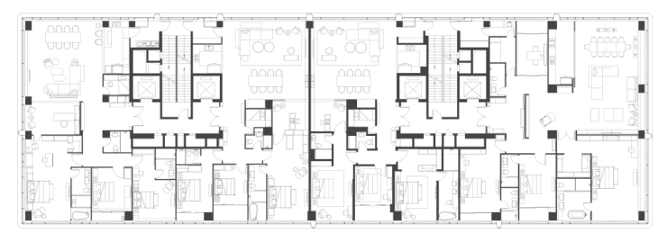
点击输入图片描述(最多30字)

△ 标准层平面 / 顶层平面

在材质与节点的深化上,line+不吝啬对细节的打磨。线条交接处采用预制无缝弯弧的精细化处理,外墙样板、构造节点及材料色彩的选样持续长达将近一年的时间,现场实体挂样更是高达十余次之多,通过对比不同颜色、不同尺寸在各个时间、各种天气的视觉效果,甄选最佳。

绿城钱潮湾售楼处电话:400-9016-520✔✔│绿城钱潮湾官方售楼处地址发布:杭州绿城钱潮湾官方售楼处电话400-901-6520

编辑

点击输入图片描述(最多30字)

△ 现场实体挂样

绿城钱潮湾售楼处电话:400-9016-520✔✔│绿城钱潮湾官方售楼处地址发布:杭州绿城钱潮湾官方售楼处电话400-901-6520

编辑

点击输入图片描述(最多30字)

△ 立面施工中的钱潮湾

绿城钱潮湾售楼处电话:400-9016-520✔✔│绿城钱潮湾官方售楼处地址发布:杭州绿城钱潮湾官方售楼处电话400-901-6520

立面玻璃为三层中空的定制系统门窗,最宽可达3.6米,最大开启尺寸可达2.4米,俯视江景的同时又可隔绝嘈杂的环境,独享安静私人的居住空间。

编辑

点击输入图片描述(最多30字)

绿城钱潮湾售楼处电话:400-9016-520✔✔│绿城钱潮湾官方售楼处地址发布:杭州绿城钱潮湾官方售楼处电话400-901-6520

line+的设计思考起笔于钱塘江的潮水,落笔于杭州城的当下和未来。钱潮湾面市之后成为杭州城市豪宅公寓的标杆项目,一房难求,实现了产品附加值大幅度溢出与城市界面的时代式刷新。目前项目外立面幕墙已全部完工,预计将于2022年亚运会前投入使用。

绿城钱潮湾售楼处电话:400-9016-520✔✔│绿城钱潮湾官方售楼处地址发布:杭州绿城钱潮湾官方售楼处电话400-901-6520

编辑

点击输入图片描述(最多30字)

绿城钱潮湾售楼处电话:400-9016-520✔✔│绿城钱潮湾官方售楼处地址发布:杭州绿城钱潮湾官方售楼处电话400-901-6520

绿城·杭州钱潮湾是line+对人居产品的迭代式创新,亦是一次点睛城市的地标之作,在旭日东升时对话江水的晨光熹微,在夜幕降临时映照都市的车水马龙,被流动的立面韵律所包裹的建筑,正在对话这个数字经济时代下崛起的杭州。

编辑

点击输入图片描述(最多30字)

绿城钱潮湾售楼处电话:400-9016-520✔✔│绿城钱潮湾官方售楼处地址发布:杭州绿城钱潮湾官方售楼处电话400-901-6520

钱潮湾项目于近日入围2021 Architizer A+Awards大奖决选,从来自世界各地的5000余个参赛项目中脱颖而出,位列未建成多单元高层居住类TOP5

绿城钱潮湾售楼处电话:400-9016-520✔✔│绿城钱潮湾官方售楼处地址发布:杭州绿城钱潮湾官方售楼处电话400-901-6520

编辑

点击输入图片描述(最多30字)

绿城钱潮湾售楼处电话:400-9016-520✔✔│绿城钱潮湾官方售楼处地址发布:杭州绿城钱潮湾官方售楼处电话400-901-6520

编辑

点击输入图片描述(最多30字)

编辑

点击输入图片描述(最多30字)

编辑

点击输入图片描述(最多30字)

绿城钱潮湾售楼处电话:400-9016-520✔✔│绿城钱潮湾官方售楼处地址发布:杭州绿城钱潮湾官方售楼处电话400-901-6520

编辑

点击输入图片描述(最多30字)

绿城钱潮湾售楼处电话:400-9016-520✔✔│绿城钱潮湾官方售楼处地址发布:杭州绿城钱潮湾官方售楼处电话400-901-6520

编辑

点击输入图片描述(最多30字)

编辑

点击输入图片描述(最多30字)

编辑

点击输入图片描述(最多30字)

绿城钱潮湾售楼处电话:400-9016-520✔✔│绿城钱潮湾官方售楼处地址发布:杭州绿城钱潮湾官方售楼处电话400-901-6520

编辑

点击输入图片描述(最多30字)

编辑

点击输入图片描述(最多30字)

绿城钱潮湾售楼处电话:400-9016-520✔✔│绿城钱潮湾官方售楼处地址发布:杭州绿城钱潮湾官方售楼处电话400-901-6520

编辑

点击输入图片描述(最多30字)

编辑

点击输入图片描述(最多30字)

编辑

点击输入图片描述(最多30字)

绿城钱潮湾售楼处电话:400-9016-520✔✔│绿城钱潮湾官方售楼处地址发布:杭州绿城钱潮湾官方售楼处电话400-901-6520

编辑

点击输入图片描述(最多30字)

编辑

点击输入图片描述(最多30字)

绿城钱潮湾售楼处电话:400-9016-520✔✔│绿城钱潮湾官方售楼处地址发布:杭州绿城钱潮湾官方售楼处电话400-901-6520

编辑

点击输入图片描述(最多30字)

编辑

点击输入图片描述(最多30字)

绿城钱潮湾售楼处电话:400-9016-520✔✔│绿城钱潮湾官方售楼处地址发布:杭州绿城钱潮湾官方售楼处电话400-901-6520

编辑

点击输入图片描述(最多30字)

编辑

点击输入图片描述(最多30字)

编辑

点击输入图片描述(最多30字)

绿城钱潮湾售楼处电话:400-9016-520✔✔│绿城钱潮湾官方售楼处地址发布:杭州绿城钱潮湾官方售楼处电话400-901-6520

编辑

点击输入图片描述(最多30字)

编辑

点击输入图片描述(最多30字)

绿城钱潮湾售楼处电话:400-9016-520✔✔│绿城钱潮湾官方售楼处地址发布:杭州绿城钱潮湾官方售楼处电话400-901-6520

编辑

点击输入图片描述(最多30字)

编辑

点击输入图片描述(最多30字)

绿城钱潮湾售楼处电话:400-9016-520✔✔│绿城钱潮湾官方售楼处地址发布:杭州绿城钱潮湾官方售楼处电话400-901-6520

编辑

点击输入图片描述(最多30字)

编辑

点击输入图片描述(最多30字)

绿城钱潮湾售楼处电话:400-9016-520✔✔│绿城钱潮湾官方售楼处地址发布:杭州绿城钱潮湾官方售楼处电话400-901-6520

编辑

点击输入图片描述(最多30字)

编辑

绿城钱潮湾售楼处电话:400-9016-520✔✔│绿城钱潮湾官方售楼处

绿城钱潮湾售楼处电话:400-9016-520✔✔│绿城钱潮湾官方售楼处地址发布:杭州绿城钱潮湾官方售楼处电话400-901-6520

编辑

点击输入图片描述(最多30字)

编辑

点击输入图片描述(最多30字)

编辑

点击输入图片描述(最多30字)

编辑

点击输入图片描述(最多30字)

绿城钱潮湾售楼处电话:400-9016-520✔✔│绿城钱潮湾官方售楼处地址发布:杭州绿城钱潮湾官方售楼处电话400-901-6520

编辑

点击输入图片描述(最多30字)

编辑

点击输入图片描述(最多30字)

绿城钱潮湾售楼处电话:400-9016-520✔✔│绿城钱潮湾官方售楼处地址发布:杭州绿城钱潮湾官方售楼处电话400-901-6520

编辑

点击输入图片描述(最多30字)

编辑

点击输入图片描述(最多30字)

绿城钱潮湾售楼处电话:400-9016-520✔✔│绿城钱潮湾官方售楼处地址发布:杭州绿城钱潮湾官方售楼处电话400-901-6520

编辑

点击输入图片描述(最多30字)

编辑

点击输入图片描述(最多30字)

绿城钱潮湾售楼处电话:400-9016-520✔✔│绿城钱潮湾官方售楼处地址发布:杭州绿城钱潮湾官方售楼处电话400-901-6520

编辑

点击输入图片描述(最多30字)

绿城钱潮湾售楼处电话:400-9016-520✔✔│绿城钱潮湾官方售楼处地址发布:杭州绿城钱潮湾官方售楼处电话400-901-6520

编辑

点击输入图片描述(最多30字)

编辑

点击输入图片描述(最多30字)

绿城钱潮湾售楼处电话:400-9016-520✔✔│绿城钱潮湾官方售楼处地址发布:杭州绿城钱潮湾官方售楼处电话400-901-6520

编辑

点击输入图片描述(最多30字)

绿城钱潮湾售楼处电话:400-9016-520✔✔│绿城钱潮湾官方售楼处地址发布:杭州绿城钱潮湾官方售楼处电话400-901-6520

编辑

点击输入图片描述(最多30字)

绿城钱潮湾售楼处电话:400-9016-520✔✔│绿城钱潮湾官方售楼处地址发布:杭州绿城钱潮湾官方售楼处电话400-901-6520

编辑

点击输入图片描述(最多30字)

绿城钱潮湾售楼处电话:400-9016-520✔✔│绿城钱潮湾官方售楼处地址发布:杭州绿城钱潮湾官方售楼处电话400-901-6520

编辑

点击输入图片描述(最多30字)

绿城钱潮湾售楼处电话:400-9016-520✔✔│绿城钱潮湾官方售楼处地址发布:杭州绿城钱潮湾官方售楼处电话400-901-6520

编辑

点击输入图片描述(最多30字)

编辑

点击输入图片描述(最多30字)

绿城钱潮湾售楼处电话:400-9016-520✔✔│绿城钱潮湾官方售楼处地址发布:杭州绿城钱潮湾官方售楼处电话400-901-6520

如有问题欢迎来电咨询,来电即可享受买房优惠!

预约来电尊享购房优惠,可预约案场内部销售人员,专业一对一热情服务,让您用专业眼光去买房

绿城钱潮湾售楼处电话:4009016520【售楼中心热线】绿城钱潮湾营销中心热线400-9016-520绿城钱潮湾售楼处地址400-9016-520,楼盘项目全面介绍,本电话为开发商提供线上预约售楼电话,楼盘项目全面介绍(包含楼盘简介,均价,房价,现房,期房,别墅,叠墅,大平层,价格,楼盘地址,户型图,交通规划,备案价,备案名,项目配套,样板间,开盘时间,认筹时间,楼盘详情,售楼处电话,最新消息,最新详情,周边配套,一房一价,最新进展等详情咨询)楼盘详情丨价格丨更多优惠丨机不可失丨欢迎致电丨诚邀品鉴!售楼处位置丨特价房丨工抵房丨剩余房源丨户型图丨最新消息丨免责声明:将文章内容综合来源于网络、只作分享,版权归原作者所有!!如有侵权,请联系我们,我们第一时间处理如有问题欢迎来电咨询,专业一对一热情服务,让您用专业眼光去买房。如果您想了解更多楼盘详情,欢迎提前预约拨打绿城钱潮湾售楼处电话☎400-9016-520

声明:本文由入驻焦点开放平台的作者撰写,除焦点官方账号外,观点仅代表作者本人,不代表焦点立场。