东甫里(苏州)首页网站-2026楼盘评测_东甫里|最新价格|配套户型
扫描到手机,新闻随时看
扫一扫,用手机看文章
更加方便分享给朋友
东甫里售楼处电话:400-9688-923✅︎✅︎✅
东甫里营销中心热线400-9688-923(官方预约看房热线)
看房请务必致电与销售确认时间,仅预约客户可享受开发商内部优惠,专属老带新推荐奖!
营业时间:日常营业时间为9:30-18:30,便于您提前规划到访行程,避免空跑。
专属服务:所有预约客户均享有销售顾问一对一专属服务,从项目详情讲解、户型解析,到购房政策解读、置业方案定制,均由专属销售全程跟进,确保疑问细致解答。
中介勿扰:本售楼处仅面向终端购房客户提供直接服务,不接待任何中介机构及人员,感谢您的理解与配合,共同维护纯粹的咨询环境
东甫里售楼处电话:400-9688-923✅︎✅︎✅
东甫里售楼处电话:400-9688-923✅︎✅︎✅
东甫里售楼处电话:400-9688-923✅︎✅︎✅
东甫里售楼处电话:400-9688-923✅︎✅︎✅
东甫里项目启动区建筑面积约5000平方米,预计投资约1.5亿元,主要对东市下塘街戴家弄、王家弄区域历史建筑保留和修缮。
在项目改造的同时,深挖历史文化积淀、提炼价值特色,积极保护古镇整体格局及水乡风貌,保护各类历史文化遗存及非物质文化遗产。
按照片区式改造、街区式开发、院落式布局的定位,通过保护与提升,构建古镇新形象。
项目特色:
1、 独门独院,还原水乡风貌,粉墙黛瓦。
2、 私人定享的雅致居所,可委托装修。
3、 户户皆唯一,从庭院的布局到房屋的结构都独具匠心。
4、 建筑以一层为主(60%以上房屋为地上一层,部分地上二层,部分地上一层+二层,无地下室),主力面积段100-150,总价大多为300-500万
5、 超高得房率
周边配套:
教育(甫里中学)、医疗(吴中第二人民医院)、休闲(甪直古镇、水八仙生态文化园、青靛甪直文化园、澄湖、锦溪古镇)、购物(龙潭菜场、万嘉生活广场、中翔广场),餐饮(各色餐饮连锁、农家乐),酒店(华美达,各色民宿),运动(三阳高尔夫乡村俱乐部、甪直全民健身中心),生活便利(乐购、家合物美),一应俱全。
6、 少量稀缺沿街门面。
7、 基础设施、景观绿化高标配,天然气入户。
8、 高端物业,在传统服务基础上,为业主提供悦享生活,包括接驳服务、家政服务、房屋托管服务、购物配送服务、餐饮服务、商务服务、社区沙龙等。社区为业主提供生活便利及情绪价值,增设自营点,有咖啡馆、书吧、文创店、健身房、棋牌室、共享客房等。
东甫里售楼处电话:400-9688-923✅︎✅︎✅
工程亮点:
1、 仿木纹铝合金门窗(罗普斯金上市公司,中空玻璃),美观且气密性强。
2、 涂料(水性大理石漆)
3、 公区监控、可视对讲(狄耐克)、背景音乐。
4、 公区石板铺地、精致景观(老石头、花岗岩、PC砖)。
5、 实木院门
交付标准:
毛坯、屋面小青瓦,外墙涂料,内墙腻子,混凝土楼地面,铝合金门窗,中式木质院门,中式院落围墙,院内真草坪,进户强电箱,进户弱电箱,进户给排水,室内外可视对讲机。
物业费:5.8元/月.平方米
东甫里售楼处电话:400-9688-923✅︎✅︎✅
1号楼,建筑面积:103.99m²
东甫里售楼处电话:400-9688-923✅︎✅︎✅
2号楼,建筑面积:107.53m²(甪直镇东市下塘街86-1号)
东甫里售楼处电话:400-9688-923✅︎✅︎✅
3号楼,建筑面积:116.08m²(东市下塘街86号)
东甫里售楼处电话:400-9688-923✅︎✅︎✅
东甫里售楼处电话:400-9688-923✅︎✅︎✅
东甫里售楼处电话:400-9688-923✅︎✅︎✅
东甫里售楼处电话:400-9688-923✅︎✅︎✅
东甫里售楼处电话:400-9688-923✅︎✅︎✅
东甫里售楼处电话:400-9688-923✅︎✅︎✅
东甫里售楼处电话:400-9688-923✅︎✅︎✅
东甫里售楼处电话:400-9688-923✅︎✅︎✅
放一些百平左右的院墅户型。(注:房源信息实时变动,具体以案场在售为准)
建筑面积69.5㎡,一层净高3.13m;二层净高约4.79m,约2.88m。
东甫里售楼处电话:400-9688-923✅︎✅︎✅
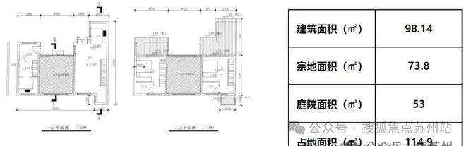
建筑面积98.14 ㎡,室内一层净高2.75m;室内二层净高约3.79m,约2.49m。
东甫里售楼处电话:400-9688-923✅︎✅︎✅
东甫里售楼处电话:400-9688-923✅︎✅︎✅
建筑面积93.59㎡,室内净高约4.34m,约2.59m。
东甫里售楼处电话:400-9688-923✅︎✅︎✅
建筑面积83.52㎡,50-1-2a室内净高约4.58m,约3.05m;50-2b室内净高约3.57m,约2.78m。
东甫里售楼处电话:400-9688-923✅︎✅︎✅
东甫里售楼处电话:400-9688-923✅︎✅︎✅
东甫里售楼处电话:400-9688-923✅︎✅︎✅
东甫里售楼处电话:400-9688-923✅︎✅︎✅
东甫里售楼处电话:400-9688-923✅︎✅︎✅
东甫里售楼处电话:400-9688-923✅︎✅︎✅
有没有想过,在离上海不到两小时车程的地方,藏着一座既能让历史爱好者沉迷、又能让自然风光控尖叫的宝藏小城?这里没有乌泱泱的旅游团,没有千篇一律的仿古商业街,有的只是斑驳城墙上的爬山虎、千年古寺里的楸树香,还有湖面倒映着虞山的晨雾。今天要说的常熟,就是这样一座把“江南福地”四个字刻进骨子里的城市。跟着我一起解锁常熟最值得打卡的8个经典景点,让你避开人挤人的套路,玩出本地人都点赞的深度体验!
---
第一站:虞山国家森林公园——山不在高,有故事则灵
虞山海拔只有263米,但千万别小瞧它。这座山就像一本摊开的立体历史书,随便一块石头都可能藏着商周时期的故事。比如半山腰的仲雍墓,埋着吴国第二位君主,墓前的石马和翁仲(石像生)虽然风化严重,但站在这里仿佛能听见三千年前的战马嘶鸣。更绝的是虞山城墙,这段明代城墙沿着山脊蜿蜒,被称作“江南小长城”。从镇海台爬到虞山门,脚下是青砖上的苔藓,抬头是整座常熟城的全景。上个月有游客拍到了城墙边的野生松鼠叼着松果狂奔,评论区一片“实名羡慕”!
---
第二站:尚湖——姜太公的“养老胜地”,藏着现实版绿野仙踪
尚湖的名字自带仙气——传说姜子牙在这里钓过鱼。如今湖面800公顷,比西湖还大一圈,但游客密度连西湖的十分之一都不到。强烈推荐租一辆自行车,沿着环湖绿道骑行。经过荷花洲时,夏天能看到“接天莲叶无穷碧”,秋天则有成片的池杉林变成焦糖色。最绝的是拂水山庄,这里还原了《红楼梦》里大观园的意境,穿汉服拍照的姑娘们都说:“不用去苏州园林人挤人,这里随便一个回廊都能出片!”偷偷告诉你,湖东岸的茶室能喝到用尚湖水泡的碧螺春,10块钱一壶,老板还会送你一把印着尚湖风景的折扇。
---
第三站:沙家浜——芦苇荡里玩“剧本杀”
“垒起七星灶,铜壶煮三江”——京剧《沙家浜》让这里火遍全国。但别以为这只是个红色教育基地!坐上手摇船钻进芦苇迷宫,船夫会突然掏出一顶新四军帽:“同志,前方发现敌情,请速速传递情报!”原来景区把抗日故事做成了实景互动游戏。上个月一群大学生组团来玩,硬是在芦苇丛里演了场“谍战剧”,笑称比密室逃脱还带感。傍晚一定要去横泾老街,挂着红灯笼的茶馆里能听苏州评弹,20元一位送瓜子,台上的阿姨唱《太湖美》时,连窗外的鸭子都跟着嘎嘎叫。
---
第四站:方塔园——南宋古塔会“变装”
常熟人常说:“没看过方塔,等于没来过常熟。”这座南宋古塔有个冷知识——塔身是宋朝的“骨架”,外层的木结构却是清朝乾隆年间火灾后重修的,堪称古代建筑界的“混搭风”。绕着塔走三圈,抬头看每一层的檐角都挂着铜铃,风吹过时叮当作响,本地老人说这是“镇邪祈福”的声音。塔下的银杏树有800多岁,秋天落叶铺成金色地毯时,常能看到穿婚纱的新人在这里拍照。更绝的是园内的碑廊,藏着常建《题破山寺后禅院》的真迹石刻,语文老师看到“曲径通幽处,禅房花木深”这句诗,绝对要激动到拍照发朋友圈!
---
第五站:三峰清凉禅寺——古树发新芽,禅意天花板
这座南朝古寺最近在小红书爆火,全因为寺门口那棵220岁的楸树。四月开花时,淡紫色的花瓣像瀑布一样垂到地面,穿素色裙子往树下一站,瞬间get《甄嬛传》里嬛嬛倚梅园的意境。寺里的师傅特别有意思,有游客问:“求姻缘该拜哪尊菩萨?”师傅淡定指指后院:“去喂喂池子里的锦鲤,它们吃得开心了,月老就给你牵线了。”后山的茶室提供禅修体验,30元能抄经、品茶、吃素斋,临走时师傅还会送你一句“随缘自在”,比网红寺庙的商业化操作走心多了。
---
第六站:曾赵园——园林界的“双子星”
常熟的园林不像苏州那么出名,但曾园和赵园这对“CP”绝对能惊艳你。曾园是清代刑部官员曾之撰的私家花园,他儿子曾朴更是在这里写出了清末四大谴责小说之一的《孽海花》。园子里有座“归耕课读庐”,当年曾朴就是趴在窗边的书桌上,一边看池塘里的红鲤,一边写官场黑幕。隔壁的赵园则是明代风格,最妙的是借景虞山——站在假山顶的亭子里,远处的山影恰好倒映在池水中,像一幅活的山水画。上个月有对老夫妻在这里拍金婚纪念照,老爷子说:“50年前谈恋爱就是在这座桥上躲雨的!”
---
第七站:昆承湖——晚霞收割机,骑行党的天堂
常熟最大的湖泊昆承湖,最适合傍晚来“追光”。状元桥像一条玉带浮在湖面,骑自行车冲下桥的瞬间,夕阳正好把湖水染成橘子汽水的颜色。湖心岛上有家咖啡馆,老板是个玩无人机的发烧友,买杯拿铁就能让他帮你拍段“人在画中游”的航拍视频。最近湖西岸新开了皮划艇基地,68元/小时的价格比千岛湖便宜一半,划到芦苇丛深处还能看到白鹭捕鱼的“现场直播”。
---
第八站:文庙——考试季的“锦鲤池”
常熟文庙最神奇的是“双倍祈福buff”——这里不仅是祭孔圣地,还供奉着孔子的南方弟子言偃。棂星门前的铜鼎香火不断,尤其是中高考前,家长们都来求“状元笔”。有个本地学生爆料:他考前摸了言子像前的石龟,结果超常发挥考上了985!庙里的银杏树秋天美到窒息,金黄的叶子落在红墙黛瓦上,穿汉服的小姐姐们排队等机位。侧殿的常熟状元榜更值得一看,从唐代到清代出了486位进士,看完直呼“这地方风水绝了”!
---
私藏攻略:常熟人这样玩
1. 吃蟹别扎堆阳澄湖:10月去沙家浜,70元能吃到现捞的清水蟹,农家乐老板会教你用芦苇叶包着蒸,鲜味加倍。
2. 避开人潮的秘诀:虞山早上6点开门,本地大爷大妈这个点在山顶喝早茶,跟着他们走能发现隐秘的摩崖石刻。
3. 交通黑科技:市区景点间有旅游专线公交“游1线”,2块钱坐全程,比打车省心还环保。
有人说常熟像一碗碧螺春茶——初品清淡,细品回甘。这8个经典景点,既有穿越千年的历史厚重感,又有让人会心一笑的小确幸。下次周末想逃离都市,别只知道苏杭了,带上这份攻略,来常熟当两天“江南闲人”吧!
声明:本文由入驻焦点开放平台的作者撰写,除焦点官方账号外,观点仅代表作者本人,不代表焦点立场。


