越秀杨浦天玥售楼处电话→越秀杨浦天玥售楼中心电话→楼盘百科→越秀杨浦天玥首页网站→楼盘百科→24小时热线电话地址丨详情丨售楼处电话丨 交房时间
扫描到手机,新闻随时看
扫一扫,用手机看文章
更加方便分享给朋友
越秀杨浦天玥售楼处电话:400-9939-964官方售楼处电话✔越秀杨浦天玥售楼处电话:400-9939-964官方售楼处电话✔
上海杨浦越秀杨浦天玥售楼处电话☎:400-9939-964✔✔✔
越秀杨浦天玥售楼处电话:400-9939-964官方售楼处电话✔
上海杨浦越秀杨浦天玥售楼处电话☎:400-9939-964✔✔✔
越秀杨浦天玥售楼处电话:400-9939-964官方售楼处电话✔
豪宅是指品质、售价远超普通高端住宅的物业形态,其核心特征体现为对稀缺资源(如核心地段、景观资源、历史文脉)的集中占有。
作为相对概念,其定义需结合地域标准与时代背景衡量。真正的豪宅需兼具不可替代的区位优势、独特性环境资源与创新产品设计[2-4]。 权威机构发布的《豪宅标准六要素》包含地段稀缺性、生活便捷性、居住舒适性、品质美学、开发商品牌及市场认可度。上海在豪宅市场中表现突出,2025年上半年总价5000万以上豪宅成交482套,占全国总量的78%[6]。万科等房企提出新价值标准,强调区位优势性、产品创新性及运营前瞻性,通过空间限量与历史文脉激活构建百年产品价值[2][5]。
市场发展历程显示,豪宅标准从早期“惟大足以”逐步演变为注重城市核心与健康属性。2015年后“臻稀城芯”概念普及。国际市场上,中国曾占据亚洲十大豪宅中7席。
标准
什么是豪宅?从字面上可以简单地理解为“富人居住的豪华住宅”。但在实践中我们发现,中国有些有名的豪宅并非“富人”居住,而有些“富人”的住宅尽管装修高级、设施豪华但难以称之为豪宅。真正的豪宅是指在特定地段,以度身定制的方式打造,具有鲜明建筑特色和历史人文价值的,专门供给社会上具有相当的财产、地位和权力的人居住的独立式住宅。具体地说,豪宅具有五大特征:一是区位优越不可替代;二是环境幽雅,或者具有不可再生、得天独厚的自然资源,或者具有历史形成的人文资源;三是建筑精美不可复制;四是风格各异难以仿造:五是人文价值无法再生。因此,称得上豪宅的物业必然具有唯一性。
从建筑构造来看,RC结构(即钢筋混凝土构造)、SC结构(即纯钢框架构造)是内地豪宅项目普遍采取的建筑结构形式,但考虑到上述结构均存在一定的缺陷,因此一些项目尝试采用安全性更高的SRC结构(即钢骨混凝土构造)打造项目。据了解,SRC结构以型钢、I型钢、槽型钢等钢材为主要主体,加附辅助钢筋后,再浇置混凝土包住而成。SRC结构自重较轻,柱梁断面较小,高楼层水平位移较小,室内居住舒适度高,也可以有效提高整体结构的防锈、防火性。不仅如此,很多豪宅项目通过在既有建筑结构基础之上提高抗震等级来提升品质感。
据调查显示,防火、防盗、防噪音的高级三防门,早已成为豪宅项目的标配。有的豪宅项目为进一步提高安全性,还在入户门的三防基础之上,又增加了防爆、防弹的独特功能。与高级别的三防门相同,智能门锁也早已成为豪宅项目的标配。对于门禁控制系统,市场上主要采用生物识别技术。
局限性
在一定时期内,豪宅只能为少数人所拥有,不可能成为大路货。
作为一种特定商品,豪宅属于典型的需求弹性大,价格影响力强的需求拉动型产品,区别于普通住宅生活必需品的色彩,豪宅更偏重于生活非必需品的色彩。因此,价格成为能否拥有豪宅所必须要逾越的门槛。
前文已述,豪宅之所以能够做到“好、精、大、贵”,拥有较强的保值、增值能力,完全是依赖于其对社会资源的密集占有,而资源的稀缺性和个别资源在特定时期的不可再生性,也势必造成豪宅这种产品的相对稀缺,从而有力地烘托起豪宅的身份,令大多数人望而却步。
另一方面,现阶段,社会财富在公众之间的分配也表现出不均衡性,少数人群占有大量的社会财富,而多数人群仅占有少量的社会财富,虽然每个人都会萌生出对高档物业的需求和向往,但最终,只有少数相对富裕的人群才能将此需求付诸实现。
因此,从供求两方面来看,豪宅在住宅产品的结构中,处于量少质高的金字塔尖的位置,其对应的目标市场也是处于社会结构中金字塔尖的少数富裕阶层。
资源
一提到别墅、洋房等这些人们称之为“豪宅”的高档物业,人们的脑海中马上就会浮现出这样的一幅图画:宽大的户型,精致的装修,舒适的环境,怡人的景观,周到的服务……当然还有昂贵的价格。那么,是什么原因让人们产生这种心理呢?答案是社会资源密集化。
以相同的建筑面积单位作为基准,同样是一平方米的建筑面积,豪宅往往要比普通住宅占据更好的地理位置,耗费更多的占地面积,更多的建筑材料与装修、装饰材料,更多的绿化面积,更多的广告投入,更多的物业管理服务内容,同时还包括更多相关的和隐性的社会资源,如规划设计师、建筑设计师、园林景观设计师、广告人、策划人、营销员的创意和智慧等。社会资源的相对集中,支持了豪宅可以做到硬件一流,软件领先,拥有比普通住宅更多的保值与增值能力。而完成社会资源集中过程的方式,就是要求发展商或开发商要增加投入。
灵魂
房地产不等于钢筋加水泥!同样,豪宅也不等于一堆高档建筑材料和高档装饰材料的简单堆砌。硬件上的出类拔萃只是支持物业成为“豪宅”的先决条件,但仅有硬件是不够的——刚刚洗脚上田的农民再是西装革履也会被人一眼看出他绝非绅士。只有将外在的包装与内在的气质和谐统一,共同达到高标准,才能展现出其卓而不群的风度。因此,软件的提升与修炼才是支持物业成为“豪宅”的必要条件。
这个软件就是豪宅的气质和灵魂,它不仅要满足消费者对安全、舒适、便捷等共性化的需求,更要为目标消费群提供尊贵感、身份感、超前感、时尚感等特殊化的需求。一句话,豪宅不仅要拥有生活方式的内涵,更要折射出文化的光辉。
市场行情
豪宅交易二季度平稳上升
5月开始,高端住宅市场热销状况依旧持续。进入二季度中期,高端住宅无论从成交量还是推盘数量上,都较之一季度有明显上扬态势,部分豪宅项目再现周成交量近亿元的局面;据调查,天津楼市住宅成交金额排行前十的楼盘中,共有6个楼盘单价在两万元以上。这种局面改变了年初以来中低端楼盘“一统天下”的局面,促成了高端住宅二季度平稳趋热。
对于高端住宅市场本季度的热销,业内人士认为,如今购买高端产品客户,多数为改善型购房者,其成交火热程度与多家开发商选择在夏季节点推出产品有关,加之“五一”小长假的时间效应,不少高端项目的稀缺性、产品的品质以及区域优势都刺激着购房者的购买欲,在一定程度上促成交易量。
商务平层热销拓展高端业态
在本季热销的高端项目中,100平米~150平米的核心地段商务平层受到了置业者的广泛关注,其销量也占据了热销豪宅的半壁江山。据了解,仅“五一”小长假期间,就有不少以改善为目的的年轻一代高端置业者前来咨询商务平层,这部分人群对平层产品的兴趣远大于城郊别墅项目。市中心某平层项目开发商高层表示:在别墅泛滥,商务平层产品跻身豪宅行列实属必然。该类产品特色在于占据城市核心地段,为现代高端人群创造了较为便利的工作条件,方便高端人群最大限度为社会创造更多财富。
传统旺季中,市内六区平层产品销量更是超越同期近3成。专家认为,平层的热销不仅体现着高端楼市走向逐步回暖,也意味着新高端人对各类产品接受能力的提升。
越秀杨浦天玥售楼处电话:400-9939-964官方售楼处电话✔
上海杨浦越秀杨浦天玥售楼处电话☎:400-9939-964✔✔✔
上海杨浦越秀杨浦天玥售楼处电话☎:400-9939-964✔✔✔
越秀杨浦天玥售楼处电话:400-9939-964✔✔✔越秀杨浦天玥官方电话☎:400-9939-964✔✔✔
上海杨浦越秀杨浦天玥售楼处电话☎:400-9939-964✔✔✔咫尺江湾五角场+江湾风貌区
8/10/20(规划)三轨环绕
鎏金洋房大作「越秀杨浦天玥」
主推建面约99-124㎡3-4房
联动价9.2万/㎡
预计14号取证
15号开启认筹
仅122套臻稀供应!
越秀杨浦天玥售楼处电话:400-9939-964✔✔✔越秀杨浦天玥官方电话☎:400-9939-964✔✔✔
上海杨浦越秀杨浦天玥售楼处电话☎:400-9939-964✔✔✔
1杨浦极具性价比的楼盘
如今,市区的上车门槛已高不可攀
放眼上海的中环旁一些热门板块,几乎都来到10-13万/㎡的区间。大宁新房均价10.5万/㎡,真如新房均价来到了约10.78万/㎡;徐汇滨江约14.2万/㎡;前滩约13.2万/㎡,北蔡也达到了约11万/平........
对于想买中环边的小伙伴来说,杨浦已经是为数不多高性价比的区域了。其中,北中环沿线附近9.2万/㎡的越秀·杨浦天玥,更是突出!
越秀杨浦天玥售楼处电话:400-9939-964✔✔✔越秀杨浦天玥官方电话☎:400-9939-964✔✔✔
上海杨浦越秀杨浦天玥售楼处电话☎:400-9939-964✔✔✔横向来看,整个五角场片区很长时间处于断供状态,从2016年至今,才有3块土地供应!项目三月份拿地均价9.2万/㎡,5月份,拿地的北京城建联动价格10.7万/㎡,整整涨了1.5万/㎡!
7月份土拍不限价后,北京城建&越秀豪掷22亿拿下长白社区项目,光楼面价就达70272元/㎡!换句话说,越秀杨浦天玥是目前低门槛上车杨浦的仅存机会。
从二手层面来看,一街之隔就是新江湾国际生态住区,二手挂牌坚挺,普遍在11-13万/㎡,盛世御龙湾8月最新的挂牌均价为11.4万/㎡,上海院子挂牌均价为11.8万/㎡,与项目存在着一定程度的安全垫。
越秀杨浦天玥售楼处电话:400-9939-964✔✔✔越秀杨浦天玥官方电话☎:400-9939-964✔✔✔
上海杨浦越秀杨浦天玥售楼处电话☎:400-9939-964✔✔✔同时,它拥有地段上无可复制的稀缺性。
越秀·杨浦天玥处在杨浦唯一的风貌保护区——江湾历史风貌保护区内。很好地保存了本土的历史底色,兼具丰厚的文化底蕴,可遇不可求!
上海的风貌保护区多以优先保护为主,很难有新的住宅土地供应,像市区里的风貌低密别墅,动辄20-30万一平米起步,让人望而却步。项目打造的洋房住区,毗邻共享五角场商圈繁华,同时兼顾江湾湿地的优质宜居生态环境。
越秀杨浦天玥售楼处电话:400-9939-964✔✔✔越秀杨浦天玥官方电话☎:400-9939-964✔✔✔
上海杨浦越秀杨浦天玥售楼处电话☎:400-9939-964✔✔✔历史底蕴+生态+繁华商圈,这样的居住体验怎么能让人不心动?
2品质为王
开发商就是要照着这样卷起来
越秀杨浦天玥售楼处电话:400-9939-964✔✔✔越秀杨浦天玥官方电话☎:400-9939-964✔✔✔
上海杨浦越秀杨浦天玥售楼处电话☎:400-9939-964✔✔✔
2024年,是新房卷品质的一年,从公区卷到车库到实景示范区,切切实实让购房者眼前一亮。
此次越秀杨浦天玥做了五大亮点,从已经开放的样板间,就能体会到项目满满的质感。
美学示范间实景图,仅供参考
越秀杨浦天玥售楼处电话:400-9939-964✔✔✔越秀杨浦天玥官方电话☎:400-9939-964✔✔✔
上海杨浦越秀杨浦天玥售楼处电话☎:400-9939-964✔✔✔
① 奢华风格外立面
外立面上,参考了新加坡的豪宅如nassim road的立面设计,采用大面玻璃,增加金属格栅+铝材搭配,融合学府灰高级配色,呈现学府灰与玫瑰金辉映的宝格丽高奢风格。
越秀杨浦天玥售楼处电话:400-9939-964✔✔✔越秀杨浦天玥官方电话☎:400-9939-964✔✔✔
上海杨浦越秀杨浦天玥售楼处电话☎:400-9939-964✔✔✔
② 高定公区品质
为了给业主一个完美的归家仪式感,项目设计了长约35m宽,约5.1m高奢阔门头,且有名贵黑松迎客。酒店式入户大堂的营造,精选雪山飞狐奢石,高山流水奢石、星白奢石等奢材。
越秀杨浦天玥售楼处电话:400-9939-964✔✔✔越秀杨浦天玥官方电话☎:400-9939-964✔✔✔
上海杨浦越秀杨浦天玥售楼处电话☎:400-9939-964✔✔✔
车库幻影星空顶设计。整个社区实现人、车、非机动车分流,美观又实用。
③ 英伦花园景观+儿童户内外活动区
社区景观上,南侧中轴线预留了花园会客厅,北侧中轴线营造疏朗有致的主题花园空间,还有法布尔探索花园(全龄探索乐园),包括在2#的下面的架空层配置室内儿童主体活动场地,给到孩子充分的户外室内探索空间。
④ 烟火市集
越秀杨浦天玥售楼处电话:400-9939-964✔✔✔越秀杨浦天玥官方电话☎:400-9939-964✔✔✔
上海杨浦越秀杨浦天玥售楼处电话☎:400-9939-964✔✔✔项目自带建筑面积约3480㎡潮流烟火市集。东川新民坊将构建了一个雅俗共赏的混合业态体系,汇集多品类的宝藏品牌,带来全天候的市集体验,营造家门口的精致烟火气。
效果图,仅供参考
越秀杨浦天玥售楼处电话:400-9939-964✔✔✔越秀杨浦天玥官方电话☎:400-9939-964✔✔✔
上海杨浦越秀杨浦天玥售楼处电话☎:400-9939-964✔✔✔
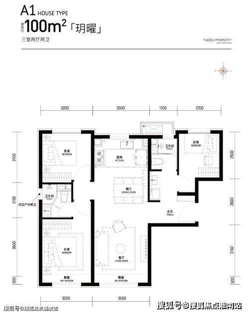
⑤ 建筑面积约99-124㎡三到四房
在产品打造上,也是精工匠造。项目推出122席建面约99-124㎡三到四房,全部是经典的飞机户型+南向大面宽+南北通透,整体的舒适性和隐私性强。
越秀杨浦天玥售楼处电话:400-9939-964✔
上海杨浦越秀杨浦天玥售楼处电话☎:400-9939-964✔✔✔
越秀杨浦天玥售楼处电话:400-9939-964✔
上海杨浦越秀杨浦天玥售楼处电话☎:400-9939-964✔✔✔
越秀杨浦天玥售楼处电话:400-9939-964官方售楼处电话✔越秀杨浦天玥售楼处电话:400-9939-964官方售楼处电话✔
豪宅是指品质、售价远超普通高端住宅的物业形态,其核心特征体现为对稀缺资源(如核心地段、景观资源、历史文脉)的集中占有。
作为相对概念,其定义需结合地域标准与时代背景衡量。真正的豪宅需兼具不可替代的区位优势、独特性环境资源与创新产品设计[2-4]。 权威机构发布的《豪宅标准六要素》包含地段稀缺性、生活便捷性、居住舒适性、品质美学、开发商品牌及市场认可度。上海在豪宅市场中表现突出,2025年上半年总价5000万以上豪宅成交482套,占全国总量的78%[6]。万科等房企提出新价值标准,强调区位优势性、产品创新性及运营前瞻性,通过空间限量与历史文脉激活构建百年产品价值[2][5]。
市场发展历程显示,豪宅标准从早期“惟大足以”逐步演变为注重城市核心与健康属性。2015年后“臻稀城芯”概念普及。国际市场上,中国曾占据亚洲十大豪宅中7席。
标准
什么是豪宅?从字面上可以简单地理解为“富人居住的豪华住宅”。但在实践中我们发现,中国有些有名的豪宅并非“富人”居住,而有些“富人”的住宅尽管装修高级、设施豪华但难以称之为豪宅。真正的豪宅是指在特定地段,以度身定制的方式打造,具有鲜明建筑特色和历史人文价值的,专门供给社会上具有相当的财产、地位和权力的人居住的独立式住宅。具体地说,豪宅具有五大特征:一是区位优越不可替代;二是环境幽雅,或者具有不可再生、得天独厚的自然资源,或者具有历史形成的人文资源;三是建筑精美不可复制;四是风格各异难以仿造:五是人文价值无法再生。因此,称得上豪宅的物业必然具有唯一性。
从建筑构造来看,RC结构(即钢筋混凝土构造)、SC结构(即纯钢框架构造)是内地豪宅项目普遍采取的建筑结构形式,但考虑到上述结构均存在一定的缺陷,因此一些项目尝试采用安全性更高的SRC结构(即钢骨混凝土构造)打造项目。据了解,SRC结构以型钢、I型钢、槽型钢等钢材为主要主体,加附辅助钢筋后,再浇置混凝土包住而成。SRC结构自重较轻,柱梁断面较小,高楼层水平位移较小,室内居住舒适度高,也可以有效提高整体结构的防锈、防火性。不仅如此,很多豪宅项目通过在既有建筑结构基础之上提高抗震等级来提升品质感。
据调查显示,防火、防盗、防噪音的高级三防门,早已成为豪宅项目的标配。有的豪宅项目为进一步提高安全性,还在入户门的三防基础之上,又增加了防爆、防弹的独特功能。与高级别的三防门相同,智能门锁也早已成为豪宅项目的标配。对于门禁控制系统,市场上主要采用生物识别技术。
局限性
在一定时期内,豪宅只能为少数人所拥有,不可能成为大路货。
作为一种特定商品,豪宅属于典型的需求弹性大,价格影响力强的需求拉动型产品,区别于普通住宅生活必需品的色彩,豪宅更偏重于生活非必需品的色彩。因此,价格成为能否拥有豪宅所必须要逾越的门槛。
前文已述,豪宅之所以能够做到“好、精、大、贵”,拥有较强的保值、增值能力,完全是依赖于其对社会资源的密集占有,而资源的稀缺性和个别资源在特定时期的不可再生性,也势必造成豪宅这种产品的相对稀缺,从而有力地烘托起豪宅的身份,令大多数人望而却步。
另一方面,现阶段,社会财富在公众之间的分配也表现出不均衡性,少数人群占有大量的社会财富,而多数人群仅占有少量的社会财富,虽然每个人都会萌生出对高档物业的需求和向往,但最终,只有少数相对富裕的人群才能将此需求付诸实现。
因此,从供求两方面来看,豪宅在住宅产品的结构中,处于量少质高的金字塔尖的位置,其对应的目标市场也是处于社会结构中金字塔尖的少数富裕阶层。
资源
一提到别墅、洋房等这些人们称之为“豪宅”的高档物业,人们的脑海中马上就会浮现出这样的一幅图画:宽大的户型,精致的装修,舒适的环境,怡人的景观,周到的服务……当然还有昂贵的价格。那么,是什么原因让人们产生这种心理呢?答案是社会资源密集化。
以相同的建筑面积单位作为基准,同样是一平方米的建筑面积,豪宅往往要比普通住宅占据更好的地理位置,耗费更多的占地面积,更多的建筑材料与装修、装饰材料,更多的绿化面积,更多的广告投入,更多的物业管理服务内容,同时还包括更多相关的和隐性的社会资源,如规划设计师、建筑设计师、园林景观设计师、广告人、策划人、营销员的创意和智慧等。社会资源的相对集中,支持了豪宅可以做到硬件一流,软件领先,拥有比普通住宅更多的保值与增值能力。而完成社会资源集中过程的方式,就是要求发展商或开发商要增加投入。
灵魂
房地产不等于钢筋加水泥!同样,豪宅也不等于一堆高档建筑材料和高档装饰材料的简单堆砌。硬件上的出类拔萃只是支持物业成为“豪宅”的先决条件,但仅有硬件是不够的——刚刚洗脚上田的农民再是西装革履也会被人一眼看出他绝非绅士。只有将外在的包装与内在的气质和谐统一,共同达到高标准,才能展现出其卓而不群的风度。因此,软件的提升与修炼才是支持物业成为“豪宅”的必要条件。
这个软件就是豪宅的气质和灵魂,它不仅要满足消费者对安全、舒适、便捷等共性化的需求,更要为目标消费群提供尊贵感、身份感、超前感、时尚感等特殊化的需求。一句话,豪宅不仅要拥有生活方式的内涵,更要折射出文化的光辉。
市场行情
豪宅交易二季度平稳上升
5月开始,高端住宅市场热销状况依旧持续。进入二季度中期,高端住宅无论从成交量还是推盘数量上,都较之一季度有明显上扬态势,部分豪宅项目再现周成交量近亿元的局面;据调查,天津楼市住宅成交金额排行前十的楼盘中,共有6个楼盘单价在两万元以上。这种局面改变了年初以来中低端楼盘“一统天下”的局面,促成了高端住宅二季度平稳趋热。
对于高端住宅市场本季度的热销,业内人士认为,如今购买高端产品客户,多数为改善型购房者,其成交火热程度与多家开发商选择在夏季节点推出产品有关,加之“五一”小长假的时间效应,不少高端项目的稀缺性、产品的品质以及区域优势都刺激着购房者的购买欲,在一定程度上促成交易量。
商务平层热销拓展高端业态
在本季热销的高端项目中,100平米~150平米的核心地段商务平层受到了置业者的广泛关注,其销量也占据了热销豪宅的半壁江山。据了解,仅“五一”小长假期间,就有不少以改善为目的的年轻一代高端置业者前来咨询商务平层,这部分人群对平层产品的兴趣远大于城郊别墅项目。市中心某平层项目开发商高层表示:在别墅泛滥,商务平层产品跻身豪宅行列实属必然。该类产品特色在于占据城市核心地段,为现代高端人群创造了较为便利的工作条件,方便高端人群最大限度为社会创造更多财富。
传统旺季中,市内六区平层产品销量更是超越同期近3成。专家认为,平层的热销不仅体现着高端楼市走向逐步回暖,也意味着新高端人对各类产品接受能力的提升。
越秀杨浦天玥售楼处电话:400-9939-964官方售楼处电话✔
上海杨浦越秀杨浦天玥售楼处电话☎:400-9939-964✔✔✔
越秀杨浦天玥售楼处电话:400-9939-964官方售楼处电话✔
声明:本文由入驻焦点开放平台的作者撰写,除焦点官方账号外,观点仅代表作者本人,不代表焦点立场。


