上海前滩东方湾(浦东)前滩东方湾首页网站-前滩东方湾户型-位置-价格-容积率-小区环境

搜狐焦点黄冈站 2025-10-09 14:58:31
用手机看
扫描到手机,新闻随时看

扫一扫,用手机看文章
更加方便分享给朋友

永泰三里城二期营销中心电话:400-9678-224欢迎来电咨询售楼部!上海浦东前滩东方湾永泰三里城二期售楼部开放,推出103-175㎡三至四房,容积率2.0,交通便利,配套齐全,装修已完工,项目主打自持租赁和保障房。

上海浦东前滩东方湾

永泰三里城二期售楼部电话:400-9678-224欢迎咨询24小时热线电话,永泰三里城二期楼盘详情-永泰三里城二期售楼部位置-永泰三里城二期一房一价-永泰三里城二期户型图-永泰三里城二期优缺点分析-容积率-环境-配套-学区-第四代住宅-负公摊户型-代密洋房-得房率-全能会所-独立电梯前室-公建化立面-在线选房-遗嘱咨询-项目营销中心,欢迎来电咨询!

永泰三里城二期营销中心电话:400-9678-224欢迎来电咨询售楼部!永泰三里城二期售楼部详情-永泰三里城二期售楼处电话-永泰三里城二期首页网站-永泰三里城二期户型-价格-位置-电话-交通地铁-上海新房-上海楼市新政-遗嘱咨询-上海止跌回稳-自住型商品房-住房货款-血拼两限房-直接认购可预约销售人员,专业一对一热情服务,让您用专业眼光去买房。

前滩东方湾,永泰三里城二期浦东新区三林社区Z000701单元15-15A地块(“城中村”改造项目——三林镇金光村地块)。

前滩·东方湾官宣户型图独家首发!

最新爆料!永泰三里城二期定名:前滩·东方湾,

将推建面约103-175㎡3-4房!

项目售楼处已经开放,入市在即!

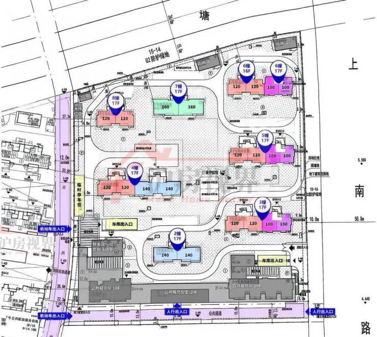
该项目容积率2.0,拟建7幢17层高层商品住宅、1幢19层自持租赁房、1幢10层公共租赁(保障房),以及3层配套公建用房等

此外,项目左侧就是在售中的永泰三里城,在售少量160-240平的叠加。

该地块坐落于浦东三林板块,其主要优势在于交通条件优越,距离地铁11号线三林站约300米,一站前滩太古里。

这个项目占地差不多27116㎡,房子不会建得很密,容积率是2.0,最高只能盖到60米高,全部为17F的高层住宅,算下来计容面积大概54232㎡。

按照要求,要拿出15%的房子作为自持租赁住房 ,而且中小套户型要占70%以上,所有房子交房的时候都是装修好的,不用自己再操心装修的事。

听说二期全是17层的高楼,户型面积有大有小,不管你是手头不宽裕的刚需购房者,还是想换个大房子改善居住条件,都能找到合适的。

不过可卖的房子不多,还不到400套。和一期相比,二期各方面都有提升,户型设计得更优!

项目设计方案公布,预计 8月份入市。

重磅!浦东三林品质新盘

『永泰三里城二期』设计方案公示

项目规划建面约100-160㎡3-4房

共计372套房源

此前一期均价82000元/㎡

二期价格待定

『永泰三里城二期』等待入市!

永泰三里城二期地块规划设计方案公示

4月28日,浦东新区规划和自然资源局公示了三林社区Z000701单元15-15A地块(永泰三里城二期)的规划设计方案。

(图片来源:网络)

二期地块位于一期东侧,即15-15A地块,预计8-9月份推出,仅372套可售住宅,价格待定......

地块位于浦东三林板块核心。总用地面积约2.71万㎡,总建筑面积约9.32万㎡,容积率2.0,限高60米,绿地率35%

方案显示,拟建7幢17F高层住宅、1幢19F自持租赁房、1幢10F保障房及5400㎡社区配套用房,中小套型住宅(≤120㎡)占比70%。

住宅布局:二期全部规划为17F的高层住宅,共计7幢,楼间距经过精心设计,充分考虑了居民的隐私与居住舒适度,确保各楼层住户都能享受到充足的阳光与开阔的视野。

配套建筑:除了住宅建筑外,还规划有1幢19F自持租赁房、1幢10F保障房及 5400㎡社区配套用房。社区配套用房将进一步丰富社区的服务功能,涵盖社区活动中心、老年活动室、儿童游乐区等多种功能空间,满足不同年龄段居民的日常活动需求。

项目基本信息

◆位置优势:11号线三林站,步行约350米左右,一站前滩太古里,交通便捷

◆产品设计:两梯两户&一梯一户,无连廊,私密性佳

◆户型分布:建面约100㎡-120㎡-140㎡-160㎡3-4房

◆亮点配置:局部底层一楼附带地下室,提升居住品质

◆建筑层高:3.1米&3.15米

该地块为三林镇金光村“城中村”改造的重点项目,紧邻地铁11号线三林站,规划一条12米宽公共步行通道,连接社区与地铁站;同时周边有中房金谊广场、三林中学、东方医院等生活配套。

(※具体信息以开发商公示为准)

前滩东方湾最新小区平面如下:

二期户型图首发!

重磅消息,一站直达前滩、中外环轨交红盘永泰三里城1期五批次已过会,2024.6.7入市啦!6.21已开盘 目前少量房源直接认购中.

项目二期主推320套房源,建面约99-151㎡高层,建面约140-177-201-241㎡洋房/叠加,过会均价约8.2万/㎡。

据悉,项目即开放全新新样板间,更多精装标准焕新升级,敬请期待!

效果图,仅供参考

二期一房一价表:

最新官宣户型图如下:

1站直达前滩+11号线旁350米,

前滩+新杨思世纪红利一手掌握!

进入2024年,浦东新区仅有少量新盘过会,且大多迟迟没有开启认购。

总价600-800万之间,当下热门板块无外乎唐镇、高行等板块,中外环仅能选择更为偏远的御桥、外高桥等区域。

永泰三里城的过会,为浦东改善客户提供了另一种可能!

三林腹地,咫尺前滩+新杨思!

永泰三里城位于三林板块腹地,区域内三林滨江、筠溪小镇、新杨思都属于浦东金色中环带上的重要组成部分。

项目3公里以内就涵盖了前滩、三林滨江、新杨思等浦东重量级板块,近享世纪规划红利。

区位示意图

前滩中央商务区的居住需求势必会外溢,三林滨江自身拥有低密、宜居的属性,中央商务区+低密居住区的黄金组合,将三林滨江的价值高度推向顶峰。

三林滨江的热度有目共睹,住宅价格在10万/㎡+,别墅价格高达13.38万/㎡,且板块价值已深入人心。

此刻,同属三林板块、1站直达前滩的永泰三里城性价比就凸显出来了!

永泰三里城高层前期均价仅约7.8万/㎡,洋房&叠加约8.6万/㎡,无疑是整个浦东,乃至上海中外环的价格洼地!

区位示意图,数据来源于网上房地产

11号线直线约350米,一站直达前滩!

事实上,三林滨江在空间上与前滩更为贴近,但永泰三里城在时间距离上更占优势。

项目与11号线三林站直线距离仅约350米,步行可达,进站后1站即达前滩,2站即达徐汇滨江。

区位示意图

不仅如此,项目周边拥有中环、南北高架、外环、杨高南路等主干道,自驾前往浦西市区、陆家嘴、张江等都非常便利。

如此方便的交通,是当下大多数700万级新房所不能达到的。

周边城市资源已然相当醇熟!

与规划中的三林滨江截然不同,永泰三里城所在的三林社区,是三林现有居住氛围更为成熟的片区,周边城市资源已然非常醇熟。

更难能可贵的是,项目是超30万方河滨大城,周边皆是规划住宅用地,等整体建成后,将大幅度提升周边城市界面。

项目周边有比较成熟的学校和商业配套,比如中房金谊广场、新达汇·三林、上海三林中学、上海市育人中学等。

区位示意图

想要更高端的配套,还1站地铁可以前往前滩核心。

这里有前滩太古里、前滩31、浦发银行东方体育中心、前滩休闲公园、前滩体育公园、前滩友城公园等。

前滩实景图,图片来源于网络

所以,近享前滩+新杨思规划红利,价格更为亲民的永泰三里城,是浦东刚改、改善客户的不二之选!

永泰三里城是超30万方河滨大城,将打造成三林的新地标。

项目容积率仅2.0,是上海中外环相当臻稀的双面滨河、低密社区,规划有16-19层高层,6层电梯洋房。

住进永泰三里城社区中,能以更低的生活成本,享受到更高的居住舒适度。

首先社区天赋方面,项目双面环水,北侧、东侧皆是天然河道,整体的居住环境静谧。

光这个地块天赋,在市场上就鲜有对手。

鸟瞰图,仅供参考

其次,项目南侧临近永泰路的地方,打造了2栋社区配套建筑,将用作社区食堂、恒温泳池、健身房等,服务于社区的同时有效阻隔道路噪音。

效果图,仅供参考

再次,项目首层大堂与电梯轿厢品质感拉满。

首层入户大堂,石材搭配金属装饰条的地面、墙面,空间宽敞气派,质感十足。

效果图,仅供参考

据了解,项目联袂仁恒物业,为业主们带来高品质物业服务。

仁恒的物业服务水准业内外的认可度都非常高,荣膺中国金钥匙6S管理创新奖、中国物业管理综合实力百强等诸多殊荣。

效果图,仅供参考

所以,整个社区从地块天赋、颜值,到自带恒温泳池,再到低密宜居的居住条件,都算的上尤为出众。

高层/洋房/叠加,产品线丰富!

永泰三里城二期主推320套房源,建面约99-151㎡高层,建面约140-241㎡洋房/叠加。

①项目改善型产品丰富,选择面大。

整个社区并没有小户型,整体的圈层高度统一,为业主营造了非常优秀的改善居住环境。

且项目高层层高约3米,洋房层高约3.1米

更高的层高意味着更宽阔的居住空间,也意味着投入更多的建筑成本,这背后是开发商不惜代价为业主一步到位的考量。

事实上,项目建筑层高比市面常规户型高足足约10-20公分,即使装完中央空调和地暖也不显压抑。

②非封闭阳台设计,一定程度上降低了客户的购房成本。

现在很多新盘都采取封阳台策略,整个阳台的面积都是购房者花真金白银买的。

一般来讲都是建筑面积约8㎡,如果不封阳台,那面积只算一半,相当于给买家足足省了约4×8.2≈32.8万元。

③绿建三星标准+诚意装标!

项目国家绿建三星标准+超低能耗建筑,是国内绿色建筑高标准,健康主导之上,起到降噪、少尘等的防护效果,细节考究品质有保障!

项目装修标准也是诚意满满,中央空调、地暖、新风系统“三大件”配齐,厨房、卫浴也有不少细节交付标准。

总的来说,永泰三里城咫尺前滩+新杨思,在区位优势如此明显的情况下,交出了诚意十足的产品,无需迟疑,买就对了!

浦东三林品质新盘

『永泰三里城二期』设计方案公示

项目规划建面约100-160㎡3-4房

共计372套房源

此前一期均价82000元/㎡

二期价格待定

『永泰三里城二期』等待入市!

永泰三里城二期地块规划设计方案公示

上海浦东前滩东方湾

永泰三里城二期售楼部电话:400-9678-224欢迎咨询24小时热线电话,永泰三里城二期楼盘详情-永泰三里城二期售楼部位置-永泰三里城二期一房一价-永泰三里城二期户型图-永泰三里城二期优缺点分析-容积率-环境-配套-学区-第四代住宅-负公摊户型-代密洋房-得房率-全能会所-独立电梯前室-公建化立面-在线选房-遗嘱咨询-项目营销中心,欢迎来电咨询!

永泰三里城二期营销中心电话:400-9678-224欢迎来电咨询售楼部!永泰三里城二期售楼部详情-永泰三里城二期售楼处电话-永泰三里城二期首页网站-永泰三里城二期户型-价格-位置-电话-交通地铁-上海新房-上海楼市新政-遗嘱咨询-上海止跌回稳-自住型商品房-住房货款-血拼两限房-直接认购可预约销售人员,专业一对一热情服务,让您用专业眼光去买房。

:(免责声明:本宣传资料仅为宣传,内附所有资料,包括任何图片、插图、设计图、文字描述或其他资料,仅供参考或识别之用,不构成合同内容,具体内容以合同内容及政府最终审批为准。项目所涉及数据均为暂定,后期如有改动,请以各项证件及政府批文等为准,本宣传资料部分素材源于网络,最终交付标准以商品房买卖合同及政府等相关部门的批准文件为准。在法律允许的范围内,开发商保留修改本资料的权利,敬请留意。)

声明:本文由入驻焦点开放平台的作者撰写,除焦点官方账号外,观点仅代表作者本人,不代表焦点立场。