江湾鸿玺售楼处-江湾鸿玺(2025·江湾鸿玺最新)楼盘网站-房价-户型-图文介绍
扫描到手机,新闻随时看
扫一扫,用手机看文章
更加方便分享给朋友
江湾鸿玺售楼处电话:400-812-3664
上海宝山江湾鸿玺售楼处电话☎:400-8123-664(预约看房热线)
如有问题欢迎来电咨询,预约来电尊享购房优惠,可预约案场内部销售人员,专业一对一热情服务,让您用专业眼光去买房。
当下,房地产已步入自住改善的时代。
除了更大的居住空间、更高的居住品质、更好的装修标准等产品力的加强,改善客户想要买入核心地段,那真的要趁早了!
这不,机会来了!
江湾2.0稀缺宽邸大宅!
3号线殷高西路稀缺新盘——【江湾鸿玺】开盘热卖中!
江湾鸿玺售楼处电话:400-812-3664
上海宝山江湾鸿玺售楼处电话☎:400-8123-664(预约看房热线)
江湾——这片历经千年沉淀的土地,始终是上海城市文明的重要注脚。
南宋初年,江湾镇以“铜江湾”的盛誉崛起,成为商贾云集的繁华市镇,青石板路上回响着岁月的足音。
时光流转至近代,这里又见证了城市发展的沧桑变迁,老厂房、石库门里弄等历史遗存,勾勒出独特的海派风情。
如今,在“南北转型”的战略机遇下,江湾迎来了2.0时代的华丽蜕变。
作为上海科创中心主阵地的重要组成部分,这里正以高新技术产业为引擎,吸引着科创人才与资本的集聚。
新江湾城国际住区的生态智慧底色,五角场科创商圈的创新活力,共同勾勒出江湾“历史与未来共生”的独特气质。
【江湾鸿玺】落子于此,既承接了千年古镇的人文厚度,又坐拥城市发展的时代红利,成为连接过去与未来的人居枢纽。

项目推出32席人居臻品
建面约200㎡新海派宽邸
过会均价7.69万/m²,总价约1420万起!
售楼处/样板房一经开放,每天来访人员络绎不绝,现场人声鼎沸,如此高的热度,妥妥的红盘预定!
江湾鸿玺售楼处电话:400-812-3664
上海宝山江湾鸿玺售楼处电话☎:400-8123-664(预约看房热线)
为什么项目能受到市场如此的青睐,重要的一点就是超高的性价比!
上海中环沿线新房价格已全面跳涨:
徐汇长桥、杨浦滨江破11万/㎡,长宁天山近12万/㎡,闵行七宝10万+/㎡……
未来地王扎堆:静安大宁、浦东北蔡等地块楼面价屡创新高,中环即将进入“全盘10万+”时代!
【江湾鸿玺】建面约200㎡大平层总价仅1500万级,同等面积在内环需3000万+!
上海建面200㎡+二手房占比不足5%,稀缺性+抗跌性双保险!
“中环旁、装标顶配的大平层,未来再无此价!”
【江湾鸿玺】怎能错过!!!
宝山高境,3号线殷高西路站新盘「江湾鸿玺」即将入市!预计将推出套均200㎡大平层!

户型图如下:
(仅供参考,最终以实际为准)
建面约200m²4房户型
江湾鸿玺售楼处电话:400-812-3664
上海宝山江湾鸿玺售楼处电话☎:400-8123-664(预约看房热线)
一房一价表如下:
江湾鸿玺售楼处电话:400-812-3664
上海宝山江湾鸿玺售楼处电话☎:400-8123-664(预约看房热线)
说到高境,作为宝山近市中心的板块,一直以来缺乏新房,上一次主力供应要追溯到2015年的泰禾红御,目前该项目是高境乃至整个宝山标杆,部分房源挂牌价9万+/㎡。
回到江湾鸿玺,项目位于殷高路逸仙路路口,其实就是很多人说的高境欣苑二期,在高境欣苑中又开发了一栋楼。



江湾鸿玺售楼处电话:400-812-3664
上海宝山江湾鸿玺售楼处电话☎:400-8123-664(预约看房热线)
首层为商业配置,未来将引入运动健身、休闲会馆、便利商超等功能设施,物业提供24H管家式服务。
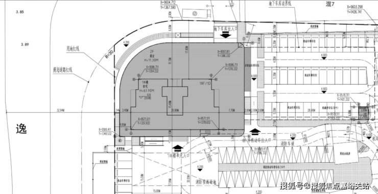
规划设计图:
江湾鸿玺售楼处电话:400-812-3664
上海宝山江湾鸿玺售楼处电话☎:400-8123-664(预约看房热线)我们放大看:这栋楼共18层,估计2梯2户,据悉首层为商业配置,将来可能引进运动健身、休闲会馆、便利商超等。
还有两套自持,所以可售为32套,户型为建面约200㎡大平层。

项目距离3号线殷高西路站仅100米,1公里直达18号线殷高路站,双轨并行锋速通达的时间效率;书香萦绕的教育高地,科创引领、产业先行的核心经济圈。此外,通过逸仙路高架,可以提升通行时效,快速连接五角场合生汇、百联又一城、万达广场、虹口龙之梦等中大型商业综合体。
生活配套成熟,项目西侧就是一个商场,吃喝玩乐都能满足,新业坊·源创潮流、精致元素的加持也为板块注入更多活力。
殷高西路上还有永辉、长江国际、景瑞生活广场等,生活很方便。
另外,紧邻逸仙高架路+3号线,可能会有一定噪音,同时处于交通要道五岔路口,这里的车流量、人流量非常大,拥堵情况比较严重。
江湾鸿玺售楼处电话:400-812-3664
上海宝山江湾鸿玺售楼处电话☎:400-8123-664(预约看房热线)
如有问题欢迎来电咨询,预约来电尊享购房优惠,可预约案场内部销售人员,专业一对一热情服务,让您用专业眼光去买房。
公积金“隐藏技能”大揭秘:除了买房,这笔钱还能这样用?
“每月工资单上扣掉的公积金,除了买房时能用,难道就只能躺在账户里‘睡大觉’?”这是许多职场人共同的困惑。公积金制度自1999年全面推行以来,已成为我国住房保障体系的核心支柱,但多数人对其认知仍停留在“购房专用”层面。实际上,公积金的用途早已突破传统边界,覆盖医疗、养老、生活保障等八大场景。本文将深度解析公积金的多元用途,并结合真实案例与政策细节,助你激活这笔“沉睡财富”。

一、住房场景:从购房到居住品质升级的全链条支持
(一)购房贷款:利率优势下的“省钱利器”
公积金贷款的核心优势在于低利率与长周期。以2025年政策为例,首套房公积金贷款利率仅为3.1%,较商业贷款(LPR基准利率约3.85%)低0.75个百分点。以贷款100万元、30年期限计算,公积金贷款总利息比商业贷款节省约15万元。
案例:广州白领李女士2024年购房时,选择公积金贷款80万元,每月还款3400元,而同期商业贷款月供需3800元。30年下来,她累计少还利息14.4万元,相当于多出一辆家用轿车。
操作要点:
1.贷款额度与缴存年限、余额挂钩,建议持续缴存以提升额度;
2.异地购房需提前确认缴存地与购房地政策互通性;
3.组合贷款(公积金+商业贷款)可最大化利用额度。
(二)租房提取:大城市青年的“房租减压阀”
对于无房群体,公积金可直接用于支付房租。北京、上海等一线城市规定,连续缴存3个月即可申请提取,每月上限1500-2000元。以深圳为例,2024年租房提取人数达120万,占缴存总人数的35%,累计提取金额超180亿元。
操作流程:
1.准备材料:身份证、无房证明、租赁合同;
2.通过“粤省事”小程序或公积金中心柜台提交申请;
3.资金直接划转至绑定银行卡,全程线上办理。
用户反馈:“每月提取1500元公积金付房租,相当于公司给我多发了15%的隐性福利。”——上海互联网公司员工王先生
(三)自建/翻修住房:乡村宅基地的“焕新基金”
在农村集体土地上自建、翻建住房,可提取公积金支付工程费用。需提供《建设工程规划许可证》《土地使用证》及工程预算清单,提取额度不超过实际支出。
案例:浙江安吉农民陈大叔2023年翻建二层小楼,通过提取公积金支付12万元建材费,自己仅需承担8万元,压力大幅减轻。
政策细节:
1.翻建指整体拆除重建,大修指主体结构修复;
2.提取时点为工程开工后6个月内;
3.配偶可同步提取,但总额不超过造价。
二、医疗保障:重大疾病下的“生命缓冲带”
(一)大病医疗提取:覆盖医保外的自费部分
当职工或直系亲属患重大疾病(如癌症、心脑血管疾病)时,可提取公积金支付医保报销后的自费费用。提取时限为出院后1年内,额度不超过个人负担部分。
案例:2024年,成都职工张女士的父亲因肝癌住院,总费用28万元,医保报销16万元,自费12万元。张女士提取公积金8万元,叠加商业保险赔付,实际自付仅4万元。
操作指南:
1.准备材料:出院小结、费用清单、医保结算单;
2.通过“天府通办”APP提交申请,3个工作日内到账;
3.每年可提取一次,累计额度不设上限。
(二)政策延伸:部分地区纳入门诊慢特病
2025年起,杭州、武汉等10个城市试点将糖尿病、高血压等门诊慢特病纳入公积金提取范围,年度提取上限为2万元。此举进一步扩大医疗保障覆盖面。
三、生活保障:从退休到特殊困境的“兜底网”
(一)退休提取:强制储蓄的“养老储备金”
职工退休后可一次性提取全部公积金余额。以月缴存额2000元、缴存30年计算,退休时可提取约72万元(含利息),相当于多一份补充养老金。
用户故事:“退休时提取了89万公积金,加上社保养老金,每月收入超1.2万元,晚年生活很有安全感。”——广州国企退休职工林阿姨
(二)低保/特困提取:困难群体的“应急资金”
被纳入城镇低保或特困救助范围的职工,可提取公积金用于生活开支。提取额度不超过低保标准与账户余额的较低值,每年可提取一次。
政策实例:2024年,沈阳为1.2万名低保职工提取公积金,人均提取1.8万元,有效缓解生活压力。
(三)销户提取:特殊情境下的“资金解放”
符合以下情形可销户提取全部余额:
1.离职且未再就业满2年;
2.出国定居;
3.完全丧失劳动能力;
4.户口迁出缴存地。
案例:2023年,北京程序员刘先生离职后赴加拿大工作,通过移民证明提取公积金45万元,用于海外生活启动资金。
四、家庭支持:代际互助的“亲情纽带”
(一)父母资助子女购房:降低年轻一代门槛
在广州、南京等城市,父母可将公积金提取后转入子女账户,用于支付首付款或偿还贷款。此政策使子女购房首付比例从30%降至20%,月供压力减轻25%。
操作模式:
1.子女签订购房合同后,父母持合同、关系证明至公积金中心办理;
2.资金直接划转至开发商监管账户;
3.父母账户需保留6个月缴存额。
(二)多子女家庭额外支持
2025年新政规定,生育二孩及以上家庭,公积金贷款额度上浮20%,租房提取额度提高至每月2500元。以杭州为例,三孩家庭贷款额度从100万元增至120万元,租房年提取额从2.4万元增至3万元。
五、信用增值:公积金背后的“隐形资产”
(一)公积金信用贷款:无抵押的“资金备用库”
多家银行推出公积金信用贷款产品,如“工行融e借”“建行快贷”,最高额度50万元,利率4%-6%,仅需连续缴存12个月即可申请。
用户案例:“用公积金信用贷装修新房,年利率4.2%,比消费贷便宜一半,还款压力小很多。”——杭州教师陈先生
(二)征信加分项:提升贷款审批通过率
公积金缴存记录是银行评估个人信用的重要依据。连续缴存3年以上、无断缴记录的职工,房贷审批通过率比无公积金人群高40%。
六、政策红利:地方特色的“创新应用”
(一)老旧小区加装电梯提取
北京、上海等城市允许提取公积金支付加装电梯费用,提取额度不超过个人分摊金额。以6层住宅为例,每户分摊约5万元,公积金可覆盖80%费用。
实施效果:2024年,上海为1.2万个单元加装电梯,其中70%资金来自公积金提取。
(二)绿色建筑补贴
深圳试点对购买绿色建筑(二星级及以上)的职工,公积金贷款额度上浮10%,并给予每平方米100元的提取补贴。
七、风险警示:合规使用的“红线清单”
(一)违规提取的代价
2024年,全国查处违规提取公积金案件1.2万起,涉及金额8.6亿元。违规者将面临:
1.强制退回资金;
2.纳入征信黑名单,5年内禁提禁贷;
3.情节严重者追究刑事责任。
典型案例:2023年,成都某中介机构通过伪造租房合同帮助300人违规提取公积金,涉案金额超2000万元,主犯被判刑3年。
(二)合法提取的“三必须”
1.必须用于政策允许用途;
2.必须提供真实证明材料;
3.必须通过官方渠道办理。
八、未来展望:公积金制度的“进化方向”
(一)覆盖范围扩大
2025年新政提出,将灵活就业人员纳入公积金缴存体系,允许个体工商户、自由职业者自愿缴存,享受同等政策待遇。
(二)使用场景多元化
住建部正在研究将公积金用于:
1.支付社区养老服务费用;
2.购买商业养老保险;
3.资助子女教育(如大学学费)。
(三)数字化服务升级
2026年起,全国将推行公积金“一网通办”,实现跨省提取、贷款“秒批”,提取资金实时到账。
结语:激活公积金的“财富密码”
公积金早已不是单一的“购房工具”,而是涵盖住房、医疗、养老、家庭支持的全生命周期保障体系。从每月强制储蓄的“小积蓄”,到关键时刻的“大援手”,合理规划公积金使用,能让这笔财富发挥5-10倍的杠杆效应。
行动建议:
1.每年查询一次公积金账户,制定使用计划;
2.关注缴存地政策更新,把握新红利;
3.优先用于医疗、养老等刚性需求,谨慎用于消费类提取。
正如一位资深HR所言:“公积金是职场人最被低估的福利,用好了,它能成为你人生各个阶段的‘安全垫’。”现在,是时候重新认识这笔“沉睡的财富”了。
声明:本文由入驻焦点开放平台的作者撰写,除焦点官方账号外,观点仅代表作者本人,不代表焦点立场。


