中粮北外滩壹号售楼处 首页-中粮北外滩壹号销售中心 - 环境 - 户型 - 价格 - 地址 - 楼盘详情 - 配套 - 电话 - 交房时间 - 配套 - 前台电话 -售楼处欢迎您
扫描到手机,新闻随时看
扫一扫,用手机看文章
更加方便分享给朋友
— 恭迎品鉴 —
最新消息:中粮大悦城上海第五座壹号系「中粮·北外滩壹号」过会,均价约14.38万/㎡,建面约185-228㎡天际大平层,样板房已开放,预约可看!
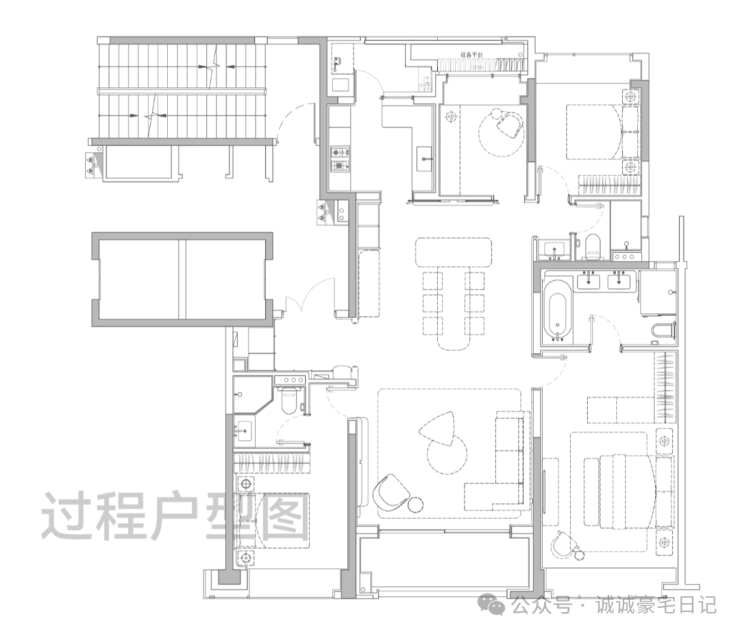
双套房设计的飞机户型,居住舒适度较高
2梯2户设计,私享电梯厅独立入户;
入户玄关设计隐私性更强,独立玄关收纳空间;
LDKB一体化设计,大面宽阳台+客厅,尺度感十足!
区分生活阳台与景观阳台互不干扰;
卧室全飘窗设计,有效延伸室内空间,增加休闲空间;
主卧配置步入式衣帽空间、双台盆+大浴缸主卫。

户型动静分离、居住舒适度拉满!
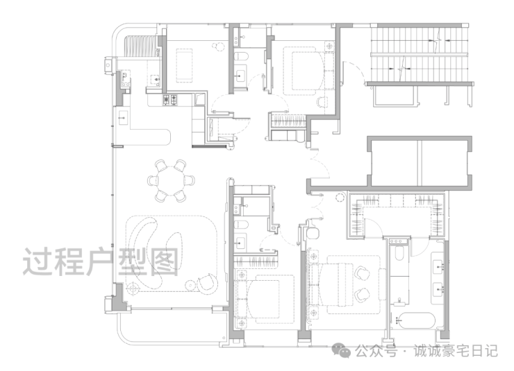
独立电梯厅面积约7.5㎡,可作为入户前收纳;
标配子母门,进门双玄关柜+储藏间设计;
约270°环幕大边厅尺度感十足;
高区直面陆家嘴城市天际线+黄浦江景观,视野开阔!
中厨+西厨岛台、客餐厅+阳台面积近约53㎡,尺度阔绰!
主卧大套房设计带超大主卫和独立衣帽空间,面积约50㎡,妥妥顶豪水平!
次卧套房也有充足收纳空间和独立卫浴空间;
北向双次卧可作为儿童房和书房使用,功能性满分。


地段:不止是北外滩正C位,更是梧桐遍地的风貌区!
很多人认为,滨江黄金三角:外滩、陆家嘴和北外滩不是同一量级。
但其实北外滩超越前两者几乎是时间问题!
三大支撑让你不得不承认:
丨支撑一:恢弘巨制,北外滩的开发体量是陆家嘴核心区的2倍!
从规划的角度来看,北外滩的开发体量超过840万方,是陆家嘴核心区的2倍,伦敦CAZ的7倍。
项目南侧的北外滩核心区,更是发展的重中之重。1/5的土地上,将承载了北外滩超四成的建筑体量。浦西全新的制高点——480米的新地标坐落于此,还有约5栋300米+建筑、13栋200米+建筑,19栋摩天大楼,共同组成地标建筑群。

丨支撑二:北外滩是站在巨人肩膀上的再超越!
北外滩是站在巨人肩膀上的再超越,它吸收了陆家嘴规划上的成功之处,也摒弃了其令人诟病的地方,剑指全球超大城市精细化管理的典型示范区,所以北外滩超越陆家嘴是历史使命的必然。
具体来看,北外滩将比陆家嘴具备更深的历史文化底蕴,有更休闲的滨江路网和生态环境,也有更具城市温度的人文关怀。

丨支撑三:世纪规划北外滩的兑现速度全球领先!
陆家嘴成为上海金融之巅花了30年,而留给北外滩的时间只有10年!所以你会看到北外滩规划兑现的速度简直史无前例!
2023年,北外滩开发建设重大工程项目22个,投资超过800亿元,实现开竣工面积141.9万㎡。
2024年,北外滩将推动开建重大工程项目48个,投资1890亿元,计划实现开竣工面积超140万㎡。
那些前几年还停留在图纸上的城市地标,如今已经屹立江边,成为上海新的天际线!
综上所述,未来的北外滩在规模、业态、发展速度方面都会超越外滩、陆家嘴,说它是当下最炙手可热的滨江板块,没有任何问题。
而作为北外滩红线内屈指可数的住宅项目,中粮北外滩壹号无疑能尽享这份世纪红利!

更难得的是,中粮北外滩壹号所在区域,恰恰是北外滩核心商务区与提篮桥风貌区交汇地。
意味着,住在中粮北外滩壹号,信步可达黄金三角的汹涌澎湃与商务区的现代繁华。转身即入,梧桐树下被时光浸润的静谧街区和里弄肌理。

这并非简单的区位叠加,而是一种稀缺的生活范式——在世界的舞台上奔涌向前,亦能在历史的脉络里安顿身心。
项目带来的,不止是一处居所,更是一种“出则掌控全局,入则栖心桃源”的从容境界。
而且深入了解了提篮桥风貌区的规划,发现几乎全部都是低密产品,中粮北外滩壹号即将入市的是片区唯一一幢高层!采光与视野可想而知!

产品:北外滩“壹号”作品,重新定义了滨江国际豪宅生活!
在上海豪宅圈,中粮的“壹号”系作品已然成为身份与地位的象征,其超强的保值能力也让入手它的业主资产一再进阶。
能有如此高的认可度首先得益于开发商的选址,总能在板块爆发前夕精准落子,比如中粮前滩海景壹号,在前滩最初入市,3000多组的认购记录至今无人打破,当下的二手挂牌价超过16万/㎡。
再比如瑞虹海景壹号,北外滩早期作品,四开四罄热销185亿,当时新房11万多/㎡,现在瑞虹新房16.6万/㎡,中粮的二手房更是稳定在17万元/㎡左右。
可以说,跟着中粮买准没错,选择“壹号”系作品,就是选择了最好的资产压舱石!

除了选址,壹号系成功的另一个秘诀则是超越时代的品质。
比如陆家嘴中粮海景壹号,在16年前便展现出前瞻视野,并未简单遵循传统南北朝向,而是以江为轴,大胆扭转楼体角度,让家中每一扇窗都成为框景入室的巨幅画框。这一“为景让位”的创举,不仅是产品力的大胆革新,更是远见与胆识的体现,至今仍为业主资产提供着坚实的价值支撑。
作为壹号系最新力作的中粮北外滩壹号,品质自然无可挑剔。
丨首先是无比纯粹、统一的圈层!
据悉,中粮北外滩壹号是上海市中心罕见的无商办、无自持住宅、无保障房的纯住宅项目。而且不是单一高层或别墅,是把俯瞰天际的现代大宅与承载文脉的风貌别墅放在一起,实现互相成就的稀缺性。
高层面积起步建面约185㎡天际大平层,整体圈层能级相对统一,打造出一道真正属于高净值人群的身份门槛。

丨其次,是超越时代的建筑审美!
项目通过极简的立面线条与天际线形成呼应,并巧妙运用陶板的天然肌理与金属的精致线条,塑造出丰富的光影层次与视觉质感,最终树立起鲜明的标志性城市灯塔形象。

丨全市独一档的会所高占有率!
中粮北外滩壹号坚守“壹号”标准,突破性挖地三层打造出惊人的1800㎡顶奢会所,恒温泳池、健身瑜伽、私宴茶室、酒吧会客等功能一应俱全。
折算本就稀少的户数,会所空间的高占有率、高使用频率,全市可能是独一份!


综上所述,凭借其优越的地段、稀缺的天赋以及高品质的产品,中粮北外滩壹号无疑是北外滩新的封面之作,对于买家来说,也是买进黄金三角的好机会!

中粮北外滩壹号售楼处电话:400-9939-964中粮北外滩壹号售楼处电话:400-9939-964中粮北外滩壹号售楼处电话:400-9939-964中粮北外滩壹号售楼处电话:400-9939-964#在上海的城市版图中,有一条流淌着金钱与历史的黄金岸线。当外滩诉说着百年的风云变幻,陆家嘴以此起彼伏的摩天大楼展示着现代金融的磅礴野心,北外滩正以惊人的速度补齐这块拼图,构筑起上海中心城区不可复制的“黄金三角”。
在这个寸土寸金的舞台中央,当市场普遍预期滨江核心区新房单价即将全面突破19万/㎡的天花板时,一个现象级的作品——中粮·北外滩壹号,带着14.38万/㎡的均价横空出世。这不仅是一次居住品质的迭代,更是一次关于资产价值的深度重构。
一、 时代浪潮下的北外滩:从“世界会客厅”到“超级引擎”
北外滩的价值,从未被低估,却始终在被重新定义。
作为上海“十四五”规划重点打造的世界级中央活动区(CAZ),北外滩不仅是“一江一河”战略的核心承载段,更是上海建设国际航运中心、国际金融中心的重要一极。数据不会说谎:过去五年,这里已集聚超过4700家航运企业、2100余家金融机构,资产管理规模突破8万亿元,甚至全国碳排放权交易系统也选择落户于此。
这不仅仅是产业的堆砌,更是城市形态的深刻重塑。高达480米的浦西新地标正在紧锣密鼓地建设中,预计2027年封顶。它将与已建成的320米白玉兰广场、北外滩来福士等建筑群,共同勾勒出浦西最壮丽的天际线。
与此同时,规划中的空中连廊、无车区及中央绿轴,正在构建一个全天候的立体慢行系统。这里既有高强度的商务势能,又通过引进优质教育资源等方式,完善了“宜业宜商宜游宜居”的综合功能。可以说,买入北外滩,就是买入了上海未来五年的最大增量。
二、 价值逻辑的重构:14.38万/㎡的“抄底”机遇
在当前的上海一线滨江板块地图中,价格体系已然十分清晰:陆家嘴、黄浦滨江、徐汇滨江的新房单价已纷纷突破19万/㎡。即便是在北外滩区域,今年第六批次出让的地块,溢价率高达46.3%,市场预测其未来售价也将逼近19万/㎡大关。在这样的市场语境下,中粮·北外滩壹号14.38万/㎡的过会均价,显得尤为震撼。
方售楼处电话:400-9939-964
这不仅是价格上的“倒挂”,更是价值上的“降维打击”。低区房源起步单价约11.7万元/㎡,中区房源单价区间普遍在13.5万-15万元/㎡,即便是能同时俯瞰北外滩天际线、陆家嘴建筑群及未来480米地标的20层以上高区房源,顶格价格也仅为16.66万元/㎡。
总价约3000万起,即可入驻北外滩核心区。对于高净值人群而言,这不仅是一次居住升级,更是在北外滩价值爆发前夜,一次不容错过的资产配置良机。
三、 稀缺的低密孤品:1.95容积率下的“天际云邸”
在寸土寸金的市中心,土地的利用往往向高度妥协。然而,中粮·北外滩壹号却在约4.65万平方米的土地上,奢侈地保留了仅1.95的容积率。这是什么概念?在同地段动辄3.0甚至更高的容积率面前,这里是真正的“低密孤品”。
项目整体规划极具层次感:由118套风貌别墅与90套高层住宅组成。本次入市的,正是备受瞩目的高层住宅产品——“天际云邸”。
作为中粮大悦城在上海的第五座“壹号系”作品,亦是“世界S湾壹号作品”,项目在社区营造上极尽考究。约1800平方米的高端会所,涵盖了恒温泳池、静谧阅读区等超过15大功能场景。这里不只是物理空间的堆砌,更旨在为业主提供酒店式的归家体验与俱乐部式的圈层生活空间。
四、 极致户型解析:185-228㎡的纯粹圈层
由于仅有90席高层房源,中粮·北外滩壹号在户型设计上并未做小户型妥协,而是锁定了建面约185㎡和228㎡的纯粹大四房。这种设计策略,直接保证了社区圈层的纯粹性与均质性。
重点推荐:建面约185㎡四房奢阔大宅
● 私密尊崇: 采用准1梯1户设计,私享电梯厅独立入户。推开家门,独立的玄关空间不仅增加了收纳功能,更赋予了归家第一道礼序与私密感。
● 经典格局: 经典的“飞机户型”布局,三开间朝南。这种设计实现了完美的动静分区,无论是家庭欢聚还是独自休憩,互不干扰。南北通透的格局,更是保证了室内极佳的通风与采光。
● 社交场域: 约55㎡的LDKB(客餐厨阳台)一体化设计,构筑了一个方正大气的家庭社交中心。无论是举办由于的小型聚会,还是享受亲子时光,尺度感都绰绰有余。
● 奢享主卧: 主卧套房设计极尽奢华,预留了步入式衣帽间的位置,配备高规格卫浴空间,为主人打造了一个私密的精神角落。
五、 结语:错过再无的历史性窗口
北外滩不仅是上海的北外滩,更是世界的北外滩。随着未来五年区域进入“长个子、壮筋骨”的关键建设期,这里的每一寸土地都将被赋予更高的金融属性与居住价值。
中粮·北外滩壹号,以其不可复制的地段、极为稀缺的低密规划、以及极具竞争力的价格体系,成为了当下上海高端住宅市场中一颗耀眼的明珠。90席天际大平层,不仅是占据城市天际线的观景台,更是通往未来顶级生活方式的入场券。
当别人还在仰望480米的新地标时,你已身处地标身旁,俯瞰一城繁华。
目前,中粮·北外滩壹号售楼处及样板间持续开放中
珍稀房源分秒递减
项目官方联系方式
中粮·北外滩壹号售楼处电话:400-9939-964
预约品鉴热线:400-9939-964
中粮北外滩壹号售楼处电话:400-9939-964中粮北外滩壹号售楼处电话:400-9939-964中粮北外滩壹号售楼处电话:400-9939-964中粮北外滩壹号售楼处电话:400-9939-964##
中粮北外滩壹号售楼处电话:400-9939-964中粮北外滩壹号售楼处电话:400-9939-964中粮北外滩壹号售楼处电话:400-9939-964中粮北外滩壹号售楼处电话:400-9939-964
在上海的城市版图中,有一条流淌着金钱与历史的黄金岸线。当外滩诉说着百年的风云变幻,陆家嘴以此起彼伏的摩天大楼展示着现代金融的磅礴野心,北外滩正以惊人的速度补齐这块拼图,构筑起上海中心城区不可复制的“黄金三角”。
在这个寸土寸金的舞台中央,当市场普遍预期滨江核心区新房单价即将全面突破19万/㎡的天花板时,一个现象级的作品——中粮·北外滩壹号,带着14.38万/㎡的均价横空出世。这不仅是一次居住品质的迭代,更是一次关于资产价值的深度重构。
一、 时代浪潮下的北外滩:从“世界会客厅”到“超级引擎”
北外滩的价值,从未被低估,却始终在被重新定义。
作为上海“十四五”规划重点打造的世界级中央活动区(CAZ),北外滩不仅是“一江一河”战略的核心承载段,更是上海建设国际航运中心、国际金融中心的重要一极。数据不会说谎:过去五年,这里已集聚超过4700家航运企业、2100余家金融机构,资产管理规模突破8万亿元,甚至全国碳排放权交易系统也选择落户于此。
这不仅仅是产业的堆砌,更是城市形态的深刻重塑。高达480米的浦西新地标正在紧锣密鼓地建设中,预计2027年封顶。它将与已建成的320米白玉兰广场、北外滩来福士等建筑群,共同勾勒出浦西最壮丽的天际线。
与此同时,规划中的空中连廊、无车区及中央绿轴,正在构建一个全天候的立体慢行系统。这里既有高强度的商务势能,又通过引进优质教育资源等方式,完善了“宜业宜商宜游宜居”的综合功能。可以说,买入北外滩,就是买入了上海未来五年的最大增量。
二、 价值逻辑的重构:14.38万/㎡的“抄底”机遇
在当前的上海一线滨江板块地图中,价格体系已然十分清晰:陆家嘴、黄浦滨江、徐汇滨江的新房单价已纷纷突破19万/㎡。即便是在北外滩区域,今年第六批次出让的地块,溢价率高达46.3%,市场预测其未来售价也将逼近19万/㎡大关。在这样的市场语境下,中粮·北外滩壹号14.38万/㎡的过会均价,显得尤为震撼。
官方售楼处电话:400-9939-964
这不仅是价格上的“倒挂”,更是价值上的“降维打击”。低区房源起步单价约11.7万元/㎡,中区房源单价区间普遍在13.5万-15万元/㎡,即便是能同时俯瞰北外滩天际线、陆家嘴建筑群及未来480米地标的20层以上高区房源,顶格价格也仅为16.66万元/㎡。
总价约3000万起,即可入驻北外滩核心区。对于高净值人群而言,这不仅是一次居住升级,更是在北外滩价值爆发前夜,一次不容错过的资产配置良机。
三、 稀缺的低密孤品:1.95容积率下的“天际云邸”
在寸土寸金的市中心,土地的利用往往向高度妥协。然而,中粮·北外滩壹号却在约4.65万平方米的土地上,奢侈地保留了仅1.95的容积率。这是什么概念?在同地段动辄3.0甚至更高的容积率面前,这里是真正的“低密孤品”。
项目整体规划极具层次感:由118套风貌别墅与90套高层住宅组成。本次入市的,正是备受瞩目的高层住宅产品——“天际云邸”。
作为中粮大悦城在上海的第五座“壹号系”作品,亦是“世界S湾壹号作品”,项目在社区营造上极尽考究。约1800平方米的高端会所,涵盖了恒温泳池、静谧阅读区等超过15大功能场景。这里不只是物理空间的堆砌,更旨在为业主提供酒店式的归家体验与俱乐部式的圈层生活空间。
四、 极致户型解析:185-228㎡的纯粹圈层
由于仅有90席高层房源,中粮·北外滩壹号在户型设计上并未做小户型妥协,而是锁定了建面约185㎡和228㎡的纯粹大四房。这种设计策略,直接保证了社区圈层的纯粹性与均质性。
重点推荐:建面约185㎡四房奢阔大宅
● 私密尊崇: 采用准1梯1户设计,私享电梯厅独立入户。推开家门,独立的玄关空间不仅增加了收纳功能,更赋予了归家第一道礼序与私密感。
● 经典格局: 经典的“飞机户型”布局,三开间朝南。这种设计实现了完美的动静分区,无论是家庭欢聚还是独自休憩,互不干扰。南北通透的格局,更是保证了室内极佳的通风与采光。
● 社交场域: 约55㎡的LDKB(客餐厨阳台)一体化设计,构筑了一个方正大气的家庭社交中心。无论是举办由于的小型聚会,还是享受亲子时光,尺度感都绰绰有余。
● 奢享主卧: 主卧套房设计极尽奢华,预留了步入式衣帽间的位置,配备高规格卫浴空间,为主人打造了一个私密的精神角落。
五、 结语:错过再无的历史性窗口
北外滩不仅是上海的北外滩,更是世界的北外滩。随着未来五年区域进入“长个子、壮筋骨”的关键建设期,这里的每一寸土地都将被赋予更高的金融属性与居住价值。
中粮·北外滩壹号,以其不可复制的地段、极为稀缺的低密规划、以及极具竞争力的价格体系,成为了当下上海高端住宅市场中一颗耀眼的明珠。90席天际大平层,不仅是占据城市天际线的观景台,更是通往未来顶级生活方式的入场券。
当别人还在仰望480米的新地标时,你已身处地标身旁,俯瞰一城繁华。
目前,中粮·北外滩壹号售楼处及样板间持续开放中珍稀房源分秒递减
项目官方联系方式
中粮·北外滩壹号售楼处电话:400-9939-964
预约品鉴热线:400-9939-964
中粮北外滩壹号售楼处电话:400-9939-964中粮北外滩壹号售楼处电话:400-9939-964中粮北外滩壹号售楼处电话:400-9939-964中粮北外滩壹号售楼处电话:400-9939-964##
中粮北外滩壹号售楼处电话:400-9939-964中粮北外滩壹号售楼处电话:400-9939-964中粮北外滩壹号售楼处电话:400-9939-964中粮北外滩壹号售楼处电话:400-9939-964#在上海的城市版图中,有一条流淌着金钱与历史的黄金岸线。当外滩诉说着百年的风云变幻,陆家嘴以此起彼伏的摩天大楼展示着现代金融的磅礴野心,北外滩正以惊人的速度补齐这块拼图,构筑起上海中心城区不可复制的“黄金三角”。
在这个寸土寸金的舞台中央,当市场普遍预期滨江核心区新房单价即将全面突破19万/㎡的天花板时,一个现象级的作品——中粮·北外滩壹号,带着14.38万/㎡的均价横空出世。这不仅是一次居住品质的迭代,更是一次关于资产价值的深度重构。
一、 时代浪潮下的北外滩:从“世界会客厅”到“超级引擎”
北外滩的价值,从未被低估,却始终在被重新定义。
作为上海“十四五”规划重点打造的世界级中央活动区(CAZ),北外滩不仅是“一江一河”战略的核心承载段,更是上海建设国际航运中心、国际金融中心的重要一极。数据不会说谎:过去五年,这里已集聚超过4700家航运企业、2100余家金融机构,资产管理规模突破8万亿元,甚至全国碳排放权交易系统也选择落户于此。
这不仅仅是产业的堆砌,更是城市形态的深刻重塑。高达480米的浦西新地标正在紧锣密鼓地建设中,预计2027年封顶。它将与已建成的320米白玉兰广场、北外滩来福士等建筑群,共同勾勒出浦西最壮丽的天际线。
与此同时,规划中的空中连廊、无车区及中央绿轴,正在构建一个全天候的立体慢行系统。这里既有高强度的商务势能,又通过引进优质教育资源等方式,完善了“宜业宜商宜游宜居”的综合功能。可以说,买入北外滩,就是买入了上海未来五年的最大增量。
二、 价值逻辑的重构:14.38万/㎡的“抄底”机遇
在当前的上海一线滨江板块地图中,价格体系已然十分清晰:陆家嘴、黄浦滨江、徐汇滨江的新房单价已纷纷突破19万/㎡。即便是在北外滩区域,今年第六批次出让的地块,溢价率高达46.3%,市场预测其未来售价也将逼近19万/㎡大关。在这样的市场语境下,中粮·北外滩壹号14.38万/㎡的过会均价,显得尤为震撼。
方售楼处电话:400-9939-964
这不仅是价格上的“倒挂”,更是价值上的“降维打击”。低区房源起步单价约11.7万元/㎡,中区房源单价区间普遍在13.5万-15万元/㎡,即便是能同时俯瞰北外滩天际线、陆家嘴建筑群及未来480米地标的20层以上高区房源,顶格价格也仅为16.66万元/㎡。
总价约3000万起,即可入驻北外滩核心区。对于高净值人群而言,这不仅是一次居住升级,更是在北外滩价值爆发前夜,一次不容错过的资产配置良机。
三、 稀缺的低密孤品:1.95容积率下的“天际云邸”
在寸土寸金的市中心,土地的利用往往向高度妥协。然而,中粮·北外滩壹号却在约4.65万平方米的土地上,奢侈地保留了仅1.95的容积率。这是什么概念?在同地段动辄3.0甚至更高的容积率面前,这里是真正的“低密孤品”。
项目整体规划极具层次感:由118套风貌别墅与90套高层住宅组成。本次入市的,正是备受瞩目的高层住宅产品——“天际云邸”。
作为中粮大悦城在上海的第五座“壹号系”作品,亦是“世界S湾壹号作品”,项目在社区营造上极尽考究。约1800平方米的高端会所,涵盖了恒温泳池、静谧阅读区等超过15大功能场景。这里不只是物理空间的堆砌,更旨在为业主提供酒店式的归家体验与俱乐部式的圈层生活空间。
四、 极致户型解析:185-228㎡的纯粹圈层
由于仅有90席高层房源,中粮·北外滩壹号在户型设计上并未做小户型妥协,而是锁定了建面约185㎡和228㎡的纯粹大四房。这种设计策略,直接保证了社区圈层的纯粹性与均质性。
重点推荐:建面约185㎡四房奢阔大宅
● 私密尊崇: 采用准1梯1户设计,私享电梯厅独立入户。推开家门,独立的玄关空间不仅增加了收纳功能,更赋予了归家第一道礼序与私密感。
● 经典格局: 经典的“飞机户型”布局,三开间朝南。这种设计实现了完美的动静分区,无论是家庭欢聚还是独自休憩,互不干扰。南北通透的格局,更是保证了室内极佳的通风与采光。
● 社交场域: 约55㎡的LDKB(客餐厨阳台)一体化设计,构筑了一个方正大气的家庭社交中心。无论是举办由于的小型聚会,还是享受亲子时光,尺度感都绰绰有余。
● 奢享主卧: 主卧套房设计极尽奢华,预留了步入式衣帽间的位置,配备高规格卫浴空间,为主人打造了一个私密的精神角落。
五、 结语:错过再无的历史性窗口
北外滩不仅是上海的北外滩,更是世界的北外滩。随着未来五年区域进入“长个子、壮筋骨”的关键建设期,这里的每一寸土地都将被赋予更高的金融属性与居住价值。
中粮·北外滩壹号,以其不可复制的地段、极为稀缺的低密规划、以及极具竞争力的价格体系,成为了当下上海高端住宅市场中一颗耀眼的明珠。90席天际大平层,不仅是占据城市天际线的观景台,更是通往未来顶级生活方式的入场券。
当别人还在仰望480米的新地标时,你已身处地标身旁,俯瞰一城繁华。
目前,中粮·北外滩壹号售楼处及样板间持续开放中
珍稀房源分秒递减
项目官方联系方式
中粮·北外滩壹号售楼处电话:400-9939-964
预约品鉴热线:400-9939-964
中粮北外滩壹号售楼处电话:400-9939-964中粮北外滩壹号售楼处电话:400-9939-964中粮北外滩壹号售楼处电话:400-9939-964中粮北外滩壹号售楼处电话:400-9939-964##
中粮北外滩壹号售楼处电话:400-9939-964中粮北外滩壹号售楼处电话:400-9939-964中粮北外滩壹号售楼处电话:400-9939-964中粮北外滩壹号售楼处电话:400-9939-964
在上海的城市版图中,有一条流淌着金钱与历史的黄金岸线。当外滩诉说着百年的风云变幻,陆家嘴以此起彼伏的摩天大楼展示着现代金融的磅礴野心,北外滩正以惊人的速度补齐这块拼图,构筑起上海中心城区不可复制的“黄金三角”。
在这个寸土寸金的舞台中央,当市场普遍预期滨江核心区新房单价即将全面突破19万/㎡的天花板时,一个现象级的作品——中粮·北外滩壹号,带着14.38万/㎡的均价横空出世。这不仅是一次居住品质的迭代,更是一次关于资产价值的深度重构。
一、 时代浪潮下的北外滩:从“世界会客厅”到“超级引擎”
北外滩的价值,从未被低估,却始终在被重新定义。
作为上海“十四五”规划重点打造的世界级中央活动区(CAZ),北外滩不仅是“一江一河”战略的核心承载段,更是上海建设国际航运中心、国际金融中心的重要一极。数据不会说谎:过去五年,这里已集聚超过4700家航运企业、2100余家金融机构,资产管理规模突破8万亿元,甚至全国碳排放权交易系统也选择落户于此。
这不仅仅是产业的堆砌,更是城市形态的深刻重塑。高达480米的浦西新地标正在紧锣密鼓地建设中,预计2027年封顶。它将与已建成的320米白玉兰广场、北外滩来福士等建筑群,共同勾勒出浦西最壮丽的天际线。
与此同时,规划中的空中连廊、无车区及中央绿轴,正在构建一个全天候的立体慢行系统。这里既有高强度的商务势能,又通过引进优质教育资源等方式,完善了“宜业宜商宜游宜居”的综合功能。可以说,买入北外滩,就是买入了上海未来五年的最大增量。
二、 价值逻辑的重构:14.38万/㎡的“抄底”机遇
在当前的上海一线滨江板块地图中,价格体系已然十分清晰:陆家嘴、黄浦滨江、徐汇滨江的新房单价已纷纷突破19万/㎡。即便是在北外滩区域,今年第六批次出让的地块,溢价率高达46.3%,市场预测其未来售价也将逼近19万/㎡大关。在这样的市场语境下,中粮·北外滩壹号14.38万/㎡的过会均价,显得尤为震撼。
官方售楼处电话:400-9939-964
这不仅是价格上的“倒挂”,更是价值上的“降维打击”。低区房源起步单价约11.7万元/㎡,中区房源单价区间普遍在13.5万-15万元/㎡,即便是能同时俯瞰北外滩天际线、陆家嘴建筑群及未来480米地标的20层以上高区房源,顶格价格也仅为16.66万元/㎡。
总价约3000万起,即可入驻北外滩核心区。对于高净值人群而言,这不仅是一次居住升级,更是在北外滩价值爆发前夜,一次不容错过的资产配置良机。
三、 稀缺的低密孤品:1.95容积率下的“天际云邸”
在寸土寸金的市中心,土地的利用往往向高度妥协。然而,中粮·北外滩壹号却在约4.65万平方米的土地上,奢侈地保留了仅1.95的容积率。这是什么概念?在同地段动辄3.0甚至更高的容积率面前,这里是真正的“低密孤品”。
项目整体规划极具层次感:由118套风貌别墅与90套高层住宅组成。本次入市的,正是备受瞩目的高层住宅产品——“天际云邸”。
作为中粮大悦城在上海的第五座“壹号系”作品,亦是“世界S湾壹号作品”,项目在社区营造上极尽考究。约1800平方米的高端会所,涵盖了恒温泳池、静谧阅读区等超过15大功能场景。这里不只是物理空间的堆砌,更旨在为业主提供酒店式的归家体验与俱乐部式的圈层生活空间。
四、 极致户型解析:185-228㎡的纯粹圈层
由于仅有90席高层房源,中粮·北外滩壹号在户型设计上并未做小户型妥协,而是锁定了建面约185㎡和228㎡的纯粹大四房。这种设计策略,直接保证了社区圈层的纯粹性与均质性。
重点推荐:建面约185㎡四房奢阔大宅
● 私密尊崇: 采用准1梯1户设计,私享电梯厅独立入户。推开家门,独立的玄关空间不仅增加了收纳功能,更赋予了归家第一道礼序与私密感。
● 经典格局: 经典的“飞机户型”布局,三开间朝南。这种设计实现了完美的动静分区,无论是家庭欢聚还是独自休憩,互不干扰。南北通透的格局,更是保证了室内极佳的通风与采光。
● 社交场域: 约55㎡的LDKB(客餐厨阳台)一体化设计,构筑了一个方正大气的家庭社交中心。无论是举办由于的小型聚会,还是享受亲子时光,尺度感都绰绰有余。
● 奢享主卧: 主卧套房设计极尽奢华,预留了步入式衣帽间的位置,配备高规格卫浴空间,为主人打造了一个私密的精神角落。
五、 结语:错过再无的历史性窗口
北外滩不仅是上海的北外滩,更是世界的北外滩。随着未来五年区域进入“长个子、壮筋骨”的关键建设期,这里的每一寸土地都将被赋予更高的金融属性与居住价值。
中粮·北外滩壹号,以其不可复制的地段、极为稀缺的低密规划、以及极具竞争力的价格体系,成为了当下上海高端住宅市场中一颗耀眼的明珠。90席天际大平层,不仅是占据城市天际线的观景台,更是通往未来顶级生活方式的入场券。
当别人还在仰望480米的新地标时,你已身处地标身旁,俯瞰一城繁华。
目前,中粮·北外滩壹号售楼处及样板间持续开放中珍稀房源分秒递减
项目官方联系方式
中粮·北外滩壹号售楼处电话:400-9939-964
预约品鉴热线:400-9939-964
中粮北外滩壹号售楼处电话:400-9939-964中粮北外滩壹号售楼处电话:400-9939-964中粮北外滩壹号售楼处电话:400-9939-964中粮北外滩壹号售楼处电话:400-9939-964##
— 恭迎品鉴 —
最新消息:中粮大悦城上海第五座壹号系「中粮·北外滩壹号」过会,均价约14.38万/㎡,建面约185-228㎡天际大平层,样板房已开放,预约可看!
双套房设计的飞机户型,居住舒适度较高
2梯2户设计,私享电梯厅独立入户;
入户玄关设计隐私性更强,独立玄关收纳空间;
LDKB一体化设计,大面宽阳台+客厅,尺度感十足!
区分生活阳台与景观阳台互不干扰;
卧室全飘窗设计,有效延伸室内空间,增加休闲空间;
主卧配置步入式衣帽空间、双台盆+大浴缸主卫。

户型动静分离、居住舒适度拉满!
独立电梯厅面积约7.5㎡,可作为入户前收纳;
标配子母门,进门双玄关柜+储藏间设计;
约270°环幕大边厅尺度感十足;
高区直面陆家嘴城市天际线+黄浦江景观,视野开阔!
中厨+西厨岛台、客餐厅+阳台面积近约53㎡,尺度阔绰!
主卧大套房设计带超大主卫和独立衣帽空间,面积约50㎡,妥妥顶豪水平!
次卧套房也有充足收纳空间和独立卫浴空间;
北向双次卧可作为儿童房和书房使用,功能性满分。


地段:不止是北外滩正C位,更是梧桐遍地的风貌区!
很多人认为,滨江黄金三角:外滩、陆家嘴和北外滩不是同一量级。
但其实北外滩超越前两者几乎是时间问题!
三大支撑让你不得不承认:
丨支撑一:恢弘巨制,北外滩的开发体量是陆家嘴核心区的2倍!
从规划的角度来看,北外滩的开发体量超过840万方,是陆家嘴核心区的2倍,伦敦CAZ的7倍。
项目南侧的北外滩核心区,更是发展的重中之重。1/5的土地上,将承载了北外滩超四成的建筑体量。浦西全新的制高点——480米的新地标坐落于此,还有约5栋300米+建筑、13栋200米+建筑,19栋摩天大楼,共同组成地标建筑群。

丨支撑二:北外滩是站在巨人肩膀上的再超越!
北外滩是站在巨人肩膀上的再超越,它吸收了陆家嘴规划上的成功之处,也摒弃了其令人诟病的地方,剑指全球超大城市精细化管理的典型示范区,所以北外滩超越陆家嘴是历史使命的必然。
具体来看,北外滩将比陆家嘴具备更深的历史文化底蕴,有更休闲的滨江路网和生态环境,也有更具城市温度的人文关怀。

丨支撑三:世纪规划北外滩的兑现速度全球领先!
陆家嘴成为上海金融之巅花了30年,而留给北外滩的时间只有10年!所以你会看到北外滩规划兑现的速度简直史无前例!
2023年,北外滩开发建设重大工程项目22个,投资超过800亿元,实现开竣工面积141.9万㎡。
2024年,北外滩将推动开建重大工程项目48个,投资1890亿元,计划实现开竣工面积超140万㎡。
那些前几年还停留在图纸上的城市地标,如今已经屹立江边,成为上海新的天际线!
综上所述,未来的北外滩在规模、业态、发展速度方面都会超越外滩、陆家嘴,说它是当下最炙手可热的滨江板块,没有任何问题。
而作为北外滩红线内屈指可数的住宅项目,中粮北外滩壹号无疑能尽享这份世纪红利!

更难得的是,中粮北外滩壹号所在区域,恰恰是北外滩核心商务区与提篮桥风貌区交汇地。
意味着,住在中粮北外滩壹号,信步可达黄金三角的汹涌澎湃与商务区的现代繁华。转身即入,梧桐树下被时光浸润的静谧街区和里弄肌理。

这并非简单的区位叠加,而是一种稀缺的生活范式——在世界的舞台上奔涌向前,亦能在历史的脉络里安顿身心。
项目带来的,不止是一处居所,更是一种“出则掌控全局,入则栖心桃源”的从容境界。
而且深入了解了提篮桥风貌区的规划,发现几乎全部都是低密产品,中粮北外滩壹号即将入市的是片区唯一一幢高层!采光与视野可想而知!

产品:北外滩“壹号”作品,重新定义了滨江国际豪宅生活!
在上海豪宅圈,中粮的“壹号”系作品已然成为身份与地位的象征,其超强的保值能力也让入手它的业主资产一再进阶。
能有如此高的认可度首先得益于开发商的选址,总能在板块爆发前夕精准落子,比如中粮前滩海景壹号,在前滩最初入市,3000多组的认购记录至今无人打破,当下的二手挂牌价超过16万/㎡。
再比如瑞虹海景壹号,北外滩早期作品,四开四罄热销185亿,当时新房11万多/㎡,现在瑞虹新房16.6万/㎡,中粮的二手房更是稳定在17万元/㎡左右。
可以说,跟着中粮买准没错,选择“壹号”系作品,就是选择了最好的资产压舱石!

除了选址,壹号系成功的另一个秘诀则是超越时代的品质。
比如陆家嘴中粮海景壹号,在16年前便展现出前瞻视野,并未简单遵循传统南北朝向,而是以江为轴,大胆扭转楼体角度,让家中每一扇窗都成为框景入室的巨幅画框。这一“为景让位”的创举,不仅是产品力的大胆革新,更是远见与胆识的体现,至今仍为业主资产提供着坚实的价值支撑。
作为壹号系最新力作的中粮北外滩壹号,品质自然无可挑剔。
丨首先是无比纯粹、统一的圈层!
据悉,中粮北外滩壹号是上海市中心罕见的无商办、无自持住宅、无保障房的纯住宅项目。而且不是单一高层或别墅,是把俯瞰天际的现代大宅与承载文脉的风貌别墅放在一起,实现互相成就的稀缺性。
高层面积起步建面约185㎡天际大平层,整体圈层能级相对统一,打造出一道真正属于高净值人群的身份门槛。

丨其次,是超越时代的建筑审美!
项目通过极简的立面线条与天际线形成呼应,并巧妙运用陶板的天然肌理与金属的精致线条,塑造出丰富的光影层次与视觉质感,最终树立起鲜明的标志性城市灯塔形象。

丨全市独一档的会所高占有率!
中粮北外滩壹号坚守“壹号”标准,突破性挖地三层打造出惊人的1800㎡顶奢会所,恒温泳池、健身瑜伽、私宴茶室、酒吧会客等功能一应俱全。
折算本就稀少的户数,会所空间的高占有率、高使用频率,全市可能是独一份!


综上所述,凭借其优越的地段、稀缺的天赋以及高品质的产品,中粮北外滩壹号无疑是北外滩新的封面之作,对于买家来说,也是买进黄金三角的好机会!

房地产基础知识300问
1、什么是房产:房屋产权的简称。
2、什么是地产:是指土地财产。
3、什么是房地产:是房产和地产的总称。
4、什么是房地产业:从事房地产开发、建设、经营、管理以及维修、装饰和服务的综合性产业。
5、什么是房地产开发:是指在依法取得土地使用权的土地上按照使用性质的要求进行基础设施、房屋建筑的活动。
6、什么是土地开发:是将“生地”开发成可供使用的土地。
7、集体土地是指:农村集体所有的土地。
8、征用土地是指:国家为了公共利益的需要,可依照法律规定对集体所有的土地实行征用。
9、什么是土地所有权:是指国家或集体经济组织对国家土地和集体土地依法享有的占有、使用、收益和处分的权能。
10、什么是土地使用权的出让:指国家以协议、招标、拍卖的方式将土地所有权在一定年限内出让给土地使用者,由使用者向国家支付土地使用权出让金的行为。
11、什么是土地使用权转让:是指土地使用者通过出售、交换、赠与和继承的方式将土地使用权再转移的行为。
12、什么是地籍、产籍:是对在房地产调查登记过程产生的各种图表、证件等登记资料,经过整理、加工、分类而形成的图、档、卡、册等资料的总称。
13、 生地是指:不具备开发条件的土地。
14、熟地是指:已完成三通一平(水、电、道路,土地平整)或七通一平,具备开发条件的土地。
15、什么是宗地:是地籍的最小单元,是指以权属界线组成的封闭地块。
16、什么是宗地图:是土地使用合同书附图及房地产登记卡附图。它反映一宗地的基本情况。包括:宗地权属界线、界址点位置、宗地内建筑位置与性质、与相邻宗地的关系等。
17、证书附图是指:房地产后面的附图,主要反映房地产情况及房地产所在宗地情况。
18、什么是物业管理:泛指一切有关房地产开发、经营、商品房销售、租赁及售后服务。
19、什么是业主委员会:是在物业管理区域内代表全体业主实施自治管理的组织。是代表物业全体业主合法权益的社会团体,其合法权益受国家法律保护。
20、业主委员会是如何产生的:由业主大会从全体业主中选举产生。
21、住房补贴是指:国家为职工解决住房问题而给予的补贴资助。
22、房屋的所有权是指:对房屋全面支配的权利。
23、房地产交易的两种主要形式是:地产交易形式 与 房产交易形式。
24、建筑物是指:人工建造而成的房屋和构筑物。
25、构筑物是指:建筑物中除房屋以外的东西。
26、什么是期房:是指消费者在购买时不具备即买即可入住的商品房。
27、期房是如何介定的:房地产开发商拿到商品房预售许可证开始至取得房地产权证大产证或竣工验收合格可以直接入住使用)为止。
28、什么是预售合同:消费者在购买期房时签定的销售合同。
29、什么是现房:是指消费者在购买时具备即买即可入住的商品房,即开发商已办妥所售的商品房的大产证(或已经竣工验收合格并交付使用)的商品房。
30、什么是毛坯房:房地产商交付屋内只有门框没有门,墙面地面仅做基础处理而未做表面处理的房叫毛坯房。
31、什么是成品房:是指对墙面、天花、门套、地板实行装修。
32、什么是商品房:是指以完全的市场价格向购房者出售的房子。
33、商品房预售是指:在房地产尚未建成以前,房地产的经销商在取得受买人一定数量的定金后,将期房出售给受买人。
34、商品房现售是指:指房地产开发企业将竣工验收合格的商品房出售给买受人。
35、二手房通常指的是:再次进行买卖交易的住房。
36、经济适用房指的是:面向中低收入家庭的普通住宅。
37、例出3种以上的安居房的种类:准成本房、全成本房、全成本微利房和社会微利房。
38、低层住宅的介定:1-3层的住宅。
39、多层住宅的介定:4-6层的住宅。
40、小高层住宅的介定:7-11层的住宅。
41、中高层住宅的介定:12-16层的住宅。
42、高层住宅的介定:16层以上为高层住宅。
43、超高层建筑的介定:总高度超过100米的建筑。
44、商品房的结构是指:房屋主体所使用的施工工艺和用材。
45、钢结构的意思是:承重的主要结构是用钢材料建造的,包括悬索结构。
46、钢混结构的意思是:承重的主要结构是用钢和混凝上建造的。
47、砖木结构的意思是:承重的主要结构是用砖、木材建造的。
48、砖混结构的意思是:主要是砖墙承重,部分是钢盘混凝土承重的结构。
49、框架结构的意思是:以钢筋混凝土浇捣成承重梁柱,再用预制的隔墙分户的结构。
50、开间指的是:一间房屋内一面墙的定位轴线到另一面墙的定位轴线之间的实际距离。
51、进深指的是:一间独立的房屋或一幢居住建筑内从前墙的定位轴线到后墙的定位轴线之间的实际长度。
52、层高指的是:下层地板面或楼板面到上层楼层面之间的距离。
53、净高指的是:下层楼板上表面到上层楼板下表面之间的距离。
54、占地面积指的是:地块的总面积。
55、1亩约等于多少平方米:666.66㎡
56、居住小区总用地指的是什么用地的总和:住宅总用地,公共建筑设施总用地,道路、广场用地、庭院、绿化用地的总和。
57、住宅总用地是指:住宅用地面积的总和。
58、公建总用地是指:小区内部公共建筑占地面积的总和。
59、建筑用地面积的介定:建设用地位置和界线所围合的用地之水平投影面积。
60、建筑基底面积是指:建筑物首层的建筑面积。
61、建筑高度是指:建筑物室外地平面至外墙面顶部的总高度。
62、房屋的基底面积是指:房屋的基底面积是指建筑物底层勒脚以上外围水平投影面积。
63、道路面积是指:小区内宽度大于1.5米道路的面积总和。
64、广场面积是指:停车、回车广场和有铺砌地面的场地面积之和。
65、庭院、绿化面积是指:小区内集中绿化带、小公园,以及公共活动场所等为小区所有居住人员 共同使用权的绿化面积的总和。
66、假山、小池算不算庭院、绿化面积:算。
67、人均总占地面积(㎡/人)的计算公式:人均总占地面积=建筑红线内总用地÷本小区规划居住总人数。
68、人均住宅用地面积(㎡/人)的计算公式:人均住宅用地面积=小区内总住宅用地÷本小区规划居住总人数。
69、总建筑面积是指:小区内住宅、公共建筑、人防地下室面积总和。
70、人防地下室算不算在总建筑面积之内:算
71、住宅建筑面积是指:住宅建筑外墙外围线测定的各层平面面积之和。
72、套建筑面积是指:一套房屋的整体面积。
73、套建筑面积的构成是:套内建筑面积和套分摊的公用建筑面积
74、幢(栋)是指:一座独立的,包括不同结构和不同层次的房屋。
75、架空房屋是指:一般为底层架空,以柱子作为承重支撑物的房屋。
76、夹层是指:位于两自然层之间的楼层,指房屋内部空间的局部层次。
77、技术层的意思是:用作水、电、暖、卫生等设备安装的局部层次。
78、技术层层高在多少以上计算层数:2.20米以上的计算层数。
79、结构转换层是指:建筑物某楼层的上部与下部因平面使用功能不同,该楼层上部与下部采用不 同结构类型,并通过该楼层进行结构转换,则该楼层称为结构转换层。
80、跃层式住宅是指:一套住宅占两个楼层,由户内楼梯联系上下层,上下两层完全分隔。
81、阁楼是指:利用房屋内的上部空间加建的楼层。
82、阁楼层高在多高以上计算面积:2.20米以上。
83、地上层数是指:即房屋的自然层数,指室内地坪±0.00以上的按楼板结构分层的层高在2.20米以上的楼层数。
84、地上层数用什么数表示:自然数。
85、地下层数是指:采光窗在室外地坪以下的,其室内层高在2.20米以上的地下室的层数。
86、地下层数用什么数表示:负数。
87、房屋总层数是指:房屋的地上层数与地下层数之和。
88、地下层数算不算在房屋总层数之内:算。
89、例出3个以上不算在房屋总层数内的建筑层:假层、夹层、阁楼、装饰性塔楼、楼梯间、水箱间。
90、柱廊是指:有顶盖和支柱,供人通行的建筑物,称为有柱走廊,简称柱廊。
91、骑楼是指:底层为有柱廊房,廊道上方建为楼房的一部分。
92、挑廊是指:指二层以上挑出房屋墙体外,有围护结构,无支柱有顶盖的外走廊。
93、门廊是指:建筑物门前有顶盖,有支柱或围护结构的进出通道。
94、门斗是指:支撑建筑物门前顶盖的是实体墙称为门斗。
95、檐廊是指:房屋檐下方两端有支撑墙体无柱的通道。
96、天棚是指:即天篷,有透明顶篷履盖的屋面。
97、晒台又称什么:露台。
98、露台是指:供人室外活动的上人屋面或底层地面伸出室外的有维护无顶盖的台面。
99、阳台是指:有永久性上盖、有围护结构、有台面、与房屋相连、可以供人活动或利用的房屋附属设施。
100、阳台的分类有:封闭式阳台和半封闭式阳台。
101、封闭阳台是指:在围护栏、墙上部用铝合金玻璃窗等围闭的阳台。
102、封闭阳台面积如何计算:全部计算建筑面积。
103、半封闭阳台是指:除围护栏、墙以外没有进行围闭的阳台。
104、半封闭阳台面积如何计算:计算一半建筑面积。
105、楼梯是指:是指房屋层之间供垂直交通用的通道,
106、室外楼梯是指:依靠房屋外墙体搭建的永久性楼梯。
107、屋顶楼梯间是指:突出房屋屋面有顶盖,四周有围护结构,层高在2.20米以上供上屋顶维修或安全出口用的用房。
108、屋顶楼梯间算不算总层高:不算。
109、屋顶电梯间:指突出房屋屋面,层高在2.20米以上,供停放、检修、升降电梯的用房。
110、屋顶电梯间算不算总层高:不算。
111、设备间是指:一幢大楼内放置各种应用设备以及进行综合布线交接的房屋。
112、功能区的意思是:根据各共有建筑部位的用途而划分的服务范围称为功能区。
113、连廊是指:连接两幢房屋的走廊。
114、连楼是指:连接两幢房屋的楼房。
115、过街楼是指:底层局部为通道的楼房。
116、架空通廊是指:指以两端房屋为支撑,有围护结构,有顶盖无支柱的架空通道。
117、围护结构是指:将空间竖向分割成相对独立,不易通行的两个或多个部分的实体,起隔离作用。
118、墙和栏杆算不算围护结构:算。
119、基地面积是指:一个小区总的占地面积。
120、间距是指:建筑平面外轮廓线之间的距离。
121、国家间距标准的比例是:楼高:间距=1:1.2。
122、国家日照标准是:2个以上居住空间大寒日底层满窗连续日照不低于1小时,全天满足2小时。
123、结构面积是指:房屋建筑中外墙、内墙、柱等结构构件所占面积的总和。
124、公用面积是指:住宅楼内为住户方便出入,正常交往而设置的公共走廊、楼梯、电梯间等所占面积总和。
125、公用面积是如何分摊的:按栋或单元户数面积按比率分摊。
126、套内建筑面积是指:套门内范围的建筑面积。
127、套内建筑面积包括:套内使用面积、套内墙体面积和阳台建筑面积。
128、套内使用面积是指:指套内住户独自使用的面积。
129、套内使用面积的计算包括:卧室、厨房、卫生间、过厅、起居室、内走道、阳台、壁柜等净面积的总和。
130、套内墙体面积是指:套内使用空间周围的维护或承重墙体或其它承重支撑体所占的面积。
131、套内墙体面积的计算:全部。
132、各套之间的分隔墙按多少计入套内墙体面积:一半。
133、套与公共建筑空间的分割墙以多少计入套内墙体面积:一半。
134、外墙以多少计入套内墙体面积:一半。
135、套内自由墙体以多少计入套内墙体面积:全部。
136、套内阳台建筑面积是指:阳台外围与房屋外墙之间的水平投影面积。
137、公用建筑面积是指:各产权主体共同占有或共同使用权的建筑面积,指各套(单元)以外为各户共同使用,不可分割的建筑面积。
138、容积率是指:项目规划建设用地范围内全部建筑面积与规划建设用地面积之比。
139、一个项目总建筑面积为64000㎡,占地面积为40亩,容积率是多少:2.4
140、建筑密度又称:建筑覆盖率。
141、建筑密度是指:项目用地范围内所有基底面积之和与规划建设用地之比。
142、人口毛密度的计算公式:人口毛密度=小区内总居住人数÷小区内占地面积。
143、平均每平方米造价(元):平均每平方米造价=建筑物总造价÷建筑面积。
144、使用面积系数K1(%):使用面积系数=总使用面积(平方米)÷总建筑面积(平方米)×100%。
145、居住面积系数K2(%):居住面积系数=总居住面积(平方米)÷总建筑面积(平方米)×100%。
146、绿地率:指公共绿地、宅旁(宅间)绿地、公共服务设施所属绿地和道路绿地等四类绿地面积的总和占居住区用地总面积的比率。
147、公共绿地的介定:最小的要求是宽度不小于8米,面积不小于400平方米,
148、哪些绿化不能算入绿地面积:距建筑外墙1.5米和道路边线1米以内的用地,地下车库、化粪池等地表覆土达不到3米深度的设施不能计入。
149、绿化覆盖率:所有绿化面积与建设用地面积之比。即绿化面积÷基地面积×100%
150、绿化覆盖面积:所有植被垂直投影面积的总和。
151、得房率:指套(单元)内建筑面积与套建筑面积的比率。
152、公共能耗:是小区共用部位、共用设备和公共设施及在公共性服务中所发生的水、电、煤等能源消耗。
153、公共能耗费:因公共能耗而产生的费用
154、公共能耗费由谁承担:由全体业主承担。
155、规划形态是指:项目的具体建筑构成。
156、单元式住宅:是指在多层、高层楼房中的一种住宅建筑形式
157、居住单元:每个楼梯的控制面积称为一个居住单元。
158、一梯几户是指:一个单元里平层有几户的俗称。
159、房型(户型):是指一套住宅由多少卧厅、厨、卫等组成的总称。
160、面积配比:指的是各种房型面积在项目或单元中所占比例的多少。
161、房型配比:指的是各种房型在项目或单元中所占的比例的多少。
162、阁楼:是指位于房屋坡屋顶下部的房间。
163、普通住宅:是指按一般民用住宅标准造的居住用住宅。
164、准现房:准现房是指房屋主体已基本封顶完工,工程正处在内外墙装修和进行配套施工阶段的房屋。
165、居住组团:指一般被小区道路分隔,配建有居民所需的基层公共服务设施的居住生活聚居地。
166、公寓:是指二层以上供多户人家居住的楼房建筑。
167、纯办公楼:是指专为各类公司的日常营运提供办公活动空间的大楼。
168、商场:是指规划为对外公开进行经营的建筑物。
169、综合楼:是指兼有住家、办公甚至商场的大楼。
170、商住住宅:是住宅观念的一种延伸,它属于住宅,但同时又融入写字楼的诸多硬件设施,使居住者在居住同时又能从事商业活动的住宅形式。
171、别墅:是指在郊区或风景区建造的供住宿休养用的花园住宅。
172、联排别墅:三户或三户以上连体的别墅。
173、双拼别墅:二户连体的别墅。
174、独栋别墅:单楼独栋的别墅。
175、跃层式产品:住宅占有上下两层楼南,卧室、起居室、客厅、卫生间、厨房、及其它辅助用房可以分层布置,上下层之间的交通采用户内独用小楼梯联接。
176、跃层式产品的优点:跃层式住宅的优点是每户都有较大的采光面,通风较好,户内居住面积和辅助面积较大,布局紧凑,功能明确,相互干扰较小。
177、复式产品(LOFT):在建造上仍每户占有上下两层,实际是在层高较高的一层楼中增建一个夹层,两层合计的层高要大大低于跃层式住宅。
178、错层式住宅:是指楼面高度不一致错开之处有楼梯联系的住宅。
179、SHOPPING MALL:大型购物广场的英文名称。
180、共有房产:共有房产是指某一房产属于两个或两个以上的所有人共同所有。
181、半地下室:是指房间地面低于室外地平面的高度超过该房间净高的1/3,且不超过1/2者。
182、地下室:地下室是指房间地面低于室外地平面的高度超过该房间净高的1/2者。
183、一地下室室内净高2.6米,2米低于室外地平面,属于半地下室还是地下室:属于地下室。
184、商品房验收合格指的是:单体(即单幢楼盘)验收合格。
185、商品房综合验收合格指的是:包含所有配套设施在内的全部建筑物的验收合格。
186、空鼓:局部面与基层没有胶合剂或胶合剂没有起作用。
187、地基:建筑物下面直接承受建筑物重量的土层称为地基。
188、基础:建筑物的最下端与土壤直接接触的部分称为基础。
189、基础的作用:基础的作用是承受建筑物全部重量并将之分散传递给地基。
190、墙体是构件,也可以是构件:是维护分割构件,同时也可以是承重构件。
191、在一般砖混结构房屋中,墙体也是主要的:承重构件。
192、停车场:指在建设用地内为停放机动车和非机动车须配置的场地。
193、停车场小型机动车位面积计算:按每车位25平方米计算。
194、自行车位按每车位多少平方计算:1.2平方米计算。
195、商品房销售面积又称之为:套建筑面积
196、套建筑面积包括哪两部份:套内建筑面积和分摊的公用建筑面积。
197、商品房预售许可证是由什么单位向什么单位发放的一项证书:是房地产管理部门向房地产开发公司颁发的一项证书。
198、商品房预售许可证的作用是:用以证明列入证书范围内的正在建设中的房屋已经可以预先出售给承购人。
199、契税是指:房屋所有权发生变更时,就当事人所订契约按房价的一定比例向产权承受人征收的一次性税收。
200、公共维修基金是指:住宅楼房的公共部位和共用设施、设备的维修养护基金。
201、公共维修基金的交纳人是:购房人。
202、公共维修基金何时交纳:在交房时交纳。
203、印花税是指:印花税是对经济活动和经济交往中书立、领受凭证征收的一种税。
204、居住用地使用年限:70年。
205、商业用地使用年限:40年。
206、工业用地使用年限:40年。
207、综合用地使用年限:50年。
208、土地使用年限届满后怎么办:业主可以在继续交纳土地出让金或使用费的前提下,继续使用该土地。
209、申办产权需具备哪些资料:审核后购销合同一份、收件收据、产权申请登记表、产权登记发证审批表、房屋所有权情况调查表、测量后的正式图纸。
210、办理产权需交纳哪些费用:产权登记费、勘丈测绘费、工本费。
211、房地产产权初始登记是指:对未经登记机关确认其房地产权利,领取房地产权利证书的土地使用权及建筑物、附着物的所有权进行的登记。
212、房地产登记是指:房地产产权登记。
213、房地产登记的种类:分为初始登记、转移登记、抵押登记、变更登记、其它登记。
214、什么情形属于房地产变更登记:
(1)地产使用用途改变;
(2)权利人姓名或名称发生变化的;
(3) 房地产座落名称或房地产名称发生变化的;
(4)建筑物、附着物倒塌、拆除。
215、房地产登记是以什么单位进行登记的:是以一宗土地为单位进行登记的。
216、申请房地产登记可否委托他人代理:可以委托他人代理。
217、由代理人办理申请房地产登记的,应向登记机关提交什么材料:申请人的委托书。
218、通过买卖、交换、赠与将房地产转移给他人的法律行为称之为:房地产转让。
219、房地产转让时其他公用设施是否一起转让:转让人对其他公用设施所拥有的权益同时转移。
220、在什么情况下房地产开发项目可以交付使用:房地产开发项目竣工,经验收合格后,方可交付使用;
221、未经验收或者验收不合格的房地产开发项目可否交付使用:不得交付使用。
222、预售面积是指:预售面积是指全部按建筑设计图上尺寸计算的房地产建筑面积。
223、预售面积只供什么情况下使用:只供房地产预售时使用。
224、竣工面积是指:竣工面积是指房地产竣工后实测的面积。
225、商品房预售须符合哪些条件?:
(1)交付全部土地使用权出让金,取得土地使用权证书;
(2)有建设工程规划许可证;
(3)按提供预售的商品房计算,投入开发建设资金达到工程建设总投资的25%以上,并已经确定施工进度和竣工交付日期;、
(4)向县级以上人民政府房产管理部门办理预售登记,取得商品房预售许可证明。
226、哪些情况下预售房购买者可以要求取消预售房合同:
(1)房屋开发公司不能按照原定日期交付预购房屋;
(2)建成后的房屋实际面积与预售房合同确定的面积不相符;
(3)建成后房屋建筑的材料与预售合同所列建材不相符。
227、五证是指:《国有土地使用证》、《建设用地规划许可证》、《建设工程规划许可证》、《建设工程开工证》、《商品房预售许可证》。
228、国有土地使用证:是证明土地使用者向国家支付土地使用权出让金,获得了在一定年限内某块国有土地使用权的法律凭证。
229、建设用地规划许可证:是建设单位在向土地管理部门申请征用、划拨土地前,经城市规划行政主管部门确认建设项目位置和范围符合城市规划的法定凭证。
230、建设工程规划许可证:是有关建设工程符合城市规划要求的法律凭证。
231、二书是指:《新建住宅质量保证书》和《新建住宅使用说明书》。
232、房地产抵押是指:指债务人或第三人(抵押人)以其合法拥有的房地产作为担保物向债权人(或押权人)提供债务履行担保的行为。
233、房地产按揭是否属于房地产抵押的一种形式:是。
234、申请抵押登记应提交什么资料:
(1)《房地产抵押登记申请书》;
(2)委托书;
(3)房地产证;
(4)夫妻双方身份证、户口簿、结婚证或未婚姻证明;
(5)商品房买卖合同和个人住房借款合同。
235、贷款期限在1年内的如遇利息调整如何处理:不做调整。
236、贷款期限在1年以上的如遇利息调整如何处理:于下一年1月1日开始,按相应期限档次利率执行新利率。
237、贷款人提前偿还贷款时本息如何计算:提前清偿的部分在以后期限不再计息,此前已计收贷款利息不作调整。
238、银行按揭是指:购房抵押贷款,是购房者以所购房屋的产权作抵押,由银行先行支付房款给发展商,以后购房者按月向银行分期支付本息。
239、个人住房按揭需提交哪些资料:购房身份证、户口簿、结婚证原件及复印件(未婚证明原件)、 收入证明(个体户则提供营业执照及税票)、已首付购房款收据原件及复印件、购房合同、贷款行的活期存折、贷款申请书、个人住房借款合同、借款借据、委托银行扣收购房还款协议书、住房抵押承诺书。
240、住房公积金是指:单位为其在职职工缴存的长期住房储金。
241、公积金贷款是指:由城市住房资金管理中心委托银行向购买自住住房的公积金交存人发放的贷款。
242、公积金贷款担保费用计算公式:贷款金额×贷款年限×千分之0.75。
243、什么情况下公积金贷款担保服务费可有优惠:首次购买普通自住房和改善型住房的客户在申请公积金(组合)贷款时。
244、公积金贷款担保服务费优惠幅度是:减免40%。
245、申请住房公积金贷款的条件:凡住房公积金连续缴存6个月以上或累计缴存公积金一年以上, 并且目前仍在缴存公积金,才有资格申请。
246、办理公积金贷款应提供哪些资料:身份证、户口簿、结婚证、收入证明、公积金卡、审核后购房合同一份,首付款票据。
247、组合贷款是指:公积金贷款与商业贷款的合称。
248、北京市限购政策:连续满五年的社保或五年的纳税申报记录。
249、目前住房公积金贷款最高额度为:80万元。
250、存量成套住房公积金贷款首付款比例为:30%。
251、90平方米以内(含)商品住房公积金贷款首付比例为:30%。
253、什么情况下可再次申请办理住房公积金贷款:借款申请人还清住房公积金贷款后。
254、契税是以什么价格为基数收取的:总房价。
255、契税税率为:90㎡以下的1%;90~140㎡为1.5%;140㎡以上为3%。
259、纯企划是指:由发展商出广告费,代理公司根据项目的特点,来为这个项目进行一系列的广告策划,不包括现场业务。
260、企划代销是指:由发展商提供广告费用,我们公司根据这个项目的特点给这个项目重新定位,从前期的案前准备、广告策划以及现场的销售进行一系列正题的运行。
261、包柜是指:代理销售者或公司仅负责销售,而企划则由其它的广告公司负责。
262、包销是指:由代理公司来承担广告费用的一种代理形式。
263、个案是指:房地产项目。
264、开盘:一个项目正式公开发售。
265、销售率:指售出的户数占可销的总户数的比例。
266、起价:是指商品房在销售时各单元或整个项目销售价格中的最低价格。
267、均价:单元或整个项目总销售额除以可销售面积得出的价格。
268、基价:经过核算而确定的每平方米的基本价格。
269、销售价:以基价增减楼层和朝向差价后得出的价格。
270、总价:总价是指每套房子的单价乘以面积所得出的价格,是购房者购买该套房子所要付出的全款。
271、定金:只是预付款的一部分,起到担保债权的作用。
274、SP的中文解释:销售促进。
275、SP是指:一种个人或团体用以促进成交或营造现场热烈气氛的炒作行为。
276、DSP:有一定针对性的网路弹窗广告。
277、PR:用以提升企业和产品形象的公关活动。
278、CF:电视广告。
279、DM:一种对于目标客源进行专门邮寄的邮政专递广告。
280、POP:指树立在户外的,大型的平面看板广告。
281、NP:报纸广告。
282、VI:平面广告表现的总称。
283、CI:企业形象表现的总称。
284、SOWT:个案的优势、劣势、市场威胁和市场机会的英文简写。
285、销海:用以促进销售的单张平面印刷海报。
286、夹报:一种跟销售海报类似的平面印刷品,用以夹在各类报纸中做宣传。
287、KT板:售楼处现场内布置的一种表现企业和产品形象的看板。
288、LOGO:展现产品形象和特色的标志。
289、鸟瞰图:从空中俯视的整个区域的效果表现图。
290、墨线图:单个产品或楼层的平面表现图,一般会标明比例及尺寸。
291、家配图:在墨线图的基础上配置上家具的平面效果表现图。
292、效果图:一种表现建筑外立面、小区景观等的平面图片。
293、地理位置图:一种表明个案所处位置的平面表现图。
294、交通表现图:一种表明个案周边交通情况的平面表现图。
295、生活机能图:一种表明个案周边生活、休闲、娱乐场所、学校、金融设施等的平面表现图
296、房型单片:印有单个房型或家配图的单片印刷图纸。
297、楼书:对小区的基本情况、发展商、产品、配套设施、智能化等做全面介绍的印刷文本。
298、道旗:沿马路设置在灯杆或其它立杆上的宣传旗帜。
299、灯箱:一种有内部灯光设置的,用以宣传企业和产品形象的广告表现物,一般为箱体结构。
300、高炮:一种不依附建筑物,用钢管或钢架等直接在空地上树立起来的巨大的广告物。
301、软文:直接以文字表达,着重企业形象推广和个案报导的广告形式。
302、硬广告:以直觉的平面表达形式(如效果图、房型图),配以少量的文字,直接述说企业或产品形象的广告手法。
303、控台:销售现场用以行政作业或控制销售速度、现场气氛、SP活动等的操作台。
304、BY位表:业务人员轮流接待客户的顺序表。
305、来访登记表:记录每组来访客户基本信息及购房需求的表格。
306、来电登记表:记录客户来电询问重点及需求的表格。
307、日报表:记录销售现场当天销售情况及人员出勤、资金流量情况和突发事件的综合表格。
308、周报表:记录销售现场一周销售情况及人员出勤、资金流量情况和突发事件的综合表格。
309、月报表:记录销售现场每月销售情况及人员出勤、资金流量情况和突发事件的综合表格。
310、销控表:综合记录现场销售情况及所剩房源的表格。
311、底价:一般为开发商开发成本和期望收益合成的销售价格。也指代理公司与开发商约定的合作最低销售价格。
312、表价:现场或对外的公开报价(一般会在底价上加上一定的百分比)。
313、佣金:业务人员根据销售业绩及提成比例所得的收入。
314、主力户型:个案中最为主要或最多的户型。
315、主力面积:主力户型的面积。
316、去化:指个案的销售情况。
317、利多:指个案的优点或主要卖点。
318、利空:指个案的缺点或明显不足点,也是个案的弱点。
319、市场调研:对相关项目的市场信息进行系统的收集、整理、记录和分析的过程。
320、市场调查包括哪几项:环境分析、产品分析、价格分析、去化分析、客源分析、业务分析、媒体分析、综合分析。
321、环境分析:包括区位情况、交通情况、配套设施等。
322、产品分析:包括基地情况、经济指标、房型配比、面积配比等。
323、价格分析:包括单价范围、总价范围、付款方式、折扣情况等。
324、去化分析:包括去化顺序、去化特征、去化抗性等。
325、客源分析:包括区域划分、客源层次、消费意图等。
326、业务分析:包括业务配备、业务能力、业务执行等。
327、媒体分析:包括媒体选择、宣传模式、主要述求等。
328、综合分析:包括优势分析、劣势分析、综合结论等。
329、计算全部建筑面积有哪些,例出5种:
房屋、夹层、插层、技术层、楼梯、电梯间、通道、门厅、回廊、楼梯间、电梯井、垃圾道、管道井、电梯机房、斜面构屋顶2.20米以上的部位、挑楼、全封闭的阳台、室外楼梯、通廊、地下室、半地下室、门廊、门斗、、车棚、货棚等。
330、计算一半的建筑面积有哪些,例出5种:
有盖无柱的外走廊、檐廊、单排柱的车棚、货棚、站台、未封闭的阳台、建筑物外有顶盖,无柱的走廊、檐廊、建筑物间有顶盖的架空通廊等。
331、不计算建筑面积的有那些,例出5种?:
柱、垛、无柱雨篷、悬挑窗台、室外爬梯、屋顶水箱、建筑物上无顶盖的平台(露台)、游泳池、独立烟囱、油罐、贮油(水)池、地下人防干道、支线等。
332、分摊公用建筑面积的计算方法:分摊公用建筑面积=套内建筑面积×公用建筑面积分摊系数
333、公用建筑面积分摊系数计算方法:公用建筑面积分摊系数=公用建筑面积÷套内建筑面积之和
334、公用建筑面积计算方法:公用建筑面积=整幢建筑的面积-套内建筑面积之和-不应分摊的建筑面积
335、哪些公用面积应分摊,例出5种:室内外楼梯、内外廊、公共门厅、通道、电梯、配电房、设备层、设备用房、结构转换层、技术层、空调机房、消防控制室、为整栋楼层服务的值班警卫室、建筑物内的垃圾房以及空出屋面有围护结构的楼梯间、电梯机房、水箱间等。
336、哪些公用面积不能分摊,例出5种:不能分摊的公用面积为底层架空层中作为公共使用的机动车库、非机动车库、公共开放空间、城市公共通道、沿街的骑楼作为公用开放使用的建筑面积、消防避难层;为了整栋建筑物使用的配电房;公民防护地下室以及地下车库、地下设备用房等。
声明:本文由入驻焦点开放平台的作者撰写,除焦点官方账号外,观点仅代表作者本人,不代表焦点立场。


