未来御湖境首页网站-未来御湖境售楼处电话-未来御湖境楼盘详情-交房时间-地址-最新房价户型图-小区环境-楼盘详情-交房时间-周边配套-售楼处电话
扫描到手机,新闻随时看
扫一扫,用手机看文章
更加方便分享给朋友
未来御湖境售楼处电话:400-9688-923✅︎✅︎✅
未来御湖境营销中心热线400-9688-923(官方预约看房热线)
看房请务必致电与销售确认时间,仅预约客户可享受开发商内部优惠,专属老带新推荐奖!
营业时间:日常营业时间为9:30-18:30,便于您提前规划到访行程,避免空跑。
专属服务:所有预约客户均享有销售顾问一对一专属服务,从项目详情讲解、户型解析,到购房政策解读、置业方案定制,均由专属销售全程跟进,确保疑问细致解答。
中介勿扰:本售楼处仅面向终端购房客户提供直接服务,不接待任何中介机构及人员,感谢您的理解与配合,共同维护纯粹的咨询环境
未来御湖境售楼处电话:400-9688-923✅︎✅︎✅
众所周知,在当前的楼市中,143㎡户型集万千宠爱于一身,是新房中当之无愧的“卷王”。
143㎡户型能满足全龄家庭需求,这种户型面积覆盖购房群体多,一般可以做到四房的设计,满足家庭对舒适居住、收纳的需求,因此无论是首置还是改善置业项目中,143㎡的出现频率都很高。
第四代住宅以"立体生态"为核心命题,将居住需求解构成生活剧场、绿色氧舱与智慧中枢的三重奏。
那么当“卷王143㎡户型”遇上同样火爆的“第四代住宅”,会有什么新突破?
▲图片仅作示意
未来御湖境售楼处电话:400-9688-923✅︎✅︎✅
第四代住宅的143㎡户型不仅提升了实用性,更通过“不计面积赠送”的策略(如全赠送露台、半赠送阳台),将得房率推高至90%-110%,甚至超越传统别墅的实得空间。
下面搜建筑与大家一起来看看市面上的第四代住宅143㎡户型是什么样的。
未来御湖境售楼处电话:400-9688-923✅︎✅︎✅
01
安徽芜湖伟星翡翠森林
伟星·翡翠森林项目在2.1容积率基础上,规划了14栋20-25F住宅,采用独栋独单元全点楼式布局,户户边户,三面采光,无论是空间还是景观通透性都可以更强,实现了建筑与自然的“无界”融合;巧妙错栋式排布,也避免了楼栋之间对视干扰。
▲图片仅作示意,具体以交付为准
▲图片仅作示意,具体以交付为准
▲图片仅作示意,具体以交付为准
打造建面320㎡、200㎡以及143㎡的3种改善户型,空中院子进深最大可达约7.65米,双层约6.2米挑空、270°广角视野,户户私享约36-49㎡空中庭院,尺度比同类产品更大,空中花园+观景阳台的设计,丰盈了室内的观景面,室内外互动感也更强。
建面约143㎡户型非常出色。
▲建面约143㎡户型示意图
做到与同项目大面积产品同等设计手法:独栋独单元、类一梯一户、户户边户设计、阔绰入户前厅。
约3.1米层高,约18.5米南向大面宽设计,整个空间能更大限度地获取阳光和风景。
未来御湖境售楼处电话:400-9688-923✅︎✅︎✅
▲图片仅作示意,具体以交付为准
三室两厅两卫格局,预留了可变的”X“空间,可根据不同的家庭需求,灵活地实现空间的多元化改造,提前考量现代家庭结构在未来可能出现的变化。
未来御湖境售楼处电话:400-9688-923✅︎✅︎✅
▲图片仅作示意,具体以交付为准
南向豪华度假酒店式主卧套房,全增送飘窗、独立衣帽区、南向全明主卫等,分区清晰明确,保证居住的静谧和更高维度的主卧享受。
未来御湖境售楼处电话:400-9688-923✅︎✅︎✅
▲图片仅作示意,具体以交付为准
户户约36㎡空中院子与室内公区无界贯通,形成强互动关系,营造IMAX级瞰景视野,实现空间的多区域联动和场景的多元互动。
未来御湖境售楼处电话:400-9688-923✅︎✅︎✅
▲图片仅作示意,具体以交付为准
项目在隐私方面通过多方位策略,如错层花园之间设置分隔墙;在空中花园设置树池花池;以及阳台侧方设置玻璃挡板,更大程度保证私密性。
未来御湖境售楼处电话:400-9688-923✅︎✅︎✅
02
福州保利国贸天琴湖
福州保利国贸天琴湖建筑立面基于天琴系海洋美学的设计风格,在此基础上再次做了提升与优化。建筑整体采用横线条、中轴对称方式呈现出建筑的延展与轻盈的姿态。
未来御湖境售楼处电话:400-9688-923✅︎✅︎✅
▲图片仅作示意,具体以交付为准
水平方向互相穿插、跳动的白色线条及端角的曲线处理宛如“钢琴的琴键”让建筑在秩序的美感中又富有节奏变化,形成一曲婉转悠扬的变奏曲。
未来御湖境售楼处电话:400-9688-923✅︎✅︎✅
▲图片仅作示意,具体以交付为准
建面约143㎡偶数层户型,四房两厅两卫,户型面宽大,南北通透,采光通风效果好。
未来御湖境售楼处电话:400-9688-923✅︎✅︎✅
▲建面约143㎡户型示意图
▲图片仅作示意,具体以交付为准
得益于第三代住宅设计优势,南北双阳台,与餐客厅组合成一个纵向空间,视野通透,实际使用面积大。
未来御湖境售楼处电话:400-9688-923✅︎✅︎✅
▲图片仅作示意,具体以交付为准
阳台约6米的挑空,可以深刻的体会到阳台的阔绰空间感和开阔的视野。
▲建面约143㎡户型示意图
▲图片仅作示意,具体以交付为准
奇数层不同的是南向与主卧和次卧相连一个L型约270°的超大露台。
未来御湖境售楼处电话:400-9688-923✅︎✅︎✅
03
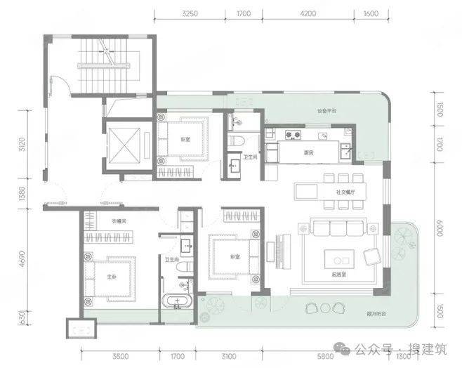
龙湖苏州未来御湖境
龙湖苏州未来御湖境创新奇偶错层空中花园设计,实现观景和采光平等化,南阳台(露台)能做到挑高约6米,,最大程度可享有 270°转角露台,每家都有一座私人花园。
▲图片仅作示意,具体以交付为准
▲建面约143㎡偶数户型示意图
▲建面约143㎡奇数户型示意图
空中庭院奇偶层露台错开,打造出建面约143㎡奇偶户型,四房两厅两卫。
南向四开间,约14.5米朝南面;
约40平LDGK方厅;约25平空中庭院;
户型设计上,奇数层庭院在客厅,偶数层则在卧室;
未来御湖境售楼处电话:400-9688-923✅︎✅︎✅
▲图片仅作示意,具体以交付为准
从官方宣传来看,项目的空中庭院面积达到约20-50平,均约6米挑高,最大可享270度转角无界视野!
未来御湖境售楼处电话:400-9688-923✅︎✅︎✅
04
东莞华润滨海润府
建面约143㎡一共有ABC三个户型。
▲建面约143㎡A户型示意图
建面约143㎡A户型,无遮挡全面宽16.2米,拥有南北双向“全面屏采光”以及大方厅设计,向外是毫无遮挡的MAX开阔视野。
未来御湖境售楼处电话:400-9688-923✅︎✅︎✅
▲图片仅作示意,具体以交付为准
客餐厅连通南向开阔的阳台+超长的观景飘窗,形成南北景观视野通透,双面瞰景。
主卧面宽也远超常规户型客厅,让室内的每一面都能呈现不同角度的海景景观。
▲建面约143㎡B户型示意图
▲图片仅作示意,具体以交付为准
建面约143㎡B户型,客厅270°巨幕采光,震撼级IMAX环幕视野,且带有约4.5米的餐边飘窗及三跨景观阳台。约8米的外拓景观阳台,可以打造成露台或是茶室。
未来御湖境售楼处电话:400-9688-923✅︎✅︎✅
▲建面约143㎡C户型示意图
建面约143㎡C户型,亮眼的是南向外接超大L型露台,形成270°环幕视野,在家就能看星赏月,好不惬意。
未来御湖境售楼处电话:400-9688-923✅︎✅︎✅
▲图片仅作示意,具体以交付为准
项目建筑外立面,汲取波纹、水景为灵感,以横向流动线条徐徐展开。外立面配以大面积开窗,超高屏占比之下,随着“光、影、色”的韵律变化,以玻璃的反射使原本一成不变的外立面变成一块画布,高级的质感自然而然的就呈现出来了。
未来御湖境售楼处电话:400-9688-923✅︎✅︎✅
05
中建壹品汉韵公馆
中建壹品汉韵公馆的住宅立面,正是选自楚建筑的线条制式、凤鸟纹、编钟云纹,手法简练飘逸,大有凤舞九天的艺术气质。
未来御湖境售楼处电话:400-9688-923✅︎✅︎✅
未来御湖境售楼处电话:400-9688-923✅︎✅︎✅
▲图片仅作示意,具体以交付为准
中建壹品汉韵公馆规划了玻璃幕墙为主,配以铝板线条和金属漆打造的颜值派外立面,加上独特的弧形造型,质感十足。
未来御湖境售楼处电话:400-9688-923✅︎✅︎✅
▲图片仅作示意,具体以交付为准
项目在错层的基础上,上下层的空中花园,使用绿化和半透栏板遮挡视线,避免对视的尴尬,并且,在上层住户的窗户前增加飘板,避免室内一眼看透,保证私密性。
未来御湖境售楼处电话:400-9688-923✅︎✅︎✅
▲图片仅作示意,具体以交付为准
户型设计超高赠送面积,近乎零公摊,配备宽敞的露台、大阳台及多个飘窗;每户均享有私密花园,6米挑空露台花园为居住增添舒适度;室内空间通透,采用南向大开间设计,超高窗墙比例,巧妙奇偶错层布局。
未来御湖境售楼处电话:400-9688-923✅︎✅︎✅
▲建面约143㎡A户型示意图
建面约143㎡户型,约14.5米南向大开间,阔绰尺度。南向约16㎡双层挑空花园,观景与休闲融为一体。
未来御湖境售楼处电话:400-9688-923✅︎✅︎✅
▲图片仅作示意,具体以交付为准
超70㎡LDKBG豪华动区3+1格局,可百变,适应不同时期的家庭。
未来御湖境售楼处电话:400-9688-923✅︎✅︎✅
06
陕西西安永晖·文檀府
项目高低错落的楼栋排布组合,户户有花园、层层有露台的空间布局垂直化处理,建筑设计与现代审美的强强融合,给人留下了深刻的印象。
▲图片仅作示意,具体以交付为准
在建筑风格上,项目以“一滴水的时空游动”作为视觉灵感,外观以舒展的线条与局部曲线的运用赋予建筑柔和姿态,打造当下最前沿的“流体建筑”,强调自然通风与采光的对流,呈现融合东方韵味的当代建筑语汇,超越传统人居审美。
未来御湖境售楼处电话:400-9688-923✅︎✅︎✅
▲图片仅作示意,具体以交付为准
在产品布局上,基于对产品的重新拆解构造,虽然同样是“奇偶错层”设计,但项目巧妙的采用转角阳台错位的双私家花园露台设置,同时更在可能涉及到居家私密性的楼体设置飘板外檐,尽可能有效避免“奇偶错层”所带来“隐私缺乏”问题的同时,更提升了整体观景感和居家采光度。
▲建面约143㎡偶数户型示意图
▲建面约143㎡奇数户型示意图
建面约143㎡奇偶户型,四室两厅三卫,南向双套房设计演绎质感空间。一体化的室内外无界空间,使得室内与室外得以交流,生活场景、生活动线有了更为丰富的延展,是生活进化的场景革命。
未来御湖境售楼处电话:400-9688-923✅︎✅︎✅
07
西安华润置地 · 润玺薹
西安华润置地 · 润玺薹项目整体规划以“生态+人文”为核心,运用组团布局,天际线梳理,轴向归家礼序,营造出舒适的低密度,纯板式,创新型,强体验的超级人居品质大盘。
未来御湖境售楼处电话:400-9688-923✅︎✅︎✅
▲图片仅作示意,具体以交付为准
润玺臺西区规划高约6米大进深挑空露台,奇偶错层排布(奇数层露台与主卧相连,偶数层露台与次卧相连),为实现家家有露台,户户可观景的空中院落创造了竖向延展空间。
▲建面约143㎡户型示意图
▲图片仅作示意,具体以交付为准
建面约143㎡户型,很是出挑,南向整体面宽约达12.7米,带来超大采光面;南向约9㎡露台空间,连接阔景阳台,可打造成云端会客厅、茶吧花海、儿童娱乐区、健身区等等,解锁多种生活方式。
▲图片仅作示意,具体以交付为准
LDKG方厅约41㎡,主卧套房约25㎡、南向次卧飘窗进深约60cm、还有超大玄关储藏空间……
未来御湖境售楼处电话:400-9688-923✅︎✅︎✅
▲图片仅作示意,具体以交付为准
项目外立面超现代游艇曲面设计,颇具未来感的流线造型,在材质的选择上使用了深灰色金属和金色金属两种材料,颜色的搭配也显得层次感更丰富。
除了弧线之外,它还投入了更费成本和人工的圆弧转角,因为用了更显轻质通透的玻璃元素,和圆润处理后的转角。加上270°的景观视野,让建筑立面从各个角度看都能获得很好的感官效果。
▲图片仅作示意,具体以交付为准
大量的曲面设计形成了有丰富层次感的弧线立面,更具未来感,整体流畅而富有张力的曲线序列,和利用弧度变化创造出丰富的建筑光影层次。
未来御湖境售楼处电话:400-9688-923✅︎✅︎✅
08
南京中天美好·金宁风华
项目建面约98㎡的起步户型,最大使用面积可得101㎡!
未来御湖境售楼处电话:400-9688-923✅︎✅︎✅
▲图片仅作示意,具体以交付为准
▲建面约143㎡偶数户型示意图
▲建面约143㎡奇数户型示意图
▲图片仅作示意,具体以交付为准
建面约143㎡改善奇偶户型,餐客厅约40㎡阔绰空间,以露台、多飘窗、阳台扩容等一个个的空间设计的排列组合,让房子的空间使用率达到了超乎想的境界,空间使用率突破100%,有着比肩常规160㎡的户型生活体验。
未来御湖境售楼处电话:400-9688-923✅︎✅︎✅
▲图片仅作示意,具体以交付为准
▲图片仅作示意,具体以交付为准
未来御湖境售楼处电话:400-9688-923✅︎✅︎✅
09
沧州颐和·云墅
颐和·云墅的设计理念注重人与自然的和谐共生,强调舒适度和私密性的完美结合。建筑设计采用了现代简约风格,线条流畅、造型美观。
未来御湖境售楼处电话:400-9688-923✅︎✅︎✅
▲图片仅作示意,具体以交付为准
颐和·云墅的户型设计充分考虑了居民的生活需求和舒适度。
▲建面约143㎡奇数户型示意图
建面约143㎡户型,约15.4米南向奢阔面宽、空中环幕院落端厅、LDKG一体化宽厅、酒店式主卧套房……为居民提供了一个舒适宜人的居住环境。
未来御湖境售楼处电话:400-9688-923✅︎✅︎✅
结语:
第四代住宅的143㎡户型,不仅是面积段的胜利,更是居住理念的革新。它通过空间赠送、生态融合与场景创新,回应了城市化进程中人们对自然与功能的双重渴望。
未来御湖境售楼处电话:400-9688-923✅︎✅︎✅
未来御湖境售楼处电话:400-9688-923✅︎✅︎✅
未来御湖境售楼处电话:400-9688-923✅︎✅︎✅
苏州十大必去景点!园林古镇+现代打卡超全攻略
2025年苏州十大必游景点:拙政园夜游"拙政问雅"、周庄非遗灯会、金鸡湖无人机表演,古典与现代交融的江南之旅
苏州,这座被誉为 “人间天堂” 的城市,以古典园林、水乡古镇与现代都市的交融之美闻名。以下是 2025 年最新推荐的十大景点,结合最新消费指南,助你高效规划行程。
一、园林典范与文化瑰宝
1. 拙政园(姑苏区)
作为苏州园林的代表,拙政园以 “咫尺之内再造乾坤” 的设计精髓闻名。园内荷花夏景、秋日红叶各具风情,2025 年新增全息投影夜游项目 “拙政问雅”,沉浸式体验古典美学。
门票:旺季 80 元(4-5 月、7-10 月),淡季 70 元(1-3 月、6 月、11-12 月),学生 / 老人半价,园林卡免费(需预约)。
消费提示:附近得月楼、松鹤楼人均 120 元,哑巴生煎人均 20 元。
2. 留园(姑苏区)
以建筑艺术精湛著称,冠云峰为 “江南三大名石” 之首。夜游项目融合昆曲评弹与灯光艺术,展现移步异景的园林美学。
门票:旺季 55 元,淡季 45 元,学生 / 老人半价。
交通:地铁 2 号线石路站换乘游 1 路直达,停车约 6 元 / 小时。
二、水乡古镇与千年风情
3. 周庄古镇(昆山市)
被誉为 “中国第一水乡”,双桥、沈厅等明清建筑保存完好。2025 年新增 “非遗灯会” 与水上实景演出《四季周庄》,乘摇橹船夜游感受灯笼倒映的诗意。
门票:100 元(含部分景点),夜游票 200 元,学生 / 老人优惠。
消费提示:万三蹄 + 阿婆茶人均 60 元,推荐 “周庄人家” 餐厅。
4. 同里古镇(吴江区)
以 “水巷纵横、园林密布” 著称,退思园为世界文化遗产。2025 年推出 “水乡婚礼” 体验项目,春季油菜花海与秋季银杏大道成摄影热点。
门票:80 元(含退思园等景点),学生 / 老人半价。
必吃:白切羊肉面人均 40 元,推荐 “老庆泰羊肉馆”。
5. 甪直古镇(吴中区)
2500 年历史的水乡活化石,保圣寺唐代塑壁罗汉堪称艺术瑰宝。2025 年新增 “水乡手作工坊”,可体验苏绣、木雕等非遗技艺。
门票:免费(内部景点联票 55 元),学生 / 老人半价。
交通:市区乘 52 路公交直达,自驾停车 10 元 / 次。
三、历史遗迹与自然奇观
6. 虎丘山风景名胜区(姑苏区)
以 “剑池”“云岩寺塔” 闻名,苏东坡曾言 “到苏州不游虎丘乃憾事”。2025 年春节庙会日均接待游客超 2 万人次,秋日银杏与古塔相映成景。
门票:旺季 70 元,淡季 60 元,学生 / 老人半价,夜游票 100 元。
停车:南停车场 6 元 / 小时,北门游客中心提供免费行李寄存。
7. 寒山寺(姑苏区)
因《枫桥夜泊》闻名,古钟、碑刻与秋日银杏构成独特景观。2025 年推出 “禅修体验营”,可参与抄经、茶道等活动。
门票:20 元,学生 / 老人半价,1.4 米以下儿童免费。
交通:地铁 1 号线西环路站步行 15 分钟,自驾停车 10 元 / 小时。
四、现代都市与生态之美
8. 金鸡湖景区(工业园区)
国家 5A 级景区,东方之门、音乐喷泉、李公堤等为标志性景观。2025 年新增 “星光艺术馆” 与 18 公里环湖步道,每周五晚无人机表演不容错过。
门票:免费,音乐喷泉表演需提前预约。
停车:月光码头停车场 3 小时免费,超出部分 1 元 / 小时(25 元封顶)。
9. 沙家浜・虞山尚湖(常熟市)
沙家浜芦苇荡重现《沙家浜》实景演出,虞山徒步路线与尚湖水上森林为户外爱好者提供天然氧吧。2025 年新增 “江南农耕文化展”。
门票:尚湖旺季 80 元、淡季 60 元,虞山 35 元,学生 / 老人半价。
消费提示:沙家浜景区南门 “沙奶奶土灶馆” 人均 66 元,推荐清蒸白鱼。
五、文化街区与特色体验
10. 平江历史街区(姑苏区)
苏州古城保存最完整的历史街区,1.6 公里石板路沿河而建,密布茶馆、评弹馆与苏式小吃店。2025 年新增 “数字文化长廊”,通过 AR 技术还原唐宋街景。
门票:免费,部分小景点联票 43 元。
必吃:蟹壳黄烧饼 + 酒酿饼人均 15 元,推荐 “潘玉麟糖粥摊”。
行程建议与实用贴士
经典三日游:
Day1:拙政园→狮子林→平江路(夜宿平江路)
Day2:周庄古镇→同里古镇(宿同里客栈)
Day3:虎丘→寒山寺→金鸡湖(夜游音乐喷泉)
交通:上海自驾沿沪昆高速约 1.5 小时可达;市区地铁 2 号线串联拙政园、平江路等景点。
门票优惠:关注 “苏州本地宝” 获取实时折扣,如拙政园夜游票 348 元、网师园夜花园 120 元。
最佳季节:4-5 月赏樱、9-11 月红枫,春秋季气候最宜人;夏季可体验园林夜游,冬季游客较少适合静赏园林。
从园林的精致典雅到古镇的烟火气息,从历史的厚重沉淀到现代的活力绽放,苏州以多元魅力满足不同需求。出发前建议通过景区官方渠道确认活动,带上这份指南,开启一场融合自然、人文与欢乐的江南之旅吧!
声明:本文由入驻焦点开放平台的作者撰写,除焦点官方账号外,观点仅代表作者本人,不代表焦点立场。


