上海虹口越秀外滩樾(越秀外滩樾售楼处电话)官方营销中心电话_来电预约看房_2026楼盘测评-最新房价
扫描到手机,新闻随时看
扫一扫,用手机看文章
更加方便分享给朋友
⭐ 新年安家,我们为您保驾护航! ⭐
越秀外滩樾售楼处电话:400-8118-224【预约看房热线】 越秀外滩樾官方售楼处电话:4008118224【售楼处电话/地址】 越秀外滩樾售楼处电话:400-811-8224【开发商认证】
别再犹豫,您的理想家园,从这通电话开始!
【越秀外滩樾】北外滩风貌别墅「越秀·外滩樾」推出建面约238-338㎡海派院墅,总价约4000万起,样板间开放中,预约可看!
越秀外滩樾售楼处预约热线:400-8118-224✅✅✅
虹口北外滩 低密风貌别墅
越秀地产&临港集团联合打造
「越秀·外滩樾」
建面约238-338㎡海派院墅
户型:238/305/318/338
总价约4000-9000万
目前“样板间”开放中
实景图&效果图


「越秀·外滩樾」项目地块四至范围, 东至:梧州路,隔壁是中皇广场; 西至:hk270B-02,隔壁就是1933老场坊; 南至:周家嘴路 北至:柘皋路。
项目将呈现49套低密风貌里弄住宅,面积约238-338㎡。

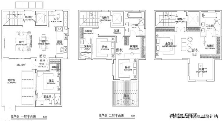
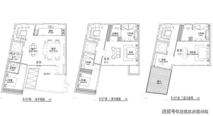
户型图如下:(过程稿仅供参考,最终以实际为准)





基础信息
【项目名称】越秀·外滩樾
【开发商】上海漕越经济发展有限公司
【项目位置】上海市·虹口区·梧州路235弄
【项目类别】70年产权住宅
【项目类型】风貌别墅
【可售户数】48套(风貌)
【容积率】约1.3
近两年虹口、黄浦、静安核心区风貌别墅相继面世,是对上海整个住宅或者说整个豪宅市场的命运改写和价值颠覆!
一方面,风貌别墅的珍贵,真谛不在于仿古,而是将特定时期的特殊历史基因通过建筑形式留存,转化成当代生活的诗意载体。
另一方面,目前我们能看到做的比较好的风貌别墅,地段非富即贵,在上海,这种级别的豪宅本身具备传承意义,拥有比普通豪宅更高的价值属性。
01
「越秀·外滩樾」
上海风貌别墅翘楚
风貌别墅在上海,即便同样选址最核心的地段,同样打造顶级产品,内里也有着非常具象的等级之分。
一是来源于紧俏供应与“尖货”稀缺的双重重压。
“物以稀为贵”在上海豪宅市场已经成为了几十年不变的法则,风貌别墅更是如此。
其初始地块来源的成片二集以下旧里,经历了百年时间更迭,才有了这几年的集中城市更新,按计划今年年底前会全部完成。

换句话说,在今年结束这一轮城市更新之后,上海可能未来几十年都不会再有风貌别墅的土地出让。
而且,已知的市面上部分风貌地块,也并非都是别墅,还有相当一部分是商业、保留建筑、还有高层/洋房类产品。
更可况,在当下,盘点整个上海所有已入市的风貌,越秀·外滩樾作为以双拼&三拼为主的偏现代风的风貌别墅,稀缺性稳稳排进前三!
二是来源于历史传承和现代精神的极致对冲。
追溯上海石库门发展历史,早期传统的石库门住宅蕴含了许多时代特征,多样化的门头设计、老虎窗、山墙等建筑元素,都是建筑美学的典范。
但随着时代发展,进阶版的风貌在传承的基础上革故鼎新,动态衍生出了许多新的居住要求和审美需求,而越秀·外滩樾对当下的这个变化其实是很敏锐的。
这个如果大家到了现场就会很清晰的感知到:
例如,在社区入户,目前已经完美呈现出来的,有强烈视觉冲击的立面大量的红砖、红洞石及大面积的落地弧形玻璃搭配的相得益彰,整个门头既有厚重的历史感,又不失极简主义的现代美。
又例如,在“砖”这种材料的运用上,越秀·外滩樾更是做到了极致!用了老砖、陶砖、釉面砖和御窑金砖四种砖。
老砖是百年历史传承、陶砖是技艺上的推陈出新、釉面砖是现代美感与实用的碰撞、御窑金砖是定制的家族印记!
在这样量级的项目上,单个的用材或许算不上特殊,但这样的历史厚重感再加上事无巨细的细节打磨,意味着上海市中心终于出现真正具有传承意义的风貌别墅!
这是本质上填补了豪宅市场一种特殊供应的空白
也是越秀·外滩樾真正在为上海创造出现风貌尖货作品的可能!
三是来源于核心地段继往开来的城市光环。
关于越秀·外滩樾所在的虹口北外滩,目前已经成为上海能级最高的规划之一。
根据规划细则,这里将建设约480米高的上海北外滩中心,未来将与其他17栋180米以上的超高层建筑群,共同构筑起浦西最美天际线,业态更为丰富,产业结构也更为稳健。
北外滩与陆家嘴超高层建筑群、外滩万国建筑群,共同构成“黄金三角”。
而且,与陆家嘴、外滩相比,北外滩的建造速度更快,部分地标建筑已经屹立江边,成为上海新的天际线,世界级会客厅已然初显峥嵘!
当然,很多人不知道的是,上海的开源也是从北外滩开始。
从早期的万国领事馆、到国内文豪学者的聚居地、北外滩承担了经济、文化、甚至军事交流职能,这里曾是世界了解中国的窗口,也是中国走向世界的开端。
最早的船厂、路灯、电话、电影院、证券交易所其实都在这里。
可以毫不夸张的讲,上海从开埠至今,虹口北外滩始终是上海真正的中心!

要说内环目前现有的历史风貌区,虹口北外滩一定是正统所在。
这就注定了,越秀·外滩樾这种产品,不止在上海特定核心区才有,在全国更是不会、也不可能复制出来。
所以它不止承接上一个百年,更是引领下一个百年的居住领袖。
02
越秀·外滩樾
或引领居住的下一个百年
当然,众所周知,风貌别墅这类产品,必须要完成一定程度的财富积累之后才可以实现,这样的群体不止上海非常少,放在全国也凤毛麟角。
而住宅对他们来说并非是一个简单的居所,不是一个简单的房子,更是精神的栖息地。
仔细看越秀·外滩樾,任何角度,都在将这个思路执行的彻彻底底。
市面上目前的大多风貌别墅,都有的通病,越在核心位置,地块越不规整,窗墙比受限越多,造出来的别墅普遍逼仄。
越秀·外滩樾从拿地到建筑的设计建造,从公共区域到内部空间,都积极解决了传统风貌别墅存在的弊端!
1、原始地块规整,带来“类独栋”居住体验
作为精心调研后选址的地块,越秀·外滩樾本身地块就非常规整,可塑造性极强。
再加上在精密计算土地、套数、面积占比之后,呈现出了工字排布的效果:
这样一来,让更多的客户实际感受就是双拼/三拼的效果,非常接近接近类独栋感觉。
2、提升窗墙比,最大尺度增加室内采光
以往风貌别墅中,出于保护建筑外立面规则,窗墙比带来的采光面小是一个很大的硬伤。
但在越秀·外滩樾,展现给我们的是则是大窗墙比、大开间、大尺度!
从定制的转角曲面玻璃墙,到全落地玻璃窗,每一个细节都在把自然光线无限拉进室内!
3、空间有限,那就创造更多可能
上海市中心寸土寸金这个概念不用笔者强调,所以,现在即便是几千万的豪宅项目,只要位置好,容易忽视会所或公共空间的营造。
但越秀·外滩樾想为未来业主做的,只有更多。
为了使我们在稀缺的地段营造稀缺的资源,把生活的想象现实化,越秀·外滩樾还在会所引“山水入园”。在空间有限的情况下,进行垂直空间的挖掘,营造了坡道景观、山水庭院和会所。
不仅设计感十足,也颇费心力的将生态和自然带入了城市居所之中:
这里的山石墙选自深山的原石,是具有丰富经验的匠人手工钻凿;
这里选用的子母松也是从松林中精心选取,符合山水中庭尺度且姿态优美的树株;
这里还遍布了与“山”景呼应、自地面叠层的垂瀑和水景······
再用不同的标高引自然光线入园,不止提升了采光效果,同时也让整个庭院景观更加垂直立体,更好的放大了观赏效果。
像这样能在市中心打造出大面积有山有水的山野自然景观,又遇上了地块肌理的天赋异禀。
已经赢在了起跑线,和市面上普通风貌项目对比,越秀·外滩樾明显已经进入了下一个Level!
03
仪式感会所只是基础色
“顶奢化”生活演绎才是绝学
当然,提到风貌别墅,逃不脱的一个话题就是脱离大众产品、拒绝平庸感。
越秀·外滩樾更不例外。
从笔者前面提到的第一重会客空间、到第二重的艺术空间,再到面积更大,更加私密,功能性更复合的第三重会所空间,越秀·外滩樾的取材和对未来生活体验的思量都极为考究。
第一重-堂前会客,这里首先营造了满满的社区入户的仪式感,通过红色陶砖与红洞石以及大面落地玻璃营造出了层次丰富的艺术立面。营造业主在家庭空间以外进行接待交往的处所。
不仅视觉美感突出,每一步的取材、工艺细节也与环境相融的恰到好处,尽显格调!
第二重-樾下会友
这个空间位于整个地下的b1层,未来,北区会作为艺术展览区,南区专业健身房,兼具实用性和审美需求。
特别是豪宅类社区,一定会需要一个邻里交互和会友空间,那艺术就会是比较好的一个载体,可以更好的建立起链接。
第三重:言上会己
这一层的会所空间,场景更为丰富、适用场景更多,也更加家庭化。
在约1000㎡的会所内,包含泳池、私宴、休闲吧等功能区,是打造给业主取悦自己的空间,在这里可以享受足够的放松,各个空间的穿透也保证了不同空间的一家人可以互动交流。
即便是豪宅中经常会做的泳池,越秀·外滩樾也要做到极致。
造型别致的罗马浴场风格和我国宋代名画《溪山行旅图》在这里完美碰撞,再加上项目很巧思的在泳池上方做了天窗,引进了自然光线,呈现出非常独特的美感。
而且,这三重空间,从接待应酬到家庭空间的延展,都有物理区隔,未来业主可以随心把控社交尺度,仪式感和对生活的掌控都可以握在自己手里!
风貌或许大家都在做,也都可以做,但越秀·外滩樾的考量,远远超出了一个高端住宅本身。
能把未来业主生活前置化、细节化,呈现的这么理想的,目前可能也就越秀·外滩樾能做到。
本质上它更像是一件传家宝。
记录了一个大家族的过往和历史,又给未来提供了诸多新的可能,回顾生活却又高于生活。
【项目简介】
项目傲立“一江一河”交汇处(直线距离约1.1KM),未来将打造成为彰显上海城市核心竞争力的黄金水岸和具有国际影响力的世界级城市会客厅,出入之间,相逢城市高阶未来。
(*示意图,图片来源于网络)
【北外滩 面向世界的上海新封面】
北外滩,与外滩、陆家嘴并称为上海的“黄金三角”。将以2座陆家嘴的商务体量规划,新天地2.0生活圈打造,成为上海跃升世界舞台的“中心发力”新引擎。
(*示意图,图片来源于网络)
【中央商务区 未来上海腾飞引擎】
区域能级:总开发面积约840万方,40栋甲级写字楼城市地标:480米浦西第一高楼,19栋摩天大楼集群金融产业:2100+家金融企业赋能,资产管理规模超8万亿元,位居全市第一航运格局:4500+家航运企业集聚(上港集团、中远海运等),打造国际航运中心全球贸易:2500+家贸易企业入驻(摩亚方舟、银联商务等)新兴产业:129家新增高新技术企业,113家市区科技小巨人企业(数据来源:上海市规划局《北外滩地区控制性详细规划》)
(*示意图,图片来源于网络)
【立体交通 | 无界畅达世界 擎动城市脉搏】
全城畅达:
约360米新建路隧道(直线距离),快速直达陆家嘴CBD;
约670米外滩隧道(直线距离),直达外滩金融商业街以及老码头;
约150米北横通道(直线距离)贯通全城,快速通达虹桥机场/虹桥火车站;
约2.4公里大连路隧道(直线距离),直达浦东东方路、世纪大道、八百伴商业圈
四轨交汇:
轨交4/10号线海伦路站约850m(直线距离),3站南京东路,6站新天地。
(*交通路网示意图,仅供参考。本区位图仅用于本小区地理方位示意,非实际地图,相关信息并非按比例缩放。)
【核心商圈 | 高阶商业配套 国际摩登领潮】
商业配套方面项目约2公里内,多元繁华构筑封面商业圈
北外滩商圈直线距离约500米;
外滩商圈直线距离约1000米;
陆家嘴商圈直线距离约1500米;
瑞虹商圈直线距离约900米;
(*商圈距离示意图,仅供参考。本区位图仅用于本小区地理方位示意,非实际地图,相关信息并非按比例缩放。)
【高端医疗 | 优质三甲医院 护航健康生活】
三公里内四所三甲医院,全生命周期护航
新华医院(儿科专长);
复旦大学附属妇产医院;
上海市第一人民医院;
上海东方医院(血管外科专长);
【学府荟萃 | 全龄教育培优 一脉书香传承】
幼儿园:约1公里内6所幼儿园(直线距离),涵盖东余杭路幼儿园等3所示范级学校;
小学:约1.5公里内5所小学(直线距离),涵盖区重点四川北路第一小学;
中学:约1.6公里内6所中学(直线距离),1所市重点、2所区重点。一路之隔上海虹口二中心小学(在建中),约2.3公里市重点上海外国语大学附属外国语学校(直线距离)*施教区及就学政策以教育部门规划为准
(*示意图,图片来源于网络)
【滨江低密 | 丰盈自然绿地 城市诗意回归】
2.5公里北外滩滨江绿地(约800m直达),四川北路公园、和平公园、鲁迅公园3大公园环伺,于滨江和城市低密绿芯之间,肇启当代诗意生活传序。
(*示意图,图片来源于网络)
程绍正韬,建筑室内设计之东方主义集大成者,致力于东方文化的坚守与创新。他打破惯常的职业思维,将生活方式化作一种哲学态度,融入空间设计,让设计不止于作品。
李玮珉,撑起中国豪宅设计半壁江山,擅长为城市塑造文化符号建筑作品。他的作品更多用极简的方式来表明态度,崇尚简而高效的现代生活方式。庄重的建筑语汇,适时注入艺术、自然与美学,让空间充满想象力。
复刻百年前的高端工艺元素,让海派造诣世纪传承。清砖立柱、古典门头、封闭门窗、岩石山墙等经典海派建筑风貌转译,于历史和未来之间收藏百年上海。
(*本图片仅为方案过程讨论稿,并非交付标准。)
【41载越秀 | 万亿级开发商 与上海共卓越】
国内资产规模最大的地方驻港企业之一越秀地产,中国第一代商品房缔造者。41年越秀,30城300+项目,服务超100万业主;2023年销售额行业排名12,2023年TOP20销售业绩增长率最高房企。2024中国房企综合实力TOP9。入席北外滩世界会客厅,与上海共生长。(数据来源:克而瑞地产研究发布榜单《2023年1-12月.中国房地产企业销售榜top200》)

虹口北外滩 低密风貌别墅
越秀地产&临港集团联合打造
「越秀·外滩樾」
建面约238-338㎡海派院墅
户型:238/305/318/338
总价约4000-9000万
房产知识
房地产基础专业知识
1、房地产:指房产和地产的总称(又称不动产)。
2、房地产的三种存在形态:
单纯的土地、单纯的房屋、土地房屋的综合体
3、房地产的特征:
a、房地产位置的固定性(土地不可移,房屋 也不可动);
b、房地产地域的差别性(每宗房地产的价值都不同);
。c、房地产的高值、耐久性(价格贵、土地永久的);
d、房地产的保值、增值性(货币贬值、房产保值、货币增值、房产增值);
4、房产:是房屋及其权利的总称(占有、使用、收益、处分等权利)。
5、房屋分类:
a、功能用途:居住用房(小区、高品住宅)、工业用房(厂房、仓库)、商业用房(门面、商场)、办公用房(写字楼)、行政用房(军事、学校等单位用房及城市);
b、建筑结构:钢结构、钢筋混凝土结构、砖混结构、砖木结构和其他;
c、所有权归属:公房(直管公房和自管公房等)和私房;
6、地产:是土地及其权利的总称(使用、收益、转让等权利)。
7、土地分类:
a、开发利用:生地和熟地;
b、建筑功能:建筑用地和非建筑用地;
c、用途:居住用地、商业服务用地、工业用地、仓储用地、市政公共设施用地、交通用地、绿化用地、特殊用地等;
8、房地产业:指从事房产开发、经营、管理和服务的行业。包括:
a、土地开发;
b、房屋建设、维修、管理;
c、土地使用权的有偿划拔、转让;
d、房屋所有权的买卖、租赁;
e、房地产抵押贷款;
f、房地产市场;
9、土地使用权:就是土地所有者根据土地分类对土地加以利用的权利(指依法对土地经营、利用和收益的权利)。土地公有制采取了两种形式:即集体所有制和国家所有制。a)农村土地采用了集体所有制,属于农民集体所有;b)城市土地采取国家所有制的形式,属于全民所有;任何个人不能取得土地的所有权。
土地使用获得的方式:
划拔:无偿使用,如学校、医院、军事用地、机场等市政建设工程;
出让:从国家有偿取得使用权,方式:协议(如200-250万/亩)、招标(提出底价,根据使用用途和价格取得)、拍卖(价高者竟得,不违法的前提下,通过正规渠道取得);
10、房地产市场:
a、一级市场:以土地为体(亦称土地市场、土地交易市场);
b、二级市场:开发商获得土地后,投入一定的奖金建设,通过有偿或赠与将产权转买给需求者(新建商品房的买卖市场);
c、三级市场:房屋在消费市场的再次流通,包括:买卖、抵押、转让、租凭(二手房);
房地产市场结构善一览表:
市场称谓
一级市场
二级市场
三级市场
称谓
土地使用权出让市场
土地使用权转让市场、增量商品房市场、住房一级市场等
土地使用权转让市场、存量商品房市场、二手房市场、住房二级市场等
市场主体
政府、开发企业(投资者)
开发企业、业主
业主
市场客体
国有土地使用权
增量商品房
存量商品房、已售旧公房、私房
交易方式
拍卖、招标、协议
出售、出租等
买卖、租赁、交换等
11、土地使用权出让:指国家以土地所有者身份,按指定地块的使用年限、用途和城市规划等条件,将城市土地使用权出让给土地使用者,并向土地使用者收取土地使用权出让金的行为。出让交易双方是国家和用地单位或个人。
12、土地产权:包括土地所有权、地上权、地役权、抵押权、典权、租赁权。
地上权:指以支付租金为代价在他人土地上建筑房屋的权利,它的实质就是土地使用权;
地役权:指利用他人土地供自己使用的权利;
抵押权:指土地使用权获得者在其有效的使用期限内有以土地作抵押获取银行贷款或其他担保的权利;
租赁权:指土地使用权获得者在其有效使用期限内将土地租给他人使用以获取收益,承租人即取得该块土地的租赁权;
13、土地使用年限:指国家将土地使用权出让给土地使用者,双方约定土地使用者可以使用的年限。
1)土地使用权出让年限:
a、居住用地70年;
b、工业用地、教育、科技、文化卫生、体育及综合或其他用地50年;
c、商业、旅游、娱乐用地40年;
PS:使用用途需转换的要补年限地价的差价,国家指定的则遵照执行;
2)土地使用年限到期后如何处理:
a、国家有权无条件的收回该土地;
b、建筑主体经质控部门检验后不属危房;
c、项目的存在不影响城市规划,不影响市容,只要向政府缴纳土地出让金可以继续使用。
PS:b、c条完全存在的情况下,以当时的地价购买使用年限,年限由政府规定,否则无条件收回;
14、商品房:开发商以市场地价取得土地使用权后进行开发建设,并经国土局批准在市场上流通的房地产,它是在获取房产证后,可自行转让、出租、继承、抵押、交换的固定资产。
商品房的物业类型:住宅、写字楼、商场、酒店、市场。
15、商品房的预售制度:五证二书
五证:〈国有土地使用证〉、〈建设用地规划许可证〉、〈建设工程规划许可证〉、
〈建设工程施工许可证〉、〈商品房预售许可证〉
二书:〈质量保证书〉、〈使用说明书〉、两书可以作为商品房买卖合同的补充约定,并且是房地产开发企业在商品房交付使用时向购房人提供的对商品房住宅承担质量责任的法律文件和保证文件。
16、烂尾楼:指未能完成施工中途停建的楼盘。造成楼盘烂尾的原因主要有资金不足、设计、施工存在严重质量问题,非常建设等。
17、楼花:指已经动工建造,但尚未建成的楼宇、房屋。即指图纸上的楼宇,处于建筑施工的最初阶段,离交房时间长,价格优惠,买了后又可转卖,赚差价。
18、炒楼花:买卖尚未建筑好的房屋。(现在政府有规定,商品房5年内不许转让,交5%的营业税,为了控制炒房)
19、期房:指具备预售条件,尚未竣工交付使用的商品房。(价格低、选择空间大、户型齐全、可监督建筑材料、质量)
20、现房:指已经工程质量监督部门验收,并取得质量合格证明文件,可以交付使用的商品房。(即买即入住、价格高、户型过时、选择空间不大)
21、经济适用房:指以微利价出售给广大中低收入家庭的商品房(带有社会保障性质的商品住宅,是有经济性和适用性)。不是人人可以买到,必须符合当地政府所规定的条件,经过排号购买。长沙房口,25岁以上,65㎡以内以经济价购买,65㎡以外以商品房价购买,5年后才能转卖)。
22、二手房:办好产权证,进行再次转让的房屋。其他如:公房、私房、集资房、廉租房、安置房等福利房。
23、诚意金:指商品房在未取得预售证之前,开发商收取客户的可退回的款项(一般可以获得开发商的折扣承诺)。
24、定金:指当事人约定由一方向对方付给的作为债权人担保的一定数额的货币(能担保债权人的作用)不能返还。
25、订金:不能担保债权人的作用,能返还。
26、玄关:登堂入室的第一张门进去的地方,开门区域。
27、公寓:指2层以上,供多户人家居住的建筑。
28、纯办公楼:专为各类公司日常运作提供办公活动的大楼。
29、综合楼:居家、办公、商场、集合一体的大楼。
30、商住住宅:SOHO,居家,办公于一体。
31、别墅:指在郊外或风景区建造的供休养,住宿用的花园住宅,TOWRHOUSE(联体别墅、单排别墅)。
32、SHOPPINGMALL:一站式购物,集购物、娱乐、休闲为一体的这么一个商业区域,起源于美国(也称第六商业业态)。
33、物业管理:指由专业公司或机构,接受业主(或使用人)的委托,对物业实话专业化管理,并向业主(或使用人)提供高效、周到服务的行为。
34、物业管理内容:对房屋及其附属设备管理、维修;对房屋区域内的清洁卫生、安全保卫、公共绿化、公用设施、道路等实施管理;向业主提供其他综合性或特约的服务等。物业管理属社区管理范畴。
35、业主大会:指由物业管理区域内全体业主组成的,对本区域内物业管理具有决定权的组织形式。
36、业主代表大会:由物业管理区域内业主代表组成的对本区域内物业管理具有决定权的组织。
37、业主委员会:由物业管理区域内业主代表组成,代表全体业主对物业实施自治管理的组织,由业主代表大会或业主代表选举产生。
38、一次性付款:指购房户在购买商品房时,在没有享受政策性贷款的情况下,将全部买房款一次性付给售房单位的付款方式。
39、分期付款:购房者签约后,将购房款分成若干比例,按时间段或按施工进度分批交纳房款(针对期房),交房时,款项全部付清。
40、银行按揭:指以购房合同或房屋产权作抵押获得购房贷款的方式。即购房者在购房时,向银行提出担保的质押文件,在银行审核通过后,取得房屋总价的部分贷款,依抵押约定,按期按时间段向银行偿还贷款本息,并提供房地产作为偿还贷款的担保(一般的购房合同和产权证作为抵押,住房:七成二十年;门面:五成十年或六年十年)。
41、公积金:“全称住房公积金”,指城镇住房制度改革中,国家机关、国有企业、城镇集体企业、外商投资企业、城镇私营企业及其他城镇企事业单位及其在职职工按国家规定缴存的,专项用于住房消费的资金(门面不行)。缴存比例:均不得低于职工上一年度月平均工资的5%,有条件的城市,可以适当提高缴存比例;缴存方式:一是由职工个人缴存;二是由职工所在单位缴存;
42、个人住房公积金贷款:指参加了住房公积金制度的职工,在购买、建筑、翻建和大修自住住房时,因资金不足愿以新购或其他住房产权作抵押而向住房公积金管理中心申请的贷款。
43、契税:指房屋所有权发生变更时,就当事人所订契约,按房价的一定比例,向产权承受人征收的一次性税收(普通住宅:2%、非普通住宅:4%)。
44、公共维修基金:指住宅、楼房的公共部位和公共设施设备的维修养护基金(普通住宅:2%;电梯房、门面:3%)。
45、生地:指未经开发,尚未开成建设用地条件的农地或荒地。
46、起价:即“起步价”是指物业所有房源中的最低销售价格(一般指户型、朝向、格局不好的楼房价格,各层的差价几十~几百元)。
47、基价:即“基础价”指经过核算而确定的每平方米商品房的基本价格。是针对房地产定价方法而言的,与起步价没有关系(楼层、朝向不同价格也不同)。
48、均价:即物业的平均销售价格,将本物业各套房子的销售价格相加之后的和除以各单位建筑面积的和数,即可得出每平方米的均价)。
49、成本价:指住房制度改革中,出售公有住房时按照建筑公有住宅的平均成本测定的价格。
包括:A、征地和拆迁补偿费;B、勘察设计和前期工程费;C、建安工程费;D、住宅小区基础设施建设费;E、管理费;F、贷款利息;G、税金;
二、建筑基础知识:
1、三通一平:是指在土地开发时进行的通水、通电、通路、土地平整。
2、七通一平:给水、排水、电力、通讯、燃气、热力、道路通和土地平整。
3、占地面积:红线范围内的面积。
4、建筑面积:指建筑物外墙(柱)勒脚以上各层外围水平投影面积之和,包括阳台、挑廊、地下室、室外楼梯等。
5、销售面积:指商品房按套出售,其销售面积为购房者所购买的套内建筑面积与应分摊面积的共有建筑面积之和。
6、使用面积:指住宅各层面平中,直接供住户生活使用的净面积之和(在住房买卖中,一般不采用使用面积来计算价格)。
7、公摊面积标准:指商品房销售中应分摊计入销售面积的商品房中公共建筑空间的面积,由两部分组成:一)室内外楼梯、内外廊、公共门厅、通道、电梯、配电房、设备层、设备用房、结构转换层、技术层、空调机房、消防控制室、为整栋楼层服务的值班警卫室,建筑物内的垃圾房以及突出屋面有围护结构的楼梯间、电梯机房、水箱间等;二)套单元与公用建筑空间之间的分隔以及外墙(包括山墙)墙体水平投影面积。
公用建筑面积分摊系数:公用建筑面积/套内建筑面积之和。
8、实用面积:建筑面积扣除公共分摊面积后的余额。
9、计租面积:住宅用房按使用面积计算,非住宅用房按建筑面积计算。
10、套内建筑面积:指商品房套内各部分建筑面积的总和。
套内建筑面积=套内使用面积+套内墙体面积+阳台建筑面积
套内建筑面积=套内使用面积/标准层的使用面积系数
11、容积率:总建筑面积/总用地面积(多层容积率大致为3,高层为5,超高层为7,别墅为0.3-0.45左右、容积率越低,居家环境越好、单价高、品质高;容积率越高,单价低、品质低)
12、建筑密度:基底面积之和/总占地面积*100%
13、绿化率:指项目规划建设用地范围内的绿化面积与规划建设用地面积之比。
公式:植被垂直面积/占地面积*100%
14、绿地率:所有住宅各类绿地面积与住宅总用地面积的比例。新区建设中不应低于30%,旧区改造时不宜低于25%(不包括屋顶、晒台的人工绿地)。
绿化覆盖率>绿化率(绿化所占面积)>绿地率
15、得房率:套内建筑面积/套建筑面积(销售面积)之比
套内建筑面积=套内使用面积+套内墙体面积+阳台建筑面积
套建筑面积=套内建筑面积+分摊的公用建筑面积
16、开间:住宅房子的横向宽度。进深:住宅的实际长度。
17、层高:指下层地板面到上层楼面的高度,包括楼板厚度,以米为单位。
18、净高:指层高减去楼板厚度的净剩值,即楼板上表面至上层楼板下表面的距离。
19、绿地面积:指能够用于绿化的土地面积,不包括屋顶绿化、垂直绿化和覆盖土小于2平方米的土地。
20、跃层式商品房:上、下两层楼,客厅为两层高,没有封。
21、复式楼:楼梯连接两层,客厅只有一层高。
22、错层:房内高度不一至,一米以内分离。
23、砖混结构:由砖和混凝土组成,承重墙(四面不能动,梁柱都不能动)。
24、框架结构:指以钢筋混凝土浇捣成承重梁柱,适合大规模工业化施工,效率较高,承重墙在梁柱,墙面可以自由打通。其次还有:砖木结构、钢筋混凝土、框简结构、钢体结构等。
25、房屋的耐用年限:指房屋能够维持正常使用的年限,与设计的标准、建筑的材料、施工质量、使用状况、维护保养相关。
钢筋结构:60-80年砖混结构:40-60年砖木结构:30-50年其他:15年以下
26、土地计量单位:
1平方公里=100万平方米(km2)1公顷=1万平方米(hm2)
1公顷=15亩1亩=667平方米
27、住宅的楼层划分的规定:
低层住宅为:1-3层多层住宅为:4-6层中高层住宅:7-9层
高层住宅为:10-30层超高层住宅为:40层以上
三、房地产开发相关知识:
1、房地产开发:在依法取得土地使用权的土地上按照使用性质和要求进行基础设施,房屋建筑的活动。它包括从定点选址到交付使用的全过程,由征地与拆迁安置、规划设计、供水、排水、供电、通电讯、通道路、绿化、房屋建设等多项内容组成。
2、土地开发:将生地(不具备使用条件的土地)开发成可供使用的土地。
3、房屋开发:由买得土地使用权的发展商,对土地进行平整,修路铺设上下水管道及热力网,然后建造各类房屋以及公共设施。
4、房地产二次开发:指先将生地开发成熟地(具备使用条件),然后再进行拍卖和出租,由买地者去建造房屋。
5、房地产一次开发:一次性边土地、房屋开发完成。
6、能源系统:包括供电、供热、供气(煤气、天然气、石油液化气)等设施。
7、给水、排水系统:包括取水工程、输水工程、净水工程、配水管网(上下水道),排水管网(下水道)、污水处理、排放工程。
8、土地国家所有权:指作为土地所有者的国家,对自己所有的土地依法享有占有、使用、收益和处分的权利。
9、土地集体所有权:指农村劳动群众集体经济组织,在法律规定范围内对自己所有土地享有占有、使用、收益和处分的权利。
10、房屋的所有权:对房屋全面支配的权利,包括:占有权、使用权、收益权、处分权。
11、土地所有权:指含有法律意义上和经济意义上的所有权双重含义。
法律意义:土地所有者将土地当成自己的财产,并将其实行占有、垄断、拥有对土地支配的权利。
经济意义:指土地所有者凭借对土地的垄断获得一定的经济收入的权利。
四、其它内容须知:
1、办理银行按揭合同需出示:
1)个人身份证及复印件各3份,结婚证或流动人口未婚证明;
2)首期购房款(不低于30%,二次购房者首付不低于40%)购房人已付购房款收据原件及复印件;
3)购房者或配偶单位的工资收入证明;
4)与开发商签订的购房合同;
5)开户银行开户的活期存折并含有3个月的按揭款;
6)个人住房借款合同,借款借据;
7)委托银行扣收购房房款协议书;
8)住房抵押承诺书;
9)贷款申请书。
2、办理银行按揭需交的费用:
1)保险费(保险费率1-10年0.5‰、11-20年0.45‰贷款额)(交保险公司);
2)抵押费,贷款额3‰(交房地产局);
3)律师见证费,贷款额1.8‰(交律师事务所);
4)备案登记手续费,每份合同20元(交房地产局);
5)印花税,每份合同10元(交房地产局);
6)按揭资料费,每份合同40元(交银行);
3、公积金提取条件:符合以下条件的可以一次性提取本人住房公积金帐户内的存储余额。
1)职工购买、建造、翻修、大修自住住房;
2)职工离、退休时;
3)完全丧失劳动能力,并与单位终止劳动关系的;
4)户口迁出所在的市、县或者出境定居的;
5)偿还购房贷款本息的;
6)房租超出家庭工资收入的规定比例的。
4、公积金贷款是有限额规定的:
1)贷款额不能超过25万元的最高上限;
2)贷款额不能超出你住房公积帐户储存余额的5倍;
3)贷款额不能超出总房款的70%;
5、预售房的条件:
1)土地出让金已缴清,取得国有土地使用证;
2)取得建设用地规划许可证;
3)投入工程总建设资金达到20%以上(不含土地出让金);
4)施工进度已明确,交房日期已明确;
5)竣工验收前;
五、附加内容(房地产营销培训基础知识):
1、房地产销售行业:
它是一个精彩、特殊的、无处不销售、人人都使用、升值空间大、有趣、自由、有成就感、锻炼人,上不封顶收入的一个较灵活、广泛、综合性的一个行业。
2、有正确的价值观:价值观---信念---期望---态度---行动目标
3、行动过程:执行---核心价值---中程目标---短期目标---每日工作计划
4、忌语:大概不能肯定的语言
五声四语:迎客声---称呼声---致谢声---送客声
反对四语:蔑视语---烦躁声---否定语---斗气语
5、建筑面积必须高于2.2米(低于2.2米的车库,杂屋没有产权),建筑如配套游泳池、车库等不算面积);
6、朝向:一般以客厅阳台的朝向为准。
7、商圈:称之购买圈或商势圈,指在一定的经济区域内以商场或商业区为中心向周围扩展形成的辐射力量,对顾客吸引而形成的一定范围或区域。
分为:核心商圈:以大型商场为中心,人口占60-80%,价格高;次级商圈:拥有客户占20%;
边缘商圈:分布密度小,产品低档,价格低。
8、商业饱和度:是测量一个商圈内的商业物业的供求量的一个重要方式。
IRS:商业饱和度
C:主要客户指数
RE:每一个顾客平均购买量
RF:商圈内的经营面积
IRS=(C*RE)/RF
9、严重影响房地产价格因素:
1)价格组成=土地成本价格+建安成本+利润+管理费用(国民生产总值,DTP指数、房地产政策、法律法规);
2)影响房地产因素:开发商实力、经济态度、地段、交通、周边环境、配套设施、绿化、升值、政府规划、潜力、客户定位、产品设计、物业管理、市场供求、品牌、销售技巧、自然环境不可复制;
3)影响每一栋单位的价格因素:楼层层高、户型、朝向、景观、外围功能、面积、建筑结构;
4)多层:7层以下,金三银四铜五六;高层:7层以上,越往高上走价格越高,越往上景观越好;
5)影响商铺:升值潜力、地段、交通、配套、市场、定位(业态定位)、消费群、品牌、人流量、物业管理。针对每一个铺位影响因素:位置、面积(面积小、面积消费群体多,价格高)、楼层、铺型(柱、开间、阻挡)、配套设施。
10、递名片技巧:
1)当你与客户谈判时,客户感兴趣时,你递上名片客户对你印象深,认知度;
2)当客户快要起身时,递上名片,你的客户会准确记住,认知你;
11、递资料准确时间:
1)当你将重要内容讲解完毕,再递上资料,请他了解;
2)当你递名片时,一起递给他;
3)如果客户已拿了资料时,你顺着他资料内容一条条讲解下去,然后合上递给他;
12、市场调查目的,其实反映市场现状:
1)了解竞争楼盘;
2)了解消费需求;
3)了解消费行情;
4)为策划、销售提供依据
具体调查内容:
a)产品调查:规模、占地面积、铺位、功能定位(做什么,业态定位)、铺型、配置(电
梯、空调、水电表)、装修、物业管理、经营时间;
b)配套调查:内部配套、周边环境配套、功能配套;
c)价格调查:销售价格、均价、不同楼层差价、付款方式、租金价格(临街与内街价格);
具体调查方式:问卷、街访(入户走访、单层、左手入门、双手右手入门)、专家访谈、市场客户访谈;
具体调查对象:市场、商城、专业街、步行街、专卖点
具体配套调查:医院、银行、超市、休闲场所、酒店、学校、交通(人流、车流、公交车、长途车)
13、风水与房地产营销:南向房间特征(通风时间长、日照时间长、不易发霉、冬暖夏凉)。
风水宝地:依山伴水,龙脉(建筑物的朝向的阴阳取舍。阴:山之南、水之北;阳:山之北、水之南;龙椅之地:绿色是生命色;中纬度:夏吹东南风、西南风)
14、建筑颜色:红色---象征权利、富贵、尊严、红色镇邪。
15、使用率=实用面积/建筑面积
小高层的使用率小于多层:60-70%
高层的使用率小于小高层:80%以上
写字楼的使用率小于高层:50-60%
16、产权证:土地使用证、房产证(集资房是没有产权证的,福利房是有产权证,可以转让,在国家允许的年限内可以转让、出租)。
17、绿化:是生态内的非常小的一个方面。
环境:周边所表现的元素:生态、人文、地理、交通。一个楼盘的环境包括:绿化、交通、密度、配套设施、日照、朝向。
18、价格:昂贵、便宜
1)加权比较法:在价格上及对手比较加X%或减X%,不超过1;如对方1000元/㎡+1000元/㎡*10%=1100元/㎡;反之1000元/㎡-1000元/㎡*10%=900元/㎡;
2)盈亏平衡法
3)经验评估法:根据以往经验来测标,价格阻力位针对顾客来说,内容包括:均价、起价(作用,降低入市门槛、一般是低开高涨,只对于大型楼盘、而小规模楼
盘不宜采用低开高走)、最高价(最好的楼层肯定是最高价)、垂直价格(一般金三银四铜五铁六,超过27米空气质量越差)、价格的可塑性(有
品牌价值的空间)、目标价格(自我实现的价格)。
19、价格构成:
1)土地出让金:三通一平、拆迁、安置费、勘查设计费(了解地质结构);
2)公共基础设施费(统称土地成本);
3)建安成本(土建成本);
4)管理成本(包括营销预算成本);
5)融资成本(利息);
6)税收费用;
7)利润;
20、销控:
内部认购:二八理论:好5%、次15%、差80%;三七理论:好10%、次20%、差70%;
公开销售:用于调节控制销售进度,先销次的,留下一部分好的,用于最后冲刺。
包括:强销期(寻找热销势头)、持销期(也叫调整期,合理安排)、冲刺期、扫尾期。
21、建筑品质:
1)施工方的资质;
2)图纸:设计方案,采光通风是否符合国家规定,规划、设计院进行调查,研究;
3)建筑材料:质量好坏,是否环保产品?
22、金字塔型:
小盘:一般以快打慢,先奇制胜,制造与众不同的特色;
营销手法:营销突围,侧翼进攻,通路卡位,最多客户消费场所。如俱乐部、酒吧、歌舞厅、高尔夫、通过派人进入上述场所与期接触、吸引顾客、实行营销,节省广告费及其它费用。
23、项目定位:了解最大化的消费群体---再了解消费型态---得出需求---市场产品
24、国家标准容积率:
1)别墅1-0.8,一般是0.8;2)高档小区2-2.5;
3)中档小区3;4)低档小区4;
一类小区:公共基础设施布局完整,整个环境良好;
二类小区:公共基础设施布局完整,环境不良好;
三类小区:公共基础设施布局不完整,环境差
越秀外滩樾售楼处电话:400-8118-224【售楼中心热线】营销中心热线400-8118-224官方售楼处地址
4008118224楼盘项目全面介绍,本电话为开发商提供线上预约售楼电话,楼盘项目全面介绍(包含楼盘简介,均价,房价,现房,期房,别墅,叠墅,大平层,价格,楼盘地址,户型图,交通规划,备案价,备案名,项目配套,样板间,开盘时间,认筹时间,楼盘详情, 售楼处电话,最新消息,最新详情,周边配套,一房一价,最新进展等详情咨询)楼盘详情丨价格丨更多优惠丨机不可失丨欢迎致电丨诚邀品鉴!售楼处位置丨特价房丨工抵房丨剩余房源丨户型图丨最新消息丨免责声明:将文章内容综合来源于网络、只作分享,版权归原作者所有!!如有侵权,请联系我们。(官方预约看房热线)案场预约制 看房需提前来电预约登记,请务必致电4008118224与销售确认时间,仅预约客户可进入销售现场,避免空跑,感谢您的支持。售楼处楼盘详情,售楼处电话400-8118-224,售楼处官方电话400-811-8224,售楼处地址,售楼处面积,售楼处户型,售楼处价格,售楼处优惠,售楼处交通,售楼处学区,售楼处商业,售楼处得房率,售楼处绿化率,售楼处开盘时间,售楼处交房时间,售楼处百科详情!
声明:本文由入驻焦点开放平台的作者撰写,除焦点官方账号外,观点仅代表作者本人,不代表焦点立场。


