大华公园柏翠(2025年大华公园柏翠最新首页网站)大华公园柏翠-售楼处楼盘详情-上海房天下

搜狐焦点黄冈站 2025-10-05 13:42:08
用手机看
扫描到手机,新闻随时看

扫一扫,用手机看文章
更加方便分享给朋友

大华公园柏翠售楼处电话:400-993-9964☎️✔✔│☎☑️☑️☑️大华公园柏翠官方电话:400-993-9964☎️✔✔│☎☑️☑️☑️ 上海宝山大华公园柏翠售楼处电话:400-993-9964☎️✔✔│☎☑️☑️☑️大华公园柏翠售楼处电话:400-9939-964

大华公园柏翠售楼处电话:400-993-9964☎️✔✔│☎☑️☑️☑️大华公园柏翠官方电话:400-993-9964☎️✔✔│☎☑️☑️☑️

上海宝山大华公园柏翠售楼处电话:400-993-9964☎️✔✔

全国人民都知道,上海的825新政,彻底宣布外环外放开限购,给不少等待进场上海的客户,打开大门!

沪籍随便买,非沪籍只需要1年社保或个税。此外公积金贷款额度也大大提高,不再区分首套、二套房贷利率……据说在这波冲击吸引下,有些项目售楼处出现了不少苏州客户!

最近我们也和几个上海的开发商朋友聊了聊,一个事实:的确有不少苏州人在锚定上海这一超级标的,且以800—1000万级的买家居多...

很多上海的售楼处,一周接待的苏州客户量,能达几十组,以至于我们不得不审视这一全新信号——

牛市真的要重新来了?这背后的到底什么逻辑?苏州人要是在上海买房或投资,值不值?

大批苏州人被上海虹吸去买房?

是信号还是噱头?

上海底气何在?

房地产深度调整至今,很多中产家庭都面临资产保值的困境。

而上海,作为全国楼市的风向标,即便市场冷淡期,它的虹吸影响力依旧是弹跳式起飞,原因很简单,就拿和苏州对比来说——

1、上海是全中国人的上海!孤岛效应非常明显!尤其对投资来说,如果资金充足,它就是最佳的选择!

这么多年,我们常听到一句话,买房要买核心、要看重地段。而放眼全国,上海就是传奇,从城市能级和体量来说,投资上海or投资其他,可以说是个单选题。

作为全国经济中心、金融中心、国际都市,上海拥有最强的教育资源、最好的工作机会、最佳的基建配套...即使在全国房地产市场整体调整的背景下,上海市场尤其是核心区的房产,依旧保持超强的价格韧性。

未来楼市如何走谁也说不准,但不可否认,对比其他城市,全国有且只有上海相对保值。

有这个事实在眼前,就够了。

毕竟预算在千万级别的实力买家或者投资客,更看重资产的安全性、优质性以及避险价值。

2、苏州核心区价格正在水涨船高,同样的预算你也可以买进上海新核心...

作为最强地级市,现在苏州最有潜力的还是超级核心板块,比如双湖、比如湖西湖东,但随着限价放开,容积率放开,在核心区靠低密打天下的如今,入场起步总价基本在千万以上,且肉眼可见这个价格还会持续上涨...

对于大部分人来说,投资成本过高,毕竟上海有些核心板块,千万以内都有选择。

产品上也存在代际差异!上海的产品力在全国永远是第一梯队的...

上海楼市的产品力,毫无疑问是全国顶尖的,尤其是在产品代际和综合品质方面,对比其他城市优势非常明显。

从产品力角度来看,未来有投资价值的产品,主要看是不是低密。在苏州,核心低密产品要么少要么总价高,大多还以自住为主。

而在上海,即便是优质核心板块,你也能选到低密产品,且总价可控,各种条件都能满足,加上强信心的支持和认同,有什么理由不?

上海潜力股+高稳定板块!

是全国人民公认的「超级蓝海」

苏州重磅新城,都以它为对标

有房产投资经验的各位都知道,楼盘所在板块的基本面,很大程度上能决定后期投资的成功与否。

这可一点夸张的成分都不存在,以苏州为例,多年前选择狮山、园区OR选择浒关、尹山湖,最后的结果,会直接反应在你账户余额上…

什么样的板块,才是稳定并安全度高的优质板块?其实判断标准很简单,离不开这3大要素——

大面上看看规划能级,看城市占位!越高越好!

具体看兑现力是否够强,配套是否丰富,是否有足够的发展空间。

长期看房价的上涨趋势!最好有持续上涨的潜质。

在上海,以上3要素全部具备!!!

│☎☑️☑️☑️大华公园柏翠售楼处电话:400-9939-964

上海宝山大华公园柏翠售楼处电话:400-9939-964...

大宁之上 双轨交1/18号线

『大华·公园柏翠』

低密小高层+超大面宽“神”户型

四期建面约101㎡精装3房在售中

均价62480元/㎡

价格比前三期更低,性价比更高!

春节期间劲销1.27亿

热度空前大华公园柏翠售楼处电话:400-9939-964

上海宝山大华公园柏翠售楼处电话:400-9939-964

大华公园柏翠售楼处电话:400-9939-964

上海宝山大华公园柏翠售楼处电话:400-9939-964

Part01

静安400米、大宁下一站

南北高架旁距离中心城区最近的新房!

关于大华公园柏翠的地段,有几大关键词:

第一,南北高架+中环,大华公园柏翠串联起了上海更昂贵的置业地。

大华公园柏翠距离北中环直线约3km,通过南北高架几乎可以实现无缝衔接。

而如今整条北中环线上的房价相当昂贵,整体均价都在约11万+。但这些置业地距离大华公园柏翠不过是一脚油门的事情。

这是大华公园柏翠性价比和潜力的体现,也是未来业主出行的保障。

第二,静安400米,与大宁新房房价相差一半有余。

大华公园柏翠距离静安区只有约400米左右的直线距离,是整个宝山距离中心城区最近的新房。

同时,项目距离大宁的市北高新园区直线仅约2.5km。

一方面,这是地段价值的体现,尤其是在康宁路-万荣路、南北高架、1号线等三条超级大动脉的加持下。

大宁的配套、产业几乎与大华公园柏翠共享。

另外一方面,在大宁在前不久出让的土地,其可售楼板价约8.6万/㎡,网上猜测这块宅地未来售价的声音很多,例如12万、14万甚至是16万。

但不管卖多少钱,这个大宁新房都比大华公园柏翠的价格高出一倍有余。

这意味着什么?

首先,上海新房的定价确实与所在区域有很大的关系,举个例子:

大华公园柏翠与大宁之间的关系,与宝山新江湾城与杨浦新江湾之间的关系很相似。

不同区,但几乎享受相同的配套、交通以及产业利好。

在新房定价时,宝山新房均价约7万/㎡、杨浦新江湾约10万+/㎡,这无可厚非。

但一旦步入二手,这两者之间的房价差距迅速拉近,因为在配套、交通、产业相近的情况下,产品力才是决定一切的根本。大华公园柏翠售楼处电话:400-9939-964

上海宝山大华公园柏翠售楼处电话:400-9939-964

大华公园柏翠售楼处电话:400-9939-964

上海宝山大华公园柏翠售楼处电话:400-9939-964

示意图

而大华公园柏翠的产品力,有着不输任何对手的底气!一旦步入二手,这就是整个北中环的王者,拥有极强的未来潜力。

第三,四大顶级规划围绕下的“北中环真核心”,无限潜力。

除了出众的地段、配套、价格优势外,大华公园柏翠享受的利好和潜力,同样惊人。

一方面,大宁市北高新园区就在项目南侧,咫尺的距离。

这座园区对于北中环的意义,与张江对于浦东的意义是相同的,代表着更高阶、更高能级的产业规模和能级。

更重要的是,市北高新园区的重点项目正在不断加码!

在上海建设“科创中心”的大目标下,上海市大数据中心已带头落址市北高新。这里将会是上海数据资源最丰富、数据类企业最集中、数据应用场景最广泛的区域。

大宁北部的投资强度和经济密度都会进一步加强。

另外一方面,宝山其实从去年南北转型开始,就展现出了完全不同以往的发展势头来。

大华公园柏翠以西的南大智慧城、以东的吴淞创新城,在规划中都是科创产业的主阵地建设的两大核心承载区,建设速度肉眼可见。

同时,今年宝山公示了《吴淞江-蕰藻浜沿线地区专项规划》。

就在大华公园柏翠北侧,将规划整体打造一条蓝绿交织、清新明亮、连湖串链、通江达海和水韵特色鲜明、创新功能集聚、滨水活力彰显的上海大都市江南水廊发展带,体现中华风范、江南风光、创新风尚。

大华公园柏翠售楼处电话:400-9939-964

上海宝山大华公园柏翠售楼处电话:400-9939-964

图片来源网络

以大华公园柏翠为核心,周边聚集了宝山最重要的科创产业、资源能级。

同时,项目又是整个北中环距离静安、大宁,以及上海主动脉南北高架更近的项目。

大华公园柏翠售楼处电话:400-9939-964

上海宝山大华公园柏翠售楼处电话:400-9939-964

示意图

可以预想到,未来以项目为中心,周边未来聚集的高薪产业、高知人口以及城市菁英不计其数。

而大华公园柏翠遥遥领先的产品力,未来将吸引这些改善置业客户的不断追逐,直至将其顶上北境之王的价格和地位。

这样的潜力和未来预期,是其他单核发展的板块所无法比拟的。

大华公园柏翠售楼处电话:400-9939-964

上海宝山大华公园柏翠售楼处电话:400-9939-964

Part02

约80米门头、星级酒店大堂

内外双公园,比肩千万级豪宅的公区

大华公园柏翠西侧是60多万方的规划绿地,接近1.5个长风公园大小。

而项目是一个容积率约2.2的全17F以下低密小高层社区。

在叠加项目距离静安直线约400米的地段,这几乎就是一个位于城市中央、生长在森林里的低密大居。

同时,大华公园城市一二三期均已交付入住,整个大社区的居住环境、氛围已经非常浓郁。大华公园柏翠这个王冠之上的作品一旦交付,即刻就能享受生活。

项目在归家动线上特别打造了“三进式”归家礼序,并且每一层归家礼序的打造,都是按照千万级豪宅才有的规格。

一进:宽约80米、高约6米的气派大门。

并且在选材上选用来自吴哥窟的进口石材,尽显静谧奢华的气质。

主入口利用108片伯爵灰大理石打造12座景墙单元,辅以香槟色不锈钢修饰。

整体迎宾空间耗材约1800片大理石,这样的大门规格、石材用料以及用心程度,无不体现出大华公园柏翠对标豪宅的决心。大华公园柏翠售楼处电话:400-9939-964

上海宝山大华公园柏翠售楼处电话:400-9939-964

大华公园柏翠售楼处电话:400-9939-964

上海宝山大华公园柏翠售楼处电话:400-9939-964

社区实景图

二进:围合庭院。

庭院由4处归家通道、8扇造型屏风和1座水景雕塑的一体化设计打造而成,由此开始拉开了低密森氧居住生活的大幕,这是市面上其他新房所没有的高规格。

用料上,庭院两侧设计师选用大理石与镂空铝板虚实结合,利用2层柏翠造型铝线条错拼而成,更显精致;

这样的设计和用料,在600万级的新房市场中,简直是降维打击。

大华公园柏翠售楼处电话:400-9939-964

上海宝山大华公园柏翠售楼处电话:400-9939-964

社区实景图

三进:宅门。

归家大堂能给业主更尊贵归家体验的同时,也能作为柏翠业主专属的城市会客厅。

整座大堂外墙采用伯爵灰大理石满铺高墙,电动门镶嵌宝格绿奢石,实现无感通行;

大华公园柏翠售楼处电话:400-9939-964

上海宝山大华公园柏翠售楼处电话:400-9939-964

社区实景图

内墙材料选用来自保加利亚的维纳多石材,整块大理石圆弧拉槽,这是顶级豪宅才有的用料和细节。

社区实景图

大堂接待台选用产自意大利山脉的宝格绿奢石一体打造而成。

社区实景图

这些用料和最终呈现出来的浓郁海派氛围,是对大华集团实力和匠心最好的体现。

丰富的架空层空间,足不出楼就能享受生活。

社区内还在部分楼栋内设置了架空层泛会所空间,用于亲子陪伴或是朋友会面。

编辑

编辑

社区实景图

对于有孩子的家长而言,足不出户就能让孩子有更安全、更具乐趣的成长空间,这是多少人的梦想。

社区还拥有极高的审美和艺术表达能力。

对于很多新房而言,公区的用料可能就代表一切,因为这个只要“肯花钱”,很容易就能达成。

真正考验开发商能力和匠心的,是审美和艺术表达能力。

而大华公园柏翠在这一点上,值得全上海的豪宅学习和模仿。

首先,大华公园柏翠利用12级叠水、2座树池、9步水上汀步,运用六重造景的手法打造近500平的中央水景!

用一颗柏翠树型的构筑物形成独具艺术气质的“大树咖啡厅”,不仅拔高了社区的整体审美艺术和品味,也可供业主闲时聊天赏景、遛宠遛娃。

社区实景图

并且将中心场地抬高1米,在水系池底通铺1300多片的PRADA绿石(仿石砖)、精选斜飘乌桕、造型紫薇等名贵树种...

不难看出,大华公园柏翠不仅卷用料,更在审美艺术、生活方式上接轨国际前沿,拔升了高端住宅的品味和调性,整体的公区用料更是媲美高端豪宅!

就比如前不久刚刚举办的大树生活节&光年社的社群启幕活动。

现场不仅有巨型圣诞树,大宁久光同款小食屋,还飘下了2024年上海的“第一场雪”。现场的圣诞氛围满满,人气火热。

大华公园柏翠售楼处电话:400-9939-964

上海宝山大华公园柏翠售楼处电话:400-9939-964

Part03

中环之上、大宁之上

上海距离静安更近的新房

2024年静安的新房供应主要集中在西藏北路和江宁路板块,均价都是12万/㎡起步。大宁已经许久没有新房供应,但是中外环的静安府、仁恒静安世纪、融创静安映等挂牌价都来到11-13万/㎡。

为什么说「大华·公园柏翠」的地理位置绝佳?

在地段上,项目有三个标签:

项目距离静安直线约400米、地铁3站大宁核心区!

项目距离中环线约3km!

繁华配套!

我们来解析以上这三个标签。

第一,距离静安直线约400米、地铁3站大宁核心意味着什么?

一方面,这意味着距离静安、黄浦更近,直接影响上班通勤便捷性,即使你将来换工作,只要还占位外环内,不管单位在哪里,都能从容应对。

要知道,如今置业肉眼可见的边缘化,主力供应已到外环外5-10公里,如今却还能碰到大华公园柏翠,甚是难得。

尤其对于工作在大宁的小伙伴来说,1号线3站就是上海马戏城,大宁核心区。

大华公园柏翠售楼处电话:400-9939-964

上海宝山大华公园柏翠售楼处电话:400-9939-964

地理位置决定了享受到的资源浓度,大宁的繁华咫尺可得。

目前的大宁已是大家公认的北上海新的商业、产业中心。

约56万平大宁音乐广场、约25万平大宁国际商业广场、约30万平大宁久光百货,静安大融城等商场一路连缀。

这个出行便捷度,在同能级的板块中,几乎是属于一梯队。

另外一方面,这意味着大华公园柏翠有出众的未来前景。

举个例子:整个浦东外环外,唐镇无疑是王者级的。约10万+的二手房房价、约7万+的新房价格,板块价值可见一斑。

而造成这种原因也很简单:唐镇距离张江仅3站

于是,唐镇就成为了张江精英们外溢的首站。而围绕着这些精英,唐镇落地了大量高能级的教育、商业、生态等资源。

这样的良性循环,让这个板块的价值水涨船高,甚至突破环线价格限制。

大华公园柏翠售楼处电话:400-9939-964

上海宝山大华公园柏翠售楼处电话:400-9939-964

同样道理,大华公园柏翠距离静安直线约400米、1号线3站即大宁核心商圈,是整个上海距离静安最近的新房。

对于工作在大宁、苏河湾、静安寺、南京西路、人民广场、虹口等区域的购房者来说,大华公园柏翠就是地段更好的新房。

并且相比静安、大宁的约1500万级置业门槛,大华公园柏翠的价格几乎是差了一半多,这样的性价比谁能抵挡?

未来当大水漫灌下,大华公园柏翠的项目价值、配套能级、居住氛围和圈层,都会有大提升。

第二,项目距离中环线约3km!

与大华公园柏翠同纬度的板块,新房均价起码约8.58万/㎡起,单价约10万+的区域比比皆是。

大华公园柏翠售楼处电话:400-9939-964

上海宝山大华公园柏翠售楼处电话:400-9939-964

第三,已经成熟的繁华配套!

商业配套方面,项目周边从生活配套到高端商场到大型商超,应有尽有。

· 地铁3站直达:大宁久光中心、大宁音乐广场、大宁国际商业广场等

· 周边约900M范围:共康商圈、社区邻里中心商业广场、场北集贸市场、北斗星广场

· 直线距离约1.5KM范围内:宝山万达广场、宝山购物中心等

· 直线距离约2.7KM:宝山日月光,多类型商业形态荟萃

大华公园柏翠售楼处电话:400-9939-964

上海宝山大华公园柏翠售楼处电话:400-9939-964

教育方面,项目周边教育资源丰富,包括陈伯吹实验幼儿园(上海市示范幼儿园)、陈伯吹实验小学,华师大宝山实验学校等学校。

项目正南侧一墙之隔,还有九年一贯制公办学校在建设中。免责声明:以上教育资源整理仅代表楼盘与学校的距离,该房屋所在项目暂未划分学区,开发商不对项目交房后所属学区、学校做任何承诺。教育资源分配或学校/学区划分以及学校的具体招生规则等请以政府相关主管部门、教育机构公开的最新信息为准。

生态方面,项目坐拥五大公园:

约80万方伟岸绿境环抱,包括千亩绿境(约60万方绿化在侧),约3万方庙行公园、约4.2万方共和公园,约2.7万方三泉公园、约9.3万方彭浦四季公园等。

这样的生态能级,媲美“新江湾湿地公园、世纪公园、长风公园”等,拥享“自然生态+稀臻难寻”双重价值属性。

不管是从出行便捷度、未来潜力、现有配套还是同纬度的对比中,大华公园柏翠的地段都是更具竞争力的。光凭这一点,这个项目就已经足够有吸引力了。

但在产品力上,大华依旧给了我们足够的诚意和惊喜。

大华公园柏翠售楼处电话:400-9939-964

上海宝山大华公园柏翠售楼处电话:400-9939-964

Part04

建面约101-142㎡神户型

一梯两户的无连廊飞机户型

项目整个社区由4栋16层、10栋17层小高层组成,是纯粹的低密小高层住宅

一方面, 小高层在近期的上海市场中非常稀缺,尤其是在中环线上的位置上,小高层住宅凤毛麟角。

但另外一方面,小高层天然的高得房率、私密性和居住舒适度也保证了这个产品的受欢迎程度

换句话说,大华公园柏翠的产品力,从天赋上就已经与其他项目拉开了差距。

其次,产品上:项目建面约101-124㎡房源一梯两户、建面约142㎡两梯两户

而这意味着,大部分的房源均是无连廊的设计,将带来更高的采光通透度、更好的通风以及更高的得房率。

再加上项目飞机户型的设计,室内几乎0空间浪费,即使是小户型也有超高的尺度感。

具体来看下:大华公园柏翠售楼处电话:400-9939-964

上海宝山大华公园柏翠售楼处电话:400-9939-964

建面约101㎡的三房两厅两卫

大华公园柏翠售楼处电话:400-9939-964

上海宝山大华公园柏翠售楼处电话:400-9939-964

建面约101㎡3房2卫户型,非常标准的飞机户型。

三开间朝南整体约11.5米的面宽。什么概念呢?

上海这些年其实也有不少三开间朝南的飞机户型,但都不如了大华公园柏翠。

例如以下这个:总价约千万左右,建面约104㎡的房源。

这个项目凭借着出色的户型,获得了不少高净值人群的青睐,但他约104㎡的户型南向面宽只有10.2米,比大华公园柏翠约101㎡的户型还小了约1.3米。

别小看这约1.3米,整体的尺度感完全不同。

更重要的是,项目是大横厅+超大阳台的设计。撑起气场的同时,也能为家庭带来更多的生活想象。

另外,南北通透+3房5飘窗的设计,保证了户型的通风以及视野。

超大的U型厨房十分宽绰,让切配煮更加合理从容。

细节方面,次卫的干湿分离也能保证室内的干燥,入户的玄关、主卧的套房,保证了主人的私密空间。

这个户型拥有一个“好户型”的所有特质,上车必看的首选户型!

建面约142㎡的四房两厅两卫

大华公园柏翠售楼处电话:400-9939-964

上海宝山大华公园柏翠售楼处电话:400-9939-964

大宁之上 双轨交1/18号线

『大华·公园柏翠』

低密小高层+超大面宽“神”户型

四期建面约101㎡精装3房在售中

均价62480元/㎡

价格比前三期更低,性价比更高!

春节期间劲销1.27亿

热度空前大华公园柏翠售楼处电话:400-9939-964

上海宝山大华公园柏翠售楼处电话:400-9939-964

大华公园柏翠售楼处电话:400-9939-964

上海宝山大华公园柏翠售楼处电话:400-9939-964

Part01

静安400米、大宁下一站

南北高架旁距离中心城区最近的新房!

关于大华公园柏翠的地段,有几大关键词:

第一,南北高架+中环,大华公园柏翠串联起了上海更昂贵的置业地。

大华公园柏翠距离北中环直线约3km,通过南北高架几乎可以实现无缝衔接。

而如今整条北中环线上的房价相当昂贵,整体均价都在约11万+。但这些置业地距离大华公园柏翠不过是一脚油门的事情。

这是大华公园柏翠性价比和潜力的体现,也是未来业主出行的保障。

第二,静安400米,与大宁新房房价相差一半有余。

大华公园柏翠距离静安区只有约400米左右的直线距离,是整个宝山距离中心城区最近的新房。

同时,项目距离大宁的市北高新园区直线仅约2.5km。

一方面,这是地段价值的体现,尤其是在康宁路-万荣路、南北高架、1号线等三条超级大动脉的加持下。

大宁的配套、产业几乎与大华公园柏翠共享。

另外一方面,在大宁在前不久出让的土地,其可售楼板价约8.6万/㎡,网上猜测这块宅地未来售价的声音很多,例如12万、14万甚至是16万。

但不管卖多少钱,这个大宁新房都比大华公园柏翠的价格高出一倍有余。

这意味着什么?

首先,上海新房的定价确实与所在区域有很大的关系,举个例子:

大华公园柏翠与大宁之间的关系,与宝山新江湾城与杨浦新江湾之间的关系很相似。

不同区,但几乎享受相同的配套、交通以及产业利好。

在新房定价时,宝山新房均价约7万/㎡、杨浦新江湾约10万+/㎡,这无可厚非。

但一旦步入二手,这两者之间的房价差距迅速拉近,因为在配套、交通、产业相近的情况下,产品力才是决定一切的根本。大华公园柏翠售楼处电话:400-9939-964

上海宝山大华公园柏翠售楼处电话:400-9939-964

大华公园柏翠售楼处电话:400-9939-964

上海宝山大华公园柏翠售楼处电话:400-9939-964

示意图

而大华公园柏翠的产品力,有着不输任何对手的底气!一旦步入二手,这就是整个北中环的王者,拥有极强的未来潜力。

第三,四大顶级规划围绕下的“北中环真核心”,无限潜力。

除了出众的地段、配套、价格优势外,大华公园柏翠享受的利好和潜力,同样惊人。

一方面,大宁市北高新园区就在项目南侧,咫尺的距离。

这座园区对于北中环的意义,与张江对于浦东的意义是相同的,代表着更高阶、更高能级的产业规模和能级。

更重要的是,市北高新园区的重点项目正在不断加码!

在上海建设“科创中心”的大目标下,上海市大数据中心已带头落址市北高新。这里将会是上海数据资源最丰富、数据类企业最集中、数据应用场景最广泛的区域。

大宁北部的投资强度和经济密度都会进一步加强。

另外一方面,宝山其实从去年南北转型开始,就展现出了完全不同以往的发展势头来。

大华公园柏翠以西的南大智慧城、以东的吴淞创新城,在规划中都是科创产业的主阵地建设的两大核心承载区,建设速度肉眼可见。

同时,今年宝山公示了《吴淞江-蕰藻浜沿线地区专项规划》。

就在大华公园柏翠北侧,将规划整体打造一条蓝绿交织、清新明亮、连湖串链、通江达海和水韵特色鲜明、创新功能集聚、滨水活力彰显的上海大都市江南水廊发展带,体现中华风范、江南风光、创新风尚。

大华公园柏翠售楼处电话:400-9939-964

上海宝山大华公园柏翠售楼处电话:400-9939-964

图片来源网络

以大华公园柏翠为核心,周边聚集了宝山最重要的科创产业、资源能级。

同时,项目又是整个北中环距离静安、大宁,以及上海主动脉南北高架更近的项目。

大华公园柏翠售楼处电话:400-9939-964

上海宝山大华公园柏翠售楼处电话:400-9939-964

示意图

可以预想到,未来以项目为中心,周边未来聚集的高薪产业、高知人口以及城市菁英不计其数。

而大华公园柏翠遥遥领先的产品力,未来将吸引这些改善置业客户的不断追逐,直至将其顶上北境之王的价格和地位。

这样的潜力和未来预期,是其他单核发展的板块所无法比拟的。

大华公园柏翠售楼处电话:400-9939-964

上海宝山大华公园柏翠售楼处电话:400-9939-964

Part02

约80米门头、星级酒店大堂

内外双公园,比肩千万级豪宅的公区

大华公园柏翠西侧是60多万方的规划绿地,接近1.5个长风公园大小。

而项目是一个容积率约2.2的全17F以下低密小高层社区。

在叠加项目距离静安直线约400米的地段,这几乎就是一个位于城市中央、生长在森林里的低密大居。

同时,大华公园城市一二三期均已交付入住,整个大社区的居住环境、氛围已经非常浓郁。大华公园柏翠这个王冠之上的作品一旦交付,即刻就能享受生活。

项目在归家动线上特别打造了“三进式”归家礼序,并且每一层归家礼序的打造,都是按照千万级豪宅才有的规格。

一进:宽约80米、高约6米的气派大门。

并且在选材上选用来自吴哥窟的进口石材,尽显静谧奢华的气质。

主入口利用108片伯爵灰大理石打造12座景墙单元,辅以香槟色不锈钢修饰。

整体迎宾空间耗材约1800片大理石,这样的大门规格、石材用料以及用心程度,无不体现出大华公园柏翠对标豪宅的决心。大华公园柏翠售楼处电话:400-9939-964

上海宝山大华公园柏翠售楼处电话:400-9939-964

大华公园柏翠售楼处电话:400-9939-964

上海宝山大华公园柏翠售楼处电话:400-9939-964

社区实景图

二进:围合庭院。

庭院由4处归家通道、8扇造型屏风和1座水景雕塑的一体化设计打造而成,由此开始拉开了低密森氧居住生活的大幕,这是市面上其他新房所没有的高规格。

用料上,庭院两侧设计师选用大理石与镂空铝板虚实结合,利用2层柏翠造型铝线条错拼而成,更显精致;

这样的设计和用料,在600万级的新房市场中,简直是降维打击。

大华公园柏翠售楼处电话:400-9939-964

上海宝山大华公园柏翠售楼处电话:400-9939-964

社区实景图

三进:宅门。

归家大堂能给业主更尊贵归家体验的同时,也能作为柏翠业主专属的城市会客厅。

整座大堂外墙采用伯爵灰大理石满铺高墙,电动门镶嵌宝格绿奢石,实现无感通行;

大华公园柏翠售楼处电话:400-9939-964

上海宝山大华公园柏翠售楼处电话:400-9939-964

社区实景图

内墙材料选用来自保加利亚的维纳多石材,整块大理石圆弧拉槽,这是顶级豪宅才有的用料和细节。

社区实景图

大堂接待台选用产自意大利山脉的宝格绿奢石一体打造而成。

社区实景图

这些用料和最终呈现出来的浓郁海派氛围,是对大华集团实力和匠心最好的体现。

丰富的架空层空间,足不出楼就能享受生活。

社区内还在部分楼栋内设置了架空层泛会所空间,用于亲子陪伴或是朋友会面。

社区实景图

对于有孩子的家长而言,足不出户就能让孩子有更安全、更具乐趣的成长空间,这是多少人的梦想。

社区还拥有极高的审美和艺术表达能力。

对于很多新房而言,公区的用料可能就代表一切,因为这个只要“肯花钱”,很容易就能达成。

真正考验开发商能力和匠心的,是审美和艺术表达能力。

而大华公园柏翠在这一点上,值得全上海的豪宅学习和模仿。

首先,大华公园柏翠利用12级叠水、2座树池、9步水上汀步,运用六重造景的手法打造近500平的中央水景!

用一颗柏翠树型的构筑物形成独具艺术气质的“大树咖啡厅”,不仅拔高了社区的整体审美艺术和品味,也可供业主闲时聊天赏景、遛宠遛娃。

社区实景图

并且将中心场地抬高1米,在水系池底通铺1300多片的PRADA绿石(仿石砖)、精选斜飘乌桕、造型紫薇等名贵树种...

不难看出,大华公园柏翠不仅卷用料,更在审美艺术、生活方式上接轨国际前沿,拔升了高端住宅的品味和调性,整体的公区用料更是媲美高端豪宅!

就比如前不久刚刚举办的大树生活节&光年社的社群启幕活动。

现场不仅有巨型圣诞树,大宁久光同款小食屋,还飘下了2024年上海的“第一场雪”。现场的圣诞氛围满满,人气火热。

大华公园柏翠售楼处电话:400-9939-964

上海宝山大华公园柏翠售楼处电话:400-9939-964

Part03

中环之上、大宁之上

上海距离静安更近的新房

2024年静安的新房供应主要集中在西藏北路和江宁路板块,均价都是12万/㎡起步。大宁已经许久没有新房供应,但是中外环的静安府、仁恒静安世纪、融创静安映等挂牌价都来到11-13万/㎡。

为什么说「大华·公园柏翠」的地理位置绝佳?

在地段上,项目有三个标签:

项目距离静安直线约400米、地铁3站大宁核心区!

项目距离中环线约3km!

繁华配套!

我们来解析以上这三个标签。

第一,距离静安直线约400米、地铁3站大宁核心意味着什么?

一方面,这意味着距离静安、黄浦更近,直接影响上班通勤便捷性,即使你将来换工作,只要还占位外环内,不管单位在哪里,都能从容应对。

要知道,如今置业肉眼可见的边缘化,主力供应已到外环外5-10公里,如今却还能碰到大华公园柏翠,甚是难得。

尤其对于工作在大宁的小伙伴来说,1号线3站就是上海马戏城,大宁核心区。

大华公园柏翠售楼处电话:400-9939-964

上海宝山大华公园柏翠售楼处电话:400-9939-964

地理位置决定了享受到的资源浓度,大宁的繁华咫尺可得。

目前的大宁已是大家公认的北上海新的商业、产业中心。

约56万平大宁音乐广场、约25万平大宁国际商业广场、约30万平大宁久光百货,静安大融城等商场一路连缀。

这个出行便捷度,在同能级的板块中,几乎是属于一梯队。

另外一方面,这意味着大华公园柏翠有出众的未来前景。

举个例子:整个浦东外环外,唐镇无疑是王者级的。约10万+的二手房房价、约7万+的新房价格,板块价值可见一斑。

而造成这种原因也很简单:唐镇距离张江仅3站

于是,唐镇就成为了张江精英们外溢的首站。而围绕着这些精英,唐镇落地了大量高能级的教育、商业、生态等资源。

这样的良性循环,让这个板块的价值水涨船高,甚至突破环线价格限制。

大华公园柏翠售楼处电话:400-9939-964

上海宝山大华公园柏翠售楼处电话:400-9939-964

同样道理,大华公园柏翠距离静安直线约400米、1号线3站即大宁核心商圈,是整个上海距离静安最近的新房。

对于工作在大宁、苏河湾、静安寺、南京西路、人民广场、虹口等区域的购房者来说,大华公园柏翠就是地段更好的新房。

并且相比静安、大宁的约1500万级置业门槛,大华公园柏翠的价格几乎是差了一半多,这样的性价比谁能抵挡?

未来当大水漫灌下,大华公园柏翠的项目价值、配套能级、居住氛围和圈层,都会有大提升。

第二,项目距离中环线约3km!

与大华公园柏翠同纬度的板块,新房均价起码约8.58万/㎡起,单价约10万+的区域比比皆是。

大华公园柏翠售楼处电话:400-9939-964

上海宝山大华公园柏翠售楼处电话:400-9939-964

第三,已经成熟的繁华配套!

商业配套方面,项目周边从生活配套到高端商场到大型商超,应有尽有。

· 地铁3站直达:大宁久光中心、大宁音乐广场、大宁国际商业广场等

· 周边约900M范围:共康商圈、社区邻里中心商业广场、场北集贸市场、北斗星广场

· 直线距离约1.5KM范围内:宝山万达广场、宝山购物中心等

· 直线距离约2.7KM:宝山日月光,多类型商业形态荟萃

大华公园柏翠售楼处电话:400-9939-964

上海宝山大华公园柏翠售楼处电话:400-9939-964

教育方面,项目周边教育资源丰富,包括陈伯吹实验幼儿园(上海市示范幼儿园)、陈伯吹实验小学,华师大宝山实验学校等学校。

项目正南侧一墙之隔,还有九年一贯制公办学校在建设中。免责声明:以上教育资源整理仅代表楼盘与学校的距离,该房屋所在项目暂未划分学区,开发商不对项目交房后所属学区、学校做任何承诺。教育资源分配或学校/学区划分以及学校的具体招生规则等请以政府相关主管部门、教育机构公开的最新信息为准。

生态方面,项目坐拥五大公园:

约80万方伟岸绿境环抱,包括千亩绿境(约60万方绿化在侧),约3万方庙行公园、约4.2万方共和公园,约2.7万方三泉公园、约9.3万方彭浦四季公园等。

这样的生态能级,媲美“新江湾湿地公园、世纪公园、长风公园”等,拥享“自然生态+稀臻难寻”双重价值属性。

不管是从出行便捷度、未来潜力、现有配套还是同纬度的对比中,大华公园柏翠的地段都是更具竞争力的。光凭这一点,这个项目就已经足够有吸引力了。

但在产品力上,大华依旧给了我们足够的诚意和惊喜。

大华公园柏翠售楼处电话:400-9939-964

上海宝山大华公园柏翠售楼处电话:400-9939-964

Part04

建面约101-142㎡神户型

一梯两户的无连廊飞机户型

项目整个社区由4栋16层、10栋17层小高层组成,是纯粹的低密小高层住宅

一方面, 小高层在近期的上海市场中非常稀缺,尤其是在中环线上的位置上,小高层住宅凤毛麟角。

但另外一方面,小高层天然的高得房率、私密性和居住舒适度也保证了这个产品的受欢迎程度

换句话说,大华公园柏翠的产品力,从天赋上就已经与其他项目拉开了差距。

其次,产品上:项目建面约101-124㎡房源一梯两户、建面约142㎡两梯两户

而这意味着,大部分的房源均是无连廊的设计,将带来更高的采光通透度、更好的通风以及更高的得房率。

再加上项目飞机户型的设计,室内几乎0空间浪费,即使是小户型也有超高的尺度感。

具体来看下:大华公园柏翠售楼处电话:400-9939-964

上海宝山大华公园柏翠售楼处电话:400-9939-964

建面约101㎡的三房两厅两卫

大华公园柏翠售楼处电话:400-9939-964

上海宝山大华公园柏翠售楼处电话:400-9939-964

建面约101㎡3房2卫户型,非常标准的飞机户型。

三开间朝南整体约11.5米的面宽。什么概念呢?

上海这些年其实也有不少三开间朝南的飞机户型,但都不如了大华公园柏翠。

例如以下这个:总价约千万左右,建面约104㎡的房源。

这个项目凭借着出色的户型,获得了不少高净值人群的青睐,但他约104㎡的户型南向面宽只有10.2米,比大华公园柏翠约101㎡的户型还小了约1.3米。

别小看这约1.3米,整体的尺度感完全不同。

更重要的是,项目是大横厅+超大阳台的设计。撑起气场的同时,也能为家庭带来更多的生活想象。

另外,南北通透+3房5飘窗的设计,保证了户型的通风以及视野。

超大的U型厨房十分宽绰,让切配煮更加合理从容。

细节方面,次卫的干湿分离也能保证室内的干燥,入户的玄关、主卧的套房,保证了主人的私密空间。

这个户型拥有一个“好户型”的所有特质,上车必看的首选户型!

建面约142㎡的四房两厅两卫

大宁之上 1/18号线双轨交

「大华·公园柏翠」

建面约83-122㎡3-4房即将入市

过会均价6.3万

9月初示范区即将开放

这个124㎡4房仅本次销售,之后就绝版了。

首开位置示意👇大华公园柏翠售楼处电话:400-9939-964✔✔✔

上海宝山大华公园柏翠售楼处电话:400-9939-964✔✔✔

大华公园柏翠售楼处电话:400-9939-964✔✔✔

上海宝山大华公园柏翠售楼处电话:400-9939-964✔✔✔

大华公园柏翠售楼处电话:400-9939-964✔✔✔

上海宝山大华公园柏翠售楼处电话:400-9939-964✔✔✔

示范区效果图

大华公园柏翠售楼处电话:400-9939-964✔✔. 大华公园柏翠售楼处电话:400-9939-964✔✔✔

大华公园柏翠售楼处电话:400-9939-964✔✔✔

上海宝山大华公园柏翠售楼处电话:400-9939-964✔✔✔

户型图如下:

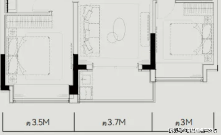
▼ 建面约101㎡3房2厅2卫

约5.3M阔尺横厅/约11.5M南向面宽

大华公园柏翠售楼处电话:400-9939-964✔✔✔

上海宝山大华公园柏翠售楼处电话:400-9939-964✔✔✔

▼ 建面约124㎡4房2厅2卫

约3.6M阔尺宽厅/约12.8M南向面宽

大华公园柏翠售楼处电话:400-9939-964✔✔✔

上海宝山大华公园柏翠售楼处电话:400-9939-964✔✔✔

▼ 建面约142㎡4房2厅2卫

约5.9M阔尺宽厅/约15.4M南向面宽

大华公园柏翠售楼处电话:400-9939-964✔✔✔

上海宝山大华公园柏翠售楼处电话:400-9939-964✔✔✔大华公园柏翠售楼处电话:400-993-9964☎️✔✔│☎☑️☑️☑️大华公园柏翠官方电话:400-993-9964☎️✔✔│☎☑️☑️☑️

上海宝山大华公园柏翠售楼处电话:400-993-9964☎️✔

房产抵押贷款必知9件事

少走弯路!

少走弯路!

在办理房产抵押贷款时,很多人因对关键信息不了解,走了不少冤枉路,甚至影响贷款审批。其实,只要提前掌握这9件核心事项,就能让贷款办理过程更顺畅、更稳妥。下面,就为大家详细解读这些必知要点。

一、主体资质:直接决定贷款类型与额度

如果您没有营业执照,只能申请 “抵押消费贷”,这类贷款的额度通常会低于有经营背景的 “抵押经营贷”。

反之,若您有实体经营(无论是个人独资、合伙企业还是有限公司等),建议在申请贷款前优先备齐公司相关材料,比如营业执照、公司章程、近半年的经营流水等,这样不仅能有更多贷款产品可选,还可能获得更高的贷款额度,满足更大的资金需求。

二、这四类房产,无法办理抵押

并非所有房产都能用于抵押贷款,以下四类房产因产权性质或存在权益瑕疵,银行等金融机构通常不会接受抵押:

集体土地自建房:这类房产的土地性质为集体所有,不能自由上市交易,处置难度大,金融机构为规避风险,一般不认可其抵押资格。

未转商品房属性的政策房:像经济适用房、限价房等政策房,在未满足规定年限、未补缴土地出让金转为商品房之前,产权受限,无法正常办理抵押手续。

存在产权纠纷的房产:如果房产存在产权归属不清晰、有查封记录、或正处于继承、赠与等产权变更纠纷中,说明房产的权益不稳定,不能作为合格的抵押资产。

无独立处置权的共有房产:若房产为多人共有(如夫妻共有、亲友共有等),且共有人未书面同意抵押,或抵押人无法独立对房产进行处置,这类房产也无法办理抵押,必须所有共有人共同认可并配合办理相关手续才行。

三、婚姻状态:影响抵押手续办理要求

房产抵押与婚姻状态密切相关,不同婚姻状况下,办理手续的要求也不同:

婚后购置的房产:即便房产登记在一方名下,在办理抵押时,也需夫妻双方共同签署抵押合同、借款合同等相关文件,因为婚后房产通常属于夫妻共同财产,处置需双方一致同意。

离异或单身人士:离异人士需提供离婚证、离婚协议书(或法院判决书),明确房产的归属权;单身人士则需提供单身证明(部分地区已取消,可通过民政系统查询确认),确保房产产权无婚姻相关的权益纠纷。

四、还款能力:银行审批的核心核查点

银行在审批房产抵押贷款时,会重点核查借款人的还款能力,而还款能力最直观的体现就是收入流水:

对于上班族而言,银行会要求提供近 6-12 个月的工资流水,且月收入需达到月供金额的 2 倍以上,这是为了确保借款人有足够的资金偿还每月贷款,避免出现逾期风险。

对于自雇人士(如个体工商户、企业主),除了个人银行流水,还需同步提供经营佐证材料,比如企业的经营流水、纳税证明、上下游合同等,以此证明企业经营稳定,有持续的收入来源支撑还款。

五、信用记录:关乎贷款审批成败

个人信用记录是银行评估借款人信用风险的重要依据,直接影响贷款是否能审批通过:

逾期记录:通常情况下,银行要求借款人近两年内的逾期次数不超过 6 次(部分严格的银行要求不超过 3 次),且不能有连续 3 个月以上的逾期记录,若逾期情况严重,很可能直接被拒贷。

网贷笔数:近年来,银行对网贷记录的关注度也在提升,若借款人名下有过多的网贷笔数(比如超过 10 笔),即使没有逾期,也可能被银行认为资金需求迫切、财务状况不稳定,影响审批结果。

征信查询次数:近期(一般指近 3 个月内)的征信查询次数不宜过于密集,建议每月查询次数不超过 3 次。频繁查询征信(尤其是贷款审批、信用卡审批类查询),会让银行怀疑借款人存在多头借贷的可能,从而降低审批通过率。

六、第三方房产抵押:这些材料必不可少

如果您想用非本人名下的房产办理抵押(比如父母、子女或亲友的房产),除了常规的房产证明材料外,还需提供以下关键文件,确保产权人意愿真实、手续合法:

产权人签署的抵押声明书:明确产权人自愿将房产用于为借款人提供抵押担保,并知晓抵押可能带来的风险(如借款人逾期后房产可能被处置)。

经公证的授权文件:若产权人无法亲自到场办理手续,需出具经公证处公证的授权委托书,委托他人代为办理抵押登记、签署相关文件等事宜,且授权范围要明确具体。

产权人面签确认:大部分银行要求产权人亲自到银行网点面签,核实身份信息和抵押意愿,避免出现虚假抵押、冒名抵押等情况。

七、抵押期间:房产权益有保障

很多人担心房产办理抵押后,自己就不能正常使用了,其实无需过度担忧:

在抵押期间,只要您正常按时偿还贷款月供,就可以继续居住、使用该房产,房产的使用权、居住权不会因抵押而受到影响。

只有当您连续违约超过 90 天(即连续 3 个月未偿还月供),且经金融机构多次催收仍未还款时,金融机构才有权按照法律程序启动资产处置程序(如拍卖、变卖房产),用处置所得偿还贷款本息。

八、二次抵押:可贷额度这样测算

如果您的房产已经办理过一次抵押(即还有未还清的首次贷款),在满足一定条件的情况下,还可以办理二次抵押,获取额外资金。二次抵押的可贷额度有明确的测算公式:

可贷额度 =(房产当前评估价 ×70%)- 首次贷款剩余本金 需要注意的是,不同银行对二次抵押的要求有所不同,部分银行会要求首次贷款已还满 24 个月(即还款两年以上),且房产当前的评估价需高于首次抵押时的评估价,确保有足够的抵押空间。同时,二次抵押的利率通常会高于首次抵押,办理前需综合测算成本。

九、评估价:需符合市场规律,否则影响审批

房产评估价是确定贷款额度的重要依据,但评估价并非越高越好,若显著偏离市场规律,反而会触发银行的风控复核:

如果房产的评估价远高于同区域、同户型、同品质房产的市场均价(比如高于 20% 以上),银行会怀疑评估报告的真实性和合理性,可能会要求重新评估,甚至直接导致贷款审批终止。因此,在选择评估机构时,要选择银行认可的正规机构,确保评估价客观、公允,符合市场实际情况。

专业提示:为了让房产抵押贷款办理更顺利,资产配置更稳妥高效,在抵押前建议做好以下三项准备工作:

✅ 产权状态核查:提前到不动产登记中心查询房产的产权信息,确认无查封、无纠纷、产权清晰,避免因产权问题影响抵押。

✅ 还款能力测算:根据自身收入、负债情况,提前测算每月能承受的月供金额,选择合适的贷款额度和还款期限,避免还款压力过大。

✅ 贷款方案三方比选:多咨询几家银行或正规的贷款机构,对比不同方案的利率、额度、还款方式、审批时间等,选择最适合自己的贷款方案。

声明:本文由入驻焦点开放平台的作者撰写,除焦点官方账号外,观点仅代表作者本人,不代表焦点立场。