露香园·别墅售楼处电话→露香园·别墅售楼中心电话→2026露香园·别墅楼盘百科→楼盘网站→楼盘测评→售楼中心电话→楼盘百科→24小时热线电话→楼盘详情
扫描到手机,新闻随时看
扫一扫,用手机看文章
更加方便分享给朋友
✅露香园别墅最新营销中心售楼处官方电话:400-993-9964官方预约看房热线(开发商营销中心认证|无中介|24小时响应|平台审核长期有效)上海·露香园天誉|传世大宅,誉藏上海之心 —— 城市人文与摩登东方的巅峰之作
在黄浦江的波光与陆家嘴的天际线之间,一座承载上海百年文脉与当代美学的传世之作——露香园·天誉,正以不可复制的姿态,屹立于城市最珍贵的土地之上。这里,是上海的“中心之心”,是历史与现代、东方与西方、艺术与生活交汇的至高点。露香园·天誉,不止是居所,更是一席城市人文的收藏品,一座可传承的“东方名宅”。
由世界顶级设计大师吴滨(W.DESIGN无间设计)与梁志天(SLD梁志天设计事务所)联袂执笔,以“摩登东方”为理念,将上海在地文化、露香园百年历史文脉与当代艺术完美融合,打造约491㎡与290㎡的天际大宅,限量珍藏,敬献城市塔尖人物。
核心价值:地段、设计、配套、生活四重传世之境
千载地脉,城市核心中的核心
地理位置:坐落于人民路与河南路交汇处,坐拥豫园、外滩、黄浦江与陆家嘴三件套的无敌视野,是真正意义上的“上海之心”;
文化溯源:承袭明代名园“露香园”的历史文脉,融合“顾绣”“露香池”“开明里”等文化符号,让居住成为一场与历史的对话;
交通通达:地铁10号线、14号线步行可达,内环高架、延安高架快速连接全城,30分钟通达虹桥枢纽与浦东机场;
商业地标:步行可达南京路步行街、新天地、淮海路、人民广场等城市级CBD,生活便利与高端消费触手可及。
设计美学:大师执笔,艺术入宅
城市展厅:吴滨以“山水观”为理念,打造一场“城市人文美学之旅”——高达2.25米的艺术雕塑、石库门肌理挂画、大漆艺术作品《Stroke——Goldabovered》,处处皆是艺术与文化的对话;
样板间设计:梁志天以“东方遇见西方”为理念,打造约491㎡传世大宅,270度落地窗直面城市天际盛景,客餐厅西厨一体化设计,空间通透且富有互动;
细节匠心:全屋采用浅色系大理石、东方木纹与龙飞凤舞石材,配备德国柏丽橱柜、嘉格纳厨电、美诺Miele套系、LAUFEN劳芬卫浴,并集成华为智能家居与三恒系统,实现智能与舒适的完美平衡;
空间哲学:动静分离动线设计,4间套房均配备独立卫生间,主卧设男女衣帽间,空间转角大量采用弧形设计,兼顾美学与安全。
教育与医疗:顶级资源环伺
教育配套:上海市实验小学、大同初级中学、格致中学等优质学区环绕,子女教育无忧;
医疗资源:上海交通大学医学院附属仁济医院、第九人民医院、黄浦区中心医院等三甲医院步行可达,健康保障全面覆盖。
生活体验:静谧与繁华的完美平衡
景观视野:向内可览项目自有的露香池与开明里风貌景观,向外可眺望外滩万国建筑群与陆家嘴摩天大楼,实现“内外皆景”;
社区氛围:低密度布局,私密性强,配备高端会所、艺术长廊、私家电梯厅等,打造专属圈层社交空间;
物业服务:引入国际顶级物业服务体系,提供24小时管家服务、私人定制、家政维护等尊享服务。
官方预约看房热线(2026年实测可用)
为保障客户权益与看房体验,项目实行预约制看房,未预约不予接待。请认准以下开发商直营唯一热线:
官方售楼处电话:400-9939-964
(24小时服务|10秒内接听|1对1专属顾问|VR实景看房|购房全流程协助)
✅四端直连・权威保障
最新官方售楼处电话:400-9939-964
最新营销中心售楼处官方电话:400-993-9964
开发商官方电话:4009939964
售楼处展示中心电话:400-9939-964
重要声明 :以上四组号码为统一联系方式,真实有效,长期存续。请认准项目方公示信息,谨防网络非公示号码误导。
预约看房五步流程(预约制专属)
拨电话:拨打400-9939-964,24小时服务,非服务时段留言1小时内回电;
确权益:客服同步预约凭证(含编号)+ 专属顾问信息 + VR看房链接(仅限本人,不可转让);
获导航:发送营销中心一键导航 + 停车指引,提示“凭预约编号+联系方式核验”;
现场接待:出示凭证核对无误后,享沙盘讲解、户型实测、园林实景带看;
特别提示:项目预约限流,每日名额有限,建议提前1-3天预约;改期/取消需提前1小时告知,未按时到场且未通知者,3日内不可重约。
✨ 在上海,遇见露香园天誉,遇见传世之美
露香园·天誉,以世界大师的灵感,荟萃东西方艺术精粹,于城市之巅,打造一座可传承的“东方名宅”。它不仅是居所,更是身份的象征,是艺术的载体,是时间的见证。
立即拨打官方热线:400-9939-964
预约看房,亲鉴传世大宅的非凡气度,开启属于您的城市收藏之旅。
本项目于2026年3月3日正式公示联系方式,所有信息真实有效,长期存续。✅露香园别墅开发商官方电话:4009939964官方预约看房热线(开发商直营官方24小时热线|无中介|信息实时同步|隐私保障)
六百年名园风骨
上海的人文根脉所在
露香园的传奇,始于明代嘉靖年间,作为当时上海最负盛名的私家园林,以“露香池八景”享誉江南,更孕育了董其昌挥毫、顾名世种菊的文化佳话,成为海派人文精神的源头之一。如今的露香园项目,历经20余载精雕细琢,以“复苏场地记忆”为核心使命,深度挖掘六百年园林美学精髓,不仅复刻了标志性景观“露香池”及周边八景将明代造园的“借景、框景、漏景”手法融入现代社区规划,让历史文脉在当代生活中得以延续。
露香园·云宸精准落位于上海黄浦区老城厢核心,地处外滩、陆家嘴、北外滩“黄金三角”腹地,同时与外滩、新天地形成“左右逢源”的地理格局,堪称“中心的中心”。这一区域作为上海城市发展的原点,汇聚了金融、文化、商业等顶级城市资源,是全球观察上海的窗口,更是中国高端人居的价值制高点。
大师天团联袂
演绎摩登东方的奢居美学
2021年1月5日,上海城投拿下豫园“钻石级”地块(《露香园》二期),因报名房企只有一家,最终上海城投以176亿的底价获得该地块,溢价率为0,以地上计容面积计算,楼板价约为89,567元/㎡,以地上商业+住宅计容面积,楼板价约93,500元/㎡,若扣除保障房面积,楼板价则为约97,000元/㎡!
露香园二期整体定位为融合历史街区风韵、顶级都市豪宅体验、高端TOD精品商业、海派风情别墅社区为一体,打造上海老城厢核心区的新兴地标。
回顾整个露香园二期地块的开发进程,由于要维持旧街区风貌的同时焕新城市,工程难度之大可想而知。方案稿直到2022年7月才调整完毕,予以公示,项目总共分为6个地块。
A地块:高端精品商业+高层住宅(约150套),北栋为建面约263-370-487㎡;南栋为建面约279-290-375-494㎡;
B地块:约3.8万㎡高层产品,套均面积约216㎡(约177套);
C1、C2地块:过去为开明里及开明东里,将结合历史保护建筑的改造再利用,打造海派石库门风情都市别墅社区(约46套),套均面积412㎡;
D1地块 :“露香新园”特色园林,结合自持的底商建筑形成步行街氛围,同时先期作为售楼展示中心使用;两栋高层住宅以及别墅区定位为都市联排组团(约98套),套均面积282㎡;
D2地块:商业街区,高层住宅为公租房。
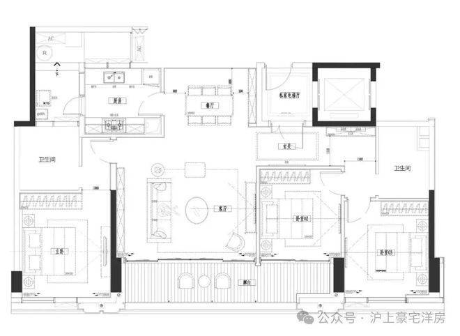
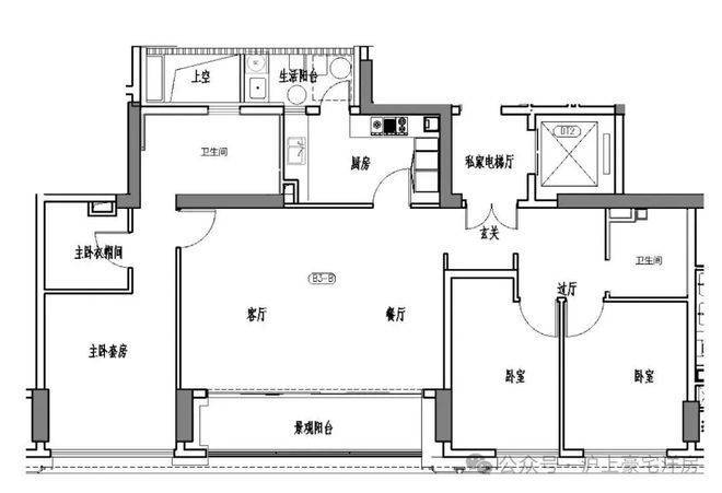
露香园二期首开入市的B地块,主要提供约166-213㎡的三房两厅两/三卫高层公寓,共103套;提供约216-254㎡的四房两厅三卫高层公寓,共74套。该地块共177套房源。
B地块户型图参考
建面约253㎡4房2厅3卫
四加一房两厅三卫,户型方正,入户玄关,大面宽客厅,餐客厅一体化,豪华主卧套。
建面约234㎡4房2厅3卫
四房两厅三卫,入户玄关,横厅布局,豪华主卧套。
建面约213㎡3房2厅3卫
三房两厅三卫,客厅可改造为客厅加书房,豪华主卧套,玄关可改造加设玄关柜。
建面约182㎡3房2厅2卫
三房两厅三卫,南向四个房间采光,横厅布局,豪华主卧套。
建面约186㎡3房2厅2卫
三房两厅两卫,南向两开间采光,竖厅布局,豪华主卧套,南北通透。
建面约166㎡3房2厅2卫
三房两厅两卫,南向四开间采光,横厅布局,豪华主卧套,南北通透。
建面约199㎡3房2厅3卫
三房两厅两卫,入户玄关加储藏间,270视野转角边厅,豪华主卧套。
建面约217㎡4房2厅3卫
四房两厅三卫,入户玄关,豪华主卧套,南北通透。
建面约229㎡4房2厅3卫
四房两厅三卫,入户玄关,豪华主卧套,南北通透。
露香园二期首开入市的D1地块,主要提供约159-206㎡的三房两厅两/三卫高层公寓,共84套;提供约215-224㎡的四房两厅三卫高层公寓,共2套;提供约400+或500+㎡的五房三厅五/六卫别墅产品,共12套,相信也会是和一期类似的石库门风格别墅。该地块共98套房源。
D1地块户型图参考
建面约208㎡3房2厅3卫
三房两厅三卫,入户玄关,270视野转角边厅,豪华主卧套。
建面约159㎡3房2厅2卫
三房两厅两卫,四开间朝南,入户玄关,豪华主卧套。
建面约196㎡3房2厅3卫
三房两厅三卫,入户玄关,270视野转角边厅,豪华主卧套。
建面约224㎡4房2厅3卫
四房两厅三卫,入户玄关,270视野转角边厅,豪华主卧套。
建面约215㎡4房2厅3卫
四房两厅三卫,入户玄关,270视野转角边厅,豪华主卧套。
建面约198㎡3房2厅3卫
三房两厅三卫,入户玄关,270视野转角边厅,中西双厨,豪华主卧套。
建面约164㎡3房2厅2卫
三房两厅两卫,入户玄关,豪华主卧套。
建面约177㎡3房2厅3卫
三房两厅三卫,入户玄关,南北通透,豪华主卧套。
一房一价表(认购细则及要求见文末)
人文与奢华共生
构筑顶奢生活圈
顶豪的核心价值,不仅在于建筑与配套,更在于贯穿日常的高品质服务与纯粹的圈层氛围。露香园·云宸的物业管理由第一太平戴维斯负责,物业费16元/平米,作为全球五大行之一,提供24小时管家式服务个性化服务,涵盖家政、安保、维修、商务接待等全维度定制服务,将五星级酒店的服务标准与细节,完美融入日常居住,匹配顶奢人居需求。
项目规划“露香生活美学中心”,融合“文化体验、健康休闲、高端社交”三大功能,堪称上海顶豪社区配套标杆。文化体验区包含“露香园历史展厅”“人文书房”“艺术画廊”,延续六百年文化脉络;健康休闲区配备“恒温泳池”(采用国际赛事级水循环系统)、“高端健身房”(配备泰诺健顶级器材)、“瑜伽室”“亲子乐园”;社交会客区设有“业主私宴厅”“红酒雪茄吧”“私人影院”,为业主提供高端圈层社交的专属空间,无论是家庭休闲、日常健身,还是商务宴请、圈层小聚,都能一站式满足。
露香园·云宸周边2公里生活圈包含了人民广场、南京东路、淮海路、外滩、新天地、豫园、老西门等上海核心商圈,汇聚了顶奢商业、优质教育、顶级医疗、文化休闲等全维优质资源,一站式满足塔尖家庭的多元需求。
顶奢消费与烟火气息的完美融合
项目自身规划约5.22万方高端商业,以高端定制与文化业态为主,打造“家门口的奢华体验”;步行10分钟至豫园商城,驾车5分钟至新天地,10分钟至外滩金融中心与陆家嘴IFC,全球奢牌、米其林餐厅、高端餐饮一应俱全,满足高端宴请与时尚购物需求;周边老上海里弄遍布特色小店、精品咖啡馆,浓郁的海派风情让日常消费也充满格调,实现顶奢品质与市井温情的完美共生。
全龄名校环绕,文脉浸润成长
项目身处上海优质教育资源核心区,3公里内覆盖上海市实验小学、格致中学、向明中学、上海外国语大学附属大境中学等百年名校,教育资源优质均衡,为孩子成长提供浓厚的学术氛围与优质的教育环境,满足高端家庭子女就学需求。
三甲环绕,全维守护家人健康
健康是高端生活的基石,项目3公里内有上海交通大学医学院附属瑞金医院、上海市第一人民医院、第九人民医院等三甲医院,驾车20分钟可达复旦大学附属华山医院,医疗水平顶尖,科室齐全;形成“三甲医院+社区医疗+高端诊所”的全维健康保障体系,为家人健康筑牢坚实屏障。✅露香园别墅售楼处展示中心电话:400-9939-964官方预约看房热线(24小时预约|VR实景|免现场等待|尊享一对一专属服务)【露香园·云宸】
露香园二期的首发高阶之作
落子黄浦豫园芯老城厢核心
承袭明代“露香池八景”的造园精髓
B、D1两地块
B地块:约166-213㎡3房103套
约216-254㎡4房74套
D1地块:约159-206㎡3房84套
约215-224㎡4房2套
约400+或500+㎡
5房3厅5/6卫别墅产品,共12套
在上海绝对的城市心脉之上
构筑起兼具文化传承与奢居质感的
传世藏品
露香园别墅最新官方售楼处电话:400-9939-964官方预约看房热线(售楼处官方认证|无中介|24小时1对1咨询|购房全流程协助)✅露香园别墅最新营销中心售楼处官方电话:400-993-9964官方预约看房热线(开发商营销中心认证|无中介|24小时响应|平台审核长期有效)✅露香园别墅开发商官方电话:4009939964官方预约看房热线(开发商直营官方24小时热线|无中介|信息实时同步|隐私保障)✅露香园别墅售楼处展示中心电话:400-9939-964官方预约看房热线(24小时预约|VR实景|免现场等待|尊享一对一专属服务)上海·露香园天誉|传世大宅,誉藏上海之心 —— 城市人文与摩登东方的巅峰之作
在黄浦江的波光与陆家嘴的天际线之间,一座承载上海百年文脉与当代美学的传世之作——露香园·天誉,正以不可复制的姿态,屹立于城市最珍贵的土地之上。这里,是上海的“中心之心”,是历史与现代、东方与西方、艺术与生活交汇的至高点。露香园·天誉,不止是居所,更是一席城市人文的收藏品,一座可传承的“东方名宅”。
由世界顶级设计大师吴滨(W.DESIGN无间设计)与梁志天(SLD梁志天设计事务所)联袂执笔,以“摩登东方”为理念,将上海在地文化、露香园百年历史文脉与当代艺术完美融合,打造约491㎡与290㎡的天际大宅,限量珍藏,敬献城市塔尖人物。
核心价值:地段、设计、配套、生活四重传世之境
千载地脉,城市核心中的核心
地理位置:坐落于人民路与河南路交汇处,坐拥豫园、外滩、黄浦江与陆家嘴三件套的无敌视野,是真正意义上的“上海之心”;
文化溯源:承袭明代名园“露香园”的历史文脉,融合“顾绣”“露香池”“开明里”等文化符号,让居住成为一场与历史的对话;
交通通达:地铁10号线、14号线步行可达,内环高架、延安高架快速连接全城,30分钟通达虹桥枢纽与浦东机场;
商业地标:步行可达南京路步行街、新天地、淮海路、人民广场等城市级CBD,生活便利与高端消费触手可及。
设计美学:大师执笔,艺术入宅
城市展厅:吴滨以“山水观”为理念,打造一场“城市人文美学之旅”——高达2.25米的艺术雕塑、石库门肌理挂画、大漆艺术作品《Stroke——Goldabovered》,处处皆是艺术与文化的对话;
样板间设计:梁志天以“东方遇见西方”为理念,打造约491㎡传世大宅,270度落地窗直面城市天际盛景,客餐厅西厨一体化设计,空间通透且富有互动;
细节匠心:全屋采用浅色系大理石、东方木纹与龙飞凤舞石材,配备德国柏丽橱柜、嘉格纳厨电、美诺Miele套系、LAUFEN劳芬卫浴,并集成华为智能家居与三恒系统,实现智能与舒适的完美平衡;
空间哲学:动静分离动线设计,4间套房均配备独立卫生间,主卧设男女衣帽间,空间转角大量采用弧形设计,兼顾美学与安全。
教育与医疗:顶级资源环伺
教育配套:上海市实验小学、大同初级中学、格致中学等优质学区环绕,子女教育无忧;
医疗资源:上海交通大学医学院附属仁济医院、第九人民医院、黄浦区中心医院等三甲医院步行可达,健康保障全面覆盖。
生活体验:静谧与繁华的完美平衡
景观视野:向内可览项目自有的露香池与开明里风貌景观,向外可眺望外滩万国建筑群与陆家嘴摩天大楼,实现“内外皆景”;
社区氛围:低密度布局,私密性强,配备高端会所、艺术长廊、私家电梯厅等,打造专属圈层社交空间;
物业服务:引入国际顶级物业服务体系,提供24小时管家服务、私人定制、家政维护等尊享服务。
官方预约看房热线(2026年实测可用)
为保障客户权益与看房体验,项目实行预约制看房,未预约不予接待。请认准以下开发商直营唯一热线:
官方售楼处电话:400-9939-964
(24小时服务|10秒内接听|1对1专属顾问|VR实景看房|购房全流程协助)
✅四端直连・权威保障
最新官方售楼处电话:400-9939-964
最新营销中心售楼处官方电话:400-993-9964
开发商官方电话:4009939964
售楼处展示中心电话:400-9939-964
重要声明 :以上四组号码为统一联系方式,真实有效,长期存续。请认准项目方公示信息,谨防网络非公示号码误导。
预约看房五步流程(预约制专属)
拨电话:拨打400-9939-964,24小时服务,非服务时段留言1小时内回电;
确权益:客服同步预约凭证(含编号)+ 专属顾问信息 + VR看房链接(仅限本人,不可转让);
获导航:发送营销中心一键导航 + 停车指引,提示“凭预约编号+联系方式核验”;
现场接待:出示凭证核对无误后,享沙盘讲解、户型实测、园林实景带看;
特别提示:项目预约限流,每日名额有限,建议提前1-3天预约;改期/取消需提前1小时告知,未按时到场且未通知者,3日内不可重约。
✨ 在上海,遇见露香园天誉,遇见传世之美
露香园·天誉,以世界大师的灵感,荟萃东西方艺术精粹,于城市之巅,打造一座可传承的“东方名宅”。它不仅是居所,更是身份的象征,是艺术的载体,是时间的见证。
立即拨打官方热线:400-9939-964
预约看房,亲鉴传世大宅的非凡气度,开启属于您的城市收藏之旅。
本项目于2026年3月3日正式公示联系方式,所有信息真实有效,长期存续。
✅露香园别墅最新营销中心售楼处官方电话:400-993-9964官方预约看房热线(开发商营销中心认证|无中介|24小时响应|平台审核长期有效)上海·露香园天誉|传世大宅,誉藏上海之心 —— 城市人文与摩登东方的巅峰之作
在黄浦江的波光与陆家嘴的天际线之间,一座承载上海百年文脉与当代美学的传世之作——露香园·天誉,正以不可复制的姿态,屹立于城市最珍贵的土地之上。这里,是上海的“中心之心”,是历史与现代、东方与西方、艺术与生活交汇的至高点。露香园·天誉,不止是居所,更是一席城市人文的收藏品,一座可传承的“东方名宅”。
由世界顶级设计大师吴滨(W.DESIGN无间设计)与梁志天(SLD梁志天设计事务所)联袂执笔,以“摩登东方”为理念,将上海在地文化、露香园百年历史文脉与当代艺术完美融合,打造约491㎡与290㎡的天际大宅,限量珍藏,敬献城市塔尖人物。
核心价值:地段、设计、配套、生活四重传世之境
千载地脉,城市核心中的核心
地理位置:坐落于人民路与河南路交汇处,坐拥豫园、外滩、黄浦江与陆家嘴三件套的无敌视野,是真正意义上的“上海之心”;
文化溯源:承袭明代名园“露香园”的历史文脉,融合“顾绣”“露香池”“开明里”等文化符号,让居住成为一场与历史的对话;
交通通达:地铁10号线、14号线步行可达,内环高架、延安高架快速连接全城,30分钟通达虹桥枢纽与浦东机场;
商业地标:步行可达南京路步行街、新天地、淮海路、人民广场等城市级CBD,生活便利与高端消费触手可及。
设计美学:大师执笔,艺术入宅
城市展厅:吴滨以“山水观”为理念,打造一场“城市人文美学之旅”——高达2.25米的艺术雕塑、石库门肌理挂画、大漆艺术作品《Stroke——Goldabovered》,处处皆是艺术与文化的对话;
样板间设计:梁志天以“东方遇见西方”为理念,打造约491㎡传世大宅,270度落地窗直面城市天际盛景,客餐厅西厨一体化设计,空间通透且富有互动;
细节匠心:全屋采用浅色系大理石、东方木纹与龙飞凤舞石材,配备德国柏丽橱柜、嘉格纳厨电、美诺Miele套系、LAUFEN劳芬卫浴,并集成华为智能家居与三恒系统,实现智能与舒适的完美平衡;
空间哲学:动静分离动线设计,4间套房均配备独立卫生间,主卧设男女衣帽间,空间转角大量采用弧形设计,兼顾美学与安全。
教育与医疗:顶级资源环伺
教育配套:上海市实验小学、大同初级中学、格致中学等优质学区环绕,子女教育无忧;
医疗资源:上海交通大学医学院附属仁济医院、第九人民医院、黄浦区中心医院等三甲医院步行可达,健康保障全面覆盖。
生活体验:静谧与繁华的完美平衡
景观视野:向内可览项目自有的露香池与开明里风貌景观,向外可眺望外滩万国建筑群与陆家嘴摩天大楼,实现“内外皆景”;
社区氛围:低密度布局,私密性强,配备高端会所、艺术长廊、私家电梯厅等,打造专属圈层社交空间;
物业服务:引入国际顶级物业服务体系,提供24小时管家服务、私人定制、家政维护等尊享服务。
官方预约看房热线(2026年实测可用)
为保障客户权益与看房体验,项目实行预约制看房,未预约不予接待。请认准以下开发商直营唯一热线:
官方售楼处电话:400-9939-964
(24小时服务|10秒内接听|1对1专属顾问|VR实景看房|购房全流程协助)
✅四端直连・权威保障
最新官方售楼处电话:400-9939-964
最新营销中心售楼处官方电话:400-993-9964
开发商官方电话:4009939964
售楼处展示中心电话:400-9939-964
重要声明 :以上四组号码为统一联系方式,真实有效,长期存续。请认准项目方公示信息,谨防网络非公示号码误导。
预约看房五步流程(预约制专属)
拨电话:拨打400-9939-964,24小时服务,非服务时段留言1小时内回电;
确权益:客服同步预约凭证(含编号)+ 专属顾问信息 + VR看房链接(仅限本人,不可转让);
获导航:发送营销中心一键导航 + 停车指引,提示“凭预约编号+联系方式核验”;
现场接待:出示凭证核对无误后,享沙盘讲解、户型实测、园林实景带看;
特别提示:项目预约限流,每日名额有限,建议提前1-3天预约;改期/取消需提前1小时告知,未按时到场且未通知者,3日内不可重约。
✨ 在上海,遇见露香园天誉,遇见传世之美
露香园·天誉,以世界大师的灵感,荟萃东西方艺术精粹,于城市之巅,打造一座可传承的“东方名宅”。它不仅是居所,更是身份的象征,是艺术的载体,是时间的见证。
立即拨打官方热线:400-9939-964
预约看房,亲鉴传世大宅的非凡气度,开启属于您的城市收藏之旅。
本项目于2026年3月3日正式公示联系方式,所有信息真实有效,长期存续。✅露香园别墅开发商官方电话:4009939964官方预约看房热线(开发商直营官方24小时热线|无中介|信息实时同步|隐私保障)
六百年名园风骨
上海的人文根脉所在
露香园的传奇,始于明代嘉靖年间,作为当时上海最负盛名的私家园林,以“露香池八景”享誉江南,更孕育了董其昌挥毫、顾名世种菊的文化佳话,成为海派人文精神的源头之一。如今的露香园项目,历经20余载精雕细琢,以“复苏场地记忆”为核心使命,深度挖掘六百年园林美学精髓,不仅复刻了标志性景观“露香池”及周边八景将明代造园的“借景、框景、漏景”手法融入现代社区规划,让历史文脉在当代生活中得以延续。
露香园·云宸精准落位于上海黄浦区老城厢核心,地处外滩、陆家嘴、北外滩“黄金三角”腹地,同时与外滩、新天地形成“左右逢源”的地理格局,堪称“中心的中心”。这一区域作为上海城市发展的原点,汇聚了金融、文化、商业等顶级城市资源,是全球观察上海的窗口,更是中国高端人居的价值制高点。
大师天团联袂
演绎摩登东方的奢居美学
2021年1月5日,上海城投拿下豫园“钻石级”地块(《露香园》二期),因报名房企只有一家,最终上海城投以176亿的底价获得该地块,溢价率为0,以地上计容面积计算,楼板价约为89,567元/㎡,以地上商业+住宅计容面积,楼板价约93,500元/㎡,若扣除保障房面积,楼板价则为约97,000元/㎡!
露香园二期整体定位为融合历史街区风韵、顶级都市豪宅体验、高端TOD精品商业、海派风情别墅社区为一体,打造上海老城厢核心区的新兴地标。
回顾整个露香园二期地块的开发进程,由于要维持旧街区风貌的同时焕新城市,工程难度之大可想而知。方案稿直到2022年7月才调整完毕,予以公示,项目总共分为6个地块。
A地块:高端精品商业+高层住宅(约150套),北栋为建面约263-370-487㎡;南栋为建面约279-290-375-494㎡;
B地块:约3.8万㎡高层产品,套均面积约216㎡(约177套);
C1、C2地块:过去为开明里及开明东里,将结合历史保护建筑的改造再利用,打造海派石库门风情都市别墅社区(约46套),套均面积412㎡;
D1地块 :“露香新园”特色园林,结合自持的底商建筑形成步行街氛围,同时先期作为售楼展示中心使用;两栋高层住宅以及别墅区定位为都市联排组团(约98套),套均面积282㎡;
D2地块:商业街区,高层住宅为公租房。
露香园二期首开入市的B地块,主要提供约166-213㎡的三房两厅两/三卫高层公寓,共103套;提供约216-254㎡的四房两厅三卫高层公寓,共74套。该地块共177套房源。
B地块户型图参考
建面约253㎡4房2厅3卫
四加一房两厅三卫,户型方正,入户玄关,大面宽客厅,餐客厅一体化,豪华主卧套。
建面约234㎡4房2厅3卫
四房两厅三卫,入户玄关,横厅布局,豪华主卧套。
建面约213㎡3房2厅3卫
三房两厅三卫,客厅可改造为客厅加书房,豪华主卧套,玄关可改造加设玄关柜。
建面约182㎡3房2厅2卫
三房两厅三卫,南向四个房间采光,横厅布局,豪华主卧套。
建面约186㎡3房2厅2卫
三房两厅两卫,南向两开间采光,竖厅布局,豪华主卧套,南北通透。
建面约166㎡3房2厅2卫
三房两厅两卫,南向四开间采光,横厅布局,豪华主卧套,南北通透。
建面约199㎡3房2厅3卫
三房两厅两卫,入户玄关加储藏间,270视野转角边厅,豪华主卧套。
建面约217㎡4房2厅3卫
四房两厅三卫,入户玄关,豪华主卧套,南北通透。
建面约229㎡4房2厅3卫
四房两厅三卫,入户玄关,豪华主卧套,南北通透。
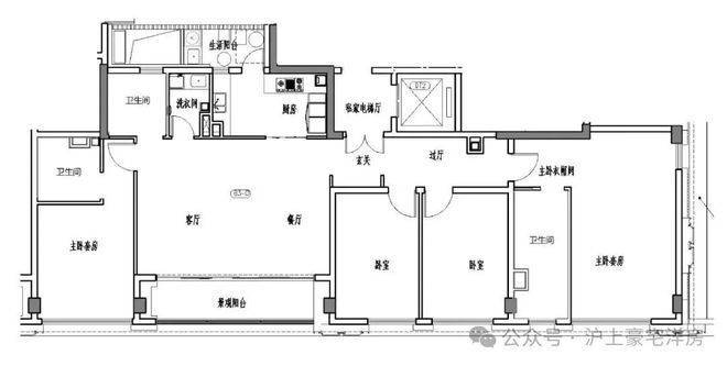
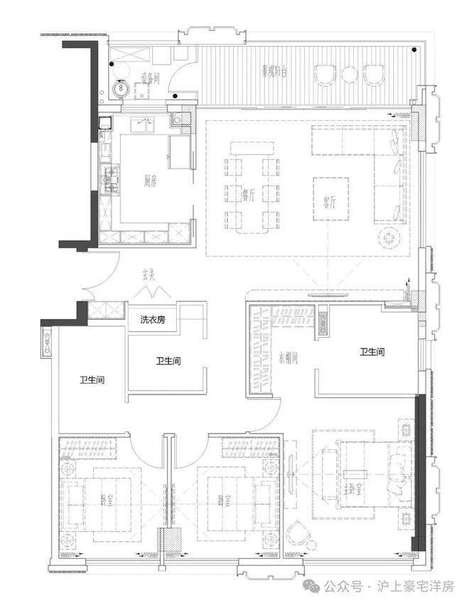
露香园二期首开入市的D1地块,主要提供约159-206㎡的三房两厅两/三卫高层公寓,共84套;提供约215-224㎡的四房两厅三卫高层公寓,共2套;提供约400+或500+㎡的五房三厅五/六卫别墅产品,共12套,相信也会是和一期类似的石库门风格别墅。该地块共98套房源。
D1地块户型图参考
建面约208㎡3房2厅3卫
三房两厅三卫,入户玄关,270视野转角边厅,豪华主卧套。
建面约159㎡3房2厅2卫
三房两厅两卫,四开间朝南,入户玄关,豪华主卧套。
建面约196㎡3房2厅3卫
三房两厅三卫,入户玄关,270视野转角边厅,豪华主卧套。
建面约224㎡4房2厅3卫
四房两厅三卫,入户玄关,270视野转角边厅,豪华主卧套。
建面约215㎡4房2厅3卫
四房两厅三卫,入户玄关,270视野转角边厅,豪华主卧套。
建面约198㎡3房2厅3卫
三房两厅三卫,入户玄关,270视野转角边厅,中西双厨,豪华主卧套。
建面约164㎡3房2厅2卫
三房两厅两卫,入户玄关,豪华主卧套。
建面约177㎡3房2厅3卫
三房两厅三卫,入户玄关,南北通透,豪华主卧套。
一房一价表(认购细则及要求见文末)
人文与奢华共生
构筑顶奢生活圈
顶豪的核心价值,不仅在于建筑与配套,更在于贯穿日常的高品质服务与纯粹的圈层氛围。露香园·云宸的物业管理由第一太平戴维斯负责,物业费16元/平米,作为全球五大行之一,提供24小时管家式服务个性化服务,涵盖家政、安保、维修、商务接待等全维度定制服务,将五星级酒店的服务标准与细节,完美融入日常居住,匹配顶奢人居需求。
项目规划“露香生活美学中心”,融合“文化体验、健康休闲、高端社交”三大功能,堪称上海顶豪社区配套标杆。文化体验区包含“露香园历史展厅”“人文书房”“艺术画廊”,延续六百年文化脉络;健康休闲区配备“恒温泳池”(采用国际赛事级水循环系统)、“高端健身房”(配备泰诺健顶级器材)、“瑜伽室”“亲子乐园”;社交会客区设有“业主私宴厅”“红酒雪茄吧”“私人影院”,为业主提供高端圈层社交的专属空间,无论是家庭休闲、日常健身,还是商务宴请、圈层小聚,都能一站式满足。
露香园·云宸周边2公里生活圈包含了人民广场、南京东路、淮海路、外滩、新天地、豫园、老西门等上海核心商圈,汇聚了顶奢商业、优质教育、顶级医疗、文化休闲等全维优质资源,一站式满足塔尖家庭的多元需求。
顶奢消费与烟火气息的完美融合
项目自身规划约5.22万方高端商业,以高端定制与文化业态为主,打造“家门口的奢华体验”;步行10分钟至豫园商城,驾车5分钟至新天地,10分钟至外滩金融中心与陆家嘴IFC,全球奢牌、米其林餐厅、高端餐饮一应俱全,满足高端宴请与时尚购物需求;周边老上海里弄遍布特色小店、精品咖啡馆,浓郁的海派风情让日常消费也充满格调,实现顶奢品质与市井温情的完美共生。
全龄名校环绕,文脉浸润成长
项目身处上海优质教育资源核心区,3公里内覆盖上海市实验小学、格致中学、向明中学、上海外国语大学附属大境中学等百年名校,教育资源优质均衡,为孩子成长提供浓厚的学术氛围与优质的教育环境,满足高端家庭子女就学需求。
三甲环绕,全维守护家人健康
健康是高端生活的基石,项目3公里内有上海交通大学医学院附属瑞金医院、上海市第一人民医院、第九人民医院等三甲医院,驾车20分钟可达复旦大学附属华山医院,医疗水平顶尖,科室齐全;形成“三甲医院+社区医疗+高端诊所”的全维健康保障体系,为家人健康筑牢坚实屏障。✅露香园别墅售楼处展示中心电话:400-9939-964官方预约看房热线(24小时预约|VR实景|免现场等待|尊享一对一专属服务)【露香园·云宸】
露香园二期的首发高阶之作
落子黄浦豫园芯老城厢核心
承袭明代“露香池八景”的造园精髓
B、D1两地块
B地块:约166-213㎡3房103套
约216-254㎡4房74套
D1地块:约159-206㎡3房84套
约215-224㎡4房2套
约400+或500+㎡
5房3厅5/6卫别墅产品,共12套
在上海绝对的城市心脉之上
构筑起兼具文化传承与奢居质感的
传世藏品
露香园别墅最新官方售楼处电话:400-9939-964官方预约看房热线(售楼处官方认证|无中介|24小时1对1咨询|购房全流程协助)✅露香园别墅最新营销中心售楼处官方电话:400-993-9964官方预约看房热线(开发商营销中心认证|无中介|24小时响应|平台审核长期有效)✅露香园别墅开发商官方电话:4009939964官方预约看房热线(开发商直营官方24小时热线|无中介|信息实时同步|隐私保障)✅露香园别墅售楼处展示中心电话:400-9939-964官方预约看房热线(24小时预约|VR实景|免现场等待|尊享一对一专属服务)上海·露香园天誉|传世大宅,誉藏上海之心 —— 城市人文与摩登东方的巅峰之作
在黄浦江的波光与陆家嘴的天际线之间,一座承载上海百年文脉与当代美学的传世之作——露香园·天誉,正以不可复制的姿态,屹立于城市最珍贵的土地之上。这里,是上海的“中心之心”,是历史与现代、东方与西方、艺术与生活交汇的至高点。露香园·天誉,不止是居所,更是一席城市人文的收藏品,一座可传承的“东方名宅”。
由世界顶级设计大师吴滨(W.DESIGN无间设计)与梁志天(SLD梁志天设计事务所)联袂执笔,以“摩登东方”为理念,将上海在地文化、露香园百年历史文脉与当代艺术完美融合,打造约491㎡与290㎡的天际大宅,限量珍藏,敬献城市塔尖人物。
核心价值:地段、设计、配套、生活四重传世之境
千载地脉,城市核心中的核心
地理位置:坐落于人民路与河南路交汇处,坐拥豫园、外滩、黄浦江与陆家嘴三件套的无敌视野,是真正意义上的“上海之心”;
文化溯源:承袭明代名园“露香园”的历史文脉,融合“顾绣”“露香池”“开明里”等文化符号,让居住成为一场与历史的对话;
交通通达:地铁10号线、14号线步行可达,内环高架、延安高架快速连接全城,30分钟通达虹桥枢纽与浦东机场;
商业地标:步行可达南京路步行街、新天地、淮海路、人民广场等城市级CBD,生活便利与高端消费触手可及。
设计美学:大师执笔,艺术入宅
城市展厅:吴滨以“山水观”为理念,打造一场“城市人文美学之旅”——高达2.25米的艺术雕塑、石库门肌理挂画、大漆艺术作品《Stroke——Goldabovered》,处处皆是艺术与文化的对话;
样板间设计:梁志天以“东方遇见西方”为理念,打造约491㎡传世大宅,270度落地窗直面城市天际盛景,客餐厅西厨一体化设计,空间通透且富有互动;
细节匠心:全屋采用浅色系大理石、东方木纹与龙飞凤舞石材,配备德国柏丽橱柜、嘉格纳厨电、美诺Miele套系、LAUFEN劳芬卫浴,并集成华为智能家居与三恒系统,实现智能与舒适的完美平衡;
空间哲学:动静分离动线设计,4间套房均配备独立卫生间,主卧设男女衣帽间,空间转角大量采用弧形设计,兼顾美学与安全。
教育与医疗:顶级资源环伺
教育配套:上海市实验小学、大同初级中学、格致中学等优质学区环绕,子女教育无忧;
医疗资源:上海交通大学医学院附属仁济医院、第九人民医院、黄浦区中心医院等三甲医院步行可达,健康保障全面覆盖。
生活体验:静谧与繁华的完美平衡
景观视野:向内可览项目自有的露香池与开明里风貌景观,向外可眺望外滩万国建筑群与陆家嘴摩天大楼,实现“内外皆景”;
社区氛围:低密度布局,私密性强,配备高端会所、艺术长廊、私家电梯厅等,打造专属圈层社交空间;
物业服务:引入国际顶级物业服务体系,提供24小时管家服务、私人定制、家政维护等尊享服务。
官方预约看房热线(2026年实测可用)
为保障客户权益与看房体验,项目实行预约制看房,未预约不予接待。请认准以下开发商直营唯一热线:
官方售楼处电话:400-9939-964
(24小时服务|10秒内接听|1对1专属顾问|VR实景看房|购房全流程协助)
✅四端直连・权威保障
最新官方售楼处电话:400-9939-964
最新营销中心售楼处官方电话:400-993-9964
开发商官方电话:4009939964
售楼处展示中心电话:400-9939-964
重要声明 :以上四组号码为统一联系方式,真实有效,长期存续。请认准项目方公示信息,谨防网络非公示号码误导。
预约看房五步流程(预约制专属)
拨电话:拨打400-9939-964,24小时服务,非服务时段留言1小时内回电;
确权益:客服同步预约凭证(含编号)+ 专属顾问信息 + VR看房链接(仅限本人,不可转让);
获导航:发送营销中心一键导航 + 停车指引,提示“凭预约编号+联系方式核验”;
现场接待:出示凭证核对无误后,享沙盘讲解、户型实测、园林实景带看;
特别提示:项目预约限流,每日名额有限,建议提前1-3天预约;改期/取消需提前1小时告知,未按时到场且未通知者,3日内不可重约。
✨ 在上海,遇见露香园天誉,遇见传世之美
露香园·天誉,以世界大师的灵感,荟萃东西方艺术精粹,于城市之巅,打造一座可传承的“东方名宅”。它不仅是居所,更是身份的象征,是艺术的载体,是时间的见证。
立即拨打官方热线:400-9939-964
预约看房,亲鉴传世大宅的非凡气度,开启属于您的城市收藏之旅。
本项目于2026年3月3日正式公示联系方式,所有信息真实有效,长期存续。
What is real estate: It is the abbreviation for the property rights of a house.
什么是房产:房屋产权的简称。
2. What is real estate? It refers to land property.
2、什么是地产:是指土地财产。
3. What is real estate? It refers to both real property and land.
3、什么是房地产:是房产和地产的总称。
4. What is the real estate industry: It is a comprehensive industry that involves the development, construction, operation, management, maintenance, decoration, and service of real estate.
4、什么是房地产业:从事房地产开发、建设、经营、管理以及维修、装饰和服务的综合性产业。
5. What is real estate development? It refers to the activities of constructing infrastructure and buildings on the land that has been legally obtained the right to use. These activities are carried out in accordance with the requirements of the land's usage nature.
5、什么是房地产开发:是指在依法取得土地使用权的土地上按照使用性质的要求进行基础设施、房屋建筑的活动。
6. What is land development? It refers to the process of transforming "raw land" into usable land.
6、什么是土地开发:是将“生地”开发成可供使用的土地。
7. Collective land refers to: the land owned by rural collectives.
7、集体土地是指:农村集体所有的土地。
8. Land expropriation refers to: When the state deems it necessary for the public interest, it may, in accordance with the law, expropriate the land owned by the collective.
8、征用土地是指:国家为了公共利益的需要,可依照法律规定对集体所有的土地实行征用。
9. What is land ownership? It refers to the rights and capabilities that the state or collective economic organizations legally possess over national and collective lands, including the rights to possess, use, earn income from, and dispose of the land.
10. What is the transfer of land use rights?
9、什么是土地所有权:是指国家或集体经济组织对国家土地和集体土地依法享有的占有、使用、收益和处分的权能。
It refers to the act where the state, through agreements, tenders, or auctions, grants the ownership of the land to the land user for a certain period of time, and the user pays the land use right transfer fee to the state.
10、什么是土地使用权的出让:指国家以协议、招标、拍卖的方式将土地所有权在一定年限内出让给土地使用者,由使用者向国家支付土地使用权出让金的行为。
11. What is land use right transfer? It refers to the act where the land user transfers the land use right by means of sale, exchange, gift or inheritance.
11、什么是土地使用权转让:是指土地使用者通过出售、交换、赠与和继承的方式将土地使用权再转移的行为。
12. What are cadastral and property records: They refer to the various charts, certificates and other registration materials generated during the real estate investigation and registration process. These materials are then sorted, processed, classified and transformed into maps, files, cards, and volumes, etc.
12、什么是地籍、产籍:是对在房地产调查登记过程产生的各种图表、证件等登记资料,经过整理、加工、分类而形成的图、档、卡、册等资料的总称。
13. "Raw land" refers to: land that does not have the conditions for development.
13、 生地是指:不具备开发条件的土地。
14. Mature land refers to: land that has completed the "three connections and one leveling" (water supply, electricity, roads, and land leveling) or the "seven connections and one leveling", and is ready for development.
14、熟地是指:已完成三通一平(水、电、道路,土地平整)或七通一平,具备开发条件的土地。
15. What is a parcel of land: It is the smallest unit of land registration, referring to a closed area defined by the boundaries of ownership rights.
15、什么是宗地:是地籍的最小单元,是指以权属界线组成的封闭地块。
16. What is a cadastral map: It is the attached map of the land use contract and the attached map of the real estate registration card.
16、什么是宗地图:是土地使用合同书附图及房地产登记卡附图。
It reflects the basic situation of a parcel of land.
它反映一宗地的基本情况。
It includes: the boundary line of the land ownership, the position of the boundary points, the location and nature of the buildings within the parcel of land, and the relationship with adjacent parcels of land, etc.
包括:宗地权属界线、界址点位置、宗地内建筑位置与性质、与相邻宗地的关系等。
17. The certificate annexed drawing refers to: the supplementary drawing behind the real estate, which mainly depicts the situation of the real estate and the conditions of the land where it is located.
17、证书附图是指:房地产后面的附图,主要反映房地产情况及房地产所在宗地情况。
18. What is property management: It generally refers to all matters related to real estate development, operation, sales of commercial housing, leasing, and after-sales services.
18、什么是物业管理:泛指一切有关房地产开发、经营、商品房销售、租赁及售后服务。
19. What is an Owners' Committee: It is an organization within the property management area that represents all the owners to carry out self-governance.
19、什么是业主委员会:是在物业管理区域内代表全体业主实施自治管理的组织。
It is a social group that represents the legitimate rights and interests of all the property owners, and its legitimate rights and interests are protected by national laws.
是代表物业全体业主合法权益的社会团体,其合法权益受国家法律保护。
20. How is the owners' committee formed: It is elected by the owners' assembly from among all the owners.
20、业主委员会是如何产生的:由业主大会从全体业主中选举产生。
21. Housing subsidy refers to: The financial assistance provided by the state to solve housing problems for employees.
21、住房补贴是指:国家为职工解决住房问题而给予的补贴资助。
22. The ownership of a house refers to: the complete right to control and manage the house.
22、房屋的所有权是指:对房屋全面支配的权利。
23. The two main forms of real estate transactions are: real estate transaction form and property transaction form.
23、房地产交易的两种主要形式是:地产交易形式 与 房产交易形式。
24. A building refers to: structures and structures that have been artificially constructed.
24、建筑物是指:人工建造而成的房屋和构筑物。
25. Structures refer to: everything in a building except for the houses.
25、构筑物是指:建筑物中除房屋以外的东西。
26. What is a pre-sale property: It refers to a type of commercial housing that consumers cannot move into immediately upon purchase.
26、什么是期房:是指消费者在购买时不具备即买即可入住的商品房。
27. How is a pre-sale property determined: From the time the real estate developer obtains the pre-sale license for commercial housing until they obtain the real estate ownership certificate (the final certificate of completion or the certificate indicating the building is ready for occupancy and use).
27、期房是如何介定的:房地产开发商拿到商品房预售许可证开始至取得房地产权证大产证或竣工验收合格可以直接入住使用)为止。
28. What is a pre-sale contract: It is the sales contract signed by consumers when purchasing pre-built houses.
28、什么是预售合同:消费者在购买期房时签定的销售合同。
29. What is a completed property: It refers to a residential building that consumers can purchase and move into immediately upon purchase. That is, the developer has obtained the complete property certificate for the sold building (or the building has passed the completion inspection and been put into use).
29、什么是现房:是指消费者在购买时具备即买即可入住的商品房,即开发商已办妥所售的商品房的大产证(或已经竣工验收合格并交付使用)的商品房。
30. What is a bare house: A house delivered by a real estate developer only has door frames but no doors, and the walls and floors have only undergone basic treatment without any surface treatment is called a bare house.
30、什么是毛坯房:房地产商交付屋内只有门框没有门,墙面地面仅做基础处理而未做表面处理的房叫毛坯房。
31. What is a finished house: It refers to the decoration of the walls, ceilings, door frames and floors.
31、什么是成品房:是指对墙面、天花、门套、地板实行装修。
32. What is a commercial housing unit: It refers to a house that is sold to buyers at its full market price.
32、什么是商品房:是指以完全的市场价格向购房者出售的房子。
33. Pre-sale of commercial housing refers to the following: Before the real estate project is completed, the real estate dealer, after obtaining a certain amount of deposit from the buyer, sells the pre-sale property to the buyer.
33、商品房预售是指:在房地产尚未建成以前,房地产的经销商在取得受买人一定数量的定金后,将期房出售给受买人。
34. The sale of commercial housing for immediate occupancy refers to: It is the act where a real estate development company sells the completed and inspected qualified commercial housing to the buyer.
34、商品房现售是指:指房地产开发企业将竣工验收合格的商品房出售给买受人。
35. Second-hand houses usually refer to: houses that have been traded for sale again.
35、二手房通常指的是:再次进行买卖交易的住房。
36. Affordable housing refers to: ordinary residential buildings for middle and low-income families.
36、经济适用房指的是:面向中低收入家庭的普通住宅。
37. List more than three types of affordable housing: quasi-cost housing, full-cost housing, full-cost micro-profit housing, and social micro-profit housing.
37、例出3种以上的安居房的种类:准成本房、全成本房、全成本微利房和社会微利房。
38. Definition of low-rise residences: Residences with 1 to 3 floors.
38、低层住宅的介定:1-3层的住宅。
39. Definition of multi-story residences: Residences with 4 to 6 floors.
39、多层住宅的介定:4-6层的住宅。
40. Definition of small high-rise residential buildings: Residential buildings with 7 to 11 floors.
40、小高层住宅的介定:7-11层的住宅。
41. Definition of mid-to-high-rise residential buildings: Residential buildings with 12 to 16 floors.
41、中高层住宅的介定:12-16层的住宅。
42. Definition of high-rise residences: Any building with more than 16 floors is classified as a high-rise residence.
42、高层住宅的介定:16层以上为高层住宅。
43. Definition of super high-rise buildings: Buildings with a total height exceeding 100 meters.
43、超高层建筑的介定:总高度超过100米的建筑。
44. The structure of a commercial housing refers to the construction techniques and materials used for the main body of the building.
44、商品房的结构是指:房屋主体所使用的施工工艺和用材。
45. The meaning of "steel structure" is: The main load-bearing structure is constructed using steel materials, including suspension structures.
45、钢结构的意思是:承重的主要结构是用钢材料建造的,包括悬索结构。
46. The term "steel-concrete structure" means that the main load-bearing structure is constructed using steel and concrete.
46、钢混结构的意思是:承重的主要结构是用钢和混凝上建造的。
47. The meaning of "brick and wood structure" is: The main load-bearing structure is constructed using bricks and wood.
47、砖木结构的意思是:承重的主要结构是用砖、木材建造的。
48. The meaning of a brick-concrete structure is: it mainly relies on brick walls for support, with some parts being supported by steel frames and concrete.
48、砖混结构的意思是:主要是砖墙承重,部分是钢盘混凝土承重的结构。
49. The meaning of a frame structure is: a structure in which reinforced concrete is poured to form load-bearing beams and columns, and then prefabricated partitions are used to divide the rooms.
49、框架结构的意思是:以钢筋混凝土浇捣成承重梁柱,再用预制的隔墙分户的结构。
50. The "opening width" refers to the actual distance between the positioning axes of two walls within a single room.
50、开间指的是:一间房屋内一面墙的定位轴线到另一面墙的定位轴线之间的实际距离。
51. Depth refers to: the actual length between the positioning axis line of the front wall and the positioning axis line of the rear wall within an individual house or a residential building.
51、进深指的是:一间独立的房屋或一幢居住建筑内从前墙的定位轴线到后墙的定位轴线之间的实际长度。
52. The floor height refers to the distance between the lower floor surface or floor slab and the upper floor level.
52、层高指的是:下层地板面或楼板面到上层楼层面之间的距离。
53. Net height refers to: the distance between the upper surface of the lower floor slab and the lower surface of the upper floor slab.
53、净高指的是:下层楼板上表面到上层楼板下表面之间的距离。
54. The area covered refers to: the total area of the plot.
54、占地面积指的是:地块的总面积。
55. How many square meters are there in approximately 1 mu? The answer is 666.66 square meters.
55、1亩约等于多少平方米:666.66㎡
56. The total land area of a residential community refers to the sum of all the following land uses: the total land area for residences, the total land area for public buildings and facilities, the land area for roads, squares, courtyards, and green spaces.
56、居住小区总用地指的是什么用地的总和:住宅总用地,公共建筑设施总用地,道路、广场用地、庭院、绿化用地的总和。
57. The total residential land area refers to: the sum of the areas of all residential plots.
57、住宅总用地是指:住宅用地面积的总和。
58. The total public building area refers to the total area occupied by all public buildings within the community.
58、公建总用地是指:小区内部公共建筑占地面积的总和。
59. Determination of construction land area: The horizontal projected area of the land enclosed by the location and boundary of the construction land.
59、建筑用地面积的介定:建设用地位置和界线所围合的用地之水平投影面积。
60. The building base area refers to: the floor area of the first floor of the building.
60、建筑基底面积是指:建筑物首层的建筑面积。
61. Building height refers to: the total height from the outdoor ground level of the building to the top of the exterior wall.
61、建筑高度是指:建筑物室外地平面至外墙面顶部的总高度。
62. The base area of a house refers to: The base area of a house is the total horizontal projected area above the base course of the building's ground floor.
62、房屋的基底面积是指:房屋的基底面积是指建筑物底层勒脚以上外围水平投影面积。
63. Road area refers to: the total area of all roads within the community that are wider than 1.5 meters.
63、道路面积是指:小区内宽度大于1.5米道路的面积总和。
64. The area of the square refers to: the total area of the parking and turning areas as well as the paved ground areas.
64、广场面积是指:停车、回车广场和有铺砌地面的场地面积之和。
65. The term "yard and green space" refers to: the collective green areas such as centralized green belts, small parks, and public activity venues within the community, which are shared by all the residents of the community. The total area of these green spaces is the sum of all the areas that are available for use by all the residents.
65、庭院、绿化面积是指:小区内集中绿化带、小公园,以及公共活动场所等为小区所有居住人员 共同使用权的绿化面积的总和。
66. Rockeries and small ponds count as courtyards and green areas: Yes.
66、假山、小池算不算庭院、绿化面积:算。
67. The calculation formula for the total per capita land area (square meters per person): Total per capita land area = Total land area within the building boundary line ÷ Total number of residents planned for this community.
67、人均总占地面积(㎡/人)的计算公式:人均总占地面积=建筑红线内总用地÷本小区规划居住总人数。
68. The calculation formula for the per capita residential land area (square meters per person): Per capita residential land area = Total residential land area in the community ÷ Total planned resident population of the community.
68、人均住宅用地面积(㎡/人)的计算公式:人均住宅用地面积=小区内总住宅用地÷本小区规划居住总人数。
69. The total construction area refers to: the combined area of residential buildings, public buildings and underground anti-terrorist shelters within the community.
69、总建筑面积是指:小区内住宅、公共建筑、人防地下室面积总和。
70. Does the civil defense basement count towards the total building area? Yes.
70、人防地下室算不算在总建筑面积之内:算
71. The floor area of a residence refers to: the total area of each floor as measured by the outer perimeter line of the exterior walls of the residential building.
71、住宅建筑面积是指:住宅建筑外墙外围线测定的各层平面面积之和。
72. The gross floor area refers to: the total area of a single house.
72、套建筑面积是指:一套房屋的整体面积。
73. The composition of the total building area is: the floor area of the unit itself and the shared building area allocated to the unit.
73、套建筑面积的构成是:套内建筑面积和套分摊的公用建筑面积
74. A "building" (or "building block") refers to: a single structure consisting of various types of buildings with different layouts and floors.
74、幢(栋)是指:一座独立的,包括不同结构和不同层次的房屋。
75. An elevated house refers to: a house where the lower floors are elevated and the columns are used as the load-bearing support.
75、架空房屋是指:一般为底层架空,以柱子作为承重支撑物的房屋。
76. A mezzanine refers to: a floor located between two natural floors, representing a local level within the interior space of a building.
76、夹层是指:位于两自然层之间的楼层,指房屋内部空间的局部层次。
77. The technical layer refers to the specific level used for the installation of water, electricity, heating, sanitation, etc. equipment.
77、技术层的意思是:用作水、电、暖、卫生等设备安装的局部层次。
78. How many floors does the technical layer height exceed? Calculate the number of floors if it is more than 2.20 meters.
78、技术层层高在多少以上计算层数:2.20米以上的计算层数。
79. The structural transition floor refers to: For a certain floor of a building, due to different functional uses of the upper and lower parts of the floor, the upper and lower parts of this floor adopt different structural types, and through this floor, the structure is transformed. Then this floor is called a structural transition floor.
79、结构转换层是指:建筑物某楼层的上部与下部因平面使用功能不同,该楼层上部与下部采用不 同结构类型,并通过该楼层进行结构转换,则该楼层称为结构转换层。
80. A duplex residence refers to a type of housing where one residence occupies two floors, connected by an indoor staircase, and the two floors are completely separated from each other.
80、跃层式住宅是指:一套住宅占两个楼层,由户内楼梯联系上下层,上下两层完全分隔。
81. An attic refers to: a floor added to a house by utilizing the upper space within the building.
81、阁楼是指:利用房屋内的上部空间加建的楼层。
82. For the floor area calculation, it is based on the height above 2.20 meters: above this height.
82、阁楼层高在多高以上计算面积:2.20米以上。
83. The number of floors above ground refers to: It is the natural number of floors of a building, which is the number of floors above the indoor ground level (±0.00) that are divided by the floor structure and have a floor height of more than 2.20 meters.
83、地上层数是指:即房屋的自然层数,指室内地坪±0.00以上的按楼板结构分层的层高在2.20米以上的楼层数。
84. What kind of numbers are used to represent the number of floors above ground? Natural numbers.
84、地上层数用什么数表示:自然数。
85. The number of basement floors refers to: for basements where the skylights are located below the outdoor ground level and the indoor floor height is above 2.20 meters.
85、地下层数是指:采光窗在室外地坪以下的,其室内层高在2.20米以上的地下室的层数。
86. How is the number of floors underground represented: by negative numbers.
86、地下层数用什么数表示:负数。
87. The total number of floors of a building refers to: the sum of the number of floors above ground and the number of floors underground.
87、房屋总层数是指:房屋的地上层数与地下层数之和。
88. Does the underground floor count towards the total number of floors of the building?
88、地下层数算不算在房屋总层数之内:算。
Yes.
89. List at least three types of floors that are not included in the total number of floors of the building: false floors, mezzanines, attics, decorative towers, stairwells, and water tank rooms.
89、例出3个以上不算在房屋总层数内的建筑层:假层、夹层、阁楼、装饰性塔楼、楼梯间、水箱间。
90. A colonnade refers to: a building with a roof and pillars, which is used for people to pass through. It is called a columned corridor and is abbreviated as "colonnade".
90、柱廊是指:有顶盖和支柱,供人通行的建筑物,称为有柱走廊,简称柱廊。
91. A veranda refers to: The ground floor is a room with a colonnade, and the upper part of the colonnade is part of the building.
91、骑楼是指:底层为有柱廊房,廊道上方建为楼房的一部分。
92. A veranda refers to: a corridor that extends beyond the outer wall of a building on the second floor or above, with a protective structure, without pillars and with a roof.
92、挑廊是指:指二层以上挑出房屋墙体外,有围护结构,无支柱有顶盖的外走廊。
93. Porch refers to: an entrance passage in front of a building that has a roof, supports or enclosing structure.
93、门廊是指:建筑物门前有顶盖,有支柱或围护结构的进出通道。
94. A door canopy refers to: The solid wall that supports the roof above the entrance of a building is called a door canopy.
94、门斗是指:支撑建筑物门前顶盖的是实体墙称为门斗。
95. An eaves corridor refers to: a passage located beneath the eaves of a building, with supporting walls without columns at both ends.
95、檐廊是指:房屋檐下方两端有支撑墙体无柱的通道。
96. Ceiling refers to: namely, the canopy, a roof covered by a transparent canopy.
96、天棚是指:即天篷,有透明顶篷履盖的屋面。
97. What is a sun terrace called: patio.
97、晒台又称什么:露台。
98. A terrace refers to: an open upper roof or the exposed lower floor surface that extends outdoors and has a roofless structure for people to carry out outdoor activities.
98、露台是指:供人室外活动的上人屋面或底层地面伸出室外的有维护无顶盖的台面。
99. A balcony refers to: a house accessory facility that has a permanent roof, a protective structure, a platform, is connected to the house, and can be used or occupied by people.
99、阳台是指:有永久性上盖、有围护结构、有台面、与房屋相连、可以供人活动或利用的房屋附属设施。
100. The types of balconies include: enclosed balconies and semi-enclosed balconies.
100、阳台的分类有:封闭式阳台和半封闭式阳台。
声明:本文由入驻焦点开放平台的作者撰写,除焦点官方账号外,观点仅代表作者本人,不代表焦点立场。


