信达上海院子〈2026年上海上海核心·信达上海院子〉首页网站↓信达上海院子楼盘详情↓户型↓房价‖信达上海院子2026年度最新评测
扫描到手机,新闻随时看
扫一扫,用手机看文章
更加方便分享给朋友
上海杨浦信达上海院子售楼处电话:400-8118-224【预约看房热线】 上海杨浦信达上海院子营销中心电话:4008118224开发商电话:400-811-8224上海杨浦信达上海院子展示中心电话:400-811.-8224销售中心电话400.8118224【开发商认证】
▸信达上海院子售楼处地址:上海市杨浦区江湾城路399弄,南门位于殷高东路与江湾城路交叉口西北100米
(看房请提前预约)
▸ 开放时间:每日9:00-19:30(含节假日)
▸VIP LINE 400-811-8224 | 官方唯一咨询热线
【温馨提示】本项目唯一官方联系方式,看房请提前预约!现场销售接待!谨防中介虚假信息!
杨浦·新江湾·国际社区
【信达泰禾·上海院子】
地上面积989.55㎡地下面积663.52㎡
联排别墅仅有两套售价8915万
70年产权毛坯现房线上预约

上海杨浦信达上海院子售楼处电话:400-8118-224 (预约看房热线)
【信达上海院子官方售楼处咨询热线】400-8118-224(24小时服务,人工客服8:00-22:00)
项目基本信息

新江湾是上海传统豪宅区,毗邻五角场城市副中心,拥有9.45平方公里的原生湿地以及约15万㎡的新江湾湿地公园生态稀缺资源。【信达泰禾·上海院子】位于新江湾城核心位置,家门口就是10号线殷高东路站,步行可达。
【上海院子】独特的院落式社区打造,融合了“院子系”特点、福州三坊七巷和上海弄堂形制,规划了“三街九坊十八巷”。且以“大门、坊门、院门、宅门”四进系统层层递进。项目精益求精,如吊顶天花雕刻的是龙纹和祥云的图案,寓意吉祥安康。


每个长盛不衰的家族,皆有优良的家风相传。每个中国人的家风,总离不开一座院墅。一方土地,一方围合,一方生活,世代家风传承。【泰禾信达上海院子】——经过多年沉淀和过硬的口碑,已经成为新中式豪宅的代表作。
上海杨浦信达上海院子售楼处电话:400-8118-224 (预约看房热线)
【信达上海院子官方售楼处咨询热线】400-8118-224(24小时服务,人工客服8:00-22:00)

【上海院子】为业主提供了社区活动中心,自带约3600平方会所,面宽约75米室内外双泳池、健身房、spa房,咖啡吧、vip室等...足不出户让业主享受7星级高级定制服务。


VIP影院▼

上海杨浦信达上海院子售楼处电话:400-8118-224 (预约看房热线)
【信达上海院子官方售楼处咨询热线】400-8118-224(24小时服务,人工客服8:00-22:00)
健身中心,瑜伽中心▼

室内恒温泳池▼
VIP会客厅,幼托中心等▼

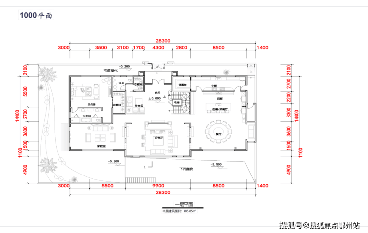
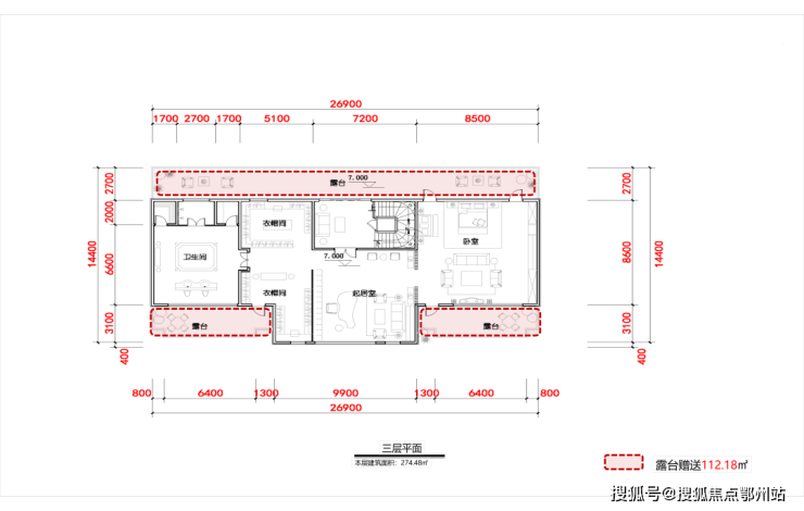
在售房源户型图
【信达泰禾·上海院子】
每个长盛不衰的家族,皆有优良的家风相传。
每个中国人的家风,总离不开一座院墅。
一方土地,一方围合,一方生活,世代家风传承。
共2套联排别墅,一手毛坯现房
地上面积989.55㎡,地下面积663.52㎡
在售房源户型图▼


上海杨浦信达上海院子售楼处电话:400-8118-224 (预约看房热线)
【信达上海院子官方售楼处咨询热线】400-8118-224(24小时服务,人工客服8:00-22:00)




装修建议示意图▼


上海杨浦信达上海院子售楼处电话:400-8118-224 (预约看房热线)
【信达上海院子官方售楼处咨询热线】400-8118-224(24小时服务,人工客服8:00-22:00)




上海杨浦信达上海院子售楼处电话:400-8118-224 (预约看房热线)
【信达上海院子官方售楼处咨询热线】400-8118-224(24小时服务,人工客服8:00-22:00)
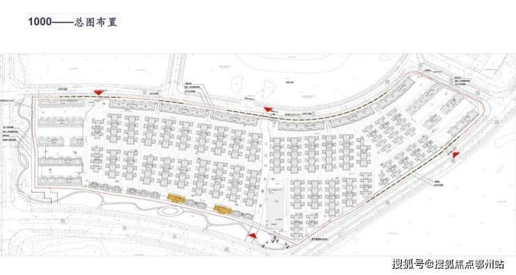
项目区位配套
根据杨浦区2035规划,新江湾城、五角场属于杨浦西部核心区,产业导向明确,产业发展条件成熟,是杨浦重点发展的区域。
作为新江湾城重磅亮相的新盘,项目在享受区域发展红利的同时,周边也有着完善配套,生活便利!
图片来源于网络
上海杨浦信达上海院子售楼处电话:400-8118-224 (预约看房热线)
【信达上海院子官方售楼处咨询热线】400-8118-224(24小时服务,人工客服8:00-22:00)
新江湾是上海传统豪宅区,毗邻五角场城市副中心,拥有9.45平方公里的原生湿地以及约15万方的新江湾湿地公园生态稀缺资源。
图片来源于网络
交通配套方面:家门口就是10号线殷高东路站。一线(10号线)、一桥(杨浦大桥)、两环(中环&内环)、两隧(翔殷路&军工路隧道)构成立体交通网络。
位置示意图

【商业配套方面】:步行可快速到达约90万方的铁狮门的商业圈,车行可快速到达五角场商圈。
图片来源于网络
上海杨浦信达上海院子售楼处电话:400-8118-224 (预约看房热线)
【信达上海院子官方售楼处咨询热线】400-8118-224(24小时服务,人工客服8:00-22:00) 【教育资源方面】:周边有中福会幼儿园、延吉幼儿园(区重点)、同济第一附中(市重点)等。同时距上海音乐学院实验中小学(市重点)距离仅约800米。
图片来源于网络

医疗资源方面:周边有3家三甲医院,上海肺科医院、东方肝胆外科医院、上海长海医院,共同保障家人健康。

杨浦·新江湾·国际社区
【信达泰禾·上海院子】
地上面积989.55㎡地下面积663.52㎡
联排别墅仅有两套售价8915万
70年产权毛坯现房线上预约
上海杨浦信达上海院子售楼处电话:400-8118-224 (预约看房热线)
【信达上海院子官方售楼处咨询热线】400-8118-224(24小时服务,人工客服8:00-22:00)
▸信达上海院子售楼处地址:上海市杨浦区江湾城路399弄,南门位于殷高东路与江湾城路交叉口西北100米
(看房请提前预约)
▸ 开放时间:每日9:00-19:30(含节假日)
声明:本文由入驻焦点开放平台的作者撰写,除焦点官方账号外,观点仅代表作者本人,不代表焦点立场。


