信达信安里售楼处电话→信达信安里官方售楼中心电话→2026信达信安里→楼盘网站→楼盘测评→信达信安里售楼中心电话→楼盘百科→24小时热线电话→楼盘详情
扫描到手机,新闻随时看
扫一扫,用手机看文章
更加方便分享给朋友


区域介绍
上海公认的顶级地段有4个:老静安、北徐汇、北卢湾、东长宁。
尤其是老静安,除了沉淀深厚的历史人文底蕴,还具备超现代的国际商业氛围,是上海海纳百川、兼容并包的具象表达。
在老静安,随处可见浪漫的法国梧桐和琳琅满目的历史建筑,比如万航渡路的盛家花园、康定路徐氏兄弟修建的徐园,蔡元培旧居静安别墅、上海戏剧学院的小红楼等。他们静静地伫立在时光深处,延续着老静安矜贵之气与浪漫风度。
住在信达·信安里,趁此清秋时节,风和阳光正好,带着孩子在梧桐街道自在散步,到名人故居前的草地上流连遐想,在历史建筑旁静静思索,身临其境感受大师名家风采。
居于这样的人文氛围,每日得以熏陶,名门气质、非凡格调自然得以养成。
当然,城心地段享受的必然也是城市塔尖级的高能配套。
住在信达·信安里,很多人都不开车了,因为轨交确实非常方便。项目500米内双轨交汇,坐拥13/14号线武宁路站和14号线武定路站,进站直达新天地、南京西路、陆家嘴等产业CBD。

商业资源方面,项目周边有静安嘉里中心、恒隆广场、兴业太古汇、芮欧百货、张园、环球世界大厦、889广场等奢华地标林立。
教育资源方面,项目周边有市西中学、一师附小、万航渡路小学、西南幼儿园(市示范园)、包玉刚实验小学(私立)、华东政法大学等。
医疗资源方面,项目周边有华山医院、上海市儿童医院、第一妇幼保健院、华东医院。为全家人的健康保驾护航!
休闲资源方面,项目周边有曹家渡口袋花园、静安公园、美琪大剧院、上海展览中心等。
楼盘介绍
信达地产相信大家都不会陌生,从北京东富之源东直门信达中心·东外39号,到上海西贵之源静安寺信达·信安里,中国城市更新的南北参照系范本,从全国区域更新到上海静安微更新,信达地产以责任央企担当,入席静安城市更新版图。
信达·信安里,老静安40年一遇里弄更新城市范本,从历史建筑风貌保护出发,融入当代新式里弄创新手法,礼献全球名宅区的隐贵之所,真正诠释了大隐隐于市的名门格调!

作为宗师级别的城市更新者,信达·信安里在对静安风貌更新过程中,采取了“总体风貌保护策略、单体建筑保护策略”双轨并行。
一方面,保留并优化行列式街坊肌理,织补肌理、扩大肌理保护范围;保留里弄名称、微调里弄划分、沿用原始门牌,复原优化康定路沿街商业、优化1299弄市政道路城市界面。
另一方面,对积善里、高家宅、太平坊采取更新改造策略,对永和邨沿街特色立面,采取外立面整体保留并修缮策略,留驻集体记忆,将百年旧里风貌凝练为历史风景。
信达·信安里效果图过程稿,以最终交付为准
在社区内部,项目也是如“绣花针”般精雕细琢。从当代嘉佩乐酒店式归家门庭的灵感汲取,到架空层内百乐门记忆场景的巧妙再现,无一不透露着对海派文化优雅品位的执着追求。
景观打造上,项目精心规划街巷庭院的花园生活场景,绿树成荫、花香四溢,让业主归家即是放松度假的开始!
信达·信安里效果图过程稿,以最终交付为准

信达·信安里效果图过程稿,以最终交付为准
产品方面,项目规划合计167套住宅,涵盖140套高层与27套别墅。
项目的别墅产品以独特的艺术风貌和宽敞的居住空间,吸引着追求品质生活的高净值客群。
其中一套楼王产品,利用独门独院、有天有地的尺度,在老静安繁华之心营造出一种难能可贵的隐逸奢华体验;
其他均为双拼别墅,传承石库门建筑的风貌精髓,搭配精心打造的街巷花园景观,不仅保留了浓厚的历史文化底蕴,更赋予了居住空间以灵动与生机。

信达·信安里效果图过程稿,以最终交付为准
据悉项目部分高层户型可直接眺望静安寺,将一城繁华尽收眼底。
当然,项目的高层也是风景的一部分。外立面曲面弧形的设计灵感取自武康大楼,经典三段式黄金比例的运用,以及古典主义竖向挺拔线条的勾勒,呈现了一道标志性的城市天际线!

27套别墅产品,则是保留与复建结合,在还原历史风貌的基础上,结合现代居住习惯,对居住空间、生活环境进行了革新。
其中一套楼王产品,利用独门独院、有天有地的尺度,在繁华都市的核心地段中,营造出一种难能可贵的隐逸体验。
其他均为双拼别墅,传承石库门建筑的风貌精髓,搭配精心打造的街巷花园景观,不仅保留了浓厚的历史文化底蕴,更赋予了居住空间以灵动与生机。

传承城市文脉记忆,项目更精心打造了海派文化体验馆,通过建筑、景墙、门廊、水景、绿植的有机结合,呈现出浓厚的海派文化氛围。

信达·信安里不仅续写着梧桐区的隐奢腔调,更以其深厚的文化底蕴、精妙的社区规划、独特的建筑景观,在上海城市更新中闪耀着璀璨的光芒。
对于购房者来说,限量版的高层住宅,不仅坐拥得天独厚的黄金地段,更与风貌别墅共享同一高端圈层,每一位业主都能感受到无与伦比的尊贵与荣耀。

户型图和样板间
在地段为王的时代,信达·信安里不仅地段优越,位于静安新地王土拍价支撑的区域,备受市场关注,而且还做了装标升级。升级后的博世洗衣机和干衣机、内嵌式冰箱,客厅皮革硬包+大理石,主卧背景墙交付等,无不彰显着信达·信安里的高端品质。真正实现了烫金地段与硬核产品力的完美结合,打造出全维度的豪宅作品。

















信达信安里✅售楼处☎电话:400-9939-964✅︎✅︎✅✅信达信安里官方☎电话:400-9939-964✅︎✅︎✅信达信安里售楼处电话:400-9939-964信达信安里官方电话:400-9939-964信达•信安里售楼处电话:400-9939-964信达•信安里官方电话:400-9939-964
上海静安信达•信安里售楼处电话:400-9939-964

信达•信安里售楼处电话:400-9939-964信达•信安里官方电话:400-9939-964
Shanghai Jing 'an Xinda Xin 'anli Sales Office Tel: 400-9939-964 Project Overview
上海静安信达•信安里售楼处电话:400-9939-964项目概况
Project Name
项目名
Xinda Xinanli
信达•信安里
Developer
开发商
Shanghai Xinling Real Estate Co., LTD. (Xinda Real Estate)
上海信瓴置业有限公司(信达地产)
Plate
板块
The Caojiadu area of the old Jing 'an
老静安曹家渡板块
Available area for sale
在售面积
90 square meters, 1 bedroom, 2 living rooms, 1 bathroom;
90㎡1房2厅1卫;
100 square meters, 2 bedrooms, 2 living rooms, 1 bathroom
100㎡2房2厅1卫
Average price
均价
136,000
13.6万
Total price
总价
90 square meters: 10.59 -12 million
90㎡1059-1200万;
100 square meters: 12.5 million - 15.84 million
100㎡1250-1584万
Overall quantity
总体量
140 sets
140套
Total number of floors
总层数
7th floor, 18th floor
7层、18层
Floor height
层高
2.97 m
2.97m
Delivery time
交房时间
December 2026
2026年12月
Ratio of elevators to households
梯户比
One elevator serves two households
1梯2户
Delivery standard
交付标准
Fully-furnished delivery (central air conditioning, fresh air, floor heating)
精装交付(中央空调、新风、地暖)
Property management company
物业公司
Xinda's self-held properties (entrusted to Greentown Property Management)
信达自持物业(委托绿城物业管理)
Property management fee
物业费
12 yuan per square meter per month
12元/平/月
Total land area
总用地面积
Approximately 10,348.10 square meters
约10348.10㎡
Total building area
总建筑面积
Approximately 27,054.13 square meters
约27054.13㎡
Usable floor area ratio
得房率
75%
75%
Floor area ratio
容积率
2.5
2.5
Parking space ratio
车位配比
1-1. 17
1:1.17
Xinda Xin 'anli Sales Office Tel: 400-9939-964 \ nXinda Xin 'anli Official Tel: 400-9939-964
信达•信安里售楼处电话:400-9939-964信达•信安里官方电话:400-9939-964
上海静安信达•信安里售楼处电话:400-9939-964
项目区位
信达•信安里售楼处电话:400-9939-964信达•信安里官方电话:400-9939-964
Shanghai Jing 'an Xinda Xin 'anli Sales Office Tel: 400-9939-964
上海静安信达•信安里售楼处电话:400-9939-964
Surrounding facilities
周边配套
Originating from the Jing 'an Temple era, the brilliant Oriental Peak destination originated in Jing 'an in 1862. From Zhangyuan, Bailuomen to Meiqi Grand Theatre and Meilongzhen Restaurant, it is a microcosm of the essence of Shanghai over a century.
源起静安寺 时代璀璨的东方峯尚目的地 自1862年静安肇始,从张园、百乐门到美琪大戏院、梅龙镇酒家,缩影上海百年精粹。
A hundred years later, the Jing 'an Temple business district is home to "Mei Heng Tai", Kerry Center, Rui O Department Store, Xingye Taikoo Li and others, leading the luxury hub in Shanghai.
百年后,静安寺商圈荟萃“梅恒泰”、嘉里中心、芮欧百货、兴业太古汇等,执掌上海奢贵据点。
信达•信安里售楼处电话:400-9939-964信达•信安里官方电话:400-9939-964
Shanghai Jing 'an Xinda Xin 'anli Sales Office Tel: 400-9939-964
上海静安信达•信安里售楼处电话:400-9939-964
The coordinates of the century-old Jing 'an Temple with its thick shade of paulownia trees
百年静安寺 梧桐浓荫门牌坐标
The birthplace of the area shaded by the Wutong trees has produced many legendary figures over the past century.
梧桐浓荫区肇始地,百年走出多少传奇人物。
The former residence of Hede, the Garden of the Song Family, the former residence of Wu Tingfang, the former residence of the Sheng family, the former residence of Eileen Chang, the former residence of CAI Yuanpei, etc., have passed down the noble demeanor of Jing 'an from generation to generation. The Eastern and Western civilizations have been carried forward here, and Jing 'an has thus become a century-old famous residence area.
赫德故居、宋氏花园、伍廷芳故居、盛氏故居、张爱玲故居、蔡元培旧居等,静安名流风范世代相承,东西文明由此赓续,静安由此迈向百年名宅区。
The century-old serene and cultural landmark of Jing 'an Temple
静安寺所望 百年静谧人文坐标
In 1901, Gu Weijun entered St. John's University, known as the "Harvard of the East", and became one of the first generation of professional diplomats in China.
1901年,顾维钧进入“东方哈佛”圣约翰大学,成为中国第一代职业外交官。
Since then, the list of outstanding alumni of St. John's University has included Ieoh Ming Pei, Lin Yutang, Song Ziwen, Eileen Chang and others.
此后,圣约翰大学杰出校友名单,涌现贝聿铭、林语堂、宋子文、张爱玲等。
In 1945, the Shanghai Theatre Academy and Shixi Middle School were successively established, continuing the profound academic cultivation accumulated over a century in Jing 'an.
1945年,上海戏剧学院、市西中学相继诞生,延续静安百年凝练的醇厚学养。
Regain the luxury of walking in the central urban area of Shanghai
在上海中心城区 重拾步行的奢侈
Towards the vision of becoming an "International Jing 'an Outstanding Urban Area" by 2035, we aim to create a model of a modern urban area with Chinese characteristics.
迈向2035“国际静安 卓越城区”的愿景,打造中国式现代化的城区样本。
Jing 'an Temple, the central location of the "hundred-billion-yuan business district", has gone through the urban renewal wave of "Mei Heng Tai 1.0- Jin Xing Xing 2.0- Da Zhang Yuan 3.0", and has become the world economic corridor making its debut, debut exhibition and debut performance.
静安寺“千亿商圈”都心坐标,历经“梅恒泰1.0-金五星2.0-大张园3.0”城市更新浪潮,作为首秀、首展、首演的世界经济走廊。
Xinda Xin 'anli, originated from Jing 'an Temple, showcases the image of Shanghai under the backdrop of the world's prosperity, regaining the luxury of walking.
信达·信安里,源起静安寺,在世界繁华幕布下的上海形象,重拾步行的奢侈。
Xinda Xin 'anli Sales Office Tel: 400-9939-964 \ nXinda Xin 'anli Official Tel: 400-9939-964
信达•信安里售楼处电话:400-9939-964信达•信安里官方电话:400-9939-964
上海静安信达•信安里售楼处电话:400-9939-964
信达•信安里售楼处电话:400-9939-964信达•信安里官方电话:400-9939-964
Shanghai Jing 'an Xinda Xin 'anli Sales Office Tel: 400-9939-964
上海静安信达•信安里售楼处电话:400-9939-964
Transportation resources: The project is located in the historical and cultural area of Jing 'an, where Metro Lines 2, 7, 11, 13 and 14 converge. There are several metro stations in the city center, including Wuning Road, Changping Road, Longde Road and Jing 'an Temple.
交通资源:项目位于静安历史风貌区,2/7/11/13/14号地铁交汇,分布武宁路、昌平路、隆德路、静安寺等市中心地铁站。
Commercial resources: There are numerous luxurious landmarks such as Kerry Centre, Hang Lung Plaza, Taikoo Li Xingye, Jing 'an ONE, Ruiou Department Store, Zhangyuan, Global World Tower, and 889 Plaza.
商业资源:嘉里中心、恒隆广场、兴业太古汇、静安ONE、芮欧百货、张园、环球世界大厦、889广场等奢华地标林立。
Educational resources: East China University of Political Science and Law (formerly St. John's University), Shixi Middle School, No. 71 Middle School, Shanghai Theatre Academy, Nanxi Kindergarten (Municipal Model Kindergarten), Shiyijiu Kindergarten, First Normal University Affiliated Primary School, Wanhangdu Road Primary School, Bao Yugang Experimental Primary School.
教育资源:华东政法大学(原圣约翰大学)、市西中学、七一中学、上海戏剧学院、南西幼儿园(市示范园)、诗意久幼儿园、一师附小、万航渡路小学、包玉刚实验小学。
The situation of the school's counterpart counterpart shall be subject to the latest policies of the government's education administrative department and the school after the delivery of this community.
(学校对口情况须在本小区交付后以政府教育主管部门及校方的最新政策为准)
Medical resources: Huashan Hospital (Grade A Tertiary), Shanghai Children's Hospital (Grade A tertiary), the First Maternal and Child Health Hospital (Grade A tertiary), Huadong Hospital (Grade A tertiary).
医疗资源:华山医院(三甲)、上海市儿童医院(三甲)、第一妇幼保健院(三甲)、华东医院(三甲)。
Leisure resources: Caojiadu City Pocket Garden, Jing 'an Park, Meiqi Grand Theatre, Shanghai Exhibition Center, etc.
休闲资源:曹家渡城市口袋花园、静安公园、美琪大戏院、上海展览中心等。
Xinda Xin 'anli Sales Office Tel: 400-9939-964 \ nXinda Xin 'anli Official Tel: 400-9939-964
信达•信安里售楼处电话:400-9939-964信达•信安里官方电话:400-9939-964
Shanghai Jing 'an Xinda Xin 'anli Sales Office Tel: 400-9939-964
上海静安信达•信安里售楼处电话:400-9939-964
Product Introduction
产品介绍
The noble courtyards scattered with thick shade and the old Western-style houses worth hundreds of millions of yuan can be traced back to here
散落浓荫的高贵门庭 动辄亿元的风貌老洋房 于此溯源
One Jing 'an Temple and three scenic areas.
一座静安寺,三片风貌区。
Nanjing West Road Historical and Cultural Area - Fengyang Road and Shaanxi North Road, Hengfu Historical and Cultural Area - Huashan Road and Hunan Road, Yuyuan Road Historical and Cultural Area - Yuyuan Road and Changde Road, the old Western-style houses in the shady areas worth hundreds of millions of yuan, history can be traced back here.
南京西路历史风貌区——凤阳路、陕西北路,衡复历史风貌区——华山路、湖南路,愚园路历史风貌区——愚园路、常德路,动辄亿元的浓荫区老洋房,历史从这里溯源。
Salute to the century-old village and open up a new artistic one
致敬百年旧里 再开艺术新里
Xinda Real Estate has updated its new project, featuring high-rise luxury residences with a construction area of approximately 90 to 100 square meters, presenting a hidden gem of the world's renowned residences.
信达地产更新作品,建筑面积约90-100㎡高层奢邸,里献世界的名宅隐贵之所。
Xinda Xin 'anli Sales Office Tel: 400-9939-964 \ nXinda Xin 'anli Official Tel: 400-9939-964
信达•信安里售楼处电话:400-9939-964信达•信安里官方电话:400-9939-964
上海静安信达•信安里售楼处电话:400-9939-964
信达•信安里售楼处电话:400-9939-964信达•信安里官方电话:400-9939-964
Shanghai Jing 'an Xinda Xin 'anli Sales Office Tel: 400-9939-964
上海静安信达•信安里售楼处电话:400-9939-964
Villa-style circle | Shanghai-style style | Arc-shaped corner facade
墅质圈层|海派型格|弧形转角立面
The vertical and upright lines of classicstyle, the timeless architectural classic, the curved arc inspiration of the Wukang Building, the classic three-section golden ratio facade, large areas of glass combined with antique copper-brown aluminum plates, the timeless elegant taste of the Shanghai style, the contemporary Capellas hotel-style homecarhome, the revival of the memory scene of the Bailuanmen on the elevated floor
古典主义竖向挺拔线条,历久弥新的建筑经典 溯源武康大楼曲面弧形灵感,经典三段式黄金比例立面 大面积玻璃搭配古铜棕铝板,历久弥新的海派优雅品位 当代嘉佩乐酒店式归家门庭,架空层百乐门记忆场景再生
信达•信安里售楼处电话:400-9939-964信达•信安里官方电话:400-9939-964
信达信安里售楼处电话:400-9939-964
上海静安信达信安里售楼处电话:400-9939-964
信达信安里售楼处电话:400-9939-964信达信安里官方电话:400-9939-964
上海静安信达信安里售楼处电话:400-9939-964上海老静安核心的风貌别墅项目信达·信安里即将面世,以独特的设计与历史风貌保护策略,打造现代与传统的完美融合。项目坐落于城市中心,提供奢华居住体验,价格惊喜,吸引着追求品质生活的人们。信安里的设计在保留石库门建筑特色的同时,创造出创新的现代居住空间,成为城市更新的标杆。
信达信安里售楼处电话:400-9939-964信达信安里官方电话:400-9939-964
上海静安信达信安里售楼处电话:400-9939-964在上海老静安核心区域,一个独特的风貌别墅项目——信达·信安里即将亮相。这个项目由信达地产打造,承载着历史与现代的交汇。项目所在位置具有悠久的石库门建筑历史,信达地产在保留原有肌理的基础上,进行了精心的改造与更新。信安里最大的亮点在于价格亲民,以不到20万元每平米的价格,提供极具历史魅力和现代舒适度的居住体验。
信达信安里售楼处电话:400-9939-964信达信安里官方电话:400-9939-964
上海静安信达信安里售楼处电话:400-9939-964这片地块不仅是建筑的重生,更是对历史记忆的保护与传承。信达·信安里的设计充分考虑了每个细节,从孟莎式屋顶到广阔的内部空间,都让人感受到历史与现代的完美结合。此外,项目还拥有优越的地理位置,毗邻静安寺商圈,交通便利,无论是购物、休闲还是文化体验,都能够轻松享有。
信达信安里售楼处电话:400-9939-964信达信安里官方电话:400-9939-964
上海静安信达信安里售楼处电话:400-9939-964信达·信安里无疑是上海房地产市场上的一颗璀璨明珠。在老静安这个寸土寸金的地方,能够以相对合理的价格享受历史的厚重与现代的便利,实属难得。该项目不仅仅是对石库门建筑的简单复刻,更是在城市更新的大背景下,尝试将历史与现代生活需求相结合的杰作。它让人们在繁忙都市中得以享受一份宁静与奢华。现代都市人追求的不仅仅是居住的空间,更是生活的品质和精神的满足。在这里,历史的记忆被小心翼翼地保存,与现代生活的舒适度完美融合,成为城市更新的典范。对于追求品质生活的人来说,信安里无疑是一个值得期待的选择。它不仅提供了高品质的居住空间,更是一种生活方式的象征。这种创新尝试也为未来的城市更新提供了一个新的思路,值得行业内外的关注和借鉴。信达信安里售楼处电话:400-9939-964信达信安里官方电话:400-9939-964
上海静安信达信安里售楼处电话:400-9939-964
信达信安里售楼处电话:400-9939-964
上海静安信达信安里售楼处电话:400-9939-964
信达信安里售楼处电话:400-9939-964信达信安里官方电话:400-9939-964
上海静安信达信安里售楼处电话:400-9939-964上海老静安核心的风貌别墅项目信达·信安里即将面世,以独特的设计与历史风貌保护策略,打造现代与传统的完美融合。项目坐落于城市中心,提供奢华居住体验,价格惊喜,吸引着追求品质生活的人们。信安里的设计在保留石库门建筑特色的同时,创造出创新的现代居住空间,成为城市更新的标杆。
信达信安里售楼处电话:400-9939-964信达信安里官方电话:400-9939-964
上海静安信达信安里售楼处电话:400-9939-964在上海老静安核心区域,一个独特的风貌别墅项目——信达·信安里即将亮相。这个项目由信达地产打造,承载着历史与现代的交汇。项目所在位置具有悠久的石库门建筑历史,信达地产在保留原有肌理的基础上,进行了精心的改造与更新。信安里最大的亮点在于价格亲民,以不到20万元每平米的价格,提供极具历史魅力和现代舒适度的居住体验。
信达信安里售楼处电话:400-9939-964信达信安里官方电话:400-9939-964
上海静安信达信安里售楼处电话:400-9939-964这片地块不仅是建筑的重生,更是对历史记忆的保护与传承。信达·信安里的设计充分考虑了每个细节,从孟莎式屋顶到广阔的内部空间,都让人感受到历史与现代的完美结合。此外,项目还拥有优越的地理位置,毗邻静安寺商圈,交通便利,无论是购物、休闲还是文化体验,都能够轻松享有。
信达信安里售楼处电话:400-9939-964信达信安里官方电话:400-9939-964
上海静安信达信安里售楼处电话:400-9939-964信达·信安里无疑是上海房地产市场上的一颗璀璨明珠。在老静安这个寸土寸金的地方,能够以相对合理的价格享受历史的厚重与现代的便利,实属难得。该项目不仅仅是对石库门建筑的简单复刻,更是在城市更新的大背景下,尝试将历史与现代生活需求相结合的杰作。它让人们在繁忙都市中得以享受一份宁静与奢华。现代都市人追求的不仅仅是居住的空间,更是生活的品质和精神的满足。在这里,历史的记忆被小心翼翼地保存,与现代生活的舒适度完美融合,成为城市更新的典范。对于追求品质生活的人来说,信安里无疑是一个值得期待的选择。它不仅提供了高品质的居住空间,更是一种生活方式的象征。这种创新尝试也为未来的城市更新提供了一个新的思路,值得行业内外的关注和借鉴。信达信安里售楼处电话:400-9939-964信达信安里官方电话:400-9939-964
上海静安信达信安里售楼处电话:400-9939-964
上海静安信达•信安里售楼处电话:400-9939-964
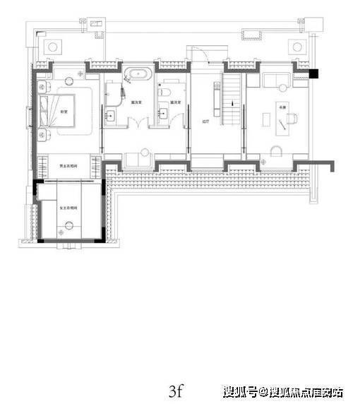
户型鉴赏
90㎡1房2厅1卫:
100㎡2房2厅1卫:
信达•信安里售楼处电话:400-9939-964信达•信安里官方电话:400-9939-964
信达信安里售楼处电话:400-9939-964信达信安里官方电话:400-9939-964
上海静安信达信安里售楼处电话:400-9939-964
信达信安里售楼处电话:400-9939-964信达信安里官方电话:400-9939-964
上海静安信达信安里售楼处电话:400-9939-964
信达信安里售楼处电话:400-9939-964信达信安里官方电话:400-9939-964
上海静安信达信安里售楼处电话:400-9939-964
信达信安里售楼处电话:400-9939-964信达信安里官方电话:400-9939-964
上海静安信达信安里售楼处电话:400-9939-964
信达信安里售楼处电话:400-9939-964信达信安里官方电话:400-9939-964
上海静安信达信安里售楼处电话:400-9939-964
信达信安里售楼处电话:400-9939-964信达信安里官方电话:400-9939-964
上海静安信达信安里售楼处电话:400-9939-964信达信安里:静安寺旁的超级捡漏王
信达信安里,位于内环内的老静安,紧邻康定路与余姚路交汇处,距离静安寺仅1.4公里。这里不仅有优越的地理位置,还有丰富的配套资源。
信达信安里售楼处电话:400-9939-964信达信安里官方电话:400-9939-964
上海静安信达信安里售楼处电话:400-9939-964项目主打90平和100平的一房和二房,以及270-525平的风貌别墅。目前推出的140套建面约90-100㎡的房源,均价为13.6万元/㎡,即将开盘。未来还将有27套风貌别墅推出,均价19.98万元/㎡。
信达信安里售楼处电话:400-9939-964信达信安里官方电话:400-9939-964
上海静安信达信安里售楼处电话:400-9939-964
项目基本信息:
开发商:上海信瓴置业有限公司(信达地产)
占地面积:约10348.10平
建筑面积:约27054平
产权年限:70年
总套数:171户(144套高层;27套别墅)
车位比:1:1.17
物业公司: 信达自持物业
交房时间:2026年12月
交付标准:中央空调➕新风➕地暖
信达信安里售楼处电话:400-9939-964信达信安里官方电话:400-9939-964
上海静安信达信安里售楼处电话:400-9939-964
产品亮点:
90平1房:设计更像酒店套间,南北纵深长,后期可改2房。总价1059-1200万。
100平2房:A户型为单元两户设计,配电梯和楼梯。双开间朝南,客厅宽敞,可改3房,但阳台窄。总价1250-1584万。
360㎡风貌别墅:4开间朝南,地上两层+阁楼,“老虎窗”设计,保留海派原味。
540㎡类独栋:开间达19.5m,挑高设计,奢华体验。
信达信安里售楼处电话:400-9939-964信达信安里官方电话:400-9939-964
上海静安信达信安里售楼处电话:400-9939-964
交通资源:项目位于静安历史风貌区,周边有2/7/11/13/14号地铁交汇,分布武宁路、昌平路、隆德路、静安寺等市中心地铁站。
信达信安里售楼处电话:400-9939-964信达信安里官方电话:400-9939-964
上海静安信达信安里售楼处电话:400-9939-964
商业资源:周边有嘉里中心、恒隆广场、兴业太古汇、静安ONE、芮欧百货、张园、环球世界大厦、889广场等奢华地标。
信达信安里售楼处电话:400-9939-964信达信安里官方电话:400-9939-964
上海静安信达信安里售楼处电话:400-9939-964教育资源:周边有华东政法大学市西中学、七一中学、上海戏剧学院、南西幼儿园、诗意久幼儿园、一师附小、万航渡路小学、包玉刚实验小学。
信达信安里售楼处电话:400-9939-964信达信安里官方电话:400-9939-964
上海静安信达信安里售楼处电话:400-9939-964医疗资源:周边有华山医院、上海市儿童医院、妇幼保健院等医疗机构。
信达信安里售楼处电话:400-9939-964信达信安里官方电话:400-9939-964
上海静安信达信安里售楼处电话:400-9939-964总结:信达信安里位于“钻石地段”,户型设计虽不够合理,但日照和景观视野优越。适合单身、情侣或三口之家,后期可改户型。但若家中超过3人或无法接受无阳台户型,则需谨慎考虑。信达信安里售楼处电话:400-9939-964信达信安里官方电话:400-9939-964
上海静安信达信安里售楼处电话:400-9939-964
信达信安里售楼处电话:400-9939-964信达信安里官方电话:400-9939-964
上海静安信达信安里售楼处电话:400-9939-964
别墅一房一价表
信达信安里售楼处电话:400-9939-964信达信安里官方电话:400-9939-964
信达·信安里
上海静安信达信安里售楼处电话:400-9939-964

这是为美术生打造的270度环幕江景大平层,高楼层赋予的辽阔视野,江景成为空间的天然背景。
整体以现代自然主义为基调,借自由开放的空间美学与个性家居布置,诠释简约松弛的生活哲学。


玄关
Vestibule
归家序章,以简素勾勒空间韵律
作为入户第一幕,玄关以极简姿态开启生活叙事,素净墙面如天然画布。清透支架托举着素白花瓶,植物姿态俏皮延展,成为连接户外与生活的温柔过渡。

客厅
Living Room
没有 “标准答案” 的互动场
全开放式设计,岛形沙发打破边界,让交流随光影自由发生。午后的光线从侧面洒落,家具被赋予立体的光影层次。

中央的B&B Camaleonda模块组合沙发,以岛状布局重构空间逻辑,双向陈设的低椅背设计。一面朝向书柜电视墙,一面衔接餐厨区。让场景切换随心意而生,既保持空间通透感,又以功能分区提升使用效率。



休闲区
Leisure Area
多元需求的美学平衡




厨房
Kitchen
暮光先抵达的日常剧场






餐厅
Dining Room
暮色里的光影焦点







主卧
Master Bedroom
个性与舒适的共生
















小儿子房
Younger Son's Room
斑斓里的活力感




大儿子房
Elder Son's Room
简素里的生长感







这是为美术生打造的270度环幕江景大平层,高楼层赋予的辽阔视野,江景成为空间的天然背景。
整体以现代自然主义为基调,借自由开放的空间美学与个性家居布置,诠释简约松弛的生活哲学。


玄关
Vestibule
归家序章,以简素勾勒空间韵律
作为入户第一幕,玄关以极简姿态开启生活叙事,素净墙面如天然画布。清透支架托举着素白花瓶,植物姿态俏皮延展,成为连接户外与生活的温柔过渡。

客厅
Living Room
没有 “标准答案” 的互动场
全开放式设计,岛形沙发打破边界,让交流随光影自由发生。午后的光线从侧面洒落,家具被赋予立体的光影层次。

中央的B&B Camaleonda模块组合沙发,以岛状布局重构空间逻辑,双向陈设的低椅背设计。一面朝向书柜电视墙,一面衔接餐厨区。让场景切换随心意而生,既保持空间通透感,又以功能分区提升使用效率。



休闲区
Leisure Area
多元需求的美学平衡




厨房
Kitchen
暮光先抵达的日常剧场






餐厅
Dining Room
暮色里的光影焦点







主卧
Master Bedroom
个性与舒适的共生
















小儿子房
Younger Son's Room
斑斓里的活力感




大儿子房
Elder Son's Room
简素里的生长感



房地产基础知识300问
1、什么是房产:房屋产权的简称。
2、什么是地产:是指土地财产。
3、什么是房地产:是房产和地产的总称。
4、什么是房地产业:从事房地产开发、建设、经营、管理以及维修、装饰和服务的综合性产业。
5、什么是房地产开发:是指在依法取得土地使用权的土地上按照使用性质的要求进行基础设施、房屋建筑的活动。
6、什么是土地开发:是将“生地”开发成可供使用的土地。
7、集体土地是指:农村集体所有的土地。
8、征用土地是指:国家为了公共利益的需要,可依照法律规定对集体所有的土地实行征用。
9、什么是土地所有权:是指国家或集体经济组织对国家土地和集体土地依法享有的占有、使用、收益和处分的权能。
10、什么是土地使用权的出让:指国家以协议、招标、拍卖的方式将土地所有权在一定年限内出让给土地使用者,由使用者向国家支付土地使用权出让金的行为。
11、什么是土地使用权转让:是指土地使用者通过出售、交换、赠与和继承的方式将土地使用权再转移的行为。
12、什么是地籍、产籍:是对在房地产调查登记过程产生的各种图表、证件等登记资料,经过整理、加工、分类而形成的图、档、卡、册等资料的总称。
13、 生地是指:不具备开发条件的土地。
14、熟地是指:已完成三通一平(水、电、道路,土地平整)或七通一平,具备开发条件的土地。
15、什么是宗地:是地籍的最小单元,是指以权属界线组成的封闭地块。
16、什么是宗地图:是土地使用合同书附图及房地产登记卡附图。它反映一宗地的基本情况。包括:宗地权属界线、界址点位置、宗地内建筑位置与性质、与相邻宗地的关系等。
17、证书附图是指:房地产后面的附图,主要反映房地产情况及房地产所在宗地情况。
18、什么是物业管理:泛指一切有关房地产开发、经营、商品房销售、租赁及售后服务。
19、什么是业主委员会:是在物业管理区域内代表全体业主实施自治管理的组织。是代表物业全体业主合法权益的社会团体,其合法权益受国家法律保护。
20、业主委员会是如何产生的:由业主大会从全体业主中选举产生。
21、住房补贴是指:国家为职工解决住房问题而给予的补贴资助。
22、房屋的所有权是指:对房屋全面支配的权利。
23、房地产交易的两种主要形式是:地产交易形式 与 房产交易形式。
24、建筑物是指:人工建造而成的房屋和构筑物。
25、构筑物是指:建筑物中除房屋以外的东西。
26、什么是期房:是指消费者在购买时不具备即买即可入住的商品房。
27、期房是如何介定的:房地产开发商拿到商品房预售许可证开始至取得房地产权证大产证或竣工验收合格可以直接入住使用)为止。
28、什么是预售合同:消费者在购买期房时签定的销售合同。
29、什么是现房:是指消费者在购买时具备即买即可入住的商品房,即开发商已办妥所售的商品房的大产证(或已经竣工验收合格并交付使用)的商品房。
30、什么是毛坯房:房地产商交付屋内只有门框没有门,墙面地面仅做基础处理而未做表面处理的房叫毛坯房。
31、什么是成品房:是指对墙面、天花、门套、地板实行装修。
32、什么是商品房:是指以完全的市场价格向购房者出售的房子。
33、商品房预售是指:在房地产尚未建成以前,房地产的经销商在取得受买人一定数量的定金后,将期房出售给受买人。
34、商品房现售是指:指房地产开发企业将竣工验收合格的商品房出售给买受人。
35、二手房通常指的是:再次进行买卖交易的住房。
36、经济适用房指的是:面向中低收入家庭的普通住宅。
37、例出3种以上的安居房的种类:准成本房、全成本房、全成本微利房和社会微利房。
38、低层住宅的介定:1-3层的住宅。
39、多层住宅的介定:4-6层的住宅。
40、小高层住宅的介定:7-11层的住宅。
41、中高层住宅的介定:12-16层的住宅。
42、高层住宅的介定:16层以上为高层住宅。
43、超高层建筑的介定:总高度超过100米的建筑。
44、商品房的结构是指:房屋主体所使用的施工工艺和用材。
45、钢结构的意思是:承重的主要结构是用钢材料建造的,包括悬索结构。
46、钢混结构的意思是:承重的主要结构是用钢和混凝上建造的。
47、砖木结构的意思是:承重的主要结构是用砖、木材建造的。
48、砖混结构的意思是:主要是砖墙承重,部分是钢盘混凝土承重的结构。
49、框架结构的意思是:以钢筋混凝土浇捣成承重梁柱,再用预制的隔墙分户的结构。
50、开间指的是:一间房屋内一面墙的定位轴线到另一面墙的定位轴线之间的实际距离。
51、进深指的是:一间独立的房屋或一幢居住建筑内从前墙的定位轴线到后墙的定位轴线之间的实际长度。
52、层高指的是:下层地板面或楼板面到上层楼层面之间的距离。
53、净高指的是:下层楼板上表面到上层楼板下表面之间的距离。
54、占地面积指的是:地块的总面积。
55、1亩约等于多少平方米:666.66㎡
56、居住小区总用地指的是什么用地的总和:住宅总用地,公共建筑设施总用地,道路、广场用地、庭院、绿化用地的总和。
57、住宅总用地是指:住宅用地面积的总和。
58、公建总用地是指:小区内部公共建筑占地面积的总和。
59、建筑用地面积的介定:建设用地位置和界线所围合的用地之水平投影面积。
60、建筑基底面积是指:建筑物首层的建筑面积。
61、建筑高度是指:建筑物室外地平面至外墙面顶部的总高度。
62、房屋的基底面积是指:房屋的基底面积是指建筑物底层勒脚以上外围水平投影面积。
63、道路面积是指:小区内宽度大于1.5米道路的面积总和。
64、广场面积是指:停车、回车广场和有铺砌地面的场地面积之和。
65、庭院、绿化面积是指:小区内集中绿化带、小公园,以及公共活动场所等为小区所有居住人员 共同使用权的绿化面积的总和。
66、假山、小池算不算庭院、绿化面积:算。
67、人均总占地面积(㎡/人)的计算公式:人均总占地面积=建筑红线内总用地÷本小区规划居住总人数。
68、人均住宅用地面积(㎡/人)的计算公式:人均住宅用地面积=小区内总住宅用地÷本小区规划居住总人数。
69、总建筑面积是指:小区内住宅、公共建筑、人防地下室面积总和。
70、人防地下室算不算在总建筑面积之内:算
71、住宅建筑面积是指:住宅建筑外墙外围线测定的各层平面面积之和。
72、套建筑面积是指:一套房屋的整体面积。
73、套建筑面积的构成是:套内建筑面积和套分摊的公用建筑面积
74、幢(栋)是指:一座独立的,包括不同结构和不同层次的房屋。
75、架空房屋是指:一般为底层架空,以柱子作为承重支撑物的房屋。
76、夹层是指:位于两自然层之间的楼层,指房屋内部空间的局部层次。
77、技术层的意思是:用作水、电、暖、卫生等设备安装的局部层次。
78、技术层层高在多少以上计算层数:2.20米以上的计算层数。
79、结构转换层是指:建筑物某楼层的上部与下部因平面使用功能不同,该楼层上部与下部采用不 同结构类型,并通过该楼层进行结构转换,则该楼层称为结构转换层。
80、跃层式住宅是指:一套住宅占两个楼层,由户内楼梯联系上下层,上下两层完全分隔。
81、阁楼是指:利用房屋内的上部空间加建的楼层。
82、阁楼层高在多高以上计算面积:2.20米以上。
83、地上层数是指:即房屋的自然层数,指室内地坪±0.00以上的按楼板结构分层的层高在2.20米以上的楼层数。
84、地上层数用什么数表示:自然数。
85、地下层数是指:采光窗在室外地坪以下的,其室内层高在2.20米以上的地下室的层数。
86、地下层数用什么数表示:负数。
87、房屋总层数是指:房屋的地上层数与地下层数之和。
88、地下层数算不算在房屋总层数之内:算。
89、例出3个以上不算在房屋总层数内的建筑层:假层、夹层、阁楼、装饰性塔楼、楼梯间、水箱间。
90、柱廊是指:有顶盖和支柱,供人通行的建筑物,称为有柱走廊,简称柱廊。
91、骑楼是指:底层为有柱廊房,廊道上方建为楼房的一部分。
92、挑廊是指:指二层以上挑出房屋墙体外,有围护结构,无支柱有顶盖的外走廊。
93、门廊是指:建筑物门前有顶盖,有支柱或围护结构的进出通道。
94、门斗是指:支撑建筑物门前顶盖的是实体墙称为门斗。
95、檐廊是指:房屋檐下方两端有支撑墙体无柱的通道。
96、天棚是指:即天篷,有透明顶篷履盖的屋面。
97、晒台又称什么:露台。
98、露台是指:供人室外活动的上人屋面或底层地面伸出室外的有维护无顶盖的台面。
99、阳台是指:有永久性上盖、有围护结构、有台面、与房屋相连、可以供人活动或利用的房屋附属设施。
100、阳台的分类有:封闭式阳台和半封闭式阳台。
101、封闭阳台是指:在围护栏、墙上部用铝合金玻璃窗等围闭的阳台。
102、封闭阳台面积如何计算:全部计算建筑面积。
103、半封闭阳台是指:除围护栏、墙以外没有进行围闭的阳台。
104、半封闭阳台面积如何计算:计算一半建筑面积。
105、楼梯是指:是指房屋层之间供垂直交通用的通道,
106、室外楼梯是指:依靠房屋外墙体搭建的永久性楼梯。
107、屋顶楼梯间是指:突出房屋屋面有顶盖,四周有围护结构,层高在2.20米以上供上屋顶维修或安全出口用的用房。
108、屋顶楼梯间算不算总层高:不算。
109、屋顶电梯间:指突出房屋屋面,层高在2.20米以上,供停放、检修、升降电梯的用房。
110、屋顶电梯间算不算总层高:不算。
111、设备间是指:一幢大楼内放置各种应用设备以及进行综合布线交接的房屋。
112、功能区的意思是:根据各共有建筑部位的用途而划分的服务范围称为功能区。
113、连廊是指:连接两幢房屋的走廊。
114、连楼是指:连接两幢房屋的楼房。
115、过街楼是指:底层局部为通道的楼房。
116、架空通廊是指:指以两端房屋为支撑,有围护结构,有顶盖无支柱的架空通道。
117、围护结构是指:将空间竖向分割成相对独立,不易通行的两个或多个部分的实体,起隔离作用。
118、墙和栏杆算不算围护结构:算。
119、基地面积是指:一个小区总的占地面积。
120、间距是指:建筑平面外轮廓线之间的距离。
121、国家间距标准的比例是:楼高:间距=1:1.2。
122、国家日照标准是:2个以上居住空间大寒日底层满窗连续日照不低于1小时,全天满足2小时。
123、结构面积是指:房屋建筑中外墙、内墙、柱等结构构件所占面积的总和。
124、公用面积是指:住宅楼内为住户方便出入,正常交往而设置的公共走廊、楼梯、电梯间等所占面积总和。
125、公用面积是如何分摊的:按栋或单元户数面积按比率分摊。
126、套内建筑面积是指:套门内范围的建筑面积。
127、套内建筑面积包括:套内使用面积、套内墙体面积和阳台建筑面积。
128、套内使用面积是指:指套内住户独自使用的面积。
129、套内使用面积的计算包括:卧室、厨房、卫生间、过厅、起居室、内走道、阳台、壁柜等净面积的总和。
130、套内墙体面积是指:套内使用空间周围的维护或承重墙体或其它承重支撑体所占的面积。
131、套内墙体面积的计算:全部。
132、各套之间的分隔墙按多少计入套内墙体面积:一半。
133、套与公共建筑空间的分割墙以多少计入套内墙体面积:一半。
134、外墙以多少计入套内墙体面积:一半。
135、套内自由墙体以多少计入套内墙体面积:全部。
136、套内阳台建筑面积是指:阳台外围与房屋外墙之间的水平投影面积。
137、公用建筑面积是指:各产权主体共同占有或共同使用权的建筑面积,指各套(单元)以外为各户共同使用,不可分割的建筑面积。
138、容积率是指:项目规划建设用地范围内全部建筑面积与规划建设用地面积之比。
139、一个项目总建筑面积为64000㎡,占地面积为40亩,容积率是多少:2.4
140、建筑密度又称:建筑覆盖率。
141、建筑密度是指:项目用地范围内所有基底面积之和与规划建设用地之比。
142、人口毛密度的计算公式:人口毛密度=小区内总居住人数÷小区内占地面积。
143、平均每平方米造价(元):平均每平方米造价=建筑物总造价÷建筑面积。
144、使用面积系数K1(%):使用面积系数=总使用面积(平方米)÷总建筑面积(平方米)×100%。
145、居住面积系数K2(%):居住面积系数=总居住面积(平方米)÷总建筑面积(平方米)×100%。
146、绿地率:指公共绿地、宅旁(宅间)绿地、公共服务设施所属绿地和道路绿地等四类绿地面积的总和占居住区用地总面积的比率。
147、公共绿地的介定:最小的要求是宽度不小于8米,面积不小于400平方米,
148、哪些绿化不能算入绿地面积:距建筑外墙1.5米和道路边线1米以内的用地,地下车库、化粪池等地表覆土达不到3米深度的设施不能计入。
149、绿化覆盖率:所有绿化面积与建设用地面积之比。即绿化面积÷基地面积×100%
150、绿化覆盖面积:所有植被垂直投影面积的总和。
151、得房率:指套(单元)内建筑面积与套建筑面积的比率。
152、公共能耗:是小区共用部位、共用设备和公共设施及在公共性服务中所发生的水、电、煤等能源消耗。
153、公共能耗费:因公共能耗而产生的费用
154、公共能耗费由谁承担:由全体业主承担。
155、规划形态是指:项目的具体建筑构成。
156、单元式住宅:是指在多层、高层楼房中的一种住宅建筑形式
157、居住单元:每个楼梯的控制面积称为一个居住单元。
158、一梯几户是指:一个单元里平层有几户的俗称。
159、房型(户型):是指一套住宅由多少卧厅、厨、卫等组成的总称。
160、面积配比:指的是各种房型面积在项目或单元中所占比例的多少。
161、房型配比:指的是各种房型在项目或单元中所占的比例的多少。
162、阁楼:是指位于房屋坡屋顶下部的房间。
163、普通住宅:是指按一般民用住宅标准造的居住用住宅。
164、准现房:准现房是指房屋主体已基本封顶完工,工程正处在内外墙装修和进行配套施工阶段的房屋。
165、居住组团:指一般被小区道路分隔,配建有居民所需的基层公共服务设施的居住生活聚居地。
166、公寓:是指二层以上供多户人家居住的楼房建筑。
167、纯办公楼:是指专为各类公司的日常营运提供办公活动空间的大楼。
168、商场:是指规划为对外公开进行经营的建筑物。
169、综合楼:是指兼有住家、办公甚至商场的大楼。
170、商住住宅:是住宅观念的一种延伸,它属于住宅,但同时又融入写字楼的诸多硬件设施,使居住者在居住同时又能从事商业活动的住宅形式。
171、别墅:是指在郊区或风景区建造的供住宿休养用的花园住宅。
172、联排别墅:三户或三户以上连体的别墅。
173、双拼别墅:二户连体的别墅。
174、独栋别墅:单楼独栋的别墅。
175、跃层式产品:住宅占有上下两层楼南,卧室、起居室、客厅、卫生间、厨房、及其它辅助用房可以分层布置,上下层之间的交通采用户内独用小楼梯联接。
176、跃层式产品的优点:跃层式住宅的优点是每户都有较大的采光面,通风较好,户内居住面积和辅助面积较大,布局紧凑,功能明确,相互干扰较小。
177、复式产品(LOFT):在建造上仍每户占有上下两层,实际是在层高较高的一层楼中增建一个夹层,两层合计的层高要大大低于跃层式住宅。
178、错层式住宅:是指楼面高度不一致错开之处有楼梯联系的住宅。
179、SHOPPING MALL:大型购物广场的英文名称。
180、共有房产:共有房产是指某一房产属于两个或两个以上的所有人共同所有。
181、半地下室:是指房间地面低于室外地平面的高度超过该房间净高的1/3,且不超过1/2者。
182、地下室:地下室是指房间地面低于室外地平面的高度超过该房间净高的1/2者。
183、一地下室室内净高2.6米,2米低于室外地平面,属于半地下室还是地下室:属于地下室。
184、商品房验收合格指的是:单体(即单幢楼盘)验收合格。
185、商品房综合验收合格指的是:包含所有配套设施在内的全部建筑物的验收合格。
186、空鼓:局部面与基层没有胶合剂或胶合剂没有起作用。
187、地基:建筑物下面直接承受建筑物重量的土层称为地基。
188、基础:建筑物的最下端与土壤直接接触的部分称为基础。
189、基础的作用:基础的作用是承受建筑物全部重量并将之分散传递给地基。
190、墙体是构件,也可以是构件:是维护分割构件,同时也可以是承重构件。
191、在一般砖混结构房屋中,墙体也是主要的:承重构件。
192、停车场:指在建设用地内为停放机动车和非机动车须配置的场地。
193、停车场小型机动车位面积计算:按每车位25平方米计算。
194、自行车位按每车位多少平方计算:1.2平方米计算。
195、商品房销售面积又称之为:套建筑面积
196、套建筑面积包括哪两部份:套内建筑面积和分摊的公用建筑面积。
197、商品房预售许可证是由什么单位向什么单位发放的一项证书:是房地产管理部门向房地产开发公司颁发的一项证书。
198、商品房预售许可证的作用是:用以证明列入证书范围内的正在建设中的房屋已经可以预先出售给承购人。
199、契税是指:房屋所有权发生变更时,就当事人所订契约按房价的一定比例向产权承受人征收的一次性税收。
200、公共维修基金是指:住宅楼房的公共部位和共用设施、设备的维修养护基金。
201、公共维修基金的交纳人是:购房人。
202、公共维修基金何时交纳:在交房时交纳。
203、印花税是指:印花税是对经济活动和经济交往中书立、领受凭证征收的一种税。
204、居住用地使用年限:70年。
205、商业用地使用年限:40年。
206、工业用地使用年限:40年。
207、综合用地使用年限:50年。
208、土地使用年限届满后怎么办:业主可以在继续交纳土地出让金或使用费的前提下,继续使用该土地。
209、申办产权需具备哪些资料:审核后购销合同一份、收件收据、产权申请登记表、产权登记发证审批表、房屋所有权情况调查表、测量后的正式图纸。
210、办理产权需交纳哪些费用:产权登记费、勘丈测绘费、工本费。
211、房地产产权初始登记是指:对未经登记机关确认其房地产权利,领取房地产权利证书的土地使用权及建筑物、附着物的所有权进行的登记。
212、房地产登记是指:房地产产权登记。
213、房地产登记的种类:分为初始登记、转移登记、抵押登记、变更登记、其它登记。
214、什么情形属于房地产变更登记:
(1)地产使用用途改变;
(2)权利人姓名或名称发生变化的;
(3) 房地产座落名称或房地产名称发生变化的;
(4)建筑物、附着物倒塌、拆除。
215、房地产登记是以什么单位进行登记的:是以一宗土地为单位进行登记的。
216、申请房地产登记可否委托他人代理:可以委托他人代理。
217、由代理人办理申请房地产登记的,应向登记机关提交什么材料:申请人的委托书。
218、通过买卖、交换、赠与将房地产转移给他人的法律行为称之为:房地产转让。
219、房地产转让时其他公用设施是否一起转让:转让人对其他公用设施所拥有的权益同时转移。
220、在什么情况下房地产开发项目可以交付使用:房地产开发项目竣工,经验收合格后,方可交付使用;
221、未经验收或者验收不合格的房地产开发项目可否交付使用:不得交付使用。
222、预售面积是指:预售面积是指全部按建筑设计图上尺寸计算的房地产建筑面积。
223、预售面积只供什么情况下使用:只供房地产预售时使用。
224、竣工面积是指:竣工面积是指房地产竣工后实测的面积。
225、商品房预售须符合哪些条件?:
(1)交付全部土地使用权出让金,取得土地使用权证书;
(2)有建设工程规划许可证;
(3)按提供预售的商品房计算,投入开发建设资金达到工程建设总投资的25%以上,并已经确定施工进度和竣工交付日期;、
(4)向县级以上人民政府房产管理部门办理预售登记,取得商品房预售许可证明。
226、哪些情况下预售房购买者可以要求取消预售房合同:
(1)房屋开发公司不能按照原定日期交付预购房屋;
(2)建成后的房屋实际面积与预售房合同确定的面积不相符;
(3)建成后房屋建筑的材料与预售合同所列建材不相符。
227、五证是指:《国有土地使用证》、《建设用地规划许可证》、《建设工程规划许可证》、《建设工程开工证》、《商品房预售许可证》。
228、国有土地使用证:是证明土地使用者向国家支付土地使用权出让金,获得了在一定年限内某块国有土地使用权的法律凭证。
229、建设用地规划许可证:是建设单位在向土地管理部门申请征用、划拨土地前,经城市规划行政主管部门确认建设项目位置和范围符合城市规划的法定凭证。
230、建设工程规划许可证:是有关建设工程符合城市规划要求的法律凭证。
231、二书是指:《新建住宅质量保证书》和《新建住宅使用说明书》。
232、房地产抵押是指:指债务人或第三人(抵押人)以其合法拥有的房地产作为担保物向债权人(或押权人)提供债务履行担保的行为。
233、房地产按揭是否属于房地产抵押的一种形式:是。
234、申请抵押登记应提交什么资料:
(1)《房地产抵押登记申请书》;
(2)委托书;
(3)房地产证;
(4)夫妻双方身份证、户口簿、结婚证或未婚姻证明;
(5)商品房买卖合同和个人住房借款合同。
235、贷款期限在1年内的如遇利息调整如何处理:不做调整。
236、贷款期限在1年以上的如遇利息调整如何处理:于下一年1月1日开始,按相应期限档次利率执行新利率。
237、贷款人提前偿还贷款时本息如何计算:提前清偿的部分在以后期限不再计息,此前已计收贷款利息不作调整。
238、银行按揭是指:购房抵押贷款,是购房者以所购房屋的产权作抵押,由银行先行支付房款给发展商,以后购房者按月向银行分期支付本息。
239、个人住房按揭需提交哪些资料:购房身份证、户口簿、结婚证原件及复印件(未婚证明原件)、 收入证明(个体户则提供营业执照及税票)、已首付购房款收据原件及复印件、购房合同、贷款行的活期存折、贷款申请书、个人住房借款合同、借款借据、委托银行扣收购房还款协议书、住房抵押承诺书。
240、住房公积金是指:单位为其在职职工缴存的长期住房储金。
241、公积金贷款是指:由城市住房资金管理中心委托银行向购买自住住房的公积金交存人发放的贷款。
242、公积金贷款担保费用计算公式:贷款金额×贷款年限×千分之0.75。
243、什么情况下公积金贷款担保服务费可有优惠:首次购买普通自住房和改善型住房的客户在申请公积金(组合)贷款时。
244、公积金贷款担保服务费优惠幅度是:减免40%。
245、申请住房公积金贷款的条件:凡住房公积金连续缴存6个月以上或累计缴存公积金一年以上, 并且目前仍在缴存公积金,才有资格申请。
246、办理公积金贷款应提供哪些资料:身份证、户口簿、结婚证、收入证明、公积金卡、审核后购房合同一份,首付款票据。
247、组合贷款是指:公积金贷款与商业贷款的合称。
248、北京市限购政策:连续满五年的社保或五年的纳税申报记录。
249、目前住房公积金贷款最高额度为:80万元。
250、存量成套住房公积金贷款首付款比例为:30%。
251、90平方米以内(含)商品住房公积金贷款首付比例为:30%。
253、什么情况下可再次申请办理住房公积金贷款:借款申请人还清住房公积金贷款后。
254、契税是以什么价格为基数收取的:总房价。
255、契税税率为:90㎡以下的1%;90~140㎡为1.5%;140㎡以上为3%。
259、纯企划是指:由发展商出广告费,代理公司根据项目的特点,来为这个项目进行一系列的广告策划,不包括现场业务。
260、企划代销是指:由发展商提供广告费用,我们公司根据这个项目的特点给这个项目重新定位,从前期的案前准备、广告策划以及现场的销售进行一系列正题的运行。
261、包柜是指:代理销售者或公司仅负责销售,而企划则由其它的广告公司负责。
262、包销是指:由代理公司来承担广告费用的一种代理形式。
263、个案是指:房地产项目。
264、开盘:一个项目正式公开发售。
265、销售率:指售出的户数占可销的总户数的比例。
266、起价:是指商品房在销售时各单元或整个项目销售价格中的最低价格。
267、均价:单元或整个项目总销售额除以可销售面积得出的价格。
268、基价:经过核算而确定的每平方米的基本价格。
269、销售价:以基价增减楼层和朝向差价后得出的价格。
270、总价:总价是指每套房子的单价乘以面积所得出的价格,是购房者购买该套房子所要付出的全款。
271、定金:只是预付款的一部分,起到担保债权的作用。
274、SP的中文解释:销售促进。
275、SP是指:一种个人或团体用以促进成交或营造现场热烈气氛的炒作行为。
276、DSP:有一定针对性的网路弹窗广告。
277、PR:用以提升企业和产品形象的公关活动。
278、CF:电视广告。
279、DM:一种对于目标客源进行专门邮寄的邮政专递广告。
280、POP:指树立在户外的,大型的平面看板广告。
281、NP:报纸广告。
282、VI:平面广告表现的总称。
283、CI:企业形象表现的总称。
284、SOWT:个案的优势、劣势、市场威胁和市场机会的英文简写。
285、销海:用以促进销售的单张平面印刷海报。
286、夹报:一种跟销售海报类似的平面印刷品,用以夹在各类报纸中做宣传。
287、KT板:售楼处现场内布置的一种表现企业和产品形象的看板。
288、LOGO:展现产品形象和特色的标志。
289、鸟瞰图:从空中俯视的整个区域的效果表现图。
290、墨线图:单个产品或楼层的平面表现图,一般会标明比例及尺寸。
291、家配图:在墨线图的基础上配置上家具的平面效果表现图。
292、效果图:一种表现建筑外立面、小区景观等的平面图片。
293、地理位置图:一种表明个案所处位置的平面表现图。
294、交通表现图:一种表明个案周边交通情况的平面表现图。
295、生活机能图:一种表明个案周边生活、休闲、娱乐场所、学校、金融设施等的平面表现图
296、房型单片:印有单个房型或家配图的单片印刷图纸。
297、楼书:对小区的基本情况、发展商、产品、配套设施、智能化等做全面介绍的印刷文本。
298、道旗:沿马路设置在灯杆或其它立杆上的宣传旗帜。
299、灯箱:一种有内部灯光设置的,用以宣传企业和产品形象的广告表现物,一般为箱体结构。
300、高炮:一种不依附建筑物,用钢管或钢架等直接在空地上树立起来的巨大的广告物。
301、软文:直接以文字表达,着重企业形象推广和个案报导的广告形式。
302、硬广告:以直觉的平面表达形式(如效果图、房型图),配以少量的文字,直接述说企业或产品形象的广告手法。
303、控台:销售现场用以行政作业或控制销售速度、现场气氛、SP活动等的操作台。
304、BY位表:业务人员轮流接待客户的顺序表。
305、来访登记表:记录每组来访客户基本信息及购房需求的表格。
306、来电登记表:记录客户来电询问重点及需求的表格。
307、日报表:记录销售现场当天销售情况及人员出勤、资金流量情况和突发事件的综合表格。
308、周报表:记录销售现场一周销售情况及人员出勤、资金流量情况和突发事件的综合表格。
309、月报表:记录销售现场每月销售情况及人员出勤、资金流量情况和突发事件的综合表格。
310、销控表:综合记录现场销售情况及所剩房源的表格。
311、底价:一般为开发商开发成本和期望收益合成的销售价格。也指代理公司与开发商约定的合作最低销售价格。
312、表价:现场或对外的公开报价(一般会在底价上加上一定的百分比)。
313、佣金:业务人员根据销售业绩及提成比例所得的收入。
314、主力户型:个案中最为主要或最多的户型。
315、主力面积:主力户型的面积。
316、去化:指个案的销售情况。
317、利多:指个案的优点或主要卖点。
318、利空:指个案的缺点或明显不足点,也是个案的弱点。
319、市场调研:对相关项目的市场信息进行系统的收集、整理、记录和分析的过程。
320、市场调查包括哪几项:环境分析、产品分析、价格分析、去化分析、客源分析、业务分析、媒体分析、综合分析。
321、环境分析:包括区位情况、交通情况、配套设施等。
322、产品分析:包括基地情况、经济指标、房型配比、面积配比等。
323、价格分析:包括单价范围、总价范围、付款方式、折扣情况等。
324、去化分析:包括去化顺序、去化特征、去化抗性等。
325、客源分析:包括区域划分、客源层次、消费意图等。
326、业务分析:包括业务配备、业务能力、业务执行等。
327、媒体分析:包括媒体选择、宣传模式、主要述求等。
328、综合分析:包括优势分析、劣势分析、综合结论等。
329、计算全部建筑面积有哪些,例出5种:
房屋、夹层、插层、技术层、楼梯、电梯间、通道、门厅、回廊、楼梯间、电梯井、垃圾道、管道井、电梯机房、斜面构屋顶2.20米以上的部位、挑楼、全封闭的阳台、室外楼梯、通廊、地下室、半地下室、门廊、门斗、、车棚、货棚等。
330、计算一半的建筑面积有哪些,例出5种:
有盖无柱的外走廊、檐廊、单排柱的车棚、货棚、站台、未封闭的阳台、建筑物外有顶盖,无柱的走廊、檐廊、建筑物间有顶盖的架空通廊等。
331、不计算建筑面积的有那些,例出5种?:
柱、垛、无柱雨篷、悬挑窗台、室外爬梯、屋顶水箱、建筑物上无顶盖的平台(露台)、游泳池、独立烟囱、油罐、贮油(水)池、地下人防干道、支线等。
332、分摊公用建筑面积的计算方法:分摊公用建筑面积=套内建筑面积×公用建筑面积分摊系数
333、公用建筑面积分摊系数计算方法:公用建筑面积分摊系数=公用建筑面积÷套内建筑面积之和
334、公用建筑面积计算方法:公用建筑面积=整幢建筑的面积-套内建筑面积之和-不应分摊的建筑面积
335、哪些公用面积应分摊,例出5种:室内外楼梯、内外廊、公共门厅、通道、电梯、配电房、设备层、设备用房、结构转换层、技术层、空调机房、消防控制室、为整栋楼层服务的值班警卫室、建筑物内的垃圾房以及空出屋面有围护结构的楼梯间、电梯机房、水箱间等。
336、哪些公用面积不能分摊,例出5种:不能分摊的公用面积为底层架空层中作为公共使用的机动车库、非机动车库、公共开放空间、城市公共通道、沿街的骑楼作为公用开放使用的建筑面积、消防避难层;为了整栋建筑物使用的配电房;公民防护地下室以及地下车库、地下设备用房等。
声明:本文由入驻焦点开放平台的作者撰写,除焦点官方账号外,观点仅代表作者本人,不代表焦点立场。


