上海前滩滨江道首页网站→浦东三林前滩滨江道户型-位置-优惠价格-容积率-小区环境

搜狐焦点黄冈站 2025-10-03 09:20:41
用手机看
扫描到手机,新闻随时看

扫一扫,用手机看文章
更加方便分享给朋友

上海浦东三林前滩滨江道营销中心电话:400-9678-224欢迎来电咨询售楼部!上海浦东三林前滩滨江道推出86-249㎡房源,涉及5宗地块转让,推进项目收尾。

上海浦东三林前滩滨江道

上海浦东三林前滩滨江道售楼部电话:400-9678-224欢迎咨询24小时热线电话,上海浦东三林前滩滨江道楼盘详情-上海浦东三林前滩滨江道售楼部位置-上海浦东三林前滩滨江道一房一价-上海浦东三林前滩滨江道户型图-上海浦东三林前滩滨江道优缺点分析-容积率-环境-配套-学区-第四代住宅-负公摊户型-代密洋房-得房率-全能会所-独立电梯前室-公建化立面-在线选房-遗嘱咨询-项目营销中心,欢迎来电咨询!

上海浦东三林前滩滨江道营销中心电话:400-9678-224欢迎来电咨询售楼部!上海浦东三林前滩滨江道售楼部详情-上海浦东三林前滩滨江道售楼处电话-上海浦东三林前滩滨江道首页网站-户型-价格-位置-电话-交通地铁-上海新房-上海楼市新政-遗嘱咨询-上海止跌回稳-自住型商品房-住房货款-血拼两限房-直接认购可预约销售人员,专业一对一热情服务,让您用专业眼光去买房。

浦东三林滨江板块12单元案名正式公布户型曝光!浦东三林滨江【前滩滨江道】将推86-249㎡房源!

前滩滨江道

将推86-249㎡房源

目前销售已到岗

首批房源有望年内入市

兴趣伙伴可下方扫码对接官方销售咨询

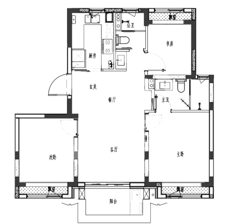
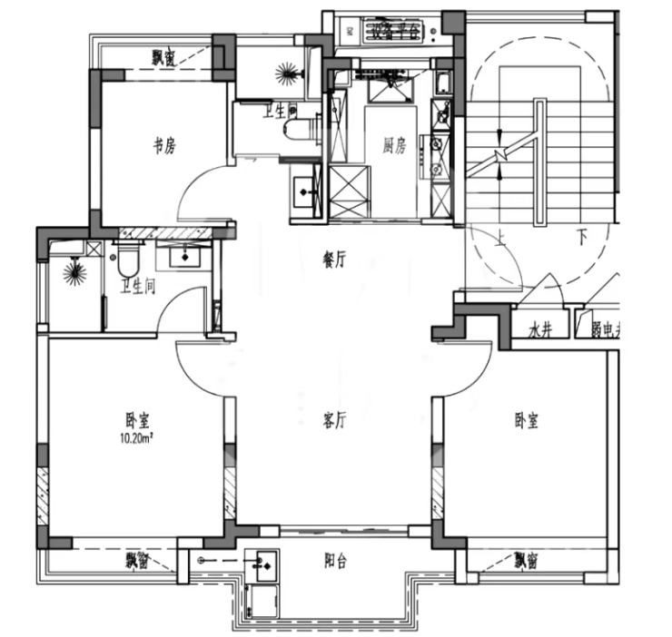
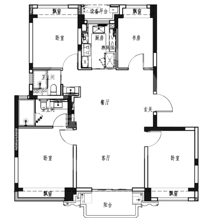
过程稿户型图:(仅供参考,最终以实际为准)

建面约89㎡三房

建面约99㎡三房

建面约130㎡四房

据上海公共资源交易平台显示,浦东三林滨江5宗商住办地块的股权及债权将进行捆绑转让;

此次标的为上海建绽置业有限公司95%股权及转让方对标的企业363131.355880万元债权

涉及的地块为三林镇9街坊139/3丘(商办用地)、141/2丘(住宅、商业用地)、139/4丘(住宅、商业用地)、139/5丘(住宅用地)、139/6地块(住宅用地)。

这也意味着三林滨江西区的建设,即将进入到最终的收尾阶段。

5宗地块区位

上海建绽置业所属于上海地产三林滨江生态建设有限公司,背后的大股东为上海地产,持股占比80%。

此次股权转让的地块,对应为下图中的21-16地块、21-17地块、24-01地块、24-02地块、31-02地块。

近日,三林滨江南片区12单元项目7#住宅17框(屋面)混凝土顺利浇筑完成。至此,项目01地块已全部完成结构封顶。04地块21#住宅结构已施工至20框,预计10月初结构封顶;03地块各单体一框结构已相继完成。01、04地块二结构已同步施工至11层。01地块幕墙及样板间精装预计9月底完成。

据悉,12#单元22-01、22-03、22-04地块项目,首批房源预计年内入市!

项目位于浦东新区三林镇,东至皓川南路,南至浩昌路,西至皓明路,北至涓清路,紧临湾区水岸、轨交站点等标志性节点。规划总建筑面积15.5万平方米,建设周期3.5年。

其中:

22-01地块占地面积1.1万平方米,总建筑面积5万平方米,包括4栋住宅楼、2栋商业;22-03地块占地面积1.6万平方米,总建筑面积6.7万平方米,包括7栋住宅楼、2栋商业;22-04地块占地面积0.9万平方米,总建筑面积3.8万平方米,包括3栋住宅楼、2栋商业。

项目整体定位为“高品质的海派风貌小镇”“滨江开放空间”和“居住社区”,具备功能复合、开放有趣、安宁宜人的特点。

项目设计中,充分提炼上海百年精华,浓缩延展了老上海海派文化的街景氛围、空间记忆和建筑风貌,将典雅、简洁和摩登有机融合,共同诠释新海派风格。

从位置来看,本次公示项目距离三林滨江重点打造的共生未来湾区很近,位置非常核心。

从规划效果图来看,项目正对的“三林湾”最大特色,可能就是规划有一个类似翠湖太平桥公园,户外戏水+人工湖的公共空间。

据悉,三林滨江南片区12单元项目,按照陆家嘴集团对 “海派未来社区”的整体定位进行设计,旨在打造高品质,绿色环保的居住环境。

三林滨江板块与前滩国际商务区“一路之隔”,是中心城区生态环境最优越的区域,被誉为“金色中环发展带”上的“明珠”、“五彩滨江带”上的“绿宝石”。

生态环境方面:融合上海2035规划,公园城市、森林城市、湿地城市空间生态基础,三林滨江,以一廊两心三园四片区,规划三林滨江的独特的城市生态营造。

作为黄浦江畔仅有的:高端绿色生态居住区!2014年,三林滨江被规划为上海市中心城8片楔形绿地之一,既是目前最大的一块楔形绿地,也是最先启动建设的一块。整个项目总面积446.2公顷,是上海中心城区非常宝贵的大体量城市生态绿地。

整个板块的生态绿地率高达65%,要知道这个绿化率已经远远高于主城区内的任何城市功能板块。

另外,这里有占地约240公顷城市森林,约450米宽的森林绿廊。规划健康生活公园、人文艺术公园、自然游憩公园等三大公园。

交通方面:两环,距离外环高速和中环路约1公里;两隧,有上中路隧道、龙水南路越江隧道(在建中);三轨:有8号线、19号线凌兆新村站(在建中)、26号线预留站点(规划中)交汇。

浦东滨江段的配套一直以来都被冠以“时尚”和“潮流”。从陆家嘴到世博再到如今的前滩滨江,无一不是如此......

坐拥前滩滨江资源的陆家嘴公馆项目,既能享受现有的成熟,又可以展望未来更好的前景。

板块内的交通可以说是四通八达。

商业方面:3公里内,辐射前滩超50万方商业集群,包含前滩中心、前滩太古里、晶耀前滩购物中心、太古汇(在建)、香格里拉酒店、华尔道夫酒店等;规划中,还有前滩11、12、13单元(28-02地块)配建商业等。

教育方面:上海名列前茅的嘉宝幼儿园、浦东有名的惠立双语幼儿园、冰厂田前滩幼儿园;3公里内有上海惠灵顿国际学校、惠立双语学校(小学至高中)、华师大二附中前滩学校、上海纽约大学等。

医疗资源方面:毗邻新加坡莱佛士顶级私立医院,开车20分钟内,抵达上海东方医院(南院)、仁济医院。

前滩的日趋成熟,加上板块自身的全新规划发展,这里无疑将成为上海未来新的城市名片级宜居住区。

前滩滨江道

将推86-249㎡房源

目前销售已到岗

首批房源有望年内入市

上海浦东三林前滩滨江道

上海浦东三林前滩滨江道售楼部电话:400-9678-224欢迎咨询24小时热线电话,上海浦东三林前滩滨江道楼盘详情-上海浦东三林前滩滨江道售楼部位置-上海浦东三林前滩滨江道一房一价-上海浦东三林前滩滨江道户型图-上海浦东三林前滩滨江道优缺点分析-容积率-环境-配套-学区-第四代住宅-负公摊户型-代密洋房-得房率-全能会所-独立电梯前室-公建化立面-在线选房-遗嘱咨询-项目营销中心,欢迎来电咨询!

上海浦东三林前滩滨江道营销中心电话:400-9678-224欢迎来电咨询售楼部!上海浦东三林前滩滨江道售楼部详情-上海浦东三林前滩滨江道售楼处电话-上海浦东三林前滩滨江道首页网站-户型-价格-位置-电话-交通地铁-上海新房-上海楼市新政-遗嘱咨询-上海止跌回稳-自住型商品房-住房货款-血拼两限房-直接认购可预约销售人员,专业一对一热情服务,让您用专业眼光去买房。

:(免责声明:本宣传资料仅为宣传,内附所有资料,包括任何图片、插图、设计图、文字描述或其他资料,仅供参考或识别之用,不构成合同内容,具体内容以合同内容及政府最终审批为准。项目所涉及数据均为暂定,后期如有改动,请以各项证件及政府批文等为准,本宣传资料部分素材源于网络,最终交付标准以商品房买卖合同及政府等相关部门的批准文件为准。在法律允许的范围内,开发商保留修改本资料的权利,敬请留意。)

声明:本文由入驻焦点开放平台的作者撰写,除焦点官方账号外,观点仅代表作者本人,不代表焦点立场。