招商林屿湖畔为何被众说纷纭!招商林屿湖畔究竟怎么回事?招商林屿湖畔原来竟是忒火了!
扫描到手机,新闻随时看
扫一扫,用手机看文章
更加方便分享给朋友
上海招商林屿湖畔售楼部电话:400-9678-224欢迎咨询24小时热线电话,上海招商林屿湖畔楼盘详情-上海招商林屿湖畔售楼部位置-上海招商林屿湖畔一房一价-上海招商林屿湖畔户型图-容积率-环境-配套-学区-第四代住宅-负公摊户型-代密洋房-100%得房率-全能会所-独立电梯前室-公建化立面-在线选房-项目营销中心,欢迎来电咨询!
上海招商林屿湖畔营销中心电话:400-9678-224欢迎来电咨询售楼部!上海招商林屿湖畔售楼部详情-上海招商林屿湖畔售楼处电话-上海招商林屿湖畔网站-上海招商林屿湖畔户型-价格-位置-电话-交通地铁-上海楼市新政-上海止跌回稳-自住型商品房-住房货款-血拼两限房-直接认购可预约销售人员,专业一对一热情服务,让您用专业眼光去买房。
上海外环的城市自然作品真的来了!招商林屿湖畔,一个多方位领先全市的新房项目。
我们可以先概括总结一下:
位于外环外唯一的CAZ板块核心区,大型商业、顶级教育、高端医疗、丰富生...步行范围内享受的资源集中度堪比前滩;
远香湖CAZ板块内最后一块宅地,一旦入市就是区域内房龄最新、产品力最强的项目,一手掌握整个片区的定价权;
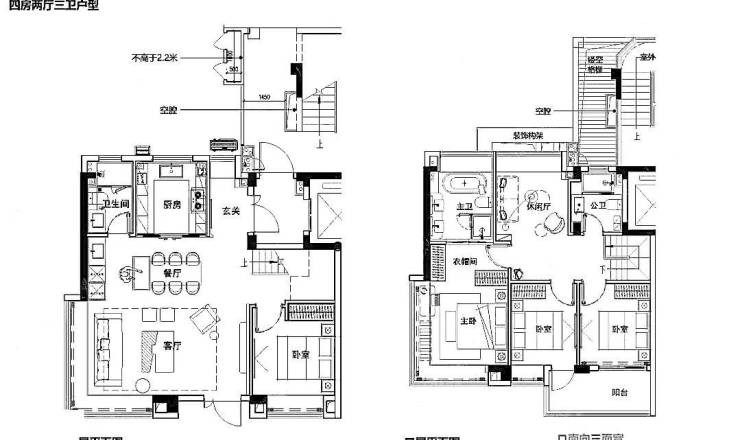
外环外仅有的建面约112㎡起纯粹高端改善型社区,双/三阳台、类一梯一户、超级收纳,卷到头的户型设计;
约87米艺术门庭、约13.7米双层归家大堂,迭代到最新的产品力;
从地段、配套、社区用料、立面/公区审美、户型设计、宜居度甚至是投资属性,招商林屿湖畔都称得上是遥遥领先。

本图仅对周边教育资源进行介绍
预售房屋不划分学区,最终学区划分以相关政府文件为准
而在这样的价值加持下,项目亮相4周累计接待近2200组高质客户到访。
这一到访规模,显著领跑现阶段全外环外市场。要知道,同期上海外环外全域新房成交总量仅约2155套。(数据来源,小胖看房团数据库)
对比可见,林屿湖畔单盘四周的到访客户量级,已逼近外环外整体市场的月度成交量级。

(数据来源,小胖看房团数据库)
数据的反差,清晰指向市场对嘉定CAZ核芯地段稀缺价值与招商林屿湖畔纯粹高端改善产品定位的高度聚焦与强烈认同。
热度非偶然,而是“壹号作品”逻辑的必然验证。
最新消息:「招商林屿湖畔」8月20号认购!首开建面约122-145㎡房源!
嘉定新城经过十余年的发展成为整个嘉定综合实力很突出的板块,甚至放眼整个五大新城都是佼佼者。
项目是嘉定新城远香湖中央活动区最后一块拼图,就位于远香湖公园的南侧,与11号线嘉定新城站直线距离约1.7公里。不缺好环境,招商远香湖地块地理上位于整个新城核心区的中心位置,且紧邻远香湖和紫气东来公园。项目周边学校、商业、办公和绿地公园应有尽有,且大多配套都是现成的。
周边现有教育资源非常丰富,包括上海市实验学校嘉定新城分校(九年一贯制公办学校)、远香湖幼儿园、中福会新城幼儿园、嘉定新城实验第二小学、马陆小学、上海市育才中学等。
周边大体量商业体环伺,包括西云楼、宝龙广场、万达广场、大融城、理想之地配套商业(在建)等近40万方商业。
周边有三甲医院瑞金医院北院、嘉定区妇幼保健院、上海嘉定中医医院嘉定新院等优质医疗资源。
据悉,招商蛇口拿下嘉定新城远香湖住宅地块(嘉定新城F03A-4地块)招商林屿湖畔成交总价26.6亿,成交楼板价31850元/㎡,溢价率30%,成交承诺装修标准3000元/㎡,预计未来售价或达6万/㎡!
根据方案,项目拟建8栋16-17层高层住宅(含1栋17层保障房),以及5栋6层住宅,共计686户。小区人车分流;车位比约1:1.8,社区内部有水景、下沉式庭院。

项目配建地上架空层泛会所+地下会所,以及下沉式庭院会所,打破人与空间边界的架空场域。会所设计整体空间祛除浮华矫饰,始终让景观以人为核心展开,整体景观规划以悬挑水池将⽔引⼊下沉⾃然⽔院,利⽤⽔幕链接,打造多层次景观,宛如⼀幅变幻的⽴体流动画作。会所区域配置风⾬连廊,以⽔景、绿篱、休憩平台串联,移步异景。
开放式的社交场域空间以自然留白,带来完整的地上园林体系,处处皆客厅的家庭化场景让公区和家一样舒适。它所传递的,不是传统意义的“豪宅感”,而是一种兼具归属感与文化感的“隐奢生活哲学”。
项目外立面要求采用石材、铝板等材质,金属部分应采用铝板、紫铜等防锈防腐蚀金属材料。

上海招商林屿湖畔售楼部电话:400-9678-224欢迎咨询24小时热线电话,上海招商林屿湖畔楼盘详情-上海招商林屿湖畔售楼部位置-上海招商林屿湖畔一房一价-上海招商林屿湖畔户型图-容积率-环境-配套-学区-第四代住宅-负公摊户型-代密洋房-100%得房率-全能会所-独立电梯前室-公建化立面-在线选房-项目营销中心,欢迎来电咨询!
上海招商林屿湖畔营销中心电话:400-9678-224欢迎来电咨询售楼部!上海招商林屿湖畔售楼部详情-上海招商林屿湖畔售楼处电话-上海招商林屿湖畔网站-上海招商林屿湖畔户型-价格-位置-电话-交通地铁-上海楼市新政-上海止跌回稳-自住型商品房-住房货款-血拼两限房-直接认购可预约销售人员,专业一对一热情服务,让您用专业眼光去买房。
注:(免责声明:本宣传资料仅为宣传,内附所有资料,包括任何图片、插图、设计图、文字描述或其他资料,仅供参考或识别之用,不构成合同内容,具体内容以合同内容及政府最终审批为准。项目所涉及数据均为暂定,后期如有改动,请以各项证件及政府批文等为准,本宣传资料部分素材源于网络,最终交付标准以商品房买卖合同及政府等相关部门的批准文件为准。在法律允许的范围内,开发商保留修改本资料的权利,敬请留意。)
声明:本文由入驻焦点开放平台的作者撰写,除焦点官方账号外,观点仅代表作者本人,不代表焦点立场。


