上海徐汇「中煌大厦」售楼处—上海徐汇中煌大厦—徐汇中煌大厦
扫描到手机,新闻随时看
扫一扫,用手机看文章
更加方便分享给朋友
上海徐汇区【中煌大厦】
售楼处电话:400-886-1718【营销中心】
疫情防控 看房必须提前来电预约登记
项目简介
在上海,滨江是一个重要的标志。
因为一线江景是稀缺的资源。10年前的陆家嘴滨江,汤臣一品、中粮海景壹号等,一众江景住宅一骑绝尘,为滨江大红大紫拉开序幕,至今陆家嘴滨江仍处于上海价值之巅。
徐汇滨江作为近几年的新贵板块,受到众多购房者青睐,众多行业巨头以及互联网企业纷纷从漕河泾迁移过来,也带来了许多高精尖人才,本项目所在的徐汇龙华板块也将受到徐汇滨江区域的发展利好辐射,这些企业的高薪创新人才进一步带动了周边住宅的买卖及租赁市场。
位于上海内环内的徐汇区,除去老公房,很少有低总价的小户型项目出售,大多都是10W+/㎡的豪宅,如云锦东方、海珀旭晖等。
本项目所在区域配套十分成熟,交通便捷。
【中煌大厦】是上海两幢18层高的精装修商住楼,紧靠上海体育场,各种生活、商业配套设施齐全,从大厦出发,出行交通极为方便,离周边的地铁、轻轨大概只需10分钟左右,另外出门就是中山南路高架,比较适合投资或者商住。

小区规划
所属区域:徐汇区 八万人体育馆旁
项目地址:徐汇区中山南二路1007号
交房:现房软装全配
物业公司:上海东湖物业管理公司
面积:45/54/57/79/85平
单价:6.7—8.4万
竣工时间:2004年
土地年限:2003-2053
开发商:上海万盛龙邦实业有限公司
交房:装修交付(含软装)
楼层层高:3米
总层高:18层

周边设施

交通地铁:11号线(上海游泳馆);4号线(上海体育场);1号线(上海体育馆);3号线(漕溪路);7号线、12号线(龙华中路)
商业配套:徐汇日月光中心、星游城、正大乐城、港汇广场、东方商厦、汇金百货、太平洋百货、上海六百等繁华购物中心(均15分钟车程)各类精品店、酒吧、大型生活超市、各类风格餐饮会所等
医疗配套:第六人民医院,第八人民医院,中山医院,中医药大学附属龙华医院,中国福利会国际和平妇幼保健院
文化体育:八万人体育场、上海大舞台、上海游泳馆、东安公园等
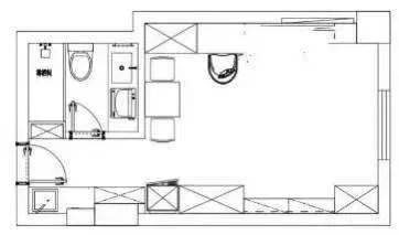
【户型】
1301、1801室建面57.12㎡户型
1804室建面54.12㎡户型
1605、1803室建面43.6㎡户型
911室建面45.6㎡户型
607室建面42.26㎡户型
【样板间】

上海徐汇区【中煌大厦】
售楼处电话:400-886-1718【营销中心】
疫情防控 看房必须提前来电预约登记
声明:本文由入驻焦点开放平台的作者撰写,除焦点官方账号外,观点仅代表作者本人,不代表焦点立场。


