广奕天之星售楼处电话☎:400-998-9694广奕天之星售楼处电话☎:400-998-9694广奕天之星是南苏州CBD核心地段的酒店式公寓,低总价、高配套,提供专业购房服务。
广奕天之星
售楼处电话☎:400-998-9694
如有问题欢迎来电咨询,来电即可享受买房优惠!
预约来电尊享购房优惠,可预约案场内部销售人员,专业一对一热情服务,让您用专业眼光去买房。
楼盘项目全面介绍,本电话为开发商提供线上售楼处电话,楼盘项目全面介绍(包含楼盘简介,楼盘积分,房价,价格,楼盘地址,户型图,交通规划,备案价,项目配套,楼盘详情,售楼处电话,最新消息,最新详情,周边配套,最新进展等详情咨询)
广奕天之星售楼处电话☎:400-998-9694
今天的一个选择
决定了未来十年的生活品质
也许,没有买房
不是让你最后悔的事
而是在犹犹豫豫间
错失了许多投资的良机
2020年
做一个让未来的自己
庆幸的决定
广奕天之星
纯台式
酒店式服务公寓
南苏州CBD核心
轨交2、4、7号线全覆盖
自带1.4万方高端商业配套
2016年投资首选
★ 特聘设计大师精心打造室内布局,家具家电采用伊莱克斯、西门子等国际一线品牌。真正的拎包入住;


广奕天之星售楼处电话☎:400-998-9694
★ 项目自身配备1.4万方高端商业配套,台式休闲娱乐承包你的吃喝玩乐;

★ 更重要的是,我们不跟疯涨价!真真是低总价良心项目,快加入星星家族吧!

广奕天之星售楼处电话☎:400-998-9694
纯台式·精装修·酒店式公寓广奕天之星位于吴中高新区、越溪副中心双核覆盖区内的吴中综合商务核心地,该区域素有南苏州CBD之称,周边金融、商务、总部、专业服务机构等现代服务业环伺;中润中心、新苏购物中心、吴中商城、泰华商城等尖端配套环绕;苏州正轴“人民路-东吴北路-东吴南路”串联活力岛、火车站、观前、南门、吴中五大商圈;更有2、4、7号线三轨覆盖,促使广奕天之星板块价值急剧升华。

广奕天之星售楼处电话☎:400-998-9694




广奕天之星售楼处电话☎:400-998-9694




广奕天之星售楼处电话☎:400-998-9694




广奕天之星售楼处电话☎:400-998-9694

广奕天之星售楼处电话☎:400-998-9694





广奕天之星售楼处电话☎:400-998-9694
项目介绍:
开发商:上市企业--广运集团--广奕置业
项目占地:7092.3㎡
建筑面积:51158㎡
地上建筑面积约为38119㎡,地下室建筑面积约为13039㎡,其中地下室一层、二层为整体,局部有地下三层。
产品类型:南楼独立酒店式商务公馆,北楼及一二层为开发商自持商业及星级酒店
面积:50-64㎡
单价:13000-14000/㎡
交付标准:毛坯
建筑:法式建筑精粹,老虎窗,玻璃穹顶,全石材干挂,成本远超玻璃幕墙,共享超大中庭空间
自持商业:自持1.4万㎡商业配套
层高:3.3m
电梯配比:4部客梯,1部货梯
物业费:3.98元/㎡/月+500元/半年/户公共能耗(大概1.6元/㎡/月)永升物业
交房时间:2020年10月底
总层高:25层
户型分析:
每层为19户,朝南12户,朝北7户
广奕天之星售楼处电话☎:400-998-9694

50㎡-57㎡为主力户型
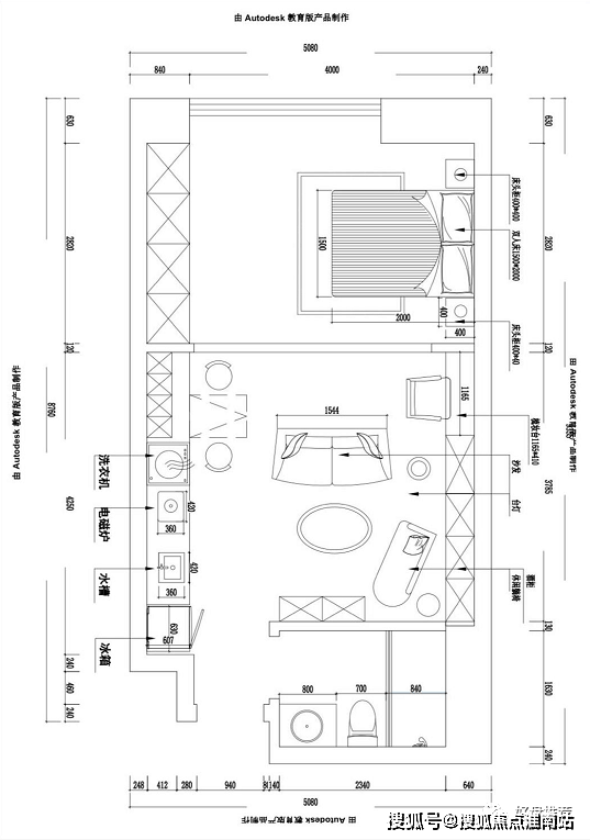
19户型样板间户型图及装修效果图(64㎡面积也可做两房)

★ 广奕天之星位于2、4、7号线交汇处,地理位置优越、交通畅达无比;

广奕天之星售楼处电话☎:400-998-9694
交通配套:
轻轨:地图4号线300m距离/地铁2号线1000m距离/规划中的7号线200m距离
公交:门口有62路、522路、94路、628路、5002路公交线路
环线:距离吴中快速路红庄出口1公里,友新高架2.5公里
高速:距苏嘉杭高速吴中出口3公里
商业配套:
吴中龙湖天街(1100米直线距离)、吴中万达广场、海星商业广场、吴中商城、丽丰中心、永旺梦乐城、SM生活广场、大宁生活广场、大润发超市、华润万家
医疗配套:
吴中长桥人民医院、吴中区人民医院、苏州市中医院

广奕天之星
售楼处电话☎:400-998-9694
如有问题欢迎来电咨询,来电即可享受买房优惠!
预约来电尊享购房优惠,可预约案场内部销售人员,专业一对一热情服务,让您用专业眼光去买房。
楼盘项目全面介绍,本电话为开发商提供线上售楼处电话,楼盘项目全面介绍(包含楼盘简介,楼盘积分,房价,价格,楼盘地址,户型图,交通规划,备案价,项目配套,楼盘详情,售楼处电话,最新消息,最新详情,周边配套,最新进展等详情咨询)
广奕天之星售楼处电话☎:400-998-9694
楼盘项目全面介绍,本电话为开发商提供线上预约售楼电话,楼盘项目全面介绍(包含楼盘简介,均价,房价,现房,期房,别墅,叠墅,大平层,价格,楼盘地址,户型图,交通规划,备案价,备案名,项目配套,样板间,开盘时间,认筹时间,楼盘详情,售楼处电话,最新消息,最新详情,周边配套,一房一价,最新进展等详情咨询)楼盘详情丨价格丨更多优惠丨机不可失丨欢迎致电丨诚邀品鉴!售楼处位置丨特价房丨工抵房丨剩余房源丨户型图丨最新消息丨免责声明:将文章内容综合来源于网络、只作分享,版权归原作者所有!!如有侵权,请联系我们,我们第一时间处理如有问题欢迎来电咨询,专业一对一热情服务,让您用专业眼光去买房。如果您想了解更多楼盘详情,欢迎提前预约拨打