西派海上(售楼处)-西派海上售楼中心首页网站丨2025西派海上欢迎您丨最新楼盘详情
扫描到手机,新闻随时看
扫一扫,用手机看文章
更加方便分享给朋友
西派海上售楼处电话:400-891-9910
上海西派海上售楼处电话☎:400-891-9910【开发商售楼处预约看房热线】(一对一热情vip服务)
看房请提前致电预约,可享受内部渠道优惠!联系销售人员获取最新一房一价表,官方售楼处最新优惠底价!开发商官方销售人员将详细介绍每个户型的独特设计和优势,带您参观样板间,感受精装修的品质和温馨氛围。您还可以了解周边配套设施,包括高端购物中心、优质学校和便捷交通网络,让您的居住体验更加完美。
最新消息!
西派海上剩余极少量建面约103-105㎡3房产品,总价约900万级,清盘倒计时。
这是目前北蔡楔形绿地唯一的百平米3房、约900万级产品,隔壁新房户型建面约120㎡起,起步总价或约1200万起。
千万抓紧!
附全套户型图:
西派海上售楼处电话:400-891-9910
上海西派海上售楼处电话☎:400-891-9910【开发商售楼处预约看房热线】(一对一热情vip服务)
西派海上是我认为:上海10万+新房中更香的一个,是各维度都领先了浦东10年的作品!
先简单总结一下:
领先浦东10年的地段:张江科学城北蔡产业社区,与正张江一线之隔。
未来的浦东,不管10年还是20年,张江始终是核心,并且是无法替代的唯一真神。
其他区域一旦步入成熟,就意味着价值就此到顶。
但张江不同。
张江是上海以“集成电路、生物医药、人工智能”三大先导产业为核心的区域,产业规格之高,无出其右。
数据来源:浦东发布
西派海上售楼处电话:400-891-9910
上海西派海上售楼处电话☎:400-891-9910【开发商售楼处预约看房热线】(一对一热情vip服务)
这只是冰山一角,在软件与信息服务产业上,浦东软件园共有软件企业超1700家,从业人员超45000人(来源浦东软件园官网)。
新材料产业、航天航天等也皆处于全国龙头地位,不再赘述。
前沿产业+占全国超高比例的产值,决定张江科创霸主地位难以撼动,意味将持续吸引高知、高收入人才,所衍生的高端居住需求,将为张江、北蔡楔形绿地的房产市场带来源源不断的发展契机。
所以说,与张江一线之隔的地段,让西派海上在未来十年甚至数十年的时间中,都能维持着高姿态、高潜力、高价值。
领先浦东10年的生活方式&配套能级:内中环最后一个成片开发区域。
北蔡楔形绿地是浦东烫金核心区域内,继陆家嘴、前滩、碧云、三林滨江之后,最后一块成片开发区域。
换句话说,这片区域是目前整个浦东的发展侧重点:必然拥有着目前浦东乃至上海最新的开发模式、建设理念以及资源倾斜。
这是浦东未来10年“更高标准”的支柱板块。

西派海上售楼处电话:400-891-9910
上海西派海上售楼处电话☎:400-891-9910【开发商售楼处预约看房热线】(一对一热情vip服务)
第一,目前张江科学城北蔡产业社区已经聚集了: 中国铁建、国贸、绿城等众多一线实力房企了。另外,还有大量实力房企在等待后续的宅地出让。
一方面, 国贸中国铁建首发,未来绿城等一线房企共同发力, 未来区域的发展上限和笃定性是非常强的。
另外一方面,未来整片区域清一色的高端豪宅, 界面崭新、板块调性很 高,圈层更纯粹、更统一 ,妥妥的新一代国际住区!

第二,整个区域的首发住宅是西派海上,联动价约9.2万/㎡;
第二块住宅 是绿 城项目,地块装标竞价至5000元/㎡成交,成交楼板价7.14万/㎡。
相比西派海上,新地块的楼板价涨幅超过约28%!如果按照这个比例来算新地块的均价,那后续新房的价格或许约11.7万以上 。
这样的价格大越级,即使是前滩也从未拥有过。
而未来的住宅,会在这个基础上越来越高。
这是价值的体现,也证明了政府对于这片区域的期待值之高,是超越以往的。
第三,目前, 协和双语学校官宣入驻北蔡楔形绿地!
“协和教育”创始于1993年,秉持“融合中西,和谐发展”的核心价值,现已举办近40所幼儿园、10余所中小学、在校学生来自全球50多个国家和地区。
这所民办小学的能级和规格,相当出彩。
西派海上售楼处电话:400-891-9910
上海西派海上售楼处电话☎:400-891-9910【开发商售楼处预约看房热线】(一对一热情vip服务)
除此之外, 西派海上旁边小学、中学规划也已出 ,在协和双语这样顶级的教育资源落地之后,公办学校的能级就更加让人期待了。
西派海上售楼处电话:400-891-9910
上海西派海上售楼处电话☎:400-891-9910【开发商售楼处预约看房热线】(一对一热情vip服务)
第四,整个区域内的基础建设已提上日程,即将开启全面发展时代。
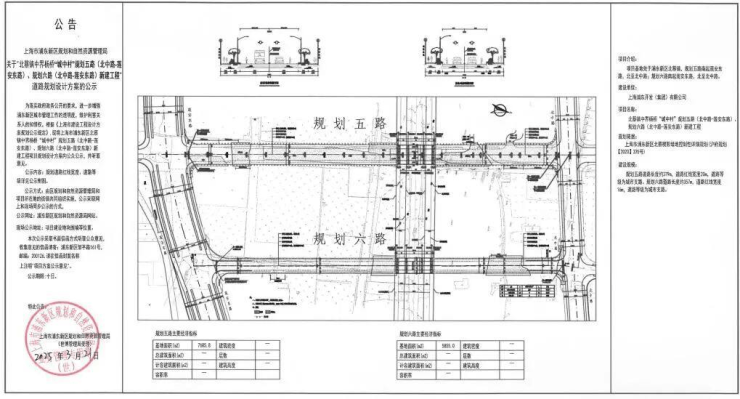
除了以上所说的,整个北蔡楔形绿地内的主干道,规划五路(北中路-莲安东路)、规划六路(北中路-莲安东路)新建工程等规划也都落地。

而这样的资源倾斜+成片开发模式,也证明了这个区域未来的生活方式&配套能级,真的超越了浦东10年。
领先浦东10年的产品力:西派中国里程碑作品,奢配前所未有约8000方超级示范区,壹号产品力实景可见。
关于西派海上的产品力,我真的只能说是“卷到头”了,接下来的高溢价率 地王产品们,再卷也不过如此了。
✔全市罕见约8000㎡超级示范区 ;
✔约2000㎡华尔道夫酒店式高端会所 ;
✔李益中、胡栋民等当代大师操刀 , 原创定制汉白玉/非遗工艺系列雕塑;
✔归家动线用五湖四海高端奢石铺就;
✔荣获室内设计高级别金奖 。
不管是审美、用料、会所的能级、园林的设计、水景的规格...西派海上都领先了浦东乃至上海10年有余。
凭借着这个产品力,在未来十年甚至更久的时间内,西派海上都将昂扬在二手房市场的最高处。
西派海上售楼处电话:400-891-9910
上海西派海上售楼处电话☎:400-891-9910【开发商售楼处预约看房热线】(一对一热情vip服务)
总结一下,不管是在产品力、地段能级、生活方式还是配套规格商,西派海上都代表着目前浦东乃至上海的更高水平。
所以,我们才会认为,这个项目会是浦东下一个十年,都难被超越的作品。
西派海上售楼处电话:400-891-9910
上海西派海上售楼处电话☎:400-891-9910【开发商售楼处预约看房热线】(一对一热情vip服务)
超低均价
爆款户型再度来袭
西派海上拥有整个浦东内中环错过不再的超低均价!
西派海上是浦东内中环仅有的、还有联动价的产品。
而同环线的新房,如今的均价已经来到了约11万/㎡的大关。再加上约120㎡起的户型面积段,上车门槛高达约1300万+。
换句话说,西派海上的收官房源,意味着错过不再的超强性价比。
建面约103-105㎡3房户型相比其他百平米3房而言,有3点优势:
西派海上售楼处电话:400-891-9910
上海西派海上售楼处电话☎:400-891-9910【开发商售楼处预约看房热线】(一对一热情vip服务)
①、三开间朝南 ,南北通透。宜居、舒适、采光充足。
②、相比市面常见动静分区结构,该户型几乎 没有过道浪费面积 ,同时打造了阔绰餐厅,可从容放下圆桌,满足大家庭的用餐需求。
要知道,一般百平米户型只能房四人长条桌。
③、阳台做到多角度观景,多一面享受。
除此之外,边套的建面约105㎡3房户型还打造了南北卧室双约270度转角飘窗的设计,这个实际使用面积相当出众。
迭代到最新款的产品
领先上海十年的封面作品!
高溢价率新房频频出现,市场上有很多人都认为,这些新房在产品力上一定会有所更新和创新,不然支撑不起那么高的房价。
这句话没毛病。但在小胖君看来:同级别的高溢价率新房再如何更新和迭代,也不会比西派海上更出色。
作为西派顶序产品,西派海上的产品力已经超前迭代,更新到了最新款。
拎几个重点:
在会所层面,我认为不会有新房能够超越西派海上的会所。
一方面是体量:
西派海上售楼处电话:400-891-9910
上海西派海上售楼处电话☎:400-891-9910【开发商售楼处预约看房热线】(一对一热情vip服务)
西派海上打造了一个 约2000㎡下沉式会所,内含 孔雀廊、水吧、健身房、半标游池、壁球馆、私宴区、儿童区等 ,复刻华尔道夫传奇体验,构建一个“足 不出户,奢享世界”的圈层领地。


另外一方面是用料:
比如,半标无边界泳池, 池底运用了 繁花马赛克 ,墙面与地面均使用 大理石 ,天花板则运用 发光玉石 与 造型艺术板 ,背景墙为LV同款定制 双C造型艺术板 。
这哪是一般的泳池,就是一个美术馆级的空间。
西派海上售楼处电话:400-891-9910
上海西派海上售楼处电话☎:400-891-9910【开发商售楼处预约看房热线】(一对一热情vip服务)
又比如健身品牌的使用, 全会所健身器材采用 豪宅标配的健身品牌waterrower 的划船机、 NOHrD 跑步机、健身车 等。
瑜伽室均采用 定制品牌sws 的真皮瑜伽垫、滚轴等,质感及调性拉满。
同时,项目还在部分楼栋内打造了 架空层 多元主题休闲空间。
一个集花艺、日咖夜酒、休闲阅读、咖啡体验、社交娱乐、骑行沙龙等多重功能为一体的“集中式”超级聚场,是业主解决亲子陪伴、半熟关系、邻里社交的理想之地。
温馨提示:架空层的部分功能区域(如日咖夜酒、咖啡体验)等空间,不具备经营功能,仅作为后期业主社交以及物业活动办理空间。

业主们除了在这里健身、运动、交友、part、遛娃,还能在中央洽谈区进行邻里交流,举手投足间尽显优雅品味。
这既是格调的象征,也能在无形中为二手房加分。
西派海上售楼处电话:400-891-9910
上海西派海上售楼处电话☎:400-891-9910【开发商售楼处预约看房热线】(一对一热情vip服务)
在公区层面上,西派海上不只是用料比肩顶奢豪宅,艺术感和氛围营造上更是卷上天际。
立面上: 点缀了 巴西铂金钻、巴西亚马逊绿 等珍贵石材,让建筑历久弥新的同时一眼封神。
门厅上:采用高奢酒店“环岛式”落客流线,配有胡栋民先生操刀,从约1500公里外臻选的汉白玉整石雕琢而成的《海·回声》,墙面、地面采用奢石铺就。

室外公区内:还有由张代松大师纯手工打造的非遗纯铜雕塑,大量石材、金属的用料。

室内的公区:实现 全石材背景,全金属吊顶,全地面拼花 ;墙面是 意大利的贝金米黄 ,地面选择的是 意大利布诺灰和丝绸之路 ,为海派拼花点缀。
这种把高端石材铺满社区多个角落的设计,未来的新房再卷也不过如此了。
西派海上售楼处电话:400-891-9910
上海西派海上售楼处电话☎:400-891-9910【开发商售楼处预约看房热线】(一对一热情vip服务)
最后,还有水景。
为什么很多大几千万级的新房都没有水景?
西派海上售楼处电话:400-891-9910
上海西派海上售楼处电话☎:400-891-9910【开发商售楼处预约看房热线】(一对一热情vip服务)
一来是社区的园林没有那么大,水景有也是点缀;二来是水景的维护需要大量的成本已经经验,这对于后期物业的考验是极大的。
而西派海上不仅做了水景,更是颠覆传统,打造了一个极具审美力的约450㎡马赛克无边水景,搭配下沉式卡座,“在家就是度假”,天天酒店式享受。

最后,还有一点需要强调,以上你所看到的: 包括会所、架空层、公区用料、水景,全部都已实景呈现。
说实话,对于10-14万/㎡的新房而言,再卷也不过如此了。而这只是一个约9.2万/㎡的新房。
这就是西派顶序! 西派中国里程碑式的 作品!
浦东内中环更高想象力的区域
兑现进行时!
西派海上售楼处电话:400-891-9910
上海西派海上售楼处电话☎:400-891-9910【开发商售楼处预约看房热线】(一对一热情vip服务)
虽然都处于内中环,但地段价值上亦有差距,西派海上在内中环的地位无可撼动。
首先,距离陆家嘴直线约8km、距离前滩直线约9km,位于正张江。
而以陆家嘴和前滩为中心画圈,周边8-9km半径中,大多都是均价约14万+、甚至不乏有均价约16-17万+的顶级豪宅新房。
这意味着,西派海上的地段价值,是与市区均价约大几千万豪宅同级别的。
何况,西派海上还拥有极为出众的交通优势:项目近罗山高架路、内环(直线距离内环约2.2公里)、中环。
不管是去陆家嘴、前滩、世博,甚至是去浦西的杨浦滨江、北外滩,都是相当便捷的。
另轨交上,项目周边直线约2km范围内,拥有包括2号线、13号线、16号线、18号线、磁悬浮等5条轨交,畅达全市的大部分CBD。
整个区域不管是地段、未来预期、教育资源、产业能级,都称得上是内中环的TOP。
在如此地段和产品力的加持下,西派海上均价约9.2万/㎡,简直就是“红包盘”!
2025年上海购房政策的最新规定1:
限购政策:非本市户籍居民家庭以及单身人士购买外环外住房的,连续1年社保或个税单可断缴或补缴(不含崇明区),需满足网签前15个月内在沪正常缴纳满12个月的社保或个税单。非本市户籍居民家庭,需满足网签前15个月内在沪正常缴纳满12个月的社保或个税单。非本市户籍居民所购住房在外环内的,需满足网签前39个月内在沪正常缴纳满36个月的社保或个税单。持《上海市居住证》且积分达到标准分值、在本市缴纳社会保险或个人所得税满3年及以上的非本市户籍居民家庭在购买住房套数方面享受沪籍居民家庭的购房待遇。
税费政策:本次《关于取消普通住房标准有关事项的通知》,一是明确取消普通住房和非普通住房标准;二是明确取消标准后相关个人住房交易税收事项。《通知》自2024年12月1日起施行。自2024年12月1日起施行。2024年12月1日前,个人销售、购买住房涉及的个人所得税、增值税和契税尚未申报缴纳的,符合规定的也适用执行。个人所得税不执行,依然执行的是满5年且唯一才可以免征。
贷款政策:二套商业个人住房贷款最低首付款比例为不低于25%;实行差异化政策区域的二套房贷最低首付款比例为不低于20%。二套公积金、组合贷个人住房贷款最低首付款比例为不低于25%;实行差异化政策区域的二套房贷最低首付款比例为不低于20%。
西派海上售楼处电话:400-891-9910
上海西派海上售楼处电话☎:400-891-9910【开发商售楼处预约看房热线】(一对一热情vip服务)
看房请提前致电预约,可享受内部渠道优惠!联系销售人员获取最新一房一价表,官方售楼处最新优惠底价!开发商官方销售人员将详细介绍每个户型的独特设计和优势,带您参观样板间,感受精装修的品质和温馨氛围。您还可以了解周边配套设施,包括高端购物中心、优质学校和便捷交通网络,让您的居住体验更加完美。
声明:本文由入驻焦点开放平台的作者撰写,除焦点官方账号外,观点仅代表作者本人,不代表焦点立场。


