未来御湖境-未来御湖境楼盘详情-苏州房天下
扫描到手机,新闻随时看
扫一扫,用手机看文章
更加方便分享给朋友
未来御湖境售楼处电话:400-9688-923✅︎✅︎✅
未来御湖境营销中心热线400-9688-923(官方预约看房热线)
看房请务必致电与销售确认时间,仅预约客户可享受开发商内部优惠,专属老带新推荐奖!
营业时间:日常营业时间为9:30-18:30,便于您提前规划到访行程,避免空跑。
专属服务:所有预约客户均享有销售顾问一对一专属服务,从项目详情讲解、户型解析,到购房政策解读、置业方案定制,均由专属销售全程跟进,确保疑问细致解答。
中介勿扰:本售楼处仅面向终端购房客户提供直接服务,不接待任何中介机构及人员,感谢您的理解与配合,共同维护纯粹的咨询环境
未来御湖境售楼处电话:400-9688-923✅︎✅︎✅
众所周知,在当前的楼市中,143㎡户型集万千宠爱于一身,是新房中当之无愧的“卷王”。
143㎡户型能满足全龄家庭需求,这种户型面积覆盖购房群体多,一般可以做到四房的设计,满足家庭对舒适居住、收纳的需求,因此无论是首置还是改善置业项目中,143㎡的出现频率都很高。
第四代住宅以"立体生态"为核心命题,将居住需求解构成生活剧场、绿色氧舱与智慧中枢的三重奏。
那么当“卷王143㎡户型”遇上同样火爆的“第四代住宅”,会有什么新突破?
▲图片仅作示意
未来御湖境售楼处电话:400-9688-923✅︎✅︎✅
第四代住宅的143㎡户型不仅提升了实用性,更通过“不计面积赠送”的策略(如全赠送露台、半赠送阳台),将得房率推高至90%-110%,甚至超越传统别墅的实得空间。
下面搜建筑与大家一起来看看市面上的第四代住宅143㎡户型是什么样的。
未来御湖境售楼处电话:400-9688-923✅︎✅︎✅
01
安徽芜湖伟星翡翠森林
伟星·翡翠森林项目在2.1容积率基础上,规划了14栋20-25F住宅,采用独栋独单元全点楼式布局,户户边户,三面采光,无论是空间还是景观通透性都可以更强,实现了建筑与自然的“无界”融合;巧妙错栋式排布,也避免了楼栋之间对视干扰。
▲图片仅作示意,具体以交付为准
▲图片仅作示意,具体以交付为准
▲图片仅作示意,具体以交付为准
打造建面320㎡、200㎡以及143㎡的3种改善户型,空中院子进深最大可达约7.65米,双层约6.2米挑空、270°广角视野,户户私享约36-49㎡空中庭院,尺度比同类产品更大,空中花园+观景阳台的设计,丰盈了室内的观景面,室内外互动感也更强。
建面约143㎡户型非常出色。
▲建面约143㎡户型示意图
做到与同项目大面积产品同等设计手法:独栋独单元、类一梯一户、户户边户设计、阔绰入户前厅。
约3.1米层高,约18.5米南向大面宽设计,整个空间能更大限度地获取阳光和风景。
未来御湖境售楼处电话:400-9688-923✅︎✅︎✅
▲图片仅作示意,具体以交付为准
三室两厅两卫格局,预留了可变的”X“空间,可根据不同的家庭需求,灵活地实现空间的多元化改造,提前考量现代家庭结构在未来可能出现的变化。
未来御湖境售楼处电话:400-9688-923✅︎✅︎✅
▲图片仅作示意,具体以交付为准
南向豪华度假酒店式主卧套房,全增送飘窗、独立衣帽区、南向全明主卫等,分区清晰明确,保证居住的静谧和更高维度的主卧享受。
未来御湖境售楼处电话:400-9688-923✅︎✅︎✅
▲图片仅作示意,具体以交付为准
户户约36㎡空中院子与室内公区无界贯通,形成强互动关系,营造IMAX级瞰景视野,实现空间的多区域联动和场景的多元互动。
未来御湖境售楼处电话:400-9688-923✅︎✅︎✅
▲图片仅作示意,具体以交付为准
项目在隐私方面通过多方位策略,如错层花园之间设置分隔墙;在空中花园设置树池花池;以及阳台侧方设置玻璃挡板,更大程度保证私密性。
未来御湖境售楼处电话:400-9688-923✅︎✅︎✅
02
福州保利国贸天琴湖
福州保利国贸天琴湖建筑立面基于天琴系海洋美学的设计风格,在此基础上再次做了提升与优化。建筑整体采用横线条、中轴对称方式呈现出建筑的延展与轻盈的姿态。
未来御湖境售楼处电话:400-9688-923✅︎✅︎✅
▲图片仅作示意,具体以交付为准
水平方向互相穿插、跳动的白色线条及端角的曲线处理宛如“钢琴的琴键”让建筑在秩序的美感中又富有节奏变化,形成一曲婉转悠扬的变奏曲。
未来御湖境售楼处电话:400-9688-923✅︎✅︎✅
▲图片仅作示意,具体以交付为准
建面约143㎡偶数层户型,四房两厅两卫,户型面宽大,南北通透,采光通风效果好。
未来御湖境售楼处电话:400-9688-923✅︎✅︎✅
▲建面约143㎡户型示意图
▲图片仅作示意,具体以交付为准
得益于第三代住宅设计优势,南北双阳台,与餐客厅组合成一个纵向空间,视野通透,实际使用面积大。
未来御湖境售楼处电话:400-9688-923✅︎✅︎✅
▲图片仅作示意,具体以交付为准
阳台约6米的挑空,可以深刻的体会到阳台的阔绰空间感和开阔的视野。
▲建面约143㎡户型示意图
▲图片仅作示意,具体以交付为准
奇数层不同的是南向与主卧和次卧相连一个L型约270°的超大露台。
未来御湖境售楼处电话:400-9688-923✅︎✅︎✅
03
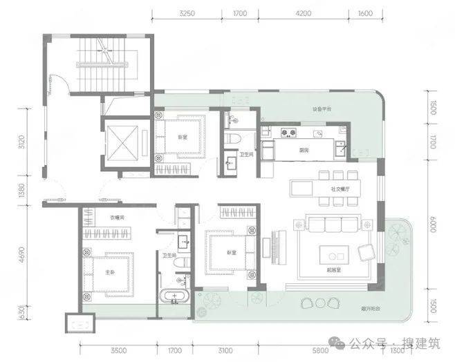
龙湖苏州未来御湖境
龙湖苏州未来御湖境创新奇偶错层空中花园设计,实现观景和采光平等化,南阳台(露台)能做到挑高约6米,,最大程度可享有 270°转角露台,每家都有一座私人花园。
▲图片仅作示意,具体以交付为准
▲建面约143㎡偶数户型示意图
▲建面约143㎡奇数户型示意图
空中庭院奇偶层露台错开,打造出建面约143㎡奇偶户型,四房两厅两卫。
南向四开间,约14.5米朝南面;
约40平LDGK方厅;约25平空中庭院;
户型设计上,奇数层庭院在客厅,偶数层则在卧室;
未来御湖境售楼处电话:400-9688-923✅︎✅︎✅
▲图片仅作示意,具体以交付为准
从官方宣传来看,项目的空中庭院面积达到约20-50平,均约6米挑高,最大可享270度转角无界视野!
未来御湖境售楼处电话:400-9688-923✅︎✅︎✅
04
东莞华润滨海润府
建面约143㎡一共有ABC三个户型。
▲建面约143㎡A户型示意图
建面约143㎡A户型,无遮挡全面宽16.2米,拥有南北双向“全面屏采光”以及大方厅设计,向外是毫无遮挡的MAX开阔视野。
未来御湖境售楼处电话:400-9688-923✅︎✅︎✅
▲图片仅作示意,具体以交付为准
客餐厅连通南向开阔的阳台+超长的观景飘窗,形成南北景观视野通透,双面瞰景。
主卧面宽也远超常规户型客厅,让室内的每一面都能呈现不同角度的海景景观。
▲建面约143㎡B户型示意图
▲图片仅作示意,具体以交付为准
建面约143㎡B户型,客厅270°巨幕采光,震撼级IMAX环幕视野,且带有约4.5米的餐边飘窗及三跨景观阳台。约8米的外拓景观阳台,可以打造成露台或是茶室。
未来御湖境售楼处电话:400-9688-923✅︎✅︎✅
▲建面约143㎡C户型示意图
建面约143㎡C户型,亮眼的是南向外接超大L型露台,形成270°环幕视野,在家就能看星赏月,好不惬意。
未来御湖境售楼处电话:400-9688-923✅︎✅︎✅
▲图片仅作示意,具体以交付为准
项目建筑外立面,汲取波纹、水景为灵感,以横向流动线条徐徐展开。外立面配以大面积开窗,超高屏占比之下,随着“光、影、色”的韵律变化,以玻璃的反射使原本一成不变的外立面变成一块画布,高级的质感自然而然的就呈现出来了。
未来御湖境售楼处电话:400-9688-923✅︎✅︎✅
05
中建壹品汉韵公馆
中建壹品汉韵公馆的住宅立面,正是选自楚建筑的线条制式、凤鸟纹、编钟云纹,手法简练飘逸,大有凤舞九天的艺术气质。
未来御湖境售楼处电话:400-9688-923✅︎✅︎✅
未来御湖境售楼处电话:400-9688-923✅︎✅︎✅
▲图片仅作示意,具体以交付为准
中建壹品汉韵公馆规划了玻璃幕墙为主,配以铝板线条和金属漆打造的颜值派外立面,加上独特的弧形造型,质感十足。
未来御湖境售楼处电话:400-9688-923✅︎✅︎✅
▲图片仅作示意,具体以交付为准
项目在错层的基础上,上下层的空中花园,使用绿化和半透栏板遮挡视线,避免对视的尴尬,并且,在上层住户的窗户前增加飘板,避免室内一眼看透,保证私密性。
未来御湖境售楼处电话:400-9688-923✅︎✅︎✅
▲图片仅作示意,具体以交付为准
户型设计超高赠送面积,近乎零公摊,配备宽敞的露台、大阳台及多个飘窗;每户均享有私密花园,6米挑空露台花园为居住增添舒适度;室内空间通透,采用南向大开间设计,超高窗墙比例,巧妙奇偶错层布局。
未来御湖境售楼处电话:400-9688-923✅︎✅︎✅
▲建面约143㎡A户型示意图
建面约143㎡户型,约14.5米南向大开间,阔绰尺度。南向约16㎡双层挑空花园,观景与休闲融为一体。
未来御湖境售楼处电话:400-9688-923✅︎✅︎✅
▲图片仅作示意,具体以交付为准
超70㎡LDKBG豪华动区3+1格局,可百变,适应不同时期的家庭。
未来御湖境售楼处电话:400-9688-923✅︎✅︎✅
06
陕西西安永晖·文檀府
项目高低错落的楼栋排布组合,户户有花园、层层有露台的空间布局垂直化处理,建筑设计与现代审美的强强融合,给人留下了深刻的印象。
▲图片仅作示意,具体以交付为准
在建筑风格上,项目以“一滴水的时空游动”作为视觉灵感,外观以舒展的线条与局部曲线的运用赋予建筑柔和姿态,打造当下最前沿的“流体建筑”,强调自然通风与采光的对流,呈现融合东方韵味的当代建筑语汇,超越传统人居审美。
未来御湖境售楼处电话:400-9688-923✅︎✅︎✅
▲图片仅作示意,具体以交付为准
在产品布局上,基于对产品的重新拆解构造,虽然同样是“奇偶错层”设计,但项目巧妙的采用转角阳台错位的双私家花园露台设置,同时更在可能涉及到居家私密性的楼体设置飘板外檐,尽可能有效避免“奇偶错层”所带来“隐私缺乏”问题的同时,更提升了整体观景感和居家采光度。
▲建面约143㎡偶数户型示意图
▲建面约143㎡奇数户型示意图
建面约143㎡奇偶户型,四室两厅三卫,南向双套房设计演绎质感空间。一体化的室内外无界空间,使得室内与室外得以交流,生活场景、生活动线有了更为丰富的延展,是生活进化的场景革命。
未来御湖境售楼处电话:400-9688-923✅︎✅︎✅
07
西安华润置地 · 润玺薹
西安华润置地 · 润玺薹项目整体规划以“生态+人文”为核心,运用组团布局,天际线梳理,轴向归家礼序,营造出舒适的低密度,纯板式,创新型,强体验的超级人居品质大盘。
未来御湖境售楼处电话:400-9688-923✅︎✅︎✅
▲图片仅作示意,具体以交付为准
润玺臺西区规划高约6米大进深挑空露台,奇偶错层排布(奇数层露台与主卧相连,偶数层露台与次卧相连),为实现家家有露台,户户可观景的空中院落创造了竖向延展空间。
▲建面约143㎡户型示意图
▲图片仅作示意,具体以交付为准
建面约143㎡户型,很是出挑,南向整体面宽约达12.7米,带来超大采光面;南向约9㎡露台空间,连接阔景阳台,可打造成云端会客厅、茶吧花海、儿童娱乐区、健身区等等,解锁多种生活方式。
▲图片仅作示意,具体以交付为准
LDKG方厅约41㎡,主卧套房约25㎡、南向次卧飘窗进深约60cm、还有超大玄关储藏空间……
未来御湖境售楼处电话:400-9688-923✅︎✅︎✅
▲图片仅作示意,具体以交付为准
项目外立面超现代游艇曲面设计,颇具未来感的流线造型,在材质的选择上使用了深灰色金属和金色金属两种材料,颜色的搭配也显得层次感更丰富。
除了弧线之外,它还投入了更费成本和人工的圆弧转角,因为用了更显轻质通透的玻璃元素,和圆润处理后的转角。加上270°的景观视野,让建筑立面从各个角度看都能获得很好的感官效果。
▲图片仅作示意,具体以交付为准
大量的曲面设计形成了有丰富层次感的弧线立面,更具未来感,整体流畅而富有张力的曲线序列,和利用弧度变化创造出丰富的建筑光影层次。
未来御湖境售楼处电话:400-9688-923✅︎✅︎✅
08
南京中天美好·金宁风华
项目建面约98㎡的起步户型,最大使用面积可得101㎡!
未来御湖境售楼处电话:400-9688-923✅︎✅︎✅
▲图片仅作示意,具体以交付为准
▲建面约143㎡偶数户型示意图
▲建面约143㎡奇数户型示意图
▲图片仅作示意,具体以交付为准
建面约143㎡改善奇偶户型,餐客厅约40㎡阔绰空间,以露台、多飘窗、阳台扩容等一个个的空间设计的排列组合,让房子的空间使用率达到了超乎想的境界,空间使用率突破100%,有着比肩常规160㎡的户型生活体验。
未来御湖境售楼处电话:400-9688-923✅︎✅︎✅
▲图片仅作示意,具体以交付为准
▲图片仅作示意,具体以交付为准
未来御湖境售楼处电话:400-9688-923✅︎✅︎✅
09
沧州颐和·云墅
颐和·云墅的设计理念注重人与自然的和谐共生,强调舒适度和私密性的完美结合。建筑设计采用了现代简约风格,线条流畅、造型美观。
未来御湖境售楼处电话:400-9688-923✅︎✅︎✅
▲图片仅作示意,具体以交付为准
颐和·云墅的户型设计充分考虑了居民的生活需求和舒适度。
▲建面约143㎡奇数户型示意图
建面约143㎡户型,约15.4米南向奢阔面宽、空中环幕院落端厅、LDKG一体化宽厅、酒店式主卧套房……为居民提供了一个舒适宜人的居住环境。
未来御湖境售楼处电话:400-9688-923✅︎✅︎✅
结语:
第四代住宅的143㎡户型,不仅是面积段的胜利,更是居住理念的革新。它通过空间赠送、生态融合与场景创新,回应了城市化进程中人们对自然与功能的双重渴望。
未来御湖境售楼处电话:400-9688-923✅︎✅︎✅
未来御湖境售楼处电话:400-9688-923✅︎✅︎✅
未来御湖境售楼处电话:400-9688-923✅︎✅︎✅
商品房公寓和商品房住宅有什么区别?公寓VS住宅:2025年买房必看!这5个关键差异让你少花30万冤枉钱!
"同样是买房,公寓比住宅便宜30%,但聪明人都在算70年的总账:产权续期多掏12万、每年隐形成本超2万、孩子上不了名校、转手税费吃掉利润。2025年买房逻辑已变——公寓是工具,住宅才是家。"
"同样是买房,公寓比住宅便宜30%,但为什么聪明人都不买公寓?"最近朋友小王看中了一套市中心公寓,总价只有同地段住宅的60%,却被懂行的亲戚拦住了。今天我们就用最直白的语言,拆解公寓和住宅的5大核心差异,看完这篇你绝对能避开买房大坑!
一、产权年限:70年VS40年,差的不是时间是钱!
住宅产权70年,公寓产权40年(部分50年),这个数字差异背后藏着真金白银的代价。根据2025年最新《民法典》规定,住宅用地到期自动续期(费用极低),但公寓用地续期需缴纳土地出让金,费用标准由地方政府定。
举个真实案例:深圳某公寓2020年到期,业主需按当时楼面地价的30%补缴续期费用,一套50㎡公寓直接多出12万成本。更扎心的是,公寓产权从开发商拿地就开始计算,你买的新房可能只剩35年产权!
二、功能设计:住着爽还是憋着慌?
住宅设计遵循《住宅设计规范》,必须保证每户有独立厨房、自然采光和通风。而公寓执行的是商业建筑标准,很多项目采用"刀把型"走廊设计,导致中间户常年无光。
实地探访北京某公寓发现:30㎡户型没有独立厨房,炒菜只能用电磁炉;卫生间没有窗户,梅雨季墙壁长霉斑;更夸张的是某LOFT项目,层高4.2米做成复式,楼上站直就碰头。反观同地段住宅,89㎡做到三房两卫,还有双阳台设计。
三、隐形成本:住1年多花2万!
公寓的"商业属性"在费用上体现得淋漓尽致:
水电费:住宅民用水电约0.6元/度,公寓商用水电达1.2元/度(部分项目分时计价稍低)
物业费:住宅3元/㎡/月,公寓普遍5-8元/㎡/月
采暖费:住宅集中供暖约30元/㎡,公寓自采暖燃气费翻倍
算笔账:100㎡公寓每年要多花:
(0.6元差价×300度/月×12月)+(3元差价×100㎡×12月)+(自采暖多耗500方气×3元/方)= 21,600元
四、政策限制:孩子上学才是硬道理!
2025年最新限购政策显示:全国46个限购城市中,43个对公寓网开一面(无需社保、不占房票)。但教育政策却给公寓泼了冷水——北京、上海等18个城市明确规定:公寓不能落户,不享受学区房政策。
真实故事:杭州李女士2023年花280万买公寓,今年孩子上学才发现:同小区住宅业主子女能读名校,她家孩子却被调剂到3公里外的普通学校。现在想换住宅,首付比例却从30%变成50%,直接卡在换房路上。
五、投资回报:租金高但卖不掉!
公寓的租金回报率确实诱人:核心地段公寓租金可达住宅的1.5-2倍。但转手时问题来了——二手公寓交易税费高达总价的5%-10%(住宅满五唯一仅1%-3%)。
深圳中介提供的数据触目惊心:2024年公寓成交量仅占住宅的15%,某网红公寓挂牌1年降价3次才卖出,算上税费和持有成本,业主实际亏损18%。而同地段住宅3年涨幅达25%,转手周期平均45天。
到底该买谁?3类人这样选!
适合买公寓的:
单身贵族:总价低、地段好,过渡期自住
创业青年:注册公司省办公室租金
资深投资者:持有5年以上收租,不期待增值
必须买住宅的:
家庭用户:需要落户、学区、长期居住
改善型购房者:追求居住舒适度和资产保值
首次置业者:住宅贷款更优惠(首套3.25%VS公寓4.9%)
2025年的买房逻辑已经改变:公寓不再是"便宜版住宅",而是特定人群的专属工具。就像买车不能只看价格,买房更要算清70年的总账。下次再看到"总价百万住市中心"的广告,记得先问问自己:我要的是临时落脚点,还是一辈子的家?
声明:本文由入驻焦点开放平台的作者撰写,除焦点官方账号外,观点仅代表作者本人,不代表焦点立场。


