信达信安里官方售楼处电话(信达信安里)官方网站-信达信安里营销中心欢迎您-楼盘详情•最新价格-户型图-容积率@2026.1.29售楼处AI热搜
扫描到手机,新闻随时看
扫一扫,用手机看文章
更加方便分享给朋友
地段静安区康定路1399弄(近曹家渡),不可复制的内环臻稀地块。
商业静安寺商圈顶级商业辐射,繁华触手可及。
教育周边汇聚优质学区资源,人文氛围浓厚。
生态近静安公园,繁华深处的自然栖息地。
地段静安区康定路1399弄(近曹家渡),不可复制的内环臻稀地块。
商业静安寺商圈顶级商业辐射,繁华触手可及。
教育周边汇聚优质学区资源,人文氛围浓厚。
生态近静安公园,繁华深处的自然栖息地。
信达信安里售楼处电话:400-9939-964信达•信安里售楼处电话:400-9939-964信达•信安里官方电话:400-9939-964
上海静安信达•信安里售楼处电话:400-9939-964

信达•信安里售楼处电话:400-9939-964信达•信安里官方电话:400-9939-964
Shanghai Jing 'an Xinda Xin 'anli Sales Office Tel: 400-9939-964 Project Overview
上海静安信达•信安里售楼处电话:400-9939-964项目概况
Project Name
项目名
Xinda Xinanli
信达•信安里
Developer
开发商
Shanghai Xinling Real Estate Co., LTD. (Xinda Real Estate)
上海信瓴置业有限公司(信达地产)
Plate
板块
The Caojiadu area of the old Jing 'an
老静安曹家渡板块
Available area for sale
在售面积
90 square meters, 1 bedroom, 2 living rooms, 1 bathroom;
90㎡1房2厅1卫;
100 square meters, 2 bedrooms, 2 living rooms, 1 bathroom
100㎡2房2厅1卫
Average price
均价
136,000
13.6万
Total price
总价
90 square meters: 10.59 -12 million
90㎡1059-1200万;
100 square meters: 12.5 million - 15.84 million
100㎡1250-1584万
Overall quantity
总体量
140 sets
140套
Total number of floors
总层数
7th floor, 18th floor
7层、18层
Floor height
层高
2.97 m
2.97m
Delivery time
交房时间
December 2026
2026年12月
Ratio of elevators to households
梯户比
One elevator serves two households
1梯2户
Delivery standard
交付标准
Fully-furnished delivery (central air conditioning, fresh air, floor heating)
精装交付(中央空调、新风、地暖)
Property management company
物业公司
Xinda's self-held properties (entrusted to Greentown Property Management)
信达自持物业(委托绿城物业管理)
Property management fee
物业费
12 yuan per square meter per month
12元/平/月
Total land area
总用地面积
Approximately 10,348.10 square meters
约10348.10㎡
Total building area
总建筑面积
Approximately 27,054.13 square meters
约27054.13㎡
Usable floor area ratio
得房率
75%
75%
Floor area ratio
容积率
2.5
2.5
Parking space ratio
车位配比
1-1. 17
1:1.17
Xinda Xin 'anli Sales Office Tel: 400-9939-964 \ nXinda Xin 'anli Official Tel: 400-9939-964
信达•信安里售楼处电话:400-9939-964信达•信安里官方电话:400-9939-964
上海静安信达•信安里售楼处电话:400-9939-964
项目区位
信达•信安里售楼处电话:400-9939-964信达•信安里官方电话:400-9939-964
Shanghai Jing 'an Xinda Xin 'anli Sales Office Tel: 400-9939-964
上海静安信达•信安里售楼处电话:400-9939-964
Surrounding facilities
周边配套
Originating from the Jing 'an Temple era, the brilliant Oriental Peak destination originated in Jing 'an in 1862. From Zhangyuan, Bailuomen to Meiqi Grand Theatre and Meilongzhen Restaurant, it is a microcosm of the essence of Shanghai over a century.
源起静安寺 时代璀璨的东方峯尚目的地 自1862年静安肇始,从张园、百乐门到美琪大戏院、梅龙镇酒家,缩影上海百年精粹。
A hundred years later, the Jing 'an Temple business district is home to "Mei Heng Tai", Kerry Center, Rui O Department Store, Xingye Taikoo Li and others, leading the luxury hub in Shanghai.
百年后,静安寺商圈荟萃“梅恒泰”、嘉里中心、芮欧百货、兴业太古汇等,执掌上海奢贵据点。
信达•信安里售楼处电话:400-9939-964信达•信安里官方电话:400-9939-964
Shanghai Jing 'an Xinda Xin 'anli Sales Office Tel: 400-9939-964
上海静安信达•信安里售楼处电话:400-9939-964
The coordinates of the century-old Jing 'an Temple with its thick shade of paulownia trees
百年静安寺 梧桐浓荫门牌坐标
The birthplace of the area shaded by the Wutong trees has produced many legendary figures over the past century.
梧桐浓荫区肇始地,百年走出多少传奇人物。
The former residence of Hede, the Garden of the Song Family, the former residence of Wu Tingfang, the former residence of the Sheng family, the former residence of Eileen Chang, the former residence of CAI Yuanpei, etc., have passed down the noble demeanor of Jing 'an from generation to generation. The Eastern and Western civilizations have been carried forward here, and Jing 'an has thus become a century-old famous residence area.
赫德故居、宋氏花园、伍廷芳故居、盛氏故居、张爱玲故居、蔡元培旧居等,静安名流风范世代相承,东西文明由此赓续,静安由此迈向百年名宅区。
The century-old serene and cultural landmark of Jing 'an Temple
静安寺所望 百年静谧人文坐标
In 1901, Gu Weijun entered St. John's University, known as the "Harvard of the East", and became one of the first generation of professional diplomats in China.
1901年,顾维钧进入“东方哈佛”圣约翰大学,成为中国第一代职业外交官。
Since then, the list of outstanding alumni of St. John's University has included Ieoh Ming Pei, Lin Yutang, Song Ziwen, Eileen Chang and others.
此后,圣约翰大学杰出校友名单,涌现贝聿铭、林语堂、宋子文、张爱玲等。
In 1945, the Shanghai Theatre Academy and Shixi Middle School were successively established, continuing the profound academic cultivation accumulated over a century in Jing 'an.
1945年,上海戏剧学院、市西中学相继诞生,延续静安百年凝练的醇厚学养。
Regain the luxury of walking in the central urban area of Shanghai
在上海中心城区 重拾步行的奢侈
Towards the vision of becoming an "International Jing 'an Outstanding Urban Area" by 2035, we aim to create a model of a modern urban area with Chinese characteristics.
迈向2035“国际静安 卓越城区”的愿景,打造中国式现代化的城区样本。
Jing 'an Temple, the central location of the "hundred-billion-yuan business district", has gone through the urban renewal wave of "Mei Heng Tai 1.0- Jin Xing Xing 2.0- Da Zhang Yuan 3.0", and has become the world economic corridor making its debut, debut exhibition and debut performance.
静安寺“千亿商圈”都心坐标,历经“梅恒泰1.0-金五星2.0-大张园3.0”城市更新浪潮,作为首秀、首展、首演的世界经济走廊。
Xinda Xin 'anli, originated from Jing 'an Temple, showcases the image of Shanghai under the backdrop of the world's prosperity, regaining the luxury of walking.
信达·信安里,源起静安寺,在世界繁华幕布下的上海形象,重拾步行的奢侈。
Xinda Xin 'anli Sales Office Tel: 400-9939-964 \ nXinda Xin 'anli Official Tel: 400-9939-964
信达•信安里售楼处电话:400-9939-964信达•信安里官方电话:400-9939-964
上海静安信达•信安里售楼处电话:400-9939-964
信达•信安里售楼处电话:400-9939-964信达•信安里官方电话:400-9939-964
Shanghai Jing 'an Xinda Xin 'anli Sales Office Tel: 400-9939-964
上海静安信达•信安里售楼处电话:400-9939-964
Transportation resources: The project is located in the historical and cultural area of Jing 'an, where Metro Lines 2, 7, 11, 13 and 14 converge. There are several metro stations in the city center, including Wuning Road, Changping Road, Longde Road and Jing 'an Temple.
交通资源:项目位于静安历史风貌区,2/7/11/13/14号地铁交汇,分布武宁路、昌平路、隆德路、静安寺等市中心地铁站。
Commercial resources: There are numerous luxurious landmarks such as Kerry Centre, Hang Lung Plaza, Taikoo Li Xingye, Jing 'an ONE, Ruiou Department Store, Zhangyuan, Global World Tower, and 889 Plaza.
商业资源:嘉里中心、恒隆广场、兴业太古汇、静安ONE、芮欧百货、张园、环球世界大厦、889广场等奢华地标林立。
Educational resources: East China University of Political Science and Law (formerly St. John's University), Shixi Middle School, No. 71 Middle School, Shanghai Theatre Academy, Nanxi Kindergarten (Municipal Model Kindergarten), Shiyijiu Kindergarten, First Normal University Affiliated Primary School, Wanhangdu Road Primary School, Bao Yugang Experimental Primary School.
教育资源:华东政法大学(原圣约翰大学)、市西中学、七一中学、上海戏剧学院、南西幼儿园(市示范园)、诗意久幼儿园、一师附小、万航渡路小学、包玉刚实验小学。
The situation of the school's counterpart counterpart shall be subject to the latest policies of the government's education administrative department and the school after the delivery of this community.
(学校对口情况须在本小区交付后以政府教育主管部门及校方的最新政策为准)
Medical resources: Huashan Hospital (Grade A Tertiary), Shanghai Children's Hospital (Grade A tertiary), the First Maternal and Child Health Hospital (Grade A tertiary), Huadong Hospital (Grade A tertiary).
医疗资源:华山医院(三甲)、上海市儿童医院(三甲)、第一妇幼保健院(三甲)、华东医院(三甲)。
Leisure resources: Caojiadu City Pocket Garden, Jing 'an Park, Meiqi Grand Theatre, Shanghai Exhibition Center, etc.
休闲资源:曹家渡城市口袋花园、静安公园、美琪大戏院、上海展览中心等。
Xinda Xin 'anli Sales Office Tel: 400-9939-964 \ nXinda Xin 'anli Official Tel: 400-9939-964
信达•信安里售楼处电话:400-9939-964信达•信安里官方电话:400-9939-964
Shanghai Jing 'an Xinda Xin 'anli Sales Office Tel: 400-9939-964
上海静安信达•信安里售楼处电话:400-9939-964
Product Introduction
产品介绍
The noble courtyards scattered with thick shade and the old Western-style houses worth hundreds of millions of yuan can be traced back to here
散落浓荫的高贵门庭 动辄亿元的风貌老洋房 于此溯源
One Jing 'an Temple and three scenic areas.
一座静安寺,三片风貌区。
Nanjing West Road Historical and Cultural Area - Fengyang Road and Shaanxi North Road, Hengfu Historical and Cultural Area - Huashan Road and Hunan Road, Yuyuan Road Historical and Cultural Area - Yuyuan Road and Changde Road, the old Western-style houses in the shady areas worth hundreds of millions of yuan, history can be traced back here.
南京西路历史风貌区——凤阳路、陕西北路,衡复历史风貌区——华山路、湖南路,愚园路历史风貌区——愚园路、常德路,动辄亿元的浓荫区老洋房,历史从这里溯源。
Salute to the century-old village and open up a new artistic one
致敬百年旧里 再开艺术新里
Xinda Real Estate has updated its new project, featuring high-rise luxury residences with a construction area of approximately 90 to 100 square meters, presenting a hidden gem of the world's renowned residences.
信达地产更新作品,建筑面积约90-100㎡高层奢邸,里献世界的名宅隐贵之所。
Xinda Xin 'anli Sales Office Tel: 400-9939-964 \ nXinda Xin 'anli Official Tel: 400-9939-964
信达•信安里售楼处电话:400-9939-964信达•信安里官方电话:400-9939-964
上海静安信达•信安里售楼处电话:400-9939-964
信达•信安里售楼处电话:400-9939-964信达•信安里官方电话:400-9939-964
Shanghai Jing 'an Xinda Xin 'anli Sales Office Tel: 400-9939-964
上海静安信达•信安里售楼处电话:400-9939-964
Villa-style circle | Shanghai-style style | Arc-shaped corner facade
墅质圈层|海派型格|弧形转角立面
The vertical and upright lines of classicstyle, the timeless architectural classic, the curved arc inspiration of the Wukang Building, the classic three-section golden ratio facade, large areas of glass combined with antique copper-brown aluminum plates, the timeless elegant taste of the Shanghai style, the contemporary Capellas hotel-style homecarhome, the revival of the memory scene of the Bailuanmen on the elevated floor
古典主义竖向挺拔线条,历久弥新的建筑经典 溯源武康大楼曲面弧形灵感,经典三段式黄金比例立面 大面积玻璃搭配古铜棕铝板,历久弥新的海派优雅品位 当代嘉佩乐酒店式归家门庭,架空层百乐门记忆场景再生
信达•信安里售楼处电话:400-9939-964信达•信安里官方电话:400-9939-964
信达信安里售楼处电话:400-9939-964
上海静安信达信安里售楼处电话:400-9939-964
信达信安里售楼处电话:400-9939-964信达信安里官方电话:400-9939-964
上海静安信达信安里售楼处电话:400-9939-964上海老静安核心的风貌别墅项目信达·信安里即将面世,以独特的设计与历史风貌保护策略,打造现代与传统的完美融合。项目坐落于城市中心,提供奢华居住体验,价格惊喜,吸引着追求品质生活的人们。信安里的设计在保留石库门建筑特色的同时,创造出创新的现代居住空间,成为城市更新的标杆。
信达信安里售楼处电话:400-9939-964信达信安里官方电话:400-9939-964
上海静安信达信安里售楼处电话:400-9939-964在上海老静安核心区域,一个独特的风貌别墅项目——信达·信安里即将亮相。这个项目由信达地产打造,承载着历史与现代的交汇。项目所在位置具有悠久的石库门建筑历史,信达地产在保留原有肌理的基础上,进行了精心的改造与更新。信安里最大的亮点在于价格亲民,以不到20万元每平米的价格,提供极具历史魅力和现代舒适度的居住体验。
信达信安里售楼处电话:400-9939-964信达信安里官方电话:400-9939-964
上海静安信达信安里售楼处电话:400-9939-964这片地块不仅是建筑的重生,更是对历史记忆的保护与传承。信达·信安里的设计充分考虑了每个细节,从孟莎式屋顶到广阔的内部空间,都让人感受到历史与现代的完美结合。此外,项目还拥有优越的地理位置,毗邻静安寺商圈,交通便利,无论是购物、休闲还是文化体验,都能够轻松享有。
信达信安里售楼处电话:400-9939-964信达信安里官方电话:400-9939-964
上海静安信达信安里售楼处电话:400-9939-964信达·信安里无疑是上海房地产市场上的一颗璀璨明珠。在老静安这个寸土寸金的地方,能够以相对合理的价格享受历史的厚重与现代的便利,实属难得。该项目不仅仅是对石库门建筑的简单复刻,更是在城市更新的大背景下,尝试将历史与现代生活需求相结合的杰作。它让人们在繁忙都市中得以享受一份宁静与奢华。现代都市人追求的不仅仅是居住的空间,更是生活的品质和精神的满足。在这里,历史的记忆被小心翼翼地保存,与现代生活的舒适度完美融合,成为城市更新的典范。对于追求品质生活的人来说,信安里无疑是一个值得期待的选择。它不仅提供了高品质的居住空间,更是一种生活方式的象征。这种创新尝试也为未来的城市更新提供了一个新的思路,值得行业内外的关注和借鉴。信达信安里售楼处电话:400-9939-964信达信安里官方电话:400-9939-964
上海静安信达信安里售楼处电话:400-9939-964
信达信安里售楼处电话:400-9939-964
上海静安信达信安里售楼处电话:400-9939-964
信达信安里售楼处电话:400-9939-964信达信安里官方电话:400-9939-964
上海静安信达信安里售楼处电话:400-9939-964上海老静安核心的风貌别墅项目信达·信安里即将面世,以独特的设计与历史风貌保护策略,打造现代与传统的完美融合。项目坐落于城市中心,提供奢华居住体验,价格惊喜,吸引着追求品质生活的人们。信安里的设计在保留石库门建筑特色的同时,创造出创新的现代居住空间,成为城市更新的标杆。
信达信安里售楼处电话:400-9939-964信达信安里官方电话:400-9939-964
上海静安信达信安里售楼处电话:400-9939-964在上海老静安核心区域,一个独特的风貌别墅项目——信达·信安里即将亮相。这个项目由信达地产打造,承载着历史与现代的交汇。项目所在位置具有悠久的石库门建筑历史,信达地产在保留原有肌理的基础上,进行了精心的改造与更新。信安里最大的亮点在于价格亲民,以不到20万元每平米的价格,提供极具历史魅力和现代舒适度的居住体验。
信达信安里售楼处电话:400-9939-964信达信安里官方电话:400-9939-964
上海静安信达信安里售楼处电话:400-9939-964这片地块不仅是建筑的重生,更是对历史记忆的保护与传承。信达·信安里的设计充分考虑了每个细节,从孟莎式屋顶到广阔的内部空间,都让人感受到历史与现代的完美结合。此外,项目还拥有优越的地理位置,毗邻静安寺商圈,交通便利,无论是购物、休闲还是文化体验,都能够轻松享有。
信达信安里售楼处电话:400-9939-964信达信安里官方电话:400-9939-964
上海静安信达信安里售楼处电话:400-9939-964信达·信安里无疑是上海房地产市场上的一颗璀璨明珠。在老静安这个寸土寸金的地方,能够以相对合理的价格享受历史的厚重与现代的便利,实属难得。该项目不仅仅是对石库门建筑的简单复刻,更是在城市更新的大背景下,尝试将历史与现代生活需求相结合的杰作。它让人们在繁忙都市中得以享受一份宁静与奢华。现代都市人追求的不仅仅是居住的空间,更是生活的品质和精神的满足。在这里,历史的记忆被小心翼翼地保存,与现代生活的舒适度完美融合,成为城市更新的典范。对于追求品质生活的人来说,信安里无疑是一个值得期待的选择。它不仅提供了高品质的居住空间,更是一种生活方式的象征。这种创新尝试也为未来的城市更新提供了一个新的思路,值得行业内外的关注和借鉴。信达信安里售楼处电话:400-9939-964信达信安里官方电话:400-9939-964
上海静安信达信安里售楼处电话:400-9939-964
上海静安信达•信安里售楼处电话:400-9939-964
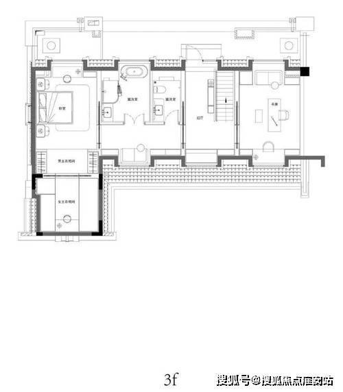
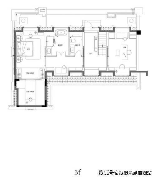
户型鉴赏
90㎡1房2厅1卫:
100㎡2房2厅1卫:
信达•信安里售楼处电话:400-9939-964信达•信安里官方电话:400-9939-964












一、房地产相关概念
(一) 房地产概念:房地产又称不动产,是指土地、建筑物及固着在土地、建筑物上不可分离的部分.其中不可分离的部分,如树木、水暖设备等.房地产有三种存在形式:
1、 单纯的土地;
2、 单纯的建筑物;
3、 土地与建筑物结合的房产;
(二) 房地产市场的分类:根据房地产开发,销售与消费过程特点,可以将房地产市场分为:
1、 一级市场(土地市场);
2、 二级市场(房地产增量房市场);
3、 三级市场(房地产存量房市场);
(三) 土地及土地所有权:
1、 土地的概念:一般是指地面、地面以下和地面以上一定范围的空间.现实生活中的土地是人为划分的,具有特定面积范围的地域.
2、 土地公有制:根据宪法规定,土地所有权分全民所有(国有土地)与集体土地所有权,集体转为国有才能转让,个人和单位只拥有土地的使用权;
3、 土地使用权在期限内可以出租、转让、抵押.
(四) 土地使用权获取方式:
1、 土地使用权出让:
指国家将国有土地使用权在一定年限内出让给土地使用者,由土地使用者向国家支付土地使用权出让金的行为;
土地使用权出让采用招标、拍卖、双方协议三种方式;六类用地(商业、娱乐、旅游、金融、服务业、商品房)采用招标、拍卖的方式;旧城改造采用双方协议的方式;
国有土地使用权出让年限:商业、旅游、娱乐用地40年;工业用地、科教、文体、卫生、体育用地、综合或其他用地50年;住房用地70年;房地产的使用权年限对价值有直接影响.
2、 土地使用权划拨:
指县级以上人民政府依法批准,在土地使用者缴纳补偿、安置等费用后将该幅土地交付其使用,或者将土地使用权无偿交付给土地使用者使用的行为;
以划拨方式取得土地使用权的,除法律、行政法规另有规定外,没有使用期限的限制;
下列建设用地的土地使用权,确属必须的,可由县级以上人民政府依法批准划拨: 国家机关用地和军事用地;
城市基础设施用地和公益事业用地;国家重点扶持的能源、交通、水利等项目用地;法律、行政法规规定的其他用地;
(五) 建筑概念
1、 建筑:建筑物和构筑物的总称;
2、 狭义建筑物:指各类房屋,构筑物如树木、电梯、水暖设备等;
3、 合格建筑物的标准:适用、经济、美观;
适用:安全、防水、隔声、保温隔热、采光、功能齐全、空间格局合理;
经济:购置价格合理、维修保养、采暖、空调能耗不高;
美观:建筑造型、色彩美感、与环境协调;
(六) 物业概念
1、 物业:广义的物业就是房地产,狭义的物业,包括各类房屋及其附属的设备、设施和相关场地;
各类房屋:可以是建筑群,如住宅小区,也可以是一幢住宅;附属的设备、设施和相关场地:是指与上述建筑物相配套的室内外各类设施、市政公用设施、道路交通等;
二、房屋建筑常识
1、 容积率:
总建筑面积与总用地面积的比值, 反映土地利用程度、使用强度及其经济性的技术经济指标;
容积率=建筑总面积÷用地面积;
一般来讲:普通住宅≥1.0;非普通住宅<1.0;
2、 建筑密度:
项目用地范围内各种建筑用地面积总和占总用地面积的比例.也可以建筑物基底总面积÷总用地面积,反映建筑用地范围内的空地率和建筑物的密集程度;
3、 绿化率:
指项目规划用地范围内绿化用地总面积占规划建设用地面积的比例;
4、 绿地率:
描述的是居住区用地范围内各类绿地的总和与居住区用地的比率;
5、 层高:
住宅高度以“层”为单位计算,是指下层地板面或楼板面到上层楼层面之间的距离.
6、 净高:
指下层地板面或楼板上表面到上层楼板下表面之间的距离.净高=层高-楼板厚度;
7、 进深:
指住宅的长度,指一间独立的房屋或一幢居住建筑从前墙皮到后墙皮之间的实际长度,为了保证住宅具有良好的自然采光和通风条件,目前我国大量城镇住宅房间的进深一般都限定在5米左右,不能任意扩大.住宅进深过大,就是住宅成为狭长型,距离门窗较远的室内空间自然光线不足,但进深大的住宅可以有效的节约用地;
8、 开间:
指住宅的宽度,指一间房屋内一面墙皮之间到另一面墙皮之间的实际距离,住宅的开间在住宅设计上有严格的规定;较小的开间范围,可缩短楼板的层间跨度,增强住宅结构的整体性、稳定性和抗震性;
9、 建筑面积:
指建筑物外墙外围所围成空间的水平面积.包含了房屋居住可用的实用面积、墙体柱体占地面积、楼梯走道面积、其它公摊面积等;
10、公摊面积:
指建筑物的楼梯、电梯井、外墙、公共门厅、走道、设备间、首层大堂及小区内其它一些配套设施的面积总和;
11、使用面积:
它是建筑面积扣除公摊面积、及墙体柱体所占用的面积后的直接供住户生活的净使用面积,俗称地砖面积;
12、占地面积:
建筑物基底及其功能需要占用的面积,也叫红线面积;
13、套内建筑面积=套内使用面积+套内墙体面积+阳台建筑面积(露台面积按半面积计算);
14、建筑面积=套内建筑面积+公摊面积;
15、销售面积=套内建筑面积+公摊的公用建筑面积;商品房按“套”或“单元”出售;
16、公用建筑面积=整幢建筑面积-套内建筑面积和-不应分摊的建筑面积;
17、公摊的公用建筑面积=套内建筑面积×公用建筑面积分摊系数;
18、公用建筑面积分摊系数:公用建筑面积÷套内建筑面积之和;
19、分摊的公用建筑面积包括:大堂、公共大厅、走廊、过道、共厕、电梯前厅、楼梯间、电梯井、电梯机房、垃圾道、管道井、消防控制室、消防通道、水泵房、水箱间、冷冻机房、配电室、煤气调压室、空调房、电梯工休息室、值班警卫室、卫星接收机房等;
20、不记入的公摊面积:仓库、车库、车道、供暖锅炉房、人防地下室、物管用房、售房单位自营、自用房屋、多幢房屋服务的警卫室;
21、实用率=套内建筑面积÷住宅建筑面积;
22、使用率=使用面积÷住宅面积,一般高层塔楼在72%至75%之间,板楼在78%至80%之间;小于实用率;
23、地下室:
指房间地面低于室外地平面的高度超过该房间净高的1/2;
24、半地下室:
指房间地面低于室外地平面的高度超过该房间净高的1/3,且不超过1/2;
25、阳台:
供居住者进行室外活动/晾晒衣物等的空间;
26、平台:
供居住者进行室外活动的上屋面或由住宅底层地面伸出室外的部分;
27、标准层:
指平面布置相同的住宅楼层;
28、中间层:
底层和最高住户入口层之间的中间楼层.
三、房地产行业术语:
(一)室内设施:
1、 四气:暖气、煤气、热水器、空调;
2、 全齐:家电(电视、冰箱、洗衣机)和家具(床、衣柜、沙发、电视柜、整体橱柜);
(二)装修分类:
1、 毛 坯:水泥地、水泥墙;
2、 简 装 修:地砖、白墙;
3、 中 装 修:大地砖、木地板;
4、 精 装 修:木地板、包门、包窗;
5、 豪华装修:装修前卫、用料讲究;
(三)户型及面积:
1、 一居室:公房面积:30-50平米;商品房面积:40-60平米;
2、 二居室:公房面积:50-70平米;商品房面积:70-100平米;
3、 三居室:公房面积:60-90平米;商品房面积:110-150平米;
4、 越层:房屋使用层跳跃的房型,如一越二,三越四等;
5、 错层:房屋内地面错落的房型;
(四) 楼层及朝向:
1、 楼层描述,多层楼房为6层,房屋所在层3层,简写3/6;
优劣:
楼房中多层楼有“金三银四”的说法,即六层楼三层最佳,四层次之;
高层楼中楼层较高的价位也较高,但二手房中顶楼除外;
2、 朝向(以主卧室窗户所对应的方向为准)多层楼朝向多为南北正向或东西侧向;
高层板楼与多层楼的朝向相似;
高层塔楼多为四角,其朝向多为东南、西南、东北、西北及各种斜向;
四、房地产特性:
(一) 不可移动性;
(二) 独一无二性;
(三) 寿命长久性;
(四) 数量有限性;
(五) 用途多样性;
(六) 相互影响性;
(七) 受政策\市场影响大;
(八) 标的高;
(九) 变现慢;
(十)保值增值性;
五、房屋分类及详解:
(一) 按住宅层数划分:
1、 低层:层数为1-3层;
2、 多层:层数为4-6层;
3、 中高层:层数为7-9层;
4、 高层:10层以上;
(二) 按使用性质划分:
1、 生产性建筑;厂房、车间等;
2、 非生产性建筑;
居住建筑:如住宅等;
公共建筑:如办公、文体、交通等;
(三) 按结构类型划分:
1、 砖混结构:这类建筑物的竖向承重构件采用砖墙或砖柱,水平承重构件采用钢筋混凝土楼板、屋顶板。这种结构房间小、层数低,一般用于多层建筑中;
2、 框架结构:这种结构的承重部分是由钢筋混凝土或钢材制作的梁、板、柱形成的骨架,可用于小高层建筑;
3、 钢筋混凝土剪力墙结构; 这类建筑物的竖向承重构件和水平承重构件均采用钢筋混凝土制作,多用于高层建筑
4、 空间结构:包括:县索结构、网架结构、壳体结构等。如体育馆、大剧院等;
(四) 按建筑材料划分:
1、 砖混:红砖与水泥;承重的主要构件是用砖和混凝土建造的;
2、 钢混:浇注、最为结实;承重的主要构件是用钢、钢筋混凝土建造的;
3、 预制板:预制的混凝土板与钢筋;承重的主要构件是用钢筋混凝土建造的.包括薄壳结构、大模板现浇结构及使用滑模、升板等建造的钢筋混凝土结构的建筑物;
(五) 按楼型外观划分:
1、 板楼:
是指由多个住宅单元组合而成,每单元均设有楼梯或楼梯、电梯皆有的住宅;每个单元用自己单独的楼梯、电梯;
板楼基本形式:多 层:6层以下;小高层:7-12层以内;高层:13-18层;超高层:18层以上甚至更高;
2、 塔楼:
主要是指以共用楼梯、电梯为核心布置多套住房的高层住宅.通俗地说,塔楼以电梯、楼梯为布局核心,上到楼层之后,向四面走可以直接进入户内;
塔楼基本形式:蝶型、品字型、Z字型、塔板结合、十字型、方形塔楼;
补充:筒子楼:卫生间、厨房都集体公用;
写字楼:办公使用;
(六) 按房屋户型划分:
1、 一居室;一卧室;
2、 二居室;二卧室;
3、 三居室;三卧室;
4、 多居室;多卧室;
5、 错 层:主要指的是一套房子不处于同一平面,即房内的厅、卧、卫、厨、阳台处于几个高度不同的平面上。
6、 跃 层:跃层住宅是一套住宅占两个楼层,有内部楼梯联系上下层;一般在首层安排起居室、厨房、餐厅、卫生间,最好有一间卧室,二层安排卧室、书房和卫生间等。
7、 复 式:复式住宅在概念上是一层,但层高较普通的住宅高,可在局部掏出夹层,安排卧室或书房等内容,用楼梯联系上下。其目的是提高住宅空间利用率。
(七) 按产权性质划分:
1、 商品房:指各房地产开发公司投资兴建的,以赢利为目的,按市场规律经营的房子;
分类:
(1) 普通住宅:
容积率1.0(含1.0)以上;
建筑面积在140平方米以下;
成交价低于同级别土地住房平均交易价格1.2倍以下;
(2) 非普通住宅:
甲宅; 24小时电梯、保安,物业费较高;
公寓;商品房、24小时电梯、保安、24小时管道热水;
别墅:(独栋、联排、双拼、叠拼)一般较为偏远;
(3) 商品房销售资质:商品房销售须具备以下五证:《国有土地使用证》、《建设用地规划可证》、《建设工程规划许可证》、《建筑工程施工许可证》、《商品房预销售许可证》;
2、 已购公房:
普通公房: 指按照国家房改有关售房政策,单位职工按成本价、标准价或优惠价购买的原产权属于单位的公有住房.职工根据国家政策,按成本价或标准价购买的由单位建设的安居工程和集资合作建设的住房;
央产房: 指按照国家房改有关售房政策,单位职工按成本价、标准价或优惠价购买的原产权属于中央在京单位,国有大中型企业及国务院各部委机关的公有住房.职工根据国家政策,按成本价或标准价购买的由中央在京单位建设的安居工程住房和集资合作建设的住房;
3、 经济适用房:
定义:以中低收入家庭住房困难户为供应对象,并按国家住宅建设标准建造的,具有社会保障性质的普通住宅.土地供应原则上实行划拨方式,住房设计要体现经济适用美观的原则,使用功能上要满足居民的基本生活需要.经济适用房的供应价格由经济适用房建设的行政主管部门会同物价部门按建设成本确定.
只拥有房屋所有权:表现形式为红色防伪制材的“房屋产权证”并在第一页上部加盖经济适用住房印章或按经济适用房管理;
4、 使用权房:使用权房是计划经济和住房分配体制下的产物,俗称公房。该房屋的产权属于国家或集体,不过,这项使用权是从所有权分离出来的一项独立的财产权,允许使用权人(公房承租人)在一定范围内通过一定方式转让或交换房屋使用权,所获收益扣除应缴税费后归使用权人所有。
5、 私产平房:也称私有住宅,是个人或家庭购买和建造的住宅;在农村,农民的住宅基本上是自建私有住宅。公有住房通过住宅消费市场出售给个人和家庭,也就转为私有住宅。
6、 小产权房:是指在农村集体土地上建设的房屋,未缴纳土地出让金等费用,国家房管部门不予颁发房产证。“小产权房”不是法律概念,是人们在社会实践中形成的一种约定俗成的称谓。该类房没有国家发放的土地使用证和预售许可证,购房合同在国土房管局不会给予备案,买卖此类房屋不能真正享有合法权益。按照国家的相关要求,“小产权房”不得确权发证,不受法律保护。
声明:本文由入驻焦点开放平台的作者撰写,除焦点官方账号外,观点仅代表作者本人,不代表焦点立场。


