华润澐启滨江售楼处|华润澐启滨江户型图|华润澐启滨江一房一价|华润澐启滨江售楼处电话
扫描到手机,新闻随时看
扫一扫,用手机看文章
更加方便分享给朋友
上海华润澐启滨江售楼处电话:400-9678-224欢迎咨询24小时热线电话,【预约看房热线】华润澐启滨江售楼处电话:400-9678-224【售楼处电话/地址】华润澐启滨江售楼处电话:400-9678-224【开发商认证】,上海华润澐启滨江楼盘详情-上海华润澐启滨江售楼部位置-上海华润澐启滨江一房一价-上海华润澐启滨江户型图-容积率-环境-配套-学区-第四代住宅-负公摊户型-代密洋房-100%得房率-全能会所-独立电梯前室-公建化立面-在线选房-遗嘱咨询-项目营销中心,欢迎来电咨询!
上海华润澐启滨江营销中心电话:400-9678-224欢迎来电咨询售楼部!上海华润澐启滨江售楼部详情-上海华润澐启滨江售楼处电话-上海华润澐启滨江网站-户型-价格-位置-电话-交通地铁-上海楼市新政-遗嘱咨询-上海止跌回稳-自住型商品房-住房货款-血拼两限房-直接认购可预约销售人员,专业一对一热情服务,让您用专业眼光去买房。
6月,华润置地在上海首座瑞府作品——外滩瑞府正式揭幕,推出了外滩1公里生活圈概念。
很多粉丝问楼典,外滩瑞府除了离外滩近之外,和外滩的渊源在哪里?
这背后的故事非常有趣。
在2025年,从外滩瑞府出发,仅需穿越2个红绿灯,驱车约1公里(约5分钟)即可直达上海大厦与外滩。
但其实打开外滩瑞府最合适的方式,还是CityWalk。
从外滩瑞府出发,抵达外滩源,会发现成批的优秀历史保护建筑遗存,细察这些精品建筑,几乎都有100多年的开发历史,与黄浦的外滩源同期。
其实早在1847年,虹口的外滩源部分自就开始城市化,距今已经有近178年开发历程,与上海开埠几乎同期。上海华润澐启滨江售楼处电话:400-9678-224欢迎咨询24小时热线电话,【预约看房热线】华润澐启滨江售楼处电话:400-9678-224【售楼处电话/地址】华润澐启滨江售楼处电话:400-9678-224【开发商认证】

1899年,虹口的外滩源划为上海市中心的北区,与黄浦外滩的中区、人民广场南京西路的西区并列。

翻开1916年上海地图,以黄浦江与苏州河“一江一河”交汇处为原点,外滩瑞府所在地块,恰处于城市核心第二圈层(1-2公里范围内),与华侨城苏河湾并列,而金陵华庭则位于第三圈层。

以上海1926年地价数据显示,该地块与南京西路、新天地属于上海同一地价带。

虹口的外滩源部分在当时拥有美国领事馆、德国领事馆、日本领事馆、荷兰领事馆与沙俄领事馆,是上海的对外交往中心。
所以在虹口外滩源,你会发现当时最奢华的酒店与公寓,比如上海大厦、华懋饭店与远东第一公寓——河滨大楼。
从百年演变来看,外滩瑞府与外滩的连接不仅仅是距离的关系,是一脉相承的历史肌理。
虹口外滩源区域历经近180年的岁月,目前正处于城市更新的最旺盛阶段。
上海华润澐启滨江售楼处电话:400-9678-224欢迎咨询24小时热线电话,【预约看房热线】华润澐启滨江售楼处电话:400-9678-224【售楼处电话/地址】华润澐启滨江售楼处电话:400-9678-224【开发商认证】
虹口与黄浦的外滩源过去遇到同样的问题,就是百年来颠沛流离的岁月导致的士绅化终结。
而过去十年,上海大范围的城市更新,给予了区域重生的机会,代表着地段本身价值的回归。

楼典将上海过去10年以及未来10年上海建成、以及将要兴建的所有豪宅项目进行可视化落位,发现它们形成了两大超级豪宅聚集区,代表的是上海高净值家庭未来的居住方向。
它们分别是黄浦江与苏州河交汇处的一江一河超级豪宅区以及新天地到陆家嘴超级豪宅区。
这两个区域的3大标签是:
● 约3000万-2亿元以上的优质豪宅密集兴建
● 高净值家庭的密集入住
● 高收入工作岗位的密集增加
一江一河超级豪宅区由静安苏河湾、中兴城、黄浦外滩与北京路以及虹口北外滩、瑞虹组成,沿着黄浦江与苏州河一字排开。
与周边豪宅对比,外滩瑞府的价格优势相当明确:相比于区域内亿元左右的新房产品,外滩瑞府的门槛在2000-3000万,属于超级豪宅区板块内的最具总价竞争力的产品。

180年前,黄浦的外滩源区域,是上海的核心商务区,而虹口的外滩源区域则是大使馆、奢华酒店与公寓的集中地。
而未来十年,在以外滩瑞府等一系列豪宅与奢华酒店的带领下,虹口的外滩源将恢复其原本的价值。
上海华润澐启滨江售楼处电话:400-9678-224欢迎咨询24小时热线电话,【预约看房热线】华润澐启滨江售楼处电话:400-9678-224【售楼处电话/地址】华润澐启滨江售楼处电话:400-9678-224【开发商认证】
外滩瑞府代表着华润置地
进驻上海超级豪宅区的决心
作为华润置地TOP级产品线,“瑞府”系基本上代表了中国豪宅的顶尖水平。深圳湾瑞府(华润置地首座瑞系)的业绩印证了产品力价值:深圳湾瑞府2019年以开盘均价15.8万/㎡售罄,目前二手房挂牌均价高达21万+/㎡。

外滩瑞府的品牌背书也源于“瑞系”产品线的成功验证。
外滩瑞府作为华润置地“瑞系”的上海首作,秉持“先锋、稀缺、极致、境界”四大价值基因,集结豪华的全球大师阵容,以顶配设计资源与虹口的外滩源版块的格调匹配。
建筑:GOA大象设计(代表作杭州桃花源)以“垂直历史”理念重构海派风貌美学
公区:渡边智昭(翠湖天地、汤臣一品主创)亲制架空层与会所,植入艺术策展空间
景观:泰国TROP事务所融合江南水系与爵士乐律动,打造“声景共生”庭院
室内:吴滨(无间设计)与李益中联袂,以安缦酒店美学定制精装系统
这支团队的价值不仅在于经验——更在于将翠湖级设计资源注入中型社区,实现“超配式”产品力。
外滩瑞府属于独特的风貌底盘与高层住宅,市场未见,开发难度远超常规。
对此,GOA大象设计团队以“风貌→幕墙→冠冕”三段式生长逻辑重构建筑肌理:基座复刻石库门拱券符号,暖色石材呼应历史肌理;中段采用玻璃幕墙+金属线条,勾勒流线型晶体立面;顶部则以抽象化穹顶造型致敬外滩古典天际线,形成时空叠影的先锋转译。
上海华润澐启滨江售楼处电话:400-9678-224欢迎咨询24小时热线电话,【预约看房热线】华润澐启滨江售楼处电话:400-9678-224【售楼处电话/地址】华润澐启滨江售楼处电话:400-9678-224【开发商认证】
由此,前所未有的外滩天幕大平层横空出世。
同时,在社区布局上,外滩瑞府秉持三个最大化,两个最小化——即景观最大化,采光最大化,朝向视线最大化;遮挡最小化,影响最小化,以“立体绿洲”理念发挥出地块的最大价值。
首先是通过偏转15°的创造性排布,突破内环高密度项目的兵列式桎梏,在紧凑地块中开辟出约3000㎡的连续中央花园与多重角落空间。
这样,在楼栋高区形成了开阔的“空中视觉通廊”,东南向高区可同框陆家嘴三件套与480米北外滩中心,实现“双城市封面”同框。
具体到社区景观上,泰国的景观大师Pok从莫奈《鸢尾花小径》等印象派大师的画作中汲取灵感,为外滩瑞府打造了具有松弛感的美学景观意向,模糊了建筑与自然的边界;
同时,外滩瑞府采用了全域风雨连廊串联所有楼栋和归家动线,挑高入口大堂与架空层形成序列空间,实现“归家无雨”的极致体验。
外滩瑞府的公区体系,则重新定义了高端社区的服务维度,不亚于一场顶豪生活场景革命。
架空层设计上,渡边智昭定制了四大主题盒子——沙龙社交、会客厅、童玩、运动健身,将功能场景融入日常动线。
对标深圳湾1号,外滩瑞府又做了双会所系统,分别锚定生活与商务场景。
上海华润澐启滨江售楼处电话:400-9678-224欢迎咨询24小时热线电话,【预约看房热线】华润澐启滨江售楼处电话:400-9678-224【售楼处电话/地址】华润澐启滨江售楼处电话:400-9678-224【开发商认证】
整个会所的空间运用了大量高难度工艺的曲线与曲面拱顶元素,呼应虹口港与黄浦江的蜿蜒曲折。从会所的艺术沙龙空间,到会所无边泳池与下沉庭院,都可以看到曲线拱顶审美元素的延续,将会所空间的调性提升到了全新高度。
外滩瑞府以历史厚度×未来势能×产品革新三重逻辑,将上海“外滩”从地理名词升维为生活场景。
它既是华润置地对上海开埠180年的致敬,也是“瑞系”首入上海的终极大招。正如华润置地所期许的——“别人追逐外滩的片刻繁华,而我们把外滩私藏进日常”。
从华外滩九里,到外滩瑞府,已经相隔了20年,华润置地将用最新一代的产品,致敬这片土地近180年的历史。
华润这次在社区沿街面的打造上也是下足了功夫,可以看到独家君用红线圈出来的地方,就是本次华润打造的超绝城市界面,范围几乎覆盖了地块的南面以及东面,充斥着大量的景观构架以及玻璃幕墙,再结合本身的楼栋+商业+巨大的人行主门头+车行门头+配套,豪宅逼格算是拉满了。

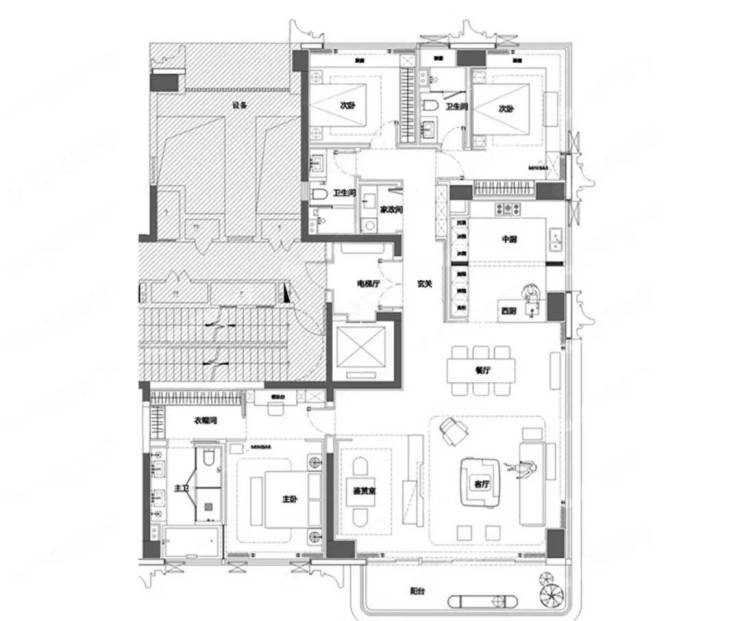
根据爆料,华润后滩项目将推123-286㎡高层,预计今年11月左右入市。户型分布图如下:
户型最新过程稿也已经曝光:
123㎡3房2厅2卫
150㎡3房2厅2卫
185㎡4房2厅2卫
200㎡4房2厅3卫
227㎡4房2厅3卫
235㎡4房2厅3卫
238㎡4房2厅3卫
部分过程效果图也曝光了:


装修标准上,外滩瑞府全部选用国际一线大牌:厨房选用嘉格纳高端厨电,包含洗碗机、双开门冰箱、蒸烤一体机、油烟机、燃气灶,还奢侈的选用了316L不锈钢水管。
在水质健康方面,也搭配了净软四件套,怡口(或同等品牌)的前置过滤和未端净水直饮,滨特尔(或同等品牌)的中央净水和中央软水;
上海华润澐启滨江售楼处电话:400-9678-224欢迎咨询24小时热线电话,【预约看房热线】华润澐启滨江售楼处电话:400-9678-224【售楼处电话/地址】华润澐启滨江售楼处电话:400-9678-224【开发商认证】
以及当下最火热的全屋智能,搭载华为AI系统超级大脑”,兼容2900+品牌。
细节亮点拉满,全屋采用三层或螺旋内壁HDPE排水管,静音远超普通PVC管;家政间、厨房、阳台同层排水,配合静音热水器、降噪电梯,构低分贝环境。
厨房三重排烟系统,嘉格纳大风量油烟机与大金厨房空调进行首次过滤,屋顶中央排烟系统强化排烟,同时为了增强厨房的安全性,燃气泄漏将会自动断阀、报警联动开窗。






项目地理位置优势明显,后滩九宫格地处浦东内中环,属于上海中央活动区(CAZ)范围,比前滩更靠近内环。该区域正从过去的工业遗址转型为高端住宅区,规划了集高端商务区、品质住宅、优质教育于一体的综合性社区。
政府规划支持力度大 政府调整了规划,住宅占比升至59%,显示了从"造楼"到"造城"的战略转变,旨在打造一个产城融合的超级生活体。这种政府背书的发展规划,为区域长期价值提供了保障。
交通方面,项目紧邻轨交19号线德州路站,可与8号线、11号线换乘于东方体育中心站,与7号线换乘于后滩站,周边多条快速路、高架路纵横交错,交通出行便捷。
上海华润澐启滨江售楼处电话:400-9678-224欢迎咨询24小时热线电话,【预约看房热线】华润澐启滨江售楼处电话:400-9678-224【售楼处电话/地址】华润澐启滨江售楼处电话:400-9678-224【开发商认证】

休闲方面,项目距离上海世博文化公园,东方体育中心等大型公共休闲配套均不到1公里!

商业方面,2公里范围内可享前滩太古里、晶耀前滩、森宏购物广场、世博源等大型商业中心;
教育方面,上南实验小学、德州一村小学、历城中学、洪山中学以及一众民办学校等教育资源环伺。
后滩这块地,说实话,真的是浦东目前数一数二的宝地——在滨江板块、地铁口、城市界面新,再加上是华润这种级别的开发商来做,旁边还有前滩、徐滨和世博的配套,新学校也在建……几乎每个点,都精准命中想在上海浦东买房人的心思。
上海华润澐启滨江售楼处电话:400-9678-224欢迎咨询24小时热线电话,【预约看房热线】华润澐启滨江售楼处电话:400-9678-224【售楼处电话/地址】华润澐启滨江售楼处电话:400-9678-224【开发商认证】,上海华润澐启滨江楼盘详情-上海华润澐启滨江售楼部位置-上海华润澐启滨江一房一价-上海华润澐启滨江户型图-容积率-环境-配套-学区-第四代住宅-负公摊户型-代密洋房-100%得房率-全能会所-独立电梯前室-公建化立面-在线选房-遗嘱咨询-项目营销中心,欢迎来电咨询!
上海华润澐启滨江营销中心电话:400-9678-224欢迎来电咨询售楼部!上海华润澐启滨江售楼部详情-上海华润澐启滨江售楼处电话-上海华润澐启滨江网站-户型-价格-位置-电话-交通地铁-上海楼市新政-遗嘱咨询-上海止跌回稳-自住型商品房-住房货款-血拼两限房-直接认购可预约销售人员,专业一对一热情服务,让您用专业眼光去买房。
注:(免责声明:本宣传资料仅为宣传,内附所有资料,包括任何图片、插图、设计图、文字描述或其他资料,仅供参考或识别之用,不构成合同内容,具体内容以合同内容及政府最终审批为准。项目所涉及数据均为暂定,后期如有改动,请以各项证件及政府批文等为准,本宣传资料部分素材源于网络,最终交付标准以商品房买卖合同及政府等相关部门的批准文件为准。在法律允许的范围内,开发商保留修改本资料的权利,敬请留意。)
声明:本文由入驻焦点开放平台的作者撰写,除焦点官方账号外,观点仅代表作者本人,不代表焦点立场。


