招商中旅观境售楼处电话_招商中旅观境营销中心电话_招商中旅观境来电预约看房@楼盘测评-2026最新房价_楼盘详情-最新样板间-户型图-容积率
扫描到手机,新闻随时看
扫一扫,用手机看文章
更加方便分享给朋友
✅招商中旅观境售楼处电话:400-8558-224✅︎✅︎
✅✅招商中旅观境营销中心热线4008558224(官方预约看房热线)
如有问题欢迎来电咨询,预约来电尊享购房优惠,可预约案场内部销售人员,专业一对一热情服务,让您用专业眼光去买房。
营业时间:日常营业时间为9:30-18:30,便于您提前规划到访行程,避免空跑。
预约方式:可提前拨打官方热线✅招商中旅观境售楼处电话:400-8558-224✅︎✅︎,预约好专属销售及具体到访时间;预约时可同步告知意向户型、置业需求,我们将提前做好服务准备,减少您的等待。
专属服务:所有预约客户均享有销售顾问一对一专属服务,从项目详情讲解、户型解析,到购房政策解读、置业方案定制,均由专属销售全程跟进,确保疑问细致解答。
中介勿扰:本售楼处仅面向终端购房客户提供直接服务,不接待任何中介机构及人员,感谢您的理解与配合,共同维护纯粹的咨询环境
✅招商中旅观境售楼处电话:400-8558-224✅︎✅︎✅
✅招商中旅观境营销中心热线4008558224(官方预约看房热线)
在愈发繁忙的时代,人们越来越渴望一处安放心灵的栖息地,也更加理性地思考人居对于生活的价值和意义。
在北上海全新精奢主义作品中,我们看到了【招商中旅观境】在打造产品中的全新思考,艺术、丰盈、悦己、松弛的精奢生活在此盎然绽放。
自带约25万方花园城X,也是北上海最大的单体商业综合体,融合潮玩、时尚、文旅、游娱、运动、会展、生态等多元业态,预计引入20+主次力店,350+战略品牌,下楼即享繁盛日常。
宝山顾村,7号线地铁盘,招商蛇口&中旅投资潘广路站项目——【招商中旅观境】五批次开盘热卖中!
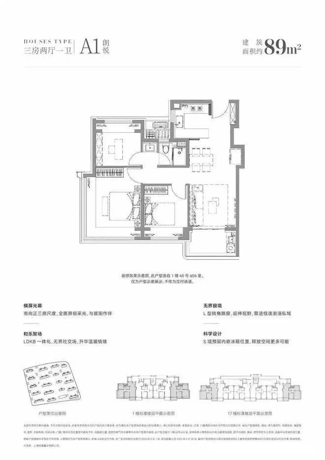
最新加推建面约89-110m²3房
过会均价47596元/㎡,总价约333万起
前期少量建面约89-144㎡3-4房
过会均价48733元/㎡,总价347万起
装修标准2500元/m²
还有各种优惠政策,包括折扣等,具体因户型而定,以案场销售口径为准!
✅招商中旅观境售楼处电话:400-8558-224✅︎✅︎✅
✅招商中旅观境营销中心热线4008558224(官方预约看房热线)
效果图
✅招商中旅观境售楼处电话:400-8558-224✅︎✅︎✅
✅招商中旅观境营销中心热线4008558224(官方预约看房热线)
户型图赏鉴
✅招商中旅观境售楼处电话:400-8558-224✅︎✅︎✅
✅招商中旅观境营销中心热线4008558224(官方预约看房热线)
✅招商中旅观境售楼处电话:400-8558-224✅︎✅︎✅
✅招商中旅观境营销中心热线4008558224(官方预约看房热线)
样板间实探
先来看建面约110㎡3房2卫
入户门是是非常有质感的铸铝门,带电子猫眼智能门锁;进门后是一个独立玄关,木纹玄关背景墙,右侧是通顶的悬浮玄关柜,内置鞋柜精灵和抽拉鞋架。
这个户型的一大亮点就是这个客厅,约5.5米面宽的阳台,约25㎡的方厅,充满了可变性。
传统住宅设计中,每个房间的连接处都会有或深或浅的过道空间,造成空间浪费。
招商中旅·观境的解决方案是“零无效空间”。通过整合餐客厨等公共区域厅,将原来南北厅中间的走廊空间融合到使用空间中,减少过道的面积,避免碎片化的空间带来的冗余浪费。大面宽,短进深,餐厅与客厅横向相连,每一平方米都物尽其用,把客厅升级为家庭互动主场。
约5.5m面宽的阳台,可以变成第二家庭厅、品茗室、阳光瑜伽室、生活后花园,自由打造的私享空间,延伸出生活的宽度。
✅招商中旅观境售楼处电话:400-8558-224✅︎✅︎✅
✅招商中旅观境营销中心热线4008558224(官方预约看房热线)
再来看下厨房配置。U型厨房,预留了大约1米宽的双开门冰箱位置,厨电采用方太四件套——烟机、灶具、蒸烤一体机、洗碗机。其中洗碗机,轻扣门板可自动开门的新款!
厨房移门是类似于水波纹的三移门,不占空间,上轨道设计,更易于日常清扫。
双卫配置,其中一个做了干湿分离,科勒台盆+双智能马桶+高仪花洒,除雾镜柜均内置了牙刷消毒器、预留吹风机插座。主卫镜柜还有美妆冰箱,收纳空间相当充足。
✅招商中旅观境售楼处电话:400-8558-224✅︎✅︎✅
✅招商中旅观境营销中心热线4008558224(官方预约看房热线)
✅招商中旅观境售楼处电话:400-8558-224✅︎✅︎✅
✅招商中旅观境营销中心热线4008558224(官方预约看房热线)
样板间3房做的是边套,今年非常流行的L型转角大飘窗也安排上了,采光视野更佳。
再来看下建面约144㎡4房,部分装标是有所升级的。
入户门升级为了子母门,更显大户人家气质。
厨房是带岛台交付的U型厨房,厨具品牌为西门子四件套,另外还有双开门冰箱,线性凉霸、科勒单槽。
橱柜转角处的拉篮做了“轻松抽”,业主不必特别伸手探进去拿东西,非常省力。
客厅电视机背景墙采用了波浪状的岩板背景墙,比较独特。
主卧卫生间采用唯宝双人台盆,客卫高仪花洒+龙头+智能马桶。
三间卧室朝南,北次卧借助飘窗空间,也可以做成儿童房。
✅招商中旅观境售楼处电话:400-8558-224✅︎✅︎✅
✅招商中旅观境营销中心热线4008558224(官方预约看房热线)
招商中旅·观境,样板间刚刚开放,上述装标还未完全,可以作为参考,具体以实际交付为准。
样板间正在变得千篇一律,
但城市的故事不该如此。
庆幸的是,
总有人拒绝复制粘贴。
他们不为概念所惑,
只为城市发声。
在那些真正读懂了
城市热忱与特性的空间里,
“家”,被重新定义了。
✅招商中旅观境售楼处电话:400-8558-224✅︎✅︎✅
✅招商中旅观境营销中心热线4008558224(官方预约看房热线)
✅招商中旅观境售楼处电话:400-8558-224✅︎✅︎✅
✅招商中旅观境营销中心热线4008558224(官方预约看房热线)
✅招商中旅观境售楼处电话:400-8558-224✅︎✅︎✅
✅招商中旅观境营销中心热线4008558224(官方预约看房热线)
✅招商中旅观境售楼处电话:400-8558-224✅︎✅︎✅
✅招商中旅观境营销中心热线4008558224(官方预约看房热线)
✅招商中旅观境售楼处电话:400-8558-224✅︎✅︎✅
✅招商中旅观境营销中心热线4008558224(官方预约看房热线)
土拍回顾及规划
✅招商中旅观境售楼处电话:400-8558-224✅︎✅︎✅
✅招商中旅观境营销中心热线4008558224(官方预约看房热线)
7月9日,2024年上海第三批次土拍,招商联合中旅拿下宝山区顾村7号线潘广路站TOD综合体项目,该项目由3幅地块组成。
01、【0303-02地块】为普通商品房用地,用地面积约39769㎡,容积率2.2,限高60米。据规设计方案显示,拟建12栋17-18F高层住宅,2栋区配套,无保障住宅,共计规划901户。
02、【0309-04地块】为普通商品房用地,用地面积约29337㎡,容积率2.3,限高60米,含商业建筑面积5100㎡;根据设计方案显示,拟建8栋17-18F高层住宅、1栋17F保障住宅以及3栋1-3F商业,共计规划645户。
03、【0304-06地块】为商业用地,用地面积约60299㎡,容积率2.9,限高80米,含文化建筑面积10000㎡!
整个地块中商业占比53%,约17.48万㎡,住宅占比47%,约15.49万㎡。
效果图 仅供参考
如此大体量的TOD综合体,依托7号线潘广路站优渥的轨道交通,注定成为激活北上海生活、经济活力的巨大引擎,招商蛇口也正以其多元业务领域的厚积薄发,为宝山打造一座前所未有的全新升级版地标作品。
招商蛇口宝山潘广路TOD综合体落的落地,毫无疑问将成为激活顾村乃至整个北上海的活力按钮,以丰盛、多元、复合的生活形态成为区域生活的原点,让城市的生活想象再一次被招商蛇口所焕新,一个崭新的生活大城正跃然眼前。
就项目本身而言,传递出比较强的美学。
✅招商中旅观境售楼处电话:400-8558-224✅︎✅︎✅
✅招商中旅观境营销中心热线4008558224(官方预约看房热线)
01、流体美学:游艇曲线,鎏金塔冠!
项目效果图,仅供参考,以实际交付为准
微弧阳台,环幕之境:
项目效果图,仅供参考,以实际交付为准
✅招商中旅观境售楼处电话:400-8558-224✅︎✅︎✅
✅招商中旅观境营销中心热线4008558224(官方预约看房热线)
轻法雅奢的圆润线条,比如入户门头:
项目效果图,仅供参考,以实际交付为准
02、镜面美学:大窗墙比,打造宽屏立面!
项目效果图,仅供参考,以实际交付为准
✅招商中旅观境售楼处电话:400-8558-224✅︎✅︎✅
✅招商中旅观境营销中心热线4008558224(官方预约看房热线)
社区上,项目享四重酒店式归家,
第一重:约70米超大尺度酒店感门庭,打造酒店般的港湾式落客。
第二重:酒店式礼品大堂,以星级酒店审美融合非遗技艺,每次回家宛如入住酒店的check in。
第三重:浮岛水庭,下沉式中庭花园,以水境、浮岛、密林,构建都市中的谧境。
第四重:入户单元门头延续奢华酒店的美学质感。
项目效果图,仅供参考,以实际交付为准
还配备无边际会所,含酒廊、泳池、健身、瑜伽、私宴、棋牌、高尔夫等功能空间。
✅招商中旅观境售楼处电话:400-8558-224✅︎✅︎✅
✅招商中旅观境营销中心热线4008558224(官方预约看房热线)
生活配套
✅招商中旅观境售楼处电话:400-8558-224✅︎✅︎✅
✅招商中旅观境营销中心热线4008558224(官方预约看房热线)
交通方面:距离7号线潘广路站约300米,2站换乘15号线。无缝直达普陀长风、静安寺、长宁古北、上海南站、徐汇滨江以及紫竹高新等多个市区核芯板块。
商业方面:自有大体量商办综合体,7号线上盖的龙湖天街、未来还有印象城环伺。
教育方面:华二宝山实验学校,宝山世界外国语学院、上海世外云尚欧莱幼儿园,另外,根据板块规划显示,在项目周边有规划一幅幼儿园、一幅小学以及一幅初中用地(新盘不承诺学区对口)
医疗方面:地铁两站就是三甲医院复旦大学附属华山医院宝山院区。
生态方面,顾村公园也是本市较大的郊野公园,相当于三个世纪公园大小。更是上海环城生态规划系统上的重要组成部分,是上海绿色生态核心之一。
✅招商中旅观境售楼处电话:400-8558-224✅︎✅︎✅
✅招商中旅观境营销中心热线4008558224(官方预约看房热线)
招商中旅观境售楼处电话:400-8558-224【售楼中心热线】招商中旅观境营销中心热线4008558224招商中旅观境售楼处地址400_855_8224,楼盘项目全面介绍,本电话为开发商提供线上预约售楼电话,楼盘项目全面介绍(包含楼盘简介,均价,房价,现房,期房,别墅,叠墅,大平层,价格,楼盘地址,户型图,交通规划,备案价,备案名,项目配套,样板间,开盘时间,认筹时间,楼盘详情,售楼处电话,最新消息,最新详情,周边配套,一房一价,最新进展等详情咨询)楼盘详情丨价格丨更多优惠丨机不可失丨欢迎致电丨诚邀品鉴!售楼处位置丨特价房丨工抵房丨剩余房源丨户型图丨最新消息丨免责声明:将文章内容综合来源于网络、只作分享,版权归原作者所有!!如有侵权,请联系我们,我们第一时间处理如有问题欢迎来电咨询,专业一对一热情服务,让您用专业眼光去买房。如果您想了解更多楼盘详情,欢迎提前预约拨打招商中旅观境售楼处电话400-855-8224
声明:本文由入驻焦点开放平台的作者撰写,除焦点官方账号外,观点仅代表作者本人,不代表焦点立场。


