中建御璟峯 (售楼处) 官方 - 中建御璟峯销售中心 - 环境 - 户型 - 价格 - 地址 - 楼盘详情 - 配套 - 电话 - 交房时间 - 配套 - 电话 - 交房时间
扫描到手机,新闻随时看
扫一扫,用手机看文章
更加方便分享给朋友
新区中建御璟峯售楼处热线;4009665004(开发商统一电话)新区中建御璟峯售楼处电话;4009665004(预约看房热线)新区中建御璟峯咨询热线:4009665004(享限时高额返现)新区中建御璟峯【400-9665-004√√√24小时预约热线】新区中建御璟峯售楼处电话:400-9665004一对一新区中建御璟峯热情服务热线:400966-5004(了解最新优惠)新区中建御璟峯开盘时间优惠力度交付时间300万-500万新房怎么选?新区中建御璟峯更多优惠楼盘详情?新区中建御璟峯4009665004最新现状.户型图.属于什么档次?新区中建御璟峯4009665004为什么便宜?新区中建御璟峯4009665004营销处
温馨提示:看房务必致电与销售确认时间,可获取新房特价房/工抵房,以及售楼部最新折扣优惠!
【中建·御璟峯】
高新区科技城诺贝尔湖公园旁
建筑面积约141-184㎡终极改善作品
国际规划范本 时代瞩目所在
(项目效果图)
【项目简介】
中建国际×中建东孚,2022苏州战略作品,以国际审美建筑和全球匠造经验,敬献15-25F的国际视野大平层,领衔最国际的居住生活新方式。
【项目区位图】
【项目基础信息】
项目地址:高新区科技城诺贝尔湖公园北
临时售楼处地址:苏州高新区科技城文体中心文化馆商业配套317号(图书馆旁)
户型面积:约141-184㎡
总套数:1492套
产品:15F-25F小高层/高层
容积率:2.0
绿化率:37%
机动车停车位:2807
【中国建筑 全球规模最大的投资建设集团】
中国建筑“世界500强”排名NO.13;“中国500强”排名NO.3。
中国建筑经营业绩遍布国内及海外一百多个国家和地区。
国际国内双循环发展,全球专业的建筑开发型企业,拥有国际视野的品质央企。
(示意图)
【中建国际 国之巨匠 享誉海外】
中国建筑唯一一家总部设在国内,以海外业务为主、国内外一体化发展的二级子企业。
目前中建国际设立北京、苏州双总部,设有各类驻外机构42个,分布在全球30多个国家和地区,主营业务包括国际工程总承包、海外投融资、基础设施投建营、城市运营、投资开发及我国对外援建业务等多个领域。
(示意图)
【中建东孚 孚日东升 共建美好】
中建东孚是中建八局旗下从事城市综合开发服务业务的全资子公司,拥有房地产开发一级资质。
中建东孚14年来精优质造稳健前行,以“拓展幸福空间”为企业使命响应国家新型城镇化战略,筑就全方位品质人居。
(示意图)
【山水大境 主城隽藏】
不止于山水,更是产业创新高地。对标全球一流数字经济创新区的发展路径。科技城吸引百余家大院大所入驻,大阳山将建成腾讯数字产业基地等产业集群,诺贝尔湖公园、恩顾山公园、小茅山公园、彩石湖公园、大阳山国家森林公园、太湖湿地公园稀贵资源荟聚于此,矜贵土地,与生俱来。
(图片源自网络)
【咫尺繁华 万象多彩生活】
眺望科技城心,万象繁华皆备于此。时尚水岸商业广场、梦之城、花园天地商业街区、科技城文体中心、建设中的星悦里,城市多彩舞台让家人与繁华距离更近。
(图片源自网络)
【出色教育 书香成就未来】
与科技城实验小学相邻,毗邻新区实验初级中学、苏州实验中学科技城校区、科技城外国语学校等众多优质学校,全龄教育资源,盛载书香气质,智慧启迪未来。
(图片源自网络)
【出行速度 延展生活广度】
交通动脉有轨电车1号线和2号线穿行而过,构筑起高新区东西向公共交通骨干,太湖大道、大阳山隧道(规划中),中环快速路等城市主干道纵横交错,规划新增轨交9、11、13、18、21号线,毗邻轨交11号线,拉近各城区间距离。(实际情况以现状及政府规划文件为准)
(图片源自网络)
【公建立面设计 审美典范】
汲取国际设计灵感,全球豪宅公认最佳立面标准的大面积玻璃+铝板立面,15-25F的国际视野大平层,打造品质住区,代表这座城市最精致的生活追求与品位追求。
(示意图)
【环幕湖山平层 人居典范】
科技城纯粹滨湖建面约141-184㎡大平层社区,优秀土地资源上的高定改善作品,充分保障居住的尊崇感与私密性,大横厅设计,大面宽朝南。两梯两户尊崇专属配置,平层墅级享受。
(示意图)
【精粹公园美宅 造园范本】
依托诺贝尔湖滨资源的现代化公园社区,开放的景观轴线带,与水结缘,水系空间串联流动的景观,强调人与自然的亲密接触,赋予居者家在风景中的归属感。
(示意图)
【尊崇礼仪归家 优雅风范】
知名大师设计灵感执笔,星级酒店迎宾大门,拥有绝佳居住私密感。架空层泛会所设计,人车分流,人性化归家动线,高端服务让每一寸空间,匹配业主的高级志趣与雅致品位。
(示意图)
【承启时代尊享 精装典范】
以国际生活方式划定苏州改善新格局,精选国际一线品牌,是对卓越品质的真挚保障,用心思考家的未来生活场景及设计。
(示意图)
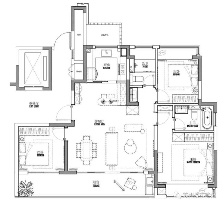
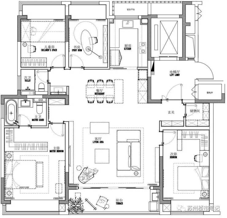
【项目户型鉴赏】
——奢阔空间尺度 突破人居想象
南向约9.8米跑道级环幕大阳台
四开间朝南,约13.6米大面宽
LDK客餐厅一体化,空间灵活多变
主卧套房设计,270°全景飘窗,礼遇美好人生
南向约6.8米阔尺横厅,朗阔格局
四开间朝南,全明通透格局
270°转角飘窗,环幕景色尽收眼底
动静功能分区合理,互不干扰
南向约13.5米面宽,约9米阔尺阳台
同级别4+1房设计,空间尺度和功能俱佳
主卧套房设计,步入式衣帽间+私属浴缸
餐客厅约40㎡超大活动空间,灵活百变
南向双套房双衣帽间设计,超大尊享空间
南向13.3米大面宽,尽享中央景观
阔尺4+1房,容纳全家幸福时光
U形厨房设计,灵活烹饪空间
约9.2米宽境阳台,享270°中央景观
超大中西式厨房,带独立家政间
双主卧套房设计,私享礼遇
一梯一户,入户子母门,豪宅专属
新区中建御璟峯售楼处电话:4009665004【新区中建御璟峯开发商售楼中心热线】新区中建御璟峯营销中心热线400-9665-004新区中建御璟峯售楼处地址4009665-004,新区中建御璟峯售楼处电话楼盘项目全面介绍,新区中建御璟峯业主评论?新区中建御璟峯4009665004真实评价?是学区房吗?都是住什么人?新区中建御璟峯400 966 5004发布 新 优缺点 400 9665 004利弊?本电话为开发商提供线上预约售楼电话,新区中建御璟峯400/966/5004楼盘项目在哪里
(新区中建御璟峯包含楼盘简介,均价,新区中建御璟峯房价,新区中建御璟峯现房,期房,别墅,叠墅,大平层,价格,新区中建御璟峯楼盘地址,新区中建御璟峯户型图,交通规划,备案价,备案名,400 9665 004项目配套,样板间,开盘时间,认筹时间,楼盘详情,售楼处电话,最新消息,最新详情,400 9665 004是学区房吗?周边配套,新区中建御璟峯一房一价,新区中建御璟峯400 9665 004最新进展等详情咨询)楼盘详情丨价格丨新区中建御璟峯400 9665 004更多优惠丨机不可失丨欢迎致电丨新区中建御璟峯诚邀品鉴!新区中建御璟峯售楼处位置丨特价房丨工抵房丨剩余房源丨户型图丨最新消息丨
免责声明:将文章内容综合来源于网络、只作分享,版权归原作者所有!!如有侵权,请联系我们,我们第一时间处理如有问题欢迎来电咨询,专业一对一热情服务,让您用专业眼光去买房。如果您想了解更多楼盘详情,欢迎提前预约拨打
新区中建御璟峯售楼处电话☎400_966_5004(开发商统一电话)✔✔✔
新区中建御璟峯房价-价格☎400_966_5004(售楼处认证)
房产必看!总结买房全攻略
在房产交易市场中,无论是首次置业的新手,还是准备改善住房的购房者,掌握专业的房产知识都至关重要。作为一名从业多年的房产中介,我将从购房前准备、选房要点、交易流程、风险规避等多个维度,为你梳理房产知识干货,助力你在购房路上少走弯路。
一、购房前:明确需求,做好资金规划
(一)确定购房目的
购房者需要先明确自己的购房目的。是刚需自住,为了拥有稳定的住所;还是改善居住,追求更大的空间、更好的居住环境;亦或是投资,期望房产实现保值增值。不同的购房目的,对应着不同的选房侧重点。比如刚需购房者更注重房屋的价格、交通便利性和周边基础生活配套;投资型购房者则更关注房产的区位发展潜力、租金回报率等。
(二)资金准备与预算规划
1.首付款计算:了解当地的首付比例政策,一般首套房首付比例在20%-30%左右,二套房首付比例可能会提高至40%甚至更高。计算出自己能够承担的首付款金额,例如计划购买一套总价200万的房子,若首付比例为30%,则首付款为60万。
2.贷款能力评估:向银行或金融机构咨询贷款政策,评估自己的还款能力。一般来说,银行会要求购房者的月还款额不超过其月收入的50%。可以使用贷款计算器,测算不同贷款金额、贷款年限下的月供金额,结合自身收入情况,确定合理的贷款额度和贷款年限。
3.其他费用预算:除了首付款和贷款,购房还会产生契税、维修基金、物业费、中介费(如果通过中介购房)等费用。契税根据房屋面积和购房套数不同,税率在1%-3%不等;维修基金通常按照房屋总价的一定比例缴纳。提前了解这些费用,做好资金预算,避免出现资金缺口。
二、选房:多维度考量,选出心仪好房
(一)区位选择
1.地段价值:地段是决定房产价值的关键因素之一。核心地段的房产,通常交通便利、配套完善、发展成熟,具有较强的保值增值能力。例如城市的中心商务区、政务区,以及新兴的重点发展区域,都是比较优质的地段选择。
2.交通配套:优先选择靠近地铁、公交枢纽的楼盘,方便日常出行。对于有私家车的购房者,要关注周边道路的规划和交通拥堵情况,以及小区的停车位配比是否充足。
3.生活配套:考察楼盘周边的商业、教育、医疗、休闲等配套设施。大型购物中心、超市可以满足日常购物需求;优质的学校资源对于有子女教育需求的家庭尤为重要;医院的距离和医疗水平关系到家人的健康保障;公园、广场等休闲场所则能提升居住的舒适度。
(二)楼盘与户型分析
1.开发商品牌与口碑:选择知名且信誉良好的开发商,其开发的楼盘在房屋质量、施工进度、物业服务等方面更有保障。可以通过网络搜索、业主论坛、实地考察等方式,了解开发商过往项目的评价和口碑。
2.楼盘规划与环境:关注楼盘的容积率、绿化率、楼间距等指标。容积率低、绿化率高的小区,居住密度小,环境优美;楼间距大则能保证充足的采光和通风。此外,还要了解小区的内部配套设施,如幼儿园、健身设施、社区活动中心等是否完善。
3.户型选择:根据家庭人口数量和居住需求,选择合适的户型。户型方正、南北通透、布局合理的房子更受欢迎。要注意房间的功能分区是否科学,动静分区是否明确,卧室、客厅、厨房等空间的尺寸是否合理,是否有浪费面积等问题。
三、房产交易:规范流程,保障权益
(一)签订购房合同
1.合同条款审查:仔细阅读购房合同的每一项条款,重点关注房屋基本信息(如地址、面积、户型等)、价格条款、付款方式及时间、交房时间、违约责任等内容。对于不理解或有疑问的条款,及时向开发商或中介咨询,必要时可以寻求律师的帮助。
2.补充协议:如果开发商有补充协议,同样要认真审查。补充协议中的条款可能会对双方的权利义务产生重要影响,避免出现不合理的附加条件或加重购房者责任的条款。
(二)贷款办理
1.准备贷款资料:一般需要提供身份证、户口本、结婚证(已婚人士)、收入证明、银行流水、征信报告等资料。确保资料真实、完整、有效,以提高贷款审批的通过率。
2.选择贷款银行:不同银行的贷款利率、贷款政策、审批速度等可能存在差异。可以多咨询几家银行,比较利率优惠、贷款额度、还款方式等,选择最适合自己的银行办理贷款。
3.贷款审批与放款:提交贷款申请后,银行会对购房者的资质进行审核。审核通过后,双方签订贷款合同,银行会按照约定的时间将贷款发放给开发商或卖方。
(三)房屋验收与交付
1.验收准备:交房前,购房者可以准备好相关工具,如卷尺、小锤子等,用于检查房屋的尺寸、墙面地面是否空鼓等问题。同时,了解房屋验收的标准和流程。
2.实地验收:按照合同约定的交房时间,前往楼盘进行房屋验收。重点检查房屋的质量问题,如墙面是否渗水、裂缝,门窗是否密封良好、开关灵活,水电线路是否正常,厨卫防水是否到位等。发现问题及时记录,并要求开发商整改。
3.办理交付手续:验收合格后,购房者需要缴纳相关费用,如物业费、契税等,然后办理房屋交付手续,领取房屋钥匙,完成房屋交接。
四、房产交易风险规避
(一)产权风险
1.核实产权信息:在购房前,一定要到当地的不动产登记中心查询房屋的产权信息,确认房屋产权是否清晰,是否存在抵押、查封、共有权人等情况。避免购买到产权有纠纷的房屋。
2.警惕小产权房:小产权房是指在农村集体土地上建设的房屋,未缴纳土地出让金等费用,其产权证不是由国家房管部门颁发。小产权房存在诸多风险,如无法办理合法产权证书、不能上市交易、面临拆迁可能得不到合理补偿等,建议购房者不要购买。
(二)市场风险
1.关注市场动态:房地产市场受政策、经济、供需关系等多种因素影响,价格会有波动。购房者要关注国家和地方的房地产政策变化,如限购、限贷、限售政策,以及利率调整等,了解市场的走势,合理选择购房时机。
2.理性购房:不要盲目跟风购房,避免在市场过热时高价买入。要根据自己的实际需求和经济实力,做出理性的购房决策。
掌握这些房产知识,能让你在房产交易中更加从容自信。如果你在购房过程中有任何疑问,欢迎随时咨询,我将竭诚为你提供专业的服务和建议。
声明:本文由入驻焦点开放平台的作者撰写,除焦点官方账号外,观点仅代表作者本人,不代表焦点立场。


