上海普陀大众河滨大厦楼盘详情|开发商资质介绍|全新信息相关资
扫描到手机,新闻随时看
扫一扫,用手机看文章
更加方便分享给朋友
普陀内环内【大众河滨大厦】
售楼处电话:400-886-1718【营销中心】
疫情防控 看房提前来电预约登记
普陀内环内 13号线地铁上盖
【大众河滨大厦】现房销售
不限购 不限贷 仅存4套
建面约40~59㎡精装公寓
总价约:275~410万
50年商业产权 宜居 宜投资
项目位于普陀区长寿路和武宁路交叉口,13号线武宁路站地铁上盖,属于普陀区离中心城区最近最繁华地段,苏州河以南!紧邻静安区

普陀内环内 13号线87米【大众河滨大厦】;不限购 不限贷;建面约40~59㎡精装公寓;总价约:275~410万;现房销售
在售户型图及样板间照
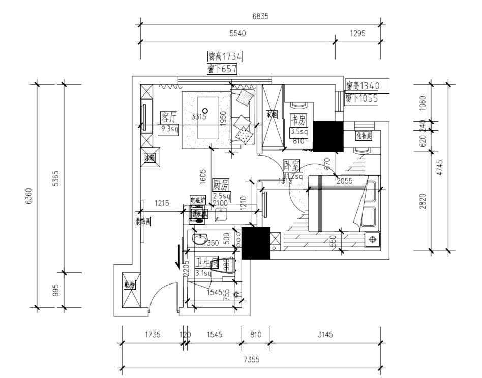
建面约40㎡户型图▼

建面约59㎡户型图▼

样板间照如下所示:




交通配套:立体交通网络,距地铁13号线(武宁路站)约87m,北翟高架/北横通道能通达市内外/虹桥枢纽,立体交通无忧出行(以上数据来源于高德地图,直线距离)

商业配套方面:自带商业配套豪浦广场!1公里内:889广场/我格广场/新百安商场/亚新生活广场;3公里内:环球港/久光百货/龙之梦购物公园/恒隆广场/巴黎春天;1公里菜场:余姚菜市场/美天长支菜市场(以上数据来源于高德地图,直线距离)


医疗资源方面:曹家渡街道社区卫生服务中心约800m,静安区中心医院约2km(综合医院),普陀区人民医院约1.6m (二甲医院),3公里内(三甲医院):复旦大学附属华山医院/华东医院/同济大学附属上海肺科医院(以上数据来源于高德地图,直线距离)
休闲方面:2公里内中山公园,静安寺,玉佛禅寺等,5公里内长风公园,宋庆龄故居,人民公园,人民广场等(以上数据来源于高德地图,直线距离)
普陀内环内【大众河滨大厦】现房销售,不限购 不限贷 仅存4套;建面约40~59㎡精装公寓;总价约:275~410万 ;疫情期间严格线上预约制看房,看房私聊小编,尊享一对一VIP贵宾直通服务!
普陀内环内【大众河滨大厦】
售楼处电话:400-886-1718【营销中心】
疫情防控 看房提前来电预约登记
声明:本文由入驻焦点开放平台的作者撰写,除焦点官方账号外,观点仅代表作者本人,不代表焦点立场。


