保利新江湾售楼处首页网站-保利新江湾欢迎您-保利新江湾楼盘介绍-楼盘详情-最新价格-户型图-容积率@售楼处
扫描到手机,新闻随时看
扫一扫,用手机看文章
更加方便分享给朋友
保利新江湾售楼处电话:400-9688-923✅︎✅︎✅
保利新江湾营销中心热线400-9688-923(官方预约看房热线)
看房请务必致电与销售确认时间,仅预约客户可享受开发商内部优惠,专属老带新推荐奖!
营业时间:日常营业时间为9:30-18:30,便于您提前规划到访行程,避免空跑。
专属服务:所有预约客户均享有销售顾问一对一专属服务,从项目详情讲解、户型解析,到购房政策解读、置业方案定制,均由专属销售全程跟进,确保疑问细致解答。
中介勿扰:本售楼处仅面向终端购房客户提供直接服务,不接待任何中介机构及人员,感谢您的理解与配合,共同维护纯粹的咨询环境
保利新江湾售楼处电话:400-9688-923✅︎✅︎✅
保利新江湾售楼处电话:400-9688-923✅︎✅︎✅
保利新江湾售楼处电话:400-9688-923✅︎✅︎✅
保利新江湾售楼处电话:400-9688-923✅︎✅︎✅
保利新江湾售楼处电话:400-9688-923✅︎✅︎✅
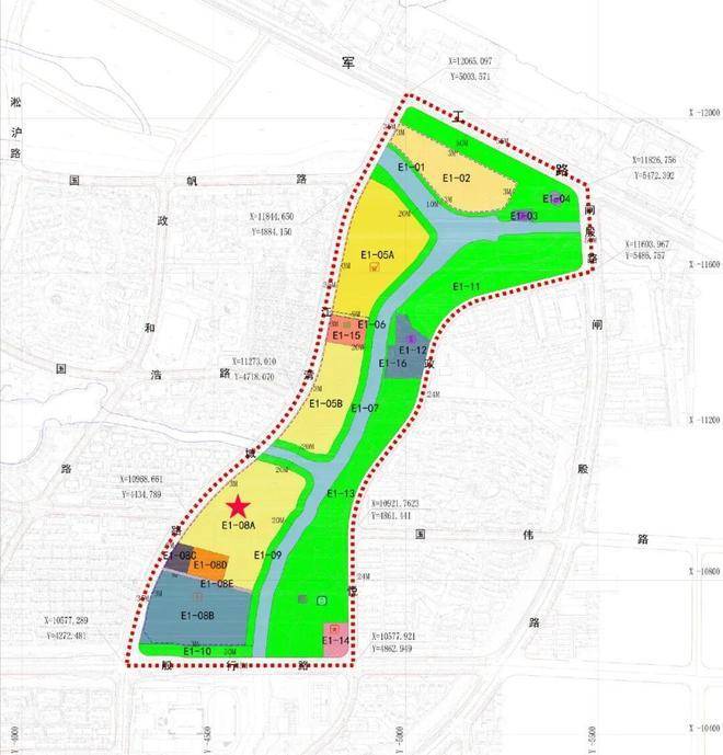
2025年9月3日,杨浦新江湾E1-08A地块由保利发展与上海地产通过股权转让联合拿下。出让总价37亿元,成交楼面价5.89万元/㎡。项目容积率仅约1.1,限高约20米。
其土地面积约5.71万㎡,建筑面积约6.28万㎡,住宅套数下限为455套;这也是保利发展首次在新江湾城板块拿地。
根据最新网传消息,项目预计建造约238套100-139㎡6层洋房,48套160㎡叠墅(上下叠),68套170㎡叠墅(上下叠),47套190㎡联排别墅,24套215㎡联排别墅,11套260㎡联排别墅,2套350㎡联排别墅。
保利新江湾售楼处电话:400-9688-923✅︎✅︎✅
保利新江湾售楼处电话:400-9688-923✅︎✅︎✅
项目容积率仅1.1,打造两面环水景观低密社区,建造明确有会所。
地块本身就处于新江湾城湿地和水系包围之处,从小区的楼栋分布图来看,滨河的基本都是大面积的联排别墅户型,景观应该相当不错。
保利新江湾售楼处电话:400-9688-923✅︎✅︎✅
项目南侧不远处是杨浦德法学校,再往南就是目前新江湾城板块在售的新盘建发海宸,未来入市,相信能和建发海宸形成协同作用,共同提升新江湾城板块的居住焕新价值。
让我们来看看公开文件展示的部分过程稿户型图,户型很多,仅展示一部分。
特别声明哈,以下户型图仅为招标过程中的过程稿版本,最终以开发商公示为准!
保利新江湾售楼处电话:400-9688-923✅︎✅︎✅
保利新江湾售楼处电话:400-9688-923✅︎✅︎✅
保利新江湾售楼处电话:400-9688-923✅︎✅︎✅
保利新江湾售楼处电话:400-9688-923✅︎✅︎✅
保利新江湾售楼处电话:400-9688-923✅︎✅︎✅
保利新江湾售楼处电话:400-9688-923✅︎✅︎✅
保利新江湾售楼处电话:400-9688-923✅︎✅︎✅
保利新江湾售楼处电话:400-9688-923✅︎✅︎✅
保利新江湾售楼处电话:400-9688-923✅︎✅︎✅
保利新江湾售楼处电话:400-9688-923✅︎✅︎✅
保利新江湾售楼处电话:400-9688-923✅︎✅︎✅
保利新江湾售楼处电话:400-9688-923✅︎✅︎✅
保利发展此次立足于新江湾城再启新章,秉持江河共建的匠心,持续赋能杨浦,继续让板块再度沸腾,致献更新的国际人居低密典范。
新江湾坐拥9.45平方公里原生湿地、60%绿化覆盖率,PM2.5浓度常年低于市区20%,堪称上海主城罕见的“绿宝石”。
未来,在上海主城这样极度稀缺的地块,保利发展将集全国之力,聚全城资源,在新江湾再创巅峰之作——主城稀贵1.1低密(近10年上海出让的1.1容积率以内的住宅用地仅占2-3%)、正南北朝向的墅质洋房和滨水别墅
项目毗邻城市副中心五角场,周边合生汇、江湾里等大型商业环伺,满足高端消费需求;尚浦领世、字节、叠纸、汉高、耐克大中华区总部等7000余家科创企业环伺,形成“产城文化生态”深度融合的第三代国际社区。
上海乃至全国的顶级高校,复旦大学、同济大学、上海财经大学都在新江湾城。这些顶级学府营造了新江湾城浓厚的人文氛围,并为板块产业发展提供了源源不断的人才资源。
保利新江湾售楼处电话:400-9688-923✅︎✅︎✅
除却知名高校资源,新江湾城的基础教育也非常拔尖,同济一附中、兰生复旦中学、复旦二附中、上音实验学校、复旦科技园小学、中福会幼儿园、德法学校等名校为新江湾城居民的子女提供着优质的中小学教育。
产业方面,新江湾城作为杨浦超大规模产业园区的落户地,坐拥湾谷科技园、复旦软件园、创智天地3大产业园,集中了科技金融机构460家、科技型企业7000余家,其中耐克、IBM、AECOM、西门子、李尔、硅谷银行等跨国公司地区总部、研发中心纷纷落户。
保利新江湾售楼处电话:400-9688-923✅︎✅︎✅
新江湾E1-08A地块,不仅是保利发展参与上海城市更新的缩影,更是中国城市文明进阶的缩影——在这里,低密是敬畏,生态是天赋,而共建共生的理想,终将定义下一个城市国际传奇水岸墅区,成为绿宝石之上的永恒光辉。
保利新江湾售楼处电话:400-9688-923✅︎✅︎✅
保利新江湾售楼处电话:400-9688-923✅︎✅︎✅
保利新江湾售楼处电话:400-9688-923✅︎✅︎✅
保利新江湾售楼处电话:400-9688-923✅︎✅︎✅
保利新江湾售楼处电话:400-9688-923✅︎✅︎✅
保利新江湾售楼处电话:400-9688-923✅︎✅︎✅
01 | 凌晨5点,我在月河古街听见了“江南的呼吸”
上周,我坐在月河古街的荷月桥边,看着晨雾从京杭大运河上缓缓升起。
一位穿蓝布衫的老太太拎着竹篮经过,篮子里是刚摘的栀子花。她见我拿着相机,笑着说:“小伙子,拍景不如拍人,这条街的故事可比风景好看。”
我好奇地问:“什么故事?”
她指了指河对岸的一栋老宅:“那家‘邹大鲜’的老板,祖上是给乾隆皇帝送糟蛋的,现在还在用300年前的方子。”
我愣住了。
原来,嘉兴的美,从来不只是乌镇和西塘——
它藏在月河古街的栀子花香里
它躲在勺园残存的明代砖瓦下
它飘在芦席汇的咖啡与评弹交织的晨光中
今天,我就带大家走进嘉兴9个冷门又小众的景点,它们比网红古镇更安静,比商业景区更便宜,甚至大部分免费,却藏着最真实的江南。
02 | 第1名:月河古街(嘉兴的“迷你乌镇”)
关键词:免费、5A级、日夜双面
❌ 不踩坑指南
别在节假日去:平时人少,周末酒吧街吵闹,失去江南韵味。
别在主街买粽子:往里走,“真真老老”粽子博物馆现包现蒸,5元一个。
✅ 必体验三件套
清晨逛小猪廊下:本地老人聚在河边喝茶,可坐下闲聊。
夜游坛弄酒吧街: live音乐+灯笼倒影,像穿越回民国。
打卡粽子博物馆:了解嘉兴粽子200年历史,还能DIY。
💡 冷知识:
月河因“弯曲如月”得名,明清时是嘉兴最繁华的商埠,现在仍保留60多条古巷。
“这不是景区,是老嘉兴的‘活态记忆’。”
03 | 第2名:勺园(明代权贵的“秘密花园”)
关键词:免费、明代园林、政治阴谋
❌ 不踩坑指南
别期待“苏州园林”的精致:勺园是遗址重建,留白多于雕琢。
别错过残存古物:园内假山“凤山”是明代能仁寺遗物。
✅ 隐藏玩法
找“冤魂石”:传说主人吴昌时被杖杀后,血浸入湖石,至今泛红。
拍水墨倒影:雨天湖面如镜,白墙黑瓦映成天然画卷。
💡 历史梗:
园主吴昌时是明末东林党人,因勾结宦官被杀,园林荒废300年。
“这不是园林,是政治斗争的‘沉默见证者’。”
04 | 第3名:芦席汇(大运河边的“文艺新宠”)
关键词:免费、新晋网红、古今混搭
❌ 不踩坑指南
别开车进街区:巷子窄到后视镜会刮墙,停外围步行。
别错过夜间市集:每周五晚有后备箱市集+露天电影。
✅ 必做三件事
住开元观堂:三面环水的仿古酒店,送画扇体验。
喝橡树咖啡馆:西班牙拿铁+南瓜芝士蛋糕,窗景即江南。
寻明代秀城桥:桥墩刻着镇水兽,摸一摸能沾古人智慧。
“这不是商业街,是年轻人和历史的‘和解现场’。”
05 | 第4名:小蓬莱公园(金庸笔下的“武侠秘境”)
关键词:免费、千年银杏、民国旧事
❌ 不踩坑指南
别周末去:本地人爱在此打牌,嘈杂影响意境。
别错过二期工程:新建的蓬莱阁复刻了南宋风貌。
✅ 武侠迷必打卡
抱“浙江银杏王”:唐代古树,23米高,金庸《书剑恩仇录》提过。
走“筹款故事墙”:1931年新塍百姓众筹5000大洋买下此园。
💡 冷知识:
园内两池之间假山叫“凤山”,是南朝能仁寺唯一遗存。
“这不是公园,是平民力量的‘纪念碑’。”
06 | 第5名:白塔山岛(核电站旁的“无人秘境”)
关键词:原生态、赶海圣地、限流登岛
❌ 不踩坑指南
别私自划船上岛:海流复杂,需联系正规渔船。
别破坏生态:岛上鸟蛋、珊瑚礁受保护。
✅ 探险玩法
挖“奇沟”贝壳:退潮时礁石缝里有巴掌大蛤蜊。
听“怪声”:特定风向时,海蚀洞会发出呜咽声。
💡 登岛TIP:
提前联系海盐县渔政报备,每日限50人。
“这不是旅游岛,是海洋的‘自留地’。”
07 | 第6名:高公升酱园(乾隆钦点的“江南酱缸”)
关键词:免费、非遗酱菜、活态工坊
❌ 不踩坑指南
别买“景区专供”:真货在月河古街后巷老店。
别错过开缸仪式:每年立夏,老师傅祭拜“酱神”。
✅ 沉浸体验
尝硬壳糟蛋:蛋壳酒酿发酵,蛋白变琥珀色,乾隆吃了三颗。
学古法酿酱:老师傅用200年木铲教你“日晒夜露”。
“这不是作坊,是微生物的‘千年实验室’。”
08 | 第7名:分水墩(运河水利的“活化石”)
关键词:免费、小众拍照、水利奇观
❌ 不踩坑指南
别涨潮时去:墩体被淹,只剩亭子尖。
别穿高跟鞋:明代石板路缝隙能卡鞋跟。
✅ 摄影秘籍
拍“运河分叉”:无人机视角看水分两路,如巨树开枝。
等黄昏剪影:渔翁撑船过墩,光影似水墨动画。
💡 功能揭秘:
这个水上小洲实为调节水流速度的明代水利设施。
“这不是小岛,是古人智慧的‘实体说明书’。”
09 | 第8名:双魁巷(嘉兴最后的“青楼遗址”)
关键词:免费、民国风、隐秘历史
❌ 不踩坑指南
别乱闯民居:部分老宅仍住人,拍照先微笑示意。
别信“名妓故居”:真正青楼早拆,现存是商会办公楼。
✅ 民国迷必看
数“门楣暗号”:雕花中藏“卍”字符的是赌场,“兰花”是烟馆。
找“逃生密道”:某宅衣柜后通运河,供客人紧急撤离。
“这不是老街,是黑白两道的‘谈判桌’。”
10 | 第9名:新塍古镇(未被开发的“时间胶囊”)
关键词:免费、原住民、美食天堂
❌ 不踩坑指南
别开车进镇:明清巷道窄到后视镜贴墙。
别错过早市:6-8点的羊肉面、油墩子,10点后收摊。
✅ 在地玩法
吃“瞎叉三”馄饨:盲人师傅凭手感包馅,皮薄如纸。
探“文革”标语墙:某大院外墙保留“农业学大寨”朱漆字。
💡 冷知识:
新塍的蓬莱路原名“棺材街”,因明清时整条街卖寿材。
“这不是景区,是嘉兴人的‘生活后台’。”
11 | 最后一点真心话
在嘉兴旅行的最后一天,我在新塍古镇的茶馆里遇到一位退休老师。
他抿着茶说:“你们年轻人总爱去乌镇,可那里像‘化妆后的新娘’——美是美,但看不清真面目了。”
他指了指窗外:“你看新塍这些老房子,墙皮掉了就掉了,裂缝露着就露着,这才是江南本来的样子。”
是啊,嘉兴的冷门景点就是这样——
它们不讨好游客,所以保留着生活的毛边
它们不贩卖情怀,所以故事更加真实
它们不争抢名气,所以等你慢慢发现
“有些地方,不是为了打卡,而是为了让你想起——旅行本该有的样子。”
声明:本文由入驻焦点开放平台的作者撰写,除焦点官方账号外,观点仅代表作者本人,不代表焦点立场。


