华发仁恒苏河世纪(售楼处) 官方 -华发仁恒苏河世纪销售中心 - 环境 - 户型 - 价格 - 地址 - 楼盘详情 - 配套 - 电话 - 交房时间 - 配套 - 电话 - 交房时间
扫描到手机,新闻随时看
扫一扫,用手机看文章
更加方便分享给朋友
华发仁恒苏河世纪售楼处电话:400-8118-224【预约看房热线】华发仁恒苏河世纪 官方售楼处电话:4008118224【售楼处电话/地址】 华发仁恒苏河世纪售楼处电话:400-811-8224【开发商认证】
静安内环苏州河板块
紧靠曲阜路地铁站和大悦城
「华发仁恒苏河世纪」二期
6套498㎡大平层,2套480㎡复式
单价14.1-15.3万,仅8席精装交付
总价约7038万-7365万可直接定
售楼处线上线上预约中!
华发仁恒苏河世纪售楼处电话:400-8118-224
【售楼处预约热线】(一对一热情服务)
看房请务必致电与销售确认时间,仅预约客户可享受开发商内部优惠,专属新房预约奖!

华发仁恒苏河世纪售楼处电话:400-8118-224
华发仁恒苏河世纪营销中心热线400-8118-224(官方预约看房热线)
2020年10月,仁恒+华发联合体以42.1亿的价格竞得静安区天目社区,C070102单元38-01、39-01地块,溢价率为1.25%,成交楼面价52833.79元/㎡!
华发仁恒苏河世纪售楼处电话:400-8118-224
华发仁恒苏河世纪营销中心热线400-8118-224(官方预约看房热线)
位置示意图
38-01地块用途普通商品房
39-01地块用途为商办、文体用地
5%保障房、100%全装修、80%以上中小套
地上建筑限高80米、住宅套数下限288套
地块基本信息
该地块的设计方案早已公示,项目规划建设新增6栋住宅。其中1#9F,2、4、5#26F,3#19F,6#8F。
规划图
项目业态较为丰富,涵盖商住办和文化用地以及一个4000方的派出所。紧靠曲阜路地铁站和大悦城,毗邻四行仓库;眺望苏州河;周边配套完善醇熟。

静安内环苏州河板块「华发仁恒苏河世纪售楼处电话:400-8118-224」二期即将加推的是3#、6#两栋住宅,共44套。主力建面102-245㎡3-4房,另有6套大平层和2套复式。具体如下:16套约102㎡3房、20套约245㎡4房、6套约495㎡大平层、2套约499㎡复式。
项目首批房源于2022年7月首开入市,推出三栋住宅,均价13.3万/㎡,入围分68.8分。时隔两年多,项目第二批房源均价13.9万/㎡!认筹已结束,超260组认筹,预计入围分75分;6套498㎡大平层,2套480㎡复式;单价14.1-15.3万,仅8席精装现房;总价约7038万-7365万可直接定
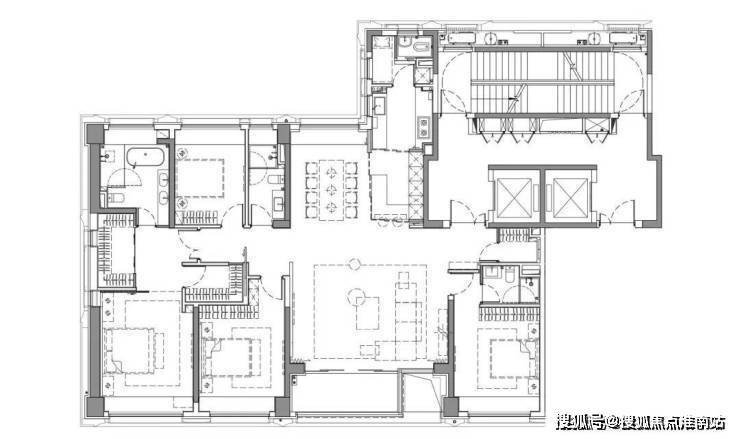
先来看下二期的户型图平面图
建面约102㎡户型

建面约245㎡户型
▼建面约480㎡复式户型
▼建面约498㎡大平层户型
一房一价表如下
上期约106㎡样板房图片如下:
客厅

餐厅

厨房

主卧

主卫

书房

次卧

客卫

项目毗邻苏州河畔,拥享得天独厚的自然优势,一线无遮挡直面水岸公园,饱览无敌河景与城心的华丽天际线。


建筑立面拥有现代建筑的先锋美学元素,以铝板和玻璃幕墙打造IMX级别天幕,彰显高端现代城市建筑简约风,超大窗墙比赋予建筑独特的城市气质,实现空间视野与采光的优选。

项目地处静安苏河湾核芯区位,南侧即为苏州河,属于上海中心板块第壹序列,新静安“一轴三带”战略中的重要一环,国家级战略规划加持。
苏州河沿岸定位为特大城市宜居生活的典型示范区,享有世界级滨水区文化水岸。6.3公里滨河步道,21万方滨河开放空间,唯壹全球卓越河岸中央活动区。滨水而居,于此开启城市悠闲慢生活。
交通资源:地块距离8号线曲阜路站直线距离约200m,周边还有1、12号线,与四行仓库仅一路之隔。
曲阜路站
教育资源:项目周边有惠思顿高瞻幼儿园、上海音乐幼儿园、棋院实验小学、静安第三中学小学、向东中学。
华发仁恒苏河世纪售楼处电话:400-8118-224【售楼中心热线】华发仁恒苏河世纪营销中心热线400-8118-224华发仁恒苏河世纪售楼处地址400-8118-224
静安第三中学小学
医疗资源:静安区北站医院(二甲医院)、上海健桥医院、上海长征医院等为健康保驾护航!
长征医院
商业资源:距离静安大悦城直线距离约300m,静安大悦城是国家5星级购物中心,项目整体开发超过40万平米,总投资额超过120亿,规划包括大型时尚购物中心、第一居所临水豪宅、高品质酒店式公寓、甲级写字楼及步行商业街,打造海派文化与国际文化的兼容并蓄,创造动静结合的高品质生活第一选择。

静安大悦城
静安内环内,苏州河畔「华发仁恒苏河世纪」

一江一河规划中,苏州河沿岸明确定位为“特大城市宜居生活的典型示范区”,上海2035规划中,苏河湾定位上海中央活动区!

房产知识
房地产基础专业知识
1、房地产:指房产和地产的总称(又称不动产)。
2、房地产的三种存在形态:
单纯的土地、单纯的房屋、土地房屋的综合体
3、房地产的特征:
a、房地产位置的固定性(土地不可移,房屋 也不可动);
b、房地产地域的差别性(每宗房地产的价值都不同);
。c、房地产的高值、耐久性(价格贵、土地永久的);
d、房地产的保值、增值性(货币贬值、房产保值、货币增值、房产增值);
4、房产:是房屋及其权利的总称(占有、使用、收益、处分等权利)。
5、房屋分类:
a、功能用途:居住用房(小区、高品住宅)、工业用房(厂房、仓库)、商业用房(门面、商场)、办公用房(写字楼)、行政用房(军事、学校等单位用房及城市);
b、建筑结构:钢结构、钢筋混凝土结构、砖混结构、砖木结构和其他;
c、所有权归属:公房(直管公房和自管公房等)和私房;
6、地产:是土地及其权利的总称(使用、收益、转让等权利)。
7、土地分类:
a、开发利用:生地和熟地;
b、建筑功能:建筑用地和非建筑用地;
c、用途:居住用地、商业服务用地、工业用地、仓储用地、市政公共设施用地、交通用地、绿化用地、特殊用地等;
8、房地产业:指从事房产开发、经营、管理和服务的行业。包括:
a、土地开发;
b、房屋建设、维修、管理;
c、土地使用权的有偿划拔、转让;
d、房屋所有权的买卖、租赁;
e、房地产抵押贷款;
f、房地产市场;
9、土地使用权:就是土地所有者根据土地分类对土地加以利用的权利(指依法对土地经营、利用和收益的权利)。土地公有制采取了两种形式:即集体所有制和国家所有制。a)农村土地采用了集体所有制,属于农民集体所有;b)城市土地采取国家所有制的形式,属于全民所有;任何个人不能取得土地的所有权。
土地使用获得的方式:
划拔:无偿使用,如学校、医院、军事用地、机场等市政建设工程;
出让:从国家有偿取得使用权,方式:协议(如200-250万/亩)、招标(提出底价,根据使用用途和价格取得)、拍卖(价高者竟得,不违法的前提下,通过正规渠道取得);
10、房地产市场:
a、一级市场:以土地为体(亦称土地市场、土地交易市场);
b、二级市场:开发商获得土地后,投入一定的奖金建设,通过有偿或赠与将产权转买给需求者(新建商品房的买卖市场);
c、三级市场:房屋在消费市场的再次流通,包括:买卖、抵押、转让、租凭(二手房);
房地产市场结构善一览表:
市场称谓
一级市场
二级市场
三级市场
称谓
土地使用权出让市场
土地使用权转让市场、增量商品房市场、住房一级市场等
土地使用权转让市场、存量商品房市场、二手房市场、住房二级市场等
市场主体
政府、开发企业(投资者)
开发企业、业主
业主
市场客体
国有土地使用权
增量商品房
存量商品房、已售旧公房、私房
交易方式
拍卖、招标、协议
出售、出租等
买卖、租赁、交换等
11、土地使用权出让:指国家以土地所有者身份,按指定地块的使用年限、用途和城市规划等条件,将城市土地使用权出让给土地使用者,并向土地使用者收取土地使用权出让金的行为。出让交易双方是国家和用地单位或个人。
12、土地产权:包括土地所有权、地上权、地役权、抵押权、典权、租赁权。
地上权:指以支付租金为代价在他人土地上建筑房屋的权利,它的实质就是土地使用权;
地役权:指利用他人土地供自己使用的权利;
抵押权:指土地使用权获得者在其有效的使用期限内有以土地作抵押获取银行贷款或其他担保的权利;
租赁权:指土地使用权获得者在其有效使用期限内将土地租给他人使用以获取收益,承租人即取得该块土地的租赁权;
13、土地使用年限:指国家将土地使用权出让给土地使用者,双方约定土地使用者可以使用的年限。
1)土地使用权出让年限:
a、居住用地70年;
b、工业用地、教育、科技、文化卫生、体育及综合或其他用地50年;
c、商业、旅游、娱乐用地40年;
PS:使用用途需转换的要补年限地价的差价,国家指定的则遵照执行;
2)土地使用年限到期后如何处理:
a、国家有权无条件的收回该土地;
b、建筑主体经质控部门检验后不属危房;
c、项目的存在不影响城市规划,不影响市容,只要向政府缴纳土地出让金可以继续使用。
PS:b、c条完全存在的情况下,以当时的地价购买使用年限,年限由政府规定,否则无条件收回;
14、商品房:开发商以市场地价取得土地使用权后进行开发建设,并经国土局批准在市场上流通的房地产,它是在获取房产证后,可自行转让、出租、继承、抵押、交换的固定资产。
商品房的物业类型:住宅、写字楼、商场、酒店、市场。
15、商品房的预售制度:五证二书
五证:〈国有土地使用证〉、〈建设用地规划许可证〉、〈建设工程规划许可证〉、
〈建设工程施工许可证〉、〈商品房预售许可证〉
二书:〈质量保证书〉、〈使用说明书〉、两书可以作为商品房买卖合同的补充约定,并且是房地产开发企业在商品房交付使用时向购房人提供的对商品房住宅承担质量责任的法律文件和保证文件。
16、烂尾楼:指未能完成施工中途停建的楼盘。造成楼盘烂尾的原因主要有资金不足、设计、施工存在严重质量问题,非常建设等。
17、楼花:指已经动工建造,但尚未建成的楼宇、房屋。即指图纸上的楼宇,处于建筑施工的最初阶段,离交房时间长,价格优惠,买了后又可转卖,赚差价。
18、炒楼花:买卖尚未建筑好的房屋。(现在政府有规定,商品房5年内不许转让,交5%的营业税,为了控制炒房)
19、期房:指具备预售条件,尚未竣工交付使用的商品房。(价格低、选择空间大、户型齐全、可监督建筑材料、质量)
20、现房:指已经工程质量监督部门验收,并取得质量合格证明文件,可以交付使用的商品房。(即买即入住、价格高、户型过时、选择空间不大)
21、经济适用房:指以微利价出售给广大中低收入家庭的商品房(带有社会保障性质的商品住宅,是有经济性和适用性)。不是人人可以买到,必须符合当地政府所规定的条件,经过排号购买。长沙房口,25岁以上,65㎡以内以经济价购买,65㎡以外以商品房价购买,5年后才能转卖)。
22、二手房:办好产权证,进行再次转让的房屋。其他如:公房、私房、集资房、廉租房、安置房等福利房。
23、诚意金:指商品房在未取得预售证之前,开发商收取客户的可退回的款项(一般可以获得开发商的折扣承诺)。
24、定金:指当事人约定由一方向对方付给的作为债权人担保的一定数额的货币(能担保债权人的作用)不能返还。
25、订金:不能担保债权人的作用,能返还。
26、玄关:登堂入室的第一张门进去的地方,开门区域。
27、公寓:指2层以上,供多户人家居住的建筑。
28、纯办公楼:专为各类公司日常运作提供办公活动的大楼。
29、综合楼:居家、办公、商场、集合一体的大楼。
30、商住住宅:SOHO,居家,办公于一体。
31、别墅:指在郊外或风景区建造的供休养,住宿用的花园住宅,TOWRHOUSE(联体别墅、单排别墅)。
32、SHOPPINGMALL:一站式购物,集购物、娱乐、休闲为一体的这么一个商业区域,起源于美国(也称第六商业业态)。
33、物业管理:指由专业公司或机构,接受业主(或使用人)的委托,对物业实话专业化管理,并向业主(或使用人)提供高效、周到服务的行为。
34、物业管理内容:对房屋及其附属设备管理、维修;对房屋区域内的清洁卫生、安全保卫、公共绿化、公用设施、道路等实施管理;向业主提供其他综合性或特约的服务等。物业管理属社区管理范畴。
35、业主大会:指由物业管理区域内全体业主组成的,对本区域内物业管理具有决定权的组织形式。
36、业主代表大会:由物业管理区域内业主代表组成的对本区域内物业管理具有决定权的组织。
37、业主委员会:由物业管理区域内业主代表组成,代表全体业主对物业实施自治管理的组织,由业主代表大会或业主代表选举产生。
38、一次性付款:指购房户在购买商品房时,在没有享受政策性贷款的情况下,将全部买房款一次性付给售房单位的付款方式。
39、分期付款:购房者签约后,将购房款分成若干比例,按时间段或按施工进度分批交纳房款(针对期房),交房时,款项全部付清。
40、银行按揭:指以购房合同或房屋产权作抵押获得购房贷款的方式。即购房者在购房时,向银行提出担保的质押文件,在银行审核通过后,取得房屋总价的部分贷款,依抵押约定,按期按时间段向银行偿还贷款本息,并提供房地产作为偿还贷款的担保(一般的购房合同和产权证作为抵押,住房:七成二十年;门面:五成十年或六年十年)。
41、公积金:“全称住房公积金”,指城镇住房制度改革中,国家机关、国有企业、城镇集体企业、外商投资企业、城镇私营企业及其他城镇企事业单位及其在职职工按国家规定缴存的,专项用于住房消费的资金(门面不行)。缴存比例:均不得低于职工上一年度月平均工资的5%,有条件的城市,可以适当提高缴存比例;缴存方式:一是由职工个人缴存;二是由职工所在单位缴存;
42、个人住房公积金贷款:指参加了住房公积金制度的职工,在购买、建筑、翻建和大修自住住房时,因资金不足愿以新购或其他住房产权作抵押而向住房公积金管理中心申请的贷款。
43、契税:指房屋所有权发生变更时,就当事人所订契约,按房价的一定比例,向产权承受人征收的一次性税收(普通住宅:2%、非普通住宅:4%)。
44、公共维修基金:指住宅、楼房的公共部位和公共设施设备的维修养护基金(普通住宅:2%;电梯房、门面:3%)。
45、生地:指未经开发,尚未开成建设用地条件的农地或荒地。
46、起价:即“起步价”是指物业所有房源中的最低销售价格(一般指户型、朝向、格局不好的楼房价格,各层的差价几十~几百元)。
47、基价:即“基础价”指经过核算而确定的每平方米商品房的基本价格。是针对房地产定价方法而言的,与起步价没有关系(楼层、朝向不同价格也不同)。
48、均价:即物业的平均销售价格,将本物业各套房子的销售价格相加之后的和除以各单位建筑面积的和数,即可得出每平方米的均价)。
49、成本价:指住房制度改革中,出售公有住房时按照建筑公有住宅的平均成本测定的价格。
包括:A、征地和拆迁补偿费;B、勘察设计和前期工程费;C、建安工程费;D、住宅小区基础设施建设费;E、管理费;F、贷款利息;G、税金;
二、建筑基础知识:
1、三通一平:是指在土地开发时进行的通水、通电、通路、土地平整。
2、七通一平:给水、排水、电力、通讯、燃气、热力、道路通和土地平整。
3、占地面积:红线范围内的面积。
4、建筑面积:指建筑物外墙(柱)勒脚以上各层外围水平投影面积之和,包括阳台、挑廊、地下室、室外楼梯等。
5、销售面积:指商品房按套出售,其销售面积为购房者所购买的套内建筑面积与应分摊面积的共有建筑面积之和。
6、使用面积:指住宅各层面平中,直接供住户生活使用的净面积之和(在住房买卖中,一般不采用使用面积来计算价格)。
7、公摊面积标准:指商品房销售中应分摊计入销售面积的商品房中公共建筑空间的面积,由两部分组成:一)室内外楼梯、内外廊、公共门厅、通道、电梯、配电房、设备层、设备用房、结构转换层、技术层、空调机房、消防控制室、为整栋楼层服务的值班警卫室,建筑物内的垃圾房以及突出屋面有围护结构的楼梯间、电梯机房、水箱间等;二)套单元与公用建筑空间之间的分隔以及外墙(包括山墙)墙体水平投影面积。
公用建筑面积分摊系数:公用建筑面积/套内建筑面积之和。
8、实用面积:建筑面积扣除公共分摊面积后的余额。
9、计租面积:住宅用房按使用面积计算,非住宅用房按建筑面积计算。
10、套内建筑面积:指商品房套内各部分建筑面积的总和。
套内建筑面积=套内使用面积+套内墙体面积+阳台建筑面积
套内建筑面积=套内使用面积/标准层的使用面积系数
11、容积率:总建筑面积/总用地面积(多层容积率大致为3,高层为5,超高层为7,别墅为0.3-0.45左右、容积率越低,居家环境越好、单价高、品质高;容积率越高,单价低、品质低)
12、建筑密度:基底面积之和/总占地面积*100%
13、绿化率:指项目规划建设用地范围内的绿化面积与规划建设用地面积之比。
公式:植被垂直面积/占地面积*100%
14、绿地率:所有住宅各类绿地面积与住宅总用地面积的比例。新区建设中不应低于30%,旧区改造时不宜低于25%(不包括屋顶、晒台的人工绿地)。
绿化覆盖率>绿化率(绿化所占面积)>绿地率
15、得房率:套内建筑面积/套建筑面积(销售面积)之比
套内建筑面积=套内使用面积+套内墙体面积+阳台建筑面积
套建筑面积=套内建筑面积+分摊的公用建筑面积
16、开间:住宅房子的横向宽度。进深:住宅的实际长度。
17、层高:指下层地板面到上层楼面的高度,包括楼板厚度,以米为单位。
18、净高:指层高减去楼板厚度的净剩值,即楼板上表面至上层楼板下表面的距离。
19、绿地面积:指能够用于绿化的土地面积,不包括屋顶绿化、垂直绿化和覆盖土小于2平方米的土地。
20、跃层式商品房:上、下两层楼,客厅为两层高,没有封。
21、复式楼:楼梯连接两层,客厅只有一层高。
22、错层:房内高度不一至,一米以内分离。
23、砖混结构:由砖和混凝土组成,承重墙(四面不能动,梁柱都不能动)。
24、框架结构:指以钢筋混凝土浇捣成承重梁柱,适合大规模工业化施工,效率较高,承重墙在梁柱,墙面可以自由打通。其次还有:砖木结构、钢筋混凝土、框简结构、钢体结构等。
25、房屋的耐用年限:指房屋能够维持正常使用的年限,与设计的标准、建筑的材料、施工质量、使用状况、维护保养相关。
钢筋结构:60-80年砖混结构:40-60年砖木结构:30-50年其他:15年以下
26、土地计量单位:
1平方公里=100万平方米(km2)1公顷=1万平方米(hm2)
1公顷=15亩1亩=667平方米
27、住宅的楼层划分的规定:
低层住宅为:1-3层多层住宅为:4-6层中高层住宅:7-9层
高层住宅为:10-30层超高层住宅为:40层以上
三、房地产开发相关知识:
1、房地产开发:在依法取得土地使用权的土地上按照使用性质和要求进行基础设施,房屋建筑的活动。它包括从定点选址到交付使用的全过程,由征地与拆迁安置、规划设计、供水、排水、供电、通电讯、通道路、绿化、房屋建设等多项内容组成。
2、土地开发:将生地(不具备使用条件的土地)开发成可供使用的土地。
3、房屋开发:由买得土地使用权的发展商,对土地进行平整,修路铺设上下水管道及热力网,然后建造各类房屋以及公共设施。
4、房地产二次开发:指先将生地开发成熟地(具备使用条件),然后再进行拍卖和出租,由买地者去建造房屋。
5、房地产一次开发:一次性边土地、房屋开发完成。
6、能源系统:包括供电、供热、供气(煤气、天然气、石油液化气)等设施。
7、给水、排水系统:包括取水工程、输水工程、净水工程、配水管网(上下水道),排水管网(下水道)、污水处理、排放工程。
8、土地国家所有权:指作为土地所有者的国家,对自己所有的土地依法享有占有、使用、收益和处分的权利。
9、土地集体所有权:指农村劳动群众集体经济组织,在法律规定范围内对自己所有土地享有占有、使用、收益和处分的权利。
10、房屋的所有权:对房屋全面支配的权利,包括:占有权、使用权、收益权、处分权。
11、土地所有权:指含有法律意义上和经济意义上的所有权双重含义。
法律意义:土地所有者将土地当成自己的财产,并将其实行占有、垄断、拥有对土地支配的权利。
经济意义:指土地所有者凭借对土地的垄断获得一定的经济收入的权利。
四、其它内容须知:
1、办理银行按揭合同需出示:
1)个人身份证及复印件各3份,结婚证或流动人口未婚证明;
2)首期购房款(不低于30%,二次购房者首付不低于40%)购房人已付购房款收据原件及复印件;
3)购房者或配偶单位的工资收入证明;
4)与开发商签订的购房合同;
5)开户银行开户的活期存折并含有3个月的按揭款;
6)个人住房借款合同,借款借据;
7)委托银行扣收购房房款协议书;
8)住房抵押承诺书;
9)贷款申请书。
2、办理银行按揭需交的费用:
1)保险费(保险费率1-10年0.5‰、11-20年0.45‰贷款额)(交保险公司);
2)抵押费,贷款额3‰(交房地产局);
3)律师见证费,贷款额1.8‰(交律师事务所);
4)备案登记手续费,每份合同20元(交房地产局);
5)印花税,每份合同10元(交房地产局);
6)按揭资料费,每份合同40元(交银行);
3、公积金提取条件:符合以下条件的可以一次性提取本人住房公积金帐户内的存储余额。
1)职工购买、建造、翻修、大修自住住房;
2)职工离、退休时;
3)完全丧失劳动能力,并与单位终止劳动关系的;
4)户口迁出所在的市、县或者出境定居的;
5)偿还购房贷款本息的;
6)房租超出家庭工资收入的规定比例的。
4、公积金贷款是有限额规定的:
1)贷款额不能超过25万元的最高上限;
2)贷款额不能超出你住房公积帐户储存余额的5倍;
3)贷款额不能超出总房款的70%;
5、预售房的条件:
1)土地出让金已缴清,取得国有土地使用证;
2)取得建设用地规划许可证;
3)投入工程总建设资金达到20%以上(不含土地出让金);
4)施工进度已明确,交房日期已明确;
5)竣工验收前;
五、附加内容(房地产营销培训基础知识):
1、房地产销售行业:
它是一个精彩、特殊的、无处不销售、人人都使用、升值空间大、有趣、自由、有成就感、锻炼人,上不封顶收入的一个较灵活、广泛、综合性的一个行业。
2、有正确的价值观:价值观---信念---期望---态度---行动目标
3、行动过程:执行---核心价值---中程目标---短期目标---每日工作计划
4、忌语:大概不能肯定的语言
五声四语:迎客声---称呼声---致谢声---送客声
反对四语:蔑视语---烦躁声---否定语---斗气语
5、建筑面积必须高于2.2米(低于2.2米的车库,杂屋没有产权),建筑如配套游泳池、车库等不算面积);
6、朝向:一般以客厅阳台的朝向为准。
7、商圈:称之购买圈或商势圈,指在一定的经济区域内以商场或商业区为中心向周围扩展形成的辐射力量,对顾客吸引而形成的一定范围或区域。
分为:核心商圈:以大型商场为中心,人口占60-80%,价格高;次级商圈:拥有客户占20%;
边缘商圈:分布密度小,产品低档,价格低。
8、商业饱和度:是测量一个商圈内的商业物业的供求量的一个重要方式。
IRS:商业饱和度
C:主要客户指数
RE:每一个顾客平均购买量
RF:商圈内的经营面积
IRS=(C*RE)/RF
9、严重影响房地产价格因素:
1)价格组成=土地成本价格+建安成本+利润+管理费用(国民生产总值,DTP指数、房地产政策、法律法规);
2)影响房地产因素:开发商实力、经济态度、地段、交通、周边环境、配套设施、绿化、升值、政府规划、潜力、客户定位、产品设计、物业管理、市场供求、品牌、销售技巧、自然环境不可复制;
3)影响每一栋单位的价格因素:楼层层高、户型、朝向、景观、外围功能、面积、建筑结构;
4)多层:7层以下,金三银四铜五六;高层:7层以上,越往高上走价格越高,越往上景观越好;
5)影响商铺:升值潜力、地段、交通、配套、市场、定位(业态定位)、消费群、品牌、人流量、物业管理。针对每一个铺位影响因素:位置、面积(面积小、面积消费群体多,价格高)、楼层、铺型(柱、开间、阻挡)、配套设施。
10、递名片技巧:
1)当你与客户谈判时,客户感兴趣时,你递上名片客户对你印象深,认知度;
2)当客户快要起身时,递上名片,你的客户会准确记住,认知你;
11、递资料准确时间:
1)当你将重要内容讲解完毕,再递上资料,请他了解;
2)当你递名片时,一起递给他;
3)如果客户已拿了资料时,你顺着他资料内容一条条讲解下去,然后合上递给他;
12、市场调查目的,其实反映市场现状:
1)了解竞争楼盘;
2)了解消费需求;
3)了解消费行情;
4)为策划、销售提供依据
具体调查内容:
a)产品调查:规模、占地面积、铺位、功能定位(做什么,业态定位)、铺型、配置(电
梯、空调、水电表)、装修、物业管理、经营时间;
b)配套调查:内部配套、周边环境配套、功能配套;
c)价格调查:销售价格、均价、不同楼层差价、付款方式、租金价格(临街与内街价格);
具体调查方式:问卷、街访(入户走访、单层、左手入门、双手右手入门)、专家访谈、市场客户访谈;
具体调查对象:市场、商城、专业街、步行街、专卖点
具体配套调查:医院、银行、超市、休闲场所、酒店、学校、交通(人流、车流、公交车、长途车)
13、风水与房地产营销:南向房间特征(通风时间长、日照时间长、不易发霉、冬暖夏凉)。
风水宝地:依山伴水,龙脉(建筑物的朝向的阴阳取舍。阴:山之南、水之北;阳:山之北、水之南;龙椅之地:绿色是生命色;中纬度:夏吹东南风、西南风)
14、建筑颜色:红色---象征权利、富贵、尊严、红色镇邪。
15、使用率=实用面积/建筑面积
小高层的使用率小于多层:60-70%
高层的使用率小于小高层:80%以上
写字楼的使用率小于高层:50-60%
16、产权证:土地使用证、房产证(集资房是没有产权证的,福利房是有产权证,可以转让,在国家允许的年限内可以转让、出租)。
17、绿化:是生态内的非常小的一个方面。
环境:周边所表现的元素:生态、人文、地理、交通。一个楼盘的环境包括:绿化、交通、密度、配套设施、日照、朝向。
18、价格:昂贵、便宜
1)加权比较法:在价格上及对手比较加X%或减X%,不超过1;如对方1000元/㎡+1000元/㎡*10%=1100元/㎡;反之1000元/㎡-1000元/㎡*10%=900元/㎡;
2)盈亏平衡法
3)经验评估法:根据以往经验来测标,价格阻力位针对顾客来说,内容包括:均价、起价(作用,降低入市门槛、一般是低开高涨,只对于大型楼盘、而小规模楼
盘不宜采用低开高走)、最高价(最好的楼层肯定是最高价)、垂直价格(一般金三银四铜五铁六,超过27米空气质量越差)、价格的可塑性(有
品牌价值的空间)、目标价格(自我实现的价格)。
19、价格构成:
1)土地出让金:三通一平、拆迁、安置费、勘查设计费(了解地质结构);
2)公共基础设施费(统称土地成本);
3)建安成本(土建成本);
4)管理成本(包括营销预算成本);
5)融资成本(利息);
6)税收费用;
7)利润;
20、销控:
内部认购:二八理论:好5%、次15%、差80%;三七理论:好10%、次20%、差70%;
公开销售:用于调节控制销售进度,先销次的,留下一部分好的,用于最后冲刺。
包括:强销期(寻找热销势头)、持销期(也叫调整期,合理安排)、冲刺期、扫尾期。
21、建筑品质:
1)施工方的资质;
2)图纸:设计方案,采光通风是否符合国家规定,规划、设计院进行调查,研究;
3)建筑材料:质量好坏,是否环保产品?
22、金字塔型:
小盘:一般以快打慢,先奇制胜,制造与众不同的特色;
营销手法:营销突围,侧翼进攻,通路卡位,最多客户消费场所。如俱乐部、酒吧、歌舞厅、高尔夫、通过派人进入上述场所与期接触、吸引顾客、实行营销,节省广告费及其它费用。
23、项目定位:了解最大化的消费群体---再了解消费型态---得出需求---市场产品
24、国家标准容积率:
1)别墅1-0.8,一般是0.8;2)高档小区2-2.5;
3)中档小区3;4)低档小区4;
一类小区:公共基础设施布局完整,整个环境良好;
二类小区:公共基础设施布局完整,环境不良好;
三类小区:公共基础设施布局不完整,环境差
几何的堆砌,让诗意和简约相遇,家的基础基调俨然已经形成了,背后的浪漫故事正在上演着。


楼梯区完全被几何占据,自然光恰到好处的平衡,进一步呼应着空间的心境,衔接了生活和居所。




在娱乐空间的旁侧便是一处科技屏幕打造的高尔夫室,十分的现代化。

克制形态 感受至上
尽享时光声色
红色桌面被暖色的灯光调和成了爱马仕橙色,更显空间整体的品位和质感,网状的藤编座椅略带自然的气息,张扬之中有着内敛的氛围。


混乱的涂鸦打破了常规的束缚,让简约兼具了更多的力量感。


私密场域依旧保持静谧,黑白色基础上搭配了更多的色彩,例如深棕、浅紫等,艺术品的衬托深邃迷人,热络了家的氛围。




整个空间以静、雅、柔传达着家的精气神儿,黑白的交错,棱角的柔和,都是家的本色,都是极简的象征。

华发仁恒苏河世纪售楼处电话:400-8118-224
【售楼处预约热线】(一对一热情服务)
看房请务必致电与销售确认时间,仅预约客户可享受开发商内部优惠,专属新房预约奖!
华发仁恒苏河世纪售楼处电话:400-8118-224【售楼中心热线】华发仁恒苏河世纪营销中心热线400-8118-224华发仁恒苏河世纪售楼处地址400-8118-224,楼盘项目全面介绍,本电话为开发商提供线上预约售楼电话,楼盘项目全面介绍(包含楼盘简介,均价,房价,现房,期房,别墅,叠墅,大平层,价格,楼盘地址,户型图,交通规划,备案价,备案名,项目配套,样板间,开盘时间,认筹时间,楼盘详情,售楼处电话,最新消息,最新详情,周边配套,一房一价,最新进展等详情咨询)楼盘详情丨价格丨更多优惠丨机不可失丨欢迎致电丨诚邀品鉴!售楼处位置丨特价房丨工抵房丨剩余房源丨户型图丨最新消息丨免责声明:将文章内容综合来源于网络、只作分享,版权归原作者所有!!如有侵权,请联系我们,我们第一时间处理如有问题欢迎来电咨询,专业一对一热情服务,让您用专业眼光去买房。如果您想了解更多楼盘详情,欢迎提前预约拨打华发仁恒苏河世纪售楼处电话400-8118-224
声明:本文由入驻焦点开放平台的作者撰写,除焦点官方账号外,观点仅代表作者本人,不代表焦点立场。


