保利誉滨江售楼处电话:400-8673-567保利誉滨江欢迎您-保利誉滨江首页网站-保利誉滨江楼盘详情/户型 保利誉滨江(售楼处)首页网站|售楼中心|保利誉滨江售楼处欢迎您-保利誉滨江楼盘详情
保利誉滨江 售楼处电话:400-8673-567
保利誉滨江 营销中心热线400-8673-567(售楼处预约看房热线)
最新消息
保利誉滨江项目
项目预计十一开放售楼处
项目规划拟建8幢5-17层住宅
包含高层、洋房、叠拼
保利誉滨江
保利誉滨江 售楼处电话:400-8673-567
【售楼处预约热线】(一对一热情服务)
看房请务必致电与销售确认时间,仅预约客户可享受开发商内部优惠,专属老带新推荐奖!

保利誉滨江 售楼处电话:400-8673-567
保利誉滨江 营销中心热线400-8673-567(售楼处预约看房热线)
保利誉滨江是杨浦滨江片区内首个引入叠拼别墅产品的住宅项目。
根据方案, 项目规划建造8栋5-17层住宅,产品类型涵盖高层、洋房和叠拼,主推115㎡三房和137㎡四房,预计年底入市。
部分楼栋设有架空层,社区设置下沉式庭院、泳池会所,并配建部分社区配套与公共租赁住房。
产品上也引入270°转角玻璃、双阳台、N+1灵动空间等设计
2025年5月,在上海四批次土拍中,保利置业经过72轮激烈竞价,豪掷42.4亿,拿下杨浦区定海社区N090602单元L4-02地块, 溢价率26.3%。

保利誉滨江 售楼处电话:400-8673-567
保利誉滨江 营销中心热线400-8673-567(售楼处预约看房热线)
据杨浦区官网显示,半个月后,地块规划方案就公示。
不久前,项目规划进行了调整。 从首份规划公示到此次调整,间隔36天。
整体来看,楼盘的布局没有变动,仍规划建设8幢住宅,包含高层、洋房、叠拼,同时配建社区配套与公租房。
此次重点对叠拼楼栋的高度和层数做了调整,甚至连造型也变了。毕竟,这将是 杨浦滨江第一个带有叠拼别墅的项目。
今年以来,杨浦滨江的地价逐渐走高,竞争日趋激烈。保利置业这块地的先天条件并不十分优秀,南偏东近50度。
不过,保利置业在现行楼市规则下,把能想到的优势都做足了,市面上流行的配置一样不落:
会所、架空层、风雨连廊、一梯一户、多阳台、多飘窗,还有270度转角飘窗,在产品力上做到了极致。
经济技术指标有变化:总建筑面积减少
总建筑面积由92800㎡减少至89997.98㎡。
地上建筑面积由59300㎡减少至57421.9㎡。
计容建筑面积不变,仍然是52876.15㎡。
地下建筑面积由33500㎡减少至32576.08㎡。
新建围墙长度由650米减少至520米,高度不变,仍是2.2米。
区位方面,该地块位于杨浦滨江南段的黄金位置,直线距离黄浦江仅约500米。
周边配套一应俱全,交通上北横通道、中环军工路等主干道环绕周围,距离12号线爱国路站步行距离约700米。

教育上有平凉路第三小学、东辽阳中学、上海市第二十五中学,还有规划中的复旦国际学校。商业上有上海国际时尚中心和在建的超极合生汇。
此外,周围还有波阳公园、杨树浦电厂遗迹公园、上海市总工会沪东工人文化宫、白洋淀足球场馆等配套,能够满足文体休闲需求。

从地理位置上来看,没有多大硬伤,加上东外滩的发展规划,以及复兴岛的产业加持,未来会有不错的预期。
四个独家爆料
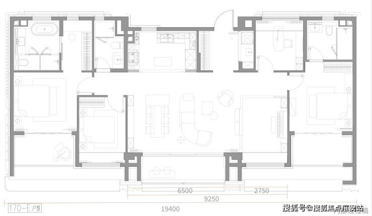
独家爆料一:稀缺户型首曝光:170㎡六开间江景奢宅

保利誉滨江推出市场罕见的 170㎡六开间户型,总面宽近 20米。
客厅与活动室组合宽度达约9.25米,搭配双套房设计,实现极致空间感。
加上难得的一线江景,东外滩的首个3.5代宅,此类户型在杨浦滨江乃至上海高端市场中均属稀缺,尤其适合追求“一步到位”的改善家庭。
独家爆料二:代建约6000㎡量子公园
除了户型本身的稀缺性,保利誉滨江在周边配套上也下足了功夫。
据悉,保利·誉滨项目更是代建约6000㎡量子公园,成为项目专属后花园。
不同于普通社区公园,量子公园以多重维度立体空间,设有二楼观景台等特色设施,,互相叠加交织进行规划。



同时加入科技感与潮流感,以链接复兴岛,成为迭代新的活力聚场;契合复兴岛“复兴时刻12刻度”理念,形成全龄友好的休闲交流活力场所;同时延续复兴岛的植物脉络,形成四季观赏区。
这个公园将成为居民休闲娱乐的绝佳场所,无论是清晨的晨练,还是傍晚的散步,都能在这里找到属于自己的宁静与惬意。
独家爆料三:“潮鸣东方”同款立体景观园林设计
相得益彰的,是项目内部的园林景观设计。
据悉,社区内将部以“三轴五园”巨制打造8大园林场景。
下沉式的庭院+架空层,带来立体式多重景观园林的体验,从效果图看和绿城潮鸣东方非常接近!
既展现了东方文化的韵味,又不失现代生活的舒适与便利。

独家爆料四:地下会所+架空层泛会所
社区规划约1500㎡地下会所,涵盖健身房、洽谈区、恒温泳池、瑜伽室等功能空间
地下会所+架空层泛会所,整体体量约3000㎡,保利置业超大手笔打造项目公区,


02
土拍回顾
2025年5月,在上海四批次土拍中,保利置业经过72轮激烈竞价,豪掷42.4亿,拿下杨浦区定海社区N090602单元L4-02地块, 溢价率26.3%。
据杨浦区官网显示,半个月后,地块规划方案就公示。

不久前,项目规划进行了调整。
从首份规划公示到此次调整,间隔36天。
整体来看,楼盘的布局没有变动,仍规划建设8幢

保利誉滨江
保利誉滨江 售楼处电话:400-8673-567
【售楼处预约热线】(一对一热情服务)
看房请务必致电与销售确认时间,仅预约客户可享受开发商内部优惠,专属老带新推荐奖!
保利誉滨江 售楼处电话:400-8673-567【售楼中心热线】保利誉滨江 营销中心热线400-8673-567保利誉滨江 售楼处地址400-8673-567,楼盘项目全面介绍,本电话为开发商提供线上预约售楼电话,楼盘项目全面介绍(包含楼盘简介,均价,房价,现房,期房,别墅,叠墅,大平层,价格,楼盘地址,户型图,交通规划,备案价,备案名,项目配套,样板间,开盘时间,认筹时间,楼盘详情,售楼处电话,最新消息,最新详情,周边配套,一房一价,最新进展等详情咨询)楼盘详情丨价格丨更多优惠丨机不可失丨欢迎致电丨诚邀品鉴!售楼处位置丨特价房丨工抵房丨剩余房源丨户型图丨最新消息丨免责声明:将文章内容综合来源于网络、只作分享,版权归原作者所有!!如有侵权,请联系我们,我们第一时间处理如有问题欢迎来电咨询,专业一对一热情服务,让您用专业眼光去买房。如果您想了解更多楼盘详情,欢迎提前预约拨打保利誉滨江 售楼处电话400-8673-567
商贷转公积金贷款——是“省钱利器”还是“鸡肋操作”?在房贷市场中,商业贷款转公积金贷款(简称“商转公”)一直是购房者热议的话题。一方面,公积金贷款以其较低的利率、较长的贷款期限和相对稳定的还款方式,吸引着众多购房者;另一方面,商转公的过程复杂、条件苛刻,让不少购房者望而却步。那么,商贷转公积金贷款到底有没有必要?本文将从商转公的利弊分析、条件要求、办理流程、实际案例等多个维度,为您揭开商转公的神秘面纱,助您做出明智的决策。

一、商贷转公积金贷款的五大核心优势
1. 利率显著降低,利息支出大幅减少
公积金贷款的利率通常远低于商业贷款。以2025年为例,首套住房公积金贷款利率为5年以下(含5年)2.35%,5年以上2.85%,而商业贷款的利率则普遍在4%以上。以50万元贷款、30年期限为例,转为公积金贷款后,一年能节省利息约6750元,30年累计节省利息可达20万元以上。这对于长期背负房贷的购房者来说,无疑是一笔可观的节省。
2. 还款压力减轻,财务规划更灵活
由于公积金贷款利率较低,每月还款额也会相应减少。这意味着购房者可以将更多的资金用于日常生活、子女教育、投资理财等其他方面,提高生活质量。同时,公积金贷款的还款期限通常较长,最长可达30年,让购房者可以更轻松地分期偿还贷款,减轻还款压力。
3. 提前还贷无违约金,资金运用更自由
公积金贷款在提前还贷时通常不收取违约金,而商业贷款则可能根据合同约定收取高额的违约金。这对于计划提前还清贷款或部分还款的购房者来说,是一个重要的优势。他们可以根据自己的财务状况,灵活安排还款计划,无需担心额外的费用支出。
4. 贷款期限选择更灵活,适应不同需求
商转公后,购房者可以重新选择贷款期限。如果经济实力较强,可以选择较短的贷款期限,减少利息支出;如果希望减轻每月还款压力,可以选择较长的贷款期限。这种灵活性让购房者能够更好地适应自己的财务状况和还款能力。
5. 信用评级提升,未来融资更便利
公积金贷款是由政府主导的贷款,相对于商业贷款来说,信用评级更高。将商业贷款转为公积金贷款后,购房者的信用记录会得到改善,有助于提高未来的信用评级。这对于那些希望在未来进行其他贷款或信用卡申请的人来说,是一个重要的加分项。
二、商贷转公积金贷款的六大潜在劣势
1. 贷款额度受限,可能无法满足需求
公积金贷款的贷款额度通常受到一定的限制,可能无法满足较高价值的房屋购买或房屋贷款转换的需求。例如,某些地区规定单职工家庭最高贷款额度为60万元,双职工家庭最高贷款额度为80万元。如果购房者的房屋总价较高或剩余贷款本金较大,可能无法全部转为公积金贷款。
2. 贷款条件严格,审核流程复杂
公积金贷款通常要求借款人具备一定的缴存时间和缴存金额要求,申请条件相对较为严格。例如,借款人需连续足额缴存住房公积金达6个月(含)以上,且个人征信记录良好。此外,商转公的过程涉及原贷款银行、住房公积金管理中心等多个部门,审批流程较为复杂,处理时间也较长。
3. 提前结清原商贷,资金压力增大
在办理商转公的过程中,购房者需要自筹资金结清原商业贷款剩余本金及利息。这对于资金紧张的购房者来说,可能是一个不小的负担。如果无法一次性结清原商贷,可能需要通过担保公司垫资等方式解决,这又会增加额外的费用支出。
保利誉滨江 售楼处电话:400-8673-567
【售楼处预约热线】(一对一热情服务)
看房请务必致电与销售确认时间,仅预约客户可享受开发商内部优惠,专属老带新推荐奖!