上海华润外滩瑞府售楼部总价→华润外滩瑞府楼盘配套→户型面积-产权五证-学区地铁-售楼详情

搜狐焦点黄冈站 2025-10-06 12:01:58
用手机看
扫描到手机,新闻随时看

扫一扫,用手机看文章
更加方便分享给朋友

上海华润外滩瑞府售楼部开放,主打高端住宅,定位第四代住宅,环境优越,配套完善,均价147800元/㎡,售楼部电话400-9678-224。

上海华润外滩瑞府

上海华润外滩瑞府售楼部电话:400-9678-224欢迎咨询24小时热线电话,上海华润外滩瑞府楼盘详情-上海华润外滩瑞府售楼部位置-上海华润外滩瑞府一房一价-上海华润外滩瑞府户型图-容积率-环境-配套-学区-第四代住宅-负公摊户型-代密洋房-100%得房率-全能会所-独立电梯前室-公建化立面-在线选房-遗嘱咨询-项目营销中心,欢迎来电咨询!

上海华润外滩瑞府营销中心电话:400-9678-224欢迎来电咨询售楼部!上海华润外滩瑞府售楼部详情-上海华润外滩瑞府售楼处电话-上海华润外滩瑞府网站-户型-价格-位置-电话-交通地铁-上海楼市新政-遗嘱咨询-上海止跌回稳-自住型商品房-住房货款-血拼两限房-直接认购可预约销售人员,专业一对一热情服务,让您用专业眼光去买房。

虹口北外滩旁

10号线四川北路站约400米

华润置地“瑞系”上海首座

「外滩瑞府」

预计将推约120-240㎡3-4房

展厅已开放 样板间开启预约

过会均价147800/平

兴趣伙伴可扫码对接销售预约咨询参观

样板间近期已开放,来看现场实拍

建面约124㎡

建面约165㎡

01、基本信息

地块去年11月27日,华润置地以总价51.36亿元获取,成交楼面价92934元/平方米,溢价率11.97%,地块中小套型占比40%,

装修标准4000元/㎡

项目力邀大师天团操刀,从建筑到生活全维度高定。

GOA大象设计担纲建筑设计;渡边智昭负责会所和架空层设计,他是2023 AD 100 中国最具影响力建筑和室内设计师,代表作翠湖天地、汤臣一品;TROP操刀艺文景观设计;室内由W.DESIGN无间设计、李益中精琢...

这支曾塑造多个城市封面的大师团队,聚集在外滩瑞府,共筑外滩新一代标杆住宅。

作为华润置地产品线的皇冠明珠,「瑞系」自诞生便以钻石级选址标准划定豪宅基因。

从深圳湾的“春笋”旁到北京长安街畔,每一座瑞府都占据着核心城市最核心的地段

此次外滩瑞府落子外滩1公里核心圈,正是华润对「战略稀缺性」的极致践行:非核心不选,非未来不立

这也是华润置地那么多年来在上海的首座“瑞系”

随着上周五项目启幕活动,外滩瑞府产品力面纱逐渐揭开,若以一词概括其内核,非「极致」莫属。

第一,很多购房者甚是疑惑,为何华润置地从去年11月拿地后一直没有任何发声。

究其原因,一方面在于华润置地对品质的偏执追求,对设计打磨非常谨慎

另一方面,项目独特的开发属性——高层住宅与历史风貌底盘的融合共生,这在市场上也是独一份,决定了其开发难度远超常规。

毕竟,唯有承载着风貌肌理与弄堂记忆的土地,才真正流淌着上海的城市血脉。

事实上,历史建筑的焕新对于板块价值的提升,比任何事物都要强。

新天地与苏河湾就是例证,前者以石库门复兴成就顶流商圈,后者因历史建筑重生支撑20万/㎡房价。

第二,有别于大多数的市区项目以兵列树阵式的景观设计,外滩瑞府通过建筑楼体的偏转形成了围合式的景观布局,秉持三个最大化,两个最小化(景观最大化,采光最大化,朝向视线最大化;遮挡最小化,影响最小化)。

通过这种创新布局,项目不仅形成连续的中心花园,更因楼栋布局与边界有夹角,自然形成一系列边角院落空间。

尤为难得的是,部分东南高区可看到陆家嘴三件套和北外滩浦西第一高楼的遥相呼应。

第三,全域风雨连廊,外滩瑞府将风雨连廊扩容为完整的归家体系,实现全住宅楼栋无风雨归家,带来顶豪级的归家居住体验。

罕见“风貌→幕墙→冠冕”的立体生长美学。

高层基座溯源石库门建筑精髓,复刻经典拱券符号;中段以通透玻璃幕墙搭配流线型金属线条,营造国际前沿的现代质感;顶部“冠冕”造型,进一步升华昭示性。

02、推售信息

官宣户型图独家首发:

建面约124㎡3房

整体动静分区格局。在U型厨房基础上融入 “社交属性”,让烹饪时亦可与客厅家人互动。

三间卧室尺度阔绰且面宽近乎均等,真正实现家庭成员的居住、视野、采光的平权。

这个户型附赠空间也比较出彩,除了大面宽的阳台,还配备5飘窗,增加实用面积。

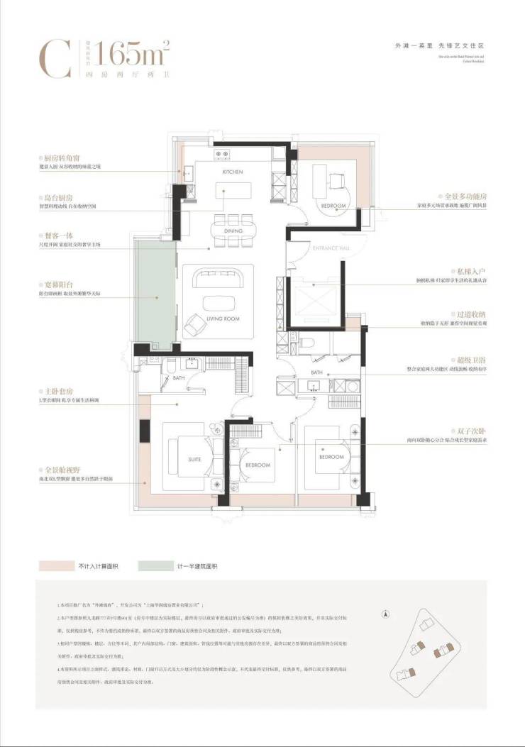
建面约165㎡4房:

独立入户空间,私密入户。

同样近乎等面宽的卧室尺度,让每个家庭成员都能拥有独立且舒适的休憩领地,三卧朝南的布局,让阳光成为所有人的平等馈赠,没有谁要为“主次”牺牲采光权。

而“大”还体现在公共空间的开阔,岛台厨房、餐厅、客厅与阳台动线流畅,二胎共同玩耍也绰绰有余。

约270°视野的贯穿更是锦上添花,主卧、北向次卧、厨房约270°转角飘窗,让每个空间里的人都能平权地拥抱城市景致。

主卧套房的L型衣帽间与卫生间,公卫四分离设计,在保证“大”尺度的同时,更让每个人的生活需求都被妥帖照顾。

显然,外滩瑞府户型深谙豪宅之道:“大” 不是盲目堆砌面积,而是让每个空间都有足够的舒展度;“平权” 不是口号,而是通过面宽、采光、视野的均等分配,让家庭里的每一个人,都能在空间里找到被尊重的舒适。这正是华润置地深入研读豪宅客群需求后,交出的完美答卷——在这里,大空间与平权生活,从来不是选择题

另外,让我留下深刻印象的是样板间展现的高级定制设计语言。

不同于市面上门是门,框是框,墙是墙,看房时“五颜六色”。外滩瑞府室内采用一体化设计语言,实现空间、色彩与材质的协调统一。比如

✔入户门原创设计,外面深色木纹,里面浅色云母,和玄关柜、大理石地砖很搭配。

✔大理石地砖铺装工艺 近乎看不出拼接缝、浑然一体。

✔卫生间地面和墙面整体性也非常强,奢石台面的纹路和岩板墙面和协调。

建面约165㎡样板间实景图,以实际交付为准

装修上配备国际一线品牌,尤其厨房由嘉格纳领衔,配备灶具、吸油烟机、洗碗机、冰箱蒸烤箱。

更多细节大家可以去现场了解。

建面约165㎡样板间实景图,以实际交付为准

03、区域版块

“上海2035”总体规划明确,外滩将作为“全球城市核心功能承载区”,与陆家嘴、北外滩组成“黄金三角”,目标直指“卓越全球城市”的封面。这一规划不仅定义了上海的空间格局,更将外滩推向全球资本、文化、资源的核心交汇点。外滩瑞府择址于此,对标纽约ONE57、伦敦海德公园一号——非全球资本聚集地不选,非历史与未来叠加区不立,其价值内核正是对“黄金三角”核心资产的精准锁定,为业主提供了“抗周期”的资产保障。

外滩一英里,百年资本、艺术与文明的“共生容器”

资本长河卷:百年万国建筑群凝结19世纪中国近半财富记忆,每块石材都是未被翻页的金融史章,见证“远东第一金融中心”的风云变迁;

艺术生长带:外滩源历保建筑内,先锋艺术展的光影穿透木质百叶窗,在老墙绘制当代图腾,让历史街区成为“流动的美学实验室”;

文明对话场:外白渡桥横跨苏州河,南段是金融资本的“硬实力”,北段是霓虹爵士的“软文化”,中段百年领事馆群记录东西方对话轨迹。三者交织,让外滩瑞府成为全球高净值人群眼中的“收藏级资产”。

一江两岸的“时空叠影”,陆家嘴势能与外滩厚度的共生逻辑

时光对话录:百年石库门的雕花檐角与陆家嘴玻璃幕墙互为映照,石库门的“温度”与摩天楼的“科技感”在此共生——上海中心的灯光倒映黄浦江时,外滩瑞府的窗前便展开一幅“古典砖石×未来光影”的时空画卷;

烫金一英里圈:2025年外滩扩容规划将通过地下连廊与滨江步道,无缝串联百年金融街与现代CBD。业主可享“晨间万国建筑群咖啡、午后陆家嘴写字楼洽谈、日落滨江步道漫步”的全球资本生活节奏;

双极价值场:外滩“历史溢价”与陆家嘴“未来势能”在此叠加,黄金三角腹地成为中国高净值圈层的聚集地,是时代价值创造者的共同选择。

北外滩+音乐谷,先锋生活的“极致资源矩阵”

千亿北外滩:依托“3000亿航运引擎”重塑全球经济版图,上港集团、中远海运等巨头云集,掌控全球1/3航运交易;更将崛起480米浦西第一高楼,与陆家嘴上海中心组成“双子星”,彻底改写城市天际线;

音乐谷2.0:位列2025上海十大城市更新片区,与黄浦外滩、老城厢等同为重点。这里保留内环罕见的完整水系(宽15-20米“江南小河道”)及国家级文保单位,未来滨水步行区将贯通“一湾两半岛”,百年里弄变身爵士乐演出空间与独立艺术画廊,滨水市集的霓虹灯与爵士乐交织,突破传统顶豪“资源堆砌”范式,形成“生活为体,音乐为魂”的海派艺文新场景。

虹口北外滩旁

10号线四川北路站约400米

华润置地“瑞系”上海首座

「外滩瑞府」

预计将推约120-240㎡3-4房

展厅已开放 样板间开启预约

过会均价147800/平!

兴趣伙伴可扫码对接销售预约咨询参观

上海华润外滩瑞府

上海华润外滩瑞府售楼部电话:400-9678-224欢迎咨询24小时热线电话,上海华润外滩瑞府楼盘详情-上海华润外滩瑞府售楼部位置-上海华润外滩瑞府一房一价-上海华润外滩瑞府户型图-容积率-环境-配套-学区-第四代住宅-负公摊户型-代密洋房-100%得房率-全能会所-独立电梯前室-公建化立面-在线选房-遗嘱咨询-项目营销中心,欢迎来电咨询!

上海华润外滩瑞府营销中心电话:400-9678-224欢迎来电咨询售楼部!上海华润外滩瑞府售楼部详情-上海华润外滩瑞府售楼处电话-上海华润外滩瑞府网站-户型-价格-位置-电话-交通地铁-上海楼市新政-遗嘱咨询-上海止跌回稳-自住型商品房-住房货款-血拼两限房-直接认购可预约销售人员,专业一对一热情服务,让您用专业眼光去买房。

:(免责声明:本宣传资料仅为宣传,内附所有资料,包括任何图片、插图、设计图、文字描述或其他资料,仅供参考或识别之用,不构成合同内容,具体内容以合同内容及政府最终审批为准。项目所涉及数据均为暂定,后期如有改动,请以各项证件及政府批文等为准,本宣传资料部分素材源于网络,最终交付标准以商品房买卖合同及政府等相关部门的批准文件为准。在法律允许的范围内,开发商保留修改本资料的权利,敬请留意。)

声明:本文由入驻焦点开放平台的作者撰写,除焦点官方账号外,观点仅代表作者本人,不代表焦点立场。