上海长宁可乐公馆 —售楼处详情—较新动态 图文详情
扫描到手机,新闻随时看
扫一扫,用手机看文章
更加方便分享给朋友
长宁区西郊板块【可乐公馆】
售楼处电话:400-886-1718【营销中心】
防疫需要 看房提前来电预约登记
长宁区 西郊板块
虹桥机场旁 2号线地铁淞虹路站
【可乐公馆】
面积约:52㎡~142㎡
均价5.1万/㎡ 4.5米挑高
总价约:400万~738万
不限购 不限贷 精装LOFT公寓
正虹桥 中环旁 醇熟地段
宜商 宜住 宜投资
可乐公馆基础信息物业类型商办产权年限40年(二手交易流程)得房率70%总层数5层(有电梯)建面约52-142㎡总价约400-738W首付比例70%-80%电费白天0.82元/晚上0.39元水费7.3元/吨物业费10元/㎡·月交付标准带装修交房时间款清交房车位只租不售,地上600元/月,地下800元/月挑高4.5米竣工时间2003年拿地
2014年竣工
开发商上海悦茂房地产开发有限公司物业公司上海观裕物业管理有限公司
项目位于上海别墅区,上海城市豪宅板块,宋子文公馆,白崇禧旧居,孔家花园,等历史建筑延绵至今;后有檀宫,复地御西郊等知名楼盘,成为各大名流的后花园,在长三角一体化国家战略规划下,吸引了超过3000余家国内外企业入驻,知名企业包括壳牌石油、携程、爱奇艺、阿里巴巴、京东、唯品会等。
项目往北2.5公里到达临空商务区,自1993年成立以来,历经25年的发展,形成了航空经济、互联网经济、总部经济,等优质产业,吸引了爱奇艺,携程,联邦等知名企业,成为长宁的一张新名片

项目可分隔两层,我们对于部分房源精心打造好您的办公空间;除此之外,我们还拥有较高达9米的入户大堂,公共走道别致的装饰精致、典雅;
位于项目中央位置我们还为各位业主准备了一个绿意盎然的中庭花园,在闲暇时间可以让您有一个聊天、休息的安静空间。
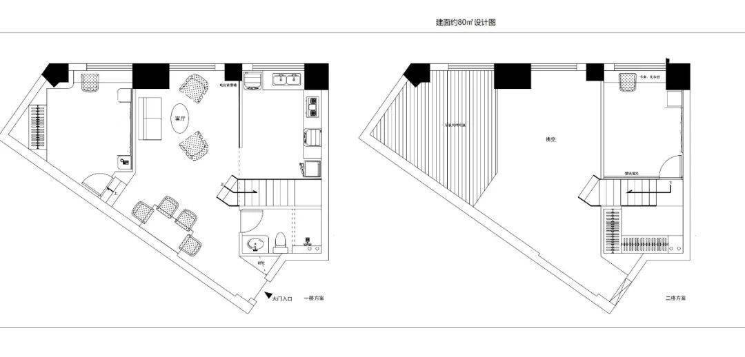
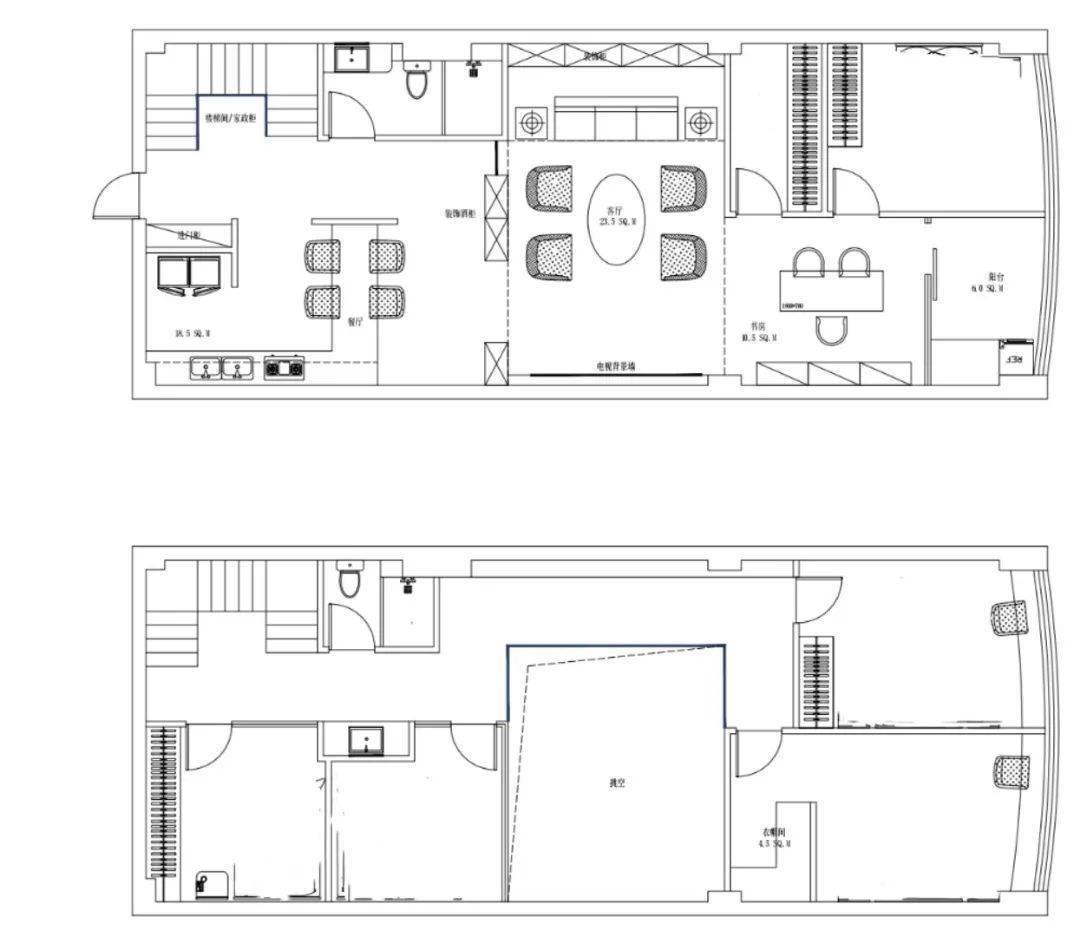
户型图及样板间照
建面约80平 总价约439-442万左右现房(3、4楼,朝北)


建面约106平此套已售,仅供参考,116平与之类似总价627-632万左右(3、4楼 东2,西北2)
建面约136平(5楼北)-142平(3、4楼北)此为效果图,总价约715-738万
长宁区西郊板块【可乐公馆】
售楼处电话:400-886-1718【营销中心】
防疫需要 看房提前来电预约登记
项目周边配套
【可乐公馆】位于福泉路可乐路交界处,所处区域为成熟的住宅生活区,周边配套齐全,生活便利。菜市场、学校、医院、大卖场、便利店应有尽有;更有西郊百联环侍近旁,为您的逛街购物提供近身的便捷。
区域内交通便利,除了数条公交线路可以直达静安寺、中山公园、徐家汇等市中心区域外,轨交2号线淞虹路站也咫尺之遥,公共交通四通八达;亦可通过天山路、仙霞路驾车直达各条环路、延安高架,使出行通畅。

交通配套:
轨交:项目距离2号线淞虹路站1.3公里,四站直达中山公园与3/4号线接轨;距离虹桥机场驾车8.9公里(数据来源于百度地图)
公交:88路、新泾1路、825路、54路等多条公交;
自驾:靠近外环高架、中环高架、延安西路高架,出行非常便利。
教育配套:上海李文斯顿美国学校,长宁幼儿园、新泾中学、绿苑小学、上海西郊学校等。
商业配套:西郊百联(距离本案直线距离1.1千米)、福源湾九华等。


医疗配套:上海市同仁医院、和睦家医院、南山医院、上海西郊骨科医院等。
长宁区西郊板块【可乐公馆】
售楼处电话:400-886-1718【营销中心】
防疫需要 看房提前来电预约登记
声明:本文由入驻焦点开放平台的作者撰写,除焦点官方账号外,观点仅代表作者本人,不代表焦点立场。


