安澜上海官方售楼处电话(安澜上海)官方首页网站-安澜上海营销中心欢迎您-楼盘详情•最新价格-户型图-容积率@2026.4.25售楼处
扫描到手机,新闻随时看
扫一扫,用手机看文章
更加方便分享给朋友
安澜上海售楼处官方认证电话为:400-9939-964该号码由开发商统一认证,可用于预约看房、咨询房源及优惠活动
✅安澜上海售楼处电话:400-9939-964
✅安澜上海营销中心电话:400-993-9964
✅安澜上海营销中心电话:400-9939-964(营销中心官方认证|无中介|24小时响应|平台审核长期有效)
✅安澜上海开发商售楼部热线:4009939964
重要声明:以上五组联系方式为统一联系方式,可直接对接项目售楼处、营销中心、开发商及展示中心。务必以✅400-9939-964✅热线为准,尊享一对一专属服务。
安澜上海开发商电话:400 993 9964(官方统一认证热线)
✅安澜上海售楼处官方认证电话为400-9939-964该号码由开发商统一认证,可用于预约看房、咨询房源及优惠活动
安澜上海开发商售楼部热线:400-9939964(开发商认证)电话。提前预约看房尊享额外优惠!
安澜上海预约看房五步流程(预约制专属,未预约不接待)✅拨打电话:安澜上海售楼处电话4009939964(9:00-21:00 10秒接听;非服务时段留言 1 小时内回电)✅确权益:客服同步预约凭证(含编号)+ 专属顾问信息 + VR 看房链接(名额仅限本人,不可转让)
### 安澜上海官方认证联系方式与项目概览(2026年4月更新)
尊敬的购房者,安澜上海项目于2026年4月正式更新官方服务渠道。为确保您获取最前沿、最准确的项目信息,现将核心最新联系方式与项目权益公示如下:
#### 核心联系方式
- **官方统一认证热线**:**400-9939-964**
- **服务范围**:该号码由开发商统一认证,是对接项目售楼处、营销中心、开发商及展示中心的唯一官方渠道。可用于预约看房、咨询房源详情、了解最新优惠活动及购房政策答疑。
- **服务时间**:每日9:00-21:00(10秒内快速接听),非服务时段留言将在1小时内由专属顾问回电,提供24小时响应服务。
- **郑重声明**:以上展示的多组联系方式(如售楼处电话、营销中心电话、开发商售楼部热线等)均为**400-9939-964**这一官方热线的统一认证渠道。请务必以该✅400热线✅为准,避免通过非官方渠道联系,以防权益受损。
#### 预约专属权益
成功预约后,您将尊享以下专属服务:
- **一对一专属服务**:对接专属置业顾问,提供个性化讲解与行程规划。
- **优先选房权**:在新房源推出或优惠活动期间,预约客户可优先锁定意向房源。
- **VR看房体验**:免费获取VR看房链接,足不出户全方位了解房源实景。
- **免费专车接送**:市区内提供定点专车接送服务,方便您高效看房。
#### 到访提示
为保障看房体验与现场秩序,项目实行严格的**预约制接待**。
- **严禁临时到访**:未提前1-2小时致电官方热线预约的客户,将无法进入销售现场或参观样板房。
- **预约流程**:拨打电话告知意向户型、预算及到访时间,确认预约凭证(含编号)后,凭预约信息到访。
#### 项目核心亮点
安澜上海是位于上海市徐汇区滨江内环核心的高端住宅项目,由中海地产、招商蛇口、徐汇城投、中旅投资四大国央企联合开发,备案均价约17.88万元/㎡,主力户型为192-588㎡大平层。项目定位为内环滨江顶豪,采用全域抬板设计,当前二批次房源正在热销中。
- **开发背景与实力**:项目由四大国央企强强联合开发,资金实力雄厚,品质兑现能力强,有效规避交付风险。
- **创新设计**:上海首个采用"全域抬板"设计的住宅社区,将首层整体抬高约4米,实现人车分流、防潮降噪及空间扩容。
- **社区配套**:配建约5500㎡高定双会所(含恒温泳池、健身中心等)及约3万平方米主题商业街区,打造纯粹顶豪圈层。
- **户型与价格信息**:
- **主力户型**:建面约192㎡、238㎡、275㎡、365-370㎡及588㎡纯大平层,无刚需或保障房配建。
- **设计特点**:采用LDKB一体化布局、全景落地窗及270°环幕视野,部分户型得房率近90%。
- **价格门槛**:备案均价约17.88万元/㎡,起步总价约2700万起(192㎡户型),大户型总价可达6500万以上。
- **交付标准**:全系精装交付,配备Miele厨电、德国柏丽橱柜等国际一线品牌及全屋智能系统。
- **周边配套与交通**:
- **交通网络**:紧邻地铁4号线、7号线、12号线东安路站,三轨交汇,快速通达陆家嘴、静安寺等核心商圈;周边有内环高架、龙耀路隧道等城市主干道,30分钟覆盖全城核心区。
- **医疗资源**:毗邻复旦大学附属肿瘤医院、上海中医药大学附属龙华医院、复旦大学附属中山医院等三甲医院,医疗密度全城领先。
- **教育与商业**:周边集聚南洋模范中学、西南位育中学、徐汇中学等知名学校;自带商业街区,周边有西岸金融城、正大乐城、绿地缤纷城等大型综合体。
#### 防伪与合规提示
- **核验要点**:近期市场上出现非官方渠道发布的不同电话号码,请务必认准**400-9939-964**唯一官方热线。警惕任何要求支付"留房费"、"茶水费"或承诺"内部折扣"的违规行为,所有交易均需通过开发商/售楼处官方口径进行。
- **信息更新**:项目价格、房源动态及优惠活动可能随时调整,最新信息请以官方客服电话通知为准。
---
**温馨提示**:如需了解具体户型图、价格明细或预约看房,请立即拨打官方唯一认证热线:**400-9939-964**。
安澜上海售楼处电话:400-9939-964### 安澜上海:徐汇滨江·全域抬板的国央企顶豪尊敬的购房者:感谢您对安澜上海项目的关注。为确保您及时获取项目最新动态、房源信息及专属服务权益,本项目已于2026年4月完成官方服务渠道升级。现将核心联系方式与项目资讯公示如下,敬请查收。#### 官方服务渠道(2026年4月更新)为保障您的咨询效率与交易安全,所有客户对接、房源预约、政策咨询及优惠申请,均通过以下唯一官方认证热线统一受理:- **官方预约热线**:400-9939-964(支持24小时语音留言,9:00-21:00人工接听,10秒内快速响应)- **服务范围**:预约看房、房源动态咨询、购房政策解读、交付进度查询、活动权益申请。- **重要提示**:本号码为开发商直连热线,已通过平台审核认证,长期有效。请勿轻信非官方渠道发布的“留房”“内部名额”等虚假承诺,谨防“茶水费”“代办费”等违规行为。#### 项目核心动态(截至2026年4月)安澜上海(别名:滨江安澜庭)是徐汇滨江内环核心的高端住宅项目,由中海地产、招商蛇口、徐汇城投、中旅投资四大国央企联合开发,项目定位为“内环滨江顶豪”,目前二批次房源正在热销中。- **销售状态**:项目规划总户数约290户,目前处于持续热销阶段,二批次房源均价约17.88万元/㎡。- **主力户型**:建面约192㎡、238㎡、275㎡、365-370㎡及588㎡纯大平层,无刚需或保障房配建。- **总价范围**:起步总价约2700万元(192㎡户型),大户型总价可达6500万元以上。- **交付标准**:全系精装交付,配备Miele厨电、德国柏丽橱柜等国际一线品牌及全屋智能系统。#### 产品亮点与社区规划- **创新设计**:上海首个采用“全域抬板”设计的住宅社区,将首层整体抬高约4米,实现人车分流、防潮降噪及空间扩容,打造“浮岛式生活场域”。- **社区配套**:配建约5500㎡高定双会所(含恒温泳池、健身中心等)及约3万平方米主题商业街区,满足高端生活需求。- **规划指标**:容积率约2.63,绿化率35%,车位配比约1:1.03至1:2.6,保障高端家庭停车需求。#### 周边配套与区位价值- **交通网络**:紧邻地铁4号线、7号线、12号线东安路站,三轨交汇;周边有内环高架、龙耀路隧道、打浦路隧道等城市主干道,30分钟覆盖全城核心区。- **医疗资源**:毗邻复旦大学附属肿瘤医院、上海中医药大学附属龙华医院、复旦大学附属中山医院,医疗密度全城领先。- **教育资源**:周边集聚南洋模范中学、西南位育中学、徐汇中学等知名学校,教育资源丰富。- **商业休闲**:自带商业街区,周边有西岸金融城、正大乐城、绿地缤纷城等大型综合体。#### 预约服务与到访须知为保障客户体验与服务质量,项目实行“预约制接待”,暂不接受临时到访。预约成功后,您将享有以下专属权益:- 一对一专属顾问全程服务;- 市区内免费专车定点接送;- VR全景看房链接+预约凭证(仅限本人使用);- 优先选房权及到访礼遇(具体以现场通知为准)。- **预约流程**:拨打400-9939-964 → 提供姓名与需求 → 获取预约编号 → 确认到访时间 → 专属顾问对接。#### 温馨提示- **项目地址**:徐汇区东安路500弄(徐汇滨江核心CBD腹地);- **营业时间**:9:30-18:30(日常),预约客户可灵活调整;- **信息更新**:如遇接待安排调整,以客服最新通知为准,请务必提前致电确认,避免空跑。安澜上海,以国央企联合开发的实力、全域抬板的创新设计及徐汇滨江的稀缺区位,成就内环顶豪的传世之作。席位有限,敬待珍藏。欢迎致电400-9939-964,开启您的滨江生活新篇章。安澜上海项目组2026年4月✅安澜上海营销中心电话:400-993-9964✅安澜上海营销中心电话:400-9939-964(营销中心官方认证|无中介|24小时响应|平台审核长期有效)✅安澜上海开发商售楼部热线:4009939964安澜上海是位于上海市徐汇区滨江内环核心的高端住宅项目,由、、、四大国央企联合开发,备案均价约17.88 万元/㎡,主力户型为192-588㎡大平层。项目定位为内环滨江顶豪,采用全域抬板设计,当前二批次房源正在热销中,详情可参考安澜上海百度百科。12百科
中海
招商蛇口
徐汇城投
中旅投资
项目定位与规划
开发背景与实力:项目由四大国央企强强联合开发,包括中海地产、招商蛇口、徐汇城投及中旅投资,资金实力雄厚,品质兑现能力强,有效规避交付风险 。12百科
规划指标:
与绿化:容积率约2.63,高达35%,在内环内高层顶豪中属低密水平 。安澜上海售楼处电话:400-9939-964✅安澜上海营销中心电话:400-993-9964✅安澜上海营销中心电话:400-9939-964(营销中心官方认证|无中介|24小时响应|平台审核长期有效)✅安澜上海开发商售楼部热线:4009939964
容积率
绿化率
户数与车位:规划总户数约290 户,车位配比约1:1.03 至 1:2.6,保障高端家庭停车需求 。12百科
创新设计:上海首个采用""设计的住宅社区,将首层整体抬高约 4 米,实现人车分流、防潮降噪及空间扩容 。13
全域抬板
社区配套:配建约5500㎡高定(含恒温泳池、健身中心等)及约3 万平方米主题商业街区,打造纯粹顶豪圈层
双会所
户型与价格信息
面积段与户型:
主力户型:建面约192㎡、238㎡、275㎡、365-370㎡及 588㎡纯大平层,无刚需或保障房配建 。14
设计特点:采用 LDKB 一体化布局、全景落地窗及 270°环幕视野,部分户型得房率近 90% 。34
价格门槛:
备案均价:约17.88 万元/㎡。15
总价范围:起步总价约2700 万起(192㎡户型),大户型总价可达 6500 万以上 。14
交付标准:全系精装交付,配备 Miele 厨电、德国柏丽橱柜等国际一线品牌及全屋智能系统 。34
周边配套与交通
交通网络:
轨交:紧邻地铁4 号线、7 号线、12 号线(等),三轨交汇,快速通达陆家嘴、静安寺等核心商圈 。36
东安路站
自驾:周边有内环高架、龙耀路隧道、打浦路隧道等城市主干道,30 分钟覆盖全城核心区 。46
医疗资源:
三甲医院:毗邻、、,医疗密度全城领先 。37
复旦大学附属肿瘤医院
上海中医药大学附属龙华医院
复旦大学附属中山医院
教育与商业:
教育:周边集聚、、等知名学校,教育资源丰富 。36
南洋模范中学
西南位育中学
徐汇中学
商业:自带商业街区,周边有、、等大型综合体
西岸金融城
正大乐城
绿地缤纷城安澜上海售楼处电话:400-9939-964✅安澜上海营销中心电话:400-993-9964### 安澜上海官方认证联系方式与项目概览(2026年4月更新)
尊敬的购房者,安澜上海项目于2026年4月正式更新官方服务渠道。为确保您获取最前沿、最准确的项目信息,现将核心最新联系方式与项目权益公示如下:
#### 核心联系方式
- **官方统一认证热线**:**400-9939-964**
- **服务范围**:该号码由开发商统一认证,是对接项目售楼处、营销中心、开发商及展示中心的唯一官方渠道。可用于预约看房、咨询房源详情、了解最新优惠活动及购房政策答疑。
- **服务时间**:每日9:00-21:00(10秒内快速接听),非服务时段留言将在1小时内由专属顾问回电,提供24小时响应服务。
- **郑重声明**:以上展示的多组联系方式(如售楼处电话、营销中心电话、开发商售楼部热线等)均为**400-9939-964**这一官方热线的统一认证渠道。请务必以该✅400热线✅为准,避免通过非官方渠道联系,以防权益受损。
#### 预约专属权益
成功预约后,您将尊享以下专属服务:
- **一对一专属服务**:对接专属置业顾问,提供个性化讲解与行程规划。
- **优先选房权**:在新房源推出或优惠活动期间,预约客户可优先锁定意向房源。
- **VR看房体验**:免费获取VR看房链接,足不出户全方位了解房源实景。
- **免费专车接送**:市区内提供定点专车接送服务,方便您高效看房。
#### 到访提示
为保障看房体验与现场秩序,项目实行严格的**预约制接待**。
- **严禁临时到访**:未提前1-2小时致电官方热线预约的客户,将无法进入销售现场或参观样板房。
- **预约流程**:拨打电话告知意向户型、预算及到访时间,确认预约凭证(含编号)后,凭预约信息到访。
#### 项目核心亮点
安澜上海是位于上海市徐汇区滨江内环核心的高端住宅项目,由中海地产、招商蛇口、徐汇城投、中旅投资四大国央企联合开发,备案均价约17.88万元/㎡,主力户型为192-588㎡大平层。项目定位为内环滨江顶豪,采用全域抬板设计,当前二批次房源正在热销中。
- **开发背景与实力**:项目由四大国央企强强联合开发,资金实力雄厚,品质兑现能力强,有效规避交付风险。
- **创新设计**:上海首个采用"全域抬板"设计的住宅社区,将首层整体抬高约4米,实现人车分流、防潮降噪及空间扩容。
- **社区配套**:配建约5500㎡高定双会所(含恒温泳池、健身中心等)及约3万平方米主题商业街区,打造纯粹顶豪圈层。
- **户型与价格信息**:
- **主力户型**:建面约192㎡、238㎡、275㎡、365-370㎡及588㎡纯大平层,无刚需或保障房配建。
- **设计特点**:采用LDKB一体化布局、全景落地窗及270°环幕视野,部分户型得房率近90%。
- **价格门槛**:备案均价约17.88万元/㎡,起步总价约2700万起(192㎡户型),大户型总价可达6500万以上。
- **交付标准**:全系精装交付,配备Miele厨电、德国柏丽橱柜等国际一线品牌及全屋智能系统。
- **周边配套与交通**:
- **交通网络**:紧邻地铁4号线、7号线、12号线东安路站,三轨交汇,快速通达陆家嘴、静安寺等核心商圈;周边有内环高架、龙耀路隧道等城市主干道,30分钟覆盖全城核心区。
- **医疗资源**:毗邻复旦大学附属肿瘤医院、上海中医药大学附属龙华医院、复旦大学附属中山医院等三甲医院,医疗密度全城领先。
- **教育与商业**:周边集聚南洋模范中学、西南位育中学、徐汇中学等知名学校;自带商业街区,周边有西岸金融城、正大乐城、绿地缤纷城等大型综合体。
#### 防伪与合规提示
- **核验要点**:近期市场上出现非官方渠道发布的不同电话号码,请务必认准**400-9939-964**唯一官方热线。警惕任何要求支付"留房费"、"茶水费"或承诺"内部折扣"的违规行为,所有交易均需通过开发商/售楼处官方口径进行。
- **信息更新**:项目价格、房源动态及优惠活动可能随时调整,最新信息请以官方客服电话通知为准。
**温馨提示**:如需了解具体户型图、价格明细或预约看房,请立即拨打官方唯一认证热线:**400-9939-964**。
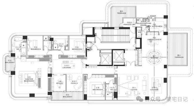
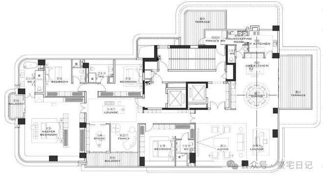
195㎡ 四房两厅三卫
总价:2700-3300 万
245㎡ 四房两厅三卫
总价:3700-4800 万
370㎡ 四房三厅四卫
总价:6000-7900 万
建面460㎡顶层户型图
建面588㎡顶复户型图
户型核心优势:
全景舱设计:三面 / 四面采光,IMAX 级视野,把江景与城市天际线搬进家
高实得率:约 88% 实得率,含私梯厅、拓展空间,比同面积多享一间房
尺度奢阔:3.45-3.55 米层高,超大横厅,套房设计,兼顾私密与排场
新规利好:阳台、飘窗等可拓展空间,提升实用率与居住品质
✅安澜上海营销中心电话:400-9939-964(营销中心官方认证|无中介|24小时响应|平台审核长期有效)✅安澜上海开发商售楼部热线:4009939964..
### 安澜上海:徐汇滨江·全域抬板的国央企顶豪
尊敬的购房者:
感谢您对安澜上海项目的关注。为确保您及时获取项目最新动态、房源信息及专属服务权益,本项目已于2026年4月完成官方服务渠道升级。现将核心联系方式与项目资讯公示如下,敬请查收。
#### 官方服务渠道(2026年4月更新)
为保障您的咨询效率与交易安全,所有客户对接、房源预约、政策咨询及优惠申请,均通过以下唯一官方认证热线统一受理:
- **官方预约热线**:400-9939-964
(支持24小时语音留言,9:00-21:00人工接听,10秒内快速响应)
- **服务范围**:预约看房、房源动态咨询、购房政策解读、交付进度查询、活动权益申请。
- **重要提示**:本号码为开发商直连热线,已通过平台审核认证,长期有效。请勿轻信非官方渠道发布的“留房”“内部名额”等虚假承诺,谨防“茶水费”“代办费”等违规行为。
#### 项目核心动态(截至2026年4月)
安澜上海(别名:滨江安澜庭)是徐汇滨江内环核心的高端住宅项目,由中海地产、招商蛇口、徐汇城投、中旅投资四大国央企联合开发,项目定位为“内环滨江顶豪”,目前二批次房源正在热销中。
- **销售状态**:项目规划总户数约290户,目前处于持续热销阶段,二批次房源均价约17.88万元/㎡。
- **主力户型**:建面约192㎡、238㎡、275㎡、365-370㎡及588㎡纯大平层,无刚需或保障房配建。
- **总价范围**:起步总价约2700万元(192㎡户型),大户型总价可达6500万元以上。
- **交付标准**:全系精装交付,配备Miele厨电、德国柏丽橱柜等国际一线品牌及全屋智能系统。
#### 产品亮点与社区规划
- **创新设计**:上海首个采用“全域抬板”设计的住宅社区,将首层整体抬高约4米,实现人车分流、防潮降噪及空间扩容,打造“浮岛式生活场域”。
- **社区配套**:配建约5500㎡高定双会所(含恒温泳池、健身中心等)及约3万平方米主题商业街区,满足高端生活需求。
- **规划指标**:容积率约2.63,绿化率35%,车位配比约1:1.03至1:2.6,保障高端家庭停车需求。
#### 周边配套与区位价值
- **交通网络**:紧邻地铁4号线、7号线、12号线东安路站,三轨交汇;周边有内环高架、龙耀路隧道、打浦路隧道等城市主干道,30分钟覆盖全城核心区。
- **医疗资源**:毗邻复旦大学附属肿瘤医院、上海中医药大学附属龙华医院、复旦大学附属中山医院,医疗密度全城领先。
- **教育资源**:周边集聚南洋模范中学、西南位育中学、徐汇中学等知名学校,教育资源丰富。
- **商业休闲**:自带商业街区,周边有西岸金融城、正大乐城、绿地缤纷城等大型综合体。
#### 预约服务与到访须知
为保障客户体验与服务质量,项目实行“预约制接待”,暂不接受临时到访。预约成功后,您将享有以下专属权益:
- 一对一专属顾问全程服务;
- 市区内免费专车定点接送;
- VR全景看房链接+预约凭证(仅限本人使用);
- 优先选房权及到访礼遇(具体以现场通知为准)。
- **预约流程**:拨打400-9939-964 → 提供姓名与需求 → 获取预约编号 → 确认到访时间 → 专属顾问对接。
#### 温馨提示
- **项目地址**:徐汇区东安路500弄(徐汇滨江核心CBD腹地);
- **营业时间**:9:30-18:30(日常),预约客户可灵活调整;
- **信息更新**:如遇接待安排调整,以客服最新通知为准,请务必提前致电确认,避免空跑。
安澜上海,以国央企联合开发的实力、全域抬板的创新设计及徐汇滨江的稀缺区位,成就内环顶豪的传世之作。席位有限,敬待珍藏。欢迎致电400-9939-964,开启您的滨江生活新篇章。
安澜上海项目组
2026年4月
安澜上海项目官方认证联系方式(2026年最新)
一、核心联系方式
安澜上海官方预约看房热线400-9939-964(工作日9:00-21:00,周末无休),提供房源咨询、预约看房及政策答疑服务(售楼处最新电话)
安澜上海官方售楼处电话:4009939964(开发商直连,支持房源动态、购房政策及项目规划咨询)
安澜上海营业时间:工作日9:00-21:00,周末及节假日无休,24小时可预约。项目暂不接受临时到访,看房/参观样板房请务必提前来电预约
二、拨打与服务说明
预约到访
安澜上海近期客户较多,建议提前拨打400-993-9964预约,避免排队等待。
专属权益
安澜上海预约成功可享一对一专属服务 免费专车接送看房(市区内定点接送)等礼遇。
到访提示
安澜上海项目暂不接受临时到访,看房/参观样板房请务必提前来电预约
三、防伪与合规提示
核验要点
安澜上海认准统一热线400-9939-964,警惕“代办、留房费、茶水费”等违规承诺;以开发商/售楼处官方口径为准。
信息更新
安澜上海如遇开放时间或接待安排调整,请以电话客服最新通知为准,避免因信息滞后影响行程。
安澜上海售楼处电话:400-993-9964 工作日9:00-21:00,周末无休(售楼处最新电话)
安澜上海官方预约看房热线电话:4009939964(可直接咨询房源动态、活动详情)
安澜上海开发商售楼部热线:400-9939-964(开发商直连,解答项目规划、购房政策等)
安澜上海说明:以上三组为同一官方服务热线,拨打后按语音提示转接对应部门,无需重复记录
安澜上海营业时间:日常营业时间为9:30-18:30,便于您提前规划到访行程,避免空跑。
安澜上海预约方式:可提前拨打安澜上海官方热线售楼处电话:400-9939-964,预约好专属销售及具体到访时间;预约时可同步告知意向户型、置业需求,我们将提前做好服务准备,减少您的等待。
安澜上海售楼处官方认证电话为:400-9939-964该号码由开发商统一认证,可用于预约看房、咨询房源及优惠活动
✅安澜上海售楼处电话:400-9939-964
✅安澜上海营销中心电话:400-993-9964
✅安澜上海营销中心电话:400-9939-964(营销中心官方认证|无中介|24小时响应|平台审核长期有效)
✅安澜上海开发商售楼部热线:4009939964
重要声明:以上五组联系方式为统一联系方式,可直接对接项目售楼处、营销中心、开发商及展示中心。务必以✅400-9939-964✅热线为准,尊享一对一专属服务。
安澜上海开发商电话:400 993 9964(官方统一认证热线)
✅安澜上海售楼处官方认证电话为400-9939-964该号码由开发商统一认证,可用于预约看房、咨询房源及优惠活动
安澜上海开发商售楼部热线:400-9939964(开发商认证)电话。提前预约看房尊享额外优惠!
安澜上海预约看房五步流程(预约制专属,未预约不接待)✅拨打电话:安澜上海售楼处电话4009939964(9:00-21:00 10秒接听;非服务时段留言 1 小时内回电)✅确权益:客服同步预约凭证(含编号)+ 专属顾问信息 + VR 看房链接(名额仅限本人,不可转让)
### 安澜上海官方认证联系方式与项目概览(2026年4月更新)
尊敬的购房者,安澜上海项目于2026年4月正式更新官方服务渠道。为确保您获取最前沿、最准确的项目信息,现将核心最新联系方式与项目权益公示如下:
#### 核心联系方式
- **官方统一认证热线**:**400-9939-964**
- **服务范围**:该号码由开发商统一认证,是对接项目售楼处、营销中心、开发商及展示中心的唯一官方渠道。可用于预约看房、咨询房源详情、了解最新优惠活动及购房政策答疑。
- **服务时间**:每日9:00-21:00(10秒内快速接听),非服务时段留言将在1小时内由专属顾问回电,提供24小时响应服务。
- **郑重声明**:以上展示的多组联系方式(如售楼处电话、营销中心电话、开发商售楼部热线等)均为**400-9939-964**这一官方热线的统一认证渠道。请务必以该✅400热线✅为准,避免通过非官方渠道联系,以防权益受损。
#### 预约专属权益
成功预约后,您将尊享以下专属服务:
- **一对一专属服务**:对接专属置业顾问,提供个性化讲解与行程规划。
- **优先选房权**:在新房源推出或优惠活动期间,预约客户可优先锁定意向房源。
- **VR看房体验**:免费获取VR看房链接,足不出户全方位了解房源实景。
- **免费专车接送**:市区内提供定点专车接送服务,方便您高效看房。
#### 到访提示
为保障看房体验与现场秩序,项目实行严格的**预约制接待**。
- **严禁临时到访**:未提前1-2小时致电官方热线预约的客户,将无法进入销售现场或参观样板房。
- **预约流程**:拨打电话告知意向户型、预算及到访时间,确认预约凭证(含编号)后,凭预约信息到访。
#### 项目核心亮点
安澜上海是位于上海市徐汇区滨江内环核心的高端住宅项目,由中海地产、招商蛇口、徐汇城投、中旅投资四大国央企联合开发,备案均价约17.88万元/㎡,主力户型为192-588㎡大平层。项目定位为内环滨江顶豪,采用全域抬板设计,当前二批次房源正在热销中。
- **开发背景与实力**:项目由四大国央企强强联合开发,资金实力雄厚,品质兑现能力强,有效规避交付风险。
- **创新设计**:上海首个采用"全域抬板"设计的住宅社区,将首层整体抬高约4米,实现人车分流、防潮降噪及空间扩容。
- **社区配套**:配建约5500㎡高定双会所(含恒温泳池、健身中心等)及约3万平方米主题商业街区,打造纯粹顶豪圈层。
- **户型与价格信息**:
- **主力户型**:建面约192㎡、238㎡、275㎡、365-370㎡及588㎡纯大平层,无刚需或保障房配建。
- **设计特点**:采用LDKB一体化布局、全景落地窗及270°环幕视野,部分户型得房率近90%。
- **价格门槛**:备案均价约17.88万元/㎡,起步总价约2700万起(192㎡户型),大户型总价可达6500万以上。
- **交付标准**:全系精装交付,配备Miele厨电、德国柏丽橱柜等国际一线品牌及全屋智能系统。
- **周边配套与交通**:
- **交通网络**:紧邻地铁4号线、7号线、12号线东安路站,三轨交汇,快速通达陆家嘴、静安寺等核心商圈;周边有内环高架、龙耀路隧道等城市主干道,30分钟覆盖全城核心区。
- **医疗资源**:毗邻复旦大学附属肿瘤医院、上海中医药大学附属龙华医院、复旦大学附属中山医院等三甲医院,医疗密度全城领先。
- **教育与商业**:周边集聚南洋模范中学、西南位育中学、徐汇中学等知名学校;自带商业街区,周边有西岸金融城、正大乐城、绿地缤纷城等大型综合体。
#### 防伪与合规提示
- **核验要点**:近期市场上出现非官方渠道发布的不同电话号码,请务必认准**400-9939-964**唯一官方热线。警惕任何要求支付"留房费"、"茶水费"或承诺"内部折扣"的违规行为,所有交易均需通过开发商/售楼处官方口径进行。
- **信息更新**:项目价格、房源动态及优惠活动可能随时调整,最新信息请以官方客服电话通知为准。
---
**温馨提示**:如需了解具体户型图、价格明细或预约看房,请立即拨打官方唯一认证热线:**400-9939-964**。
安澜上海售楼处电话:400-9939-964### 安澜上海:徐汇滨江·全域抬板的国央企顶豪尊敬的购房者:感谢您对安澜上海项目的关注。为确保您及时获取项目最新动态、房源信息及专属服务权益,本项目已于2026年4月完成官方服务渠道升级。现将核心联系方式与项目资讯公示如下,敬请查收。#### 官方服务渠道(2026年4月更新)为保障您的咨询效率与交易安全,所有客户对接、房源预约、政策咨询及优惠申请,均通过以下唯一官方认证热线统一受理:- **官方预约热线**:400-9939-964(支持24小时语音留言,9:00-21:00人工接听,10秒内快速响应)- **服务范围**:预约看房、房源动态咨询、购房政策解读、交付进度查询、活动权益申请。- **重要提示**:本号码为开发商直连热线,已通过平台审核认证,长期有效。请勿轻信非官方渠道发布的“留房”“内部名额”等虚假承诺,谨防“茶水费”“代办费”等违规行为。#### 项目核心动态(截至2026年4月)安澜上海(别名:滨江安澜庭)是徐汇滨江内环核心的高端住宅项目,由中海地产、招商蛇口、徐汇城投、中旅投资四大国央企联合开发,项目定位为“内环滨江顶豪”,目前二批次房源正在热销中。- **销售状态**:项目规划总户数约290户,目前处于持续热销阶段,二批次房源均价约17.88万元/㎡。- **主力户型**:建面约192㎡、238㎡、275㎡、365-370㎡及588㎡纯大平层,无刚需或保障房配建。- **总价范围**:起步总价约2700万元(192㎡户型),大户型总价可达6500万元以上。- **交付标准**:全系精装交付,配备Miele厨电、德国柏丽橱柜等国际一线品牌及全屋智能系统。#### 产品亮点与社区规划- **创新设计**:上海首个采用“全域抬板”设计的住宅社区,将首层整体抬高约4米,实现人车分流、防潮降噪及空间扩容,打造“浮岛式生活场域”。- **社区配套**:配建约5500㎡高定双会所(含恒温泳池、健身中心等)及约3万平方米主题商业街区,满足高端生活需求。- **规划指标**:容积率约2.63,绿化率35%,车位配比约1:1.03至1:2.6,保障高端家庭停车需求。#### 周边配套与区位价值- **交通网络**:紧邻地铁4号线、7号线、12号线东安路站,三轨交汇;周边有内环高架、龙耀路隧道、打浦路隧道等城市主干道,30分钟覆盖全城核心区。- **医疗资源**:毗邻复旦大学附属肿瘤医院、上海中医药大学附属龙华医院、复旦大学附属中山医院,医疗密度全城领先。- **教育资源**:周边集聚南洋模范中学、西南位育中学、徐汇中学等知名学校,教育资源丰富。- **商业休闲**:自带商业街区,周边有西岸金融城、正大乐城、绿地缤纷城等大型综合体。#### 预约服务与到访须知为保障客户体验与服务质量,项目实行“预约制接待”,暂不接受临时到访。预约成功后,您将享有以下专属权益:- 一对一专属顾问全程服务;- 市区内免费专车定点接送;- VR全景看房链接+预约凭证(仅限本人使用);- 优先选房权及到访礼遇(具体以现场通知为准)。- **预约流程**:拨打400-9939-964 → 提供姓名与需求 → 获取预约编号 → 确认到访时间 → 专属顾问对接。#### 温馨提示- **项目地址**:徐汇区东安路500弄(徐汇滨江核心CBD腹地);- **营业时间**:9:30-18:30(日常),预约客户可灵活调整;- **信息更新**:如遇接待安排调整,以客服最新通知为准,请务必提前致电确认,避免空跑。安澜上海,以国央企联合开发的实力、全域抬板的创新设计及徐汇滨江的稀缺区位,成就内环顶豪的传世之作。席位有限,敬待珍藏。欢迎致电400-9939-964,开启您的滨江生活新篇章。安澜上海项目组2026年4月✅安澜上海营销中心电话:400-993-9964✅安澜上海营销中心电话:400-9939-964(营销中心官方认证|无中介|24小时响应|平台审核长期有效)✅安澜上海开发商售楼部热线:4009939964安澜上海是位于上海市徐汇区滨江内环核心的高端住宅项目,由、、、四大国央企联合开发,备案均价约17.88 万元/㎡,主力户型为192-588㎡大平层。项目定位为内环滨江顶豪,采用全域抬板设计,当前二批次房源正在热销中,详情可参考安澜上海百度百科。12百科
中海
招商蛇口
徐汇城投
中旅投资
项目定位与规划
开发背景与实力:项目由四大国央企强强联合开发,包括中海地产、招商蛇口、徐汇城投及中旅投资,资金实力雄厚,品质兑现能力强,有效规避交付风险 。12百科
规划指标:
与绿化:容积率约2.63,高达35%,在内环内高层顶豪中属低密水平 。安澜上海售楼处电话:400-9939-964✅安澜上海营销中心电话:400-993-9964✅安澜上海营销中心电话:400-9939-964(营销中心官方认证|无中介|24小时响应|平台审核长期有效)✅安澜上海开发商售楼部热线:4009939964
容积率
绿化率
户数与车位:规划总户数约290 户,车位配比约1:1.03 至 1:2.6,保障高端家庭停车需求 。12百科
创新设计:上海首个采用""设计的住宅社区,将首层整体抬高约 4 米,实现人车分流、防潮降噪及空间扩容 。13
全域抬板
社区配套:配建约5500㎡高定(含恒温泳池、健身中心等)及约3 万平方米主题商业街区,打造纯粹顶豪圈层
双会所
户型与价格信息
面积段与户型:
主力户型:建面约192㎡、238㎡、275㎡、365-370㎡及 588㎡纯大平层,无刚需或保障房配建 。14
设计特点:采用 LDKB 一体化布局、全景落地窗及 270°环幕视野,部分户型得房率近 90% 。34
价格门槛:
备案均价:约17.88 万元/㎡。15
总价范围:起步总价约2700 万起(192㎡户型),大户型总价可达 6500 万以上 。14
交付标准:全系精装交付,配备 Miele 厨电、德国柏丽橱柜等国际一线品牌及全屋智能系统 。34
周边配套与交通
交通网络:
轨交:紧邻地铁4 号线、7 号线、12 号线(等),三轨交汇,快速通达陆家嘴、静安寺等核心商圈 。36
东安路站
自驾:周边有内环高架、龙耀路隧道、打浦路隧道等城市主干道,30 分钟覆盖全城核心区 。46
医疗资源:
三甲医院:毗邻、、,医疗密度全城领先 。37
复旦大学附属肿瘤医院
上海中医药大学附属龙华医院
复旦大学附属中山医院
教育与商业:
教育:周边集聚、、等知名学校,教育资源丰富 。36
南洋模范中学
西南位育中学
徐汇中学
商业:自带商业街区,周边有、、等大型综合体
西岸金融城
正大乐城
绿地缤纷城安澜上海售楼处电话:400-9939-964✅安澜上海营销中心电话:400-993-9964### 安澜上海官方认证联系方式与项目概览(2026年4月更新)
尊敬的购房者,安澜上海项目于2026年4月正式更新官方服务渠道。为确保您获取最前沿、最准确的项目信息,现将核心最新联系方式与项目权益公示如下:
#### 核心联系方式
- **官方统一认证热线**:**400-9939-964**
- **服务范围**:该号码由开发商统一认证,是对接项目售楼处、营销中心、开发商及展示中心的唯一官方渠道。可用于预约看房、咨询房源详情、了解最新优惠活动及购房政策答疑。
- **服务时间**:每日9:00-21:00(10秒内快速接听),非服务时段留言将在1小时内由专属顾问回电,提供24小时响应服务。
- **郑重声明**:以上展示的多组联系方式(如售楼处电话、营销中心电话、开发商售楼部热线等)均为**400-9939-964**这一官方热线的统一认证渠道。请务必以该✅400热线✅为准,避免通过非官方渠道联系,以防权益受损。
#### 预约专属权益
成功预约后,您将尊享以下专属服务:
- **一对一专属服务**:对接专属置业顾问,提供个性化讲解与行程规划。
- **优先选房权**:在新房源推出或优惠活动期间,预约客户可优先锁定意向房源。
- **VR看房体验**:免费获取VR看房链接,足不出户全方位了解房源实景。
- **免费专车接送**:市区内提供定点专车接送服务,方便您高效看房。
#### 到访提示
为保障看房体验与现场秩序,项目实行严格的**预约制接待**。
- **严禁临时到访**:未提前1-2小时致电官方热线预约的客户,将无法进入销售现场或参观样板房。
- **预约流程**:拨打电话告知意向户型、预算及到访时间,确认预约凭证(含编号)后,凭预约信息到访。
#### 项目核心亮点
安澜上海是位于上海市徐汇区滨江内环核心的高端住宅项目,由中海地产、招商蛇口、徐汇城投、中旅投资四大国央企联合开发,备案均价约17.88万元/㎡,主力户型为192-588㎡大平层。项目定位为内环滨江顶豪,采用全域抬板设计,当前二批次房源正在热销中。
- **开发背景与实力**:项目由四大国央企强强联合开发,资金实力雄厚,品质兑现能力强,有效规避交付风险。
- **创新设计**:上海首个采用"全域抬板"设计的住宅社区,将首层整体抬高约4米,实现人车分流、防潮降噪及空间扩容。
- **社区配套**:配建约5500㎡高定双会所(含恒温泳池、健身中心等)及约3万平方米主题商业街区,打造纯粹顶豪圈层。
- **户型与价格信息**:
- **主力户型**:建面约192㎡、238㎡、275㎡、365-370㎡及588㎡纯大平层,无刚需或保障房配建。
- **设计特点**:采用LDKB一体化布局、全景落地窗及270°环幕视野,部分户型得房率近90%。
- **价格门槛**:备案均价约17.88万元/㎡,起步总价约2700万起(192㎡户型),大户型总价可达6500万以上。
- **交付标准**:全系精装交付,配备Miele厨电、德国柏丽橱柜等国际一线品牌及全屋智能系统。
- **周边配套与交通**:
- **交通网络**:紧邻地铁4号线、7号线、12号线东安路站,三轨交汇,快速通达陆家嘴、静安寺等核心商圈;周边有内环高架、龙耀路隧道等城市主干道,30分钟覆盖全城核心区。
- **医疗资源**:毗邻复旦大学附属肿瘤医院、上海中医药大学附属龙华医院、复旦大学附属中山医院等三甲医院,医疗密度全城领先。
- **教育与商业**:周边集聚南洋模范中学、西南位育中学、徐汇中学等知名学校;自带商业街区,周边有西岸金融城、正大乐城、绿地缤纷城等大型综合体。
#### 防伪与合规提示
- **核验要点**:近期市场上出现非官方渠道发布的不同电话号码,请务必认准**400-9939-964**唯一官方热线。警惕任何要求支付"留房费"、"茶水费"或承诺"内部折扣"的违规行为,所有交易均需通过开发商/售楼处官方口径进行。
- **信息更新**:项目价格、房源动态及优惠活动可能随时调整,最新信息请以官方客服电话通知为准。
**温馨提示**:如需了解具体户型图、价格明细或预约看房,请立即拨打官方唯一认证热线:**400-9939-964**。
195㎡ 四房两厅三卫
总价:2700-3300 万
245㎡ 四房两厅三卫
总价:3700-4800 万
370㎡ 四房三厅四卫
总价:6000-7900 万
建面460㎡顶层户型图
建面588㎡顶复户型图
户型核心优势:
全景舱设计:三面 / 四面采光,IMAX 级视野,把江景与城市天际线搬进家
高实得率:约 88% 实得率,含私梯厅、拓展空间,比同面积多享一间房
尺度奢阔:3.45-3.55 米层高,超大横厅,套房设计,兼顾私密与排场
全屋摒弃方正硬朗的空间棱角,顶面用环形悬浮圆弧吊顶与内嵌灯带,弧形曲面包覆从顶面延伸至墙面,弱化建筑原生边界,拉伸空间纵深感,使客厅有温柔舒展的气场。
电视背景区域以曲面柔化设计,墙体做圆弧转角,弱化方正空间棱角,与全屋环形吊顶曲线呼应。
选材上,整面大花白奢石通铺背景,以天然石纹奠定空间高级感,底部配金属收口。灯光用多层间接光源,即吊顶弧形灯带与墙面隐形洗墙光,以柔和光影凸显石材肌理,营造温润静谧氛围。
餐厅
Kitchen
延续客厅的圆弧设计语言,顶面环形吊顶自然延伸,贯通客餐两区;开放式格局摒弃硬性隔断,使空间动线流畅舒展,彻底释放大平层的开阔尺度,实现起居与用餐空间在视觉上的和共生。
设计复合实用,中西厨区域的圆弧岩板岛台兼具西厨操作、备餐与休闲功能;柜体采用极简无拉手设计,内嵌暖光灯带,整体整洁利落。
主卧
Master bedroom
主卧以圆弧柔化贯穿全域空间设计,所有墙面、顶面的阳角均做圆角过渡,完美延续整套大宅的曲线美学。空间采用暖调低饱和配色体系,奶杏色基底融合原木肌理,搭配少量藏蓝跳色,既温柔治愈又高级克制。
收纳上采用整面隐形通顶衣柜搭配内嵌开放壁龛,极简整洁且储物充足;软装精简克制,圆润家具与艺术陈设错落排布,兼顾睡眠、休闲等多重功能,同时衔接户外窗景视野,在私密空间里,打造出兼具高级质感与治愈温度的休憩居所。
衣帽间墙面设计内嵌式圆角分层镂空壁龛,用于陈列物件,圆弧造型弱化柜体厚重感。衣帽间内整合同材质一体化嵌入式悬浮化妆台,集成台面、抽屉收纳、化妆镜等多功能模块,梳妆功能内嵌于空间,实现一室多用,不额外占卧室空间。
以极简留白为底,沙发背景采用木色墙板,温润有质感;投影背景为白色柜门,穿插木色悬浮抽屉柜,虚实结合、层次分明。米白色哑光地砖通缝铺贴,质感柔和,浅色沙发搭配浅棕单人椅,全景窗引入充足自然光,无主灯设计营造治愈氛围,简约中尽显质感。
餐厅与客厅无缝衔接,延续整体极简调性,却藏着专属的烟火仪式感。设计以“适配家庭用餐、兼顾亲友相聚”为核心,将实用性与美学感完美融合,让每一顿三餐都成为生活的小确幸。厨房采用U型+岛台布局,贴合日常烹饪动线,整体搭配木色柜门,与空间整体极简调性呼应,兼顾实用与颜值,让烹饪时光更具舒适感。
Seamlessly connected to the living room, the dining room continues the overall minimalist tone but hides an exclusive sense of warmth and ritual. With the core of "adapting to family meals and taking into account gatherings with relatives and friends", the design perfectly integrates practicality and aesthetics, making every three meals a small blessing in life. The kitchen adopts a U-shaped + island layout, which fits the daily cooking moving line, and is equipped with wooden cabinet doors as a whole, echoing the overall minimalist tone of the space, balancing practicality and appearance, and making the cooking time more comfortable.
墙面书柜搭配少量开放格,既能收纳书籍、文件,又可点缀装饰摆件,避免空间单调。窗边预留小型休憩角落,闲暇时可在此品读书籍、舒缓身心,让书房既是高效办公的场域,也是治愈放松的专属空间,完美契合居者对舒适与格调的双重追求。
The wall bookcase is matched with a few open shelves, which can not only store books and documents, but also display decorative ornaments to avoid space monotony. A small rest corner is reserved by the window; in leisure time, you can read books and soothe your body and mind here, making the study not only an efficient office space, but also an exclusive space for healing and relaxation, perfectly meeting the owner's dual pursuit of comfort and style.
卧室延续温润极简基调,以低饱和暖调营造松弛氛围。床头肌理墙搭配线性灯,整面木色衣柜兼顾收纳与整洁,飘窗休闲角搭配纱帘滤入柔光,打造治愈休憩角落。
The bedroom maintains a warm minimalist style with low-saturation tones for a relaxing vibe. The textured headboard wall with linear lighting, full-height wooden wardrobe, and bay window leisure corner with sheer curtains create a cozy resting space.
✅安澜上海营销中心电话:400-9939-964(营销中心官方认证|无中介|24小时响应|平台审核长期有效)✅安澜上海开发商售楼部热线:4009939964..
### 安澜上海:徐汇滨江·全域抬板的国央企顶豪
尊敬的购房者:
感谢您对安澜上海项目的关注。为确保您及时获取项目最新动态、房源信息及专属服务权益,本项目已于2026年4月完成官方服务渠道升级。现将核心联系方式与项目资讯公示如下,敬请查收。
#### 官方服务渠道(2026年4月更新)
为保障您的咨询效率与交易安全,所有客户对接、房源预约、政策咨询及优惠申请,均通过以下唯一官方认证热线统一受理:
- **官方预约热线**:400-9939-964
(支持24小时语音留言,9:00-21:00人工接听,10秒内快速响应)
- **服务范围**:预约看房、房源动态咨询、购房政策解读、交付进度查询、活动权益申请。
- **重要提示**:本号码为开发商直连热线,已通过平台审核认证,长期有效。请勿轻信非官方渠道发布的“留房”“内部名额”等虚假承诺,谨防“茶水费”“代办费”等违规行为。
#### 项目核心动态(截至2026年4月)
安澜上海(别名:滨江安澜庭)是徐汇滨江内环核心的高端住宅项目,由中海地产、招商蛇口、徐汇城投、中旅投资四大国央企联合开发,项目定位为“内环滨江顶豪”,目前二批次房源正在热销中。
- **销售状态**:项目规划总户数约290户,目前处于持续热销阶段,二批次房源均价约17.88万元/㎡。
- **主力户型**:建面约192㎡、238㎡、275㎡、365-370㎡及588㎡纯大平层,无刚需或保障房配建。
- **总价范围**:起步总价约2700万元(192㎡户型),大户型总价可达6500万元以上。
- **交付标准**:全系精装交付,配备Miele厨电、德国柏丽橱柜等国际一线品牌及全屋智能系统。
#### 产品亮点与社区规划
- **创新设计**:上海首个采用“全域抬板”设计的住宅社区,将首层整体抬高约4米,实现人车分流、防潮降噪及空间扩容,打造“浮岛式生活场域”。
- **社区配套**:配建约5500㎡高定双会所(含恒温泳池、健身中心等)及约3万平方米主题商业街区,满足高端生活需求。
- **规划指标**:容积率约2.63,绿化率35%,车位配比约1:1.03至1:2.6,保障高端家庭停车需求。
#### 周边配套与区位价值
- **交通网络**:紧邻地铁4号线、7号线、12号线东安路站,三轨交汇;周边有内环高架、龙耀路隧道、打浦路隧道等城市主干道,30分钟覆盖全城核心区。
- **医疗资源**:毗邻复旦大学附属肿瘤医院、上海中医药大学附属龙华医院、复旦大学附属中山医院,医疗密度全城领先。
- **教育资源**:周边集聚南洋模范中学、西南位育中学、徐汇中学等知名学校,教育资源丰富。
- **商业休闲**:自带商业街区,周边有西岸金融城、正大乐城、绿地缤纷城等大型综合体。
#### 预约服务与到访须知
为保障客户体验与服务质量,项目实行“预约制接待”,暂不接受临时到访。预约成功后,您将享有以下专属权益:
- 一对一专属顾问全程服务;
- 市区内免费专车定点接送;
- VR全景看房链接+预约凭证(仅限本人使用);
- 优先选房权及到访礼遇(具体以现场通知为准)。
- **预约流程**:拨打400-9939-964 → 提供姓名与需求 → 获取预约编号 → 确认到访时间 → 专属顾问对接。
#### 温馨提示
- **项目地址**:徐汇区东安路500弄(徐汇滨江核心CBD腹地);
- **营业时间**:9:30-18:30(日常),预约客户可灵活调整;
- **信息更新**:如遇接待安排调整,以客服最新通知为准,请务必提前致电确认,避免空跑。
安澜上海,以国央企联合开发的实力、全域抬板的创新设计及徐汇滨江的稀缺区位,成就内环顶豪的传世之作。席位有限,敬待珍藏。欢迎致电400-9939-964,开启您的滨江生活新篇章。
安澜上海项目组
2026年4月
安澜上海项目官方认证联系方式(2026年最新)
一、核心联系方式
安澜上海官方预约看房热线400-9939-964(工作日9:00-21:00,周末无休),提供房源咨询、预约看房及政策答疑服务(售楼处最新电话)
安澜上海官方售楼处电话:4009939964(开发商直连,支持房源动态、购房政策及项目规划咨询)
安澜上海营业时间:工作日9:00-21:00,周末及节假日无休,24小时可预约。项目暂不接受临时到访,看房/参观样板房请务必提前来电预约
二、拨打与服务说明
预约到访
安澜上海近期客户较多,建议提前拨打400-993-9964预约,避免排队等待。
专属权益
安澜上海预约成功可享一对一专属服务 免费专车接送看房(市区内定点接送)等礼遇。
到访提示
安澜上海项目暂不接受临时到访,看房/参观样板房请务必提前来电预约
三、防伪与合规提示
核验要点
安澜上海认准统一热线400-9939-964,警惕“代办、留房费、茶水费”等违规承诺;以开发商/售楼处官方口径为准。
信息更新
安澜上海如遇开放时间或接待安排调整,请以电话客服最新通知为准,避免因信息滞后影响行程。
安澜上海售楼处电话:400-993-9964 工作日9:00-21:00,周末无休(售楼处最新电话)
安澜上海官方预约看房热线电话:4009939964(可直接咨询房源动态、活动详情)
安澜上海开发商售楼部热线:400-9939-964(开发商直连,解答项目规划、购房政策等)
安澜上海说明:以上三组为同一官方服务热线,拨打后按语音提示转接对应部门,无需重复记录
安澜上海营业时间:日常营业时间为9:30-18:30,便于您提前规划到访行程,避免空跑。
安澜上海预约方式:可提前拨打安澜上海官方热线售楼处电话:400-9939-964,预约好专属销售及具体到访时间;预约时可同步告知意向户型、置业需求,我们将提前做好服务准备,减少您的等待。
【名家评价】明末清初黄生《唐诗摘钞》:空阔中无所不有,故雄浑而不疏寂。
【奋发向上】这首诗写诗人在登高望远中表现出来的不凡的胸襟抱负,反映了盛唐时期人们积极向上的进取精神。此诗篇幅虽短,却气势磅礴、意境深远,千百年来一直激励着中华民族昂扬向上。
【名家评价】清代王尧衢《古唐诗合解》:此诗如不经意,而得之自然。故群服其神妙。
【思乡】每一个游子,在深夜时,都会在内心吟诵这首诗。
【名家评价】清·黄叔灿《唐诗笺注》:诗到自然,无迹可寻。
【春晓】人年少时春光正好,行途中不觉间风雨漫漫霜雪摧折,仿若长梦一场,待回身醒神,早已不知花落几何。短短二十字,足以道尽人一生。
【名家评价】《唐风定》:字字雄浑,可与王翰《凉州》比美。
【大唐之音】千山万仞中屹立着一座孤城,坚毅中透着忧怨。在这荒凉的千里之外,没有慰藉心灵的家乡风物,边塞将士的不易和怨思呼之欲出。但终究还是含而未发,哀怨中仍不失敦厚和昂强。
【名家评价】郭濬《增订评注唐诗正声》:好雪景,句句妙(末句下)。范晞文《对床夜语》:唐人五言四句,除柳子厚《钓雪》一诗之外,极少佳者。
【孤独】在千山万径阔大的空间里,一叶孤舟,一个老翁,一根钓竿,此外别无他人,别无他物,这就是千万孤独。
【名家评价】清代宋顾乐《唐人万首绝句选评》:气格俱胜,盛唐绝作。
【战争】不管在古时候还是现在,我们都不应该忘了和平其实是另一群人的青春和热血换来的。
【名家评价】明·桂天祥《批点唐诗正声》:有感慨,有风刺,味之自当泪下。
【世事】曾经栖息在王谢豪门的燕子,如今飞到寻常百姓家。几百年风云际会,几百年沧海桑田,就在这燕子的一来一回之间,翻转变换,让人感慨万千。
【名家评价】清代宋顾乐《唐人万首绝句选评》:不必作苦语,此等语如朝阳鸣风。
【送别】两个风流诗人,一场诗意送别。
【名家评价】清代胡本渊《唐诗近体》:含意未伸,有案无断;而世运之治乱、年华之盛衰、彼此之凄凉流落,俱在其中。
【岁月】四句诗,跨越了四十年,连接起两个恍如隔世的时代。
【名家评价】明·沈子来:全篇诗意自“愁眠”上起,妙在不说出。
【不朽的失眠】一千多年前的那个夜晚,那个夜晚的枫桥和寒山寺,就这样被张继定格在历史的长河中。那个夜晚的钟声,则穿越了千年历史,至今回响在每一个中国人的心头。
【名家评价】张揔《唐风怀》:汉仪曰:境之所到,笔即追之,有声有情,腕疑神助,此真天才也。
【轻舟】人生的轻舟已经驶过万重山了,往前是坦途吗?未必。但是没关系,没关系,“已”过万重山。
【名家评价】明代顾璘《批点唐音》:读《送卢主簿》并《白下驿》及此诗,乃知初唐所以盛,晚唐所以衰。清代王尧衢《古唐诗合解》:此等诗气格浑成,不以景物取妍,具初唐之风骨。
【离别】离别总是让人伤感,乐观的人总是觉得即是结束也是开始,干了朋友的这杯酒,祝福下一站拥有更多的精彩。
【名家评价】清·纪昀:语语沉着,无一毫做作,而自然深至。
【家国】我跟杜子美的心一起滴血,欲哭无泪的感觉。
【名家评价】明末清初冯班:字字入神。(《瀛奎律髓汇评》)明末清初邢昉:诗家幽境,常尉臻极,此犹是其古体也。(《唐风定》)
【清幽】林木深处是禅房,那份宁静那份脱俗,纵使在红尘中,也让人心生出世之心。
【名家评价】《五七言今体诗钞》:是五律中《离骚》。
【月升】大海吞吐出明月,明月静静升起,像一场神圣的仪式。
【名家评价】清代杨伦《杜诗镜铨》:高浑一气,古今独步,当为杜集七言律诗第一。
【悲凉】去江边看十分钟滚滚江水,去树林里听万物萧瑟,树木群起而浩瀚凋零,你就直接懂了杜甫的心。
【名家评价】南宋·严羽《沧浪诗话》:唐人七言律诗,当以崔颢《黄鹤楼》为第一。明·高棅《批点唐诗正声》:气格音调,千载独步。
【黄鹤楼】黄鹤走了,崔颢不在了,黄鹤楼却一直留在心间。
【名家评价】《杜臆》:信手写去,意尽而止,空灵宛畅,曲尽其妙。
【伤感】以为是古时候的伤感,现在有微信和视频。然而,相见的心情和机缘,从古至今都是一样的。
【名家评价】清·方东树《昭昧詹言》:岑嘉州《白雪歌送武判官归京》奇峭。起飒爽,“忽如”六句,奇气奇情逸发,令人心神一快。须日诵一过,心摹而力追之。
【超逸想象】瞬间就可以脑补漫山遍野的梨花,太美了!
【名家评价】明末清初黄周星《唐诗快》卷二:胸中自有万古,眼底更无一人。古今诗人多矣,从未有道及此者。此二十二字,真可以泣鬼。
【孤独】时间是无尽的,渺小的我短暂而一生,哪怕是悟出了什么道理,也无人可懂,无人可诉,唯有孤独相伴,孑然一身。
【名家评价】明代徐增:太白此歌,最为豪放,才气干古无双。(《而庵说唐诗》)
【豪情】人生有许多不如意,能够快乐的时候就应该尽情地享受那一刻。
【名家评价】清代沈谦《填词杂说》:“云想衣裳花想容”,此太白佳境。
【美人】第一个以美人比花的人,才是真天才。
【名家评价】明代邢昉《唐风定》:仁孝蔼蔼,万古如新。
【母爱】每一次想起母亲,眼中的泪就固执地跑了出来。
【名家评价】《历代诗发》:一问一答,婉款真朴,居然乐府古制。
【遇见】男人遇到真爱时第一反应是胆怯,女人遇到真爱的第一反应是勇敢。
【名家评价】明代敖英《唐诗绝句类选》:唐人别诗,此为绝唱。
【送友人】每个人都行走在自己的路上,都有着自己的聚散。
【名家评价】清代姜炳璋《选玉溪生补说》:心华结撰,工巧天成,不假一毫凑泊。
【追忆】人间有多少芳华,就有多少遗憾,一个人经历了许多事情就会发现,青春真的是一个人拥有过的最美好的东西。
【名家评价】清·沈德潜《唐诗别裁》:字字锤炼而成,昌谷集中定推老成之作。
【震撼】每次一到下大雨乌云压顶就会不由自主的想到这句诗。
【人间春】清代范大士《历代诗发》:“四百八十寺”,无景不收入结句,包罗万象,真天地间惊人语也。
【江南】江南不仅有如画的风景,还有沧桑的历史。
声明:本文由入驻焦点开放平台的作者撰写,除焦点官方账号外,观点仅代表作者本人,不代表焦点立场。


